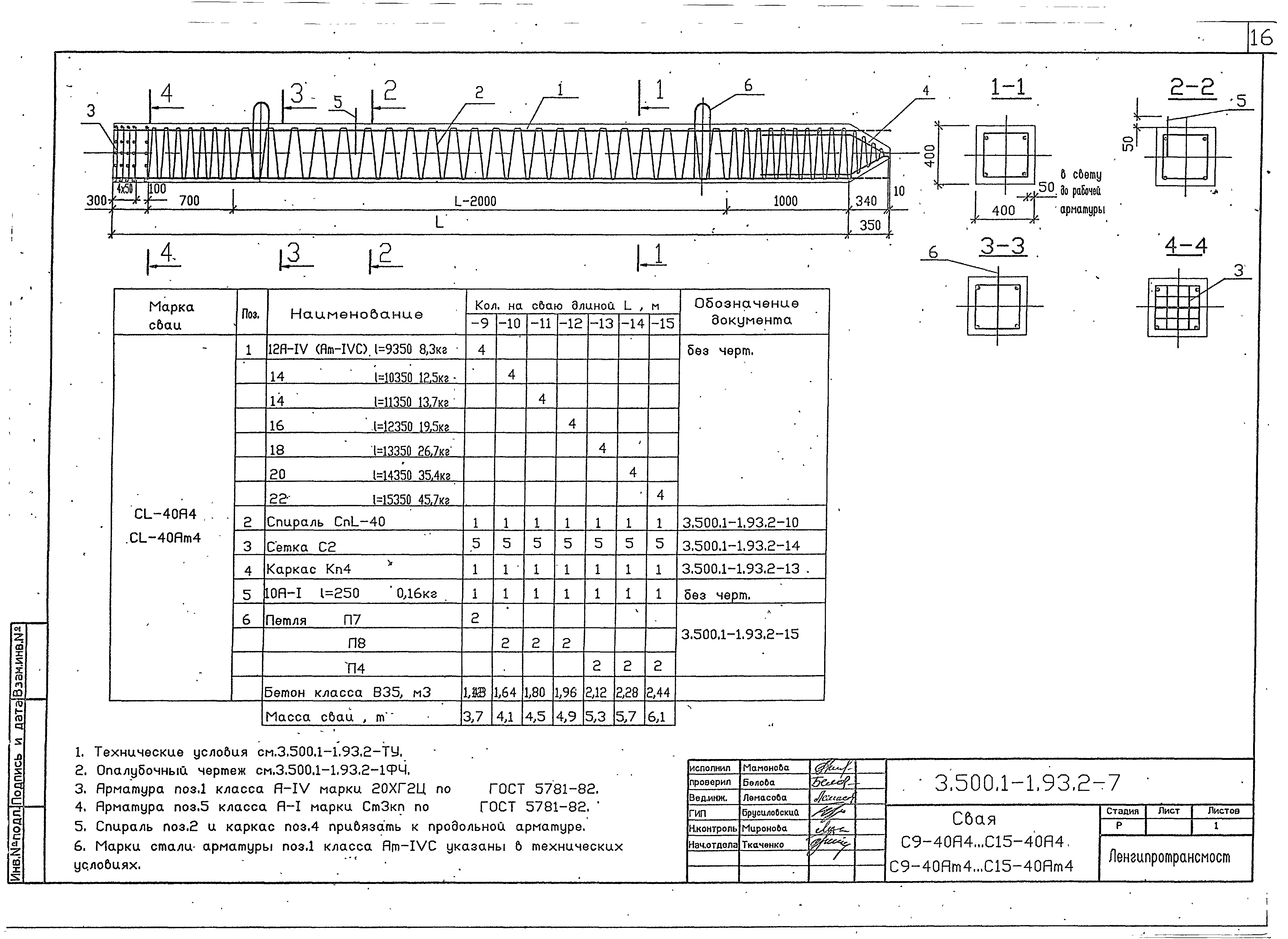
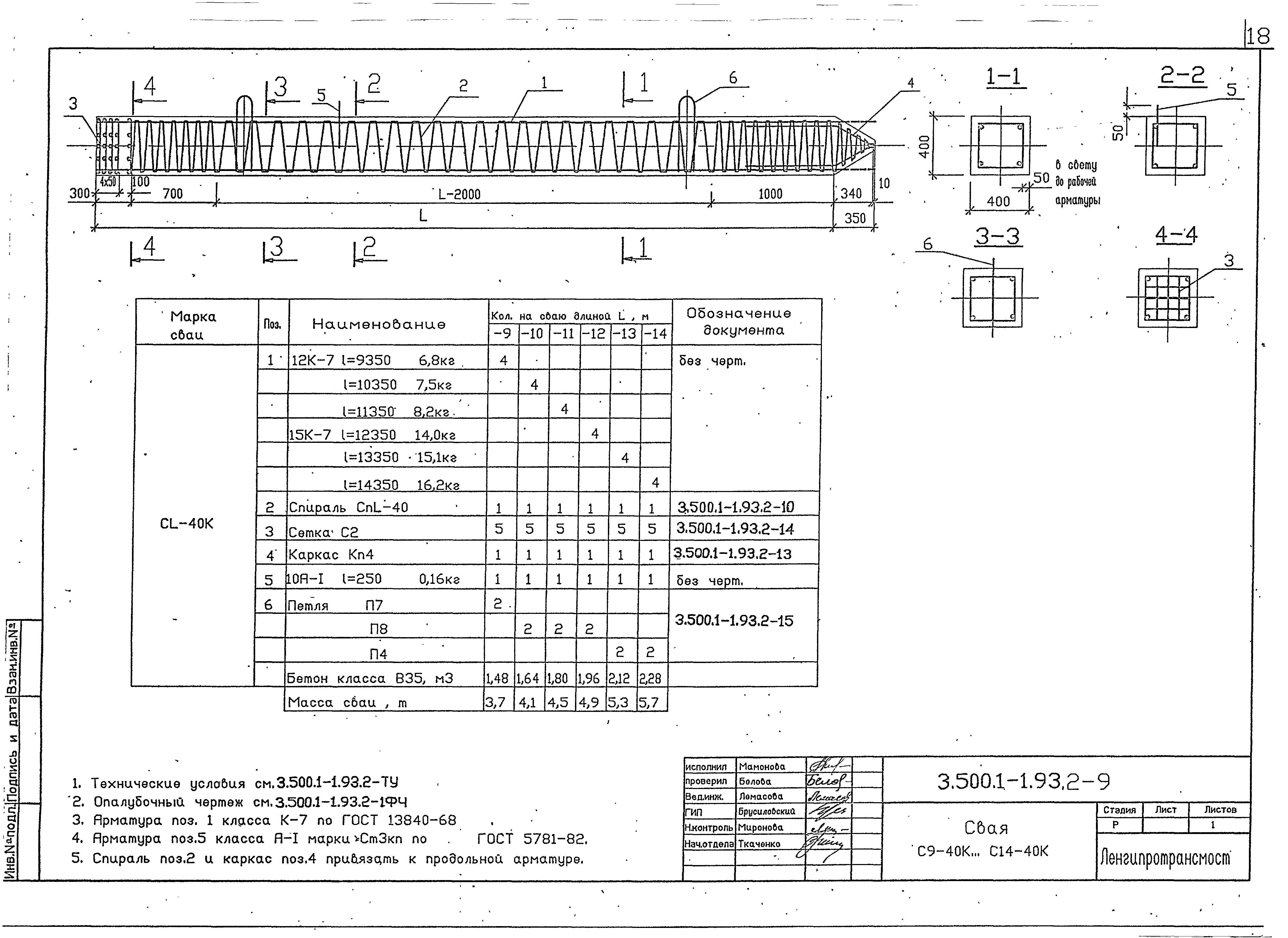
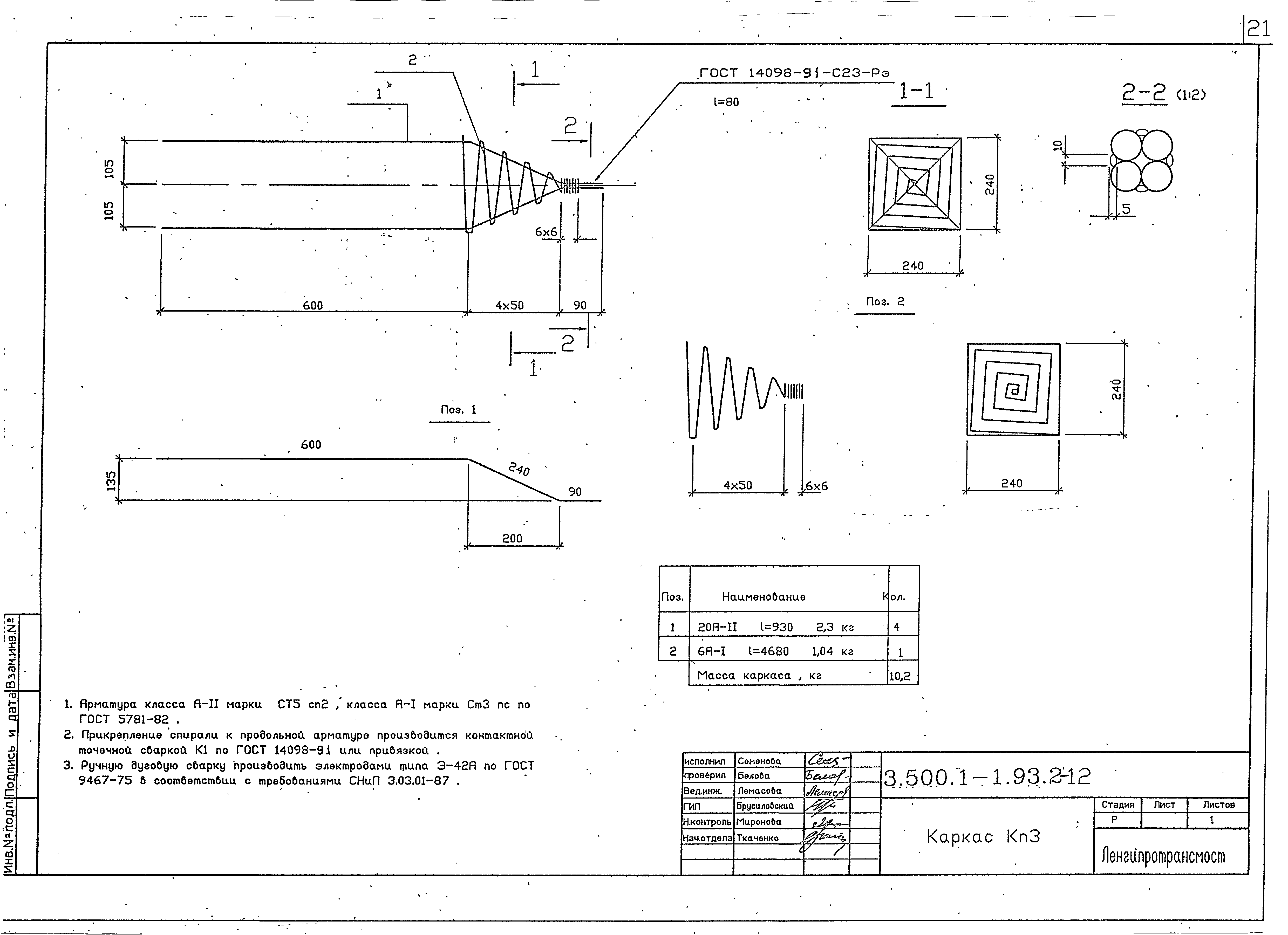
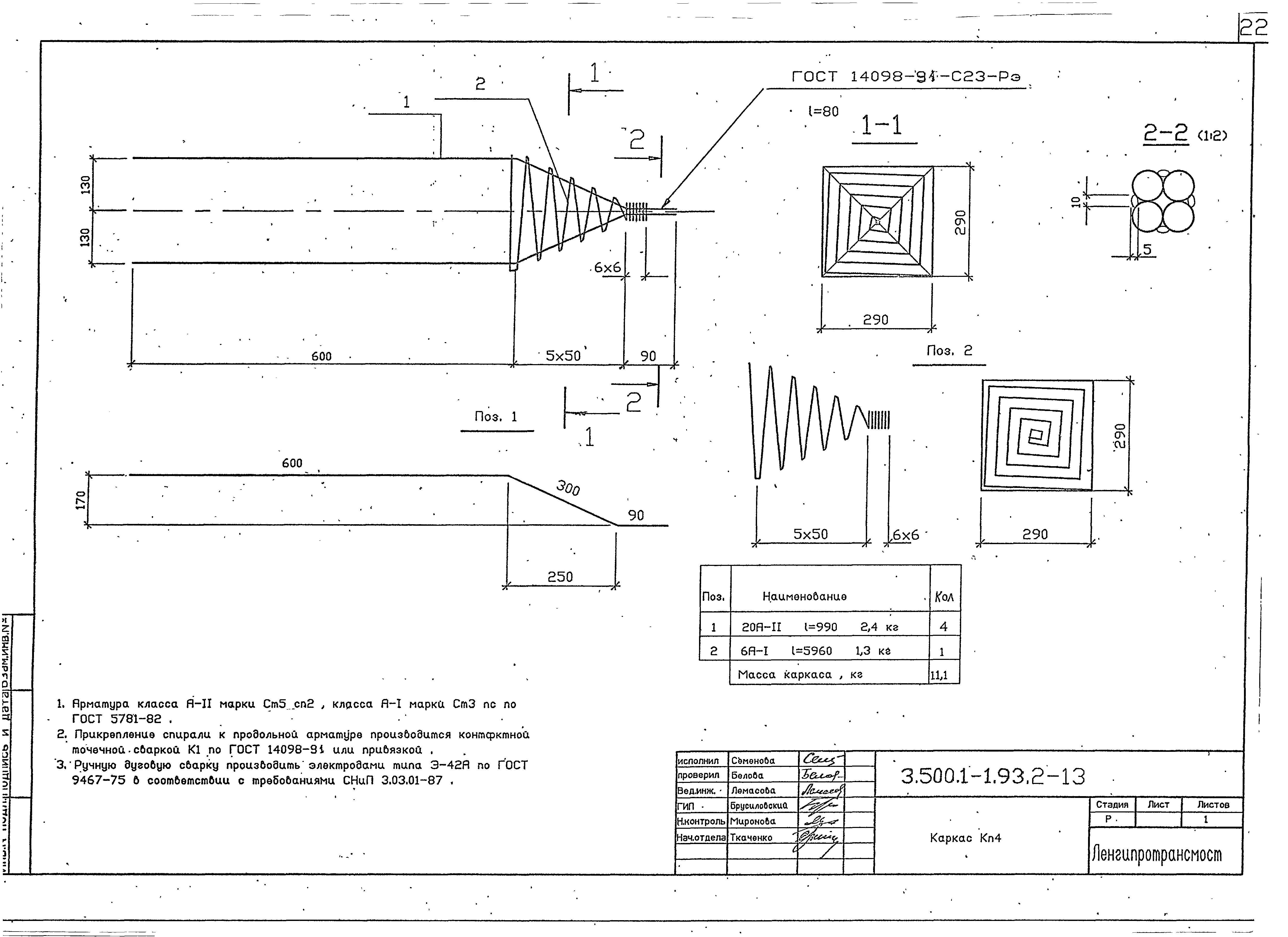
Скачать Серия 3.500.1-1.93 Выпуск 2. Сваи с напрягаемой арматурой. Технические условия. Рабочие чертежиДата актуализации: 01.01.2021 Серия 3.500.1-1.93
Выпуск 2. Сваи с напрягаемой арматурой. Технические условия. Рабочие чертежи| Обозначение: | Серия 3.500.1-1.93 | | Обозначение англ: | Series 3.500.1-1.93 | | Статус: | не определен законодательством | | Название рус.: | Выпуск 2. Сваи с напрягаемой арматурой. Технические условия. Рабочие чертежи | | Дата добавления в базу: | 01.09.2013 | | Дата актуализации: | 01.01.2021 | | Дата введения: | 01.06.1993 | | Дата окончания срока действия: | 30.06.2003 | | Разработан: | Ленгипротрансмост
| | Утверждён: | 23.02.1993 Корпорация Трансстрой (Transstroy Corporation СВ-97)
|
                           
|