Скачать Серия 3.901.2-16 Выпуск 0. Материалы для проектированияДата актуализации: 01.01.2021
|
| Обозначение: | Серия 3.901.2-16 |
| Обозначение англ: | Series 3.901.2-16 |
| Статус: | не определен законодательством |
| Название рус.: | Выпуск 0. Материалы для проектирования |
| Дата добавления в базу: | 01.09.2013 |
| Дата актуализации: | 01.01.2021 |
| Дата введения: | 01.01.1991 |
| Дата окончания срока действия: | 30.06.2003 |
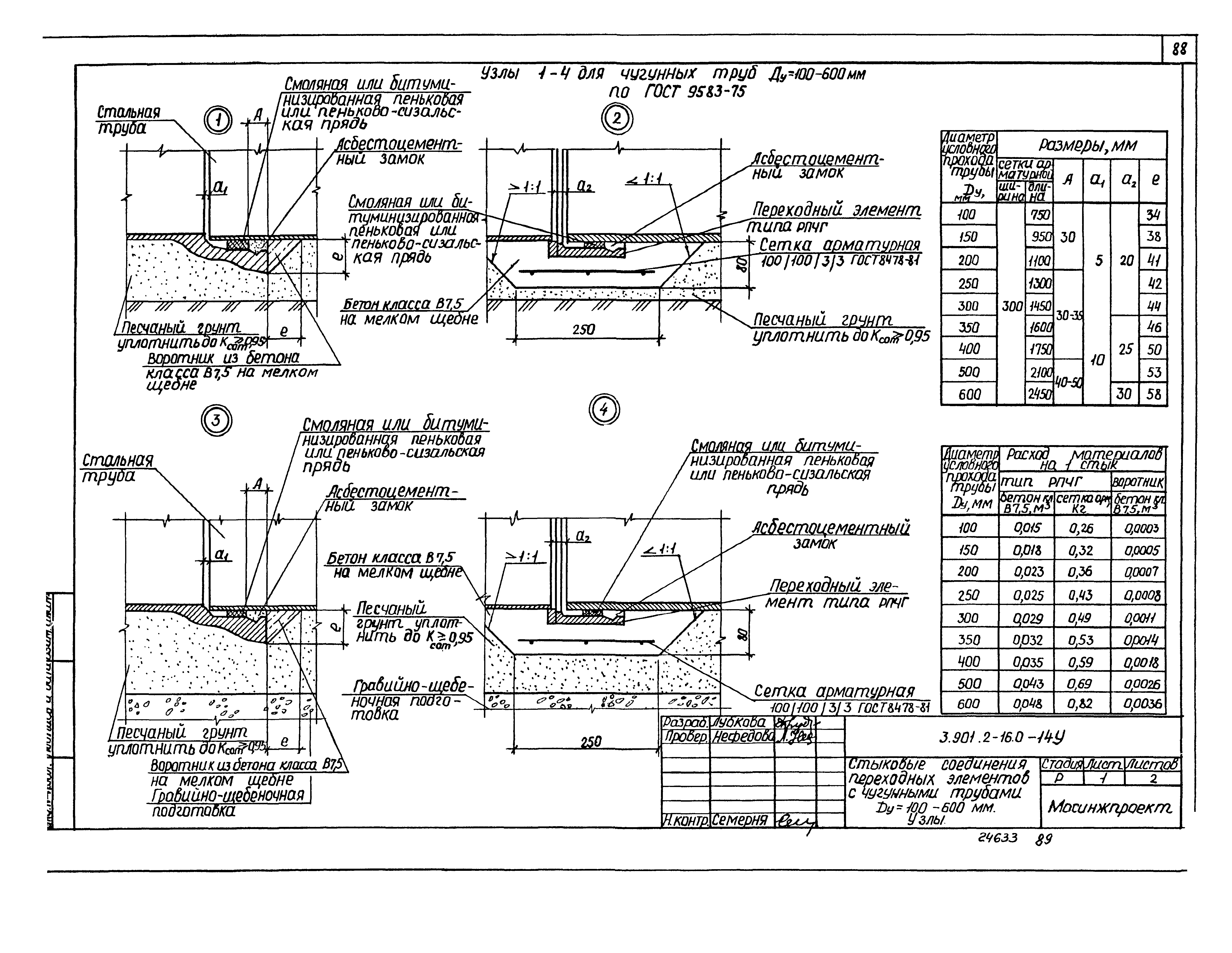
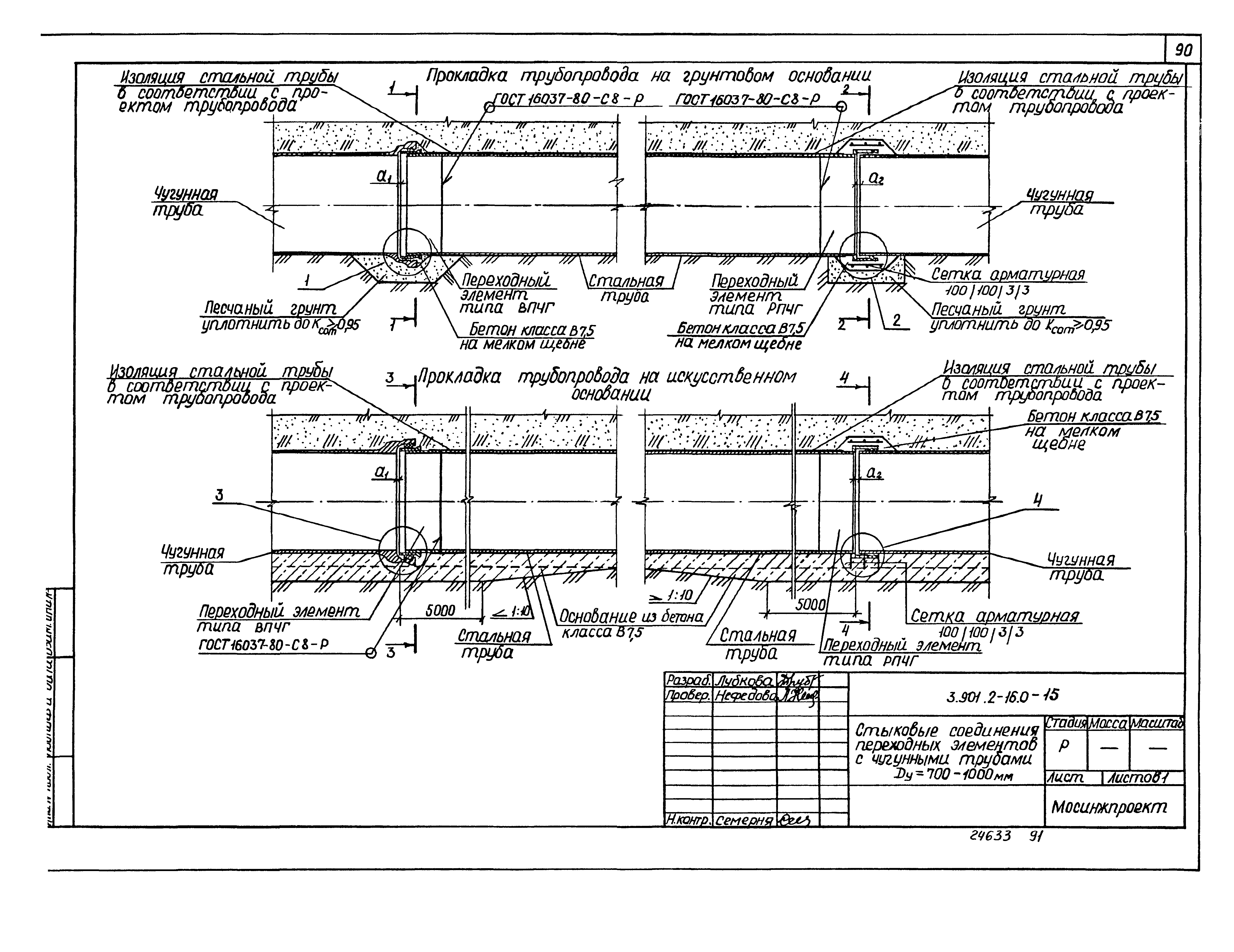
| Оглавление: | 3.901.2-16.0-ПЗ Пояснительная записка 3.901.2-16.0-01 Номенклатура чугунных труб 3.901.2-16.0-02 Номенклатура резиновых уплотнительных манжет по ТУ 38 105895-75 3.901.2-16.0-03 Область применения оснований под трубы 3.901.2-16.0-04 Пределы применения груб 3.901.2-16.0-05 Укладка труб на грунтовое плоское основание 3.901.2-16.0-06 Укладка труб на грунтовое спрофилированное основание 3.901.2-16.0-07 Укладка труб на гравийно-щебеночную подготовку 3.901.2-16.0-08 Укладка труб на бетонное спрофилированное основание с охватом труб на 90° 3.901.2-16.0-09 Укладка труб на бетонное спрофилированное основание с охватом труб на 120° 3.901.2-16.0-10 Укладка труб на железобетонное спрофилированное основание с охватом труб на 90° 3.901.2-16.0-11 Укладка труб на железобетонное спрофилированное основание с охватом труб на 120° 3.901.2-16.0-12 Ведомость расхода стали на 10 п.м. железобетонного основания 3.901.2-16.0-13 Стыковые соединения чугунных труб 3.901.2-16.0-14 Стыковые соединения переходных элементов с чугунными трубами Ду=100-600 мм 3.901.2-16.0-14У Стыковые соединения переходных элементов с чугунными трубами Ду=100-600 мм. Узлы 3.901.2-16.0-15 Стыковые соединения переходных элементов с чугунными трубами ду=700-1000 мм 3.901.2-16.0-015У Стыковые соединения переходных элементов с чугунными трубами Д=700-1000 мм Узлы. Разрезы 3.901.2-16.0-16 Сетка C1-3-1…С2-3,5-1 3.901.2-16.0-17 Каркас КP2-1-1…КP2-3-2 |
| Разработан: | Мосинжпроект |
| Утверждён: | 27.06.1990 Главпроект Госстроя СССР (5/6-603) |






























































































