Скачать Серия 3.900.1-10 Выпуск 0-1. Панели стеновые плоские. Материалы для проектированияДата актуализации: 01.01.2021
|
| Обозначение: | Серия 3.900.1-10 |
| Обозначение англ: | Series 3.900.1-10 |
| Статус: | не определен законодательством |
| Название рус.: | Выпуск 0-1. Панели стеновые плоские. Материалы для проектирования |
| Дата добавления в базу: | 01.09.2013 |
| Дата актуализации: | 01.01.2021 |
| Дата введения: | 01.10.1990 |
| Дата окончания срока действия: | 30.06.2003 |
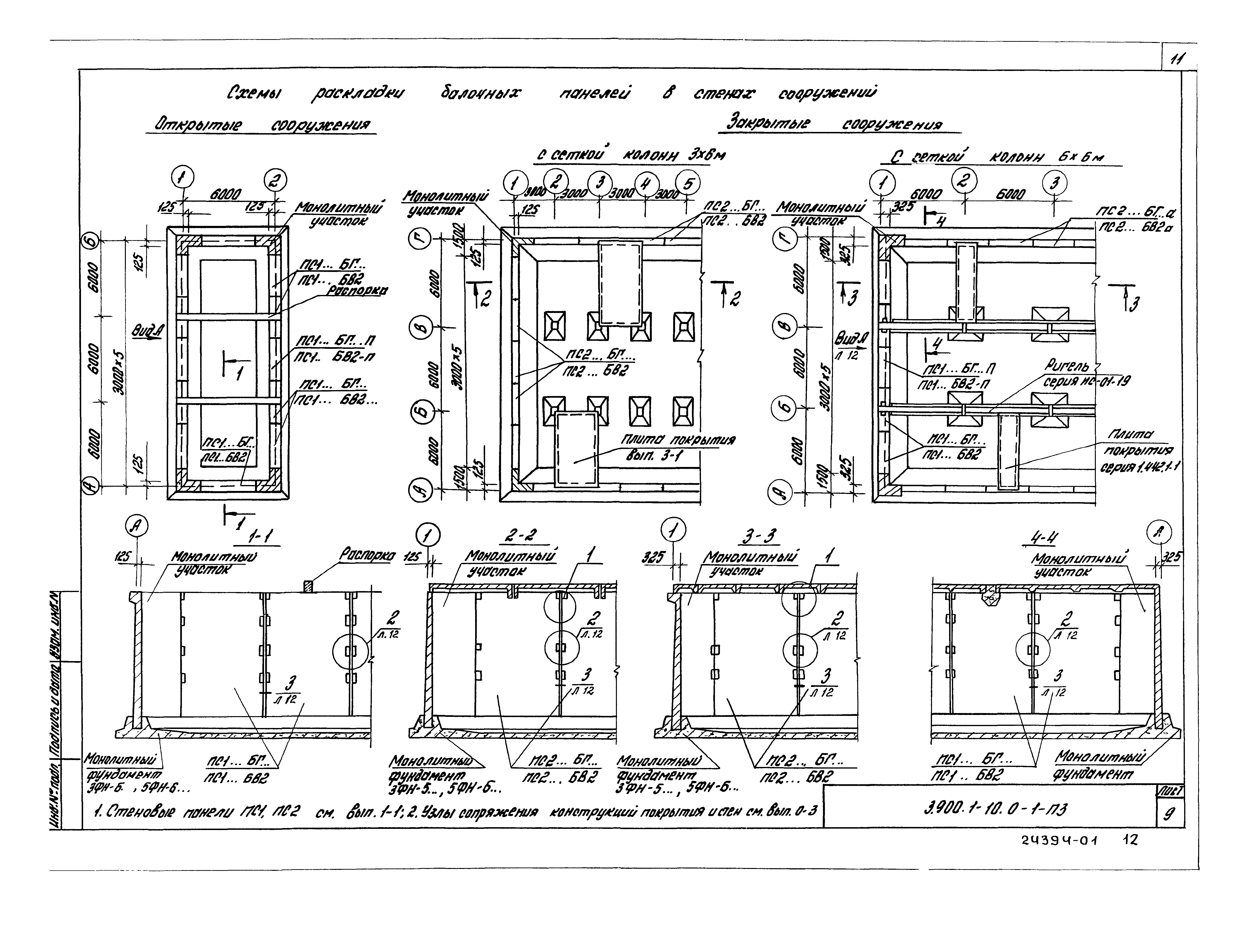
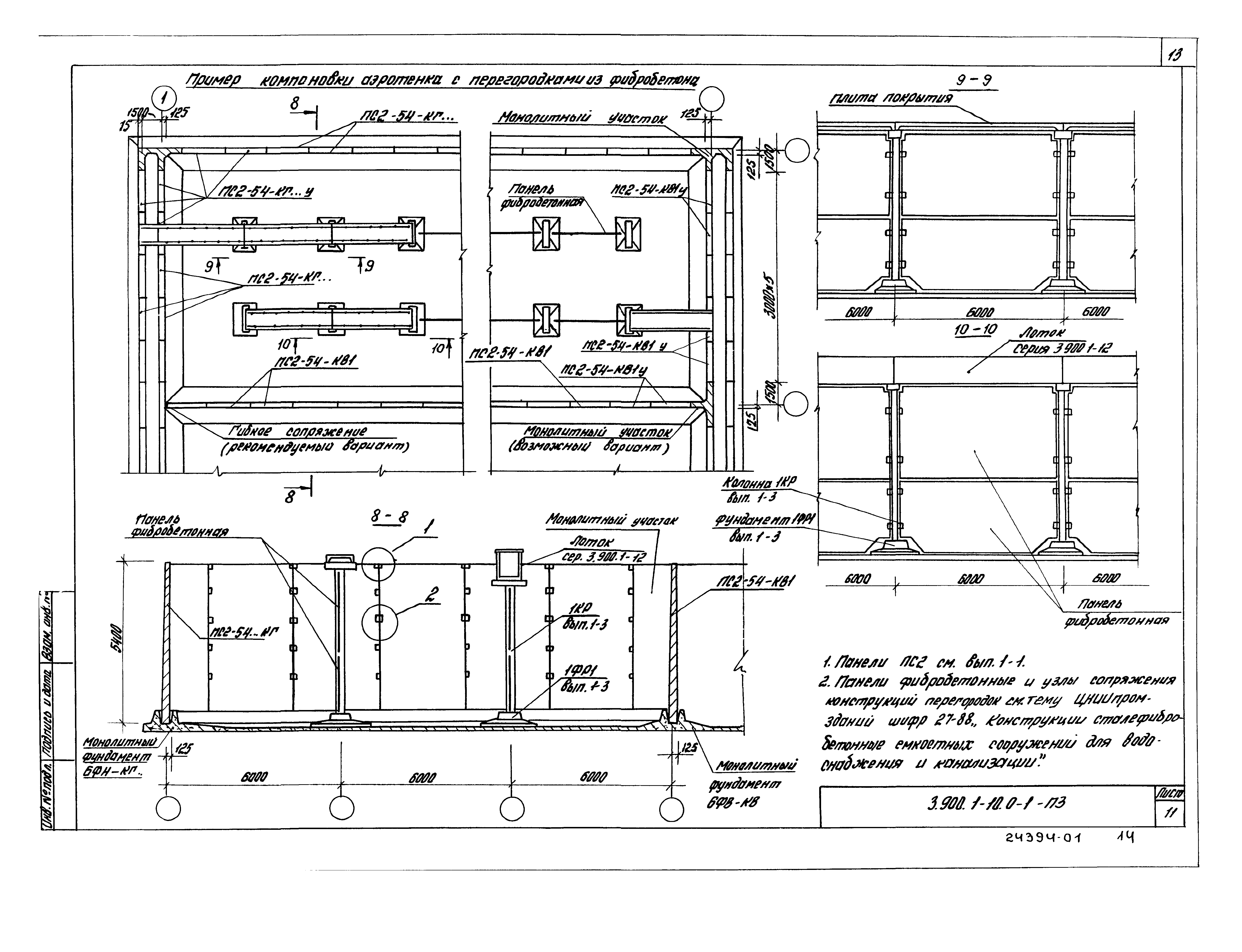
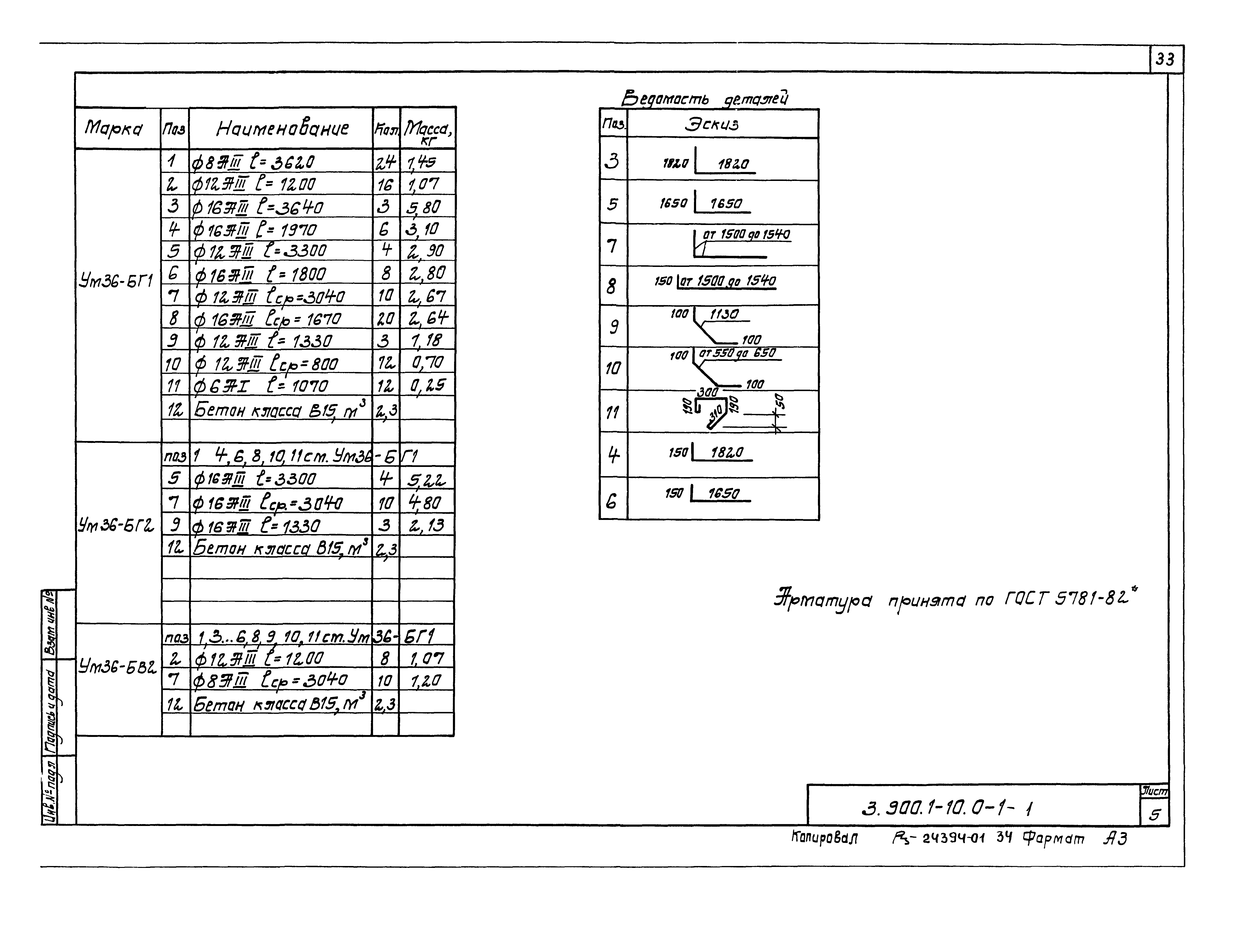
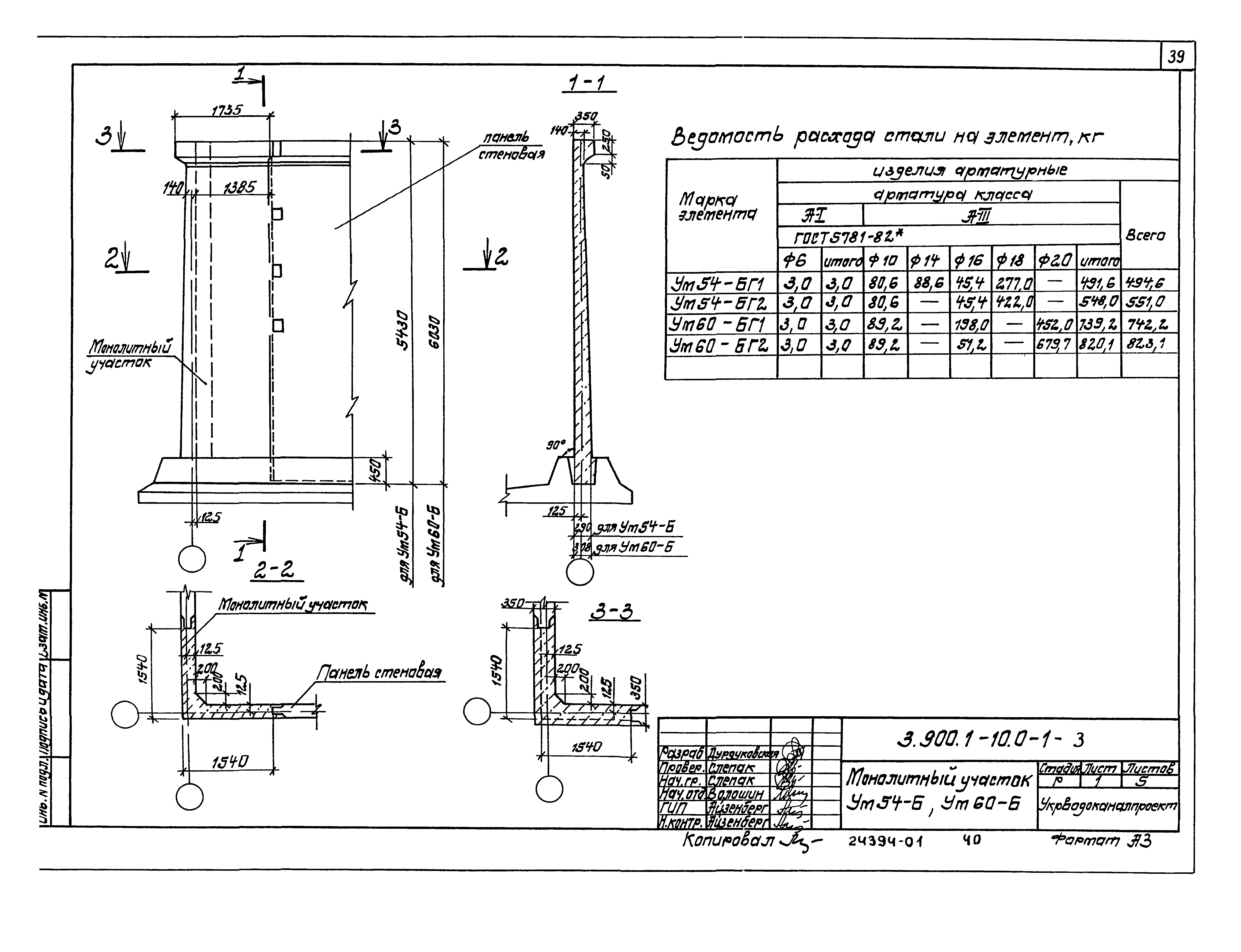
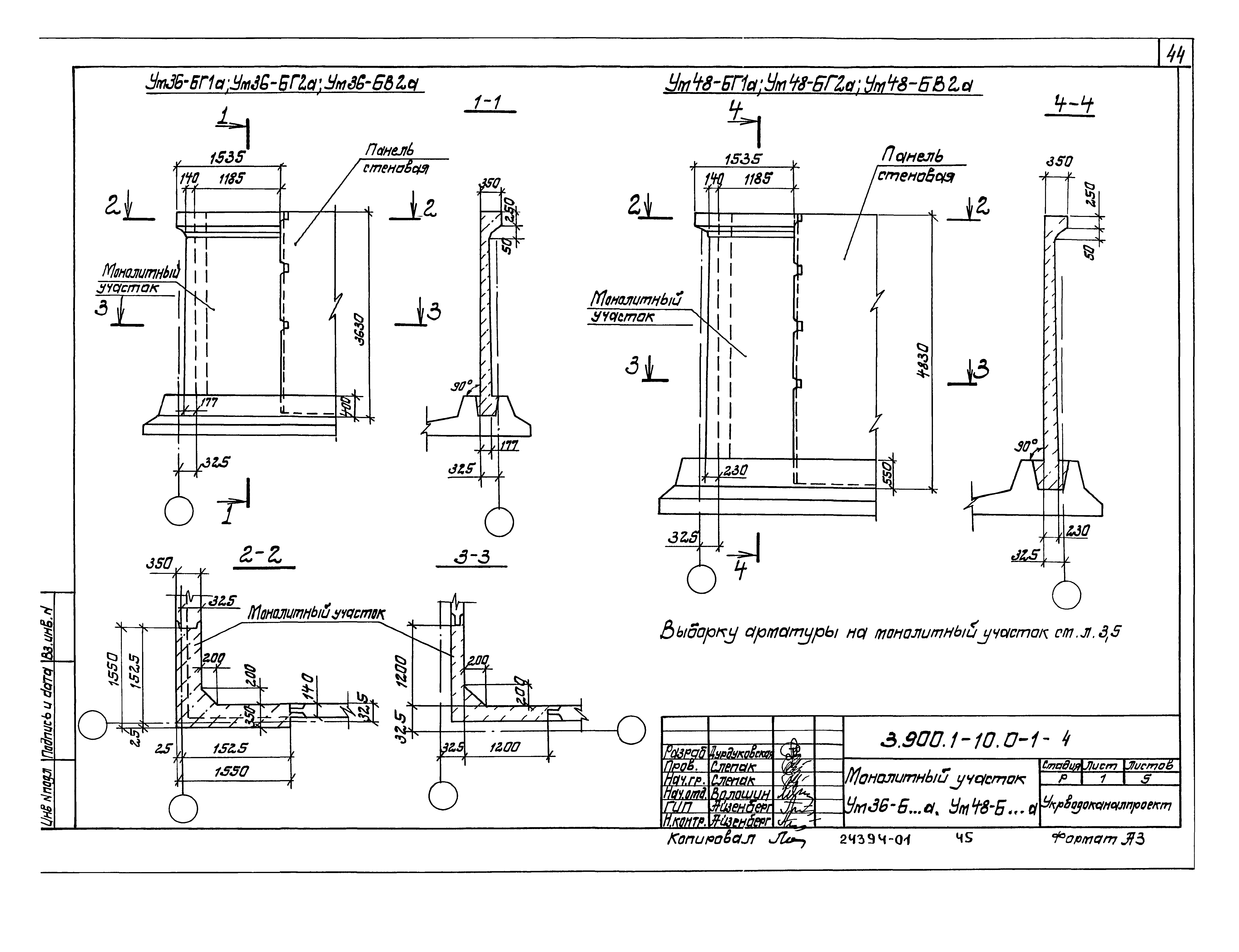
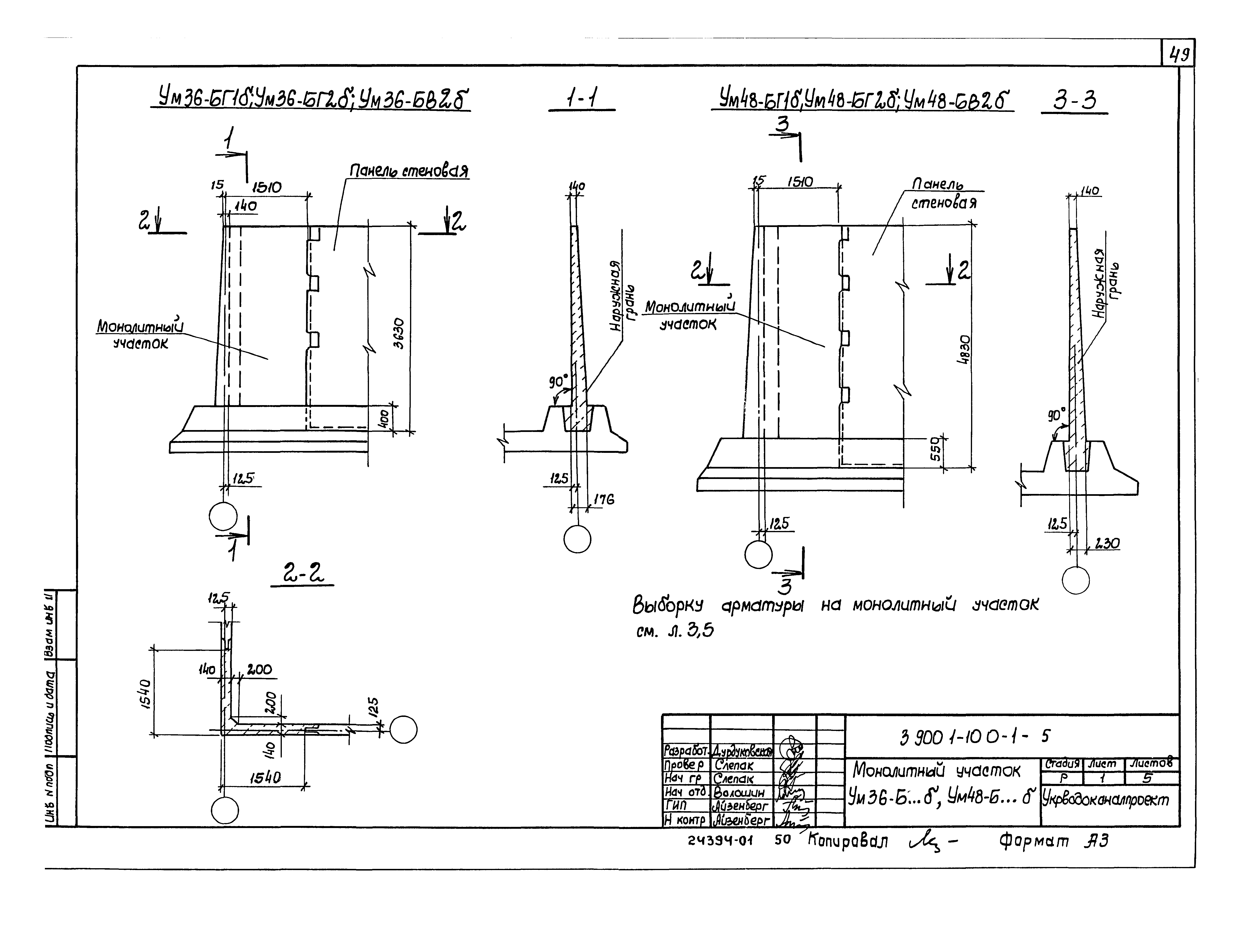
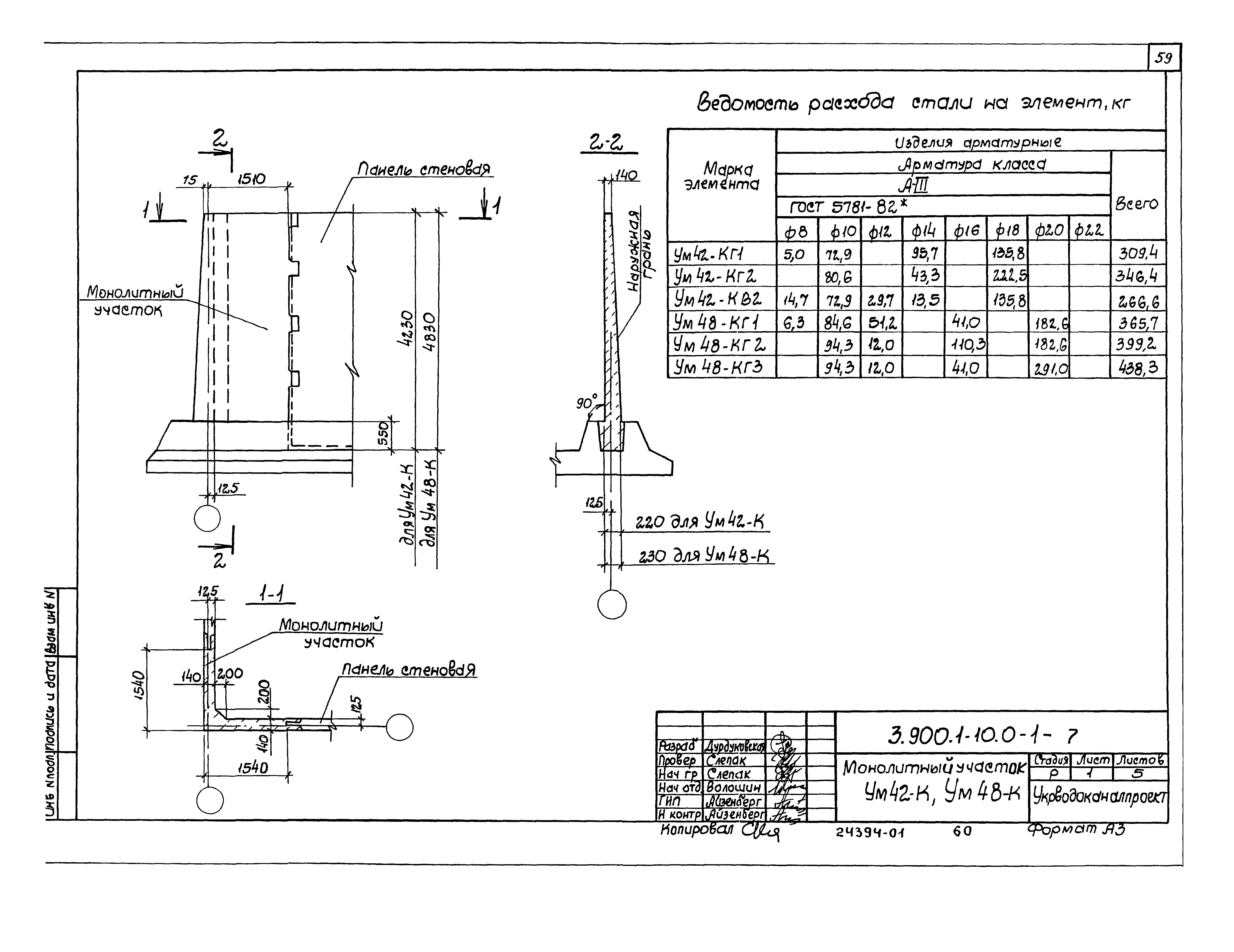
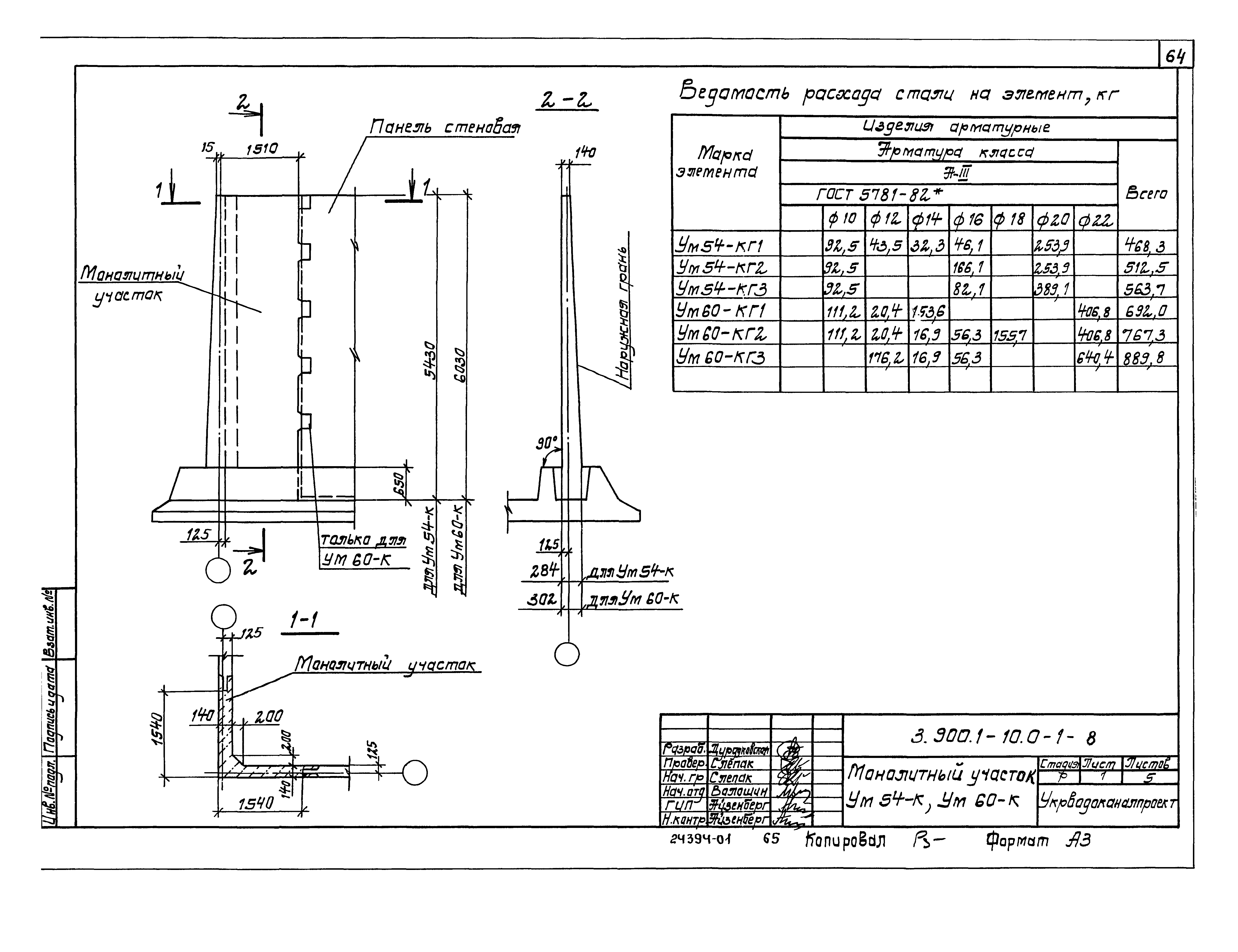
| Оглавление: | 3.900.1-10.0-1-ПЗ Пояснительная записка 3.900.1-10.0-1-НИ Панели стеновые плоские ПС. Номенклатура изделий 3.900.1-10.0-1-1 Монолитный участок УМ24-БГ1, УМ30-Б, УМ36-Б 3.900.1-10.0-1-2 Монолитный участок УМ42-Б, УМ48-Б 3.900.1-10.0-1-3 Монолитный участок УМ54-Б, УМ60-Б 3.900.1-10.0-1-4 Монолитный участок УМ36-Б…а, УМ48-Б…а 3.900.1-10.0-1-5 Монолитный участок УМ36-Б…б, УМ48-Б…б 3.900.1-10.0-1-6 Монолитный участок УМ24-К, УМ30-К, УМ36-К 3.900.1-10.0-1-7 Монолитный участок УМ42-К, УМ48-К 3.900.1-10.0-1-8 Монолитный участок УМ54-К, УМ60-К 3.900.1-10.0-1-9 Пример решения монолитного участка по схеме " " 3.900.1-10.0-1-10 Пример решения монолитного участка по схеме " + " 3.900.1-10.0-1-11 Пример решения полносборного угла 3.900.1-10.0-1-12 Узел 1 4 3.900.1-10.0-1-13 Фундамент монолитный 1ФН-Б 3.900.1-10.0-1-14 Фундамент монолитный 3ФН-Б 3.900.1-10.0-1-15 Фундамент монолитный 5ФН-Б 3.900.1-10.0-1-16 Фундамент монолитный 7ФН-Б 3.900.1-10.0-1-17 Фундамент монолитный 1ФВ-Б 3.900.1-10.0-1-18 Фундамент монолитный 3ФВ-Б 3.900.1-10.0-1-19 Фундамент монолитный 5ФВ-Б 3.900.1-10.0-1-20 Фундамент монолитный 7ФВ-Б 3.900.1-10.0-1-21 Фундамент монолитный 2ФН-К 3.900.1-10.0-1-22 Фундамент монолитный 4ФН-К 3.900.1-10.0-1-23 Фундамент монолитный 6ФН-К 3.900.1-10.0-1-24 Фундамент монолитный 8ФН-К 3.900.1-10.0-1-25 Фундамент монолитный 2ФВ-К 3.900.1-10.0-1-26 Фундамент монолитный 4ФВ-К 3.900.1-10.0-1-27 Фундамент монолитный 6ФВ-К 3.900.1-10.0-1-28 Фундамент монолитный 8ФВ-К 3.900.1-10.0-1-29 Сетка С1 С4 3.900.1-10.0-1-30 Сетка С5 С8 3.900.1-10.0-1-31 Сетка С9 С14 3.900.1-10.0-1-32 Каркас 1КР 3.900.1-10.0-1-33 Каркас 2КР 3.900.1-10.0-1-34 Каркас 3КР 3.900.1-10.0-1-35 Каркас 4КР 3.900.1-10.0-1-36 Каркас 5КР 3.900.1-10.0-1-37 Каркас 6КР 3.900.1-10.0-1-38 Каркас 7КР 3.900.1-10.0-1-39 Каркас 8КР 3.900.1-10.0-1-40 Рекомендации по замолачиванию цементно-песчаным раствором стыков шпоночного типа |
| Разработан: | ЦНИИпромзданий НИИЖБ Укрводоканалпроект |
| Утверждён: | 29.03.1990 Госстрой СССР (Государственный комитет Совета Министров СССР по делам строительства) (USSR Gosstroy 5/5-289) |
| Заменяет собой: |













































































































