Скачать Серия 3.902.1-12 Выпуск 2. Панели стеновые для способа Стена в грунте. Рабочие чертежиДата актуализации: 01.01.2021
|
| Обозначение: | Серия 3.902.1-12 |
| Обозначение англ: | Series 3.902.1-12 |
| Статус: | не определен законодательством |
| Название рус.: | Выпуск 2. Панели стеновые для способа "Стена в грунте". Рабочие чертежи |
| Дата добавления в базу: | 01.09.2013 |
| Дата актуализации: | 01.01.2021 |
| Дата введения: | 15.12.1989 |
| Дата окончания срока действия: | 30.06.2003 |
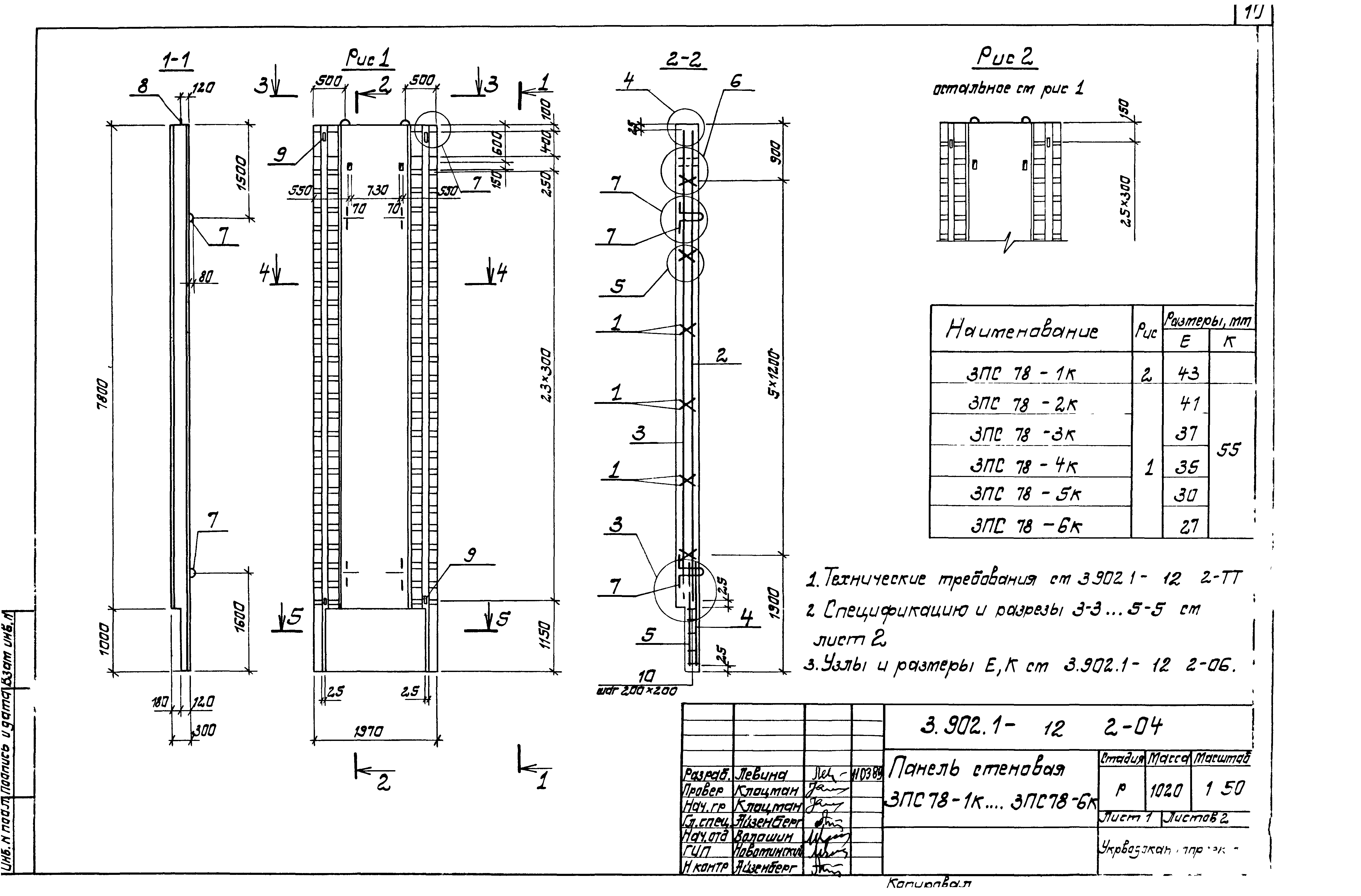
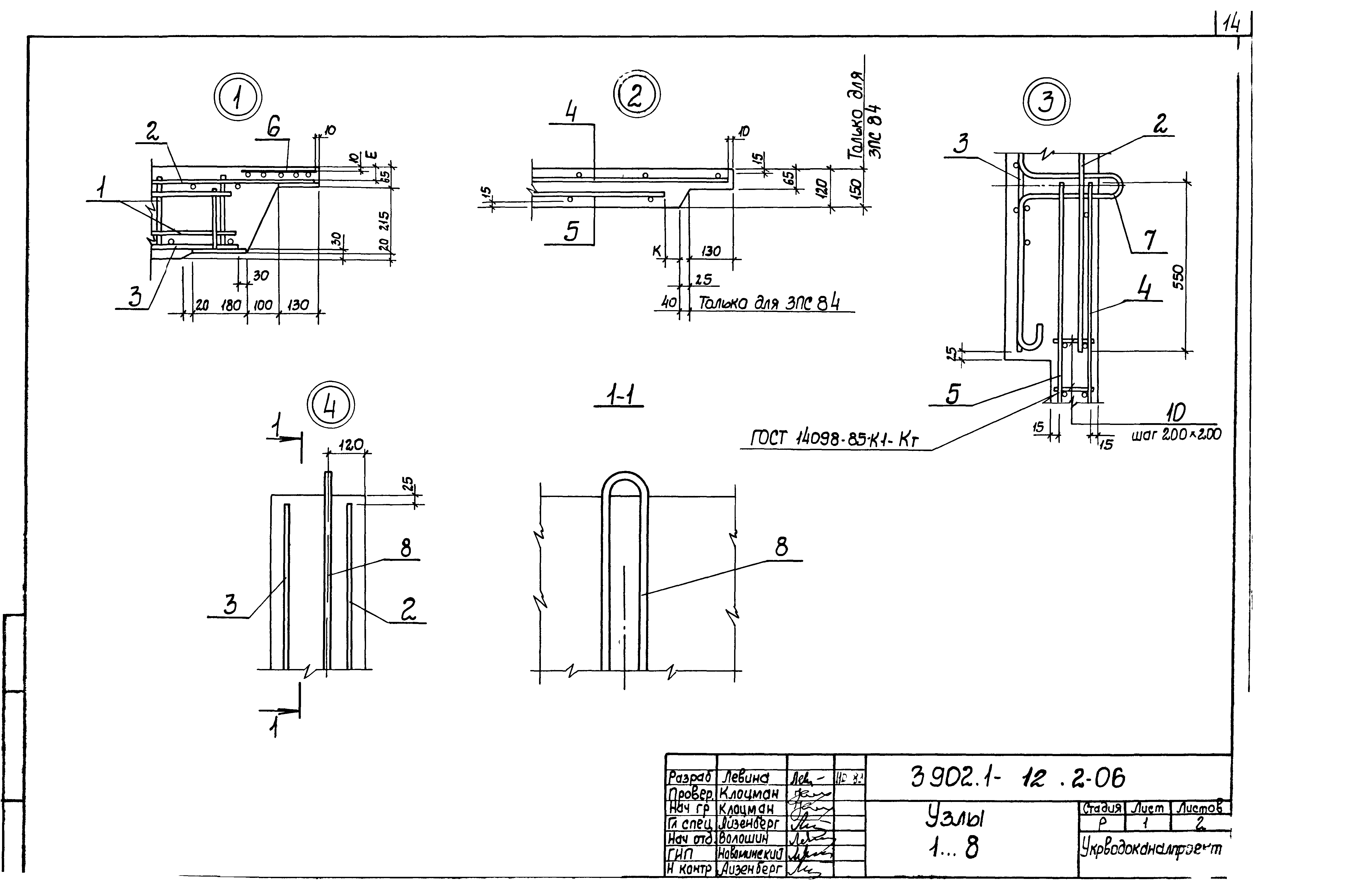
| Оглавление: | 3.902.1-12.2-ТТ Технические требования 3.902.1-12.2-01 Панель стеновая 3ПС54-1к…3ПС54-5к 3.902.1-12.2-02 Панель стеновая 3ПС66-1к…3ПС66-6к 3.902.1-12.2-03 Панель стеновая 3ПС72-1к…3ПС72-5к 3.902.1-12.2-04 Панель стеновая 3ПС78-1к…3ПС78-6к 3.902.1-12.2-05 Панель стеновая 3ПС84-1к…3ПС84-5к 3.902.1-12.2-06 Узлы 1…8 3.902.1-12.2-РС Ведомость расхода стали 3.902.1-12.2-07 Сетка С1…С25 3.902.1-12.2-08 Сетка С26,С27 3.902.1-12.2-09 Сетка С28…С52 3.902.1-12.2-10 Сетка С53,С54 3.902.1-12.2-11 Сетка С59…С63 3.902.1-12.2-12 Сетка С55…С56 3.902.1-12.2-13 Каркас КР1 3.902.1-12.2-14 Изделие закладное МН1…МН3 3.902.1-12.2-15 Изделие закладное МН4…МН5 3.902.1-12.2-16 Изделие закладное МН9…МН11 3.902.1-12.2-17 Изделие закладное МН7…МН8 3.902.1-12.2-18 Узлы 9…12 |
| Разработан: | НИИЖБ Госстроя СССР ЦНИИпромзданий ГПИ Укрводоканалпроект |
| Утверждён: | 22.05.1989 Главоргпроект Госстроя СССР (4/5-954) |
| Издан: | ЦИТП Госстроя СССР (CITP, Gosstroy (USSR) 1989 г. ) |
| Заменяет собой: |


































