Скачать Серия 3.012-3 Выпуск 1. Часть 2. Силосы диаметром 6 м. Сборные железобетонные изделия. Рабочие чертежиДата актуализации: 01.01.2021
|
| Обозначение: | Серия 3.012-3 |
| Обозначение англ: | Series 3.012-3 |
| Статус: | действует |
| Название рус.: | Выпуск 1. Часть 2. Силосы диаметром 6 м. Сборные железобетонные изделия. Рабочие чертежи |
| Дата добавления в базу: | 01.09.2013 |
| Дата актуализации: | 01.01.2021 |
| Дата введения: | 01.09.1982 |
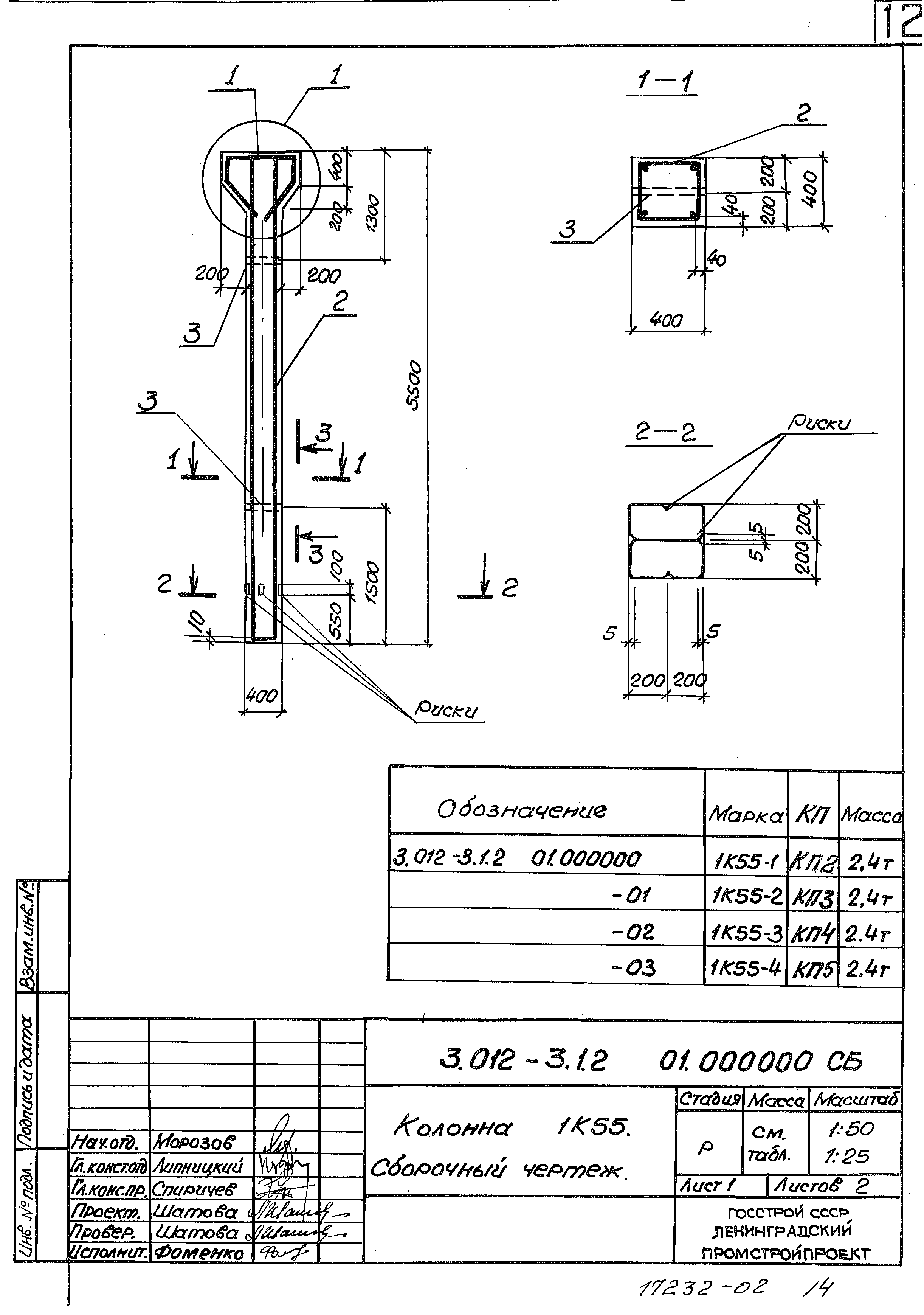
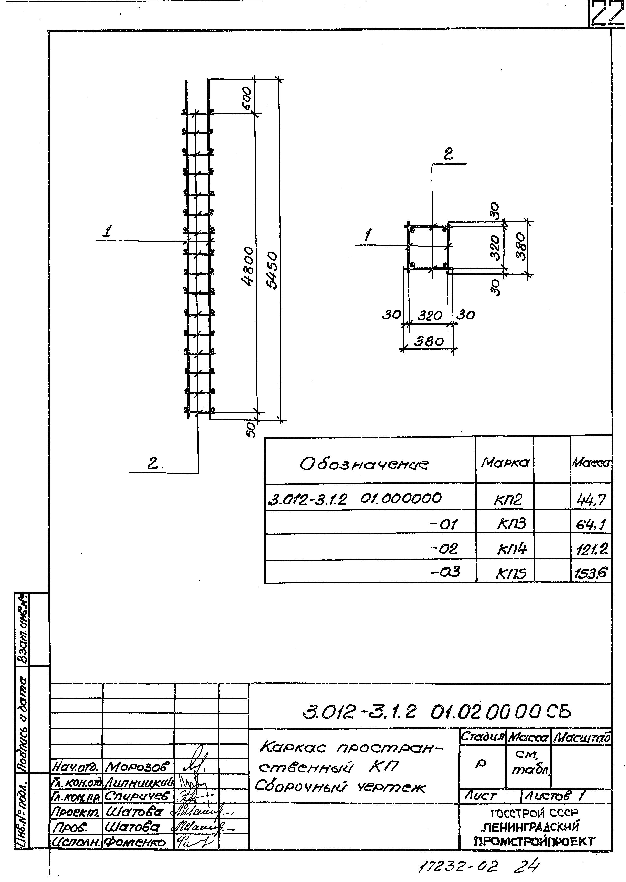
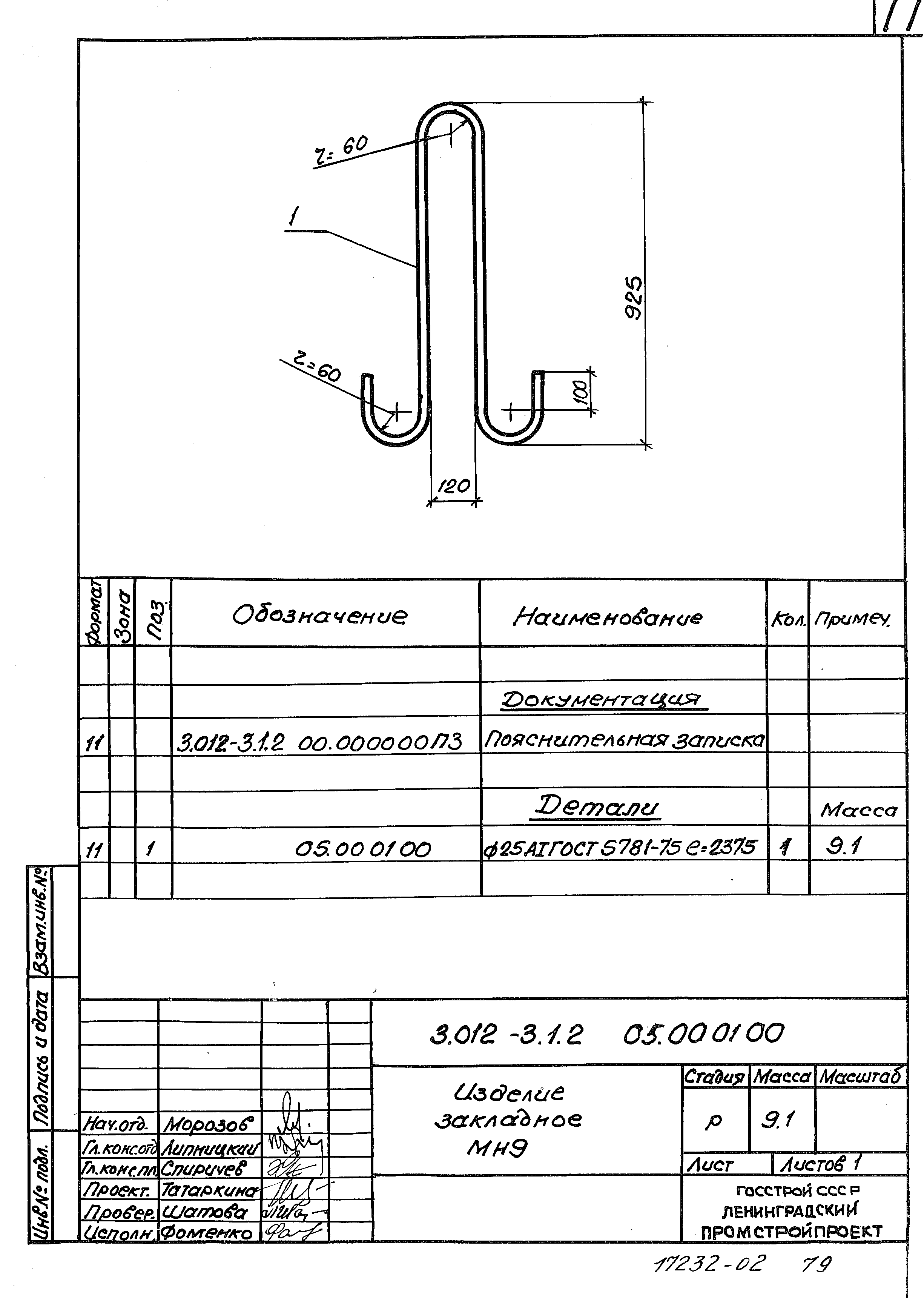
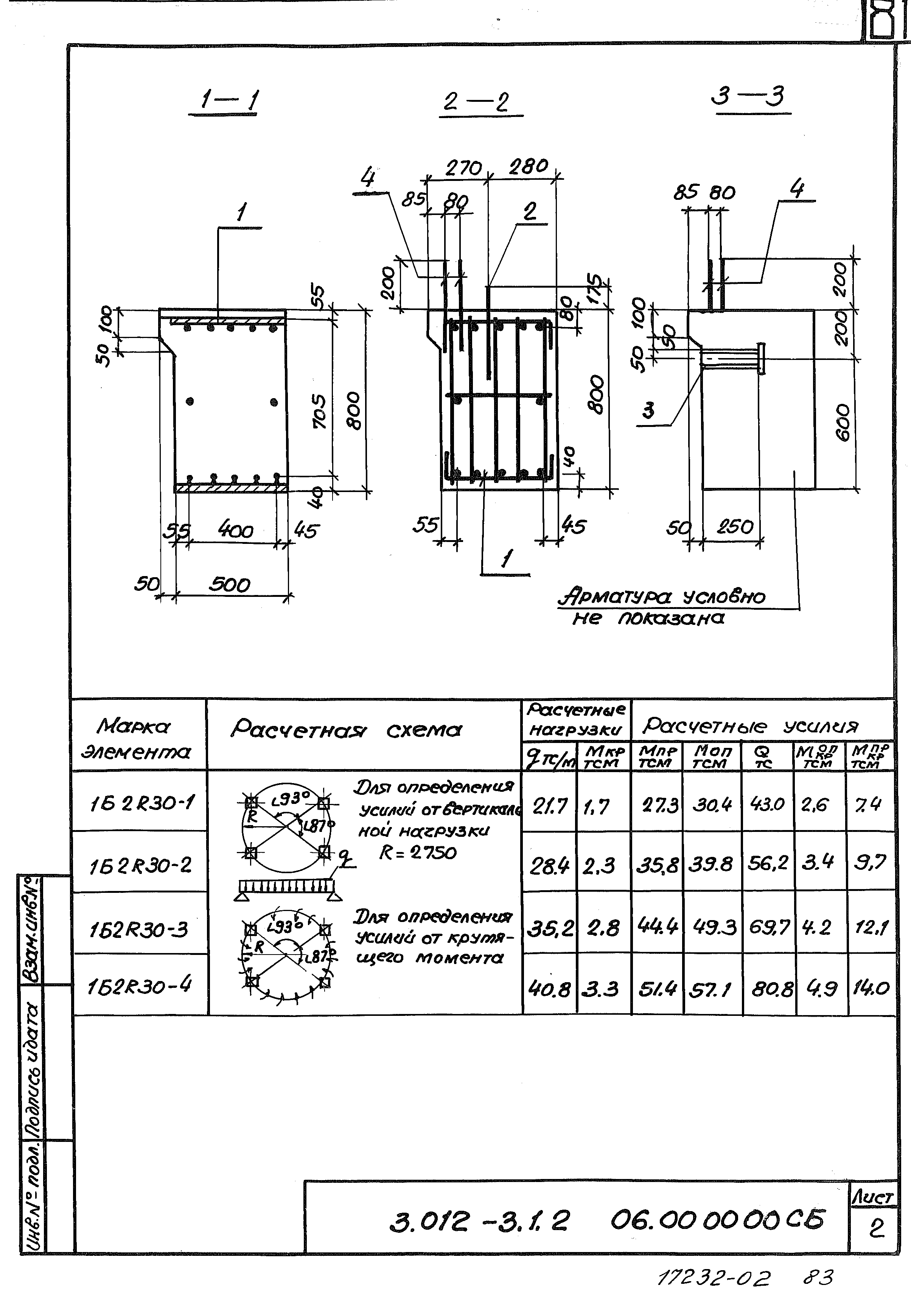
| Оглавление: | 3.012-3.1.2 00.000000 ПЗ Пояснительная записка 3.012-3.1.2 01.000000 Колонна 1К55 3.012-3.1.2 01.000000 СБ Колонна 1К55. Сборочный чертеж 3.012-3.1.2 01.000100 Изделие закладное МН1 3.012-3.1.2 01.010000 Каркас пространственный КП1 3.012-3.1.2 01.010000 СБ Каркас пространственный КП1. Сборочный чертеж 3.012-3.1.2 01.010100 Изделие закладное МН2 3.012-3.1.2 01.010200 Изделие закладное МН3 3.012-3.1.2 01.010300 Сетка арматурная С1 3.012-3.1.2 01.020000 Каркас пространственный КП 3.012-3.1.2 01.020000 СБ Каркас пространственный КП. Сборочный чертеж 3.012-3.1.2 01.020100 Сетка арматурная С 3.012-3.1.2 01.020100 СБ Сетка арматурная С. Сборочный чертеж 3.012-3.1.2 02.000000 Колонна 2К55 3.012-3.1.2 02.000000 СБ Колонна 2К55. Сборочный чертеж 3.012-3.1.2 02.000200 Изделие закладное МН4 3.012-3.1.2 02.010000 Каркас пространственный КП6 3.012-3.1.2 02.010000 СБ Каркас пространственный КП6. Сборочный чертеж 3.012-3.1.2 02.010100 Изделие закладное МН5 3.012-3.1.2 02.010300 Изделие закладное С6 3.012-3.1.2 02.020000 Каркас пространственный КП 3.012-3.1.2 02.020000 СБ Каркас пространственный КП. Сборочный чертеж 3.012-3.1.2 02.020100 Сетка арматурная С 3.012-3.1.2 02.020100 СБ Сетка арматурная С. Сборочный чертеж 3.012-3.1.2 03.000000 Колонна 2К67 3.012-3.1.2 03.000000 СБ Колонна 2К67. Сборочный чертеж 3.012-3.1.2 03.010000 Каркас пространственный КП 3.012-3.1.2 03.010000 СБ Каркас пространственный КП. Сборочный чертеж 3.012-3.1.2 03.010100 Сетка арматурная С 3.012-3.1.2 03.010100 СБ Сетка арматурная С. Сборочный чертеж 3.012-3.1.2 04.000000 Колонна 3К67 3.012-3.1.2 04.000000 СБ Колонна 3К67. Сборочный чертеж 3.012-3.1.2 04.010100 Изделие закладное МН7 3.012-3.1.2 04.010000 Каркас пространственный КП16 3.012-3.1.2 04.010000 СБ Каркас пространственный КП16. Сборочный чертеж 3.012-3.1.2 04.010100 Изделие закладное МН7 3.012-3.1.2 04.010300 Сетка арматурная С16 3.012-3.1.2 04.020000 Каркас пространственный КП 3.012-3.1.2 04.020000 СБ Каркас пространственный КП. Сборочный чертеж 3.012-3.1.2 04.020100 Сетка арматурная С 3.012-3.1.2 04.020100 СБ Сетка арматурная С. Сборочный чертеж 3.012-3.1.2 05.000000 Балка 1Б1R30 3.012-3.1.2 05.000000 СБ Балка 1Б1R30. Сборочный чертеж 3.012-3.1.2 05.010000 Каркас пространственный КП 3.012-3.1.2 05.010000 СБ Каркас пространственный КП. Сборочный чертеж 3.012-3.1.2 05.010100 Сетка арматурная С 3.012-3.1.2 05.010100 СБ Сетка арматурная С. Сборочный чертеж 3.012-3.1.2 05.010200 Сетка арматурная С 3.012-3.1.2 05.010200 СБ Сетка арматурная С. Сборочный чертеж 3.012-3.1.2 05.010300 Сетка арматурная С 3.012-3.1.2 05.010300 СБ Сетка арматурная С. Сборочный чертеж 3.012-3.1.2 05.010400 Сетка арматурная С 3.012-3.1.2 05.010400 СБ Сетка арматурная С. Сборочный чертеж 3.012-3.1.2 05.010500 Сетка арматурная С 3.012-3.1.2 05.010500 СБ Сетка арматурная С. Сборочный чертеж 3.012-3.1.2 05.010600 Изделие закладное МН8 3.012-3.1.2 05.000100 Изделие закладное МН9 3.012-3.1.2 05.000200 Изделие закладное МН10 3.012-3.1.2 06.000000 Балка 1Б2Р30 3.012-3.1.2 06.000000 СБ Балка 1Б2Р30. Сборочный чертеж 3.012-3.1.2 07.000000 Балка 1Б3Р30 3.012-3.1.2 07.000000 СБ Балка 1Б3Р30. Сборочный чертеж 3.012-3.1.2 08.000000 Балка Б60.2.5.5.0 3.012-3.1.2 08.000000 СБ Балка Б60.2.5.5.0. Сборочный чертеж 3.012-3.1.2 08.000100 Сетка арматурная СА1 3.012-3.1.2 09.000000 Плита П30.30 3.012-3.1.2 09.000000 СБ Плита П30.30. Сборочный чертеж 3.012-3.1.2 09.000100 Сетка арматурная С42 3.012-3.1.2 09.000200 Сетка арматурная С43 3.012-3.1.2 09.000300 Изделие закладное МН11 3.012-3.1.2 10.000000 Плита 1П15.30 3.012-3.1.2 10.000000 СБ Плита 1П15.30. Сборочный чертеж 3.012-3.1.2 10.000100 Сетка арматурная С44 3.012-3.1.2 10.000200 Сетка арматурная С45 3.012-3.1.2 10.000000 -01 Плита 2П15.30 3.012-3.1.2 10.000000 -01 СБ Плита 2П15.30. Сборочный чертеж 3.012-3.1.2 00.000000 ВМС Выборка стали |
| Разработан: | Ленинградский Промстройпроект |
| Утверждён: | 14.06.1982 Госстрой СССР (Государственный комитет Совета Министров СССР по делам строительства) (USSR Gosstroy 159) |









































































































