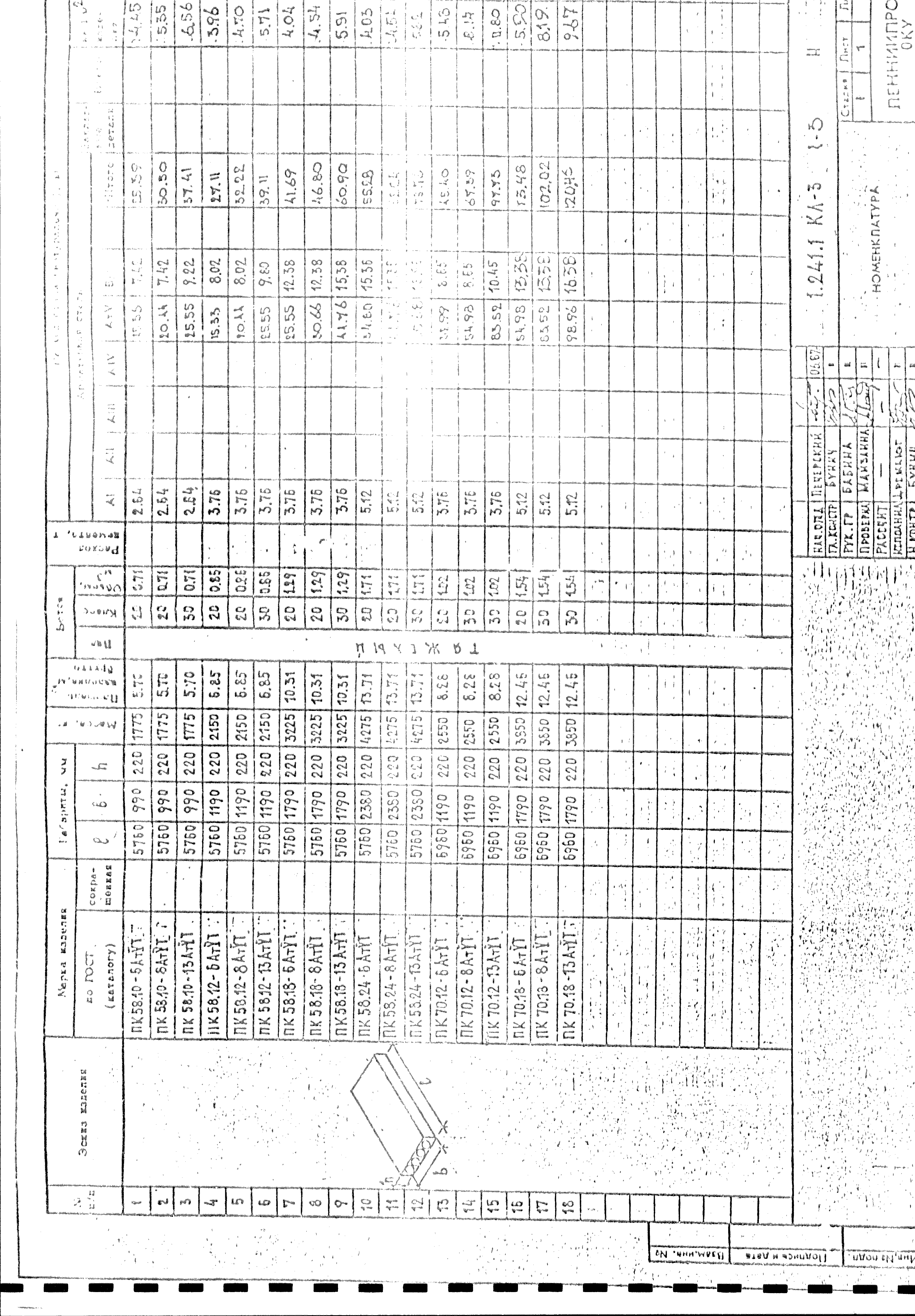
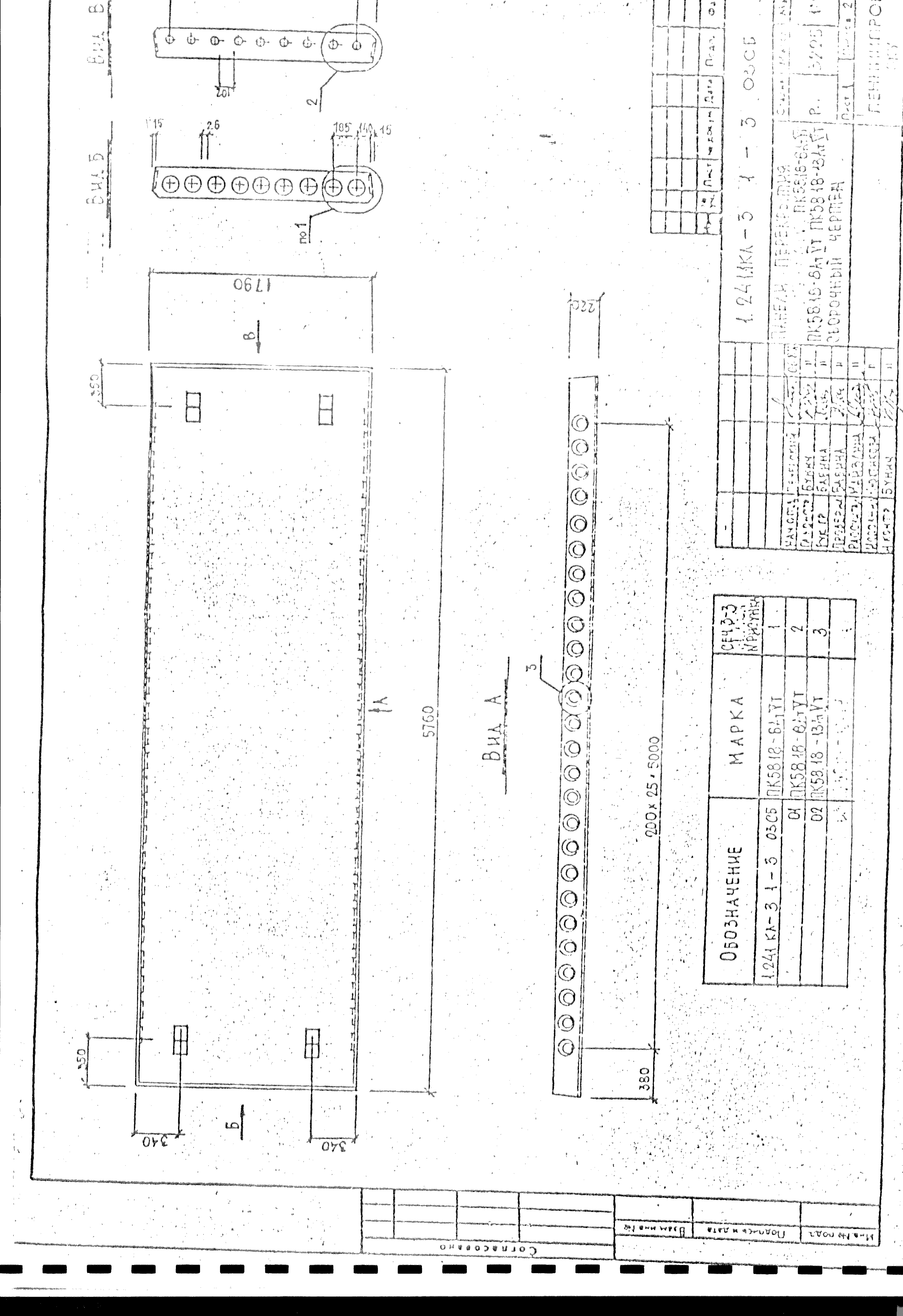
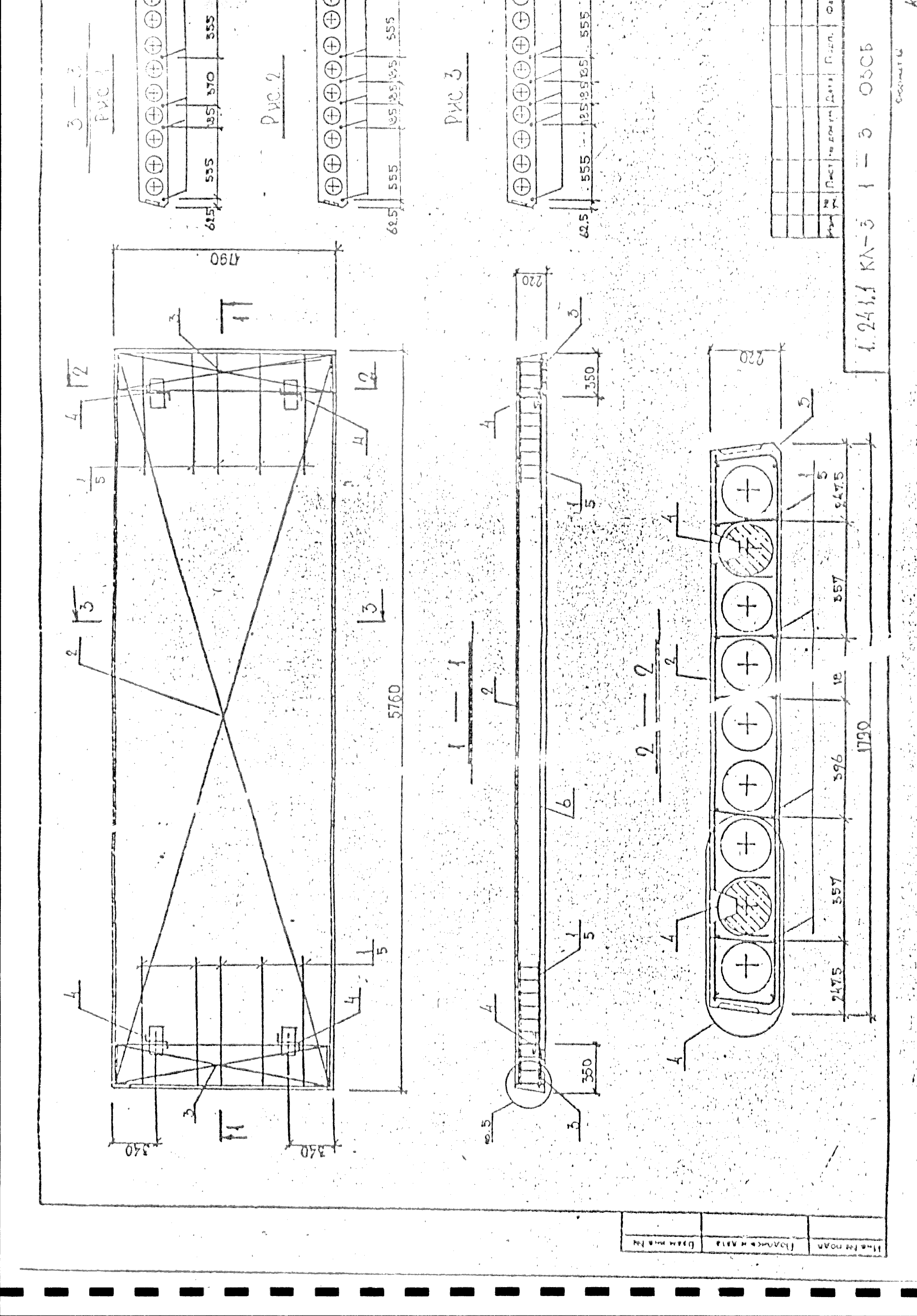
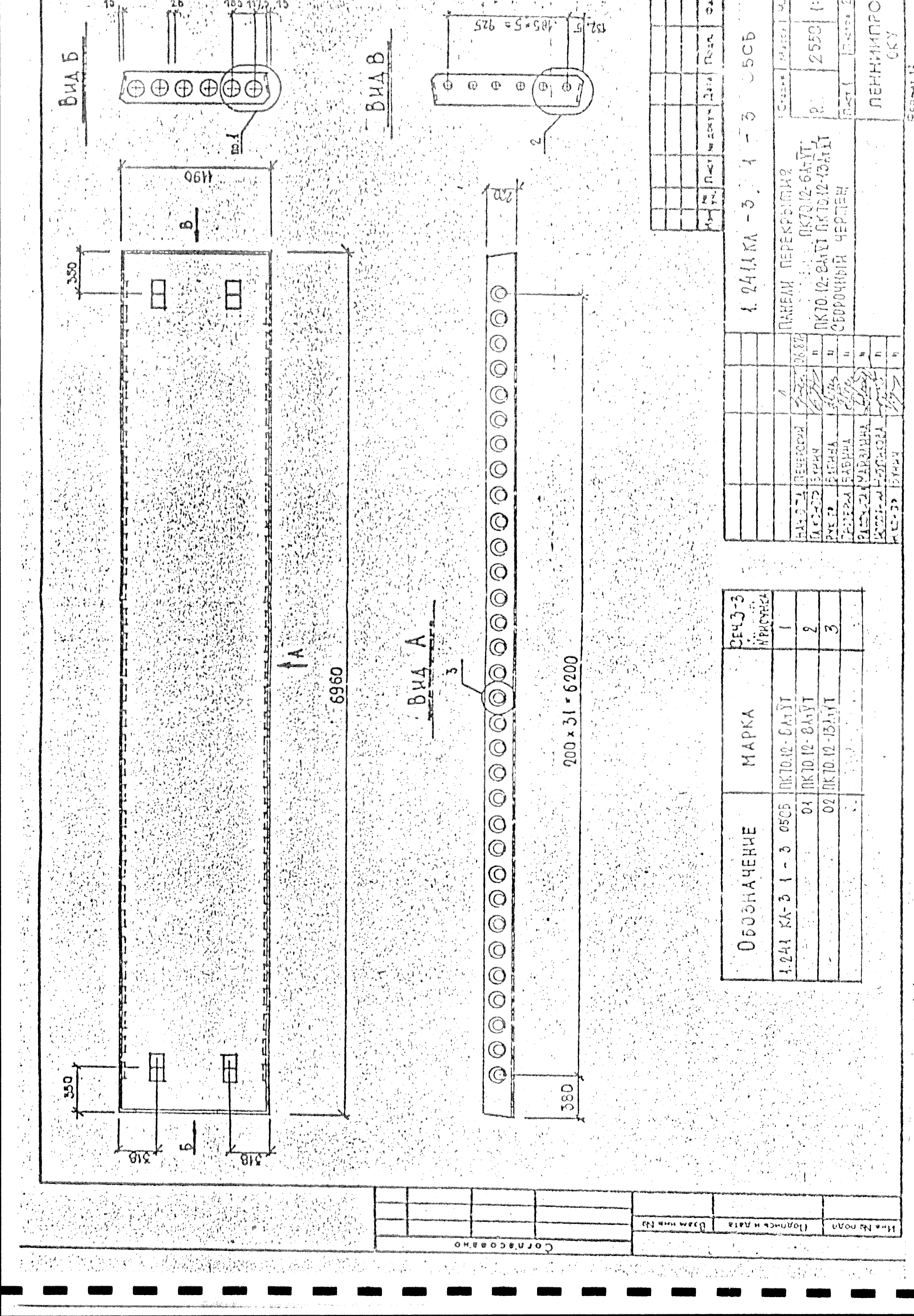
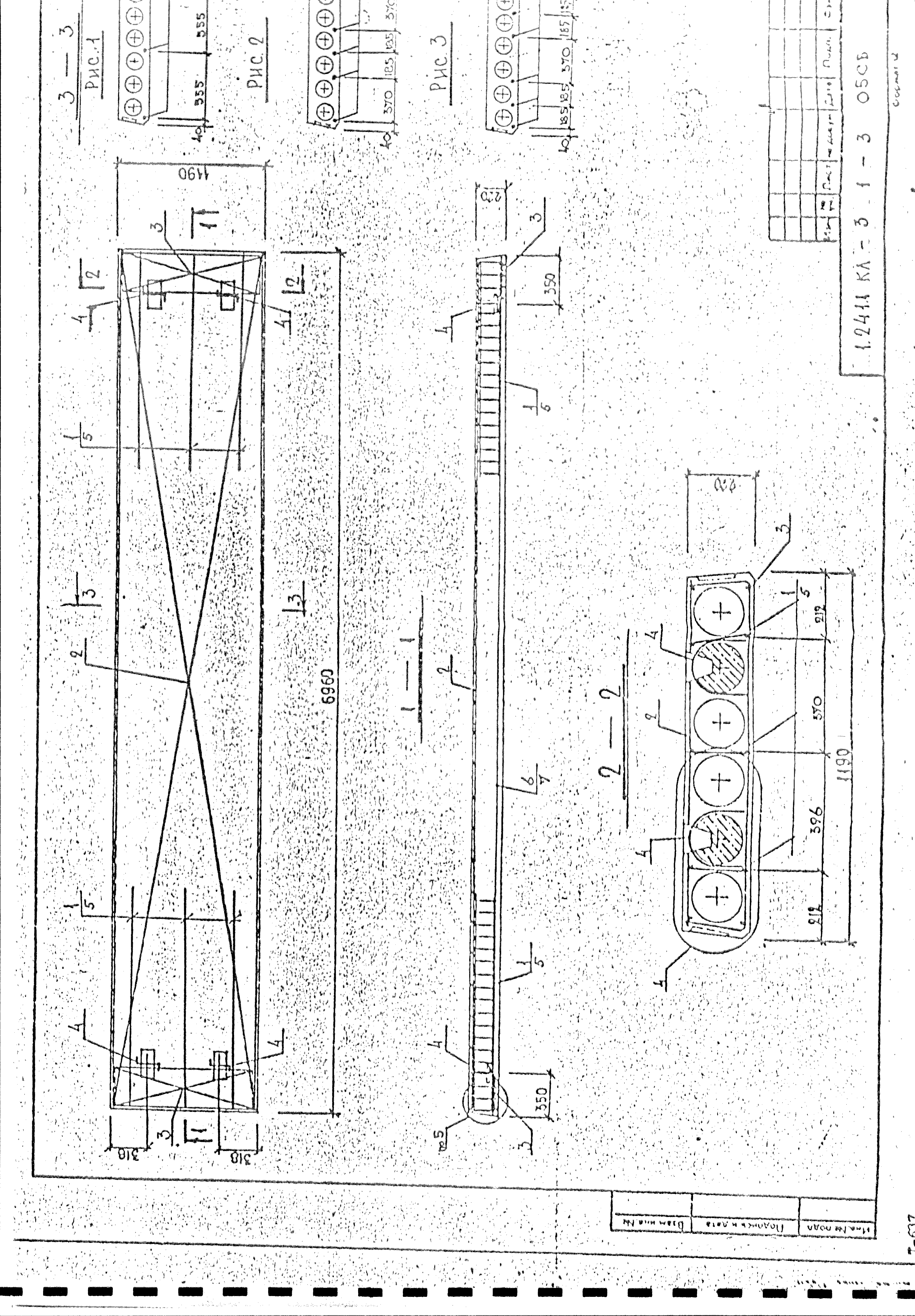
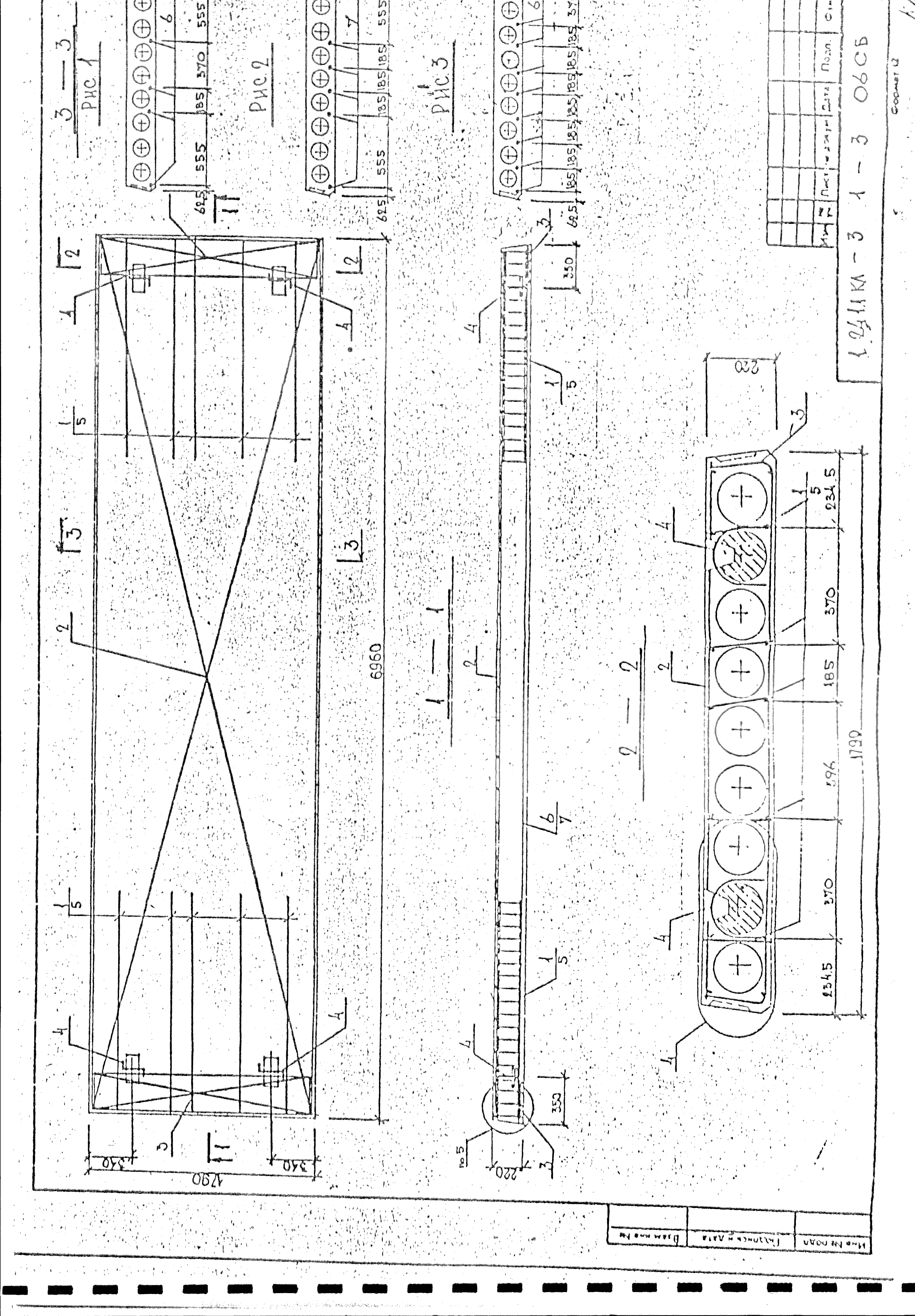
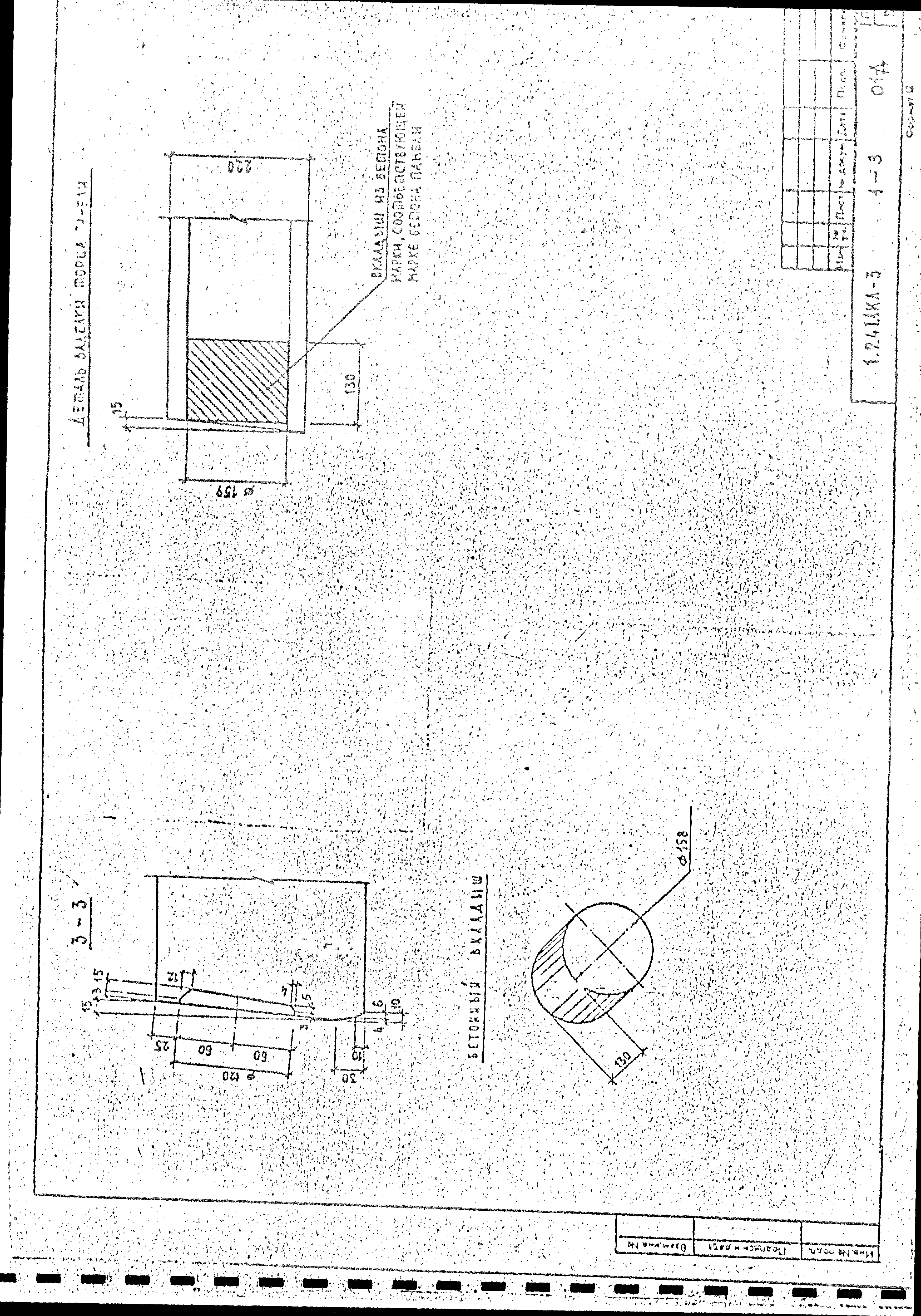
Скачать Серия 1.241.1 КЛ-3 Выпуск 1-3. Панели длиной 576 и 695 см шириной 99, 119, 179, 238 см с предварительно-напрягаемой арматурой Ат VДата актуализации: 01.01.2021 Серия 1.241.1 КЛ-3
Выпуск 1-3. Панели длиной 576 и 695 см шириной 99, 119, 179, 238 см с предварительно-напрягаемой арматурой Ат V| Обозначение: | Серия 1.241.1 КЛ-3 | | Обозначение англ: | Series 1.241.1 КЛ-3 | | Статус: | не действует | | Название рус.: | Выпуск 1-3. Панели длиной 576 и 695 см шириной 99, 119, 179, 238 см с предварительно-напрягаемой арматурой Ат V | | Дата добавления в базу: | 01.09.2013 | | Дата актуализации: | 01.01.2021 | | Разработан: | Ленниипроект
| | Утверждён: | 18.06.1987 Ленниипроект (57-у)
|
                                 
|