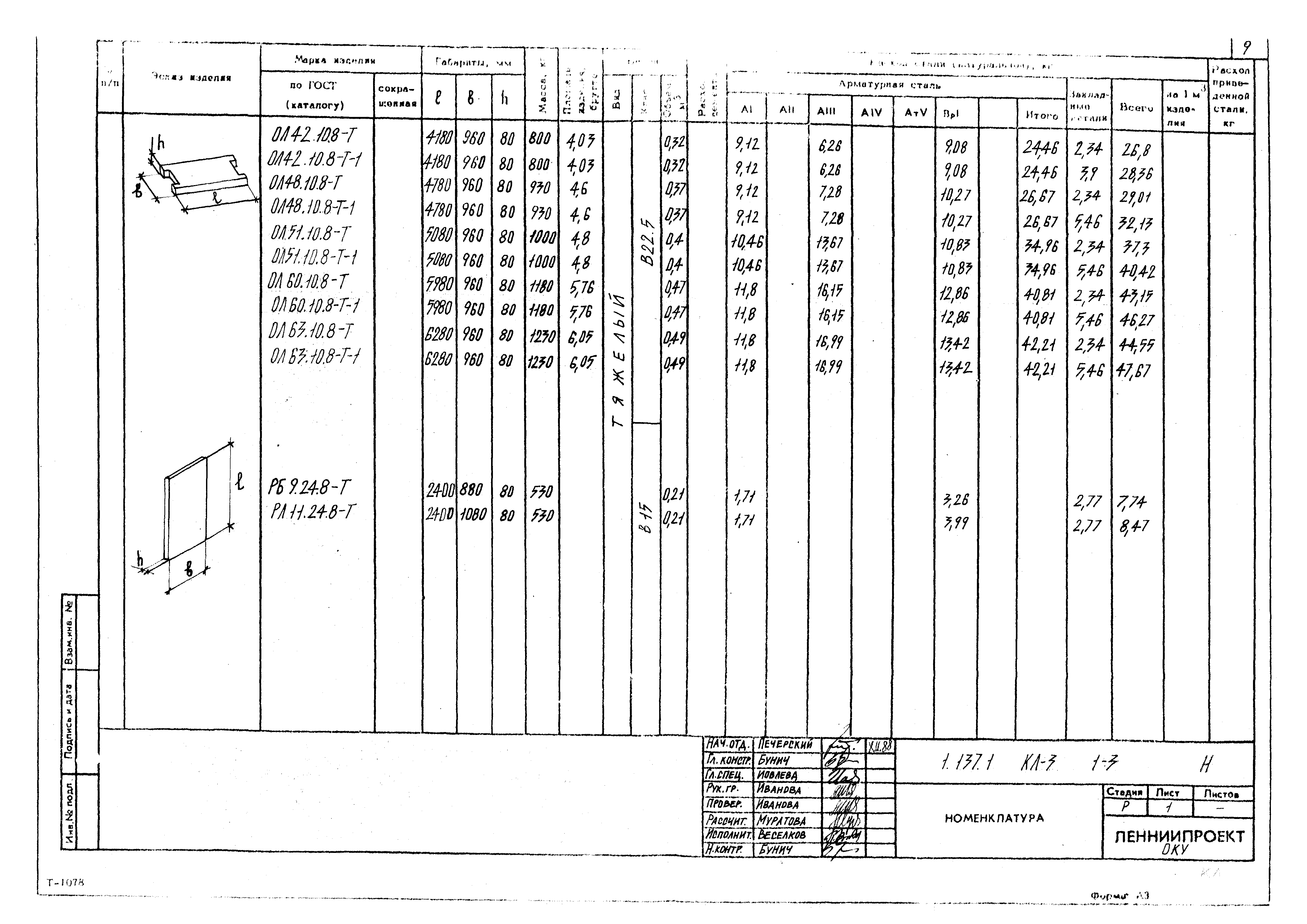
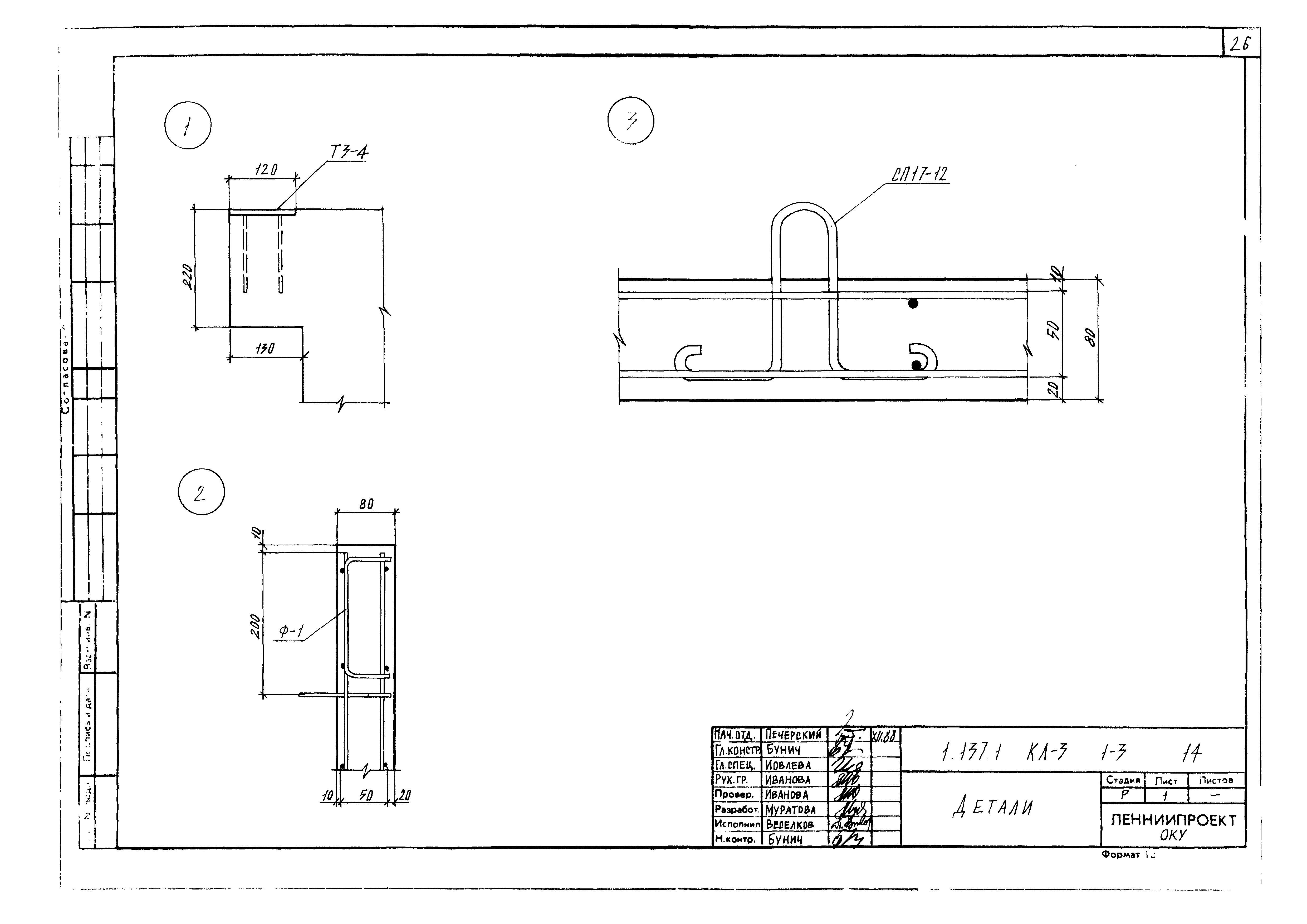
Скачать Серия 1.137.1 КЛ-3 Выпуск 1-3. Ограждения лоджийДата актуализации: 01.01.2021
|
| Обозначение: | Серия 1.137.1 КЛ-3 |
| Обозначение англ: | Series 1.137.1 КЛ-3 |
| Статус: | не действует |
| Название рус.: | Выпуск 1-3. Ограждения лоджий |
| Дата добавления в базу: | 01.09.2013 |
| Дата актуализации: | 01.01.2021 |
| Разработан: | Ленниипроект |
| Утверждён: | 26.12.1988 Ленниипроект (147-у) |


























