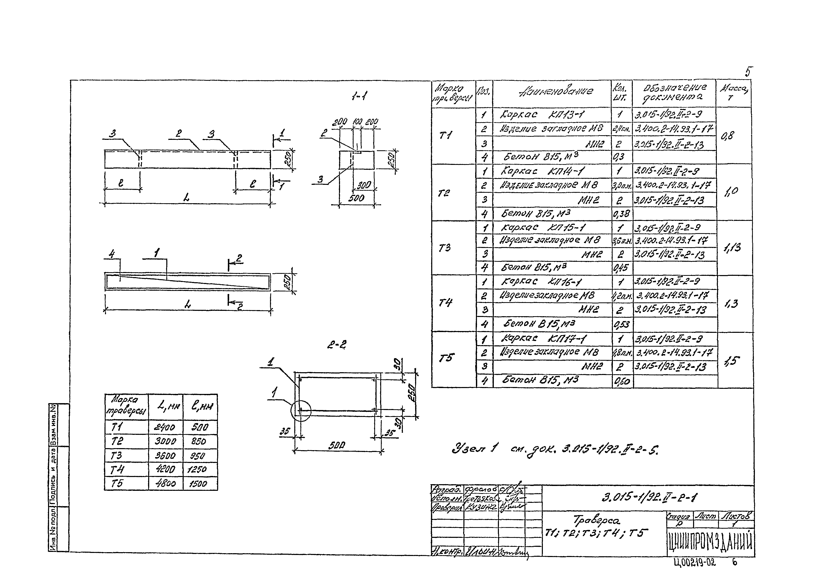
Скачать Серия 3.015-1/92 Выпуск II-2. Сборные железобетонные траверсы. Рабочие чертежиДата актуализации: 01.01.2021 Серия 3.015-1/92
Выпуск II-2. Сборные железобетонные траверсы. Рабочие чертежи| Обозначение: | Серия 3.015-1/92 | | Обозначение англ: | Series 3.015-1/92 | | Статус: | не определен законодательством | | Название рус.: | Выпуск II-2. Сборные железобетонные траверсы. Рабочие чертежи | | Дата добавления в базу: | 01.09.2013 | | Дата актуализации: | 01.01.2021 | | Дата введения: | 01.07.1994 | | Дата окончания срока действия: | 30.06.2003 | | Разработан: | АО ЦНИИпромзданий
| | Утверждён: | 18.03.1994 Главпроект Госстроя России (9-3-2/54)
|
                  
|