Скачать Серия 3.900.9-13 Выпуск 1. Конструкции опор. Рабочие чертежиДата актуализации: 01.01.2021
|
| Обозначение: | Серия 3.900.9-13 |
| Обозначение англ: | Series 3.900.9-13 |
| Статус: | не определен законодательством |
| Название рус.: | Выпуск 1. Конструкции опор. Рабочие чертежи |
| Дата добавления в базу: | 01.09.2013 |
| Дата актуализации: | 01.01.2021 |
| Дата введения: | 01.01.1990 |
| Дата окончания срока действия: | 30.06.2003 |
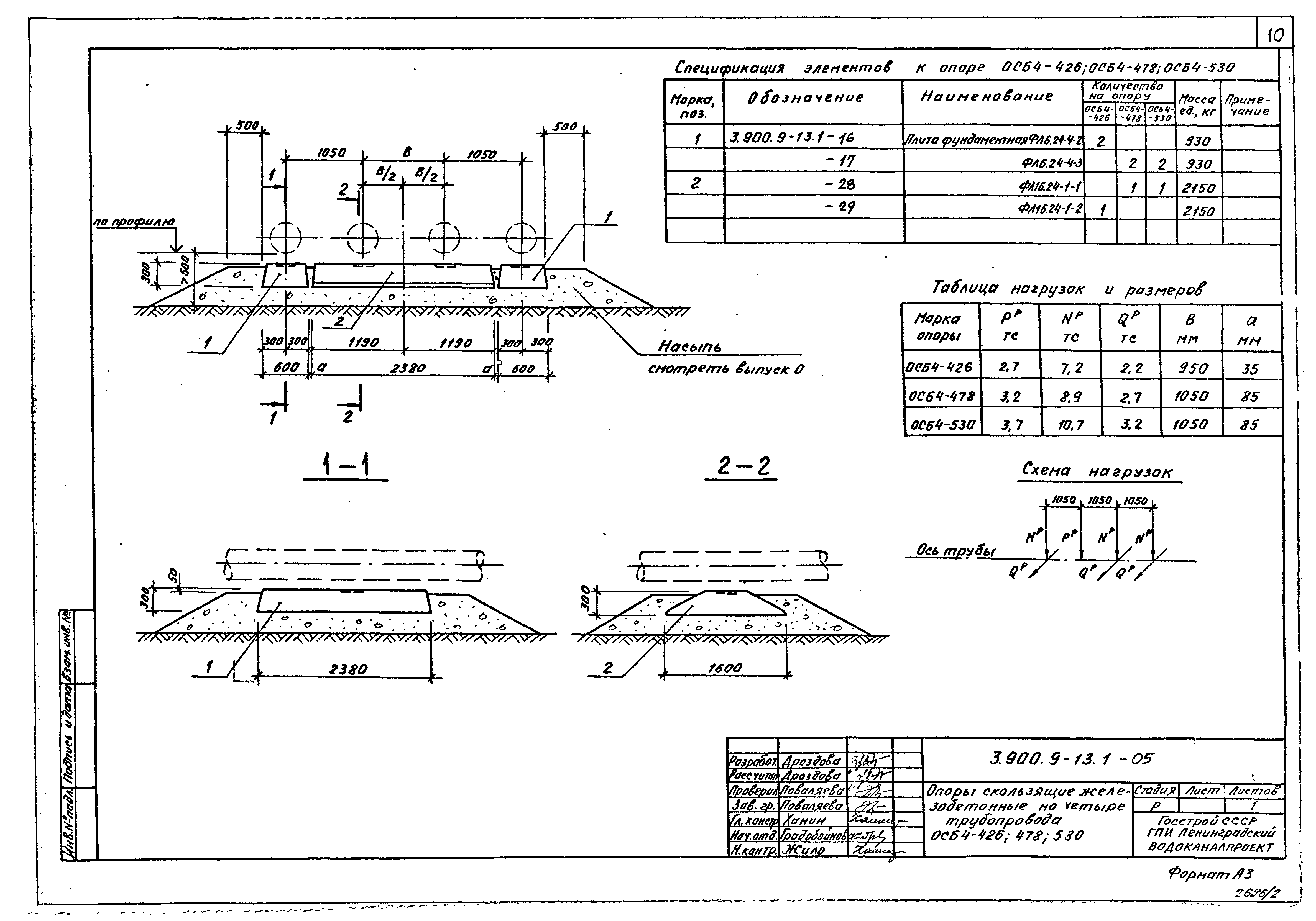
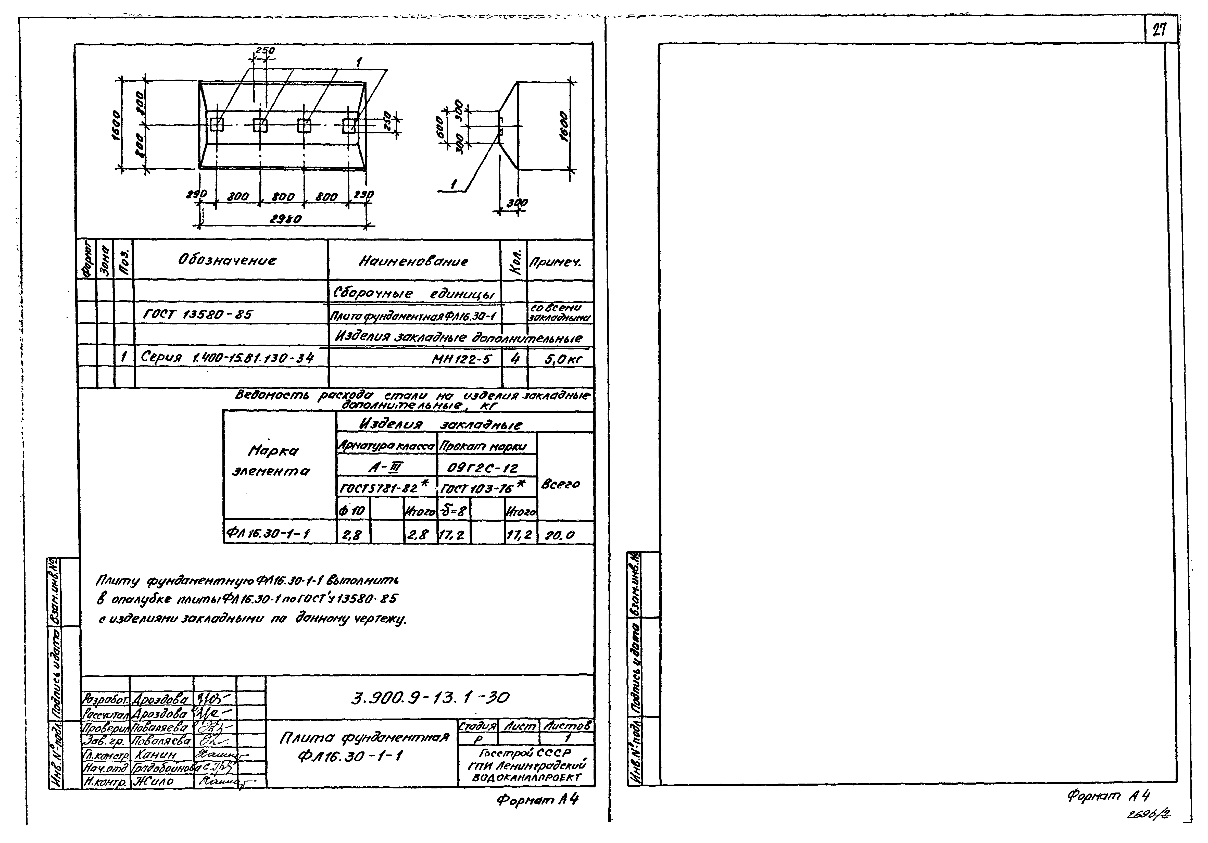
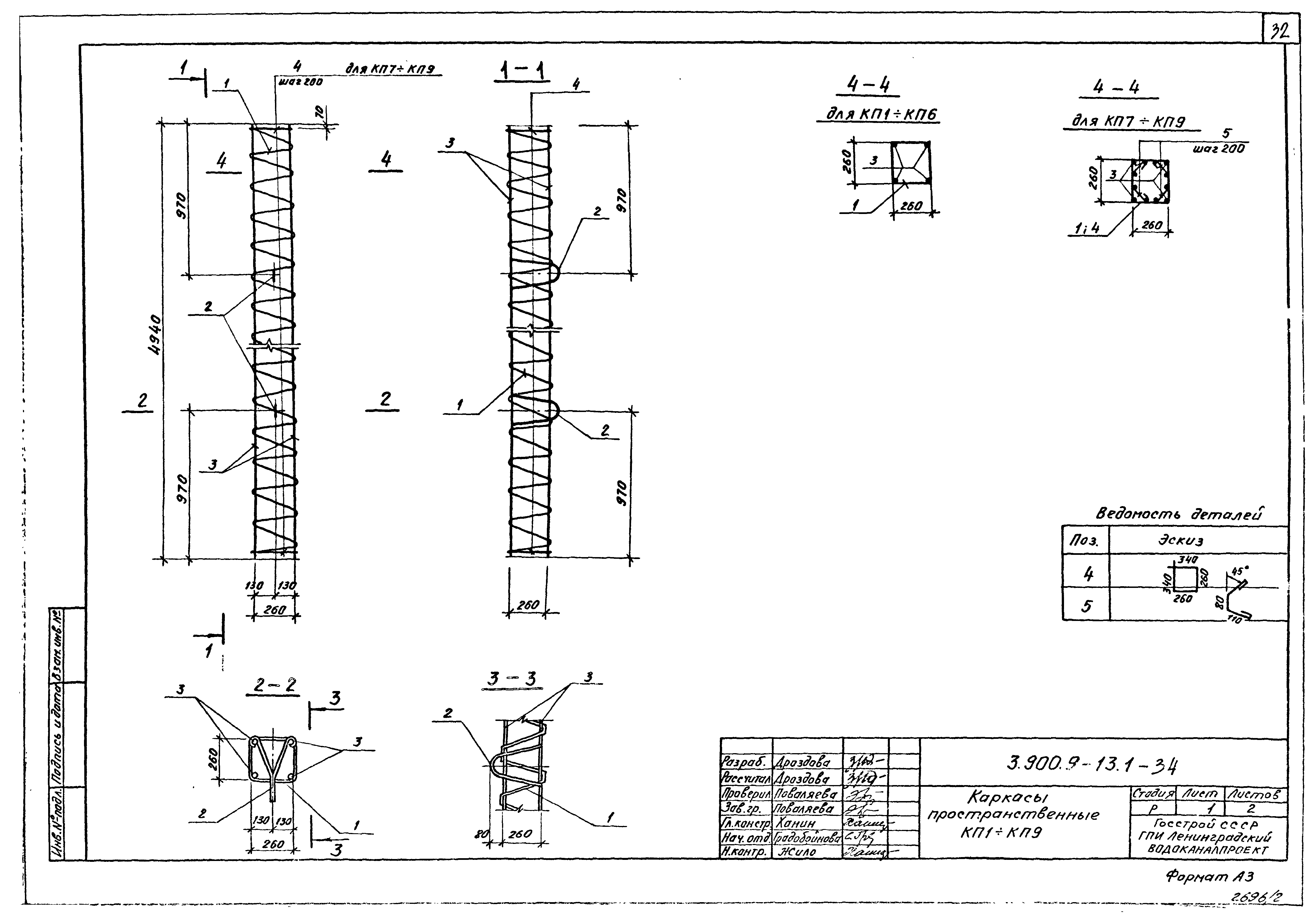
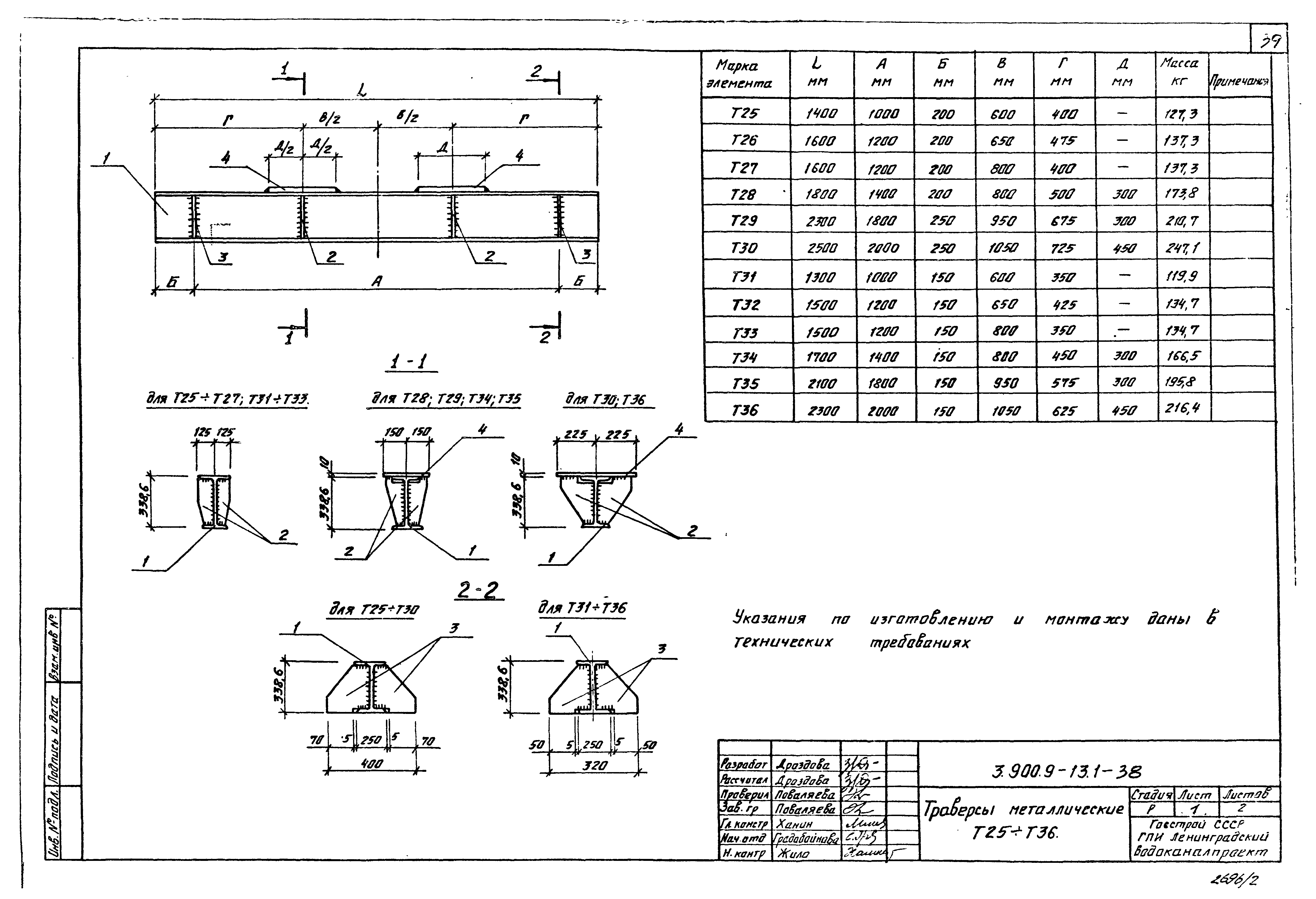
| Оглавление: | 3.900.9-13.1-01 Содержание выпуска 3.900.9-13.1-ПЗ Пояснительная записка 3.900.9-13.1-02 Опоры скользящие железобетонные на два трубопровода ОСБ2-159; 273; 325; 426; 478; 530 3.900.9-13.1-03 Опоры неподвижные железобетонные на два трубопровода при П-образных компенсаторах ОН262-159; 219; 273; 325; 426; 478; 530 3.900.9-13.1-04 Опоры скользящие железобетонные на четыре трубопровода ОСБ4-159; 219; 273; 325 3.900.9-13.1-05 Опоры скользящие железобетонные на четыре трубопровода ОСБ4-426; 478; 530 3.900.9-13.1-06 Опоры скользящие свайные металлические на два трубопровода ОССМ2-159 - ОССМ2-530 3.900.9-13.1-07 Опоры неподвижные свайные металлические на два трубопровода ОНСН2-159 - ОН1СН2-530; ОН2СН2-159 - ОН2СН2-530 3.900.9-13.1-08 Опоры скользящие и неподвижные свайные металлические на два трубопровода ОССН2-159 - ОССН2-530; ОН1СН2-159 - ОН1СН2-530; ЛН2СН2-159 - ОН2СН2-530. Спецификация 3.900.9-13.1-09 Опоры скользящие свайные металлические на два трубопровода ОССЖ2-159 - ОН1СЖ2-530 3.900.9-13.1-10 Опоры неподвижные свайные металлические на два трубопровода ОН1СЖ2-159 - ОН1СЖ2-530; ОН2СЖ2-159 - ОН2СЖ2-530 3.900.9-13.1-11 Опоры скользящие и неподвижные свайные металлические на два трубопровода ОССЖ2-159 - ОССЖ2-530; ОН1СЖ2-159 - ОН1СЖ2-530; ОН2СЖ2-159 - ОН2СЖ2-530. Спецификация 3.900.9-13.1-12 Опоры скользящие свайные металлические на четыре трубопровода ОССЖ4-159 - ОССЖ4-530 3.900.9-13.1-13 Опоры скользящие свайные металлические на четыре трубопровода ОССМ4-159 - ОССМ4-530 3.900.9-13.1-14 Плита фундаментная ФЛ6.12-4-1 3.900.9-13.1-15 Плита фундаментная ФЛ6.24-4-1 3.900.9-13.1-16 Плита фундаментная ФЛ6.24-4-2 3.900.9-13.1-17 Плита фундаментная ФЛ6.24-4-3 3.900.9-13.1-18 Плита фундаментная ФЛ8.12-1-1 3.900.9-13.1-19 Плита фундаментная ФЛ10.12-1-1 3.900.9-13.1-20 Плита фундаментная ФЛ10.12-1-2 3.900.9-13.1-21 Плита фундаментная ФЛ10.12-1-3 3.900.9-13.1-22 Плита фундаментная ФЛ10.24-1-1 3.900.9-13.1-23 Плита фундаментная ФЛ12.12-1-1 3.900.9-13.1-24 Плита фундаментная ФЛ12.24-1-1 3.900.9-13.1-25 Плита фундаментная ФЛ12.24-1-2 3.900.9-13.1-26 Плита фундаментная ФЛ14.24-1-1 3.900.9-13.1-27 Плита фундаментная ФЛ14.24-1-2 3.900.9-13.1-28 Плита фундаментная ФЛ16.24-1-1 3.900.9-13.1-29 Плита фундаментная ФЛ16.24-1-2 3.900.9-13.1-30 Плита фундаментная ФЛ16.30-1-1 3.900.9-13.1-31 Плита фундаментная ФЛ20.24-1-1 3.900.9-13.1-32 Плита фундаментная ФЛ20.30-1-1 3.900.9-13.1-33 Сваи железобетонные СВЖ1 - СВЖ9 3.900.9-13.1-34 Каркасы пространственные КП1 - КП9 3.900.9-13.1-35 Свая металлические СВМ1 - СВМ3 3.900.9-13.1-36 Траверсы металлические Т1 - Т12 3.900.9-13.1-37 Траверсы металлические Т13 - Т24 3.900.9-13.1-38 Траверсы металлические Т25 - Т36 3.900.9-13.1-39 Изделие закладное МН1 3.900.9-13.1-40 Изделие закладное МН2 3.900.9-13.1-41 Изделие соединительное МС1 - МС8 3.900.9-13.1-42 Изделие соединительное МС9 3.900.9-13.1-43 Изделие соединительное МС10; МС11 3.900.9-13.1-44 Изделие соединительное МС13 3.900.9-13.1-45 Изделие соединительное МС12 3.900.9-13.1-46 Изделие соединительное МС14 - МС18 |
| Разработан: | Ленинградский Водоканалпроект |
| Утверждён: | 04.12.1989 СоюзводоканалНИИпроект (SoyuzvodokanalNIIproject 108) |
| Издан: | ЦИТП Госстроя СССР (CITP, Gosstroy (USSR) 1990 г. ) |













































