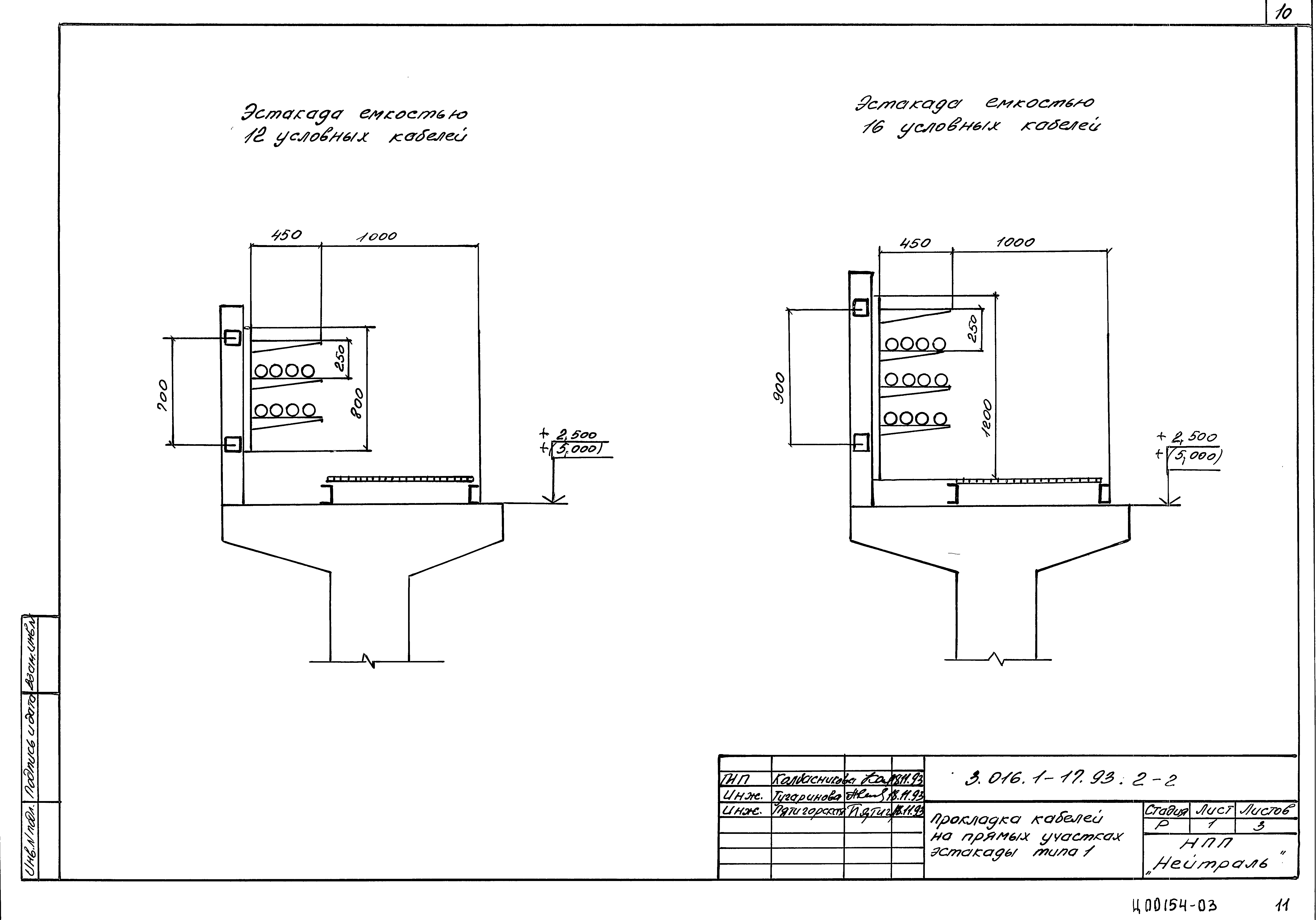
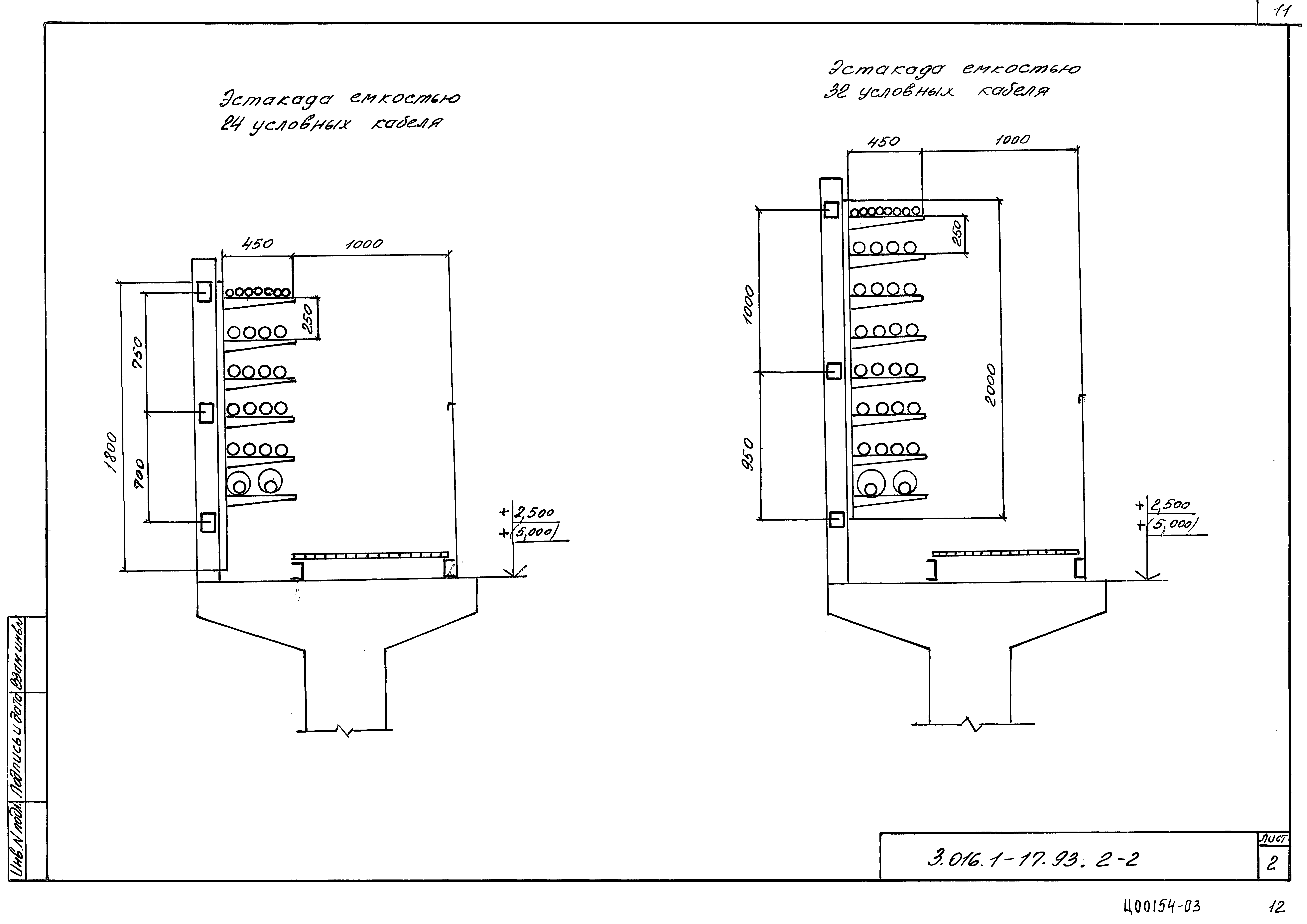
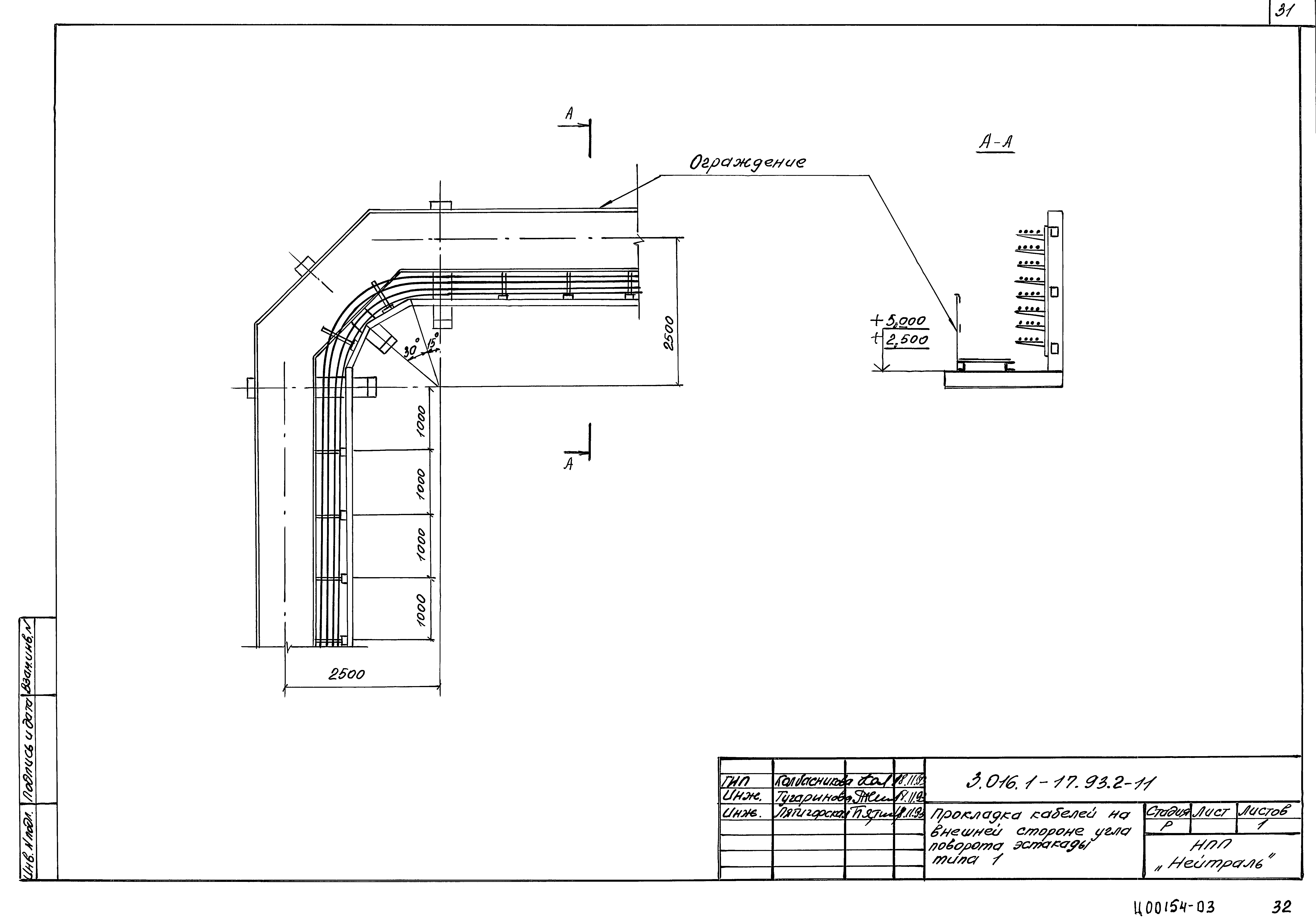
Скачать Серия 3.016.1-17.93 Выпуск 2. Узлы прокладки кабелей. Рабочие чертежиДата актуализации: 01.01.2021 Серия 3.016.1-17.93
Выпуск 2. Узлы прокладки кабелей. Рабочие чертежи| Обозначение: | Серия 3.016.1-17.93 | | Обозначение англ: | Series 3.016.1-17.93 | | Статус: | не определен законодательством | | Название рус.: | Выпуск 2. Узлы прокладки кабелей. Рабочие чертежи | | Дата добавления в базу: | 01.09.2013 | | Дата актуализации: | 01.01.2021 | | Дата введения: | 01.01.1994 | | Дата окончания срока действия: | 30.06.2003 | | Разработан: | НПП Нейтраль
| | Утверждён: | 03.12.1993 Главпроект Госстроя России (9-3-3/257)
|
                                                                     
|