Скачать Серия 3.016.1-13 Выпуск 2. Электротехническая часть. Указания по применению и рабочие чертежиДата актуализации: 01.01.2021
|
| Обозначение: | Серия 3.016.1-13 |
| Обозначение англ: | Series 3.016.1-13 |
| Статус: | не определен законодательством |
| Название рус.: | Выпуск 2. Электротехническая часть. Указания по применению и рабочие чертежи |
| Дата добавления в базу: | 01.09.2013 |
| Дата актуализации: | 01.01.2021 |
| Дата введения: | 01.04.1992 |
| Дата окончания срока действия: | 30.06.2003 |
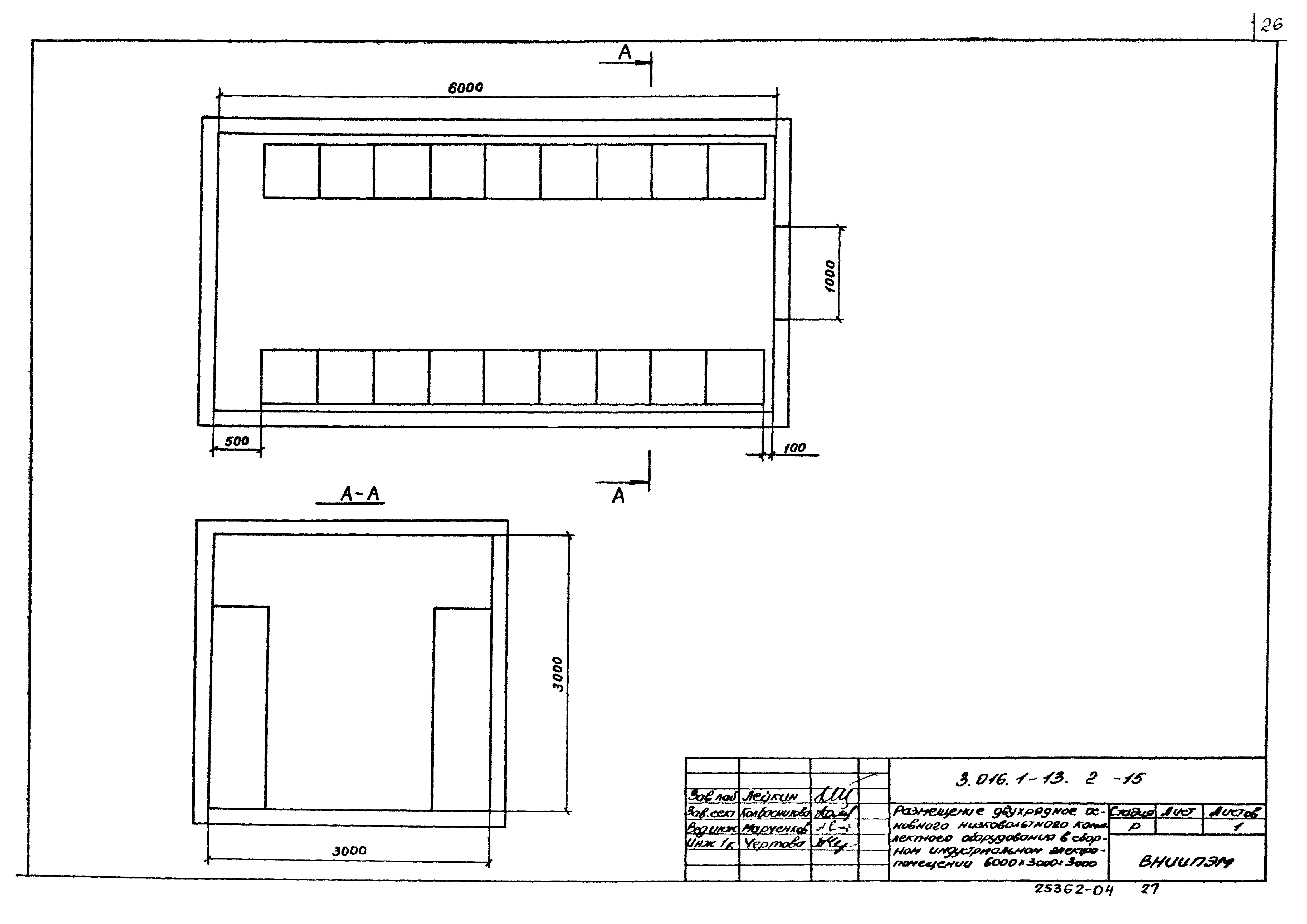
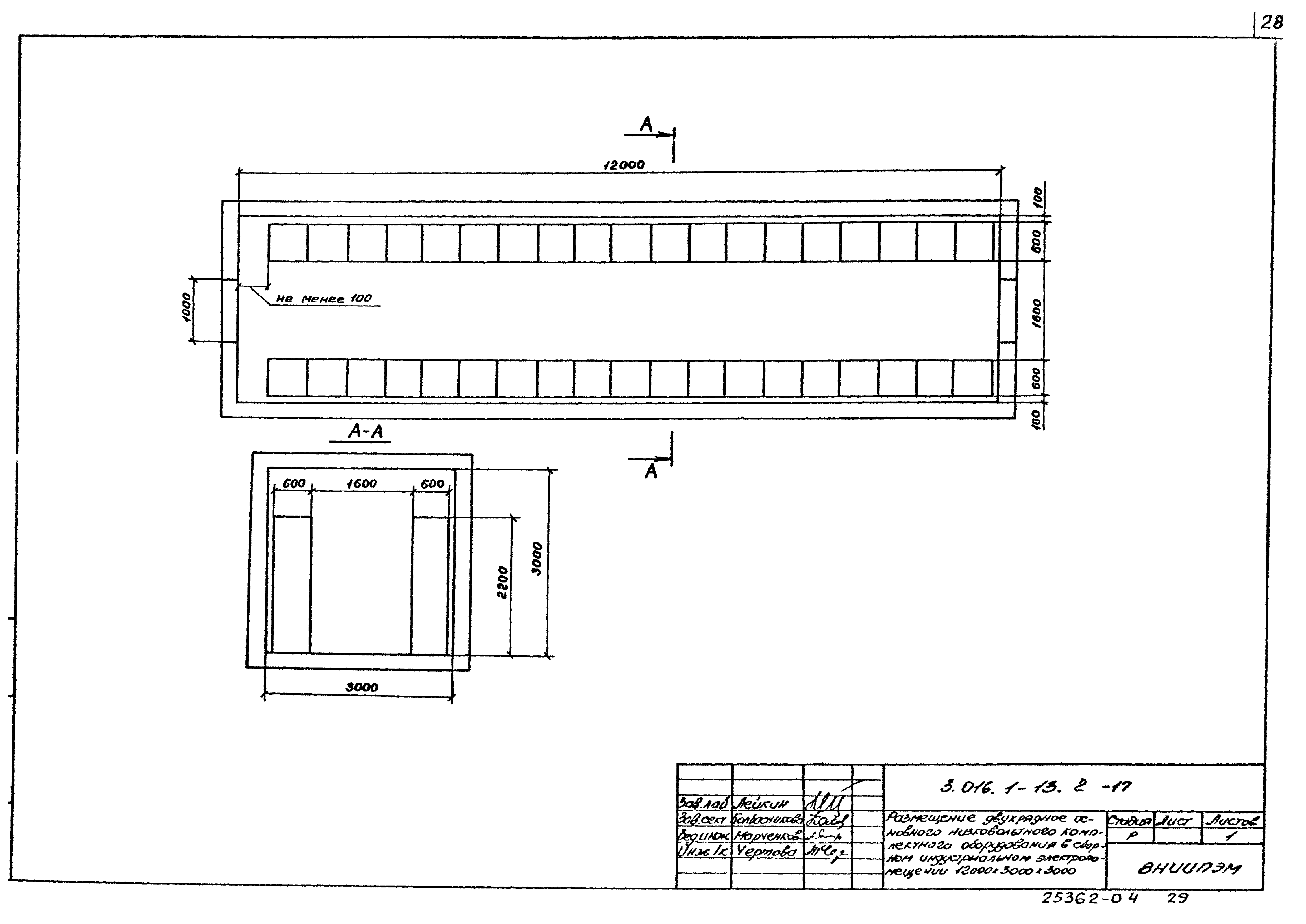
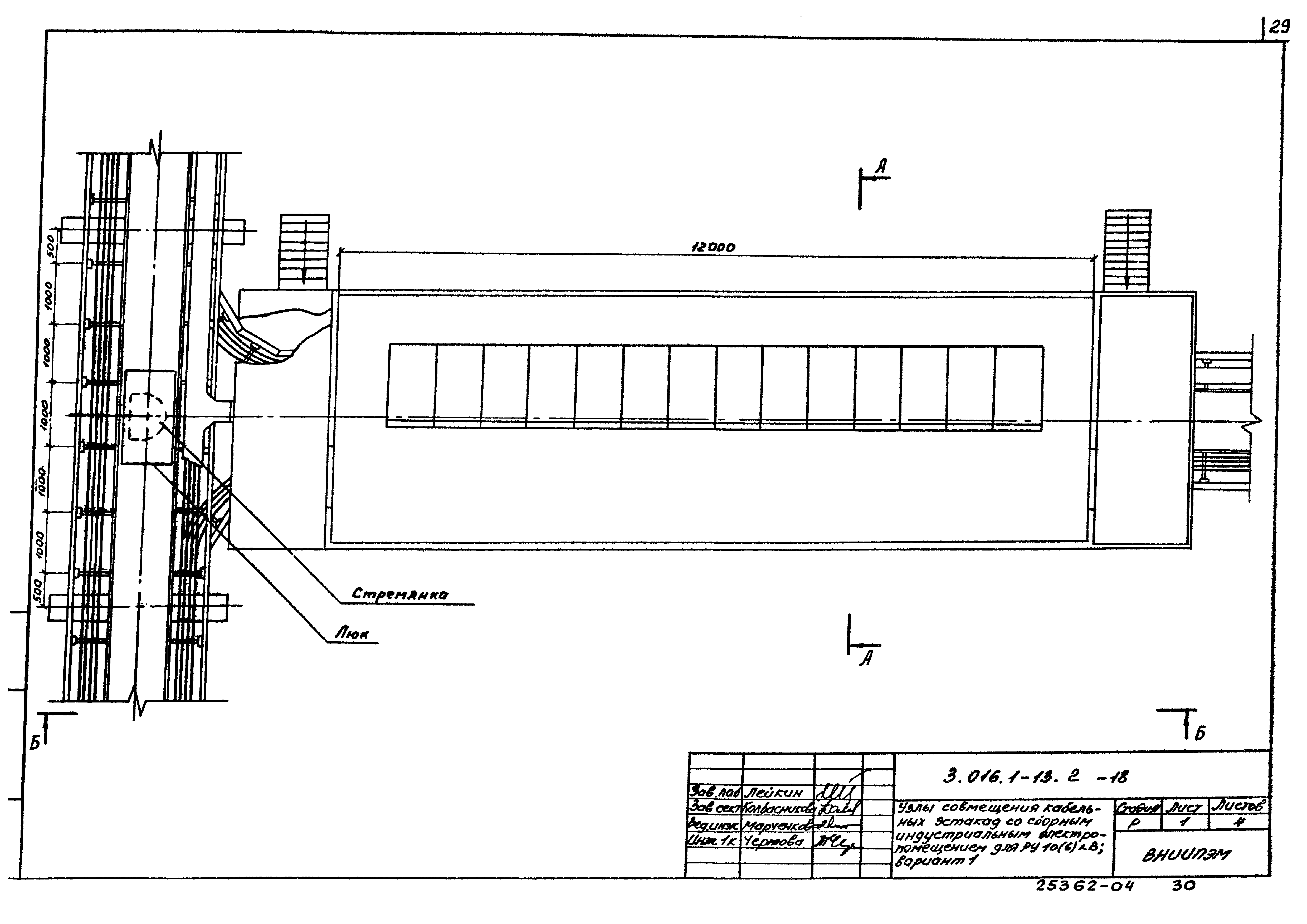
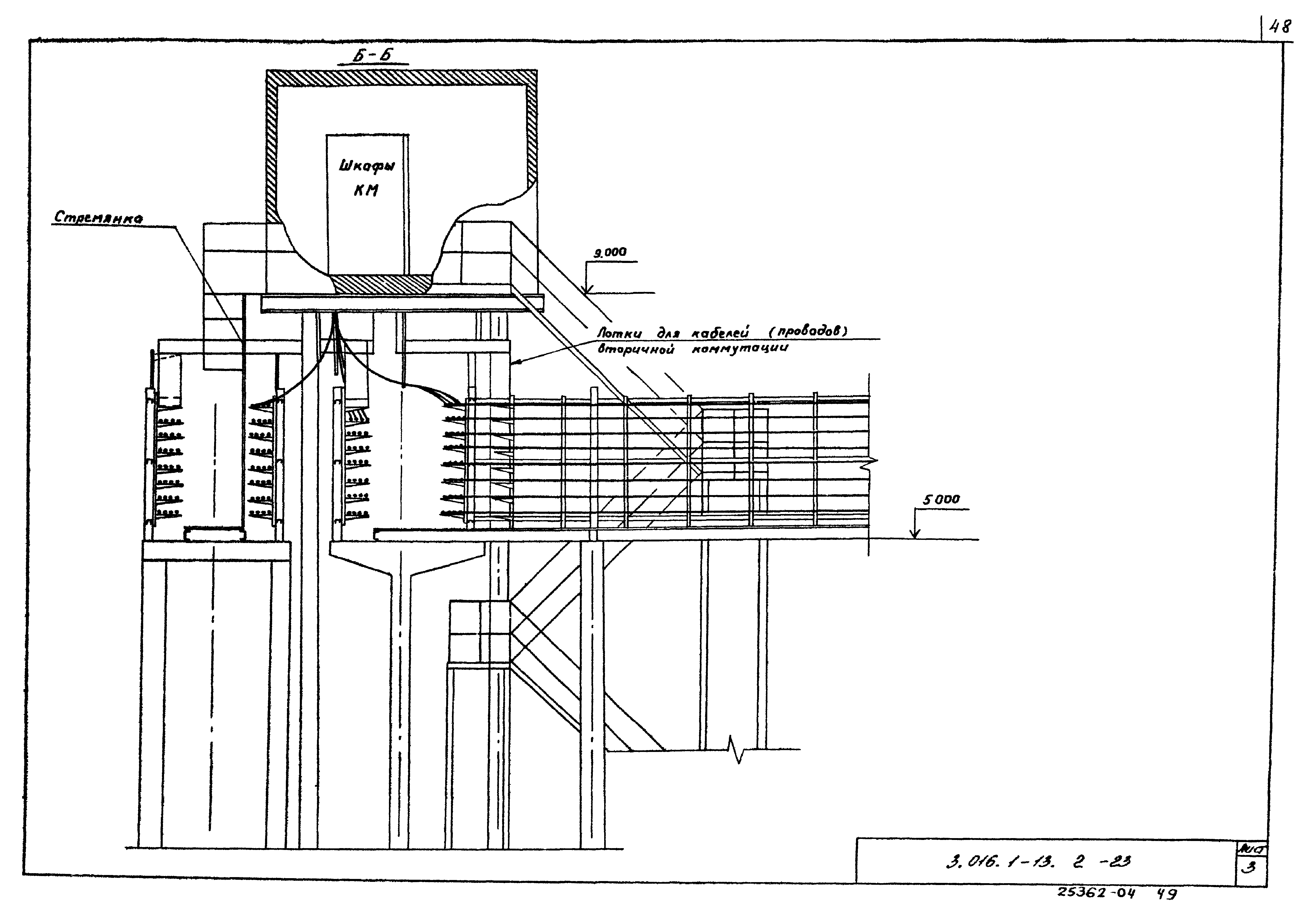
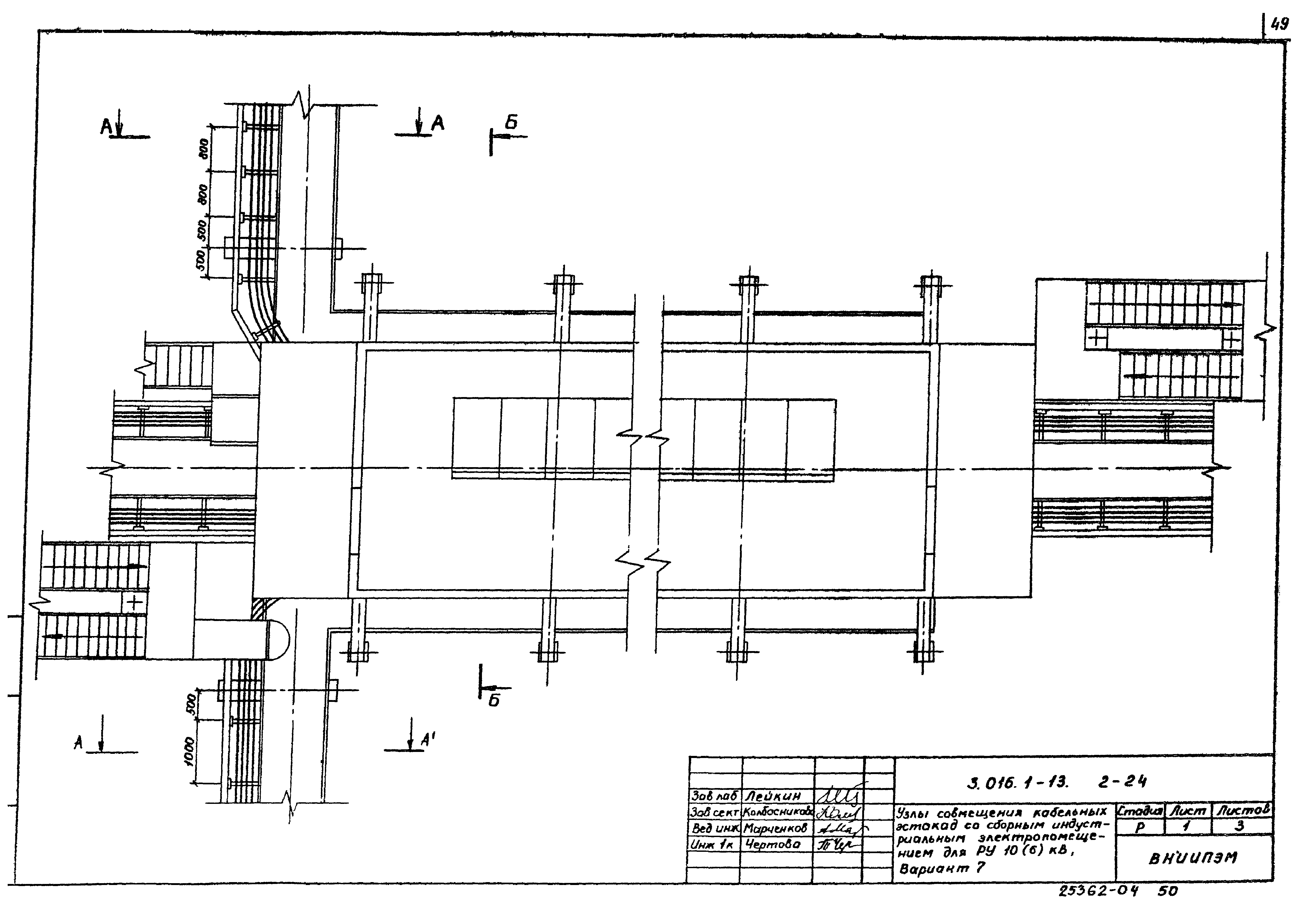
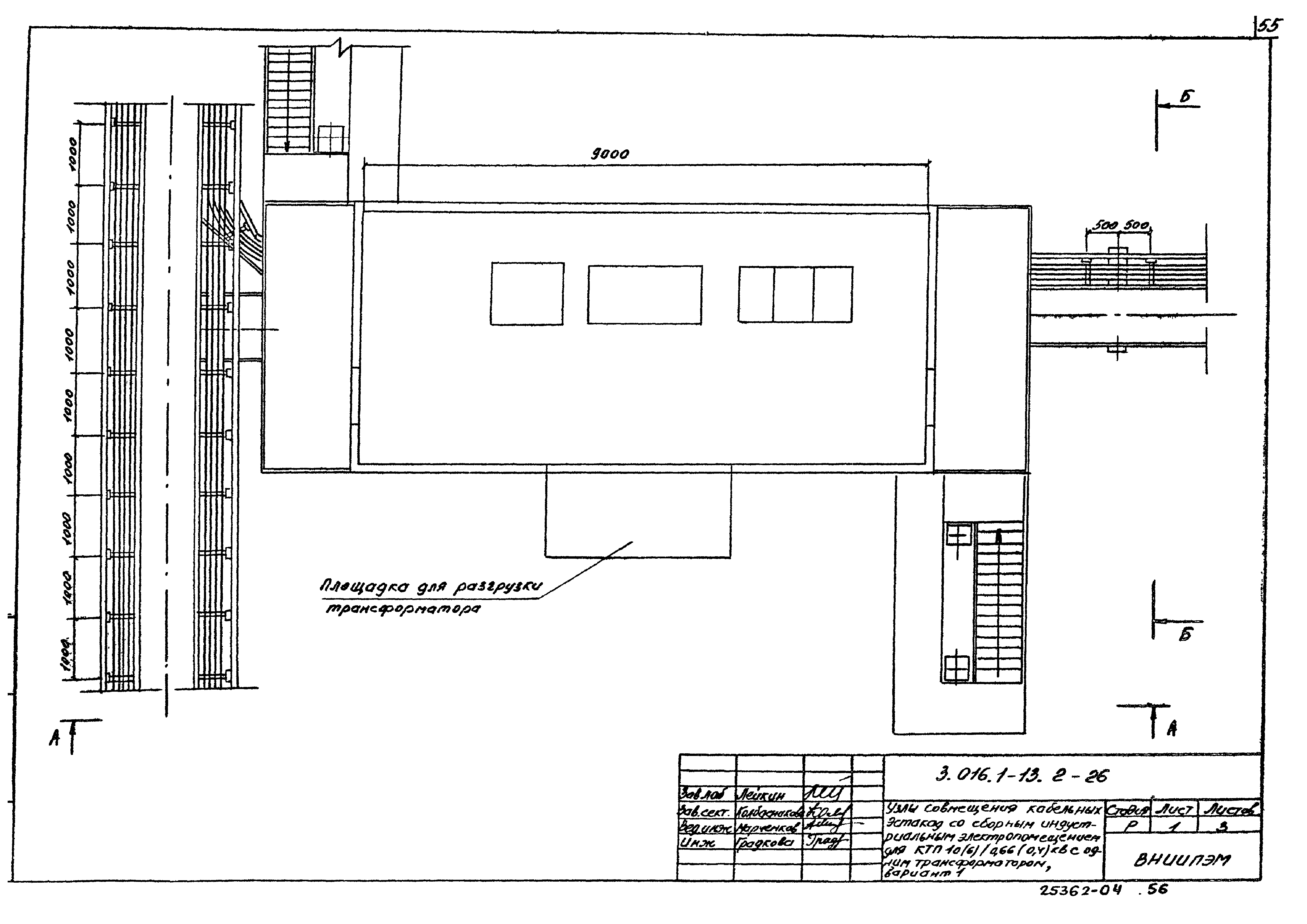
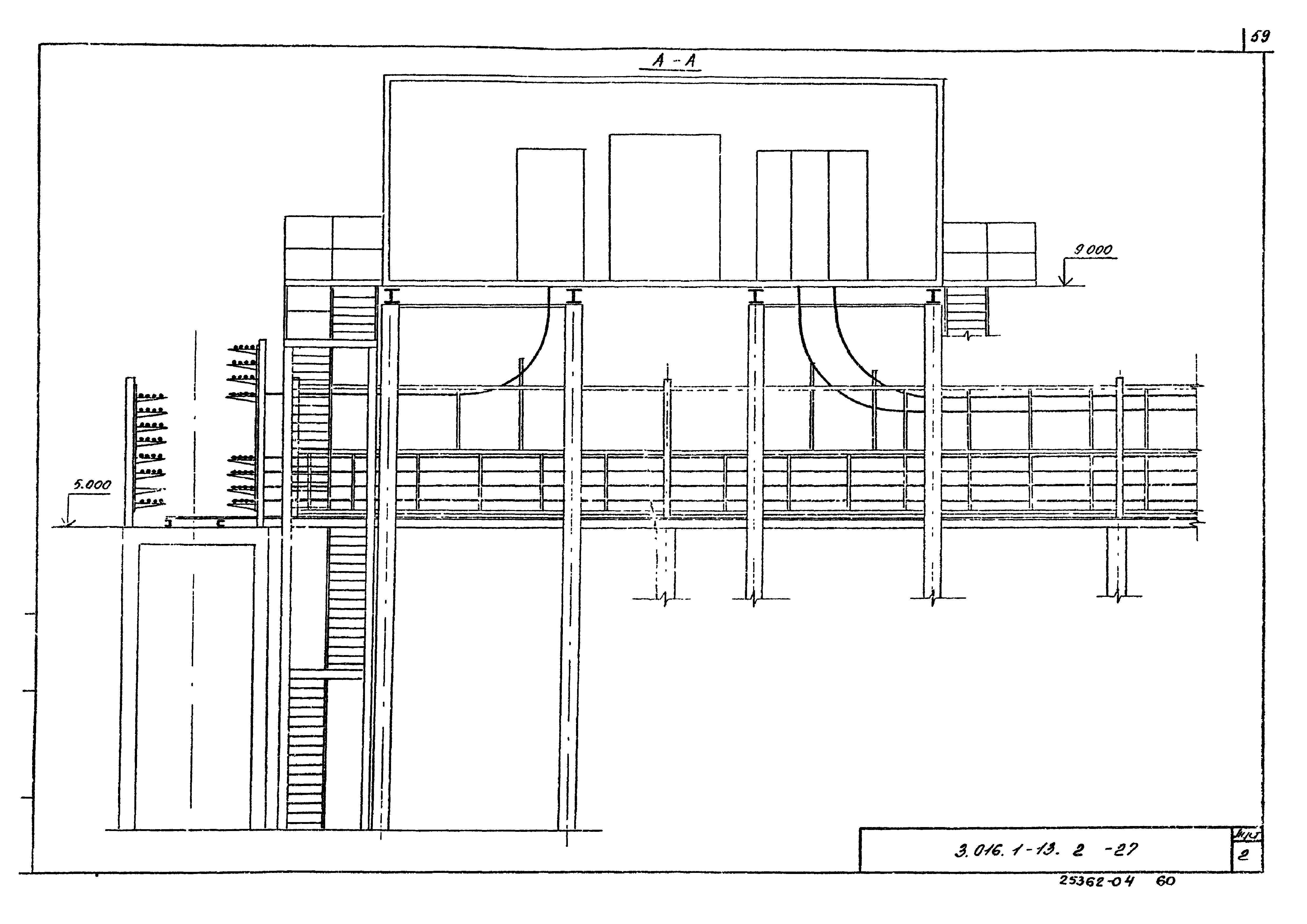
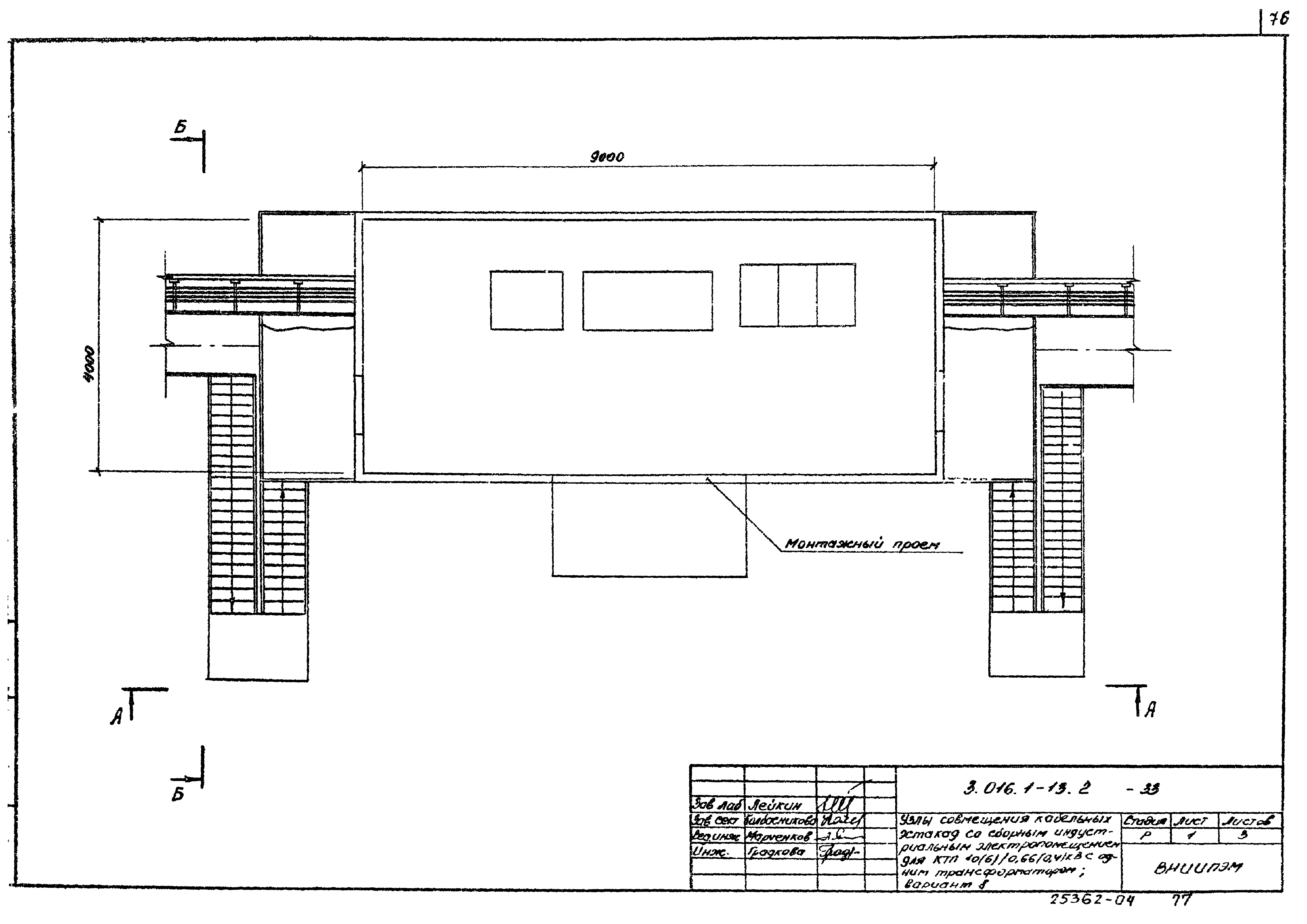
| Оглавление: | 3.016.1-13.2-ПЗ Пояснительная записка 3.016.1-13.2-1 Разработанные варианты совмещения кабельных эстакад с электропомещениями 3.016.1-13.2-2 Размещение основного оборудования РУ10(6) кВ в сборном индустриальном электропомещении 12000х4000х3000 без трансформаторов собственных нужд 3.016.1-13.2-3 Размещение основного оборудования РУ10(6) кВ в сборном индустриальном электропомещении 15000х4000х3000 с трансформаторами собственных нужд 3.016.1-13.2-4 Размещение основного оборудования РУ10(6) кВ в сборном индустриальном электропомещении 15000х4000х3000 без трансформаторов собственных нужд 3.016.1-13.2-5 Размещение основного оборудования РУ10(6) кВ в сборном индустриальном электропомещении 18000х4000х3000 с трансформаторами собственных нужд 3.016.1-13.2-6 Размещение основного оборудования РУ10(6) кВ в сборном индустриальном электропомещении 18000х4000х3000 без трансформаторов собственных нужд 3.016.1-13.2-7 Размещение основного оборудования РУ10(6) кВ в сборном индустриальном электропомещении 21000х4000х3000 с трансформаторами собственных нужд 3.016.1-13.2-8 Размещение основного оборудования РУ10(6) кВ в сборном индустриальном электропомещении 21000х4000х3000 без трансформаторов собственных нужд 3.016.1-13.2-9 Размещение основного оборудования РУ10(6) кВ в сборном индустриальном электропомещении 24000х4000х3000 с трансформаторами собственных нужд 3.016.1-13.2-10 Размещение основного оборудования КТП10(6)/0,66(0,4) кВ с одним трансформатором в сборном индустриальном электропомещении 3.016.1-13.2-11 Размещение основного оборудования КТП10(6)/0,66(0,4) кВ с двумя трансформаторами в сборном индустриальном электропомещении 3.016.1-13.2-12 Размещение однорядное основного низковольтного комплексного оборудования в сборном индустриальном электропомещении 6000х2000х3000 3.016.1-13.2-13 Размещение однорядное основного низковольтного комплексного оборудования в сборном индустриальном электропомещении 9000х2000х3000 3.016.1-13.2-14 Размещение однорядное основного низковольтного комплексного оборудования в сборном индустриальном электропомещении 12000х2000х3000 3.016.1-13.2-15 Размещение двухрядное основного низковольтного комплексного оборудования в сборном индустриальном электропомещении 6000х2000х3000 3.016.1-13.2-16 Размещение двухрядное основного низковольтного комплексного оборудования в сборном индустриальном электропомещении 9000х2000х3000 3.016.1-13.2-17 Размещение двухрядное основного низковольтного комплексного оборудования в сборном индустриальном электропомещении 12000х2000х3000 3.016.1-13.2-18 Узлы совмещения кабельных эстакад со сборными индустриальным электропомещением для РУ10(6) кВ. Вариант 1 3.016.1-13.2-19 Узлы совмещения кабельных эстакад со сборными индустриальным электропомещением для РУ10(6) кВ. Вариант 2 3.016.1-13.2-20 Узлы совмещения кабельных эстакад со сборными индустриальным электропомещением для РУ10(6) кВ. Вариант 3 3.016.1-13.2-21 Узлы совмещения кабельных эстакад со сборными индустриальным электропомещением для РУ10(6) кВ. Вариант 4 3.016.1-13.2-22 Узлы совмещения кабельных эстакад со сборными индустриальным электропомещением для РУ10(6) кВ. Вариант 5 3.016.1-13.2-23 Узлы совмещения кабельных эстакад со сборными индустриальным электропомещением для РУ10(6) кВ. Вариант 6 3.016.1-13.2-24 Узлы совмещения кабельных эстакад со сборными индустриальным электропомещением для РУ10(6) кВ. Вариант 7 3.016.1-13.2-25 Узлы совмещения кабельных эстакад со сборными индустриальным электропомещением для РУ10(6) кВ. Вариант 8 3.016.1-13.2-26 Узлы совмещения кабельных эстакад со сборными индустриальным электропомещением для КТП 10(6)/0,66(0,4) кВ с одним трансформатором. Вариант 1 3.016.1-13.2-27 Узлы совмещения кабельных эстакад со сборными индустриальным электропомещением для КТП 10(6)/0,66(0,4) кВ с одним трансформатором. Вариант 2 3.016.1-13.2-28 Узлы совмещения кабельных эстакад со сборными индустриальным электропомещением для КТП 10(6)/0,66(0,4) кВ с одним трансформатором. Вариант 3 3.016.1-13.2-29 Узлы совмещения кабельных эстакад со сборными индустриальным электропомещением для КТП 10(6)/0,66(0,4) кВ с одним трансформатором. Вариант 4 3.016.1-13.2-30 Узлы совмещения кабельных эстакад со сборными индустриальным электропомещением для КТП 10(6)/0,66(0,4) кВ с одним трансформатором. Вариант 5 3.016.1-13.2-31 Узлы совмещения кабельных эстакад со сборными индустриальным электропомещением для КТП 10(6)/0,66(0,4) кВ с одним трансформатором. Вариант 6 3.016.1-13.2-32 Узлы совмещения кабельных эстакад со сборными индустриальным электропомещением для КТП 10(6)/0,66(0,4) кВ с одним трансформатором. Вариант 7 3.016.1-13.2-33 Узлы совмещения кабельных эстакад со сборными индустриальным электропомещением для КТП 10(6)/0,66(0,4) кВ с одним трансформатором. Вариант 8 3.016.1-13.2-34 Узлы совмещения кабельных эстакад со сборными индустриальным электропомещением для низковольтного комплектного оборудования. Вариант 1 3.016.1-13.2-35 Узлы совмещения кабельных эстакад со сборными индустриальным электропомещением для низковольтного комплектного оборудования. Вариант 2 3.016.1-13.2-36 Узлы совмещения кабельных эстакад со сборными индустриальным электропомещением для низковольтного комплектного оборудования. Вариант 3 3.016.1-13.2-37 Узлы совмещения кабельных эстакад со сборными индустриальным электропомещением для низковольтного комплектного оборудования. Вариант 4 3.016.1-13.2-38 Узлы совмещения кабельных эстакад со сборными индустриальным электропомещением для низковольтного комплектного оборудования. Вариант 5 3.016.1-13.2-39 Узлы совмещения кабельных эстакад со сборными индустриальным электропомещением для низковольтного комплектного оборудования. Вариант 6 3.016.1-13.2-40 Узлы совмещения кабельных эстакад со сборными индустриальным электропомещением для низковольтного комплектного оборудования. Вариант 7 3.016.1-13.2-41 Узлы совмещения кабельных эстакад со сборными индустриальным электропомещением для низковольтного комплектного оборудования. Вариант 8 3.016.1-13.2-42 Узлы совмещения кабельных эстакад со сборными индустриальным электропомещением для РУ10(6) кВ, КТП и НКУ при их совместном расположении. Пример 1 3.016.1-13.2-43 Узлы совмещения кабельных эстакад со сборными индустриальным электропомещением для РУ10(6) кВ, КТП и НКУ при их совместном расположении. Пример 2 3.016.1-13.2-44 Узлы совмещения кабельных эстакад со сборными индустриальным электропомещением для РУ10(6) кВ, КТП и НКУ при их совместном расположении. Пример 3 |
| Разработан: | ВНИИПроектэлектромонтаж |
| Утверждён: | 23.12.1991 Концерн Электромонтаж (06-3-10) |
| Издан: | ЦИТП Госстроя СССР (CITP, Gosstroy (USSR) 1992 г. ) |



















































































































