Скачать Серия 3.016.2-10 Выпуск 1. Конструкции галерей с применением гнутосварных профилей. Материалы для проектирования. Чертежи марки КМДата актуализации: 01.01.2021
|
| Обозначение: | Серия 3.016.2-10 |
| Обозначение англ: | Series 3.016.2-10 |
| Статус: | не определен законодательством |
| Название рус.: | Выпуск 1. Конструкции галерей с применением гнутосварных профилей. Материалы для проектирования. Чертежи марки КМ |
| Дата добавления в базу: | 01.09.2013 |
| Дата актуализации: | 01.01.2021 |
| Дата введения: | 01.11.1988 |
| Дата окончания срока действия: | 30.06.2003 |
| Область применения: | Неотапливаемые металлические транспортерные галереи предназначены для транспортирования зерна и продуктов его переработки ленточными конвейерами. Ширина ленты - 500, 650, 800 и 1000 мм. В серии разработаны пролетные строения и опоры галерей позволяющие компоновать надземные многопролетные транспортерные галерей на отдельно стоящих опорах, надземные однопролетные транспортерные галереи опирающиеся непосредственно на здания или сооружения. |
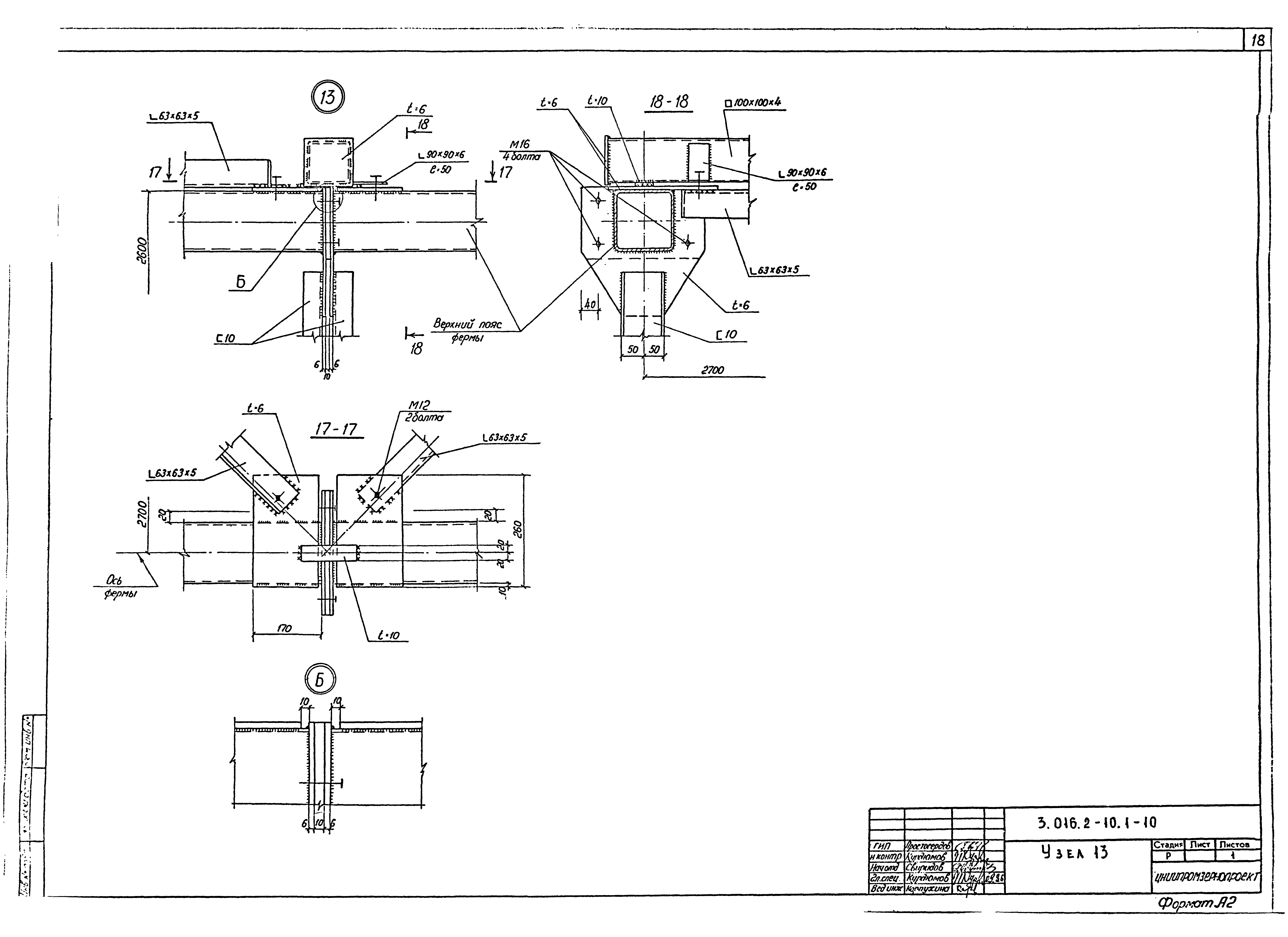
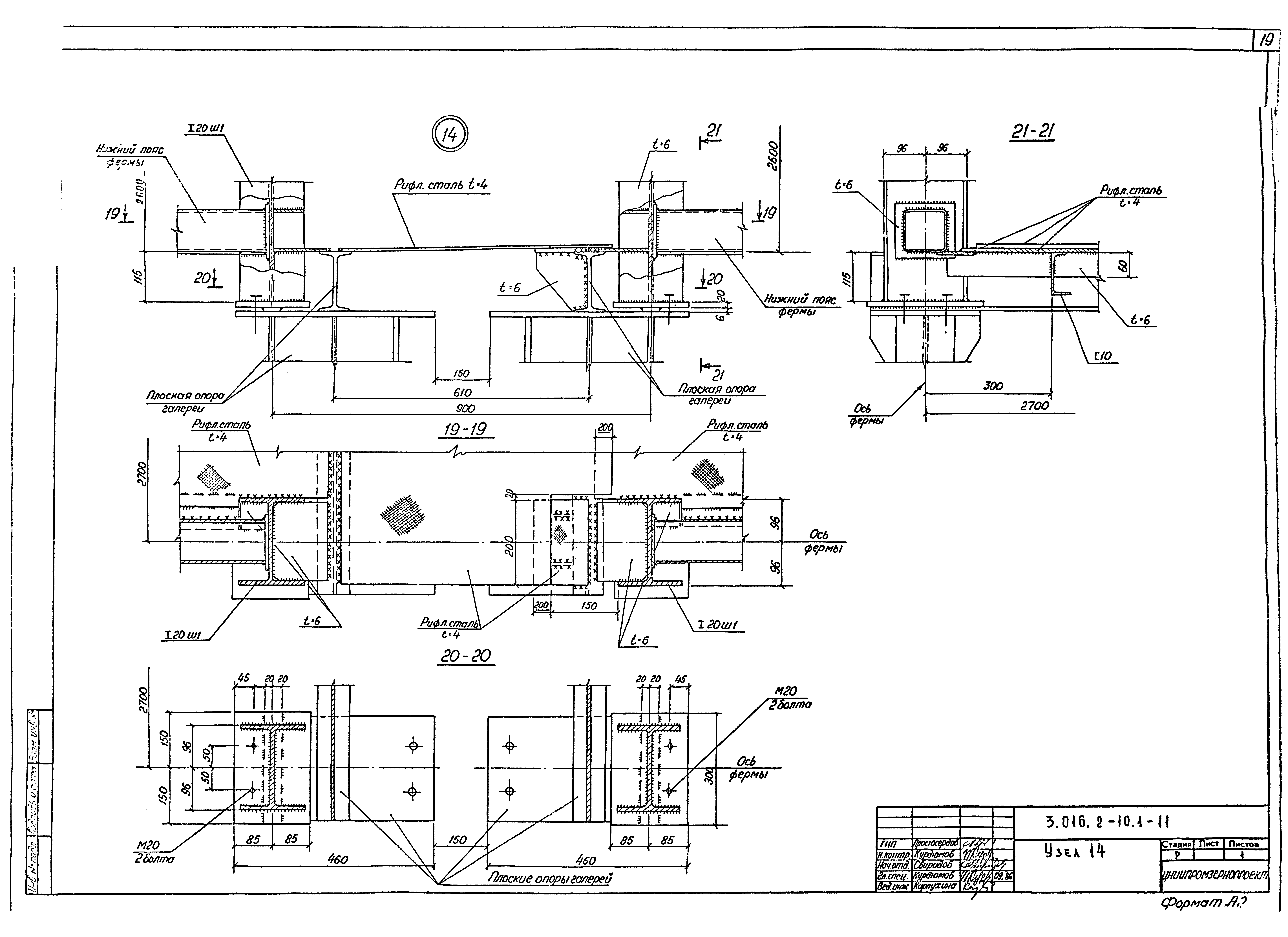
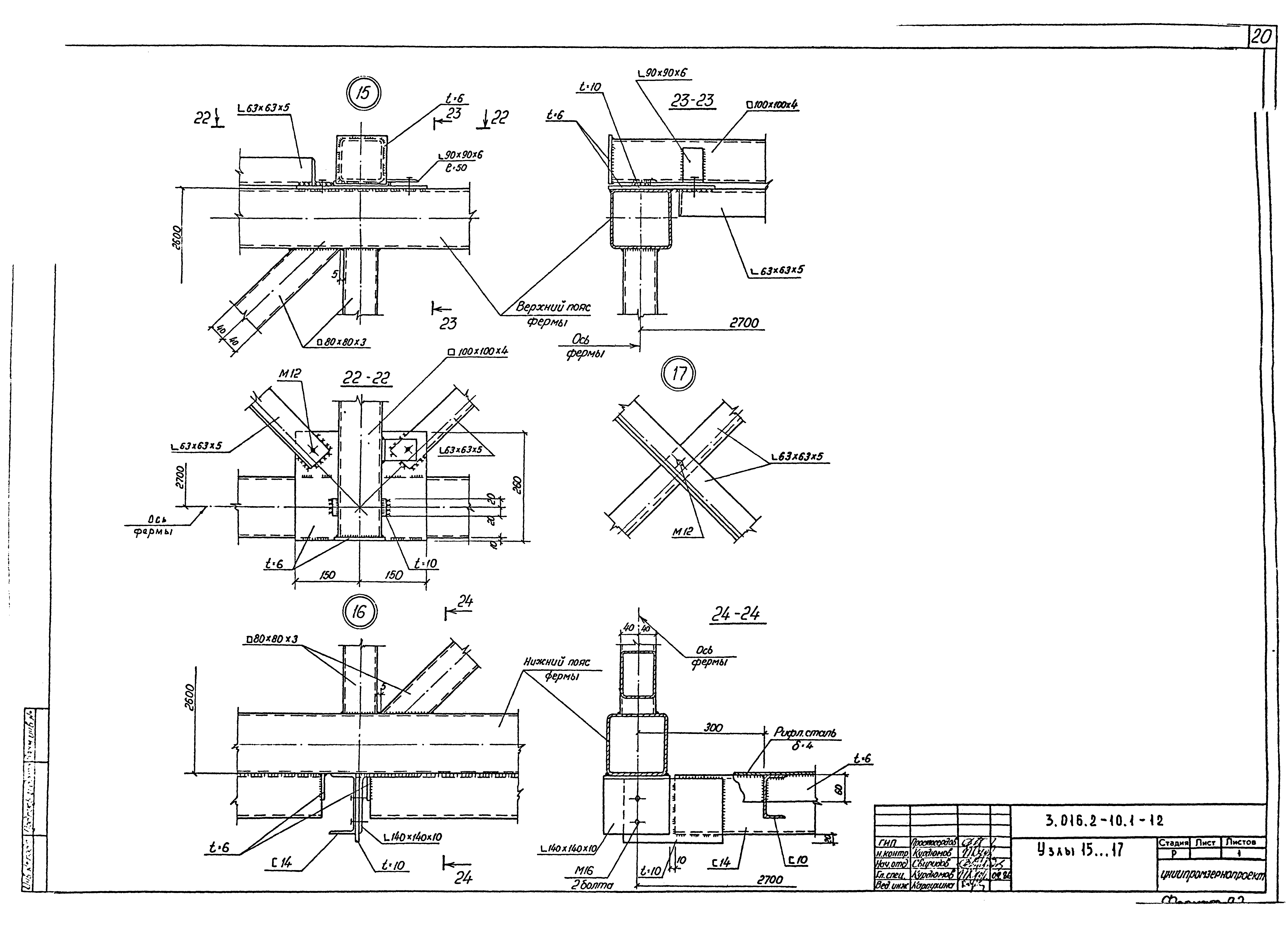
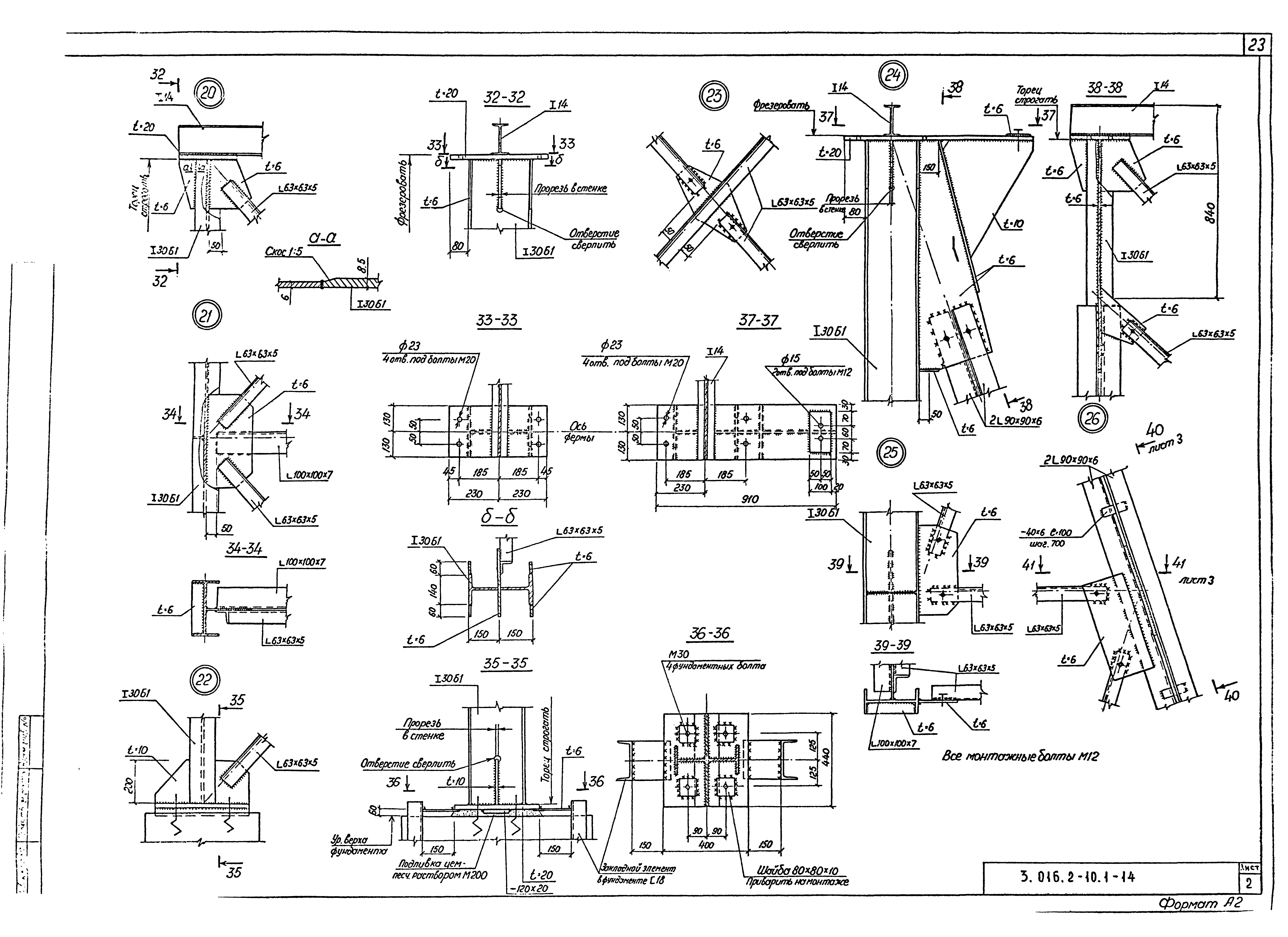
| Оглавление: | 3.016.2-10.1-00ПЗ Пояснительная записка 3.016.2-10.1-01 Техническая спецификация стали. Ведомость металлоконструкций 3.016.2-10.1-02 Пример решения фасадов галерей. Узлы 3.016.2-10.1-03 Пример компоновки галерей 3.016.2-10.1-04 Геометрические схемы ферм. Схемы расположения окон в пролетных строениях 3.016.2-10.1-05 Планы связей по верхним и нижним поясам ферм 3.016.2-10.1-06 Схемы расположения элементов ферм 3.016.2-10.1-07 Узлы 8, 9 3.016.2-10.1-08 Узел 10 3.016.2-10.1-09 Узлы 11, 12 3.016.2-10.1-10 Узел 13 3.016.2-10.1-11 Узел 14 3.016.2-10.1-12 Узлы 15…17 3.016.2-10.1-13 Узлы 18, 19 3.016.2-10.1-14 Схемы расположения элементов опор галерей. Узлы |
| Разработан: | ЦНИИпромзернопроект |
| Утверждён: | 02.11.1987 Министерство хлебопродуктов СССР (USSR Ministry of Bakery Products 17) |
| Нормативные ссылки: |
























