Скачать Типовой проект 902-3-18 Альбом I. Технологическая часть, строительная часть, нестандартизированное оборудованиеДата актуализации: 01.01.2021
|
| Обозначение: | Типовой проект 902-3-18 |
| Обозначение англ: | 902-3-18 |
| Статус: | не определен законодательством |
| Название рус.: | Альбом I. Технологическая часть, строительная часть, нестандартизированное оборудование |
| Дата добавления в базу: | 01.09.2013 |
| Дата актуализации: | 01.01.2021 |
| Дата введения: | 27.11.1981 |
| Дата окончания срока действия: | 30.06.2003 |
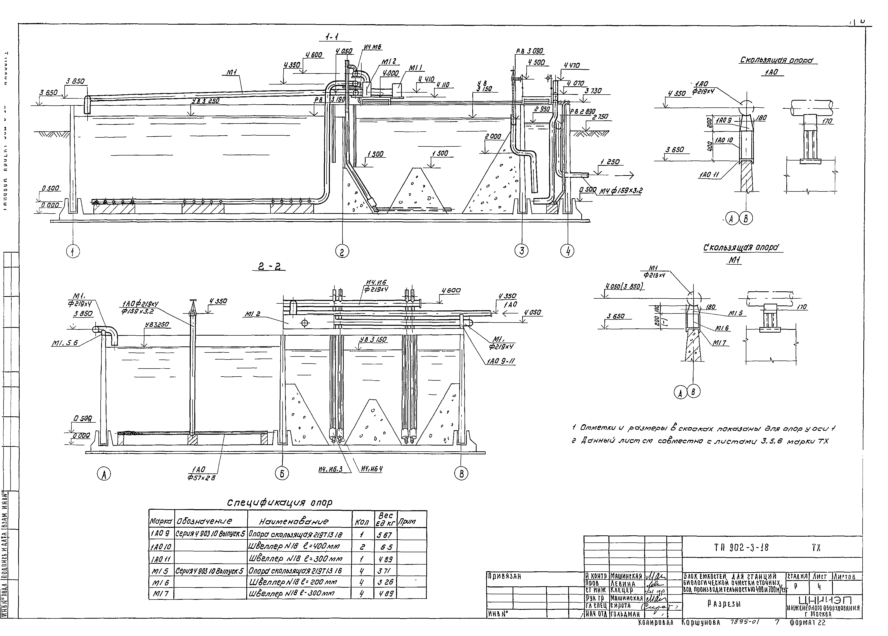
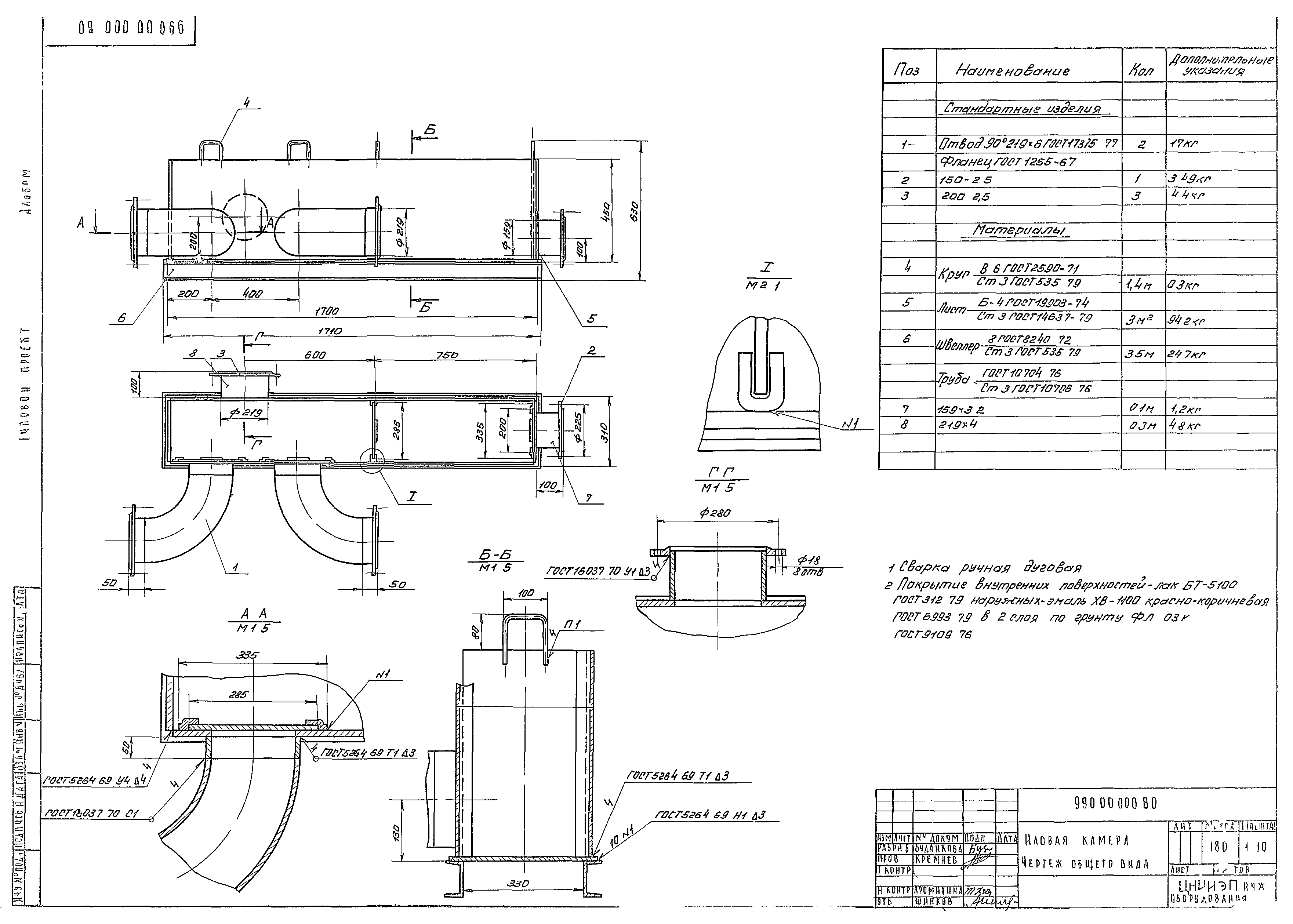
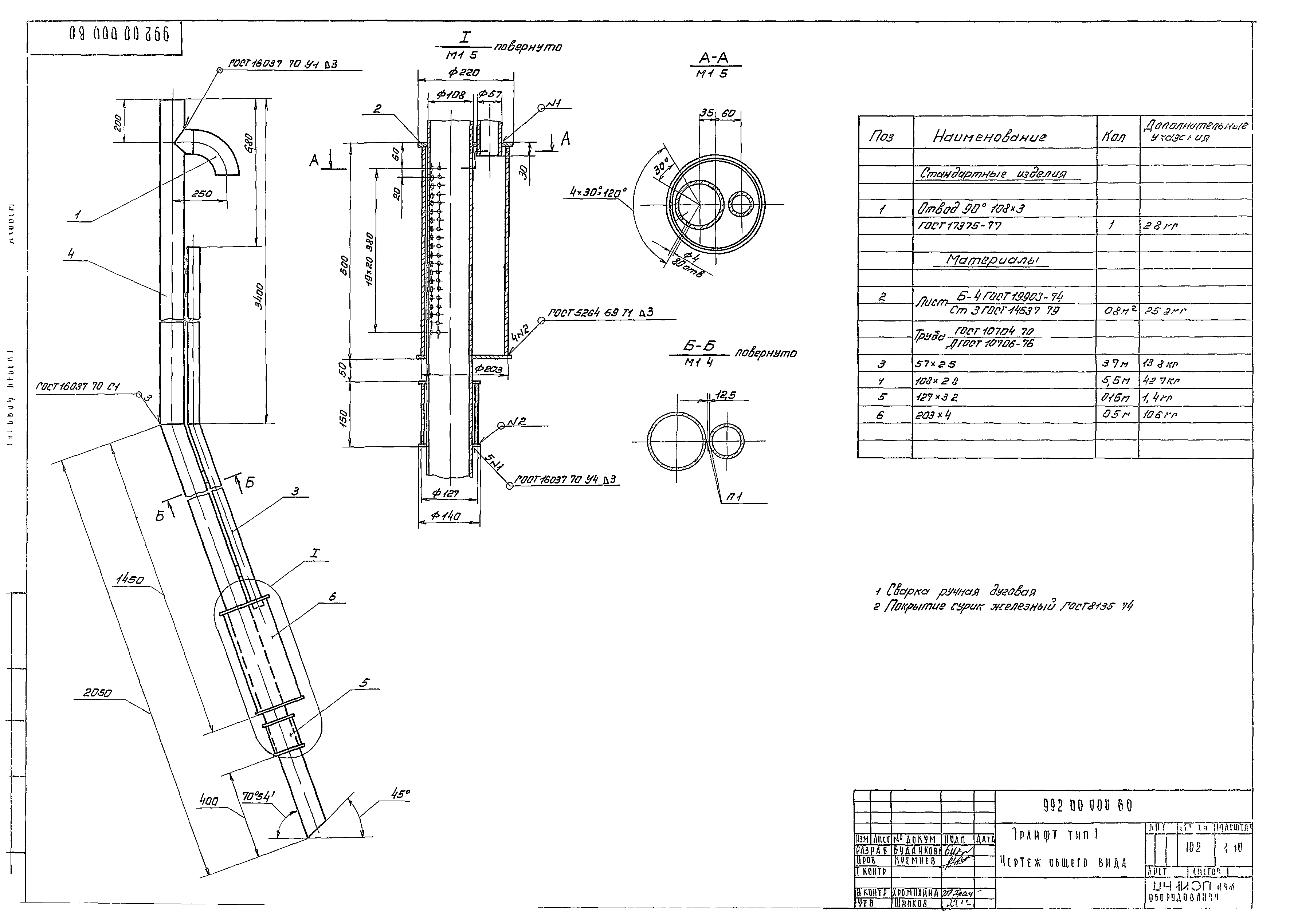
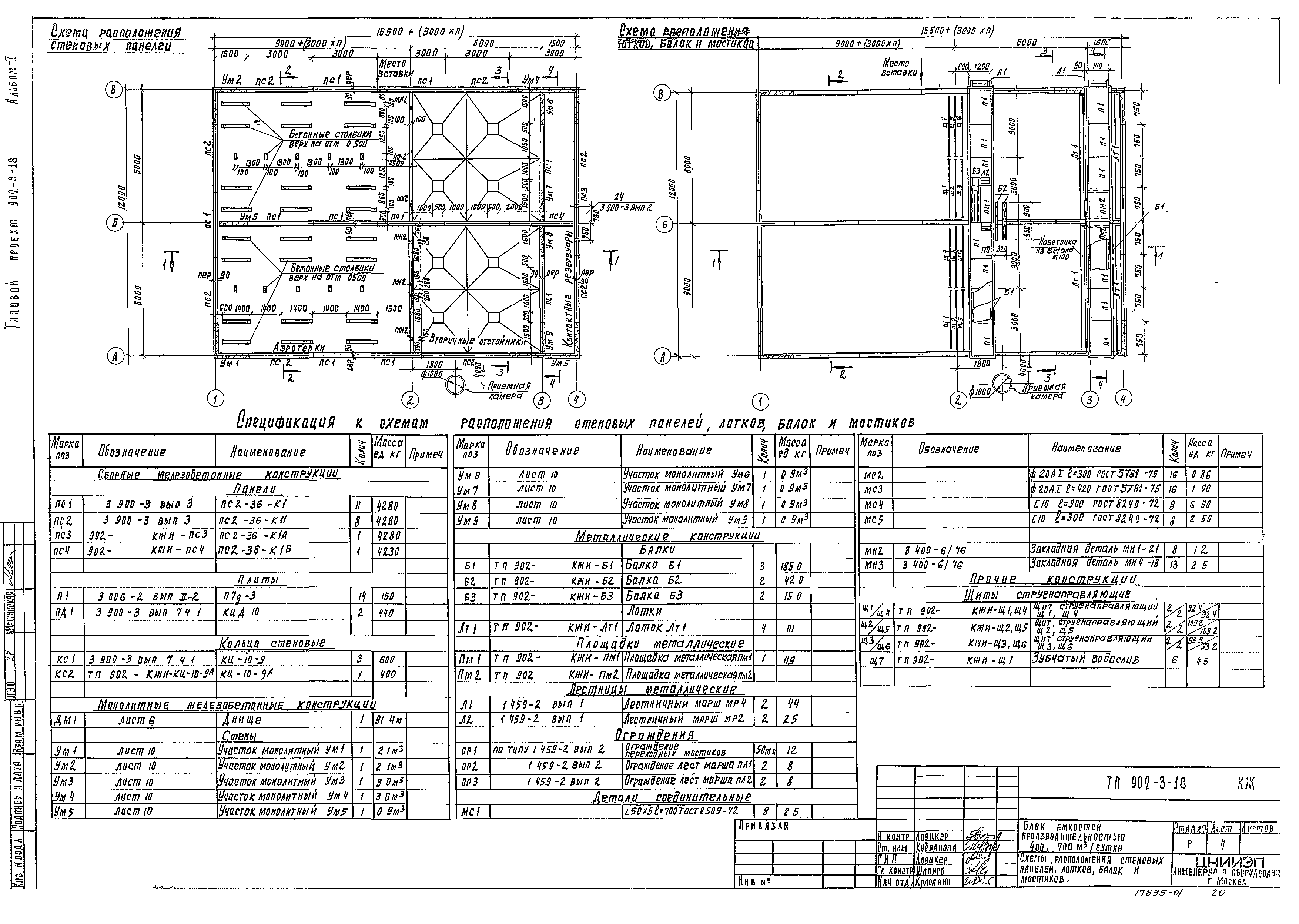
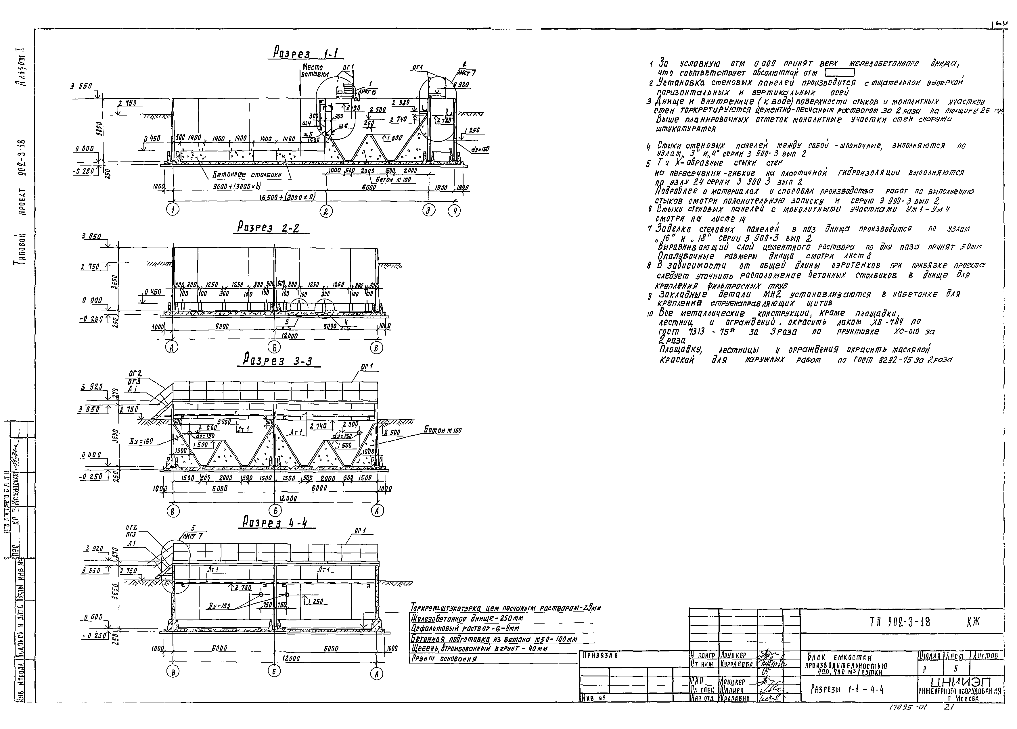
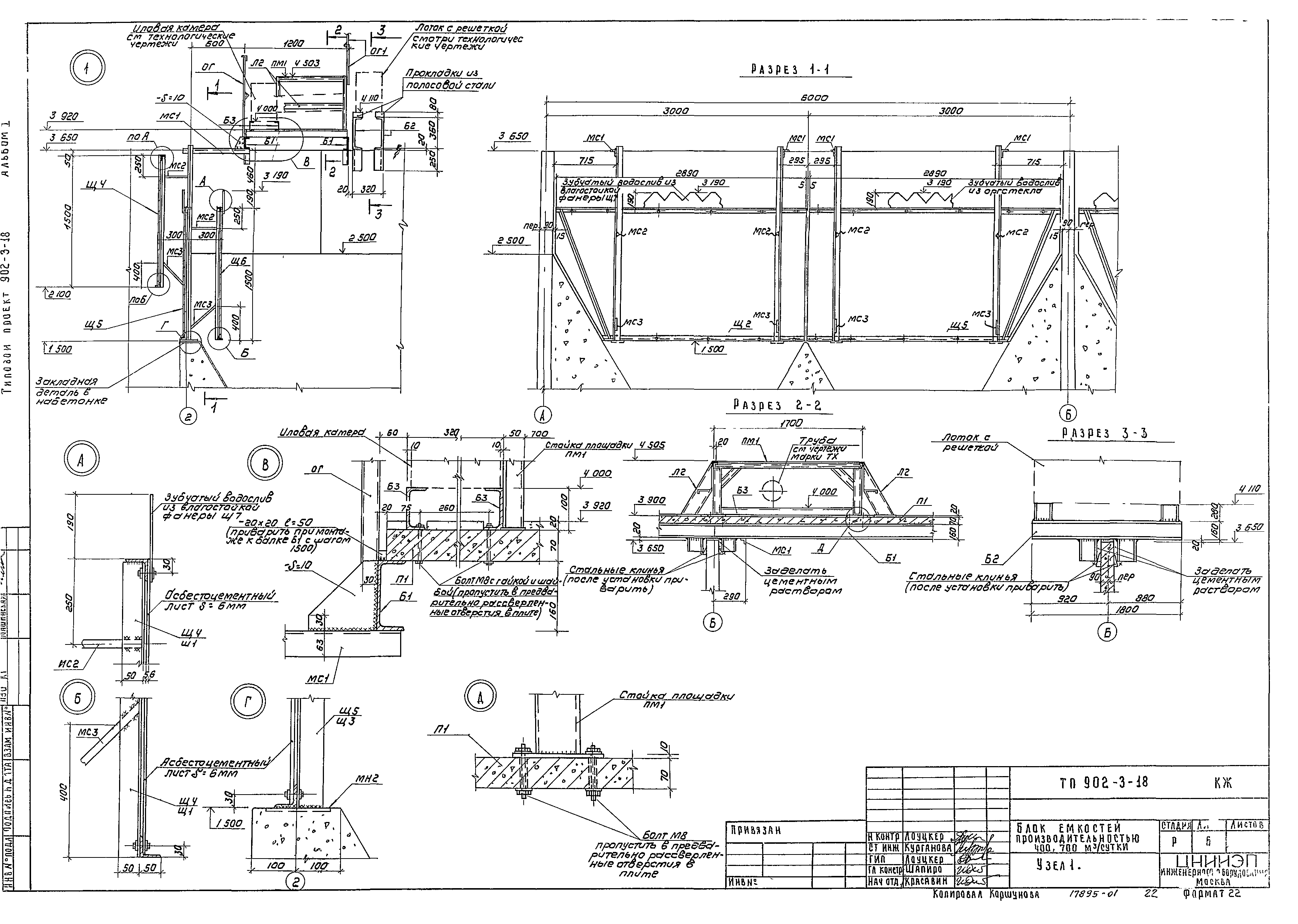
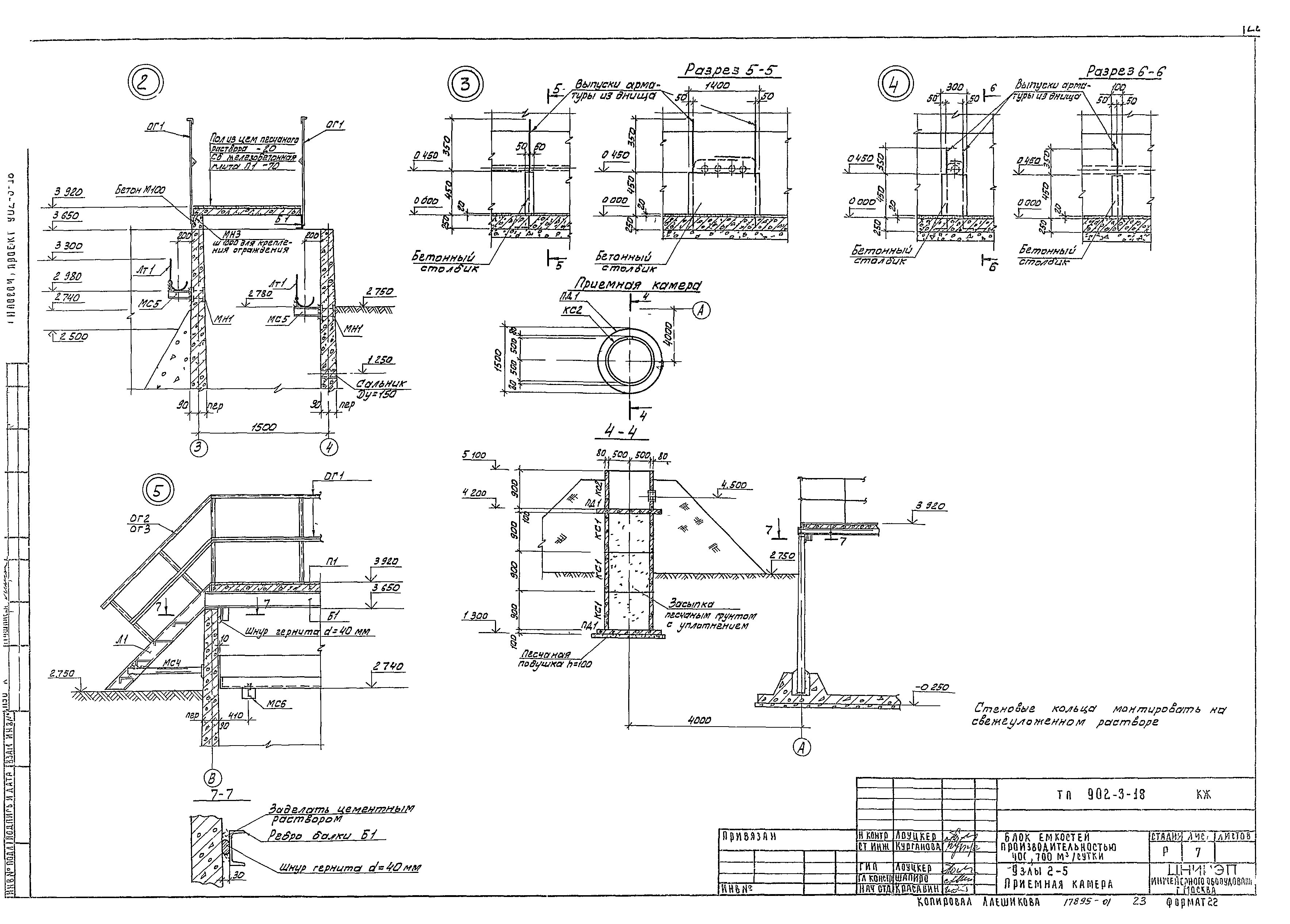
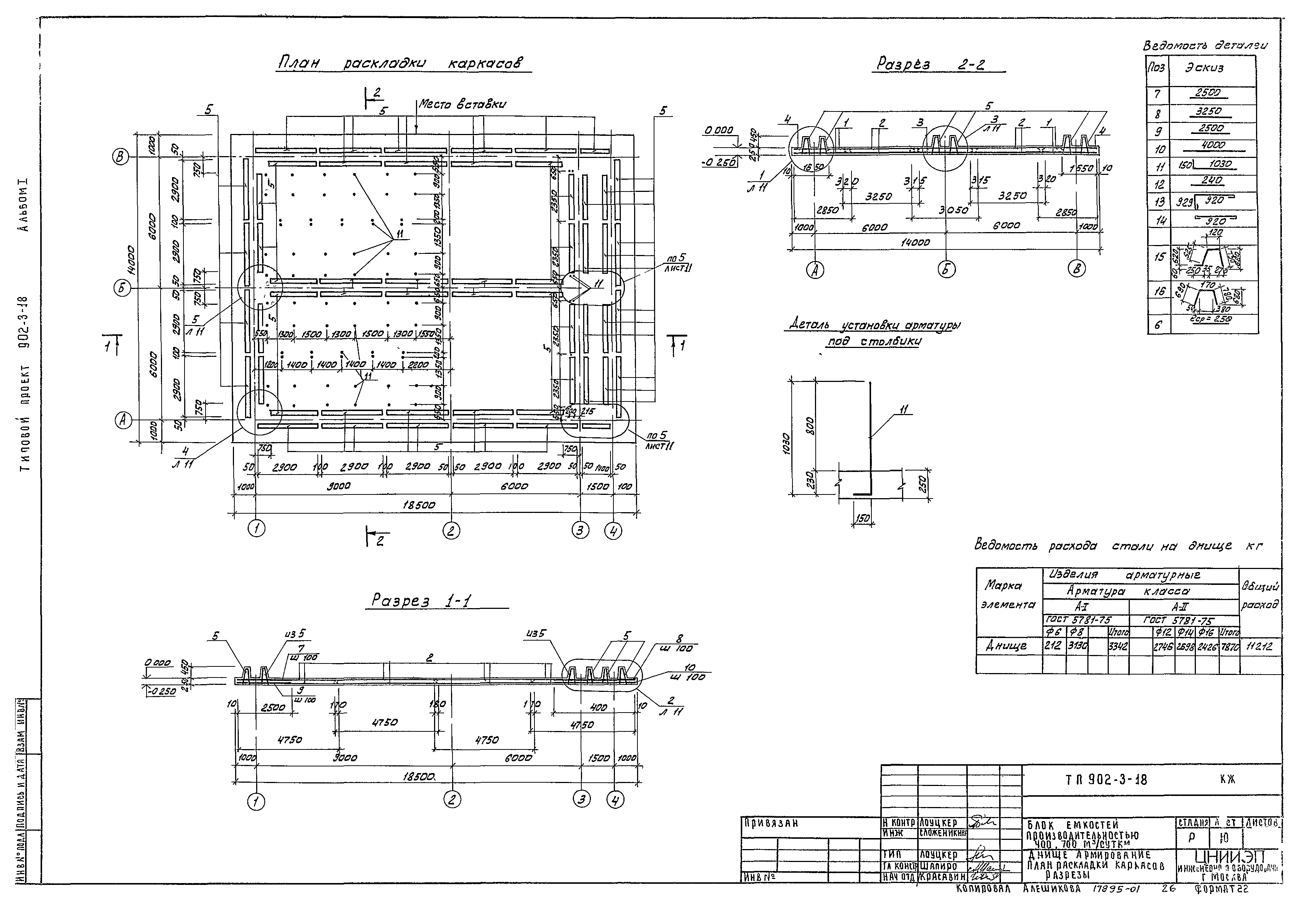
| Оглавление: | Содержание альбома Технологическая часть ТХ Общие данные План Разрезы Схемы трубопроводов Схема воздуховода Заказная спецификация на арматуру Заказная спецификация на нестандартизированное оборудование Заказная спецификация на пластмассовые трубы Нестандартизированное оборудование Иловая камера Лоток с решеткой и водосливом Эрлифт, тип 1 Эрлифт, тип 2 Строительная часть КЖ Общие данные Схемы расположения стеновых панелей, лотков, балок и мостиков Разрезы 1-1 - 4-4 Узел 1 Узел 2 - 5. Приемная камера Днище. Опалубочный чертеж Днище. Армирование. Планы раскладки верхних сеток. Планы раскладки нижних сеток Днище. Армирование. Планы раскладки каркасов. Разрезы Днище. Армирование. Узлы Монолитные участки стен УМ1 - УМ9. Опалубочный чертеж. Планы. Разрезы. Спецификация Монолитные участки стен УМ1 - УМ4. Армирование. Планы. Разрезы Монолитные участки стен УМ5 - УМ9. Армирование. Узлы Трехметровая вставка аэротенка |
| Разработан: | ЦНИИЭП инженерного оборудования |
| Утверждён: | 29.04.1981 Госгражданстрой (Gosgrazhdanstroy 141) |
































