Скачать Серия 3.300.9-4 Выпуск 2-1. Оборудование и мебель детских площадок (комплекты для выносных модулей теневых навесов). Изделия заводского изготовления. Рабочие чертежи

Дата актуализации: 01.01.2021

Серия 3.300.9-4

Выпуск 2-1. Оборудование и мебель детских площадок (комплекты для выносных модулей теневых навесов). Изделия заводского изготовления. Рабочие чертежи

Обозначение: Серия 3.300.9-4
Обозначение англ: Series 3.300.9-4
Статус:не определен законодательством
Название рус.:Выпуск 2-1. Оборудование и мебель детских площадок (комплекты для выносных модулей теневых навесов). Изделия заводского изготовления. Рабочие чертежи
Дата добавления в базу:01.09.2013
Дата актуализации:01.01.2021
Дата введения:01.12.1990
Дата окончания срока действия:30.06.2003
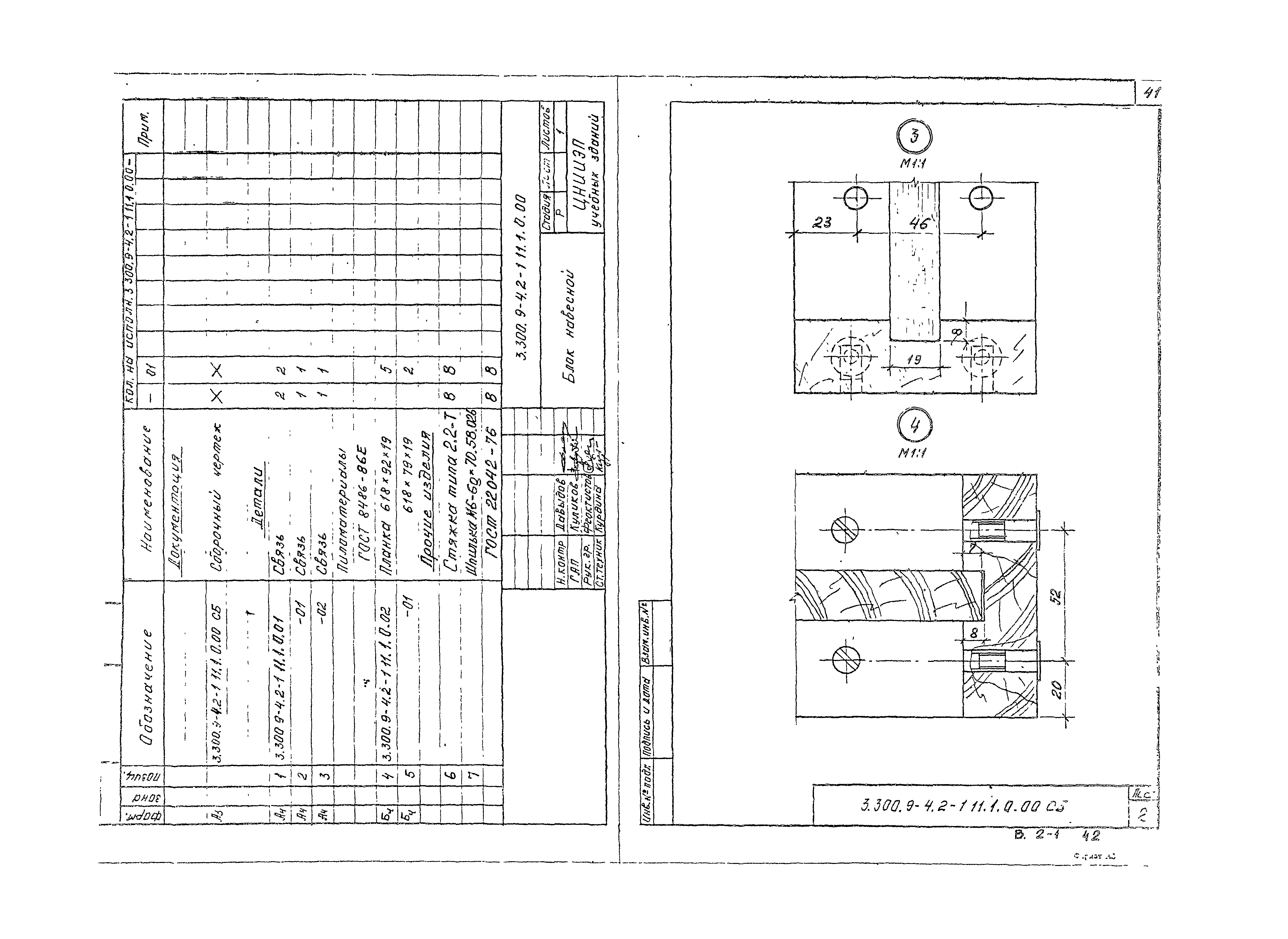
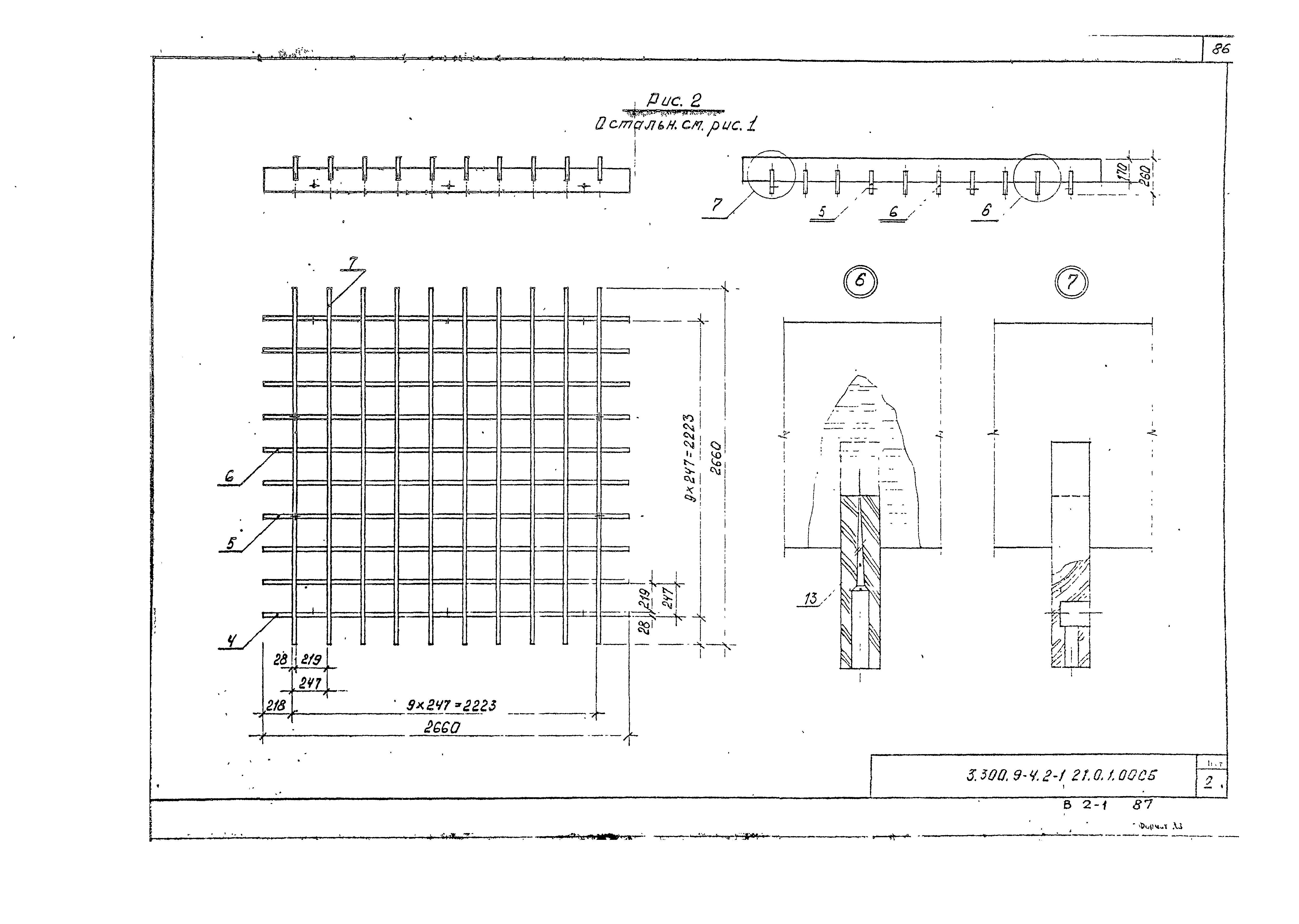
Область применения:Настоящий выпуск 2-1 предназначен для изготовления изделий в условиях специализированных предприятий (ДОКов, ДОЗов, фабрик) и заводов металлообработки.
Разработан: ЦНИИЭП учебных зданий Госкомархитектуры
Утверждён:27.02.1990 Госкомархитектура (36)
Серия 3.300.9-4Серия 3.300.9-4Серия 3.300.9-4Серия 3.300.9-4Серия 3.300.9-4Серия 3.300.9-4Серия 3.300.9-4Серия 3.300.9-4Серия 3.300.9-4Серия 3.300.9-4Серия 3.300.9-4Серия 3.300.9-4Серия 3.300.9-4Серия 3.300.9-4Серия 3.300.9-4Серия 3.300.9-4Серия 3.300.9-4Серия 3.300.9-4Серия 3.300.9-4Серия 3.300.9-4Серия 3.300.9-4Серия 3.300.9-4Серия 3.300.9-4Серия 3.300.9-4Серия 3.300.9-4Серия 3.300.9-4Серия 3.300.9-4Серия 3.300.9-4Серия 3.300.9-4Серия 3.300.9-4Серия 3.300.9-4Серия 3.300.9-4Серия 3.300.9-4Серия 3.300.9-4Серия 3.300.9-4Серия 3.300.9-4Серия 3.300.9-4Серия 3.300.9-4Серия 3.300.9-4Серия 3.300.9-4Серия 3.300.9-4Серия 3.300.9-4Серия 3.300.9-4Серия 3.300.9-4Серия 3.300.9-4Серия 3.300.9-4Серия 3.300.9-4Серия 3.300.9-4Серия 3.300.9-4Серия 3.300.9-4Серия 3.300.9-4Серия 3.300.9-4Серия 3.300.9-4Серия 3.300.9-4Серия 3.300.9-4Серия 3.300.9-4Серия 3.300.9-4Серия 3.300.9-4Серия 3.300.9-4Серия 3.300.9-4Серия 3.300.9-4Серия 3.300.9-4Серия 3.300.9-4Серия 3.300.9-4Серия 3.300.9-4Серия 3.300.9-4Серия 3.300.9-4Серия 3.300.9-4Серия 3.300.9-4Серия 3.300.9-4Серия 3.300.9-4Серия 3.300.9-4Серия 3.300.9-4Серия 3.300.9-4Серия 3.300.9-4Серия 3.300.9-4Серия 3.300.9-4Серия 3.300.9-4Серия 3.300.9-4Серия 3.300.9-4Серия 3.300.9-4Серия 3.300.9-4Серия 3.300.9-4Серия 3.300.9-4Серия 3.300.9-4Серия 3.300.9-4Серия 3.300.9-4Серия 3.300.9-4Серия 3.300.9-4Серия 3.300.9-4Серия 3.300.9-4Серия 3.300.9-4Серия 3.300.9-4Серия 3.300.9-4Серия 3.300.9-4Серия 3.300.9-4Серия 3.300.9-4Серия 3.300.9-4Серия 3.300.9-4Серия 3.300.9-4Серия 3.300.9-4Серия 3.300.9-4Серия 3.300.9-4Серия 3.300.9-4