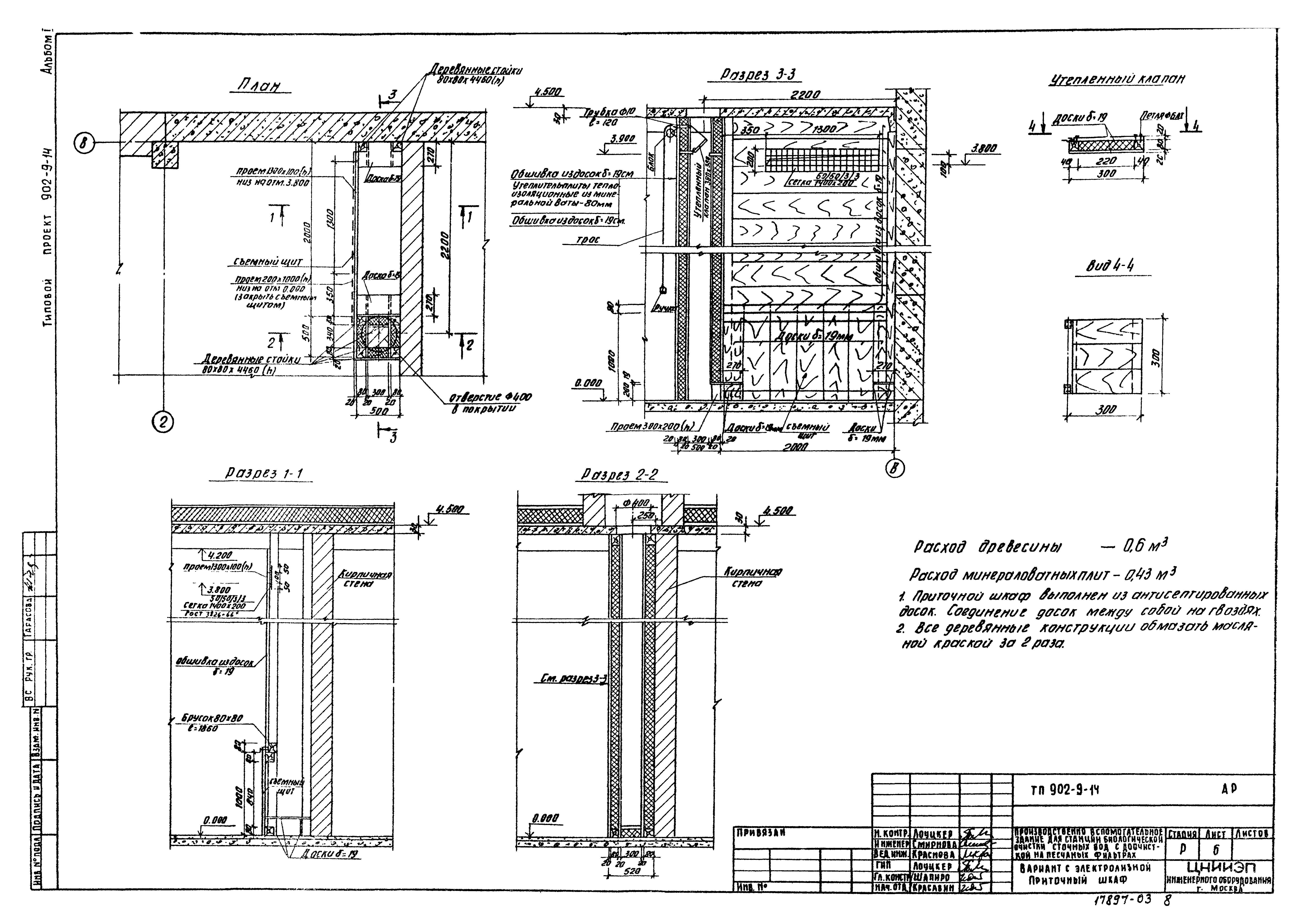
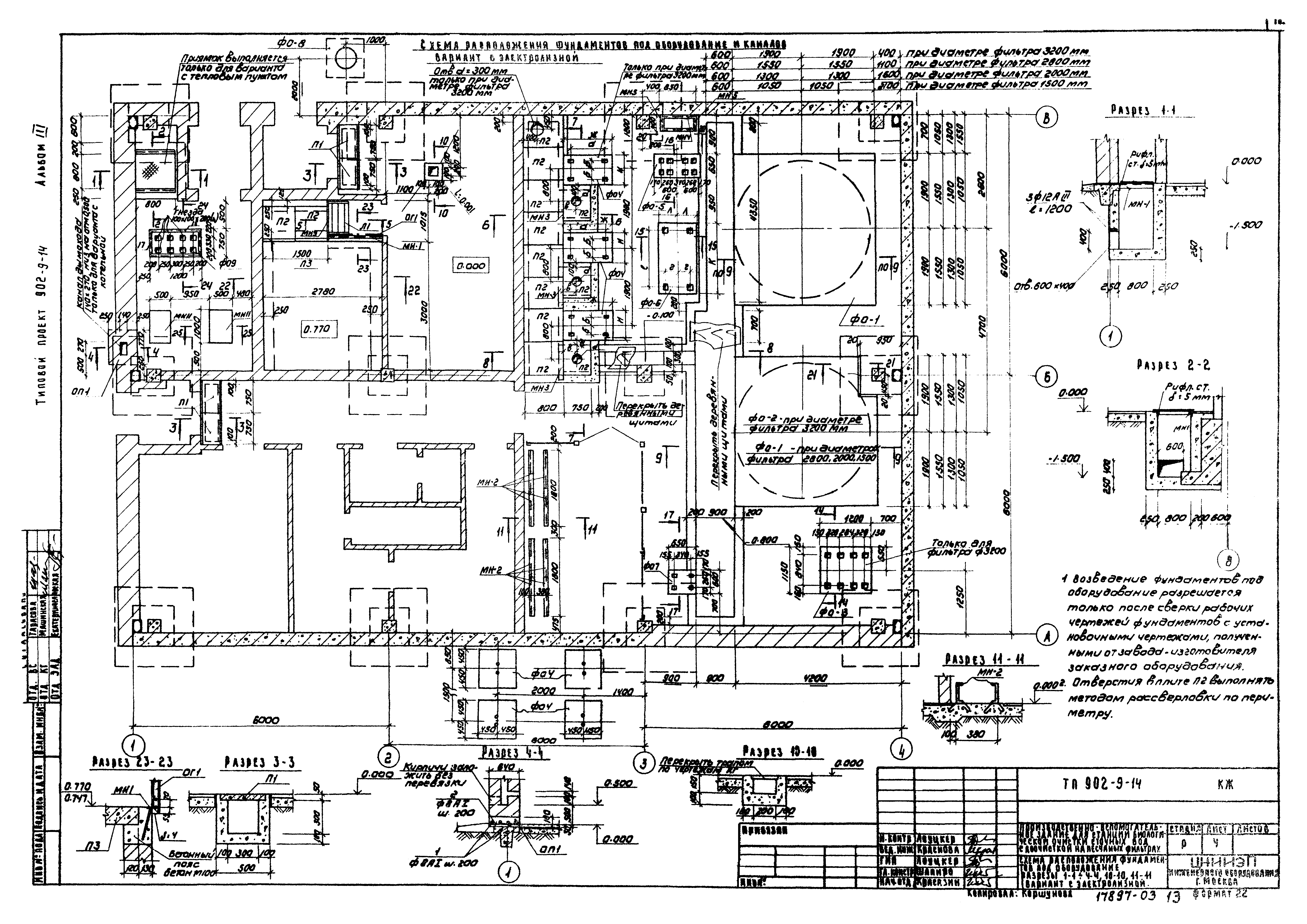
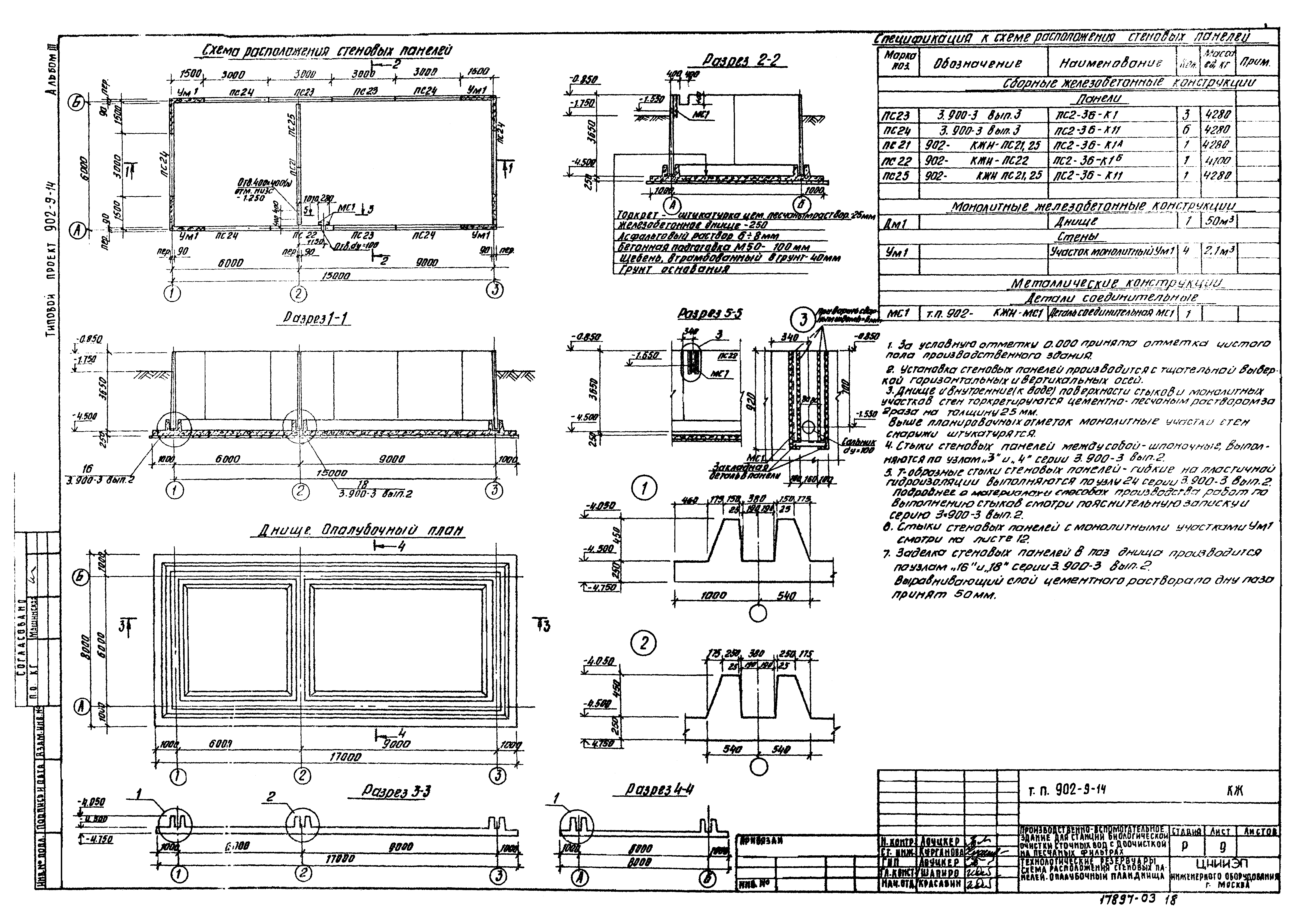
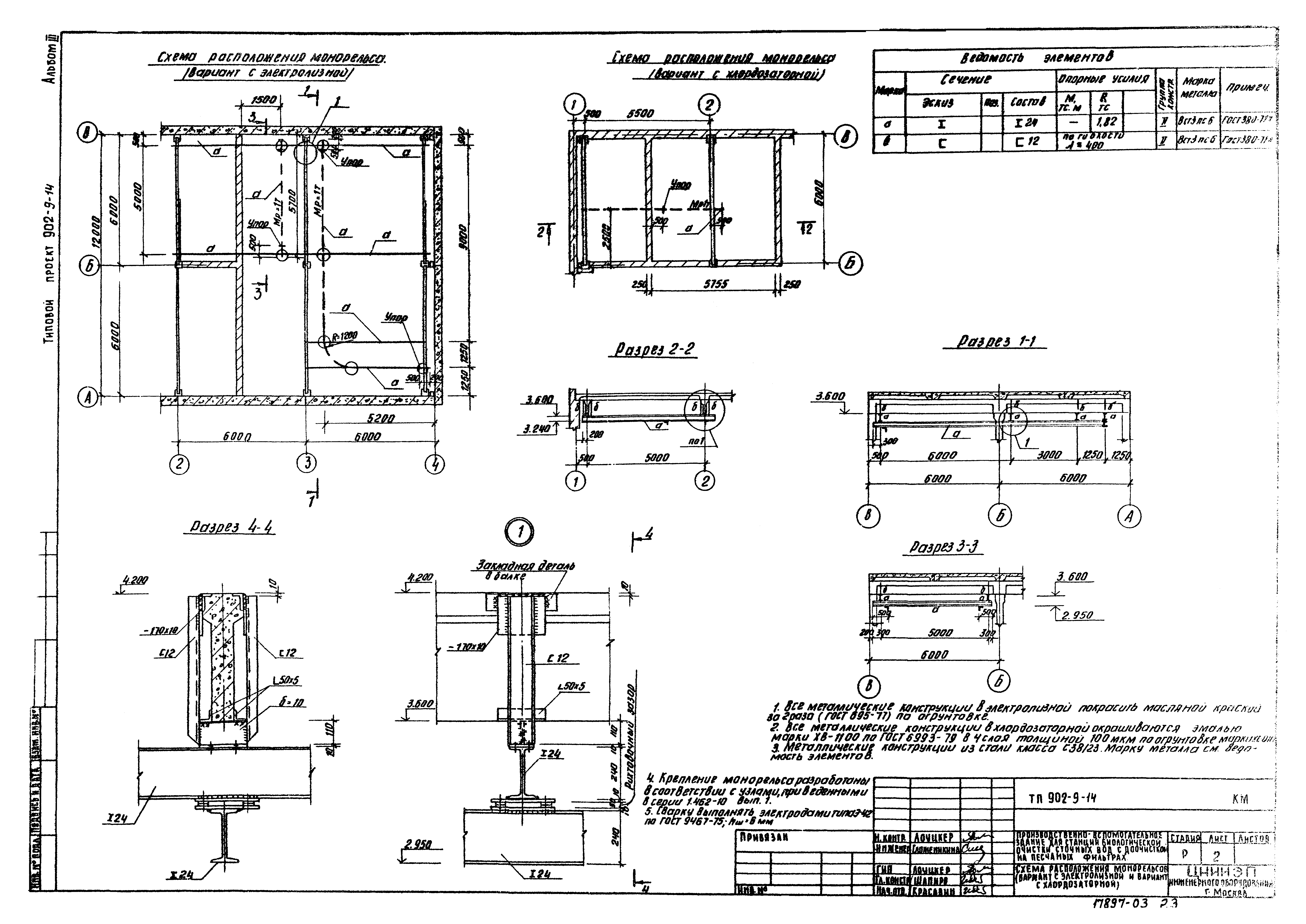
Скачать Типовой проект 902-9-14 Альбом III. Архитектурно-строительная частьДата актуализации: 01.01.2021
|
| Обозначение: | Типовой проект 902-9-14 |
| Обозначение англ: | 902-9-14 |
| Статус: | не определен законодательством |
| Название рус.: | Альбом III. Архитектурно-строительная часть |
| Дата добавления в базу: | 01.09.2013 |
| Дата актуализации: | 01.01.2021 |
| Дата введения: | 27.11.1981 |
| Дата окончания срока действия: | 30.06.2003 |
| Разработан: | ЦНИИЭП инженерного оборудования |
| Утверждён: | 29.04.1981 Госгражданстрой (Gosgrazhdanstroy 141) |
| Издан: | ЦИТП Госстроя СССР (CITP, Gosstroy (USSR) 1982 г. ) |


























