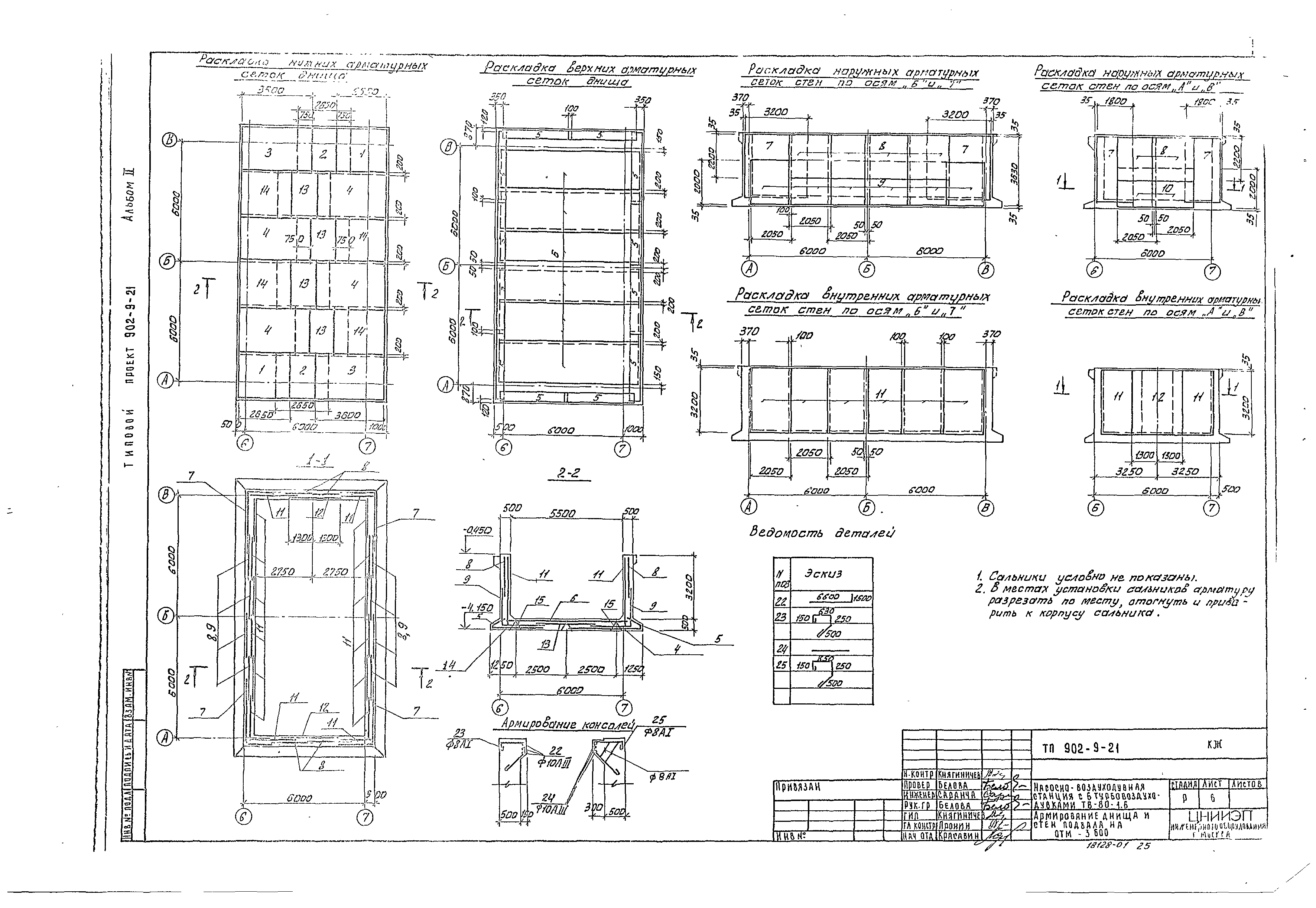
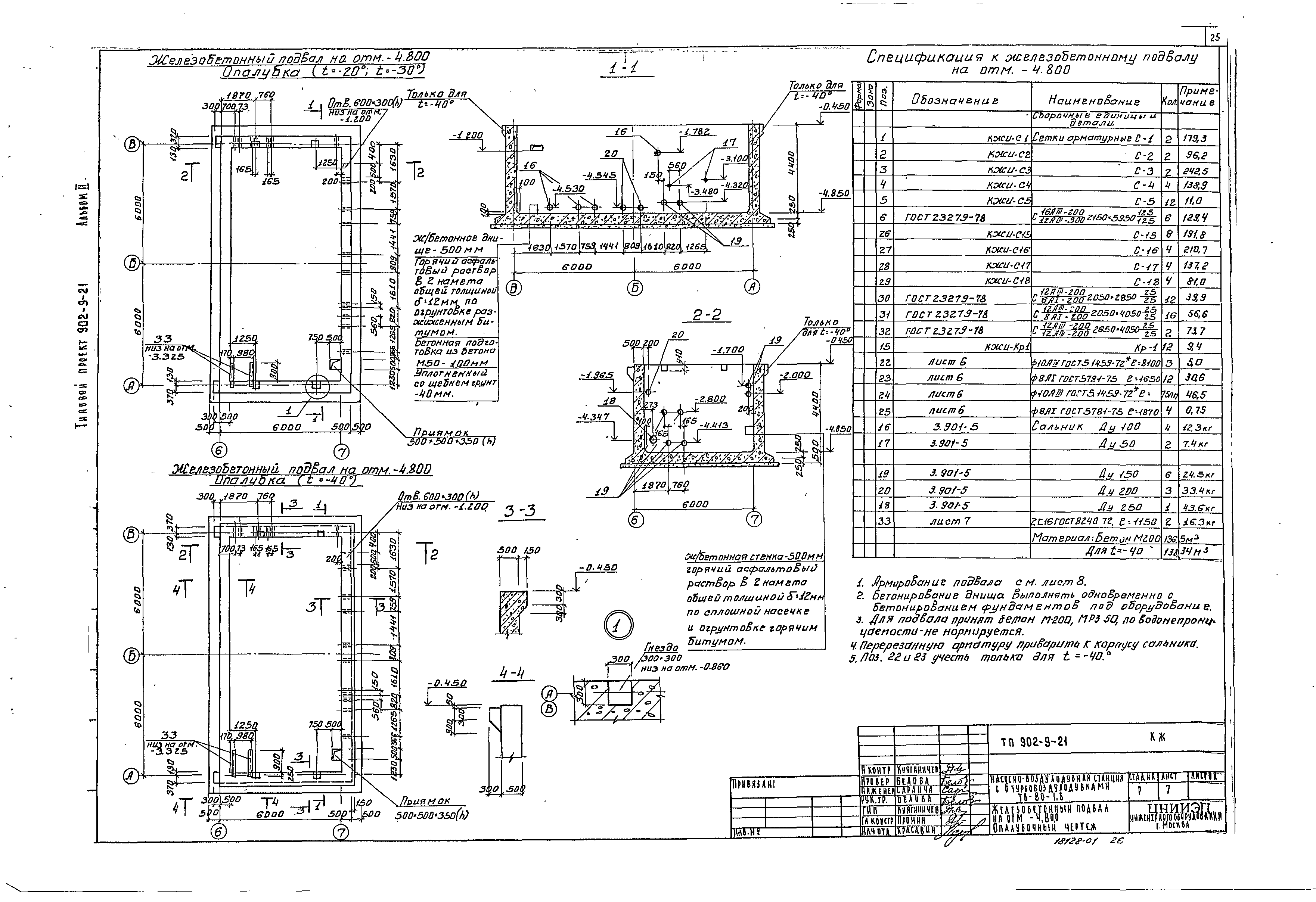
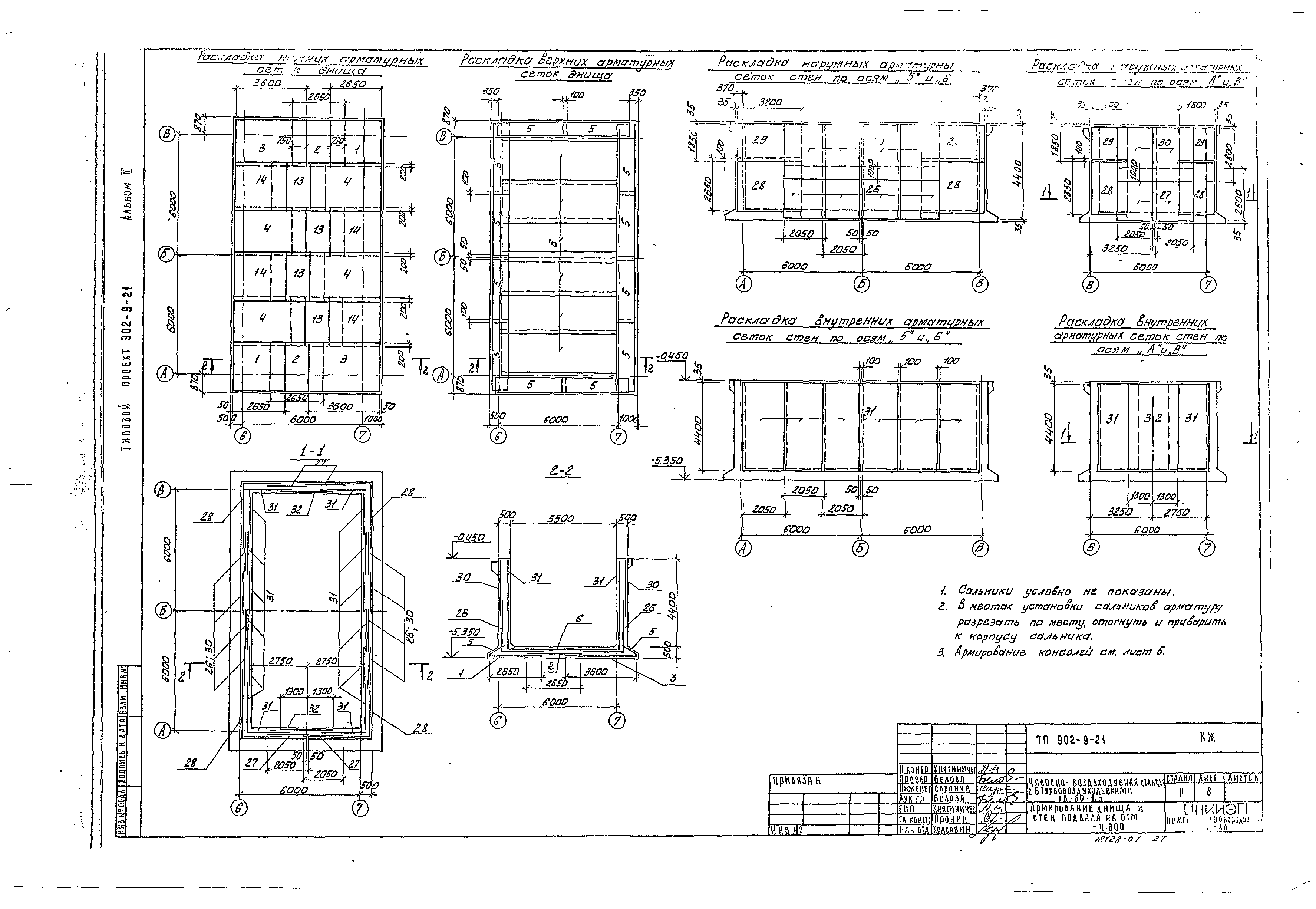
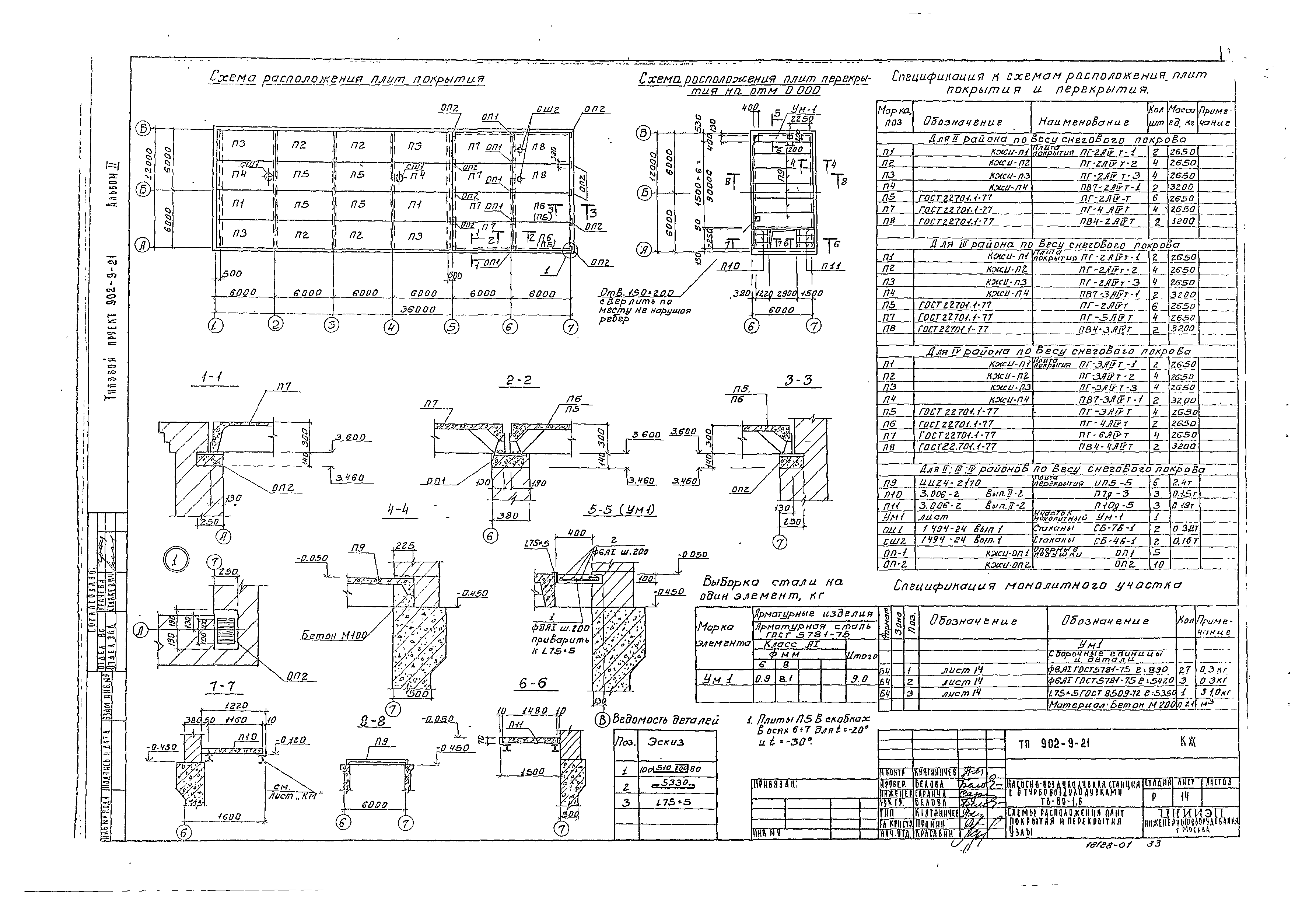
Скачать Типовой проект 902-9-21 Альбом II. Технологическая, санитарно-техническая и архитектурно-строительная частиДата актуализации: 01.01.2021 Типовой проект 902-9-21
Альбом II. Технологическая, санитарно-техническая и архитектурно-строительная части| Обозначение: | Типовой проект 902-9-21 | | Обозначение англ: | 902-9-21 | | Статус: | не определен законодательством | | Название рус.: | Альбом II. Технологическая, санитарно-техническая и архитектурно-строительная части | | Дата добавления в базу: | 01.09.2013 | | Дата актуализации: | 01.01.2021 | | Дата введения: | 24.03.1982 | | Дата окончания срока действия: | 30.06.2003 | | Разработан: | ЦНИИЭП инженерного оборудования
| | Утверждён: | 22.07.1974 Госгражданстрой (Gosgrazhdanstroy 164)
|
                                       
|