Скачать Типовой проект 902-9-21 Альбом IV. Электротехническая часть. Чертежи монтажной зоны и заготовительного участкаДата актуализации: 01.01.2021
|
| Обозначение: | Типовой проект 902-9-21 |
| Обозначение англ: | 902-9-21 |
| Статус: | не определен законодательством |
| Название рус.: | Альбом IV. Электротехническая часть. Чертежи монтажной зоны и заготовительного участка |
| Дата добавления в базу: | 01.09.2013 |
| Дата актуализации: | 01.01.2021 |
| Дата введения: | 24.03.1982 |
| Дата окончания срока действия: | 30.06.2003 |
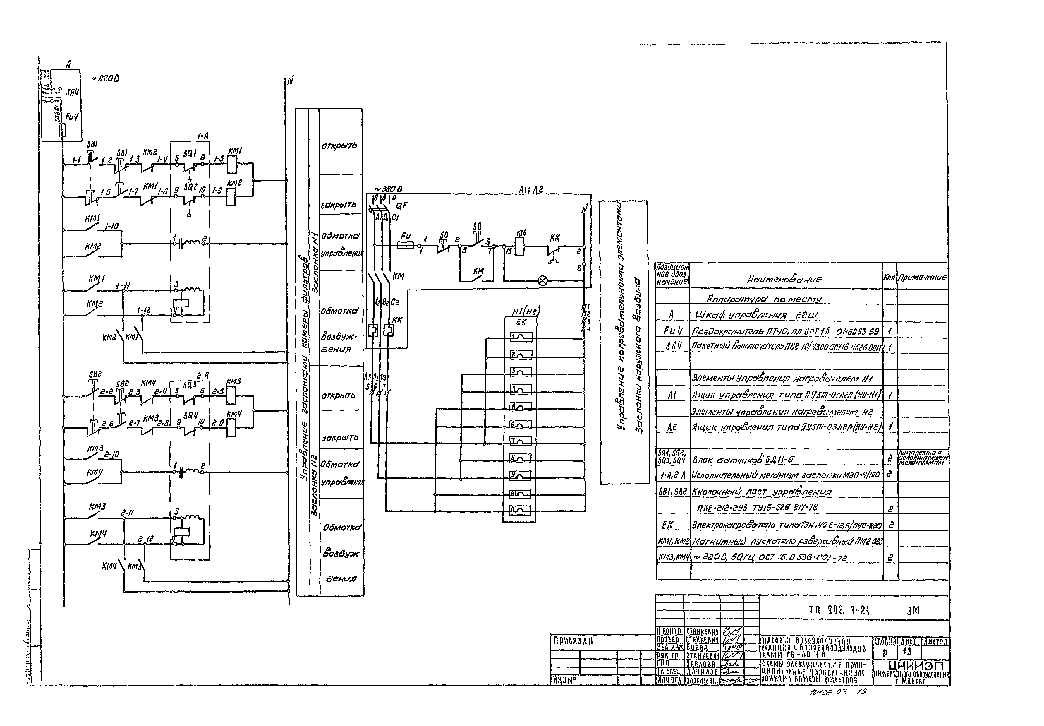
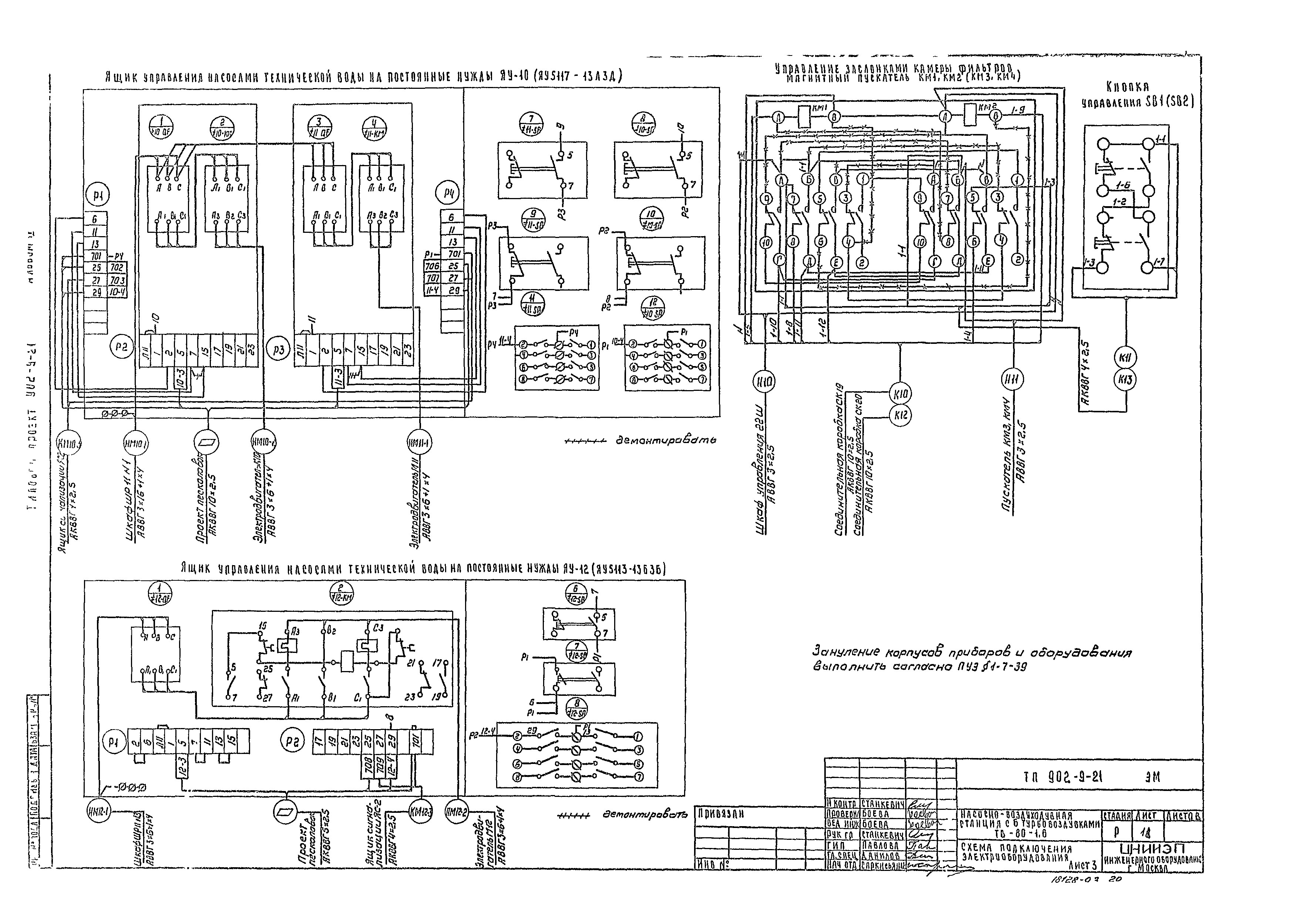
| Оглавление: | Общие данные Ведомость электрооборудования и материалов (начало) Ведомость электрооборудования и материалов (продолжение) Ведомость электрооборудования и материалов (окончание) 2КТП 1000 Схема принципиальная электрическая 0,4 кВ Схема электрическая принципиальная питания электрооборудования. Лист 1 Схема электрическая принципиальная питания электрооборудования. Лист 2 Схемы электрические принципиальные управления турбовоздуходувкой. Лист 1 Схемы электрические принципиальные управления турбовоздуходувкой. Лист 2 Схемы электрические принципиальные управления насосами технической воды на гидосмыв, на постоянные нужды Схемы электрические принципиальные управления насосами неуплотненого избыточного ила, дренажными насосами, насосами бытовой канализации Схемы электрические принципиальные управления заслонками камеры фильтров Схема электрическая принципиальная аварийной сигнализации. Лист 1 Схема электрическая принципиальная аварийной сигнализации. Лист 2 Схема подключения электрооборудования. Лист 1 Схема подключения электрооборудования. Лист 2 Схема подключения электрооборудования. Лист 3 Схема подключения электрооборудования. Лист 4 Кабельный журнал. Лист 1 Кабельный журнал. Лист 2 Кабельный журнал. Лист 3 Кабельный журнал. Лист 4 Размещение электрооборудования и прокладка кабеля. План на отм 0,000 Размещение электрооборудования и прокладка кабеля. План на отм -4,800 (-3,600) и 0,000 Размещение электрооборудования и прокладка кабеля. Спецификация 2КТП-1000. Установка электрооборудования. План и разрез 2КТП-1000. Заземление. План Электрическое освещение. План на отм. 0,000, - 4,800 Опросный лист для заказа 2КТП 630 Хмельницкого завода трансформаторных подстанций |
| Разработан: | ЦНИИЭП инженерного оборудования |
| Утверждён: | 22.07.1974 Госгражданстрой (Gosgrazhdanstroy 164) |


































