Скачать Серия 3.407.1-143 Выпуск 8. Стальные конструкции опор. Рабочие чертежиДата актуализации: 01.01.2021
|
| Обозначение: | Серия 3.407.1-143 |
| Обозначение англ: | Series 3.407.1-143 |
| Статус: | не определен законодательством |
| Название рус.: | Выпуск 8. Стальные конструкции опор. Рабочие чертежи |
| Дата добавления в базу: | 01.09.2013 |
| Дата актуализации: | 01.01.2021 |
| Дата введения: | 01.07.1989 |
| Дата окончания срока действия: | 30.06.2003 |
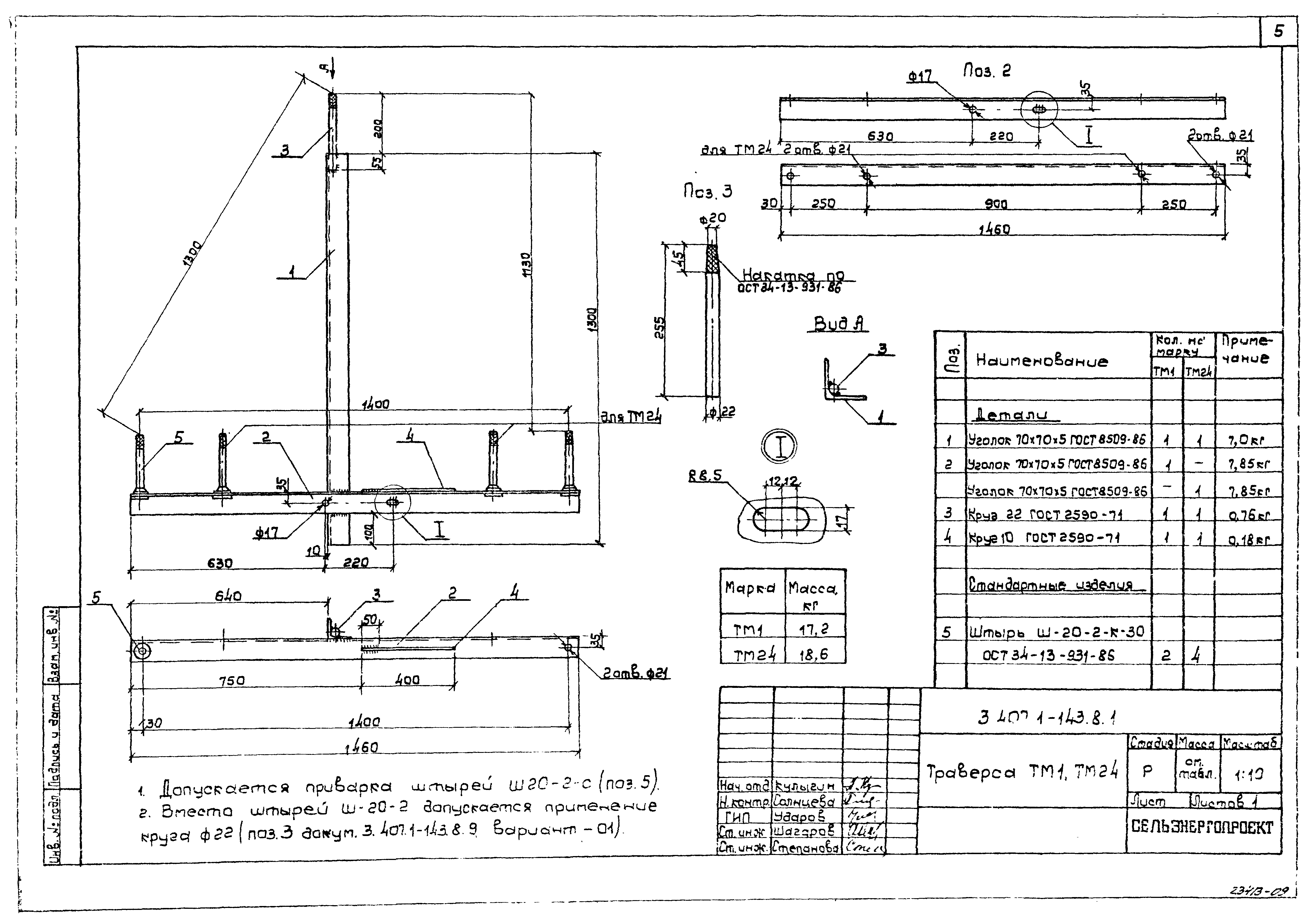
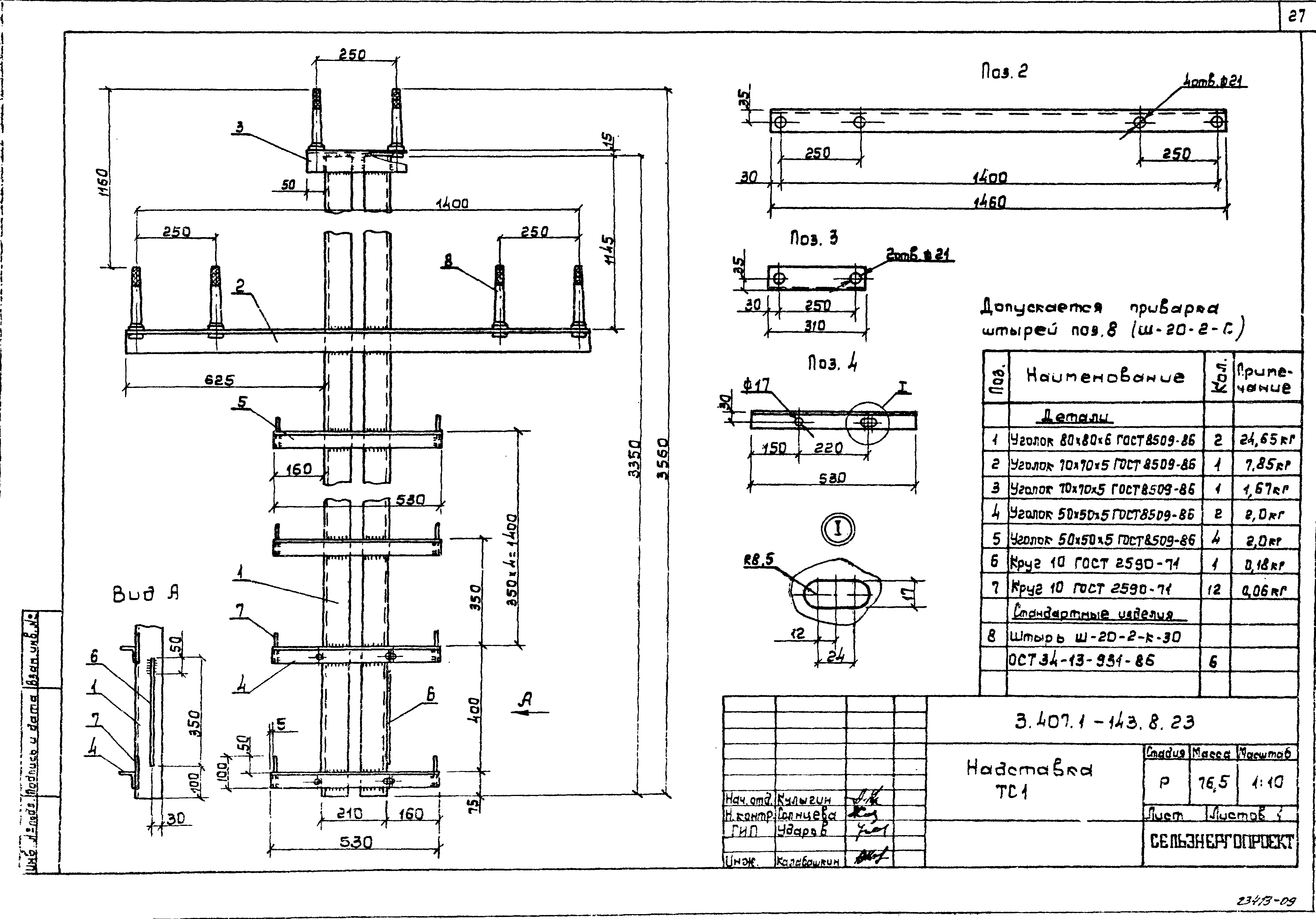
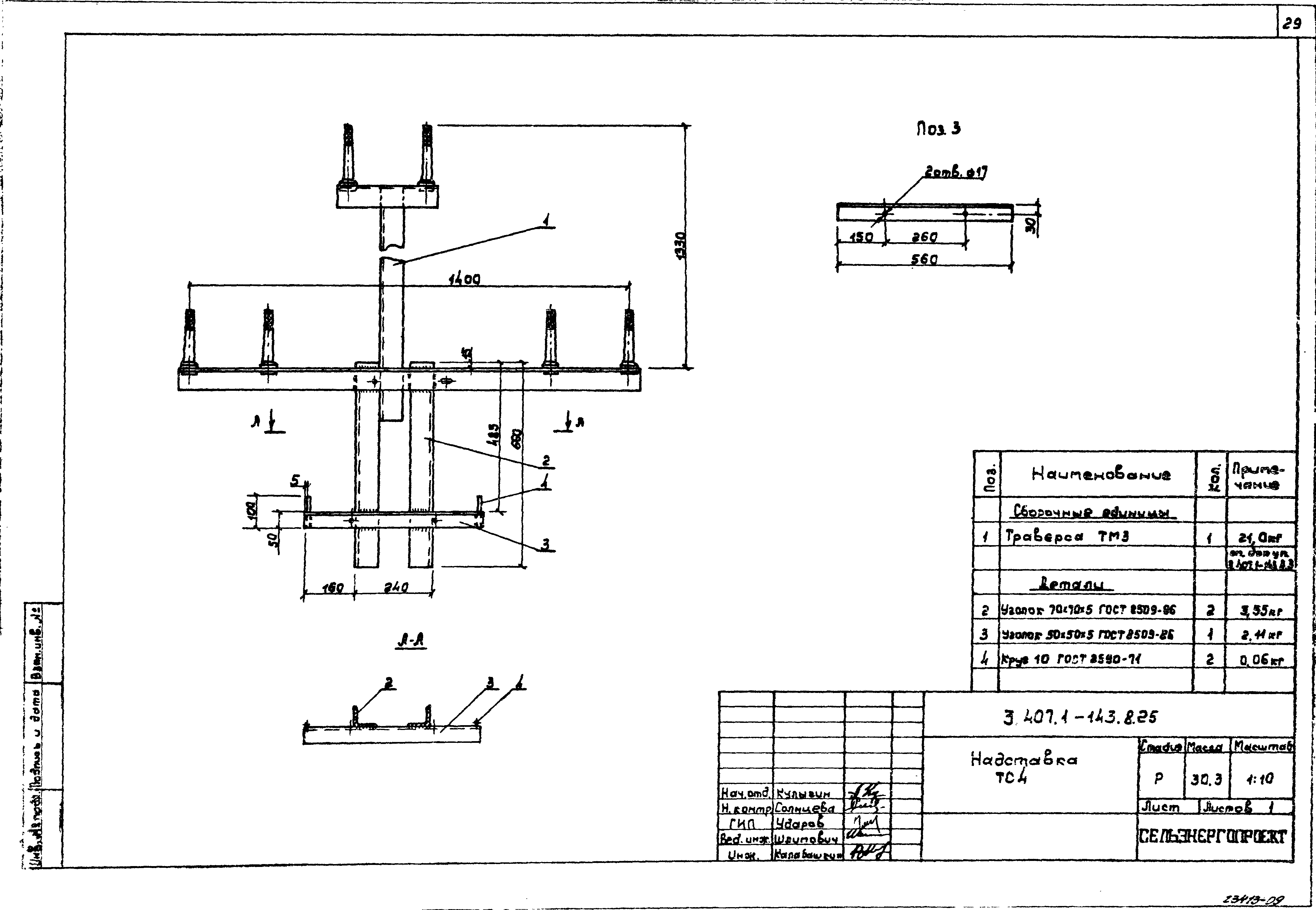
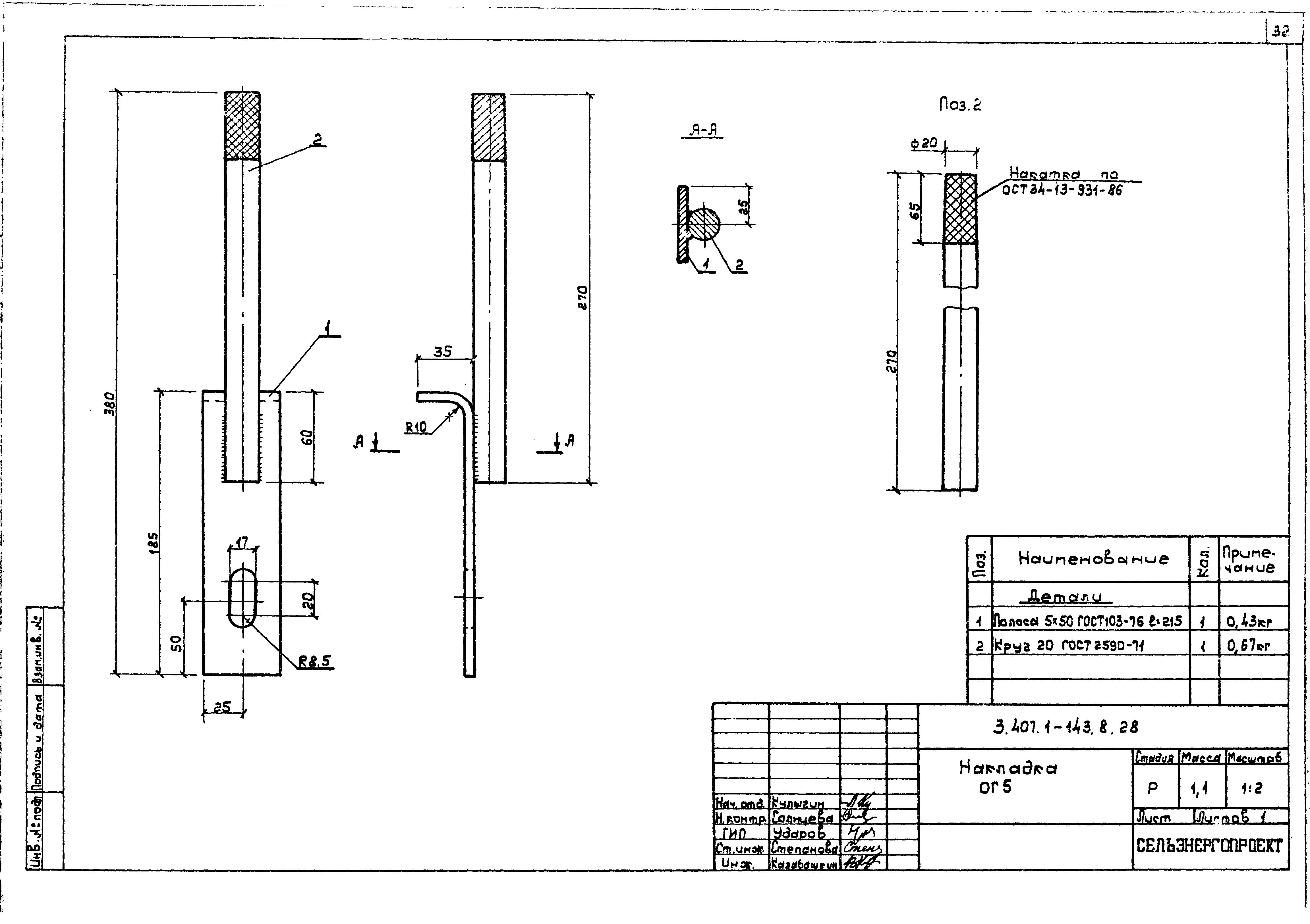
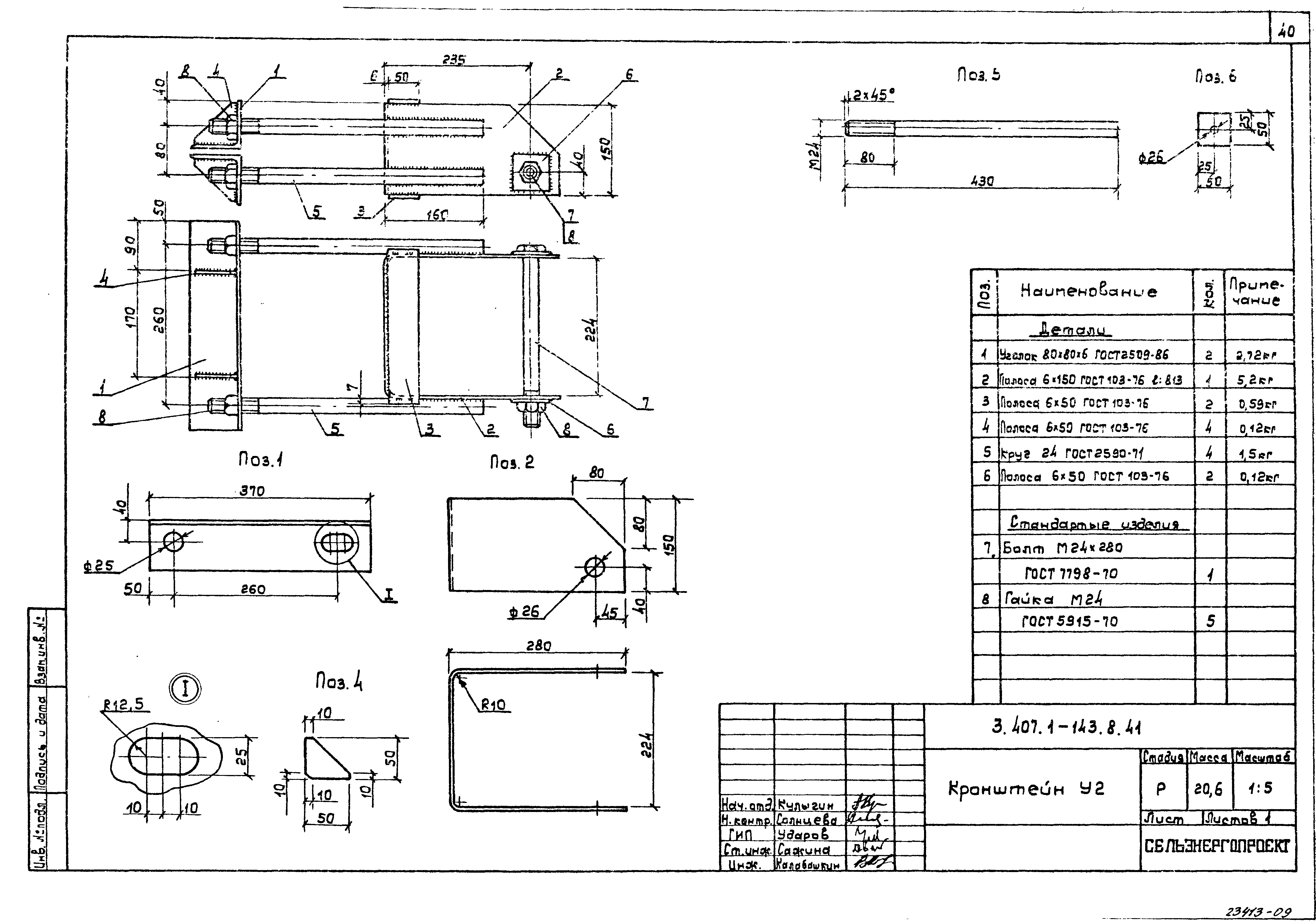
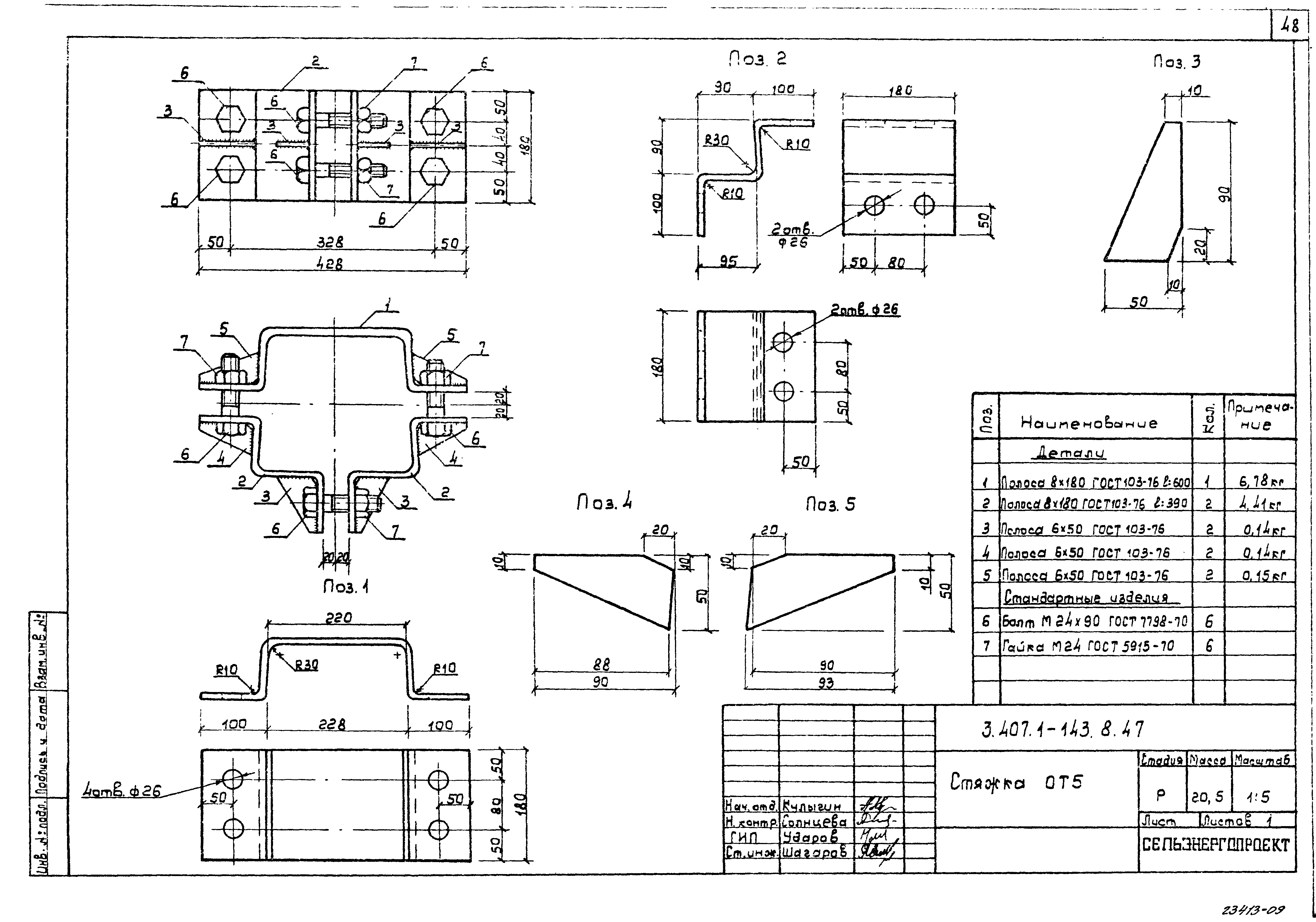
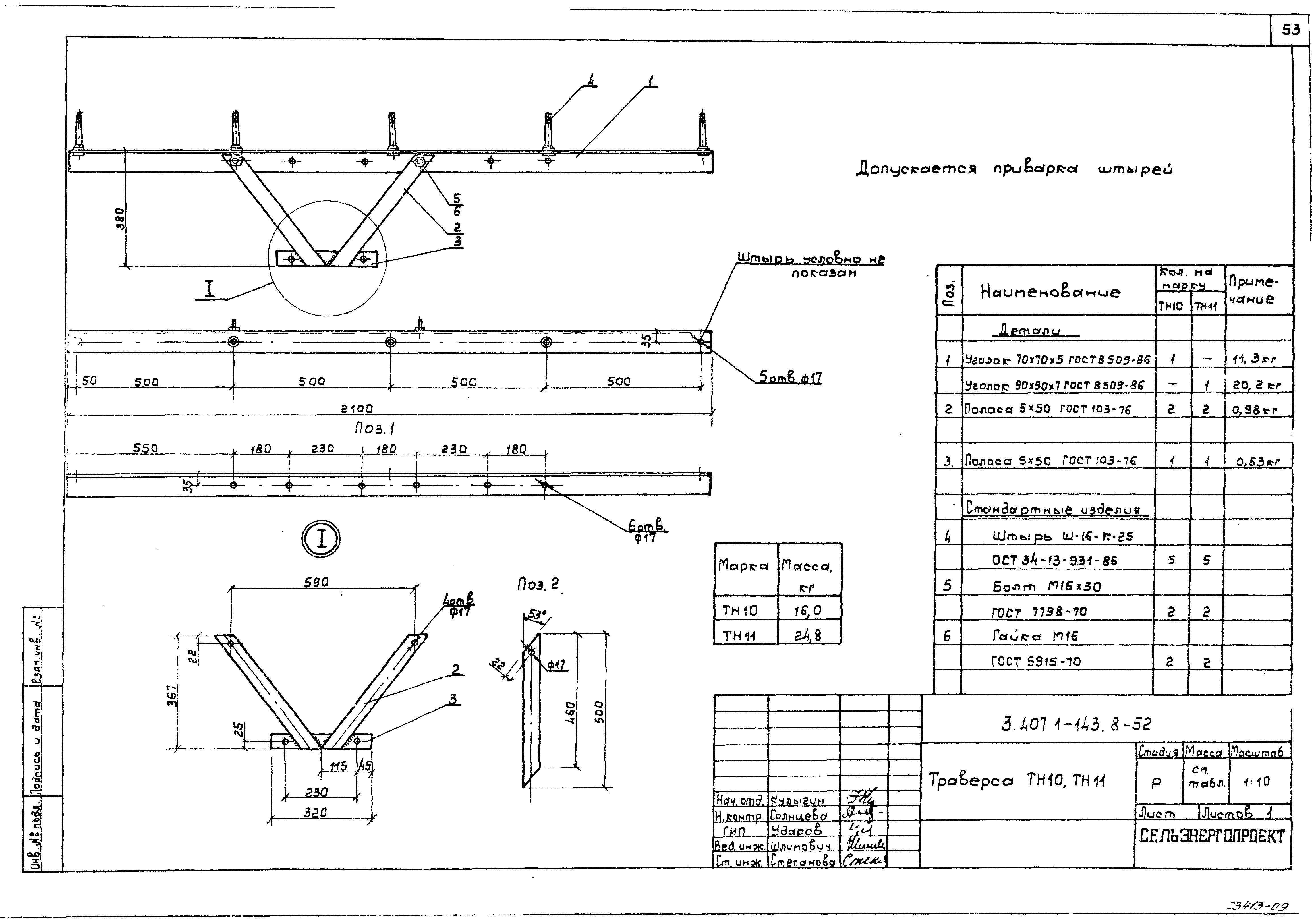
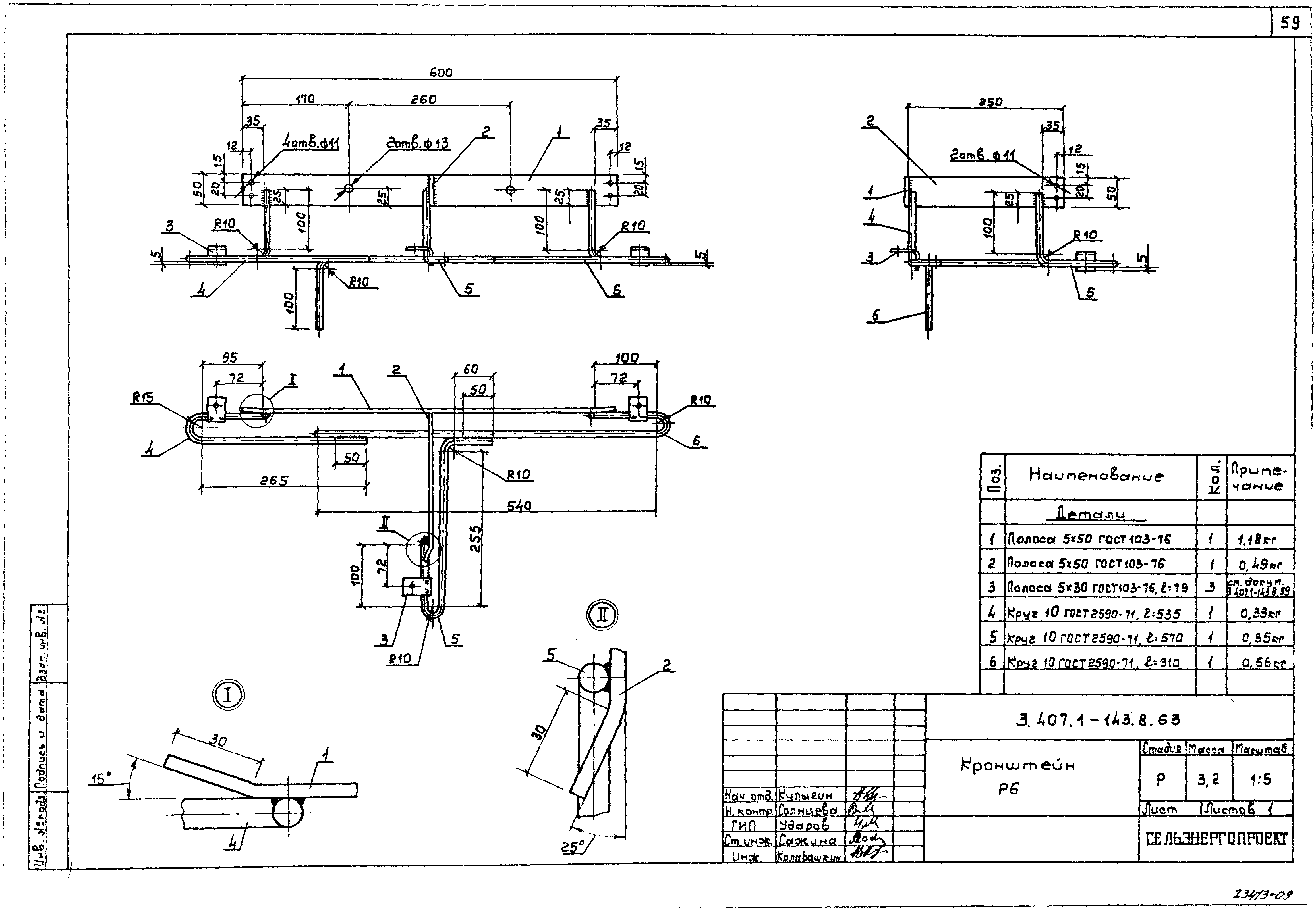
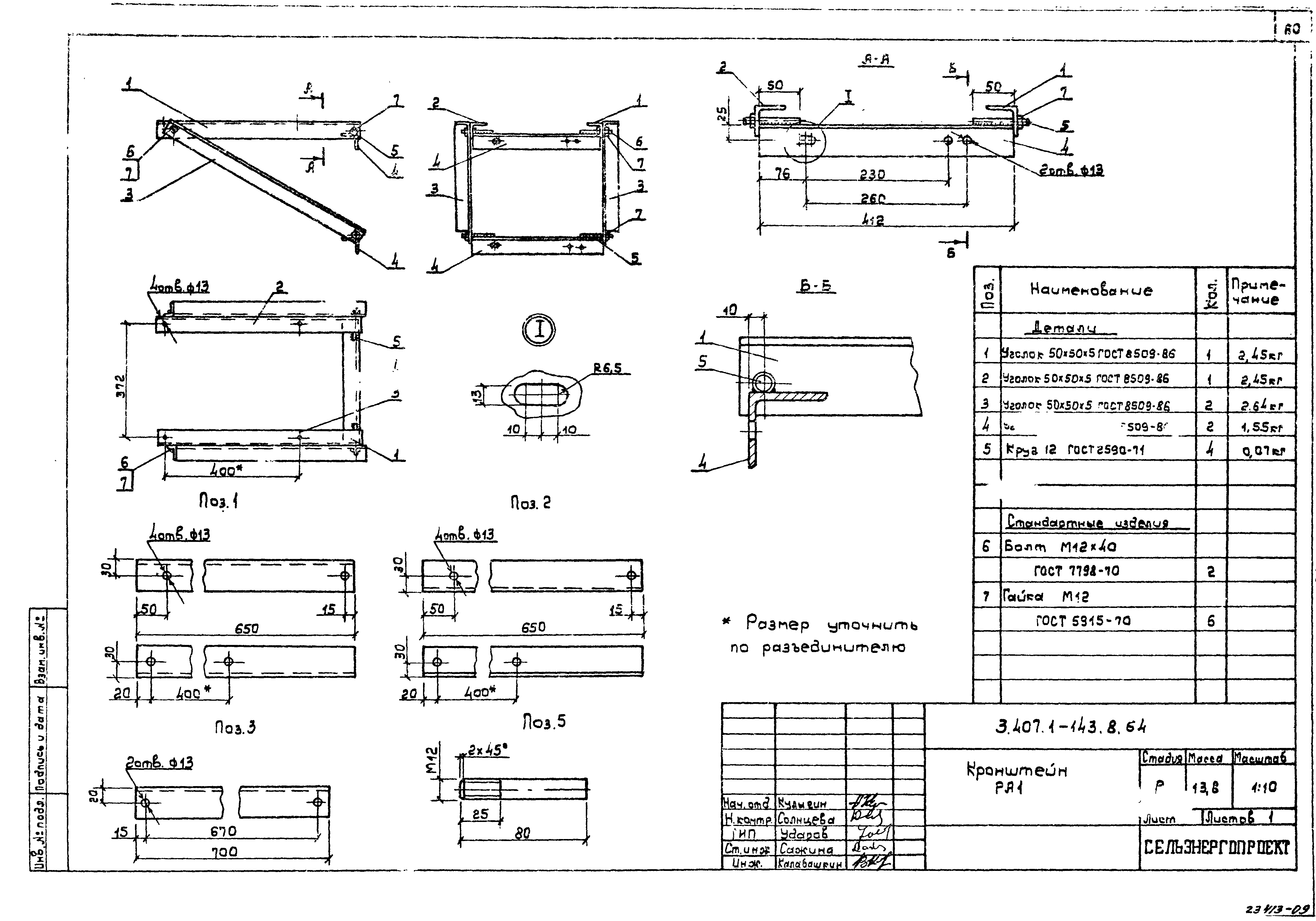
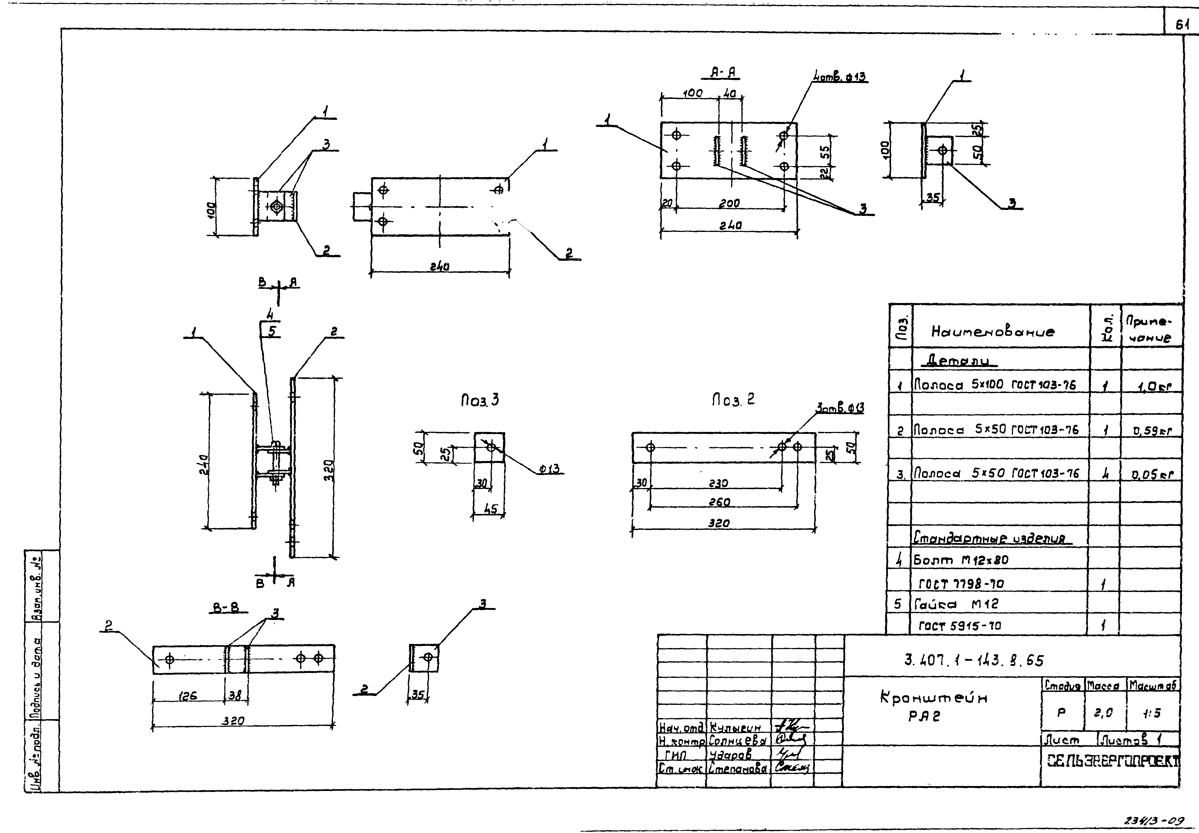
| Оглавление: | Стальные конструкции опор. Пояснительная записка 3.407.1-143.8 ЗП Траверса ТМ1, ТМ 24 3.407.1-143.8.1 Траверса ТМ2 3.407.1-143.8.2 Траверса ТМ3 3.407.1-143.8.4 Траверса ТМ4 3.407.1-143.8.5 Траверса ТМ5 3.407.1-143.8.6 Траверса ТМ6 3.407.1-143.8.7 Траверса ТМ7 3.407.1-143.8.8 Траверса ТМ8 3.407.1-143.8.9 Траверса ТМ9 3.407.1-143.8.10 Траверса ТМ10 3.407.1-143.8.11 Траверса ТМ11 3.407.1-143.8.12 Траверса ТМ12, ТМ19 3.407.1-143.8.13 Траверса ТМ13 3.407.1-143.8.14 Траверса ТМ14 3.407.1-143.8.15 Траверса ТМ15 3.407.1-143.8.16 Траверса ТМ16 3.407.1-143.8.17 Траверса ТМ17 3.407.1-143.8.18 Траверса ТМ18 3.407.1-143.8.19 Траверса ТМ20 3.407.1-143.8.20 Траверса ТМ21 3.407.1-143.8.21 Траверса ТМ22 3.407.1-143.8.22 Траверса ТМ23, ТМ 31 3.407.1-143.8.70 Траверса ТМ30 3.407.1-143.8.23 Надставка ТС 1 3.407.1-143.8.24 Надставка ТС 2 3.407.1-143.8.25 Надставка ТС 4 3.407.1-143.8.71 Надставка ТС 6 3.407.1-143.8.26 Оголовок ОГ1 3.407.1-143.8.27 Накладка ОГ 2 3.407.1-143.8.28 Накладка ОГ 5 3.407.1-143.8.29 Накладка ОГ 6 3.407.1-143.8.30 Накладка ОГ 7 3.407.1-143.8.31 Оголовок ОГ 8 3.407.1-143.8.32 Накладка ОГ9 3.407.1-143.8.33 Накладка ОГ10 3.407.1-143.8.34 Штырь ОГ11 3.407.1-143.8.35 Накладка ОГ12 3.407.1-143.8.36 Оголовок ОГ13 3.407.1-143.8.37 Оголовок ОГ14 3.407.1-143.8.38 Оголовок ОГ15 3.407.1.-143.8.39 Болт Б.1 Б.5 Б.6 3.407.1.-143.8.40 Кронштейн У1 3.407.1.-143.8.41 Кронштейн У2 3.407.1.-143.8.42 Кронштейн У4 3.407.1.-143.8.43 Кронштейн У5 3.407.1.-143.8.44 Стяжка Г1 3.407.1-143.12 Упор ГБ 3.407.1.143.8-45 Оттяжка ОТ3 3.407.1.143.8-46 Оттяжка ОТ4 3.407.1.143.8-47 Оттяжка ОТ5 3.407.1.143.8-48 Оттяжка ОТ6 3.407.1.143.8-49 Хмуты Х1-Х6, Х42 3.407.1-143.8.68 Хомуты Х7-Х9, Х23, Х37-Х41 3.407.1-143.8.73 Хомут Х24 3.407.1-143.8.50 Хомут Х25 3.407.1-143.8.51 Хомуты Х33-Х36 3.407.1-143.8.52 Траверса ТН10, ТН11 3.407.1-143.8.53 Траверса ТН12, ТН13 3.407.1-143.8.54 Проводник ЗП1 3.407.1-143.8.55 Кронштейн КМ1 3.407.1-143.8.56 Скоба КМ3 3.407.1-143.8.57 Скоба КМ4 3.407.1-143.8.58 Скоба КМ5 3.407.1-143.8.59 Кронштейн Р1 3.407.1-143.8.60 Кронштейн Р2 3.407.1-143.8.61 Кронштейн Р4 3.407.1-143.8.62 Кронштейн Р5 3.407.1-143.8.63 Кронштейн Р6 3.407.1-143.8.64 Кронштейн РА1 3.407.1-143.8.65 Кронштейн РА2 3.407.1-143.8.68 Кронштейн РА4 3.407.1-143.8.67 Кронштейн РА5 3.407.1-143.8.69 Вал привода РА3, РА7, РА8 3.407.1-143.8.74 Ригель Г7 3.407.1-143.8.75 Ведомость расхода стали |
| Разработан: | Сельэнергопроект Минэнерго СССР |
| Утверждён: | 01.06.1988 Минэнерго СССР (USSR Minenergo 16-3/9-33) |
| Издан: | ЦИТП Госстроя СССР (CITP, Gosstroy (USSR) 1988 г. ) |
| Заменяет собой: |

































































