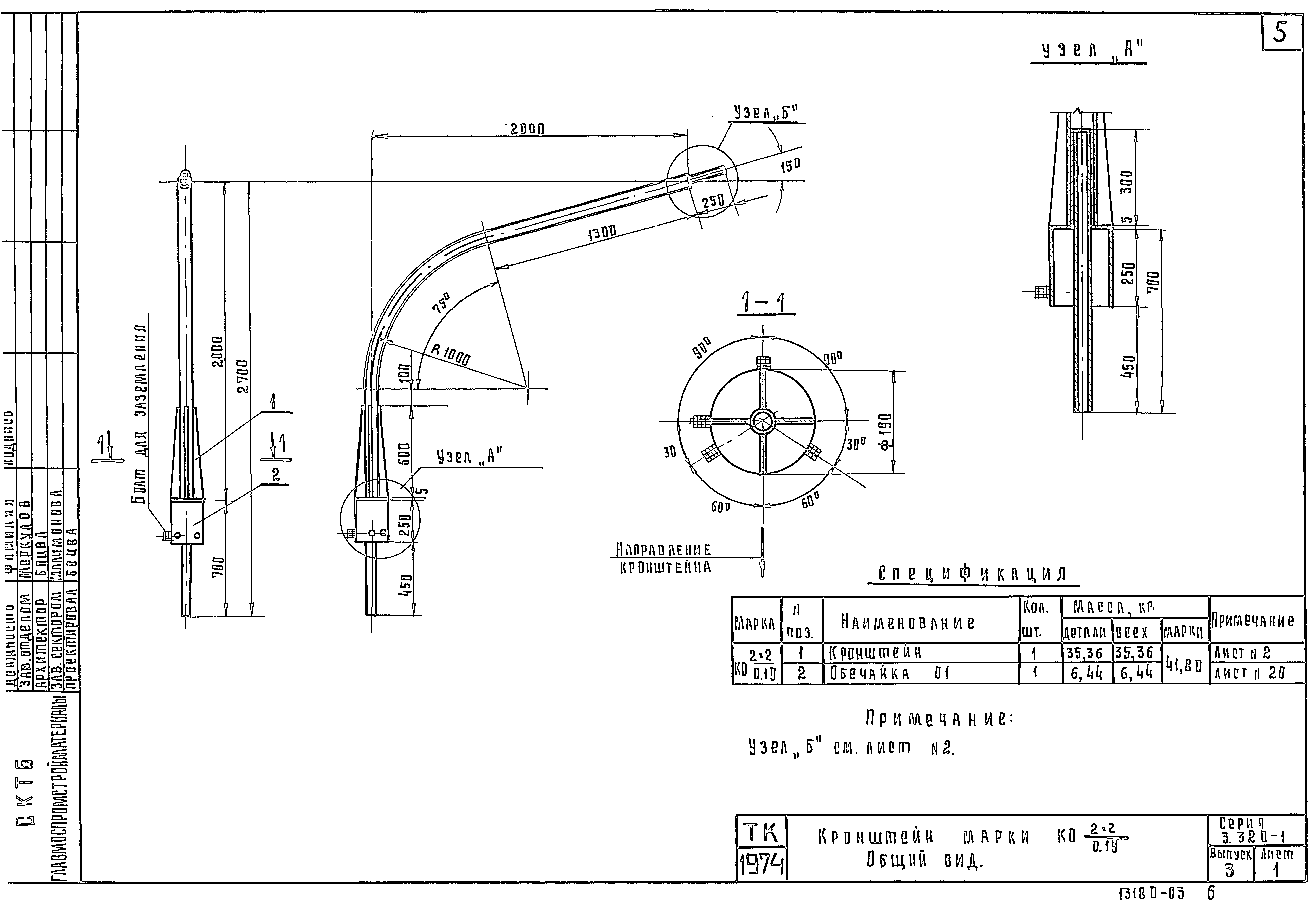
Скачать Серия 3.320-1 Выпуск 3. Металлические кронштейныДата актуализации: 01.01.2021 Серия 3.320-1
Выпуск 3. Металлические кронштейны| Обозначение: | Серия 3.320-1 | | Обозначение англ: | Series 3.320-1 | | Статус: | действует | | Название рус.: | Выпуск 3. Металлические кронштейны | | Дата добавления в базу: | 01.09.2013 | | Дата актуализации: | 01.01.2021 | | Дата введения: | 15.07.1975 | | Разработан: | СКТБ Главмоспромстройматериалы ЦНИИЭП
| | Утверждён: | 08.04.1975 Госстрой СССР (Государственный комитет Совета Министров СССР по делам строительства) (USSR Gosstroy 50)
|
                         
|