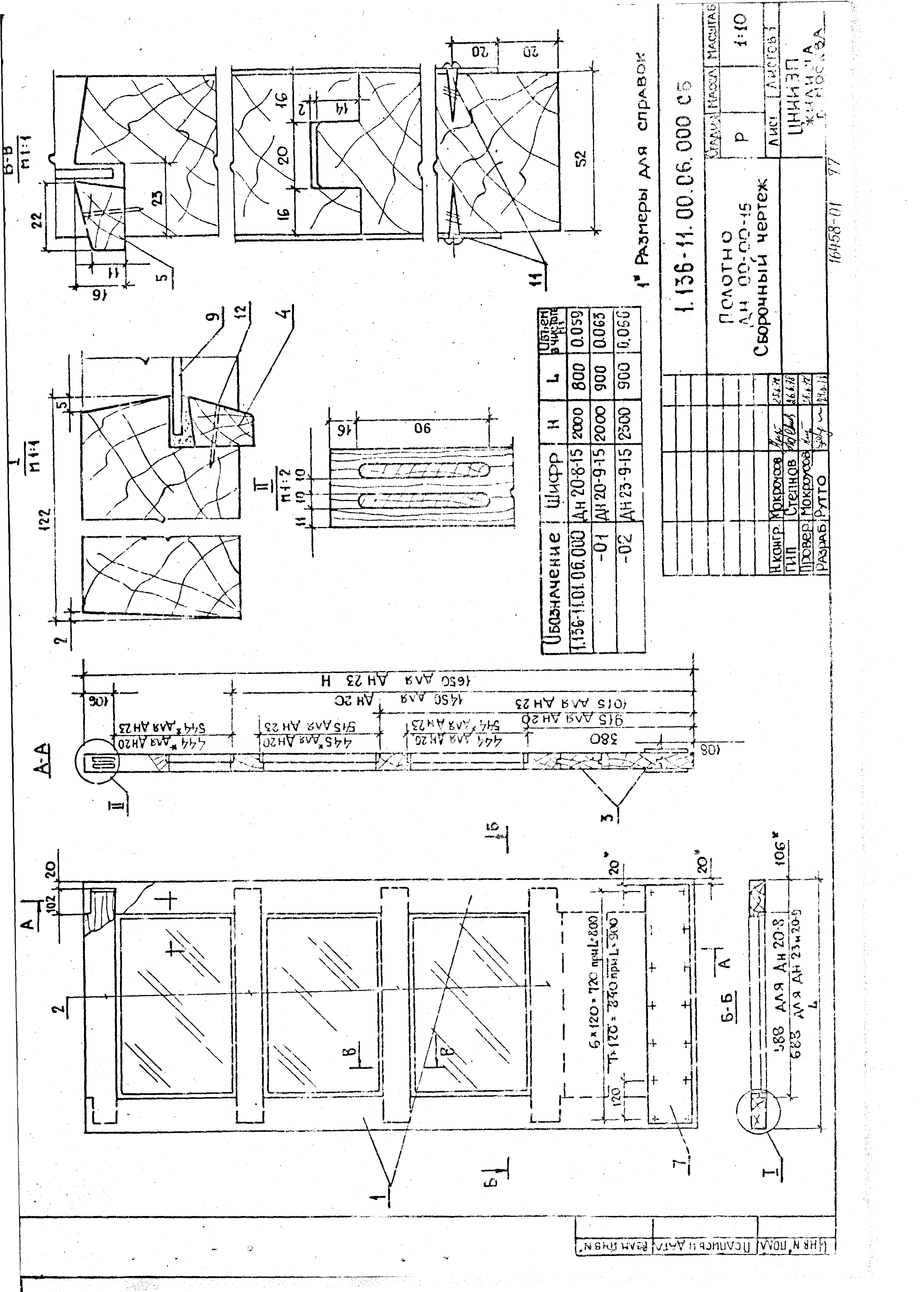
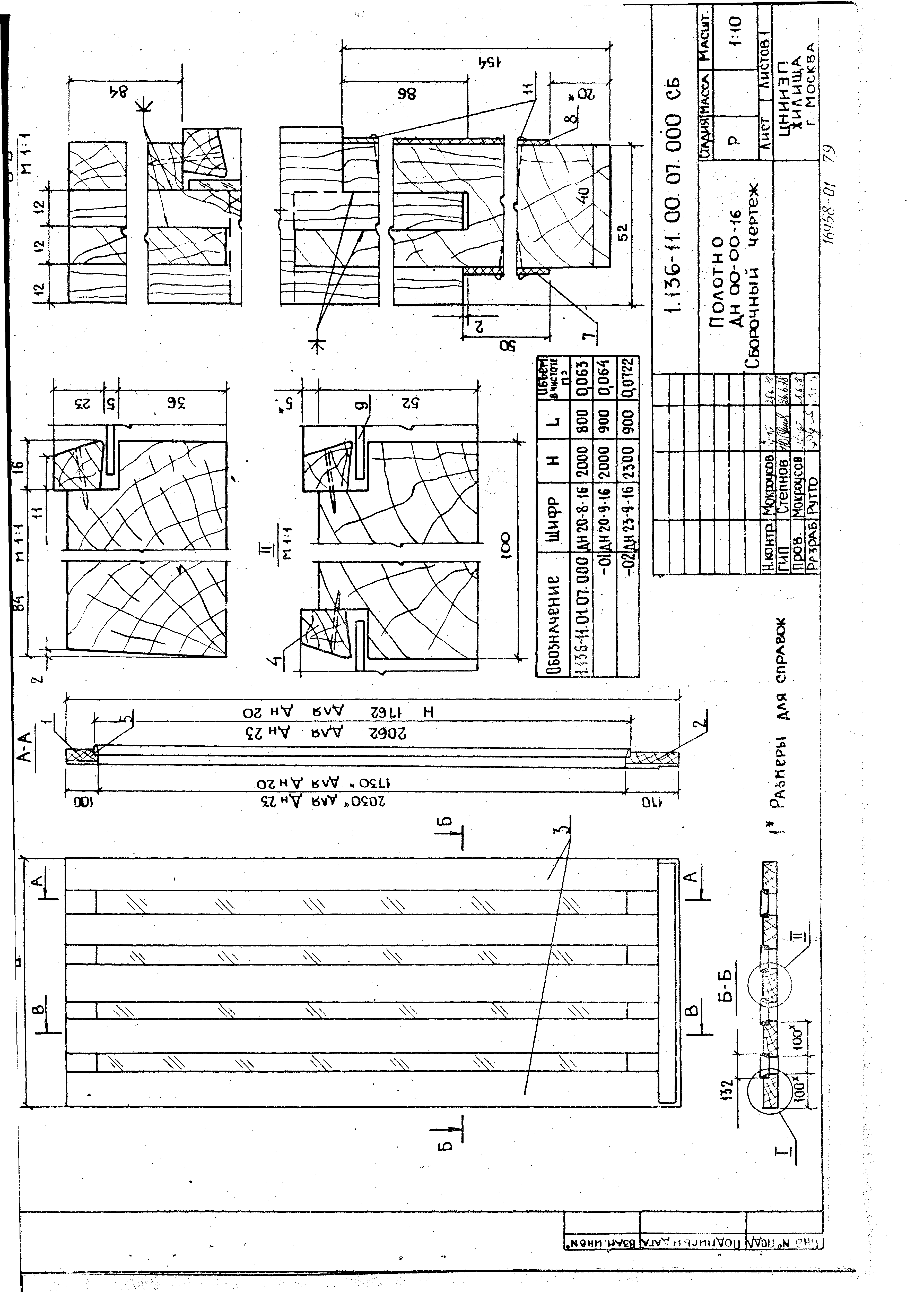
Скачать Серия 1.136-11 Часть 1Дата актуализации: 01.01.2021
|
| Обозначение: | Серия 1.136-11 |
| Обозначение англ: | Series 1.136-11 |
| Статус: | не действует |
| Название рус.: | Часть 1 |
| Дата добавления в базу: | 01.09.2013 |
| Дата актуализации: | 01.01.2021 |
| Дата введения: | 03.11.1980 |
| Дата окончания срока действия: | 01.01.1984 |
| Разработан: | ЦНИИЭП жилища |
| Утверждён: | 03.11.1980 Госкомитет по гражданскому строительству и архитектуре при Госстрое СССР (National Committee on Nonindustrial Construction and Architecture, USSR Gosstroy 300) |
| Заменяет собой: | |
| Чем заменён: |






































































































































