Скачать Серия 3.407.2-166 Выпуск 1. Специальные двухцепные опоры ВЛ 330 кВ. Рабочие чертежи

Дата актуализации: 01.01.2021

Серия 3.407.2-166

Выпуск 1. Специальные двухцепные опоры ВЛ 330 кВ. Рабочие чертежи

Обозначение: Серия 3.407.2-166
Обозначение англ: Series 3.407.2-166
Статус:действует
Название рус.:Выпуск 1. Специальные двухцепные опоры ВЛ 330 кВ. Рабочие чертежи
Дата добавления в базу:01.09.2013
Дата актуализации:01.01.2021
Дата введения:01.04.1990
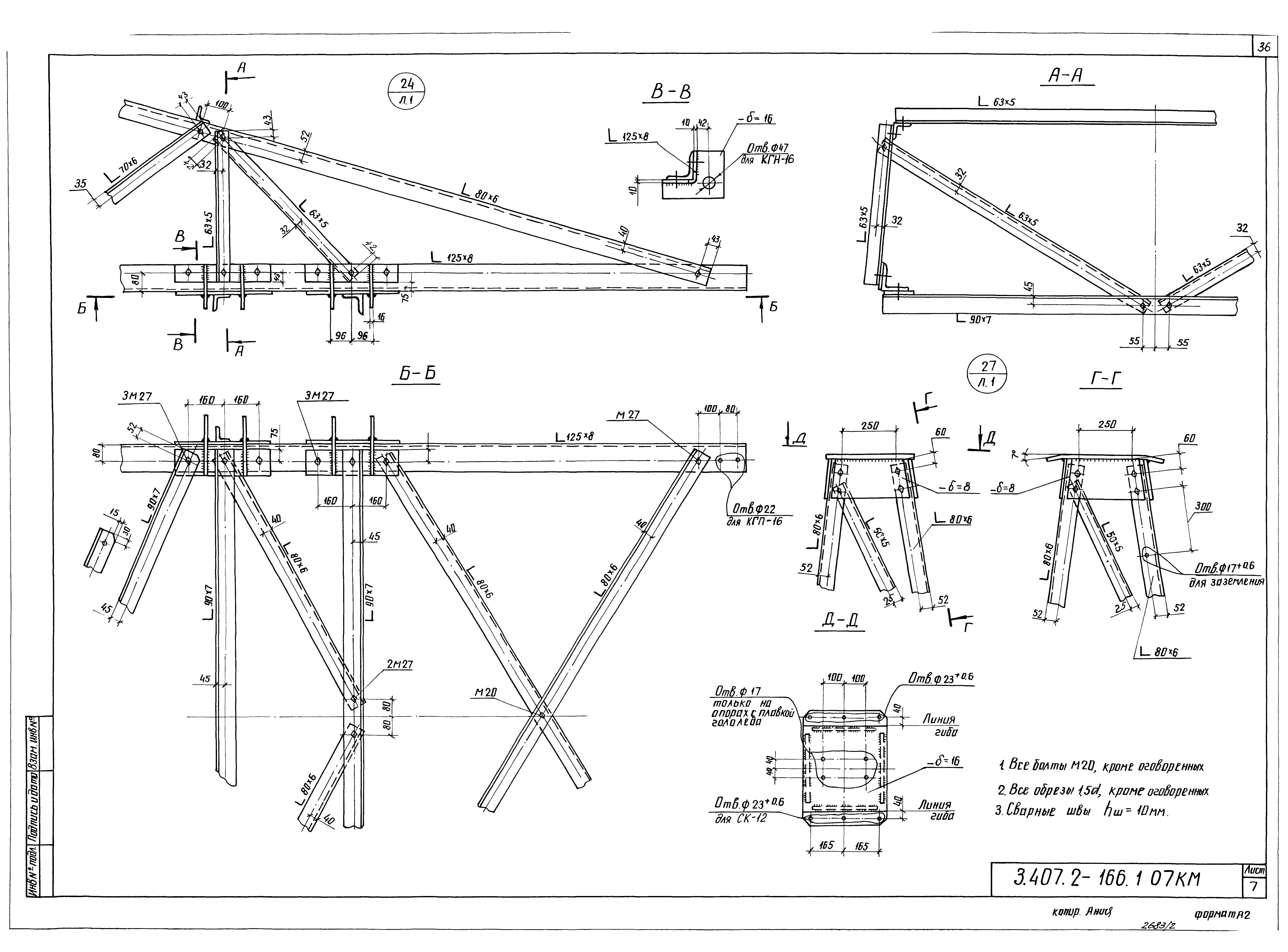
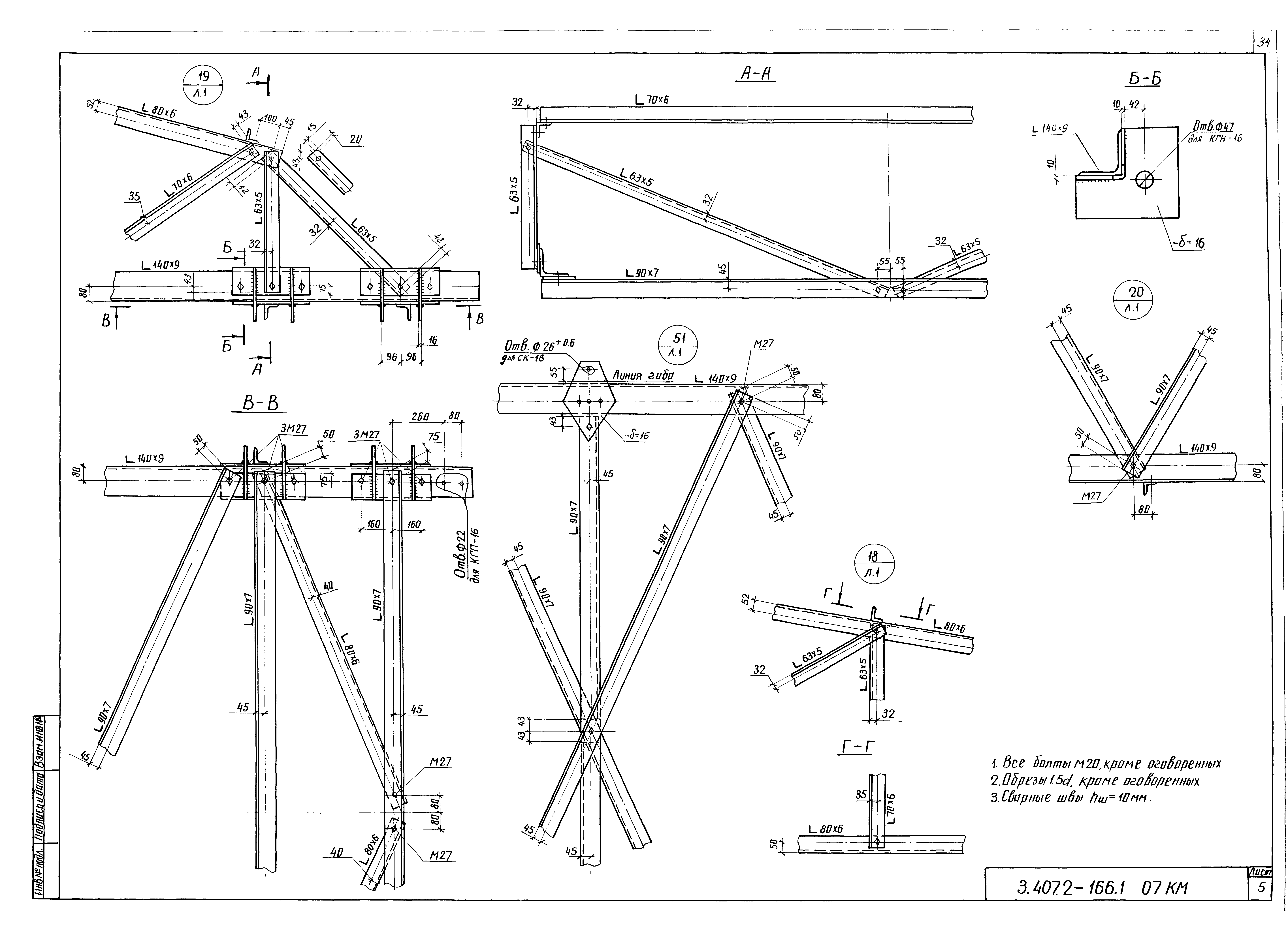
Область применения:Настоящий выпуск содержит рабочие чертежи стадии КМ стальных унифицированных двухцепных опор ВЛ 330 кВ - промежуточной 2П330-2 и анкерно-угловой 1У330-2, предназначенных для применения в специальных условиях
Разработан: Севзапэнергосетьпроект
Утверждён:31.08.1989 Минэнерго СССР (USSR Minenergo 31)
Издан: ЦИТП Госстроя СССР (CITP, Gosstroy (USSR) 1988 г. )
Заменяет собой:
Серия 3.407.2-166Серия 3.407.2-166Серия 3.407.2-166Серия 3.407.2-166Серия 3.407.2-166Серия 3.407.2-166Серия 3.407.2-166Серия 3.407.2-166Серия 3.407.2-166Серия 3.407.2-166Серия 3.407.2-166Серия 3.407.2-166Серия 3.407.2-166Серия 3.407.2-166Серия 3.407.2-166Серия 3.407.2-166Серия 3.407.2-166Серия 3.407.2-166Серия 3.407.2-166Серия 3.407.2-166Серия 3.407.2-166Серия 3.407.2-166Серия 3.407.2-166Серия 3.407.2-166Серия 3.407.2-166Серия 3.407.2-166Серия 3.407.2-166Серия 3.407.2-166Серия 3.407.2-166Серия 3.407.2-166Серия 3.407.2-166Серия 3.407.2-166Серия 3.407.2-166Серия 3.407.2-166Серия 3.407.2-166Серия 3.407.2-166Серия 3.407.2-166Серия 3.407.2-166Серия 3.407.2-166Серия 3.407.2-166Серия 3.407.2-166Серия 3.407.2-166Серия 3.407.2-166Серия 3.407.2-166Серия 3.407.2-166Серия 3.407.2-166