Скачать Серия 3.407.2-166 Выпуск 2. Дополнительные элементы к опорам ВЛ 35, 110, 220, 330 кВ в специальных условиях применения. Рабочие чертежиДата актуализации: 01.01.2021 Серия 3.407.2-166
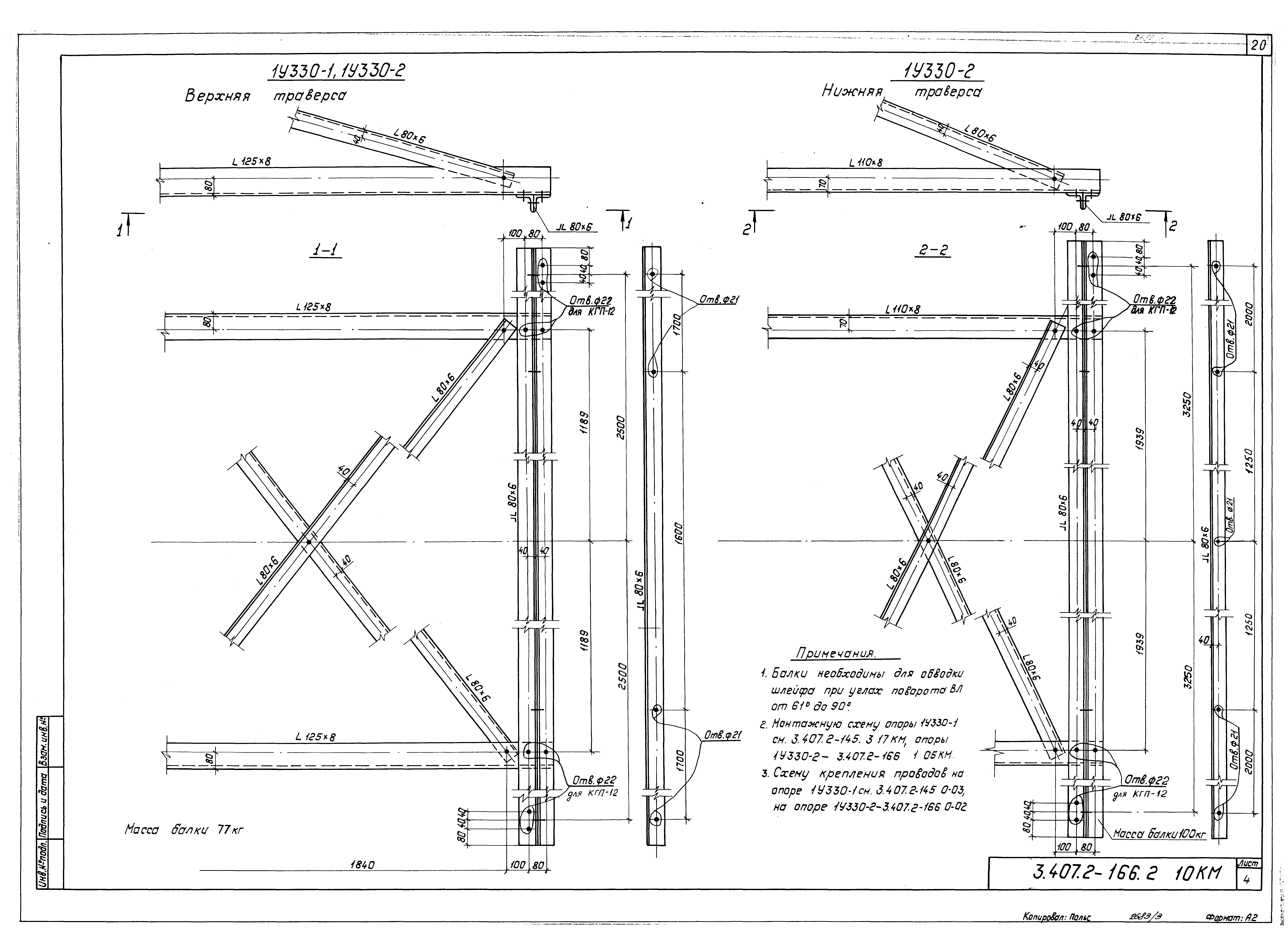
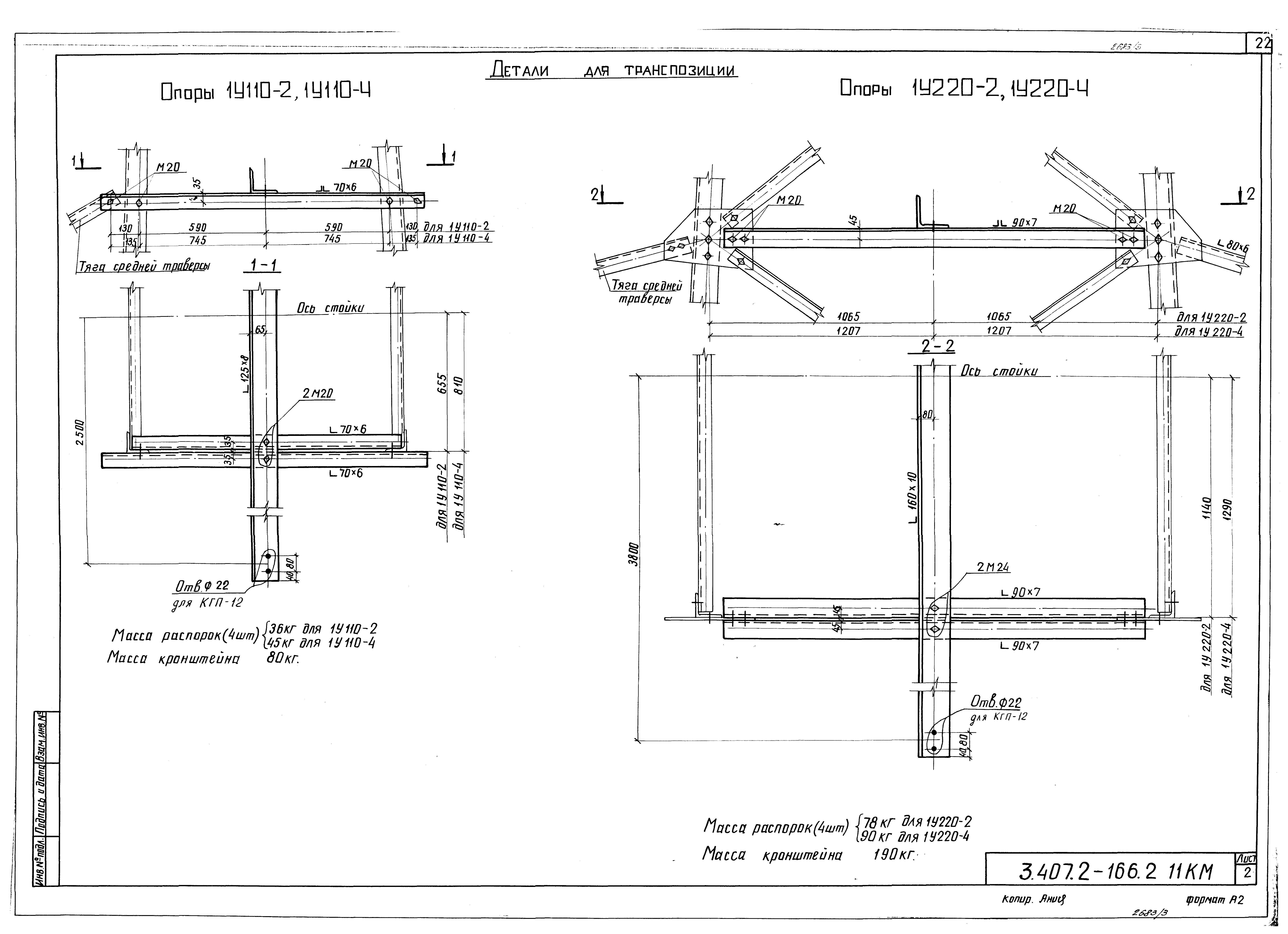
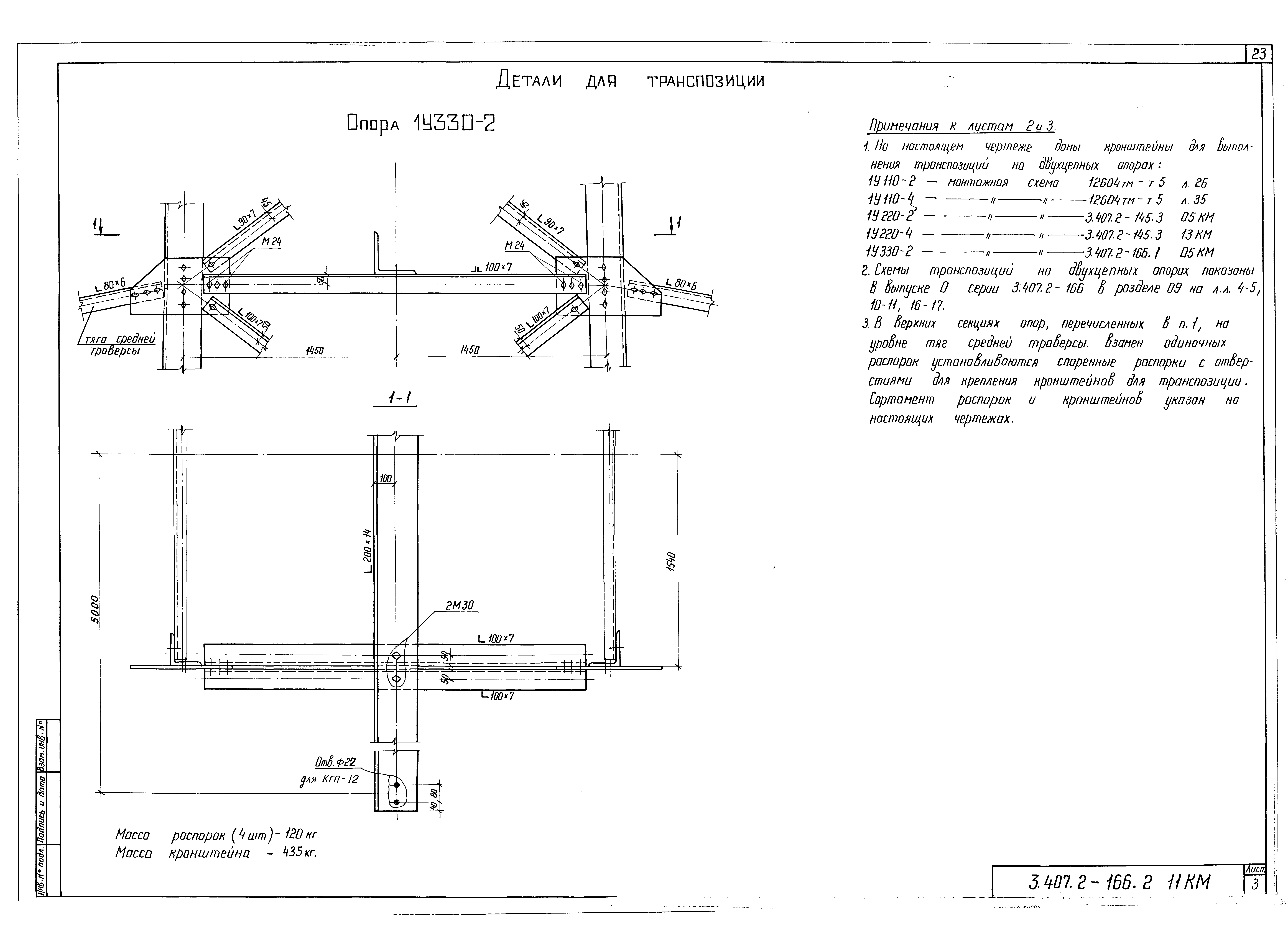
Выпуск 2. Дополнительные элементы к опорам ВЛ 35, 110, 220, 330 кВ в специальных условиях применения. Рабочие чертежи| Обозначение: | Серия 3.407.2-166 | | Обозначение англ: | Series 3.407.2-166 | | Статус: | действует | | Название рус.: | Выпуск 2. Дополнительные элементы к опорам ВЛ 35, 110, 220, 330 кВ в специальных условиях применения. Рабочие чертежи | | Дата добавления в базу: | 01.09.2013 | | Дата актуализации: | 01.01.2021 | | Дата введения: | 01.04.1990 | | Область применения: | Настоящий выпуск содержит чертежи дополнительных элементов, необходимых для использования унифицированных опор, разработанных в сериях 3.407.2-145, 3.407.2-156, 3.407.2-165, 3.407.2-166, 3.407.2-170, в расширенной области их применения на ВЛ 110, 220, 330 кВ | | Разработан: | Севзапэнергосетьпроект
| | Утверждён: | 31.08.1989 Минэнерго СССР (USSR Minenergo 31)
| | Издан: | ЦИТП Госстроя СССР (CITP, Gosstroy (USSR) 1988 г. )
| | Заменяет собой: | |
                             
|