Скачать Серия 5.407-83 Выпуск 1. Монтажные чертежиДата актуализации: 01.01.2021
|
| Обозначение: | Серия 5.407-83 |
| Обозначение англ: | Series 5.407-83 |
| Статус: | не определен законодательством |
| Название рус.: | Выпуск 1. Монтажные чертежи |
| Дата добавления в базу: | 01.09.2013 |
| Дата актуализации: | 01.01.2021 |
| Дата введения: | 01.01.1988 |
| Дата окончания срока действия: | 30.06.2003 |
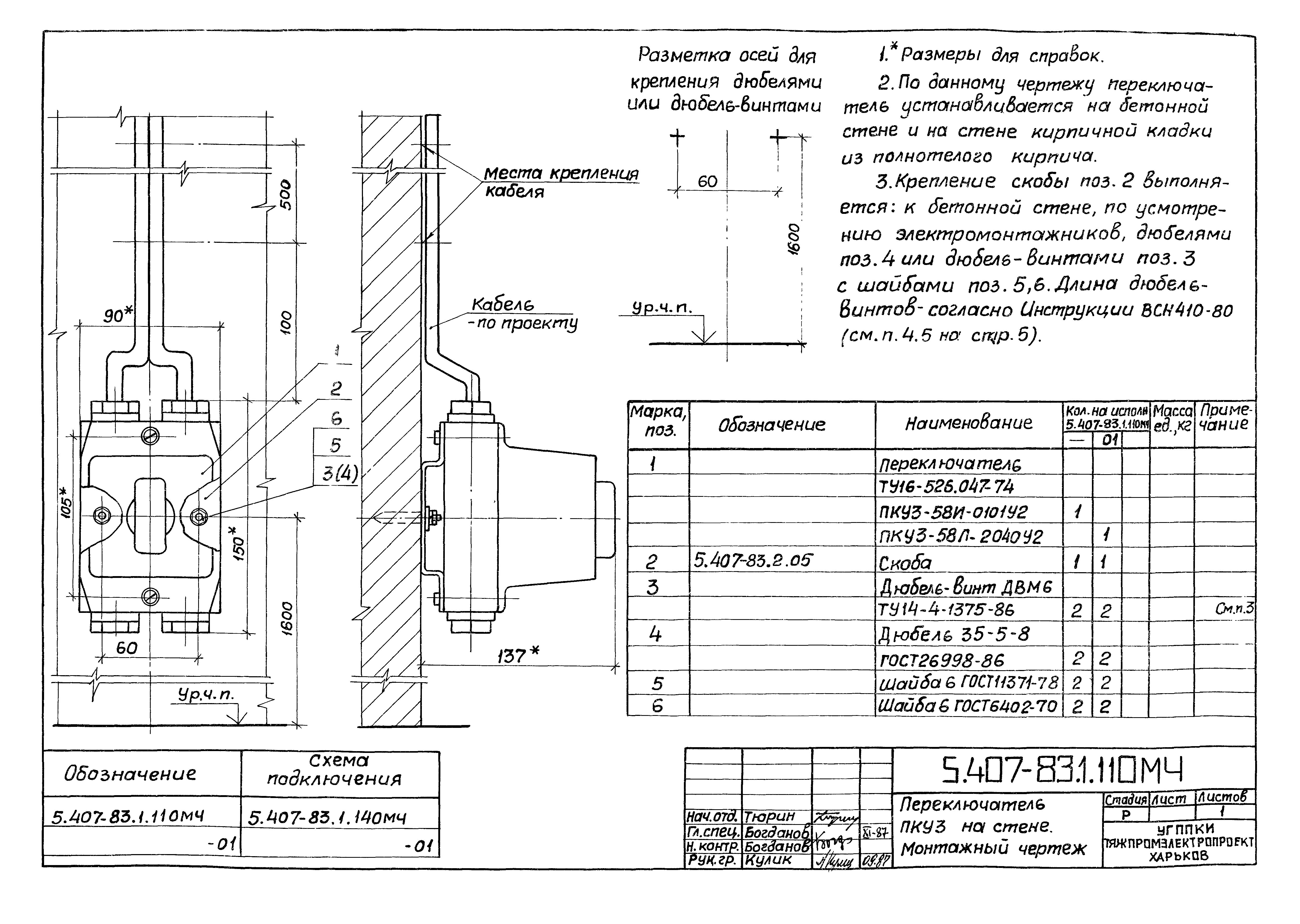
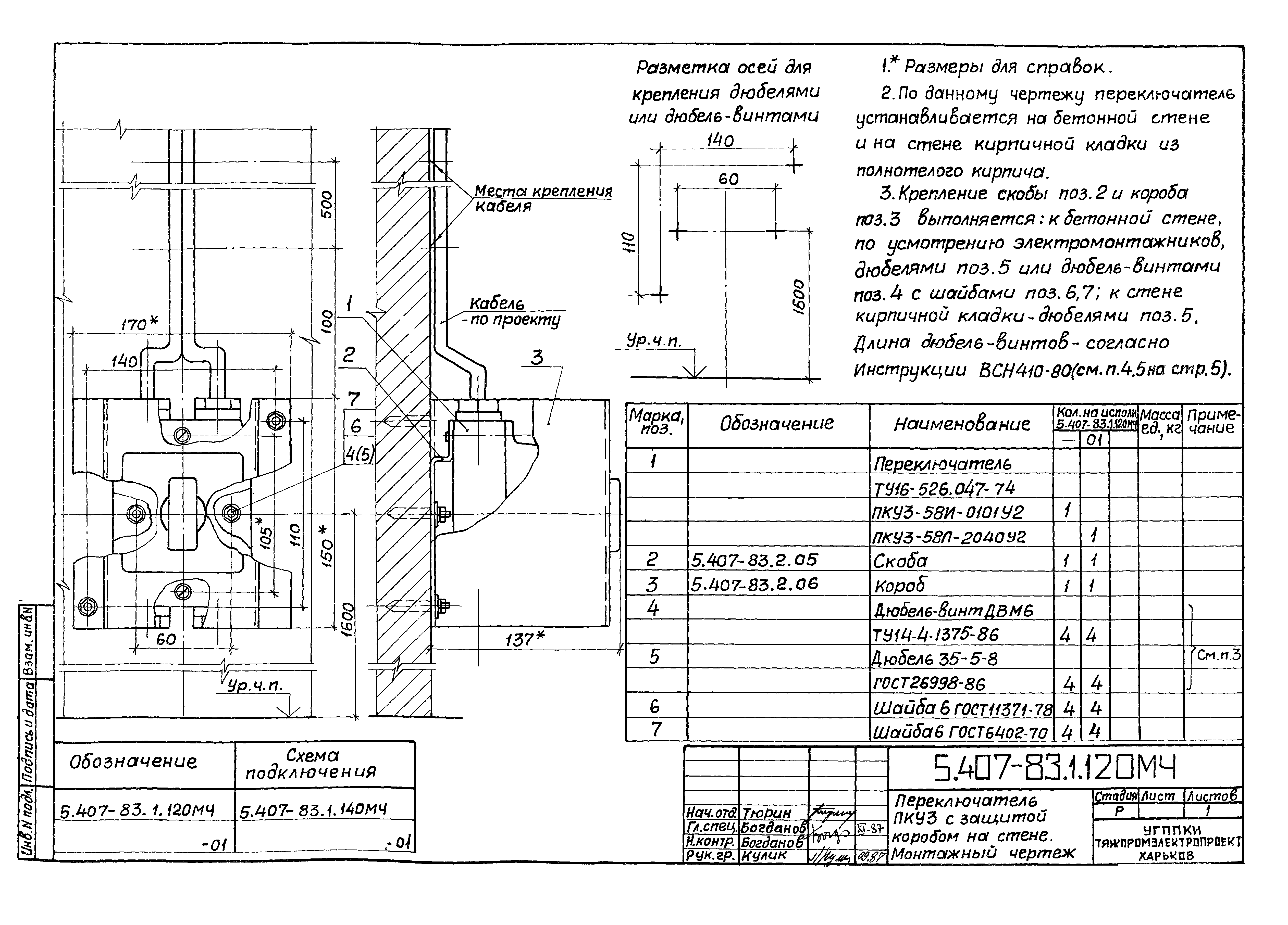
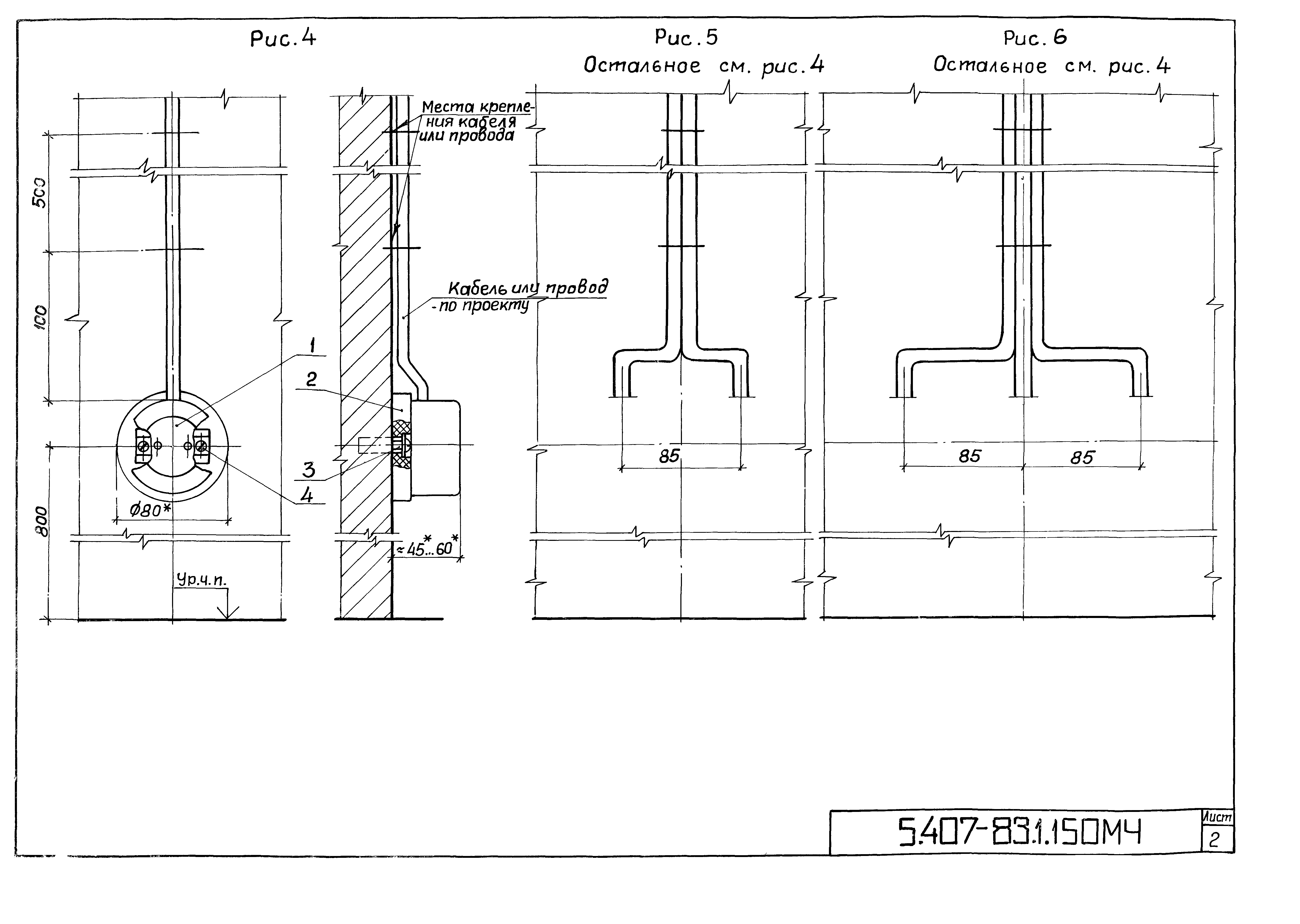
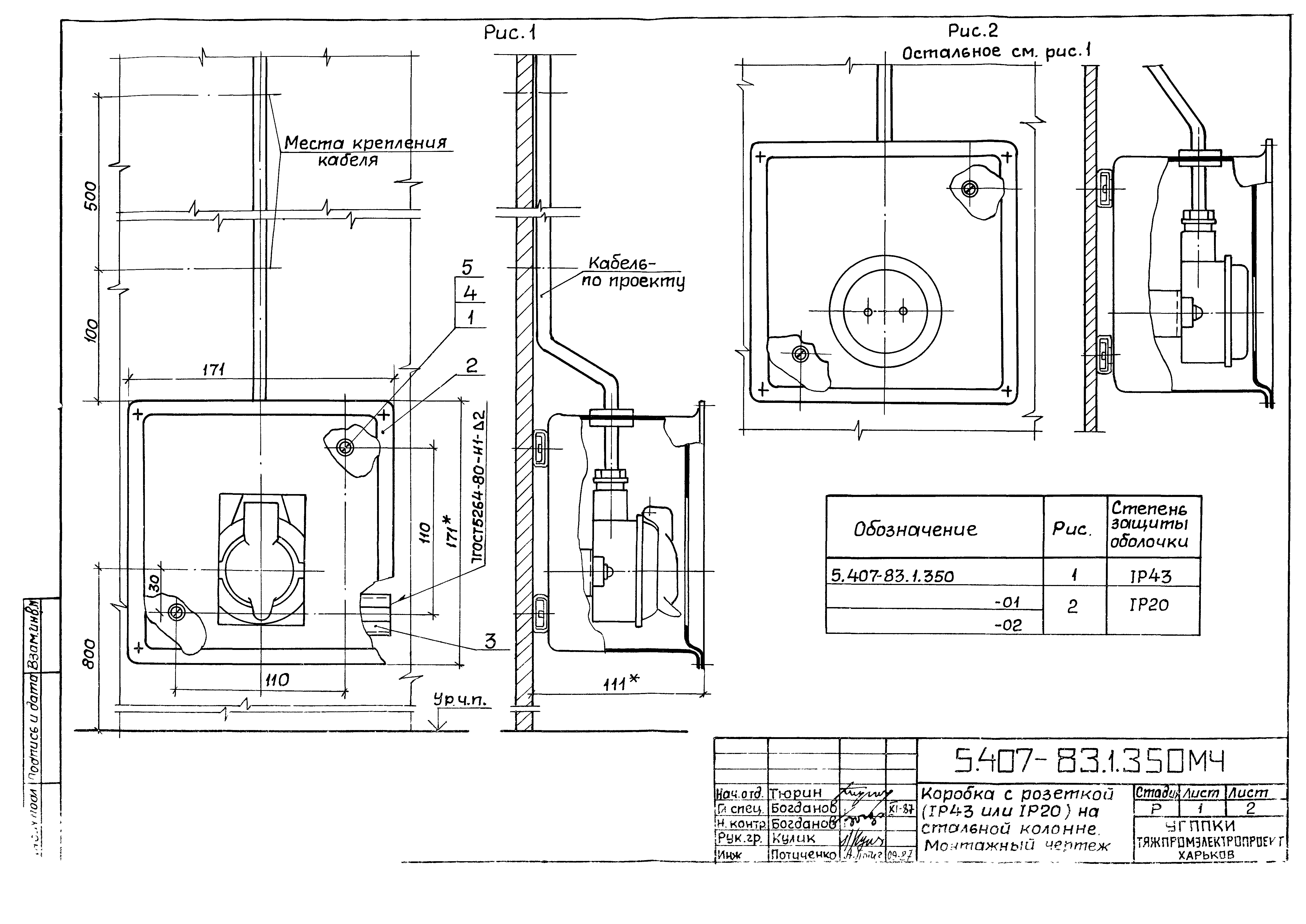
| Оглавление: | 5.407-83.1. ПЗ Пояснительная записка 5.407-83.1.10ТБ Таблица выбора чертежей 5.407-83.1.20ВА Ведомость изделий и материалов для изготовления электромонтажных конструкций и деталей в МЭЗ 5.407-83.1.30МЧ 1, 2 или 3 выключателя для открытой установки (IP20) на стене. Монтажный чертеж 5.407-83.1.40МЧ Выключатель для открытой установки (IP20) на перегородке из профильного стекла или стеклоблоков. Монтажный чертеж 5.407-83.1.50МЧ Выключатель для открытой установки на металлической перегородке. Монтажный чертеж 5.407-83.1.60МЧ Выключатель для открытой установки (IP20) в стене кирпичной кладки. Монтажный чертеж 5.407-83.1.70МЧ Выключатель для скрытой установки (IP20) в стене из асбестоцементных экструзионных панелей. Монтажный чертеж 5.407-83.1.80МЧ 1 или 2 выключателя для открытой установки (IP44) на стене или ж.-б. колонне. Монтажный чертеж 5.407-83.1.90МЧ 1 или 2 выключателя для открытой установки (IP44) на стене или ж.-б. колонне. Монтажный чертеж 5.407-83.1.100МЧ Коробка с выключателем (IP20 или IP44) на перилах ограждения. Монтажный чертеж 5.407-83.1.110 Мч Переключатель ПКУЗ на стене. Монтажный чертеж 5.407-83.1.120МЧ Переключатель ПКУЗ с защитой коробом на стене. Монтажный чертеж 5.407-83.1.130МЧ Переключатель ПКУЗ в кабельном тоннеле. Монтажный чертеж 5.407-83.1.140МЧ Схемы переключателей серии ПКУЗ 5.407-83.1.150МЧ 1, 2 и 3 розетки для открытой установки (IP20) на стене. Монтажный чертеж 5.407-83.1.160МЧ Розетка для открытой установки (IP20) на стене. Монтажный чертеж 5.407-83.1.170МЧ Розетка для открытой установки (IP20) на металлической перегородке. Монтажный чертеж 5.407-83.1.180МЧ Розетка для скрытой установки (IP20) в стене кирпичной кладки. Монтажный чертеж 5.407-83.1.190МЧ Розетка для скрытой установки (IP20) в стене из асбестоцементных экструзионных панелей. Монтажный чертеж 5.407-83.1.200МЧ Розетка для установки над плинтусом (IP20)на перегородке из профильного стекла или стеклоблоков. Монтажный чертеж 5.407-83.1.210МЧ Розетка с сальниковым вводом (IP43 или IP20) на стене или ж.-б. колонне. Монтажный чертеж 5.407-83.1.220МЧ Розетка с сальниковым вводом (IP43 или IP20) на стене или ж.-б. колонне. Монтажный чертеж 5.407-83.1.230МЧ Розетка с сальниковым вводом (IP43 или IP20) на стене или ж.-б. колонне. Монтажный чертеж 5.407-83.1.240МЧ Коробка с розеткой КР2-10УХЛ4 на стене или ж.-б. колонне. Монтажный чертеж 5.407-83.1.250МЧ Коробка с розеткой КР2-10УХЛ4 на стальной колонне. Монтажный чертеж 5.407-83.1.260МЧ Коробка с розеткой (IP20) на перилах ограждения. Монтажный чертеж 5.407-83.1.270МЧ Коробка с розеткой (IP20) на стене или ж.-б. колонне. Монтажный чертеж 5.407-83.1.280МЧ Коробка с розеткой (IP20) на стальной колонне. Монтажный чертеж 5.407-83.1.290МЧ Коробка с розеткой (IP20) на стене или ж.-б. колонне. Монтажный чертеж 5.407-83.1.3000МЧ Коробка с розеткой (IP20) на стальной колонне. Монтажный чертеж 5.407-83.1.310МЧ Коробка с розеткой (IP20) на стене или ж.-б. колонне. Монтажный чертеж 5.407-83.1.320МЧ Коробка с розеткой (IP20) на перилах ограждения. Монтажный чертеж 5.407-83.1.350МЧ Коробка с розеткой (IP43 или IP20) на стальной колонне. Монтажный чертеж 5.407-83.1.360МЧ Коробка с розеткой (IP43 и IP20) на перилах ограждения. Монтажный чертеж 5.407-83.1.370МЧ Коробка с розеткой (IP43 и IP20) на перилах ограждения. Монтажный чертеж |
| Разработан: | УГППКИ Тяжпромэлектропроект |
| Утверждён: | 30.11.1987 Минмонтажспецстрой СССР (USSR Minmontazhspetsstroy ) |
| Издан: | ЦИТП Госстроя СССР (CITP, Gosstroy (USSR) 1988 г. ) |



























































