Скачать Типовой проект 801-2-66.86 Альбом I. Пояснительная записка. Архитектурно-строительные решения. Конструкции железобетонныеДата актуализации: 01.01.2021
|
| Обозначение: | Типовой проект 801-2-66.86 |
| Обозначение англ: | 801-2-66.86 |
| Статус: | не определен законодательством |
| Название рус.: | Альбом I. Пояснительная записка. Архитектурно-строительные решения. Конструкции железобетонные |
| Дата добавления в базу: | 01.09.2013 |
| Дата актуализации: | 01.01.2021 |
| Дата введения: | 30.10.1984 |
| Дата окончания срока действия: | 30.06.2003 |
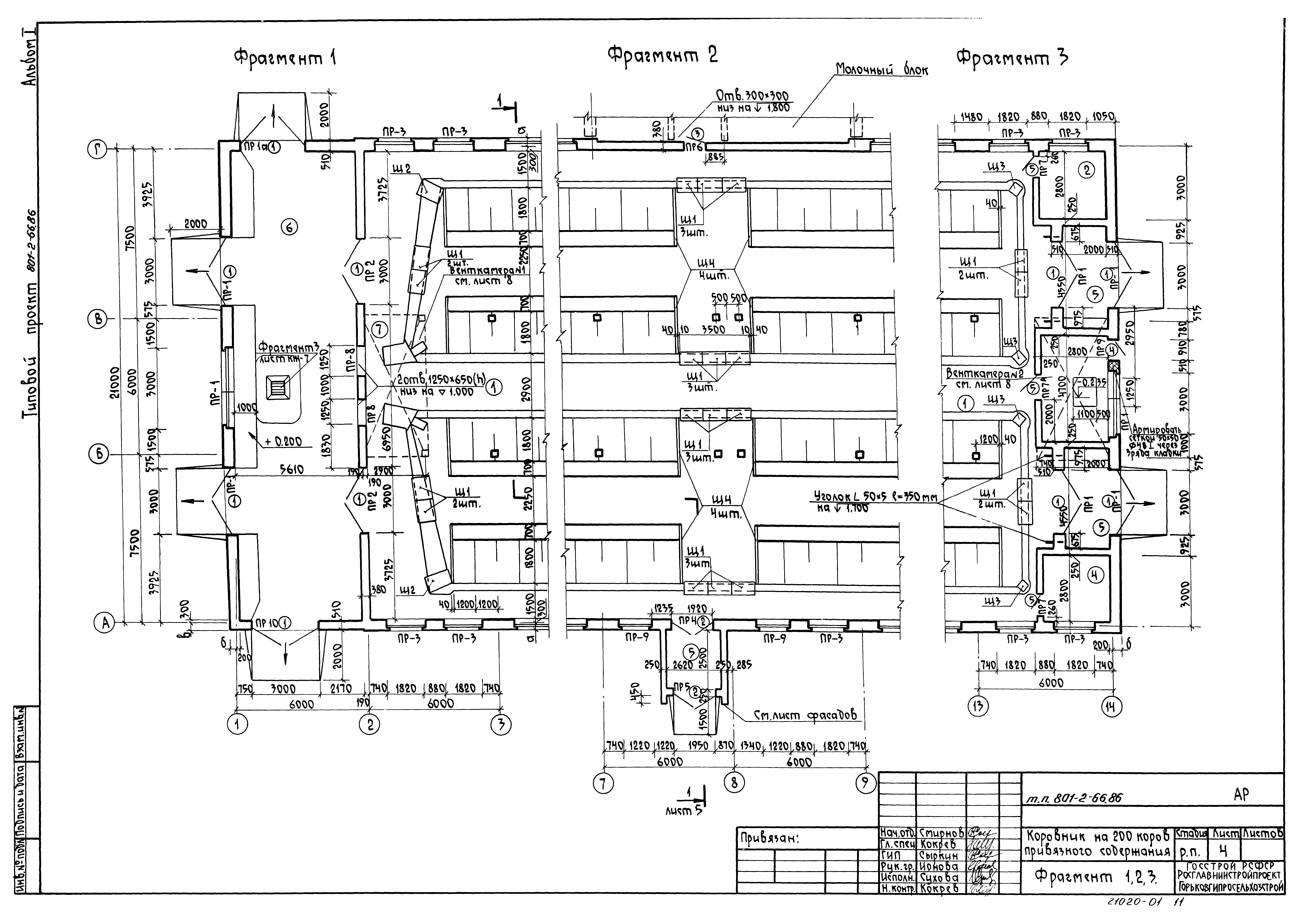
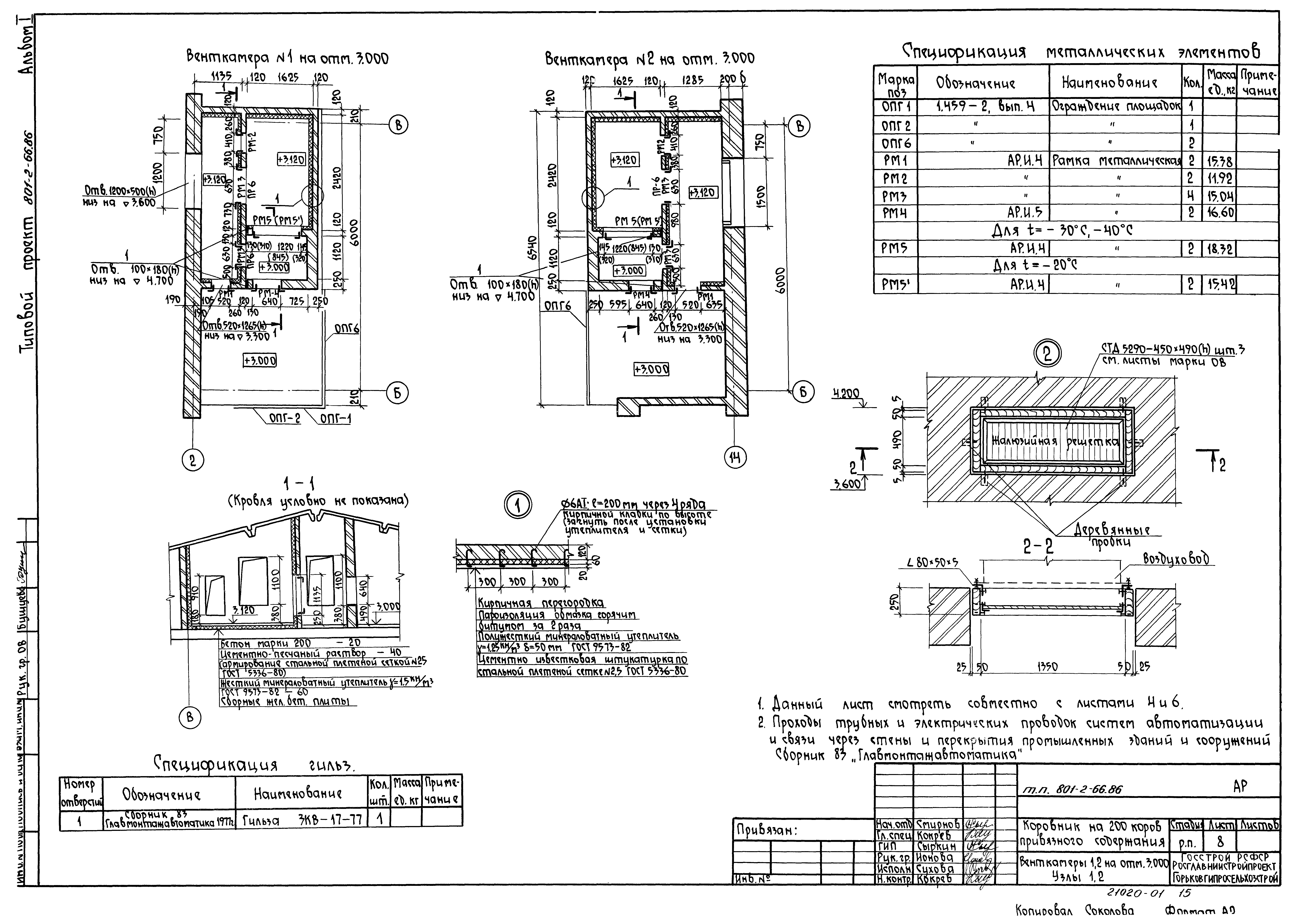
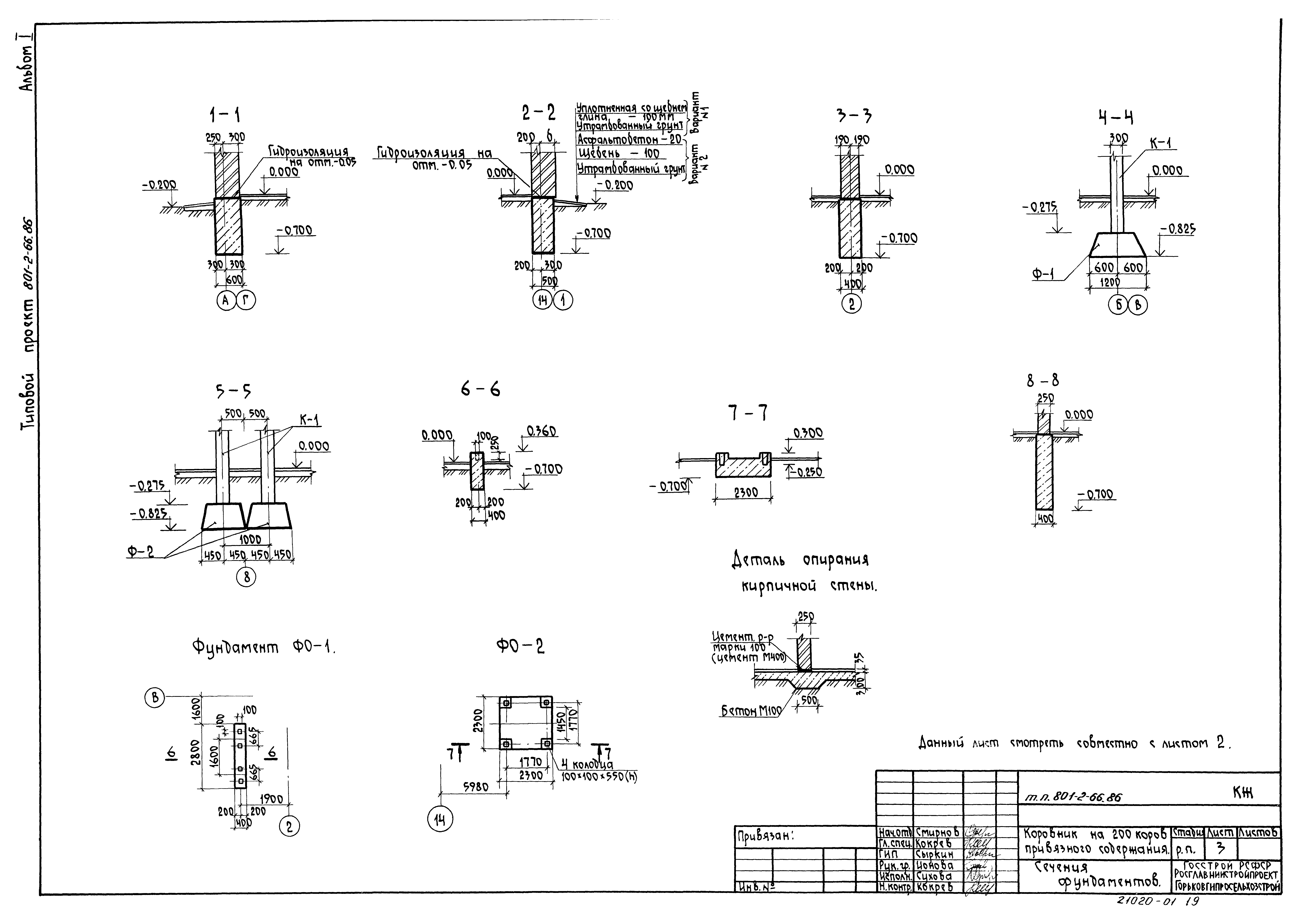
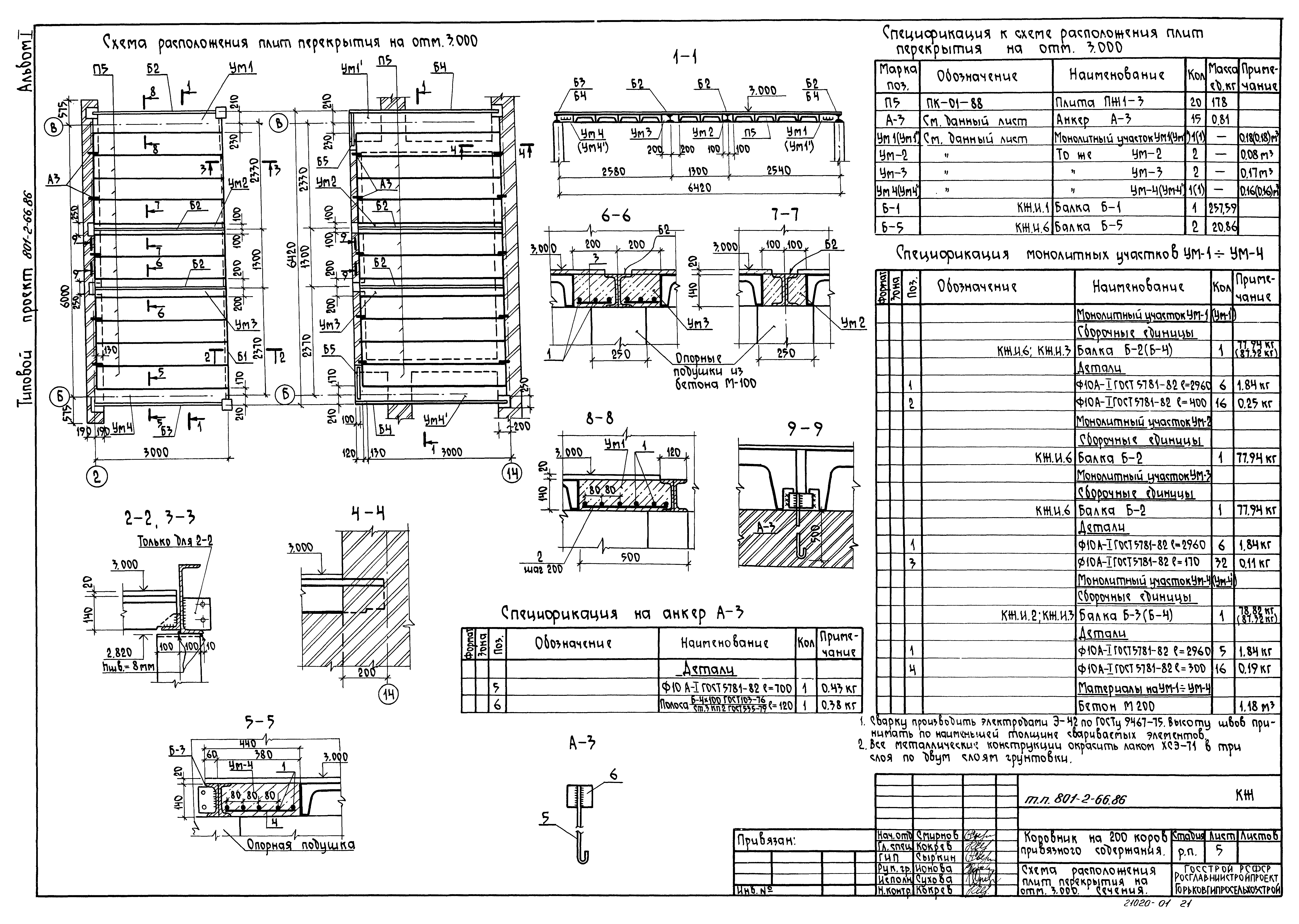
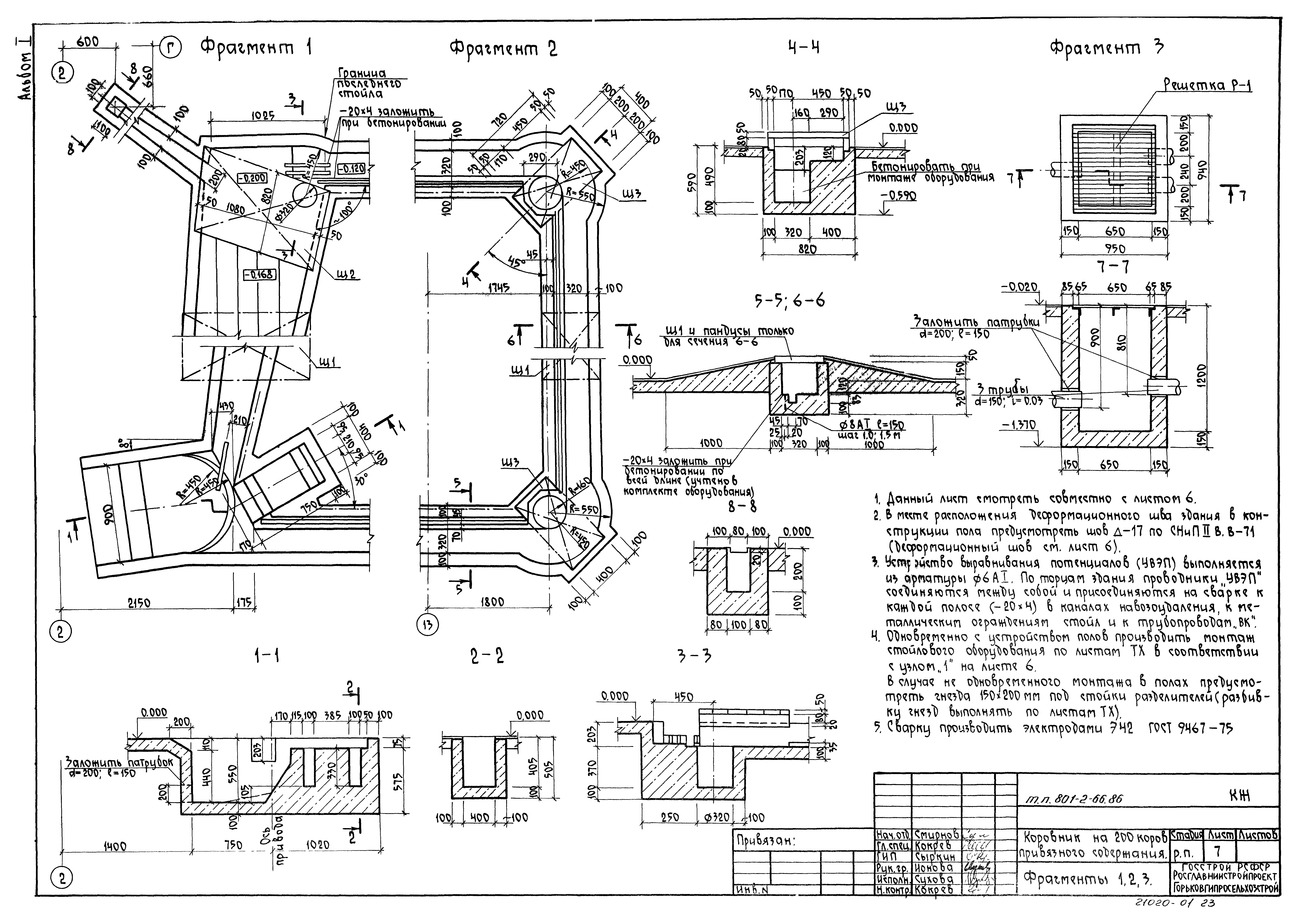
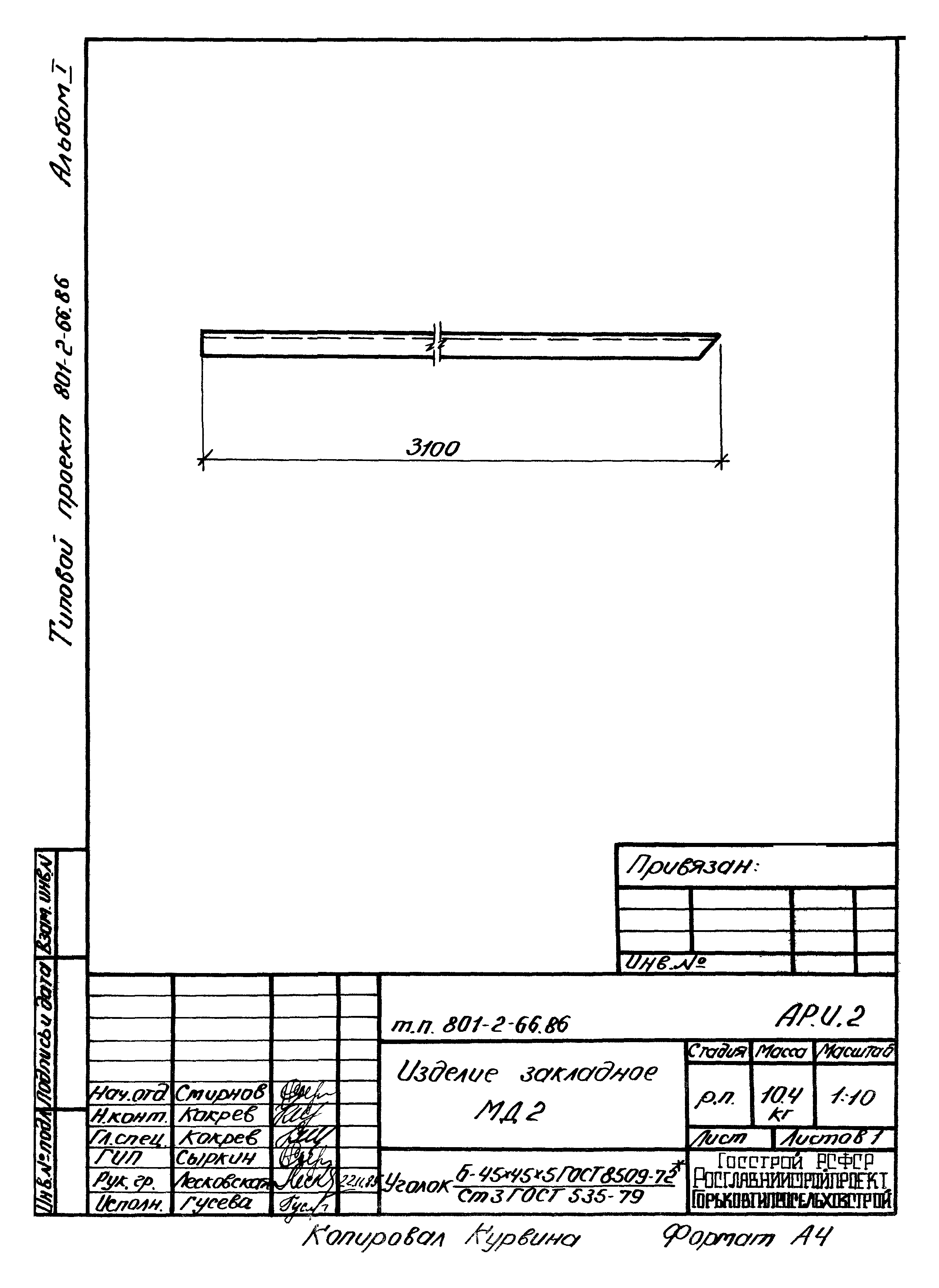
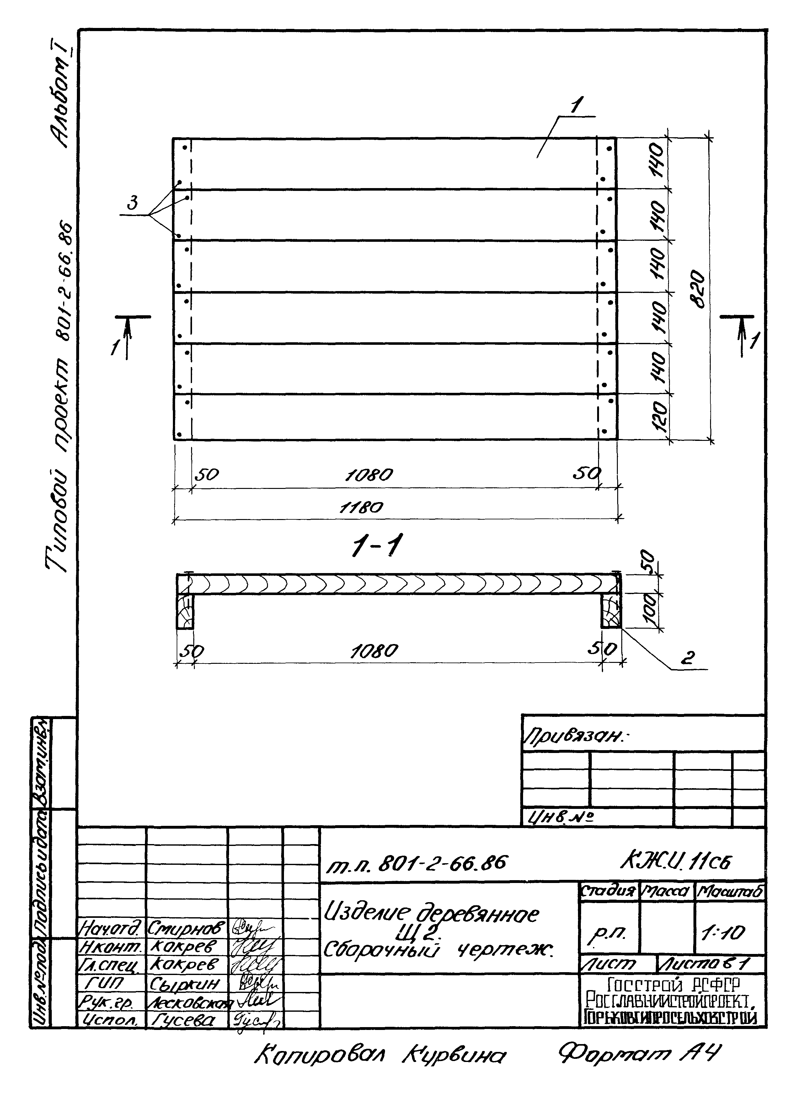
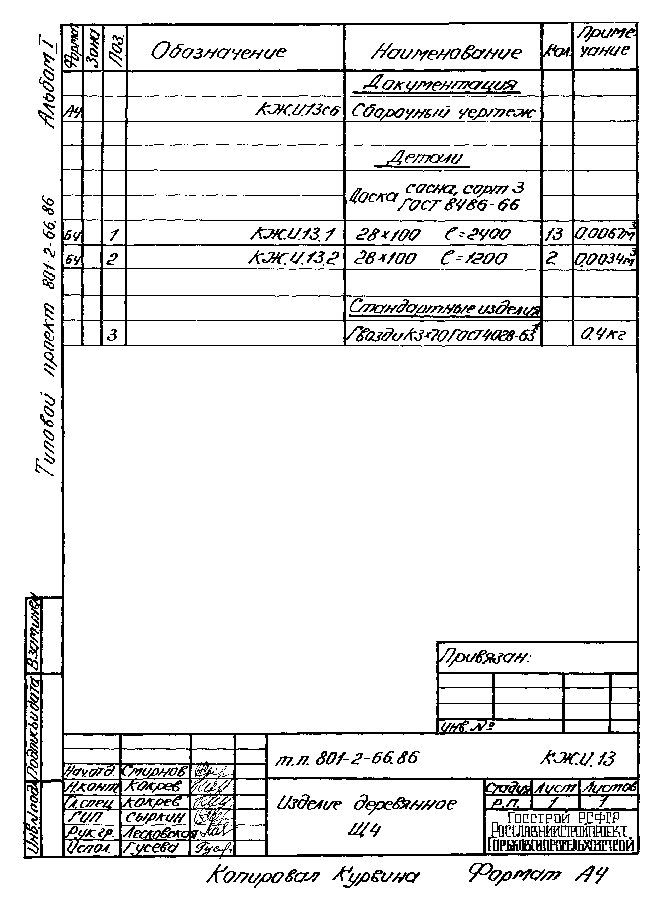
| Оглавление: | ПЗ-1 Пояснительная записка (начало) ПЗ-2 Пояснительная записка (продолжение) ПЗ-3 Пояснительная записка (окончание) ОС-1 Краткие рекомендации по организации строительства Основной комплект рабочих чертежей марки АР АР-1 Общие данные АР-2 План на отм. 0.000 АР-3 План на отм. 0.000 (вариант) АР-4 Фрагмент 1, 2, 3 АР-5 Разрез 1-1 АР-6 Фасад 1-14, 14-1, А-Г, Г-А АР-7 План полов и устройство выравнивания электрических потенциалов. План кровли АР-8 Венткамеры 1, 2 на отм. 3.000. Узлы 1, 2 АР-9 Обрамление ворот Основной комплект рабочих чертежей марки КЖ КЖ-1 Общие данные КЖ-2 Схема расположения фундаментов КЖ-3 Сечения фундаментов КЖ-4 Схемы расположения колонн, ферм, балок и плит покрытия. Разрезы. Узлы КЖ-5 Схема расположения плит перекрытия на отм. 3.000. Сечения КЖ-6 Схема каналов навозоудаления и кормушек КЖ-7 Фрагменты 1, 2, 3 АР.И.1 Перемычка БП-42А (БП3-2А, БП4-1А) АР.И.2 Изделие закладное МД2 АР.И.3 Изделия закладное МД 1 АР.И.4 Рамка металлическая РМ1 (РМ2, РМ3, РМ5, РМ5') АР.И.5 Рамка металлическая РМ4 КЖ.И.1 Балка Б-1 КЖ.И.2 Балка Б-3 КЖ.И.3 Балка Б-4 КЖ.И.4 Неподвижная опора Н01 (Н02) КЖ.И.4 СБ Неподвижная опора Н01 (Н02). Сборочный чертеж КЖ.И.5 Неподвижная опора Н03 КЖ.И.6 Балка Б2 (Б5) КЖ.И.7 Анкер А1 КЖ.И.8 Анкер А2 КЖ.И.9 Решетка Р-1 КЖ.И.10 Изделие деревянное Щ1 КЖ.И.10 СБ Изделие деревянное Щ1. Сборочный чертеж КЖ.И.11 Изделие деревянное Щ2 КЖ.И.11 СБ Изделие деревянное Щ2. Сборочный чертеж КЖ.И.12 Изделие деревянное Щ3 КЖ.И.13 Изделие деревянное Щ4 КЖ.И.13 СБ Изделие деревянное Щ4. Сборочный чертеж |
| Разработан: | Институт Горьковгипросельхозстрой |
| Утверждён: | 22.06.1984 Минсельхоз РСФСР (Russian Federation Minselkhoz 20) |











































