Скачать Серия 3.407.2-162 Выпуск 1. Порталы ошиновки. Рабочие чертежиДата актуализации: 01.01.2021
|
| Обозначение: | Серия 3.407.2-162 |
| Обозначение англ: | Series 3.407.2-162 |
| Статус: | действует |
| Название рус.: | Выпуск 1. Порталы ошиновки. Рабочие чертежи |
| Дата добавления в базу: | 01.09.2013 |
| Дата актуализации: | 01.01.2021 |
| Дата введения: | 11.07.1988 |
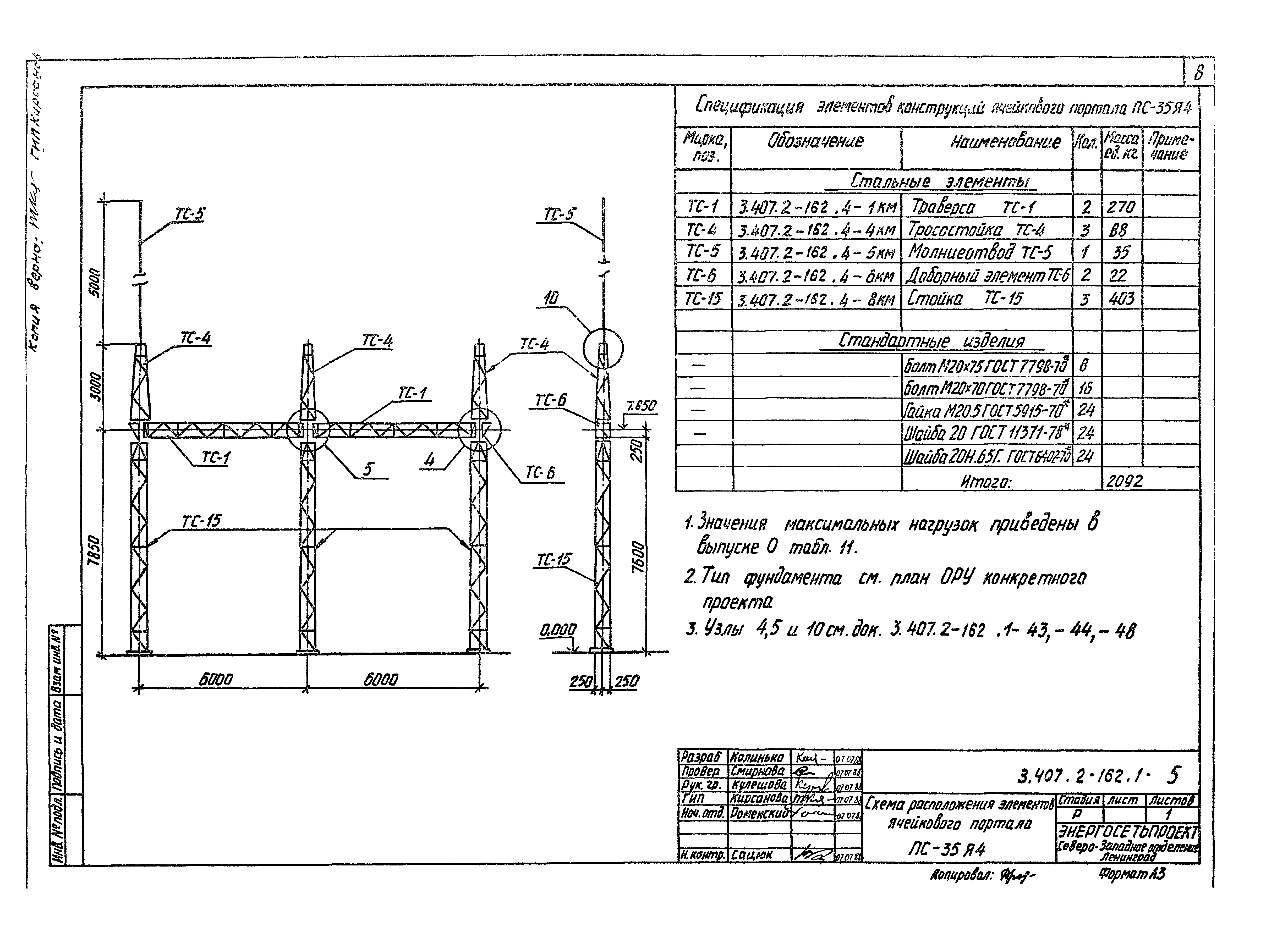
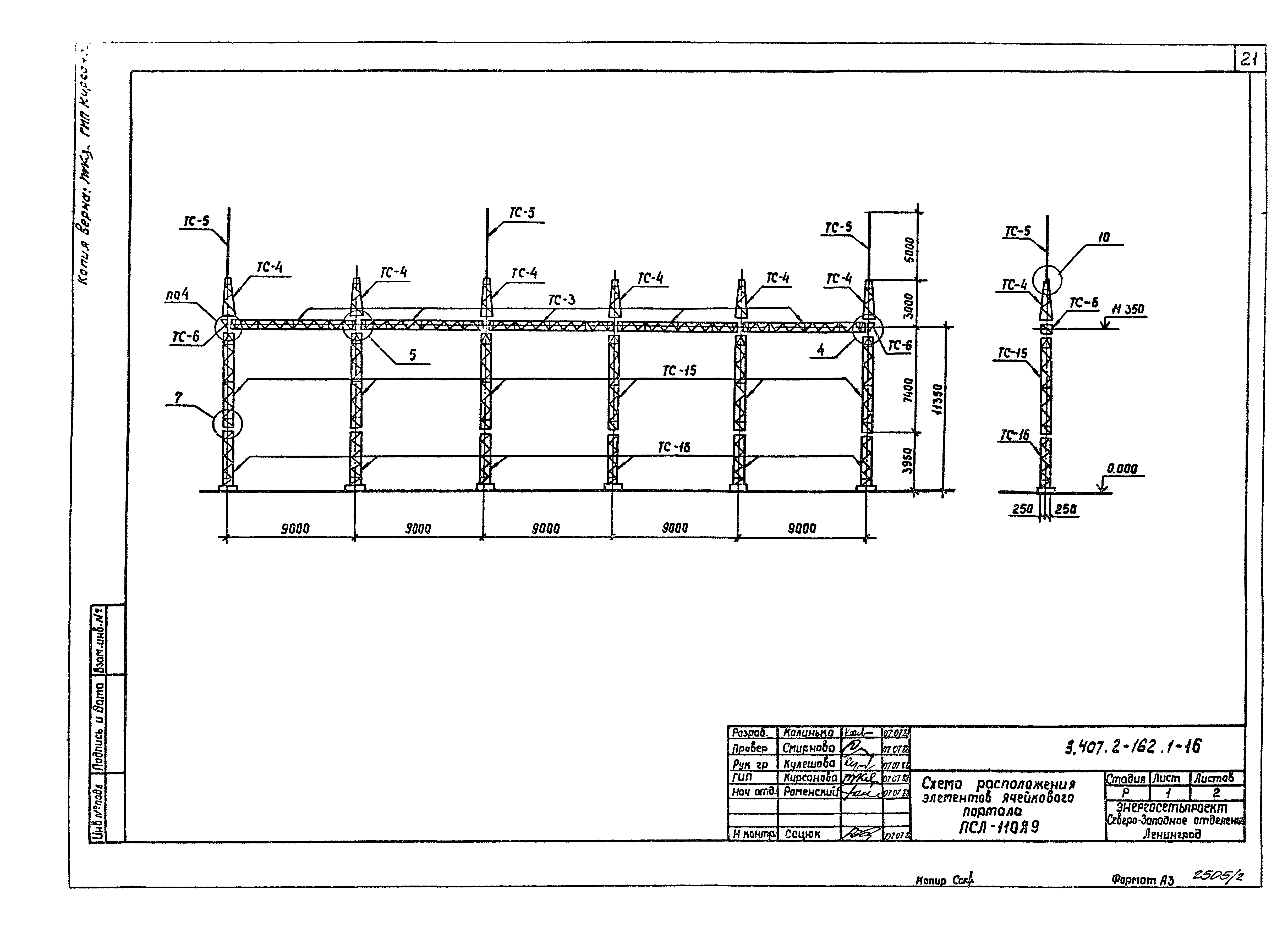
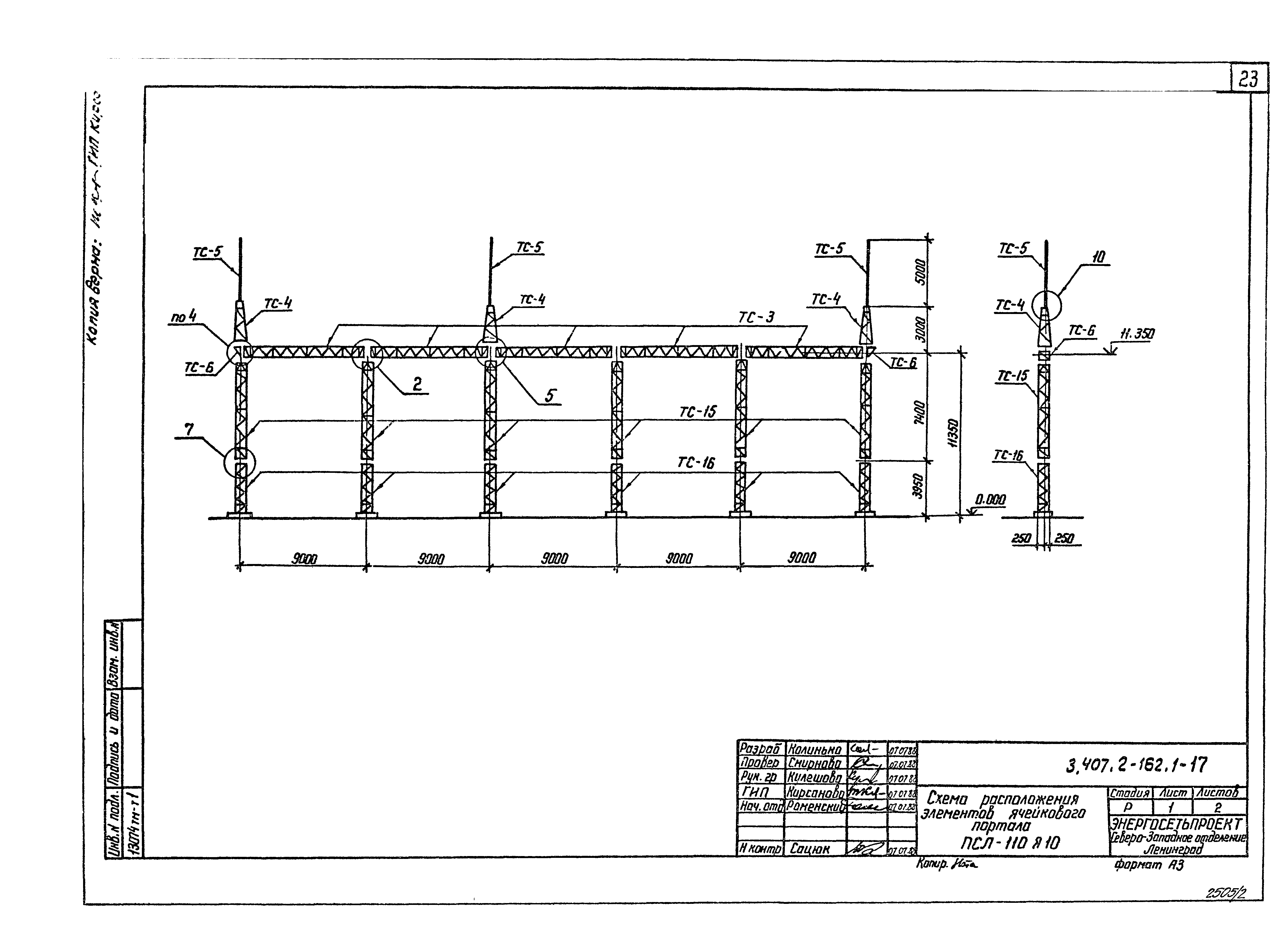
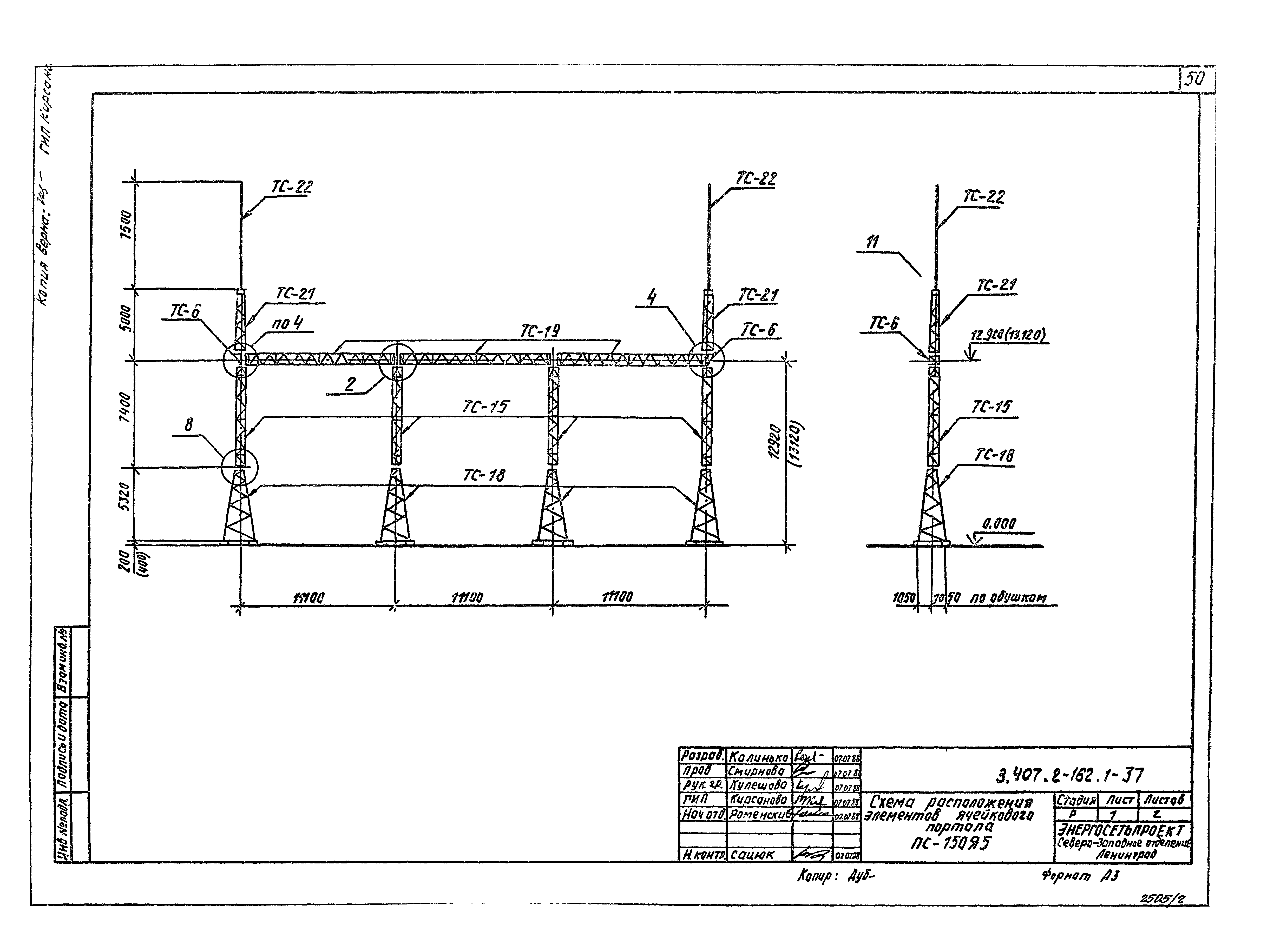
| Оглавление: | 3.407.2.162.1-ТО Техническое описание 3.407.2-162.1-1 Схема расположения элементов шинного портала ПС-35 ш 3.407.2-162.1-2 Схема расположения элементов ячейкового портала ПС-35 Я1 3.407.2-162.1-3 Схема расположения элементов ячейкового портала ПС-35 Я2 3.407.2-162.1-4 Схема расположения элементов ячейкового портала ПС-35 Я3 3.407.2-162.1-5 Схема расположения элементов ячейкового портала ПС-35 Я4 3.407.2-162.1-6 Схема расположения элементов ячейкового портала ПС-35 Я5 3.407.2-162.1-7 Схема расположения элементов шинного портала ПС-110 ш 3.407.2-162.1-8 Схема расположения элементов ячейкового портала ПСЛ-110Я1 3.407.2-162.1-9 Схема расположения элементов ячейкового портала ПСЛ-110Я2 3.407.2-162.1-10 Схема расположения элементов ячейкового портала ПСЛ-110Я3 3.407.2-162.1-11 Схема расположения элементов ячейкового портала ПСЛ-110Я4 3.407.2-162.1-12 Схема расположения элементов ячейкового портала ПСЛ-110Я5 3.407.2-162.1-13 Схема расположения элементов ячейкового портала ПСЛ-110Я6 3.407.2-162.1-14 Схема расположения элементов ячейкового портала ПСЛ-110Я7 3.407.2-162.1-15 Схема расположения элементов ячейкового портала ПСЛ-110Я8 3.407.2-162.1-16 Схема расположения элементов ячейкового портала ПСЛ-110Я9 3.407.2-162.1-17 Схема расположения элементов ячейкового портала ПСЛ-110Я10 3.407.2-162.1-18 Схема расположения элементов ячейкового портала ПСЛ-110Я11 3.407.2-162.1-19 Схема расположения элементов ячейкового портала ПСЛ-110Я12 3.407.2-162.1-20 Схема расположения элементов ячейкового портала ПСТ-110Я1 3.407.2-162.1-21 Схема расположения элементов ячейкового портала ПСТ-110Я2 3.407.2-162.1-22 Схема расположения элементов ячейкового портала ПСТ-110Я3 3.407.2-162.1-23 Схема расположения элементов ячейкового портала ПСТ-110Я4 3.407.2-162.1-24 Схема расположения элементов ячейкового портала ПСТ-110Я5 3.407.2-162.1-25 Схема расположения элементов ячейкового портала ПСТ-110Я6 3.407.2-162.1-26 Схема расположения элементов ячейкового портала ПСТ-110Я7 3.407.2-162.1-27 Схема расположения элементов ячейкового портала ПСТ-110Я8 3.407.2-162.1-28 Схема расположения элементов ячейкового портала ПСТ-110Я9 3.407.2-162.1-29 Схема расположения элементов ячейкового портала ПСТ-110Я10 3.407.2-162.1-30 Схема расположения элементов ячейкового портала ПСТ-110Я11 3.407.2-162.1-31 Схема расположения элементов ячейкового портала ПСТ-110Я12 3.407.2-162.1-32 Схема расположения элементов шинного портала ПС-150 ш 3.407.2-162.1-33 Схема расположения элементов ячейкового портала ПС-150Я1 3.407.2-162.1-34 Схема расположения элементов ячейкового портала ПС-150Я2 3.407.2-162.1-35 Схема расположения элементов ячейкового портала ПС-150Я3 3.407.2-162.1-36 Схема расположения элементов ячейкового портала ПС-150Я4 3.407.2-162.1-37 Схема расположения элементов ячейкового портала ПС-150Я5 3.407.2-162.1-38 Схема расположения элементов ячейкового портала ПС-150Я6 3.407.2-162.1-39 Схема расположения элементов ячейкового портала ПС-150Я7 3.407.2-162.1-40 Порталы ошиновки. Узел1 3.407.2-162.1-41 Порталы ошиновки. Узел2 3.407.2-162.1-42 Порталы ошиновки. Узел3 3.407.2-162.1-43 Порталы ошиновки. Узел4 3.407.2-162.1-44 Порталы ошиновки. Узел5 3.407.2-162.1-45 Порталы ошиновки. Узел6 3.407.2-162.1-46 Порталы ошиновки. Узел(7, 8) 3.407.2-162.1-47 Порталы ошиновки. Узел9 3.407.2-162.1-48 Порталы ошиновки. Узел(10,11) |
| Разработан: | Севзапэнергосетьпроект |
| Утверждён: | 11.07.1988 Минэнерго СССР (USSR Minenergo 11) |
| Издан: | ЦИТП Госстроя СССР (CITP, Gosstroy (USSR) 1988 г. ) |
| Заменяет собой: |
































































