Скачать Типовой проект 801-2-50.85 Альбом I. Архитектурно-строительные решения. Конструкции деревянныеДата актуализации: 01.01.2021
|
| Обозначение: | Типовой проект 801-2-50.85 |
| Обозначение англ: | 801-2-50.85 |
| Статус: | не определен законодательством |
| Название рус.: | Альбом I. Архитектурно-строительные решения. Конструкции деревянные |
| Дата добавления в базу: | 01.09.2013 |
| Дата актуализации: | 01.01.2021 |
| Дата введения: | 31.10.1983 |
| Дата окончания срока действия: | 30.06.2003 |
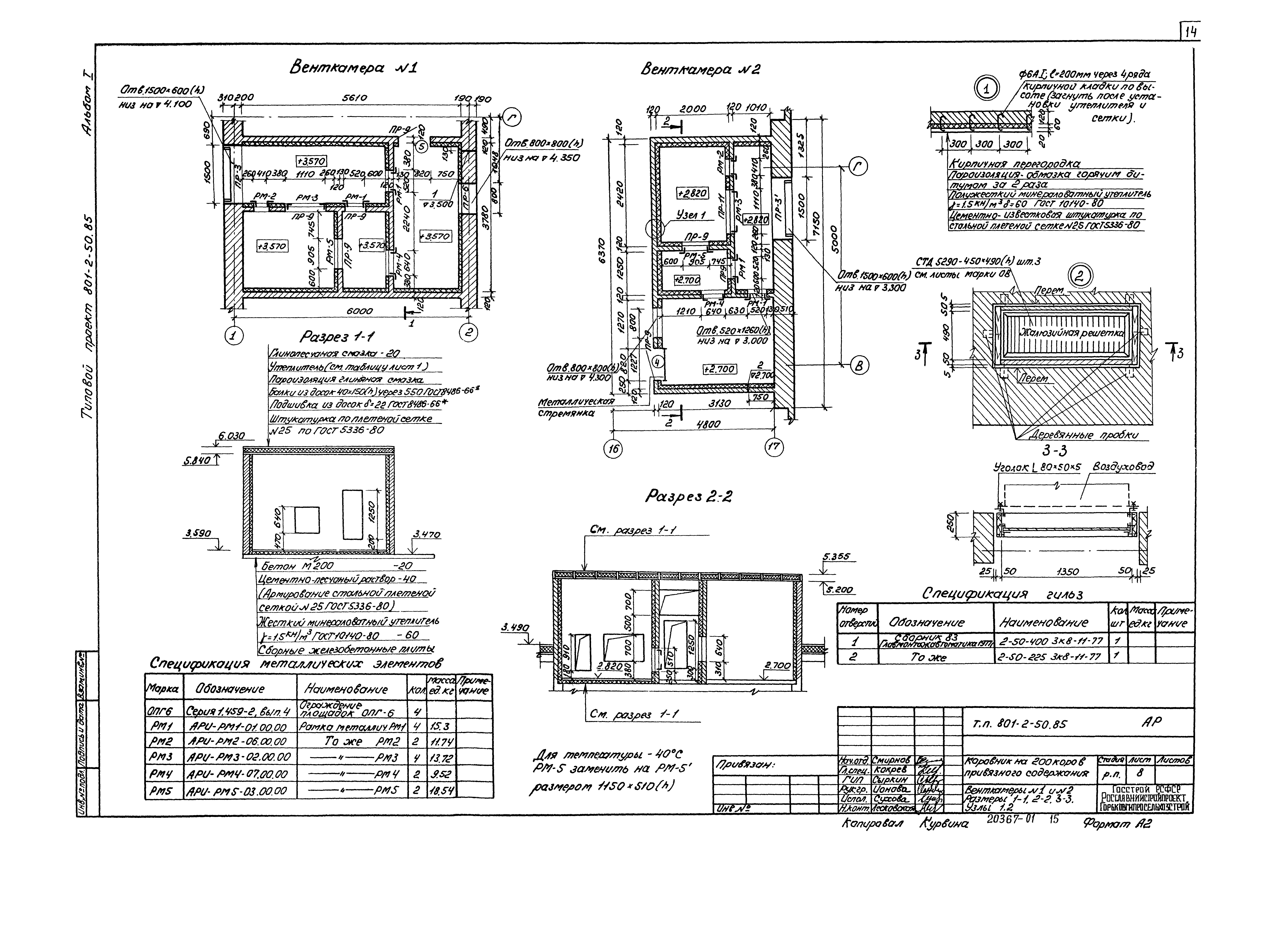
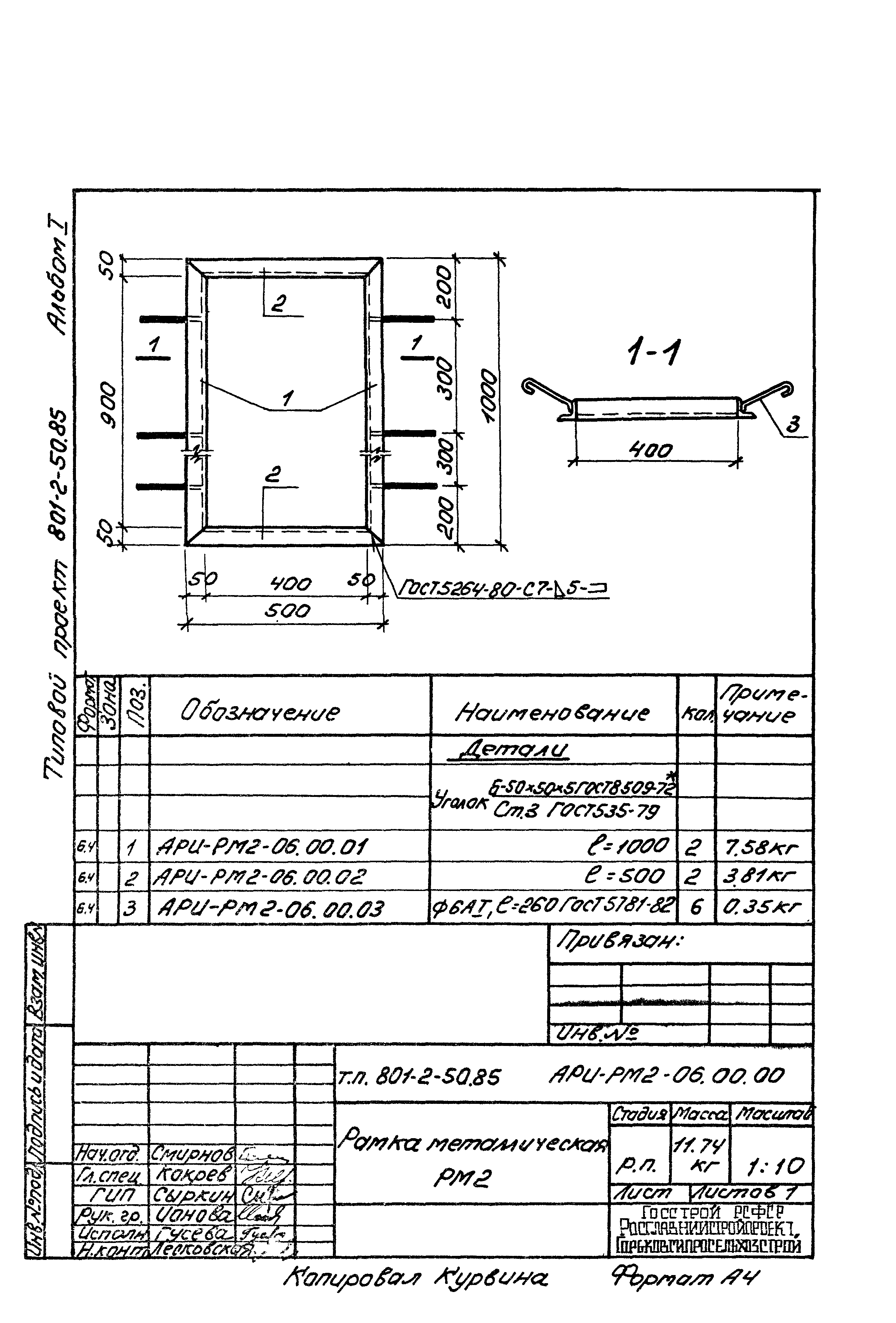
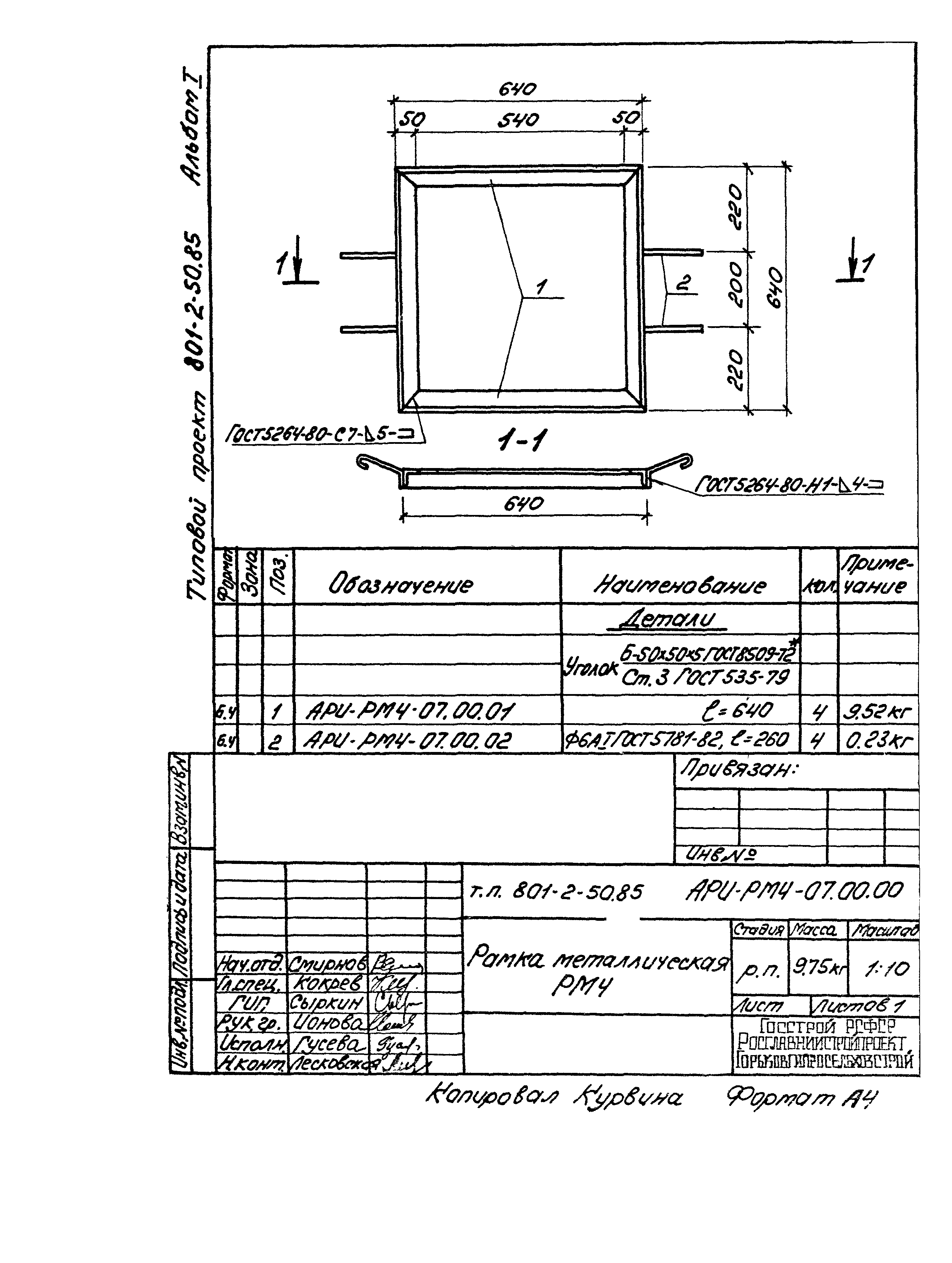
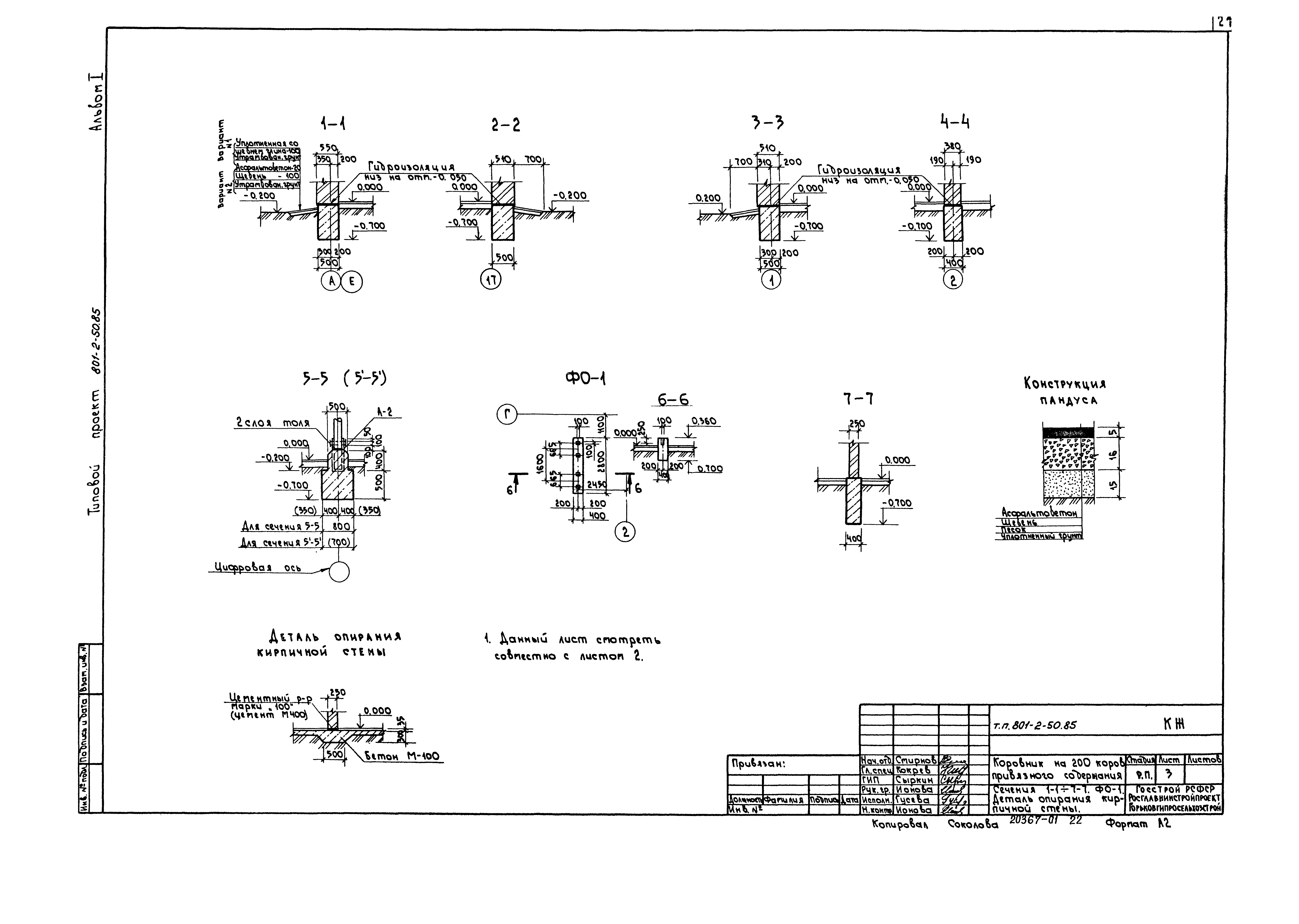
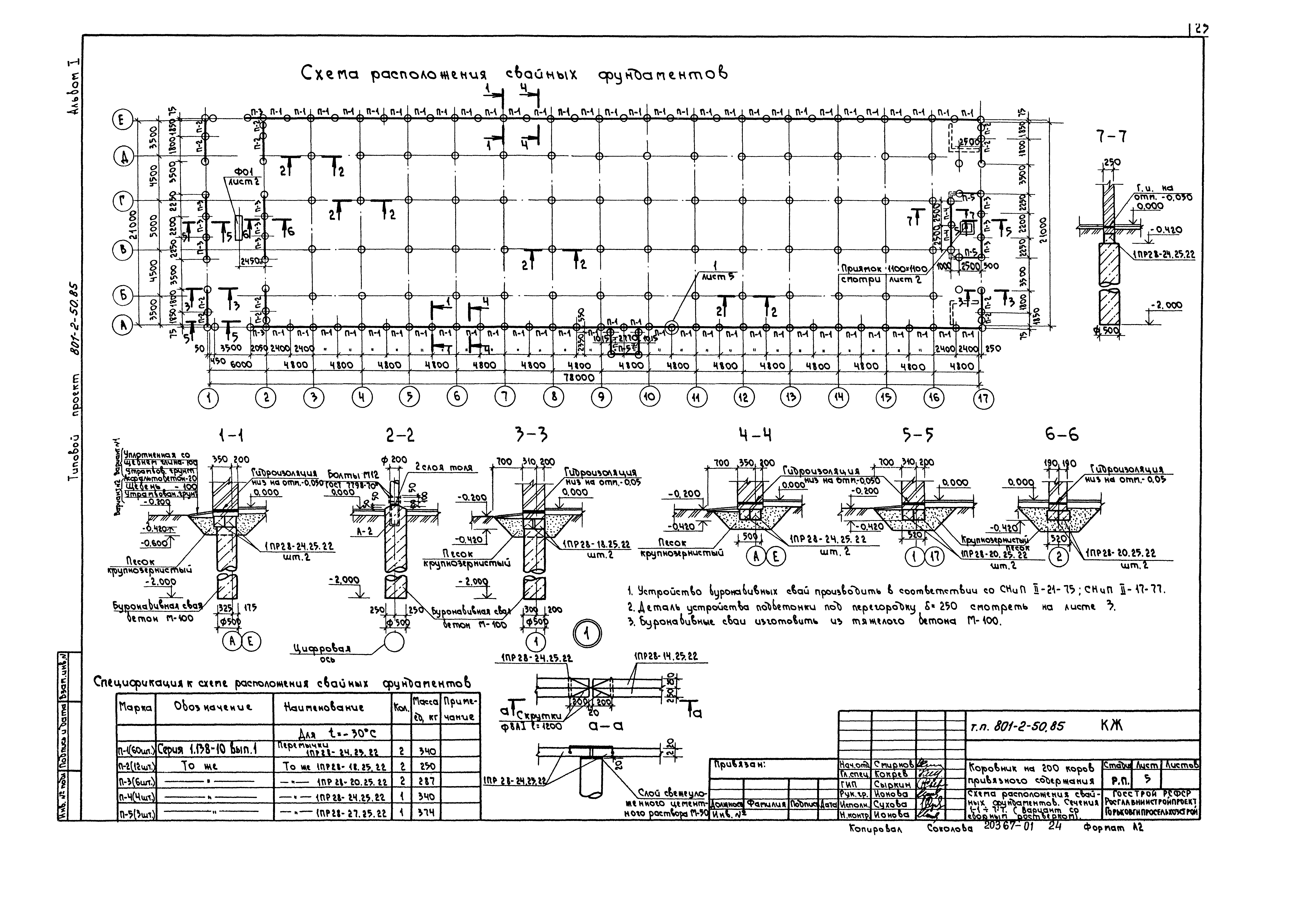
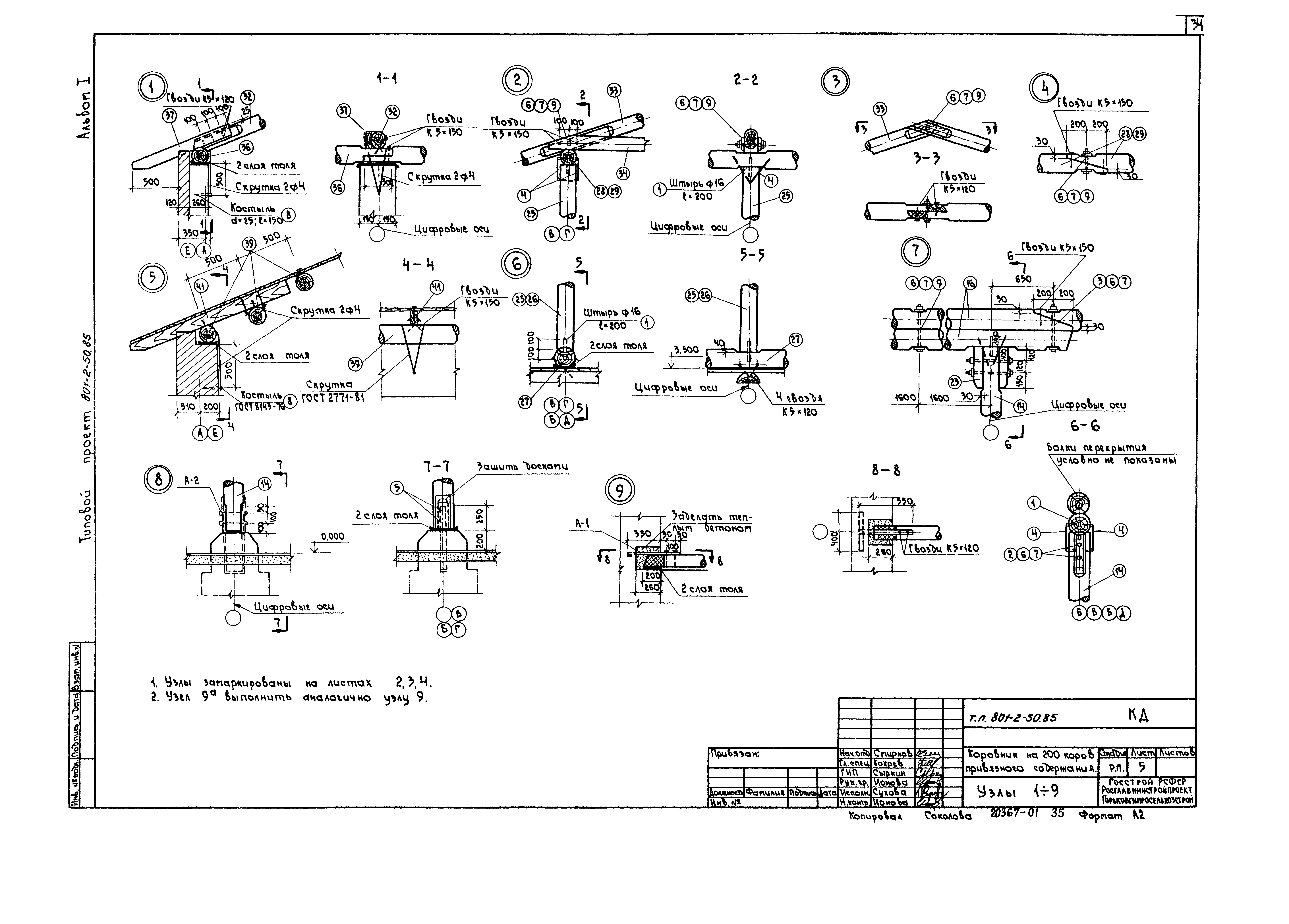
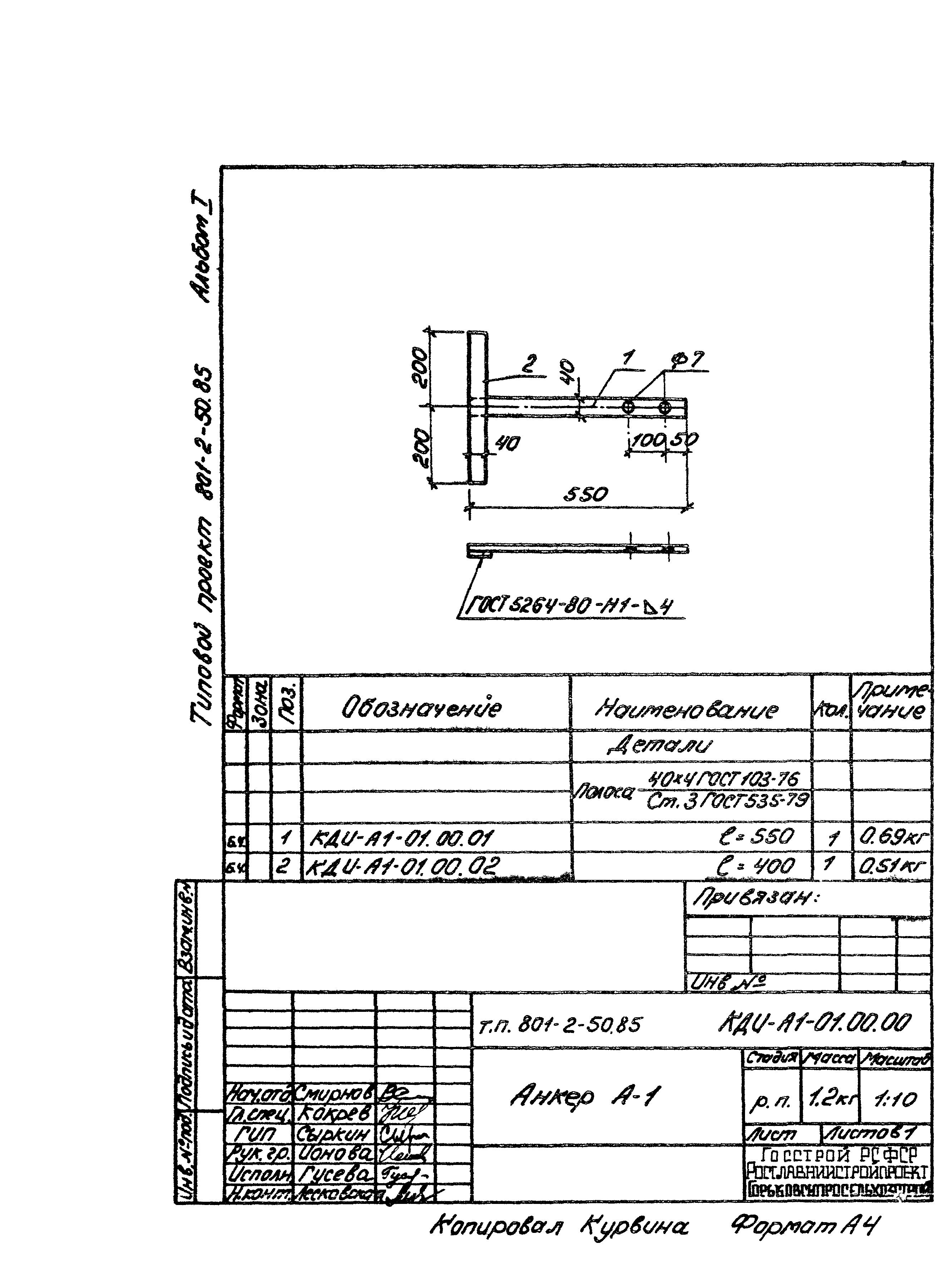
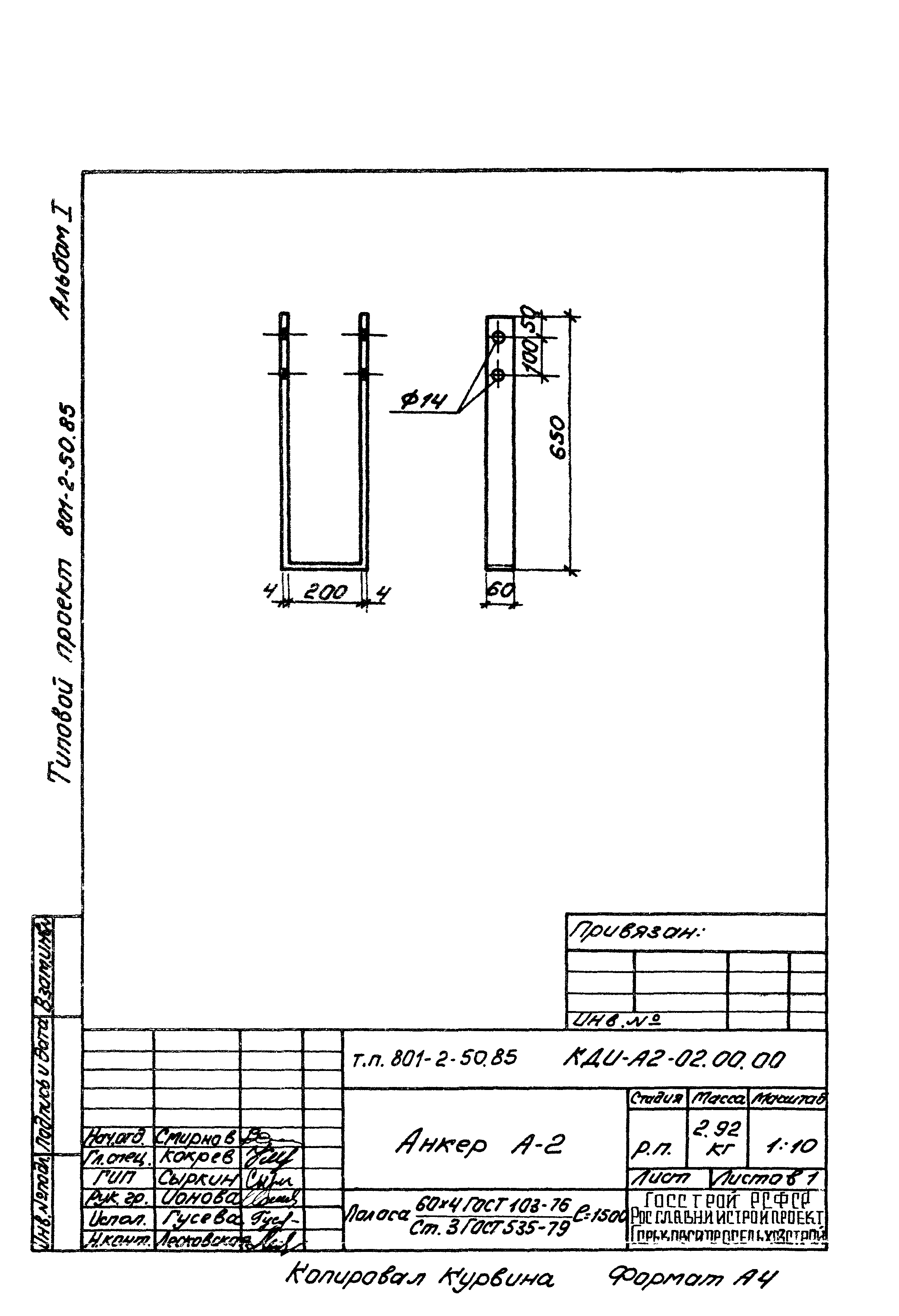
| Оглавление: | ПЗ-1 Пояснительная записка (начало) ПЗ-2 Пояснительная записка (продолжение) ПЗ-3 Пояснительная записка (продолжение) ПЗ-4 Пояснительная записка (окончание) Р Основной комплект рабочих чертежей марки АР АР-1 Общие данные АР-2 План на отм. 0.001 АР-3 План на отм. 0.000 (вариант) АР-4 Фрагменты 1, 2, 3 АР-5 Разрезы 1-1, 2-2. Узлы I, II, III АР-6 Фасады. ОК-1, ОК-2 АР-7 План чердака. План кровли АР-8 Венткамеры № 1 и № 2. Разрезы 1-1, 2-2, 3-3. Узлы 1, 2 АР-9 План полов и устройство выравнивания электрических потенциалов АР-10 Обрамление ворот АРИ-РМ-101.00.00 Рамка металлическая РМ1 АРИ-РМ3-02.00.00 Рамка металлическая РМ3 АРИ-РМ5-03.00.00 Рамка металлическая РМ5 АРИ-МД1-04.00.00 Изделие закладное МД1 АРИ-05.00.00 Перемычки БП-4-1А, БП4-2А, БП3-2А АРИ-РМ2-06.00.00 Рамка металлическая РМ2 АРИ-РМ4-07.00.00 Рамка металлическая РМ4 АРИ-МД2-08.00.00 Изделие закладное МД2 Основной комплект рабочих чертежей марки КЖ КЖ-1 Общие данные КЖ-2 Схема расположения фундаментов КЖ-3 Сечения 1-1 - 7-7. ФО-1. Деталь опирания кирпичной стены КЖ-4 Схема расположения свайных фундаментов. Сечения 1-1 - 6-6 (вариант) КЖ-5 Схема расположения свайных фундаментов. Сечения 1-1 - 7-7 (вариант со сборным ростверком) КЖ-6 Схема каналов навозоудаления и кормушек КЖ-7 Фрагменты 1, 2, 3 КЖ-8 Схемы площадок на отм. 3,470 и 2,700. Схема опор трубопроводов КЖИ-А3-01.00.00 Анкер А3 КЖИ-СО-02.00.00 Скользящая опора СО КЖИ-НО-03.00.00СБ Неподвижная опора НО КЖИ-НО-03.00.00 Неподвижная опора НО КЖИ-Р1-04.00.00 Решетка Р1 КЖИ-Щ1-05.00.00 Изделие деревянное Щ1 КЖИ-Щ2-06.00.00 Изделие деревянное Щ2 КЖИ-Щ3-07.00.00 Изделие деревянное Щ3 КЖИ-Щ4-08.00.00 Изделие деревянное Щ4 Основной комплект рабочих чертежей марки КД КД-1 Общие данные КД-2 Схема перекрытия КД-3 Схема покрытия КД-4 Разрезы 1-1 - 5-5 КД-5 Узлы 1-9 КД-6 Узлы 10-15. Узел кровли по оси "17" КД-7 Слуховое окно ОС-1 КДИ-А1-01.00.00 Анкер А-1 КДИ-А2-02.00.00 Анкер А-2 КДИ-А4-04.00.00 Анкер А-4 КДИ-КС9-12-04.00.00 Коробка КС9 КДИ-ПО9-12л-05.00.00 Переплет оконный ПО9-12л КДИ-ПЖ9-12пр-06.00.00 Переплет жалюзийный ПЖ9-12 пр. |
| Разработан: | Институт Горьковгипросельхозстрой |
| Утверждён: | 03.06.1983 Минсельхоз РСФСР (Russian Federation Minselkhoz 5) |
























































