Скачать Типовой проект 801-2-50.85 Альбом II. Пояснительная записка. Технология и механизация производственных процессов. Внутренние водопровод и канализация. Отопление и вентиляция. Электротехнические чертежи. Автоматизация санитарно-технических системДата актуализации: 01.01.2021
|
| Обозначение: | Типовой проект 801-2-50.85 |
| Обозначение англ: | 801-2-50.85 |
| Статус: | не определен законодательством |
| Название рус.: | Альбом II. Пояснительная записка. Технология и механизация производственных процессов. Внутренние водопровод и канализация. Отопление и вентиляция. Электротехнические чертежи. Автоматизация санитарно-технических систем |
| Дата добавления в базу: | 01.09.2013 |
| Дата актуализации: | 01.01.2021 |
| Дата введения: | 31.10.1983 |
| Дата окончания срока действия: | 30.06.2003 |
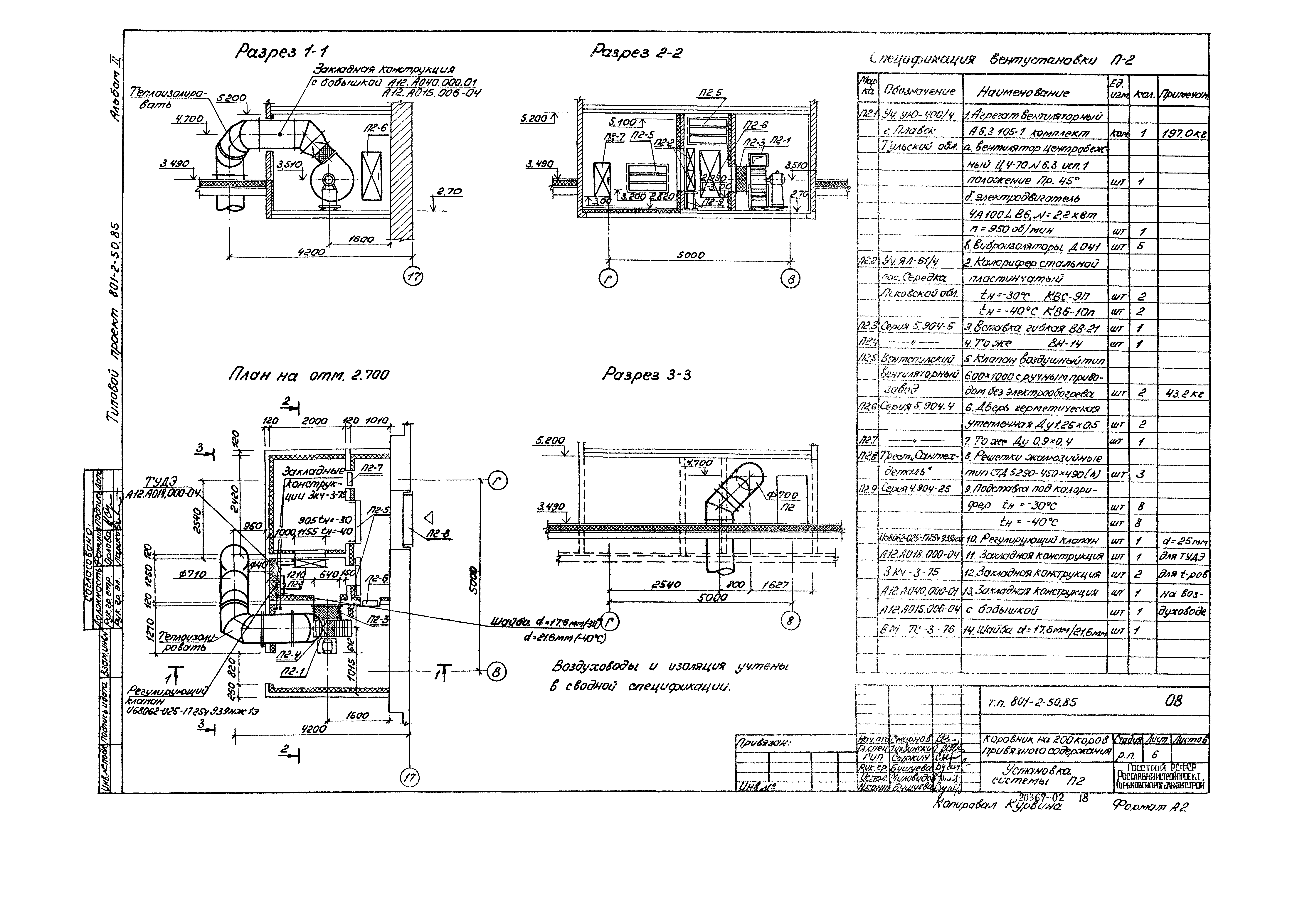
| Оглавление: | Основной комплект рабочих чертежей марки ТХ ТХ-1 Общие данные (начало) ТХ-2 Общие данные (продолжение) ТХ-3 Общие данные (окончание) ТХ-4 Размещение технологического оборудования. План. Разрезы ТХ-5 Механизация доения. Вариант I с применением установки ДАС-2Б. План. Разрезы. Схема разводки вакуумпровода ТХ-6 Механизация доения. Вариант I I с применением установки АДМ-8. План. Разрезы ТХ-7 Механизация доения. Вариант I I с применением установки АДМ-8. Схема разводки вакуумпровода и молокопровода. Узлы. Разрезы ТХ-8 Механизация уборки навоза транспортерами ТСН-160. План. Разрез ТХ-9 Механизация уборки навоза транспортерами ТСН-160. Узлы. Разрезы Основной комплект рабочих чертежей марки ОВ ОВ-1 Общие данные (начало) ОВ-2 Общие данные (окончание) ОВ-3 План на отм. 0.000. Разрез 1-1 ОВ-4 Схемы систем П1 и П2. Схемы систем теплоснабжения установок П1; П2 и П3 ОВ-5 Установка системы П1 ОВ-6 Установка системы П2 Основной комплект рабочих чертежей марки ВК ВК-1 Общие данные (начало) ВК-2 Общие данные (окончание) ВК-3 План. Схемы систем В0; Т3, Т31 Основной комплект рабочих чертежей марки ЭМ ЭМ-1 Общие данные ЭМ-2 Силовое электрооборудование. Планы электросети на отметках 0,000; 3,240 и 2,700 ЭМ-3 Силовое электрооборудование. Расчетная схема электросети 380/220 В ЭМ-4 Молниезащита Основной комплект рабочих чертежей марки ЭО ЭО-1 Общие данные ЭО-2 Электроосвещение. Планы электросети на отметках 0,000; 3,340 и 2,700 Основной комплект рабочих чертежей марки АОВ АОВ-1 Общие данные (начало) АОВ-2 Общие данные (окончание) АОВ-3 Приточная система П1 (П2). Схема функциональная АОВ-4 Приточные системы П1 и П2. Схема соединений внешних проводок АОВ-5 Приточная система П1 (П2) Схема внешних подключений щита автоматизации АОВ-6 Приточные системы П-1; П-2. План расположения |
| Разработан: | Институт Горьковгипросельхозстрой |
| Утверждён: | 03.06.1983 Минсельхоз РСФСР (Russian Federation Minselkhoz 5) |































