Скачать Серия 3.501.9-158 Выпуск 0. Материалы для проектированияДата актуализации: 01.01.2021
|
| Обозначение: | Серия 3.501.9-158 |
| Обозначение англ: | Series 3.501.9-158 |
| Статус: | не определен законодательством |
| Название рус.: | Выпуск 0. Материалы для проектирования |
| Дата добавления в базу: | 01.09.2013 |
| Дата актуализации: | 01.01.2021 |
| Дата введения: | 15.07.1989 |
| Дата окончания срока действия: | 30.06.2003 |
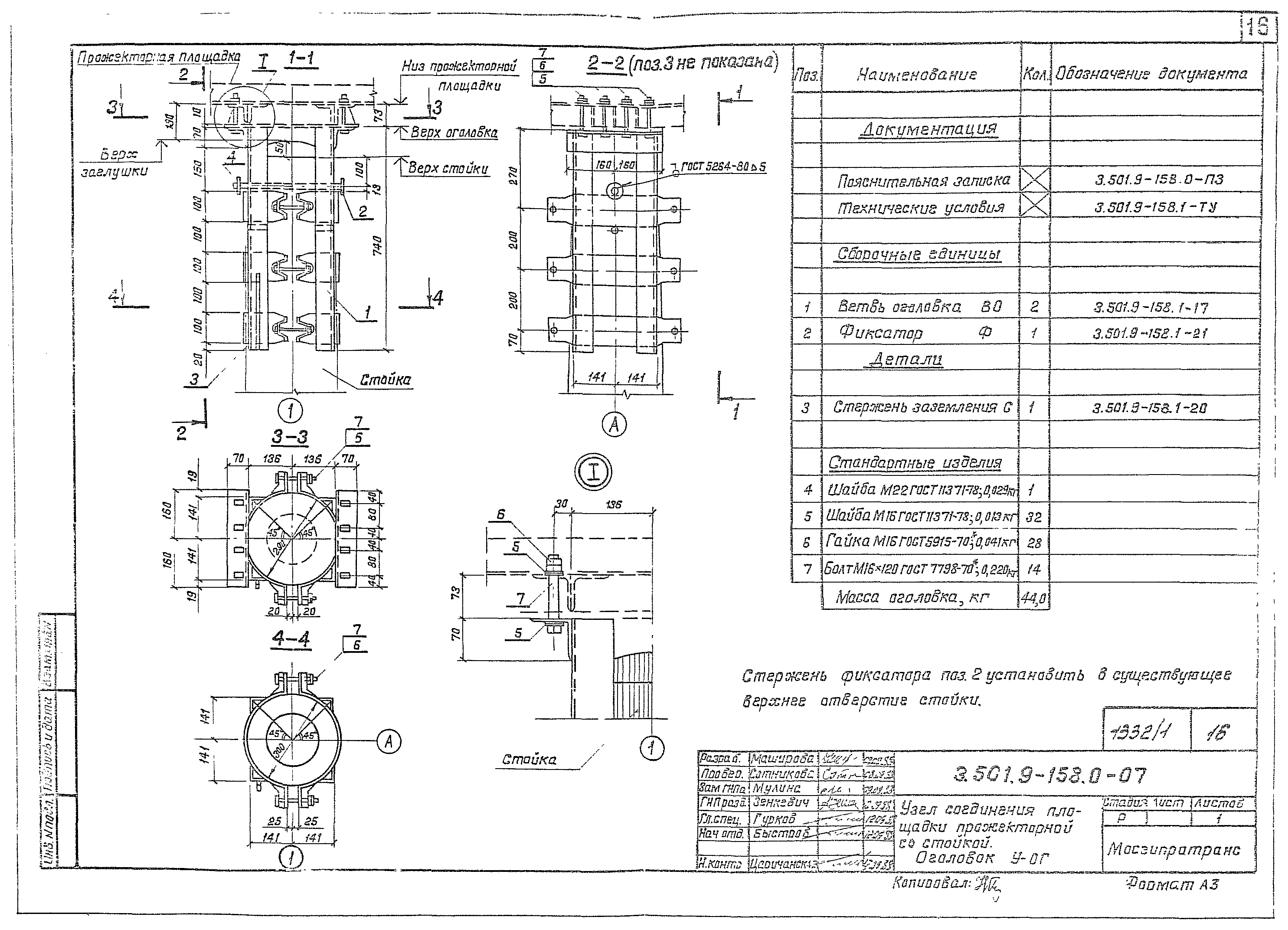
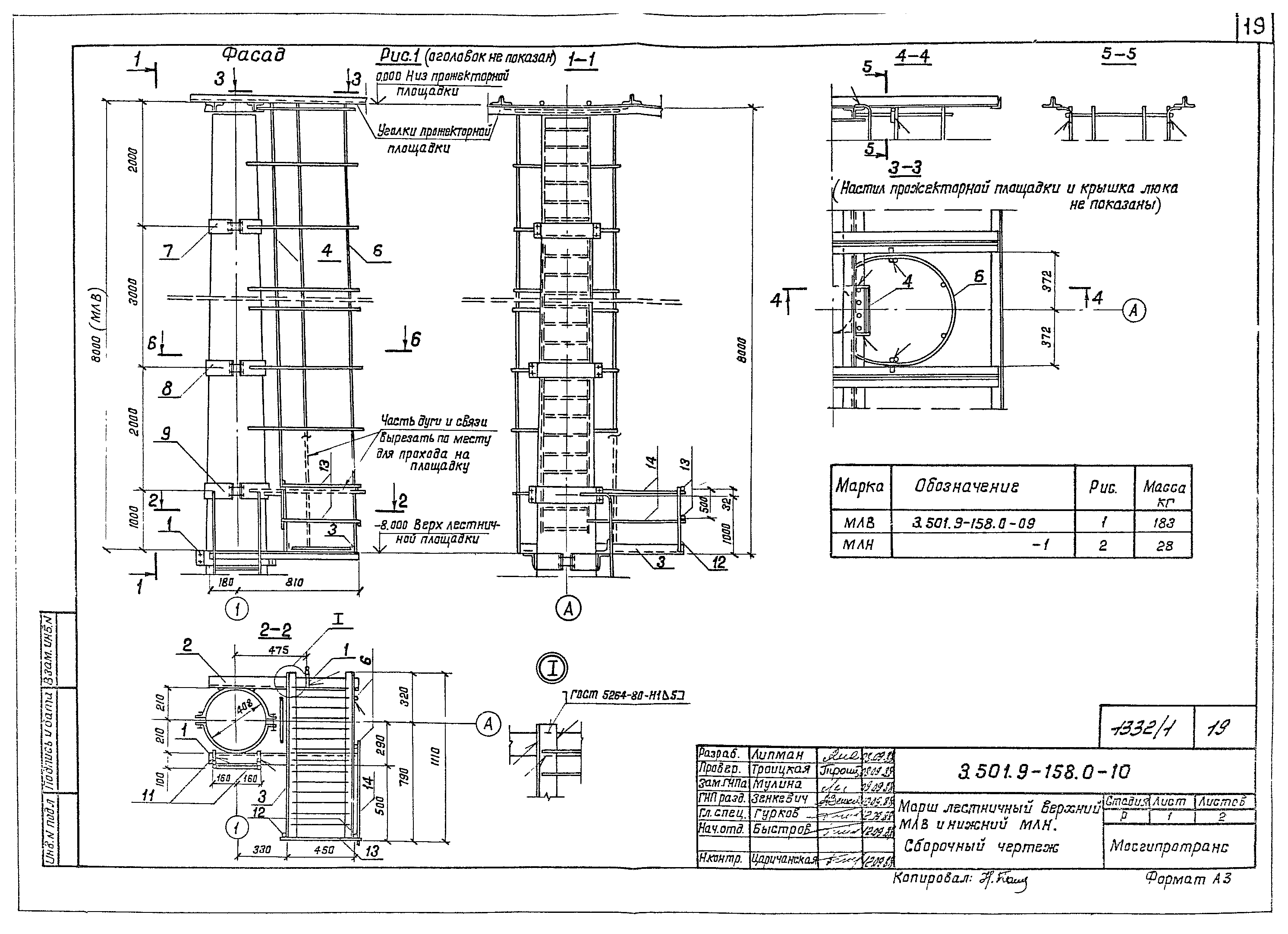
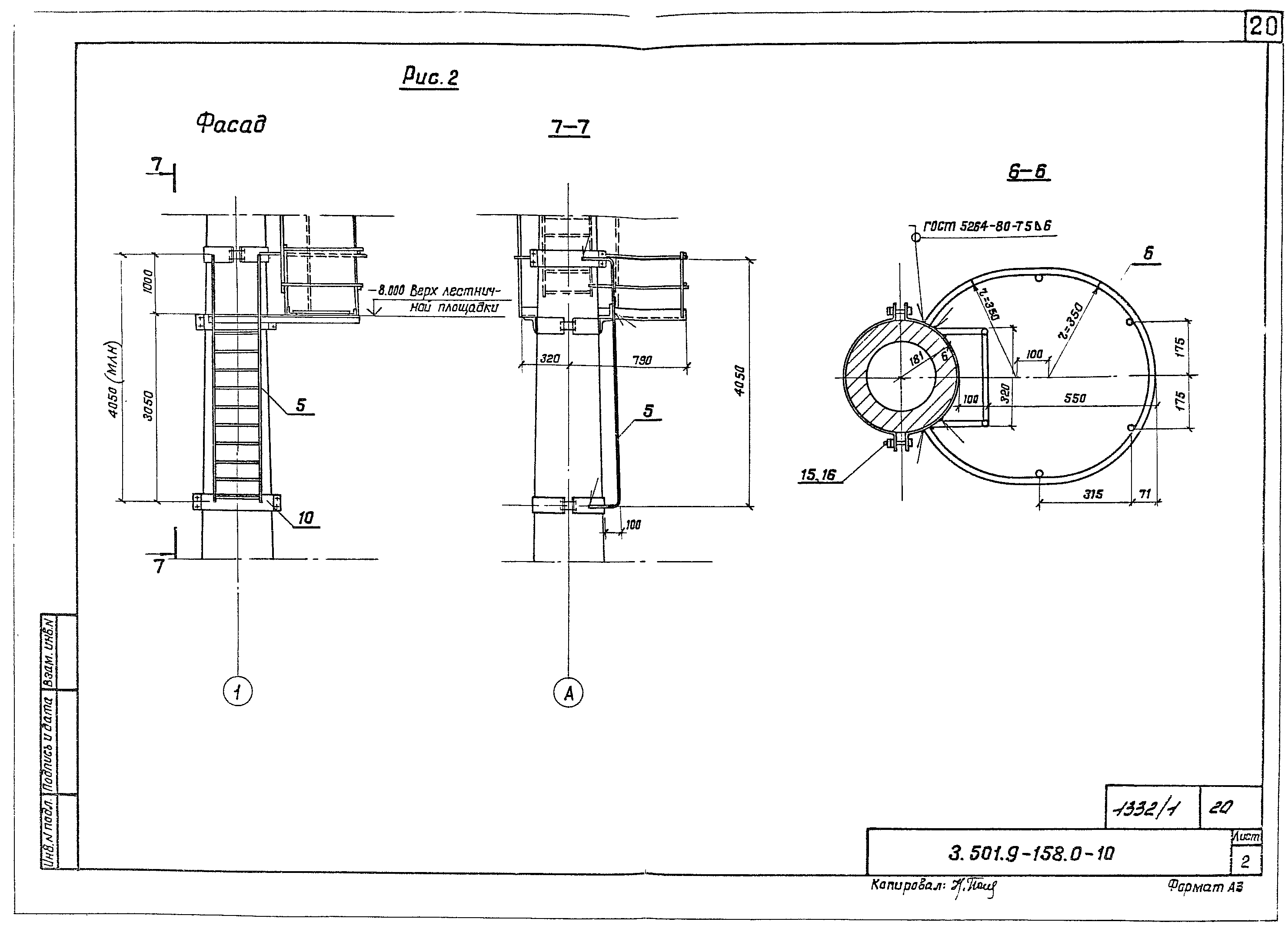
| Оглавление: | 3.501.9-158.0-ПЗ Пояснительная записка 3.501.9-158.0-01НИ Железобетонные конструкции. Номенклатура изделий 3.501.9-158.0-02НИ Металлические конструкции. Номенклатура изделий 3.501.9-158.0-03 Схема расположения мачты 3.501.9-158.0-04 Таблица применимости стоек, фундаментов и опорных плит мачт 3.501.9-158.0-05 Расчетная таблица вариантов осветительных приборов 3.501.9-158.0-06 Схемы и условия установки мачты в пучинистых грунтах 3.501.9-158.0-07 Узел соединения площадки прожекторной со стойкой. Оголовок У-0Г 3.501.9-158.0-08 Схемы расположения хомутов крепления лестничных маршей к стойке мачты 3.501.9-158.0-09 Марш лестничный верхний и нижний МЛВ, МЛН 3.501.9-158.0-10 Марш лестничный верхний и нижний МЛВ, МЛН. Сборочный чертеж 3.501.0-158-0-11 Схемы монтажа мачты 3.501.0-158-0-12 Ведомость потребности в материалах на металлические конструкции мачты |
| Разработан: | Мосгипротранс |
| Утверждён: | 16.01.1989 Минтрансстрой СССР (USSR Mintransstroy ПИ-36) |





















