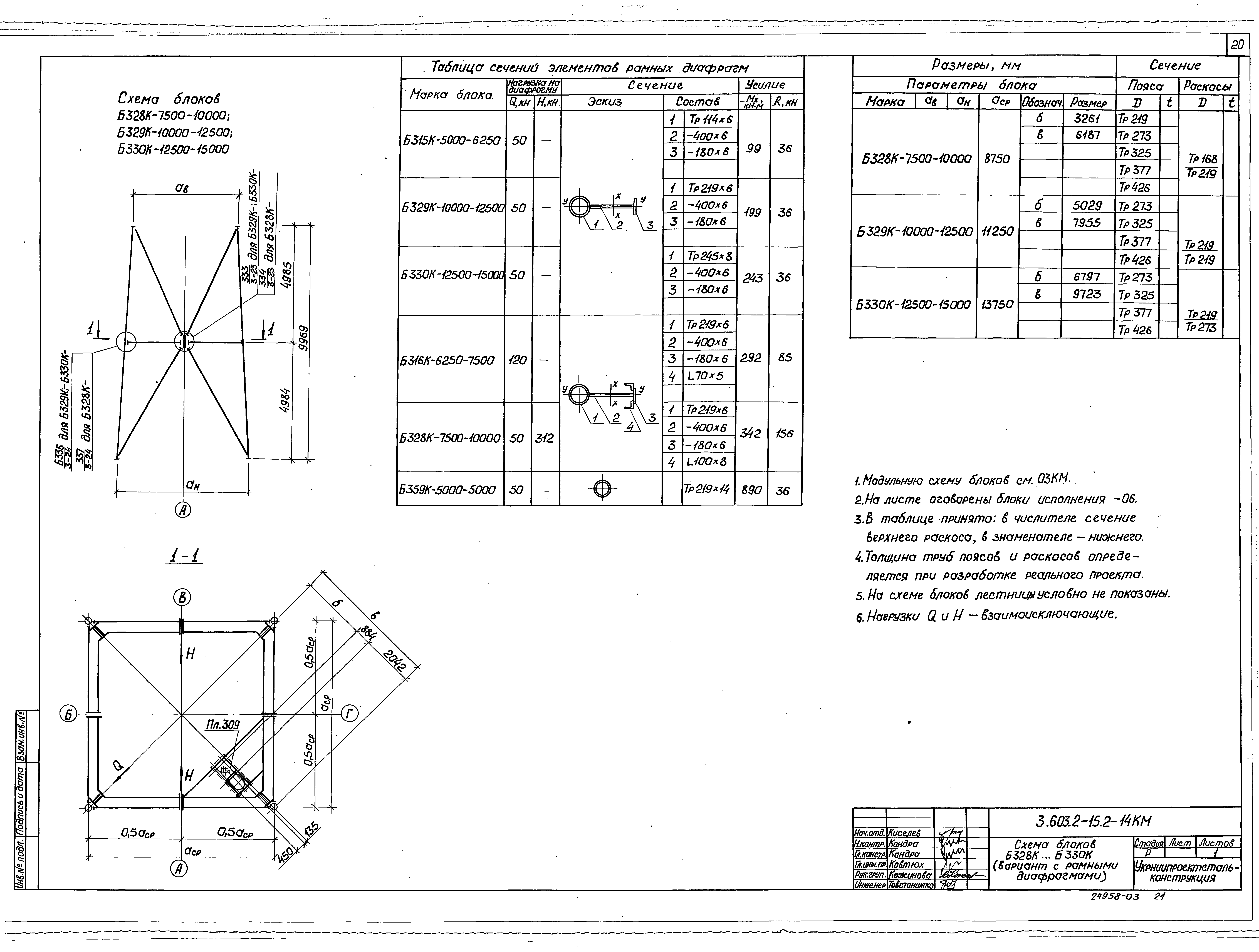
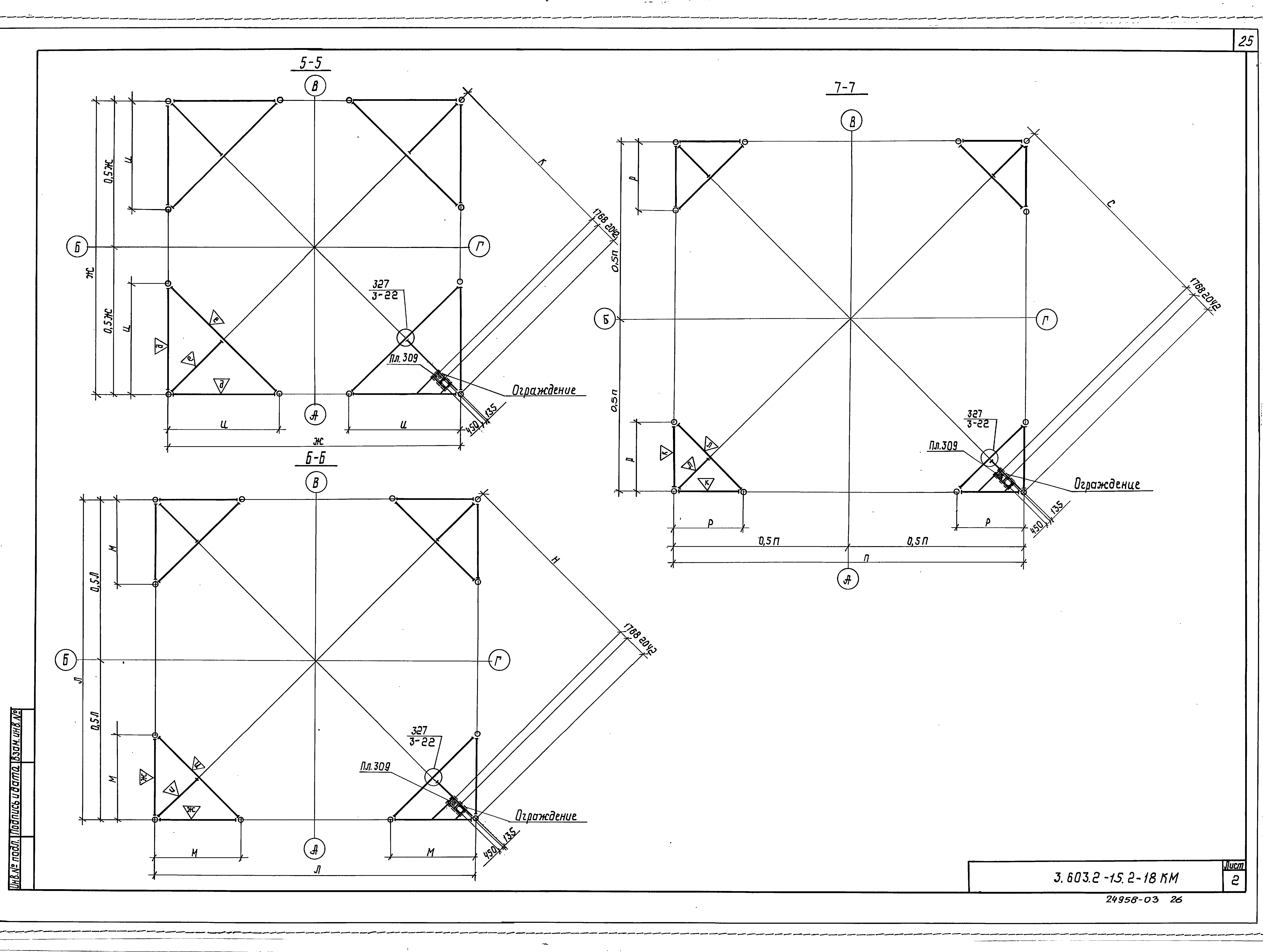
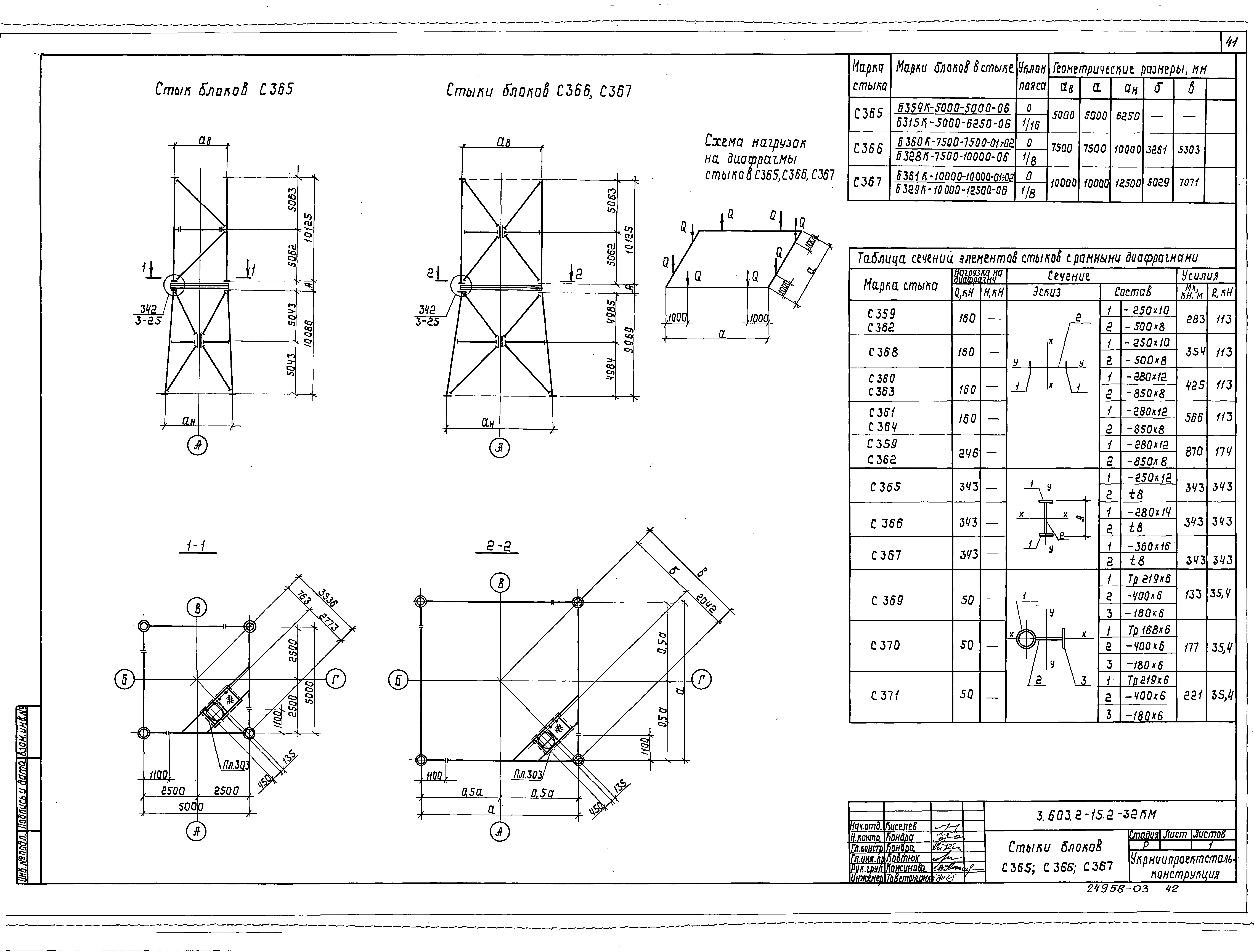
Скачать Серия 3.603.2-15 Выпуск 2. Блоки четырехгранных башен. Чертежи КМДата актуализации: 01.01.2021
|
| Обозначение: | Серия 3.603.2-15 |
| Обозначение англ: | Series 3.603.2-15 |
| Статус: | не определен законодательством |
| Название рус.: | Выпуск 2. Блоки четырехгранных башен. Чертежи КМ |
| Дата добавления в базу: | 01.09.2013 |
| Дата актуализации: | 01.01.2021 |
| Дата введения: | 01.06.1991 |
| Дата окончания срока действия: | 30.06.2003 |
| Разработан: | ГСПИ Минсвязи СССР Укрниипроектстальконструкция |
| Утверждён: | 11.02.1991 Министерство связи СССР |












































