Скачать Серия 3.407.5-141 Деревянные опоры ВЛ 0,38 кВДата актуализации: 01.01.2021
|
| Обозначение: | Серия 3.407.5-141 |
| Обозначение англ: | Series 3.407.5-141 |
| Статус: | не определен законодательством |
| Название рус.: | Деревянные опоры ВЛ 0,38 кВ |
| Дата добавления в базу: | 01.09.2013 |
| Дата актуализации: | 01.01.2021 |
| Дата введения: | 01.07.1987 |
| Дата окончания срока действия: | 30.06.2003 |
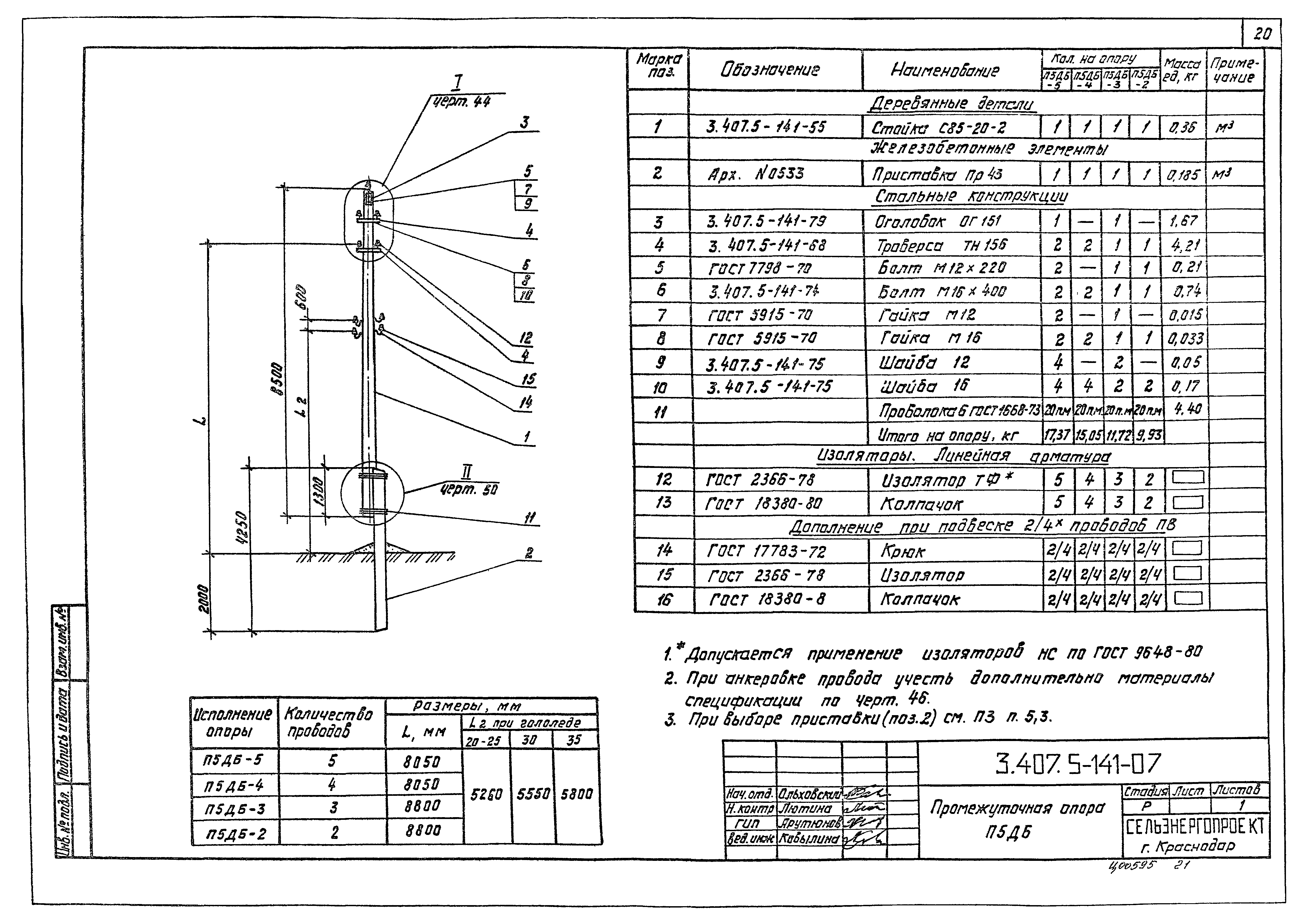
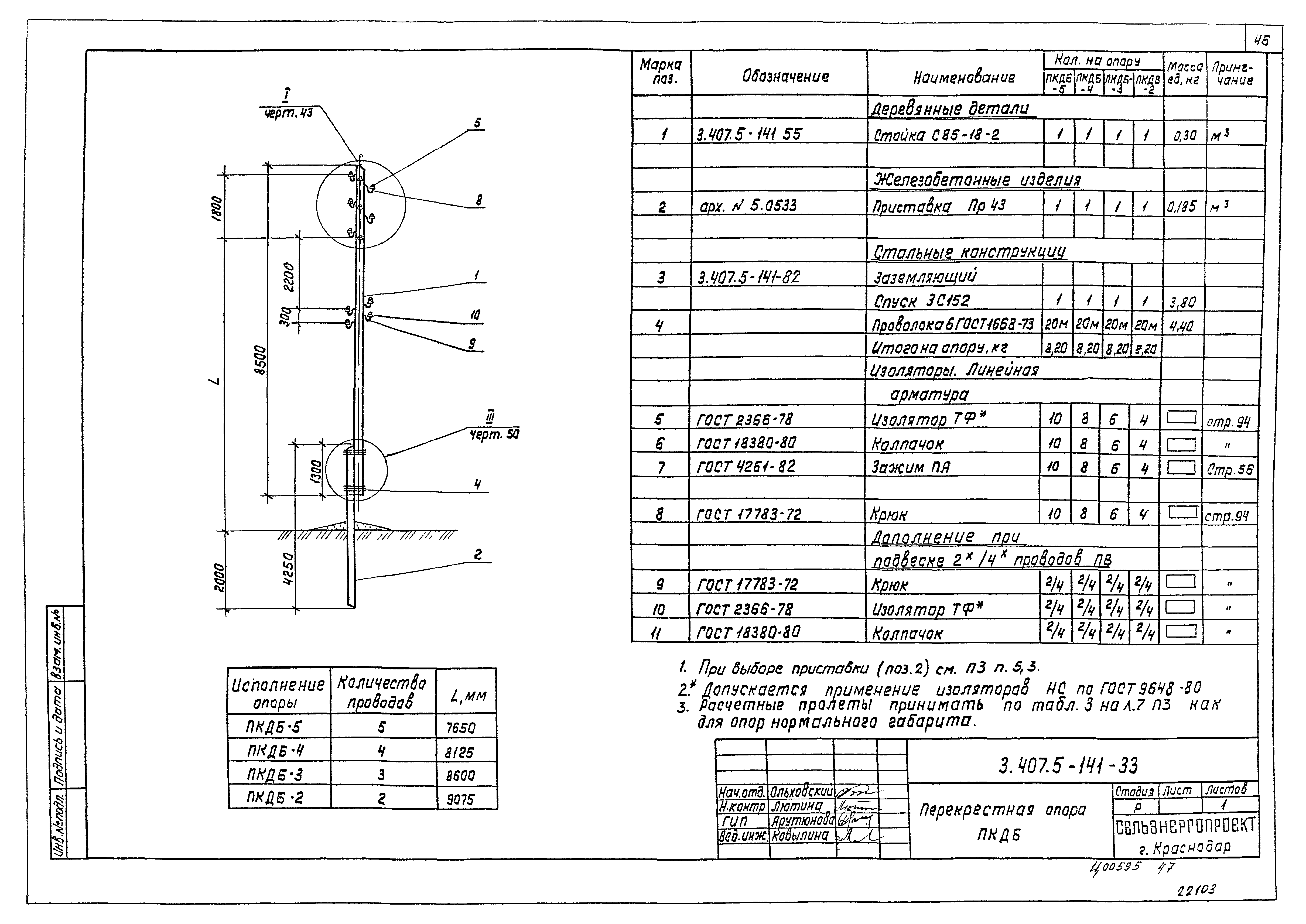
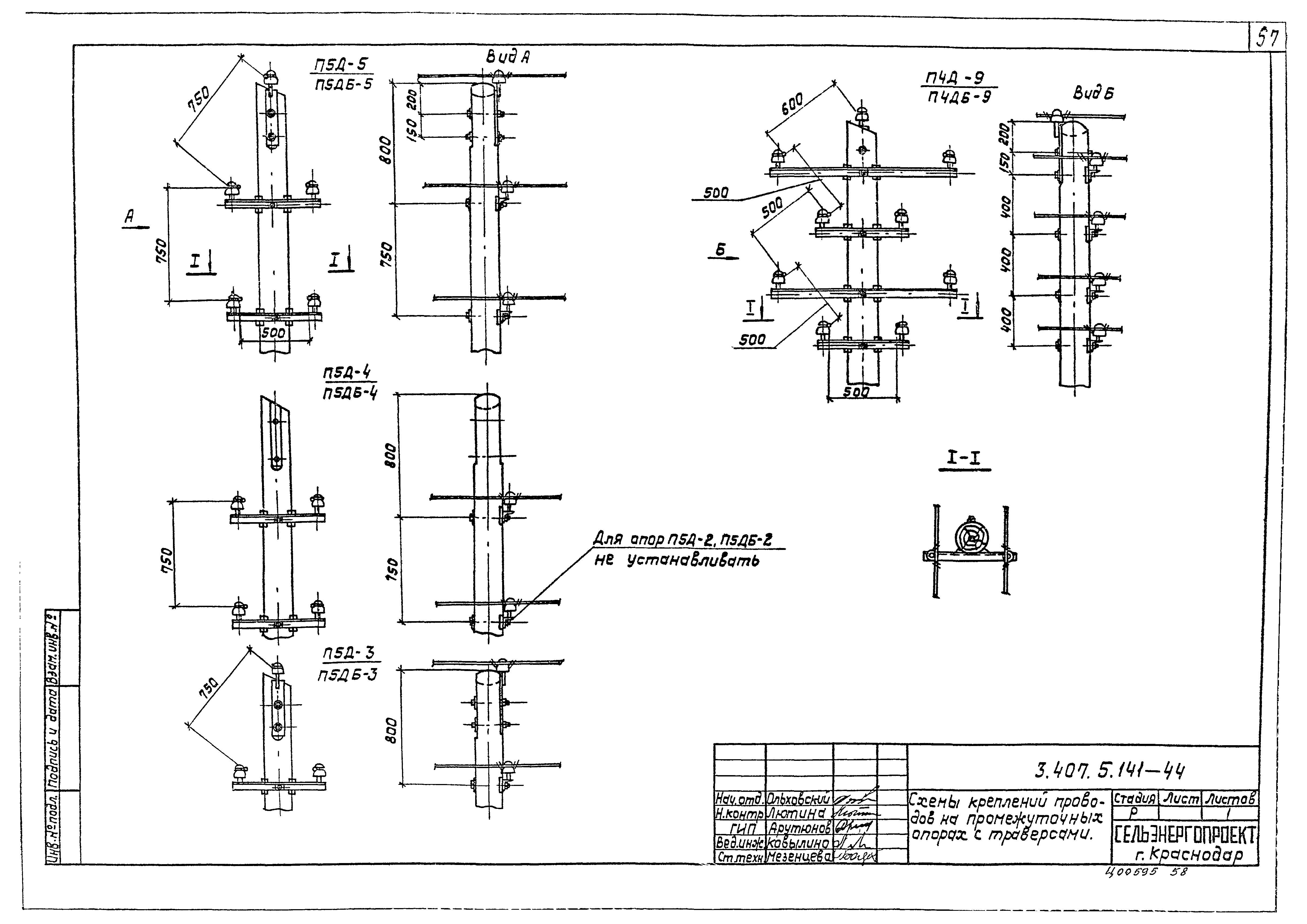
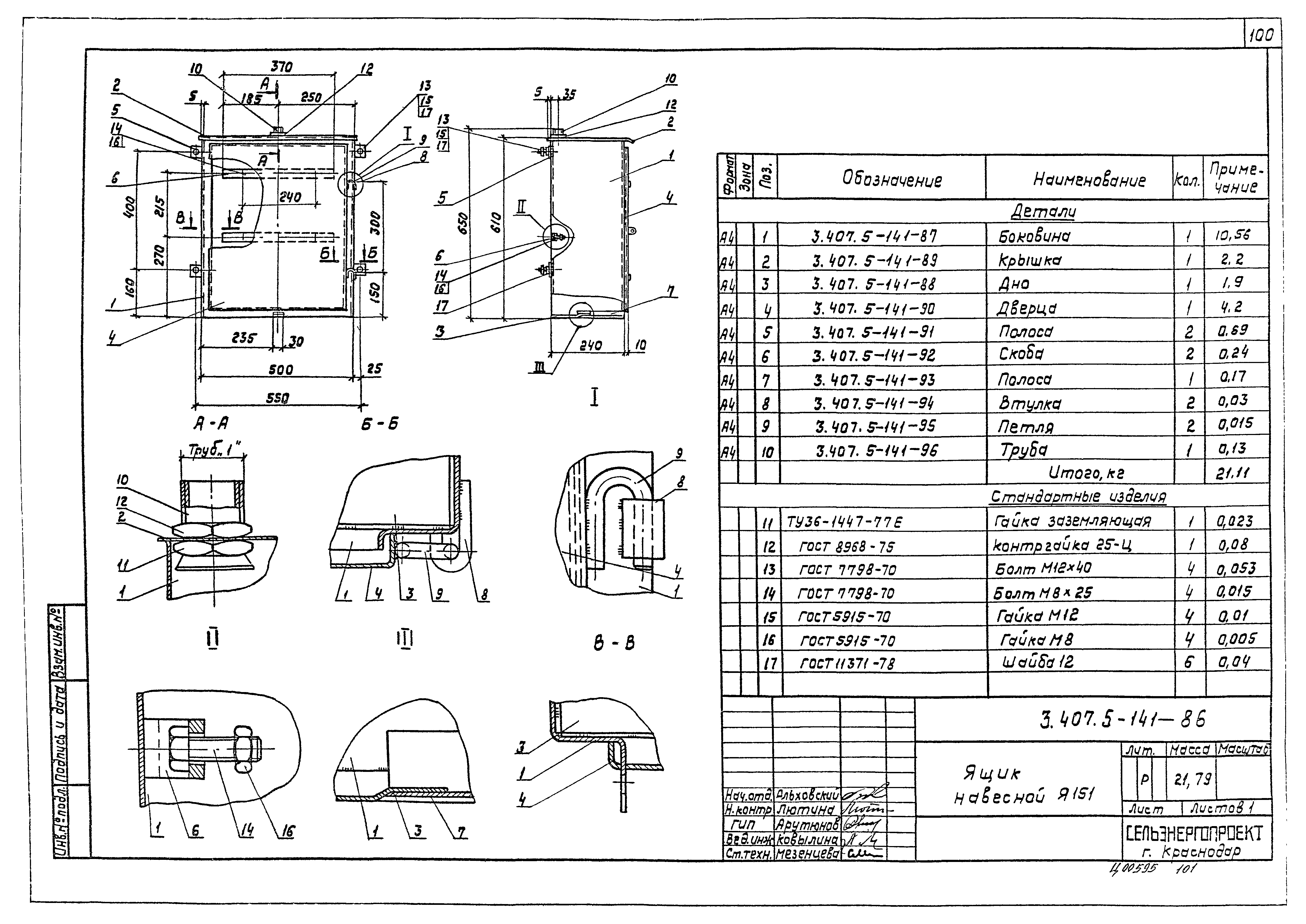
| Оглавление: | 3.407.5-141-ПЗ Пояснительная записка 3.407.5-141-01 Обзорные схемы. Составные опоры нормального габарита 3.407.5-141-02 Обзорные схемы. Опоры на цельных стойках нормального габарита 3.407.5-141-03 Обзорные схемы. Опоры для пересечений 3.407.5-141-04 Промежуточные опоры П1ДБ, П3ДБ 3.407.5-141-05 Промежуточная опора П2ДБ 3.407.5-141-06 Промежуточная опора П4ДБ 3.407.5-141-07 Промежуточная опора П5ДБ 3.407.5-141-08 Промежуточная опора П7ДБ 3.407.5-141-09 Анкерная опора А1ДБ. Угловая анкерная опора У1ДБ 3.407.5-141-10 Ответвительная опора О1ДБ 3.407.5-141-11 Анкерная опора А2ДБ. Угловая анкерная опора У2ДБ 3.407.5-141-12 Ответвительная опора О2ДБ 3.407.5-141-13 Анкерная опора А3ДБ. Угловая анкерная опора У3ДБ 3.407.5-141-14 Ответвительная опора О3ДБ 3.407.5-141-15 Анкерная опора А4ДБ. Угловая анкерная опора У4ДБ 3.407.5-141-16 Ответвительная опора О4ДБ 3.407.5-141-17 Анкерная опора А5ДБ. Угловая анкерная опора У5ДБ 3.407.5-141-18 Ответвительная опора О5ДБ 3.407.5-141-19 Промежуточные опоры П1Д, П3Д 3.407.5-141-20 Промежуточная опора П2Д 3.407.5-141-21 Промежуточная опора П4Д 3.407.5-141-22 Промежуточная опора П5Д 3.407.5-141-23 Анкерная опора А1Д. Угловая анкерная опора У1Д 3.407.5-141-24 Ответвительные опоры О1Д, О3Д 3.407.5-141-25 Анкерная опора А2Д. Угловая анкерная опора У2Д 3.407.5-141-26 Ответвительная опора О2Д 3.407.5-141-27 Анкерная опора А3Д. Угловая анкерная опора У3Д 3.407.5-141-28 Анкерная опора А4Д. Угловая анкерная опора У4Д 3.407.5-141-29 Ответвительная опора О4Д 3.407.5-141-30 Анкерная опора А5ДБ. Угловая анкерная опора У5ДБ 3.407.5-141-31 Ответвительная опора О5ДБ 3.407.5-141-32 Переходные промежуточные опоры ПП1ДБ, ПП3ДБ 3.407.5-141-33 Перекрестная опора ПКДБ 3.407.5-141-34 Перекрестная опора ПКД 3.407.5-141-35 Переходная промежуточная опора ППБД 3.407.5-141-36 Переходная промежуточная опора ПП5БД 3.407.5-141-37 Анкерно-угловые повышенные опоры АП1ДБ, УП1ДБ 3.407.5-141-38 Анкерно угловые повышенные опоры АП3ДБ, УП3ДБ 3.407.5-141-39 Ответвительные повышенные опоры ОП1ДБ, ОП3ДБ 3.407.5-141-40 Анкерно-угловые повышенные опоры АП5ДБ, УП5ДБ 3.407.5-141-41 Ответвительная повышенная опора ОП5ДБ 3.407.5-141-42 Установка оттяжки на анкерно-угловых опорах 3.407.5-141-43 Схемы крепления проводов на промежуточных опорах крюкового профиля 3.407.5-141-44 Схемы крепления проводов на промежуточных опорах с траверсами 3.407.5-141-45 Схемы крепления проводов на переходных промежуточных опорах 3.407.5-141-46 Анкеровка одного провода на промежуточных опорах. Вводы 3.407.5-141-47 Схемы креплений проводов на анкерно-угловых опорах крюкового профиля 3.407.5-141-48 Схемы креплений проводов на анкерно-угловых опорах с траверсами 3.407.5-141-49 Узел сопряжения стойки с покосом 3.407.5-141-50 Крепление приставок к стойке (покосу) 3.407.5-141-51 Узел крепления ригелей на составных опорах Г152, Г153 3.407.5-141-52 Узел крепления Г151 ригелей на цельностоечных опорах 3.407.5-141-53 Детали деревянные. Номенклатура 3.407.5-141-54 Стойки для цельностоечных промежуточных опор 3.407.5-141-55 Стойки для составных промежуточных опор 3.407.5-141-56 Стойки для цельностоечных анкерно-угловых опор. Угол между стойкой и подкосом 24 градусов 3.407.5-141-57 Стойки для цельностоечных анкерно-угловых опор. Угол между стойкой и подкосом 30 градусов 3.407.5-141-58 Стойки для составных анкерно-угловых опор. Угол между стойкой и подкосом 24 градусов 3.407.5-141-59 Стойки для составных анкерно-угловых опор. Угол между стойкой и подкосом 30 градусов 3.407.5-141-60 Подкосы для цельностоечных опор 3.407.5-141-61 Подкосы для составных опор 3.407.5-141-62 Ригель Р5-20-1 3.407.5-141-63 Ригель Р6-20-2 3.407.5-141-64 Анкер А28-24 3.407.5-141-65 Вкладыш В5-26 3.407.5-141-66 Детали деревянные. Узел I (рис. 1 - 18) 3.407.5-141-67 Детали деревянные. Узлы II -VI 3.407.5-141-68 Металлические траверсы типа ТН151, ТН153, ТН156, ТН 157 3.407.5-141-69 Металлические траверсы типа ТН-152, ТН154, ТН155 3.407.5-141-70 Оттяжки ОТ 151 - 154 3.407.5-141-71 Талреп 3.407.5-141-72 Уголок 3.407.5-141-73 Оголовок ОГ152 3.407.5-141-74 Болты 3.407.5-141-75 Шайбы 3.407.5-141-76 Шпильки ШП151 - ШП155 3.407.5-141-77 Пластина 3.407.5-141-78 Проводник 3.407.5-141-79 Оголовок ОГ151 3.407.5-141-80 Крепление проводов с помощью зажимов 3.407.5-141-81 Крепление проводов с помощью вязки 3.407.5-141-82 заземляющие спуски ЗС151 - ЗС158 3.407.5-141-83 Установка вводного ящика ЯВШЗ-100-У2 3.407.5-141-84 Труба Я152 3.407.5-141-85 Скоба Х-153 3.407.5-141-86 Ящик навесной Я151 3.407.5-141-87 Боковина 3.407.5-141-88 Дно 3.407.5-141-89 Крышка 3.407.5-141-90 Дверца 3.407.5-141-91 Полоса 3.407.5-141-92 Скоба 3.407.5-141-93 Полоса 3.407.5-141-94 Втулка 3.407.5-141-95 Петля 3.407.5-141-96 Труба 3.407.5-141-97 Установка секционирующих предохранителей и автомата на анкер опоре 3.407.5-141-98 Труба П151 3.407.5-141-99 Труба П152 3.407.5-141-100 Кронштейн Я-154 3.407.5-141-101 Кронштейн Я-153 3.407.5-141-102 Крепление мачтовой муфты 4км (3км) и разрядников РВН-0,5 У1 на опорах анкерно-углового типа 3.407.5-141-103 Кронштейн КМ151 3.407.5-141-104 Скоба Х151 3.407.5-141-105 Скоба Х152 3.407.5-141-106 Кронштейн Р151 3.407.5-141-107 Кронштейн П151 3.407.5-141-108 Установка светильников на кронштейне типа К-II 3.407.5-141-109 Установка светильников на кронштейне типа К-I 3.407.5-141-110 Установка светильников на кронштейне КС153 3.407.5-141-111 Кронштейн КС153 3.407.5-141-112 Ведомость расхода материалов |
| Разработан: | Сельэнергопроект Минэнерго СССР |
| Утверждён: | 31.10.1985 Минэнерго СССР (USSR Minenergo М-13951) |
| Заменяет собой: |
|






















































































































