Скачать Серия 3.503.1-53 Выпуск 1. Сборные железобетонные изделия. Рабочие чертежиДата актуализации: 01.01.2021
|
| Обозначение: | Серия 3.503.1-53 |
| Обозначение англ: | Series 3.503.1-53 |
| Статус: | не определен законодательством |
| Название рус.: | Выпуск 1. Сборные железобетонные изделия. Рабочие чертежи |
| Дата добавления в базу: | 01.09.2013 |
| Дата актуализации: | 01.01.2021 |
| Дата введения: | 01.11.1980 |
| Дата окончания срока действия: | 30.06.2003 |
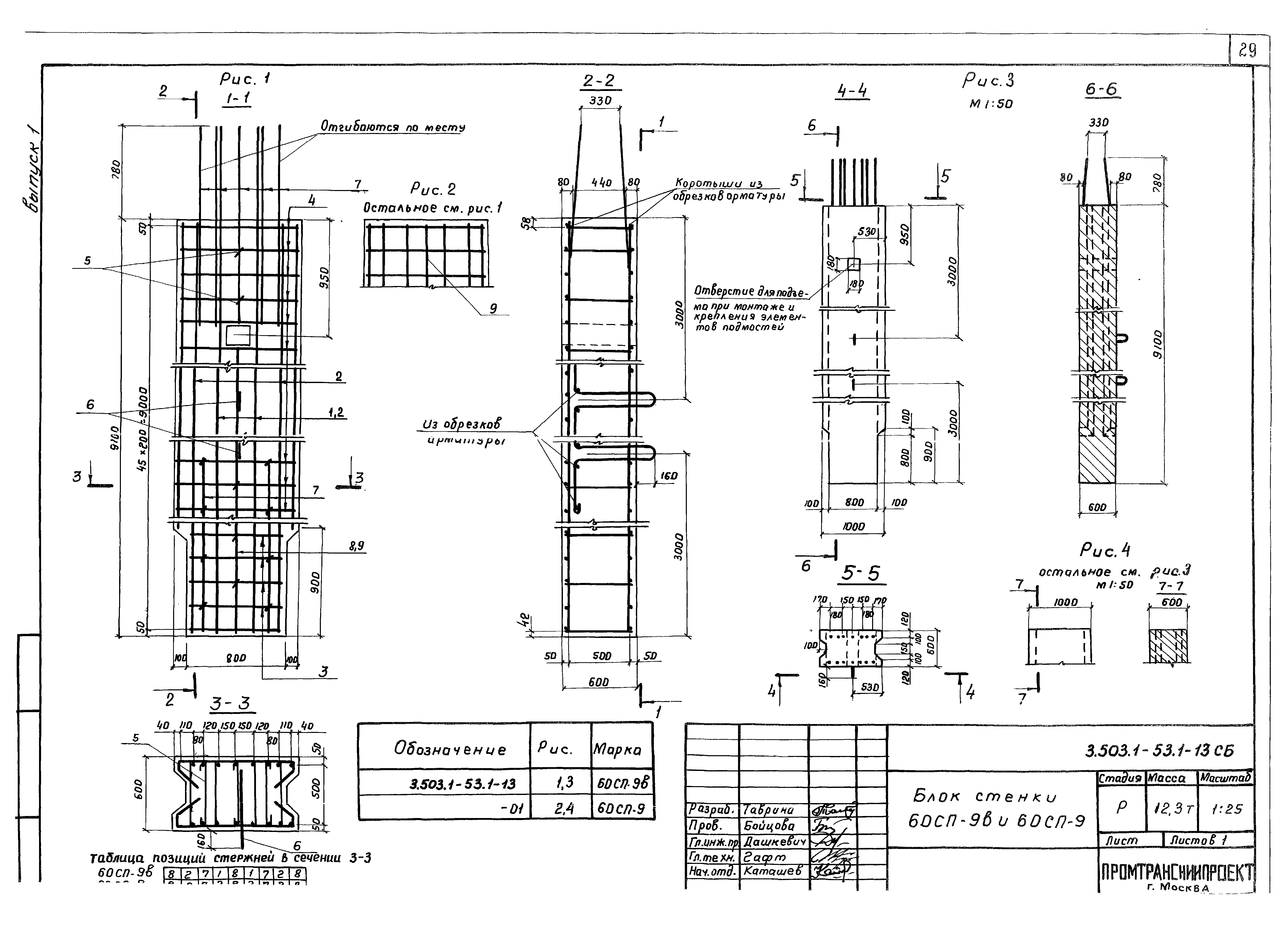
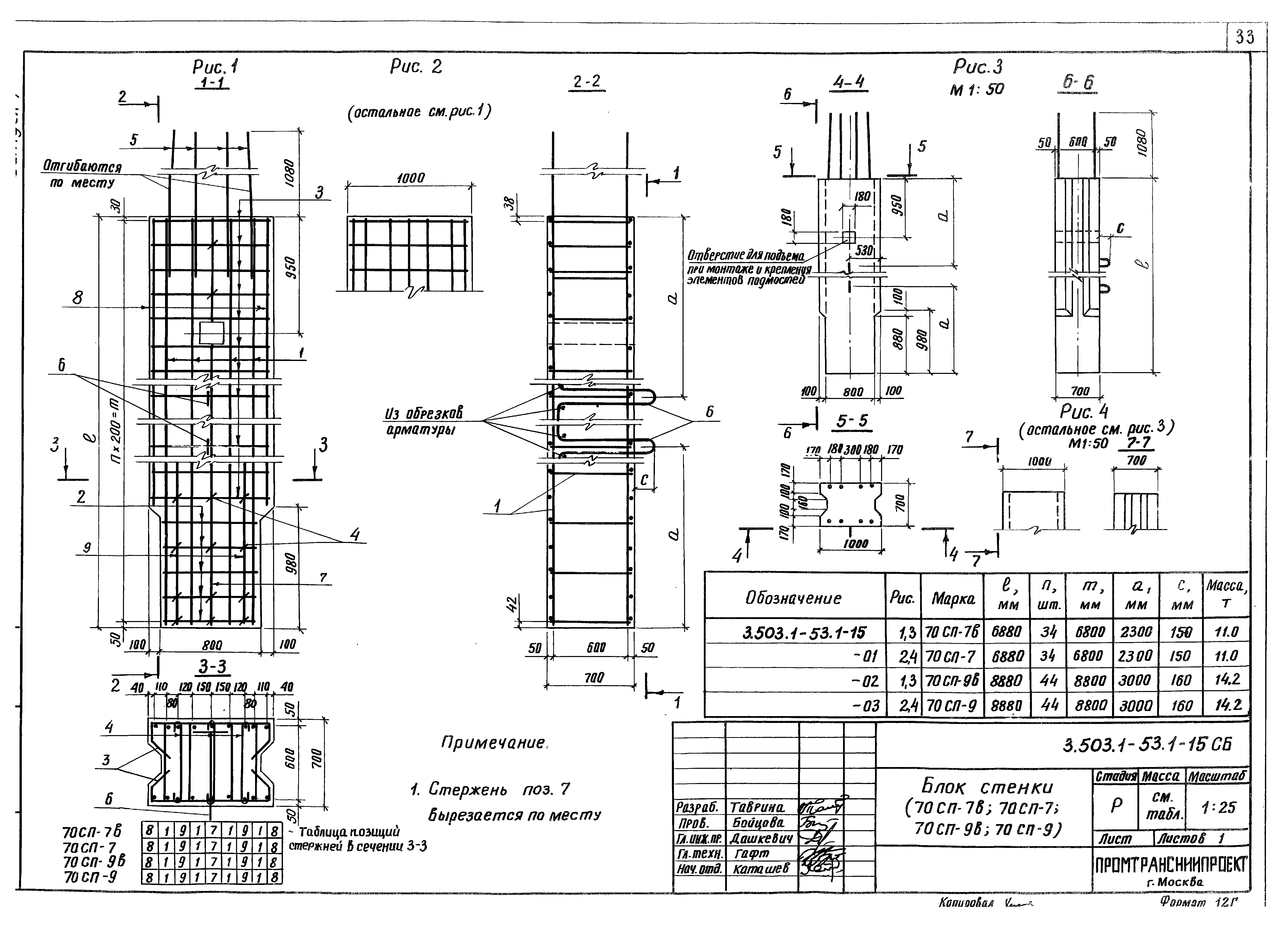
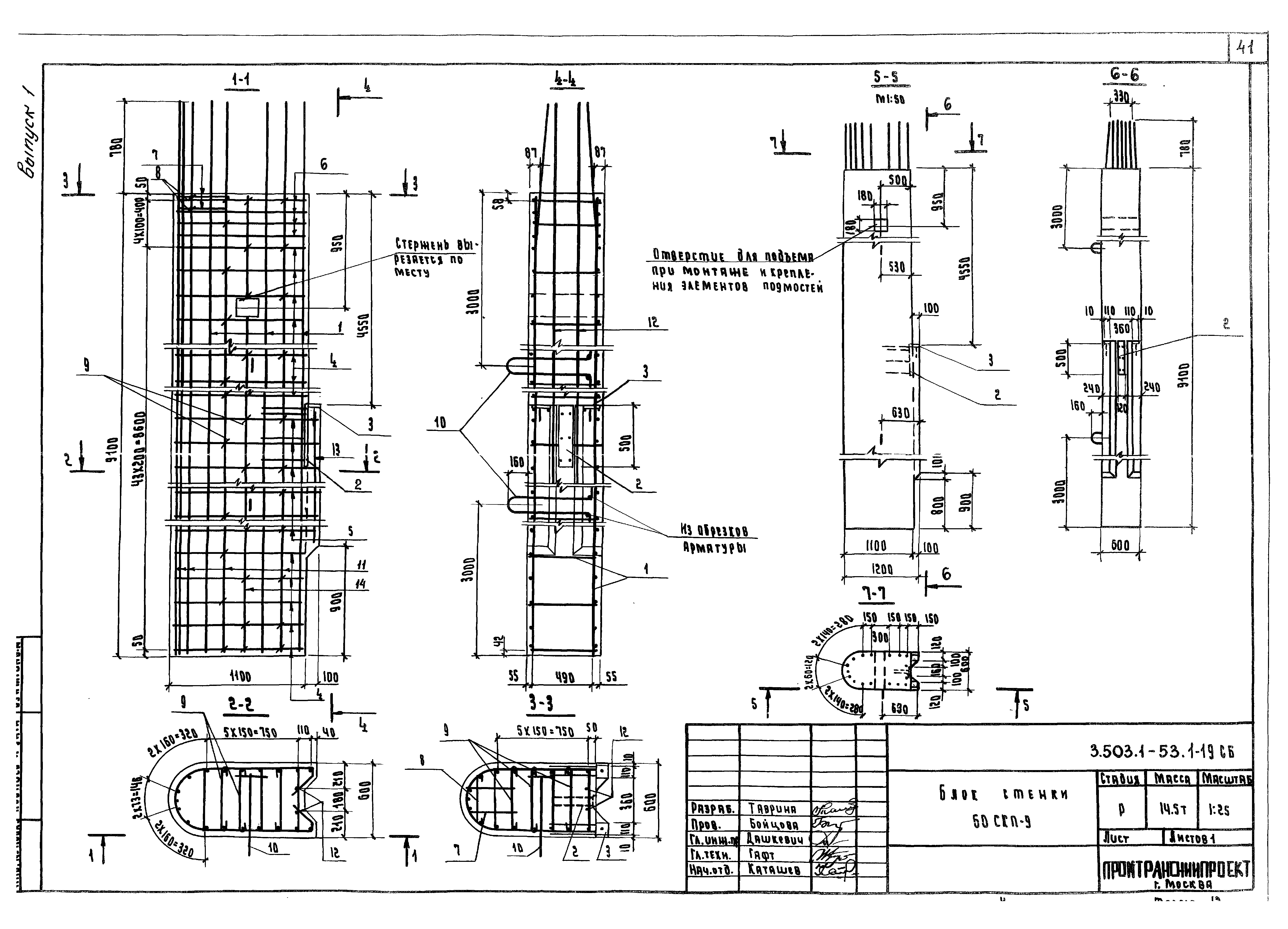
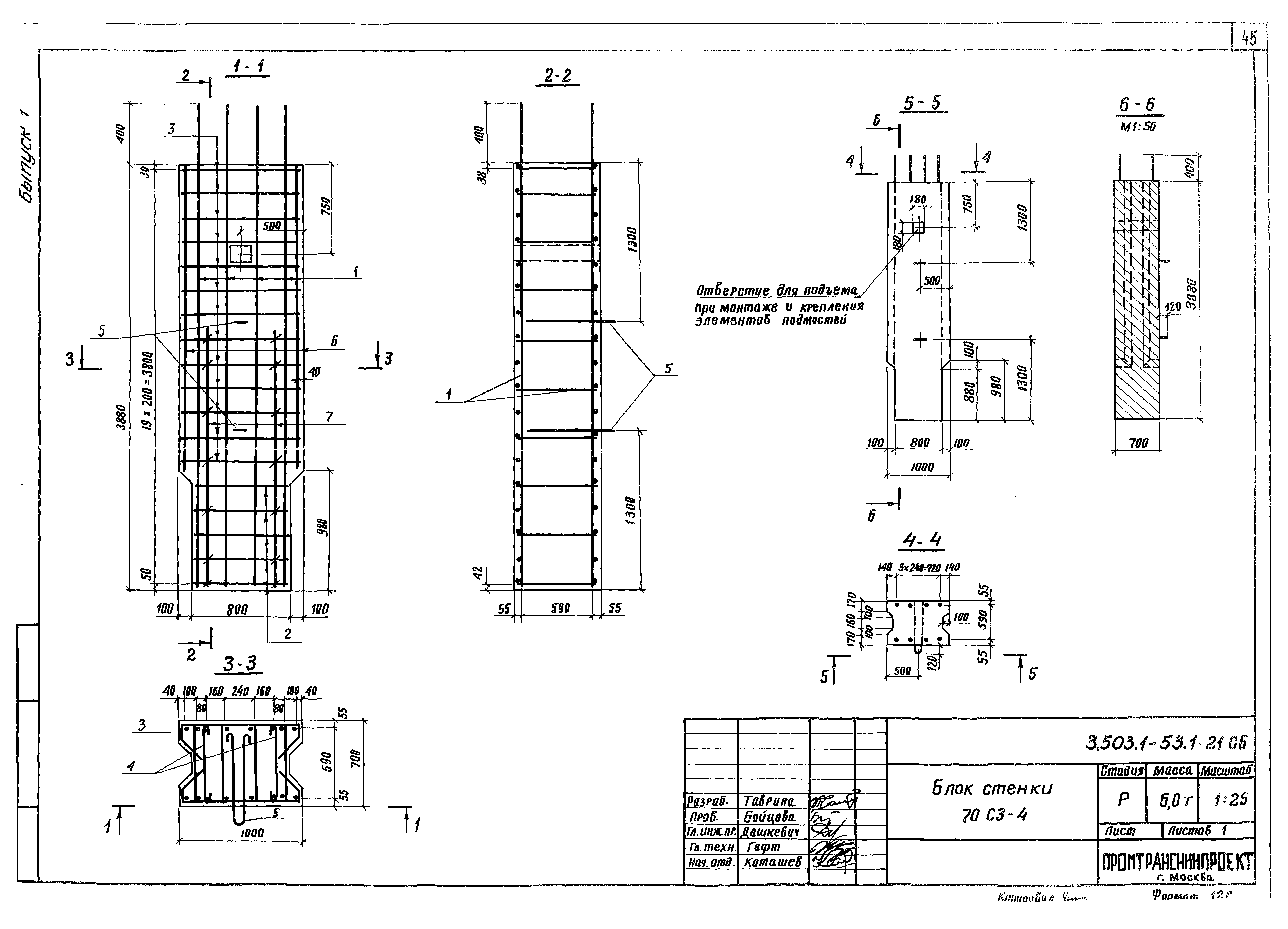
| Оглавление: | 3.503.1-53.1-00ВД Ведомость ссылочных документов 3.503.1-53.1-00ТО Техническое описание 3.503.1-53.1-1 Блок фундамента (24Ф-365-5; 24Ф-450-5; 33Ф-450-5; 24Ф-450-7; 24Ф-500-7 и 33Ф-500-7) 3.503.1-53.1-1СБ Блок фундамента (24Ф-365-5; 24Ф-450-5; 33Ф-450-5; 24Ф-450-7; 24Ф-500-7 и 33Ф-500-7) 3.503.1-53.1-2 Блок подколонника (ПК-305-5 и ПК-355-7) 3.503.1-53.1-2СБ Блок подколонника (ПК-305-5 и ПК-355-7) 3.503.1-53.1-3 Блок фундамента (210 ФК-1; 250 ФК-1; 300 ФК-1 и 350 ФК-1) 3.503.1-53.1-3СБ Блок фундамента (210 ФК-1; 250 ФК-1; 300 ФК-1 и 350 ФК-1) 3.503.1-53.1-4 Блок фундамента (210 ФП-2, 250 ФП-2, 300 ФП-2 и 350 ФП-2) 3.503.1-53.1-4СБ Блок фундамента (210 ФП-2, 250 ФП-2, 300 ФП-2 и 350 ФП-2) 3.503.1-53.1-5 Блок фундамента (210 ФК-2 и 210 ФП-4) 3.503.1-53.1-5СБ Блок фундамента (210 ФК-2 и 210 ФП-4) 3.503.1-53.1-6 Блок фундамента 400 ФК-1 3.503.1-53.1-6СБ Блок фундамента 400 ФК-2 3.503.1-53.1-7 Блок фундамента (450 ФК-1; 450 ФК-2; 500 ФК-1 и 500 ФК-2) 3.503.1-53.1-7СБ Блок фундамента (450 ФК-1; 450 ФК-2; 500 ФК-1 и 500 ФК-2) 3.503.1-53.1-8 Блок фундамента (400 ФП-2; 450 ФП-2 И 500 ФП-2) 3.503.1-53.1-8СБ Блок фундамента (400 ФП-2; 450 ФП-2 И 500 ФП-2) 3.503.1-53.1-9 Блок стойки (8-28 СВ-520 и 8-28 СН-535) 3.503.1-53.1-9СБ Блок стойки (8-28 СВ-520 и 8-28 СН-535) 3.503.1-53.1-10 Блок стойки (12-32 СВ-720 и 12-32 СН-740) 3.503.1-53.1-10СБ Блок стойки (12-32 СВ-720 и 12-32 СН-740) 3.503.1-53.1-11 Блок стенки (50СП-5в, 50СП-5; 50СП-7в; 50СП-7) 3.503.1-53.1-11СБ Блок стенки (50СП-5в, 50СП-5; 50СП-7в; 50СП-7) 3.503.1-53.1-12 Блок стенки (50СК-5 и 50СК-7) 3.503.1-53.1-12СБ Блок стенки (50СК-5 и 50СК-7) 3.503.1-53.1-13 Блок стенки (60СП-9в и 60СП-9) 3.503.1-53.1-13СБ Блок стенки (60СП-9в и 60СП-9) 3.503.1-53.1-14 Блок стенки 60СК-9 3.503.1-53.1-14СБ Блок стенки 60СК-9 3.503.1-53.1-15 Блок стенки (70СП-7в; 10СП-7; 70СП-9в и 70СП-9) 3.503.1-53.1-15СБ Блок стенки (70СП-7в; 10СП-7; 70СП-9в и 70СП-9) 3.503.1-53.1-16 Блок стенки (70СК-7 и 70СК-9) 3.503.1-53.1-16СБ Блок стенки (70СК-7 и 70СК-9) 3.503.1-53.1-17 Блок стенки 60СПП-9 3.503.1-53.1-17СБ Блок стенки 60 СПП-9 3.503.1-53.1-18 Блок стенки 60С3-4 3.503.1-53.1-18СБ Блок стенки 60С3-4 3.503.1-53.1-19 Блок стенки 60 СКП-9 3.503.1-53.1-19СБ Блок стенки 60 СКП-9 3.503.1-53.1-20 Блок стенки 70 СПП-9 3.503.1-53.1-20СБ Блок стенки 70 СПП-9 3.503.1-53.1-21 Блок стенки 70С3-4 3.503.1-53.1-21СБ Блок стенки 70С3-4 3.503.1-53.1-22 Блок стенки 70СКП-9 3.503.1-53.1-22СБ Блок стенки 70СКП-9 3.503.1-53.1-23 Блок насадки Н-1 3.503.1-53.1-23СБ Блок насадки Н-1 3.503.1-53.1-24 Блок насадки (Н-2, Н-3, Н-4, Н-5, Н-6и Н-7) 3.503.1-53.1-24СБ Блок насадки (Н-2, Н-3, Н-4, Н-5, Н-6и Н-7) 3.503.1-53.1-25 Блок насадки (Н-8, Н-9 и Н-10) 3.503.1-53.1-25СБ Блок насадки (Н-8, Н-9 и Н-10) 3.503.1-53.1-26 Блок ригеля (15Р-5 и 24Р-5) 3.503.1-53.1-26СБ Блок ригеля (15Р-5 и 24Р-5) 3.503.1-53.1-27 Блок ригеля Р-9 3.503.1-53.1-27СБ Блок ригеля Р-9 3.503.1-53.1-28 Блок ригеля 33Р-50 3.503.1-53.1-28СБ Блок ригеля 33Р-50 3.503.1-53.1-29 Блок ригеля Р-90 3.503.1-53.1-29СБ Блок ригеля Р-90 3.503.1-53.1-30 Блок ригеля (15Р-3 и 24Р-3) 3.503.1-53.1-30СБ Блок ригеля (15Р-3 и 24Р-3) 3.503.1-53.1-31 Блок ригеля 33Р-30 3.503.1-53.1-31СБ Блок ригеля 33Р-30 3.503.1-53.1-32 Блок шкафной стенки (90Ш-2 и 120Ш-2) 3.503.1-53.1-32СБ Блок шкафной стенки (90Ш-2 и 120Ш-2) 3.503.1-53.1-33 Блок шкафной стенки 170-2 3.503.1-53.1-33СБ Блок шкафной стенки 170-2 3.503.1-53.1-34 Блок шкафной стенки (90Ш-3 и 120Ш-3) 3.503.1-53.1-34СБ Блок шкафной стенки (90Ш-3 и 120Ш-3) 3.503.1-53.1-35 Блок шкафной стенки 170Ш-3 3.503.1-53.1-35СБ Блок шкафной стенки 170Ш-3 3.503.1-53.1-36 Блок открылка 90К 3.503.1-53.1-36СБ Блок открылка 90К 3.503.1-53.1-37 Блок открылка 120К 3.503.1-53.1-37СБ Блок открылка 120К 3.503.1-53.1-38 Блок открылка 170К 3.503.1-53.1-38СБ Блок открылка 170К 3.503.1-53.1-39 Блок переходной плиты (П-1 и П-2) 3.503.1-53.1-39СБ Блок переходной плиты (П-1 и П-2) 3.503.1-53.1-40 Блок переходной плиты П-3 3.503.1-53.1-40СБ Блок переходной плиты П-4 3.503.1-53.1-41 Блок лежня (Л-1 и Л-2) 3.503.1-53.1-41СБ Блок лежня (Л-1 и Л-2) 3.503.1-53.1-00ВС Выборка стали на блоки устоев Нк=3,5 и 7 м 3.503.1-53.1-00ВС Выборка стали на блоки опор промежуточных Нк=57 и 9 м |
| Разработан: | Промтрансниипроект |
| Утверждён: | 04.08.1980 Госстрой СССР (Государственный комитет Совета Министров СССР по делам строительства) (USSR Gosstroy 58) |















































































