Скачать Серия 3.501-91 Выпуск 1. Общая частьДата актуализации: 01.01.2021
|
| Обозначение: | Серия 3.501-91 |
| Обозначение англ: | Series 3.501-91 |
| Статус: | действует |
| Название рус.: | Выпуск 1. Общая часть |
| Дата добавления в базу: | 01.09.2013 |
| Дата актуализации: | 01.01.2021 |
| Дата введения: | 01.04.1975 |
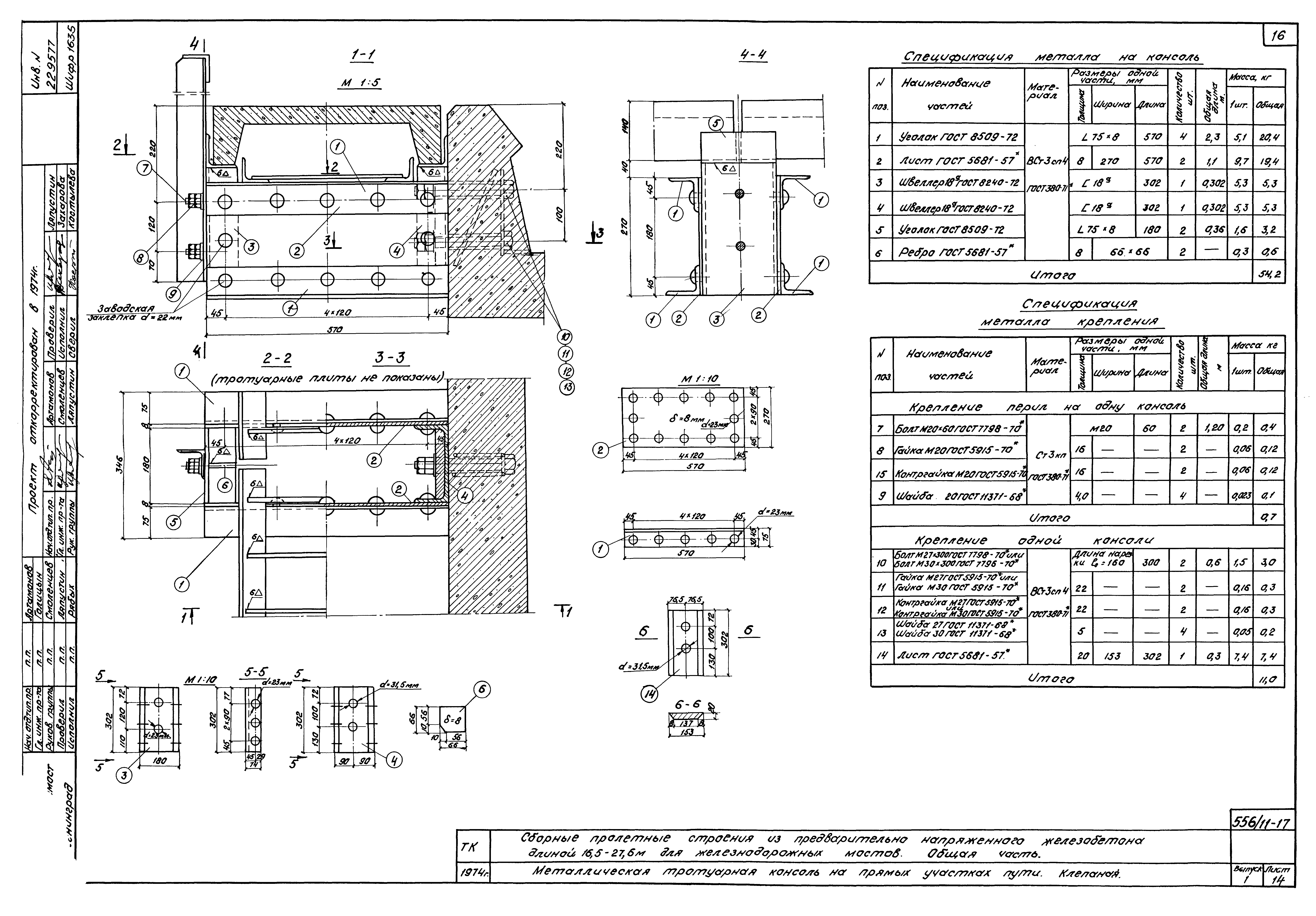
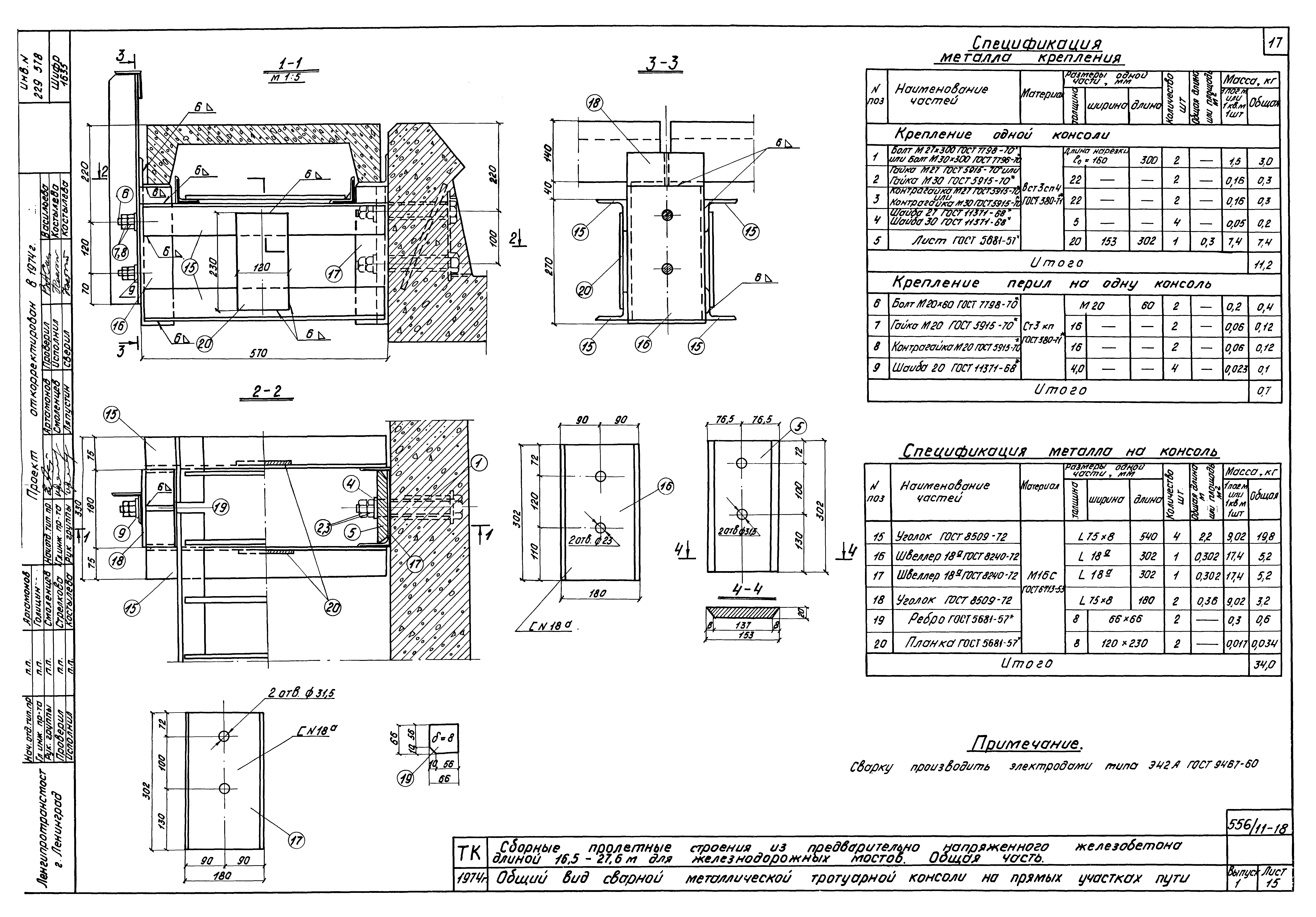
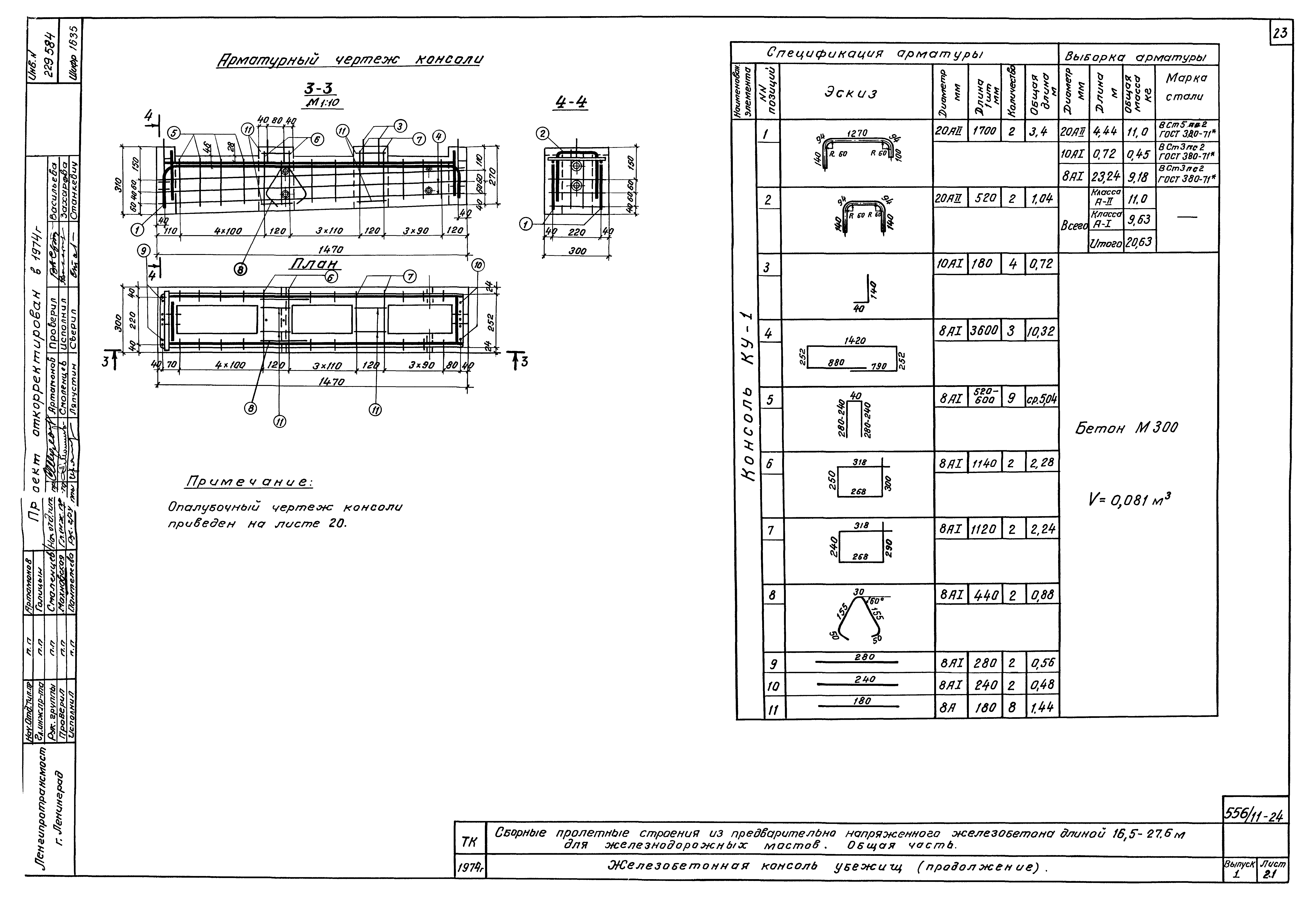
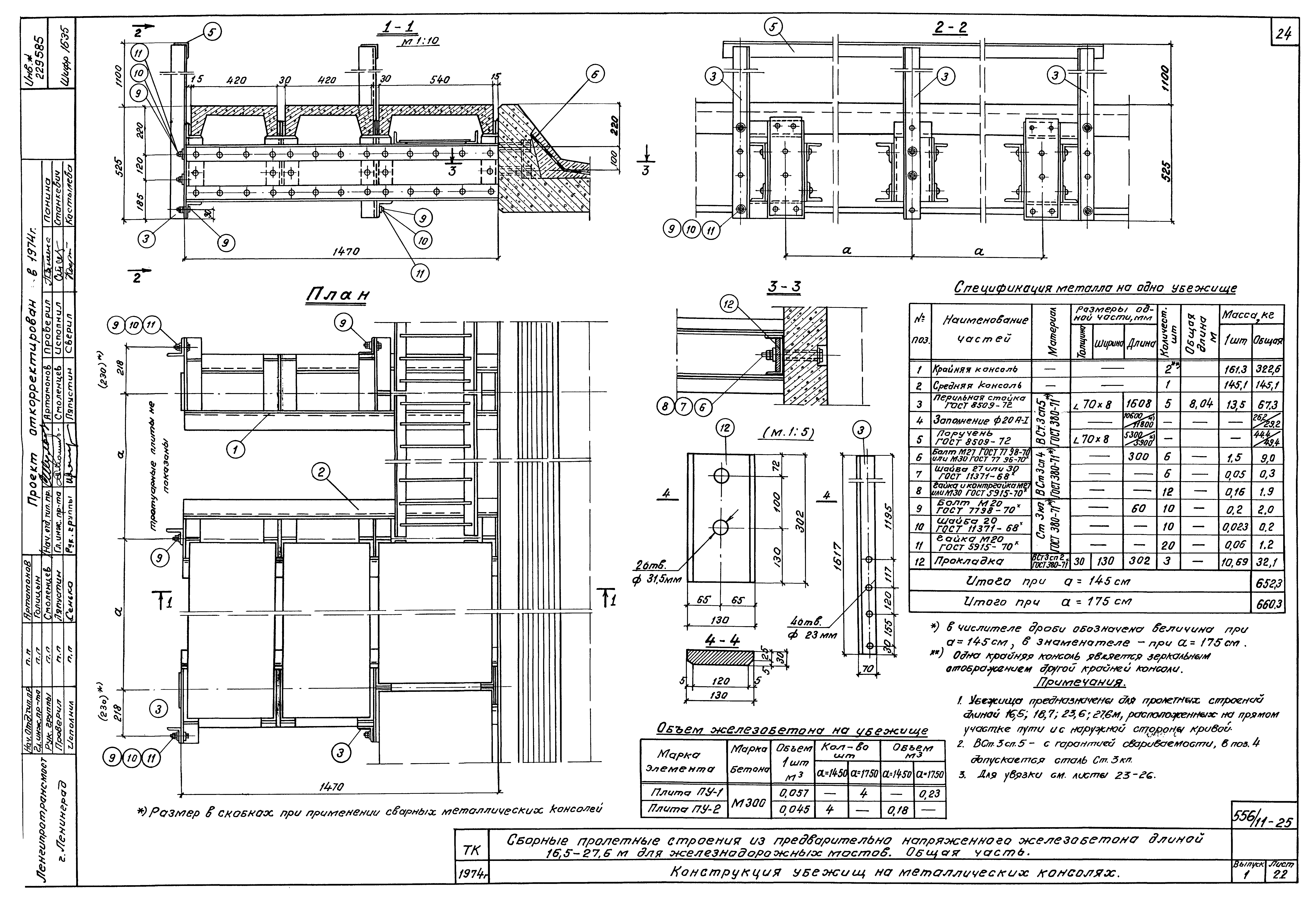
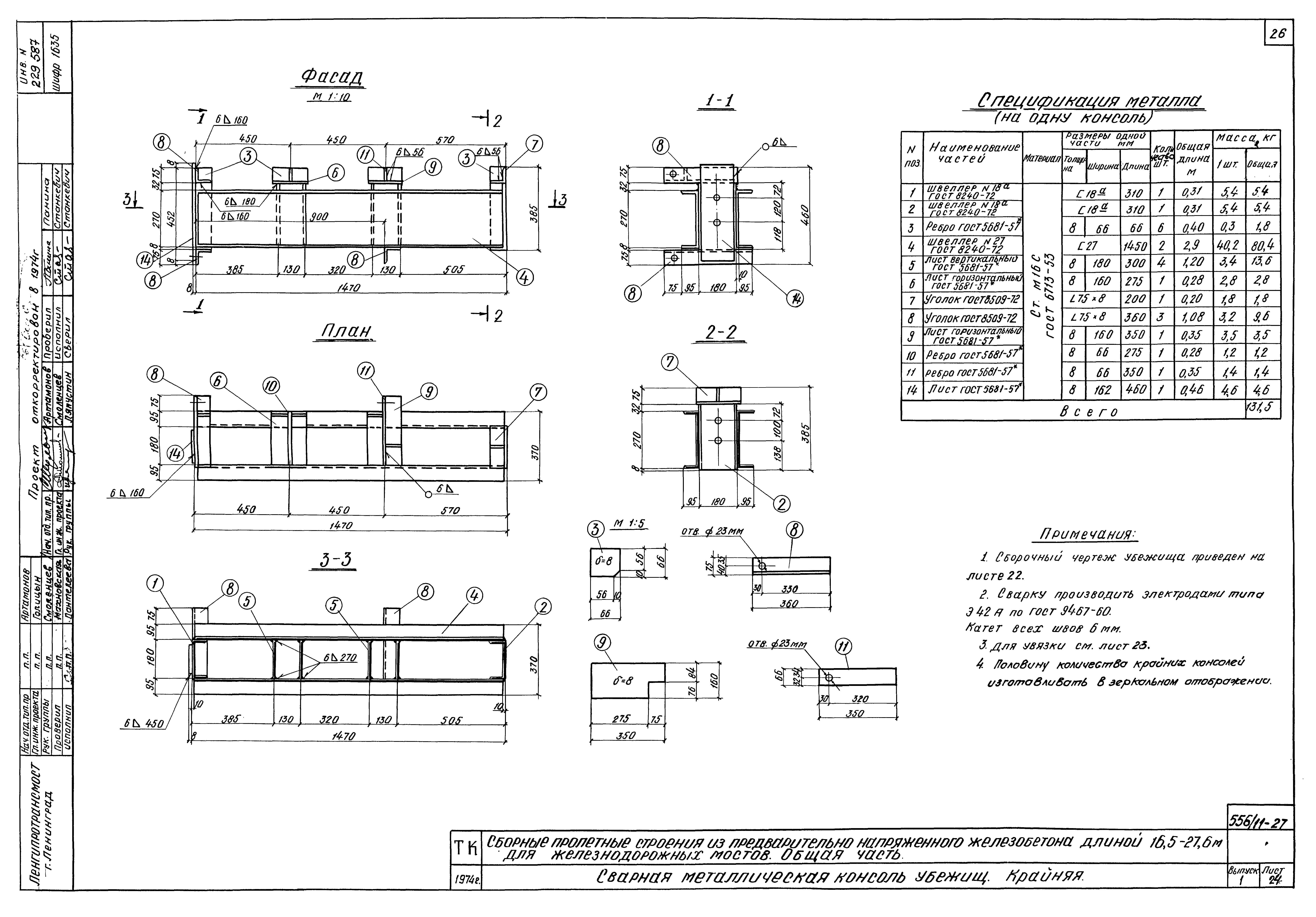
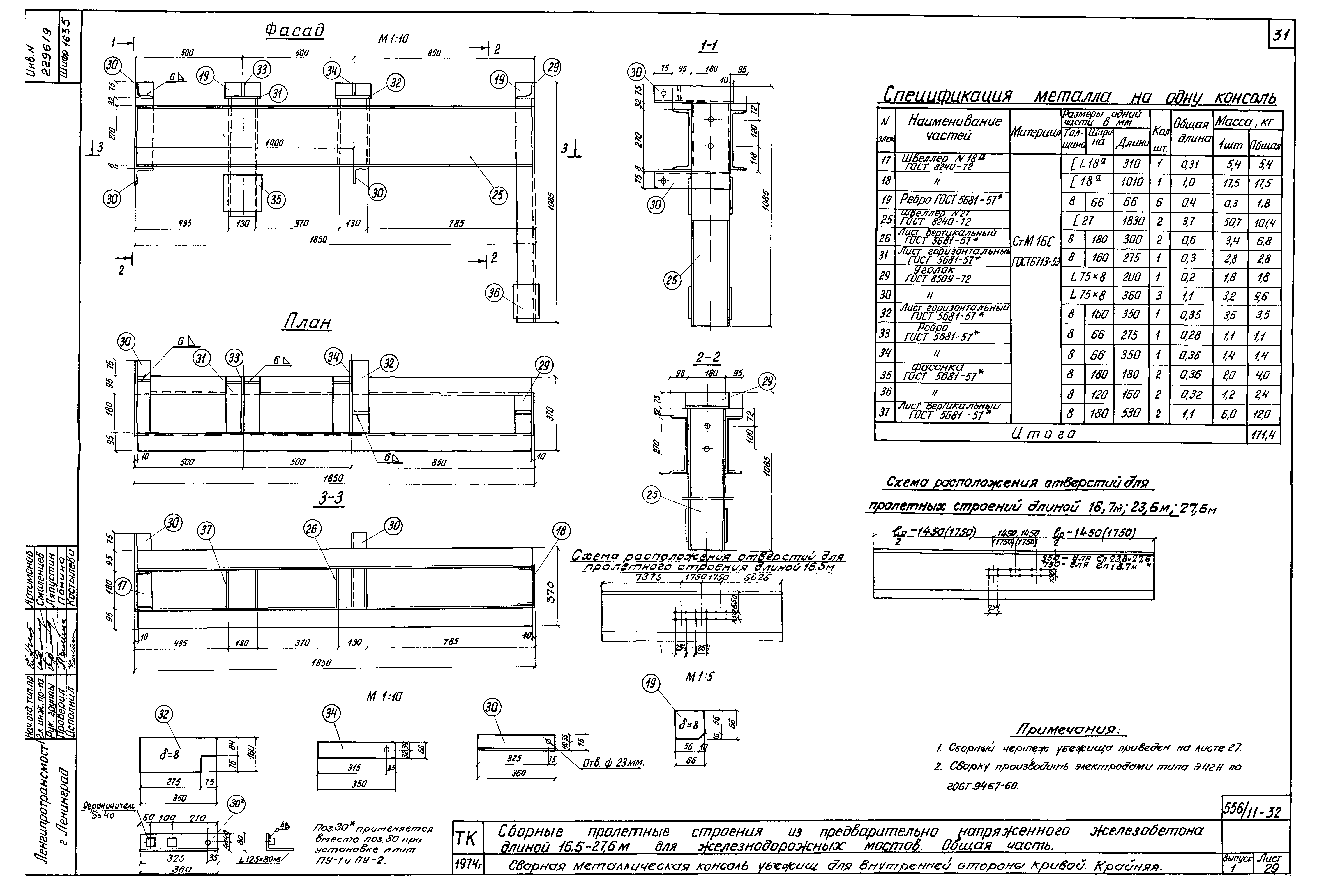
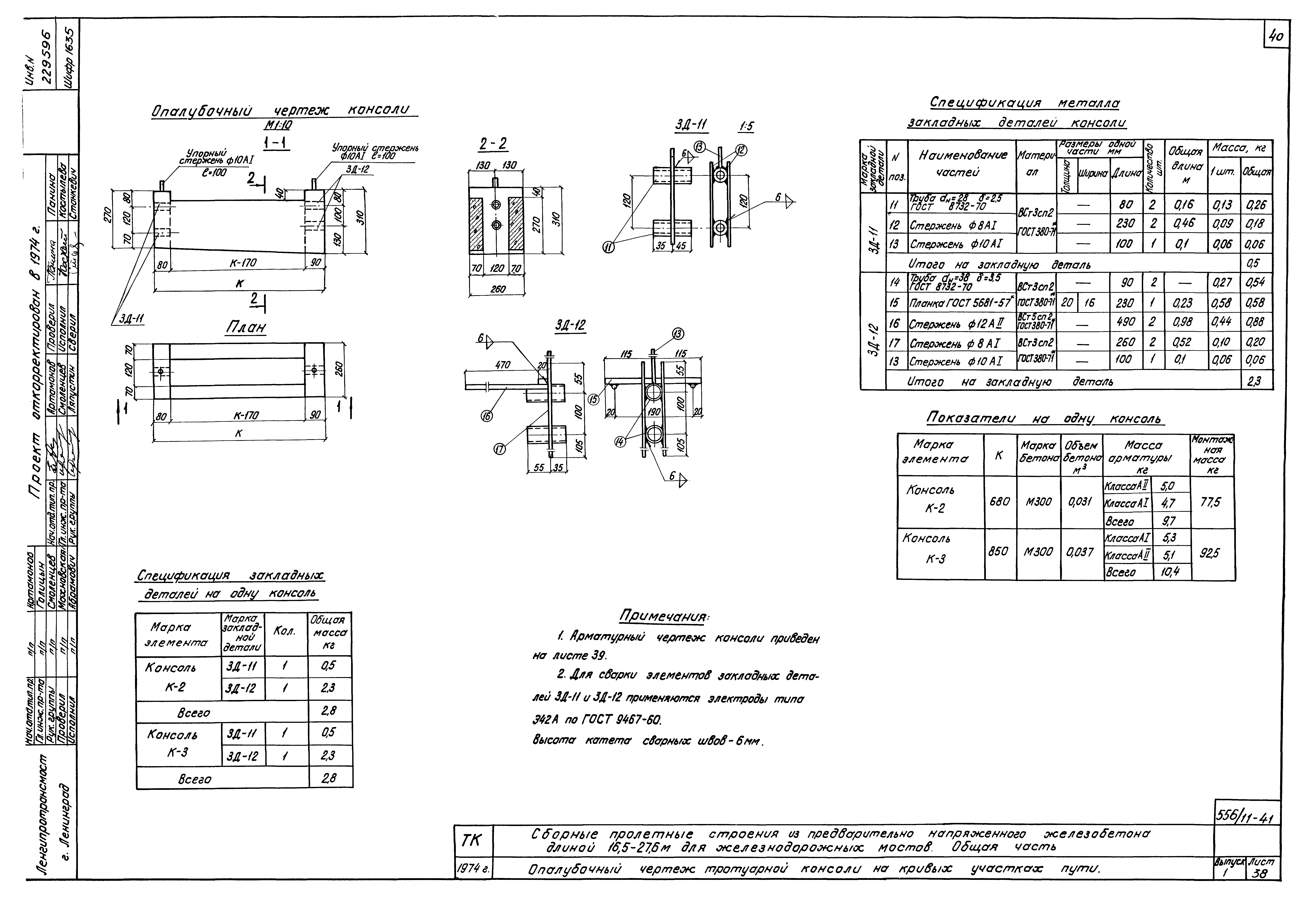
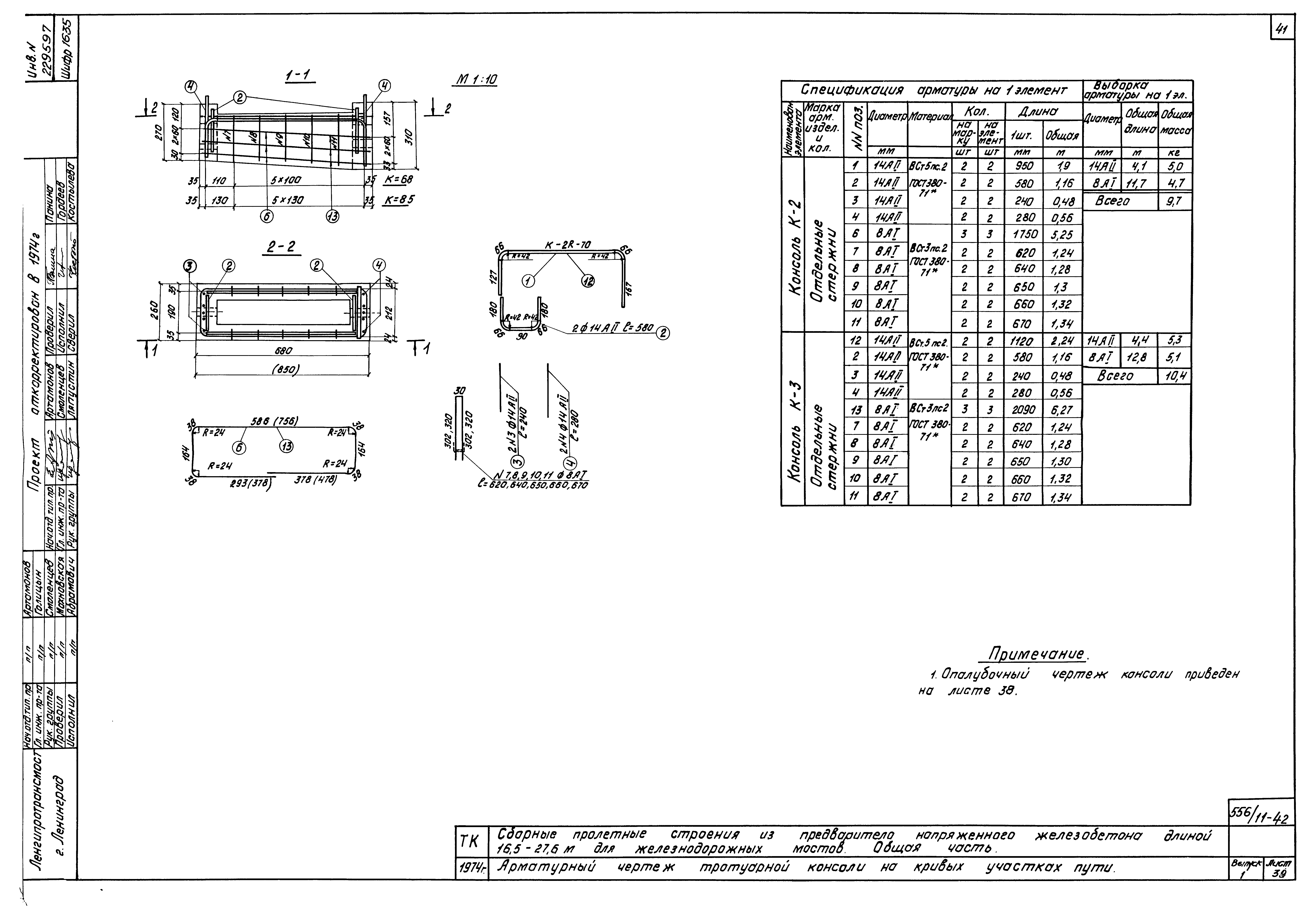
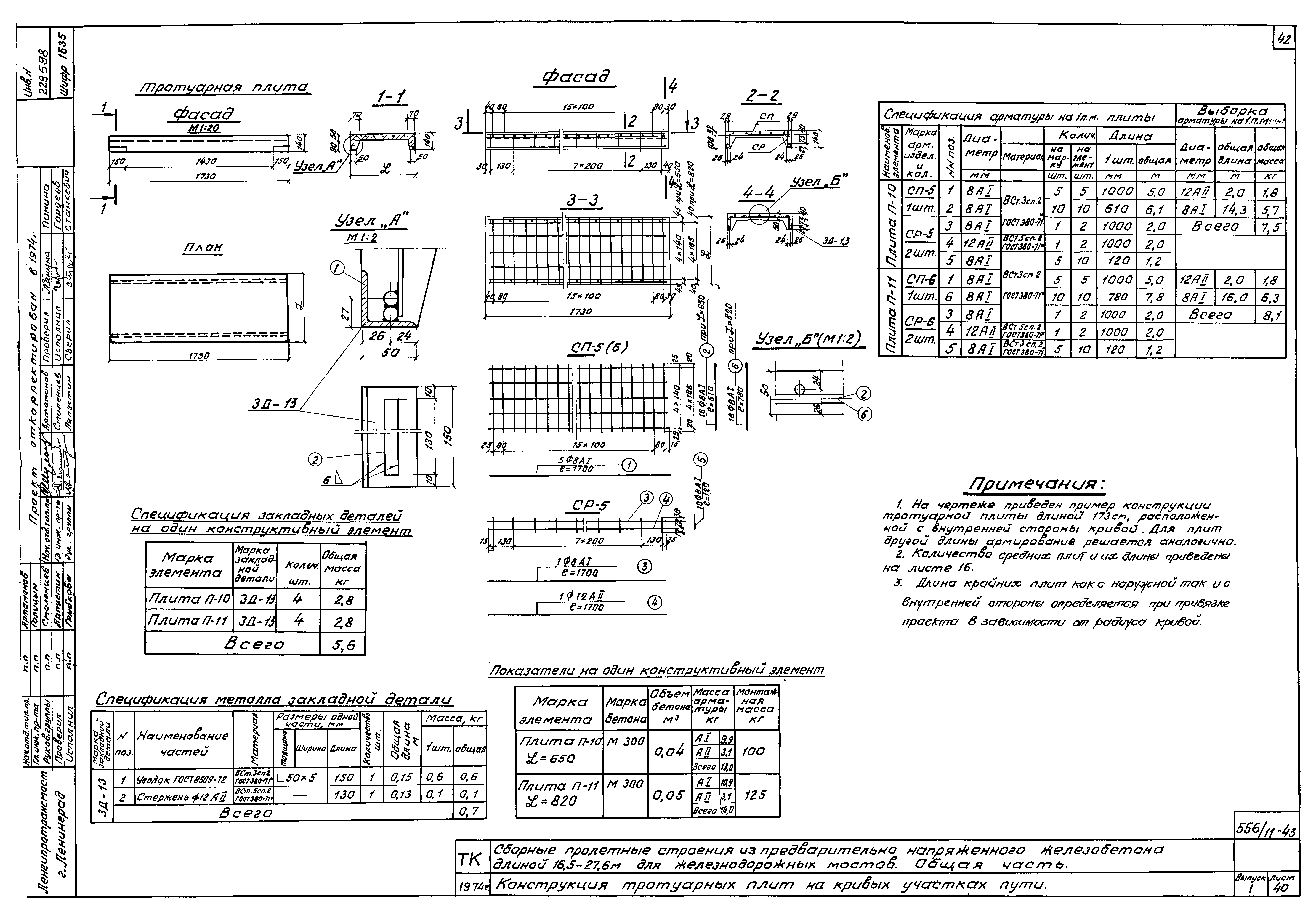
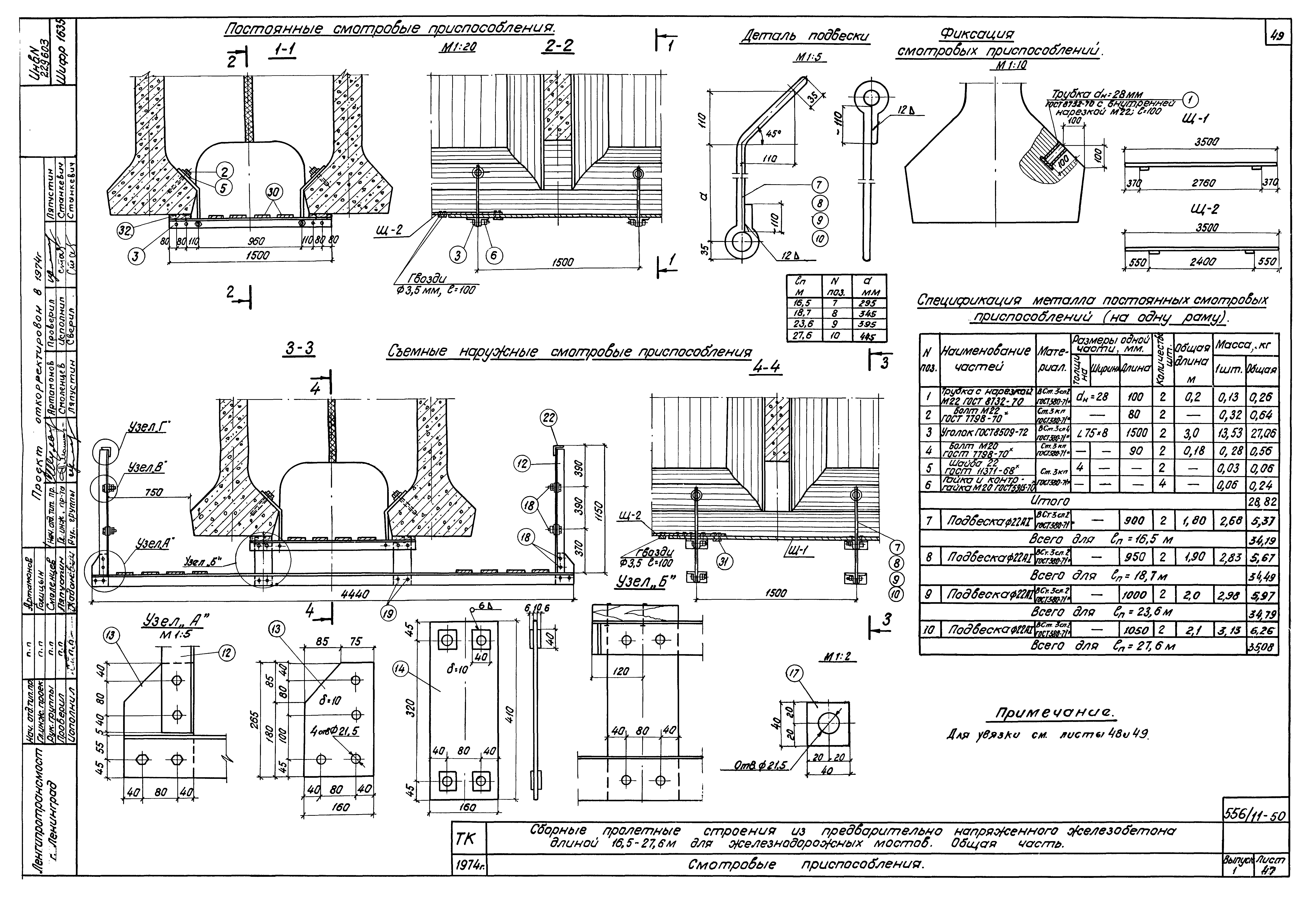
| Оглавление: | Пояснительная записка Детали изоляции Детали изоляции (продолжение) Устройство изоляции у водоотводных трубок Устройство изоляции у водоотводных трубок (продолжение) Детали водоотводной трубки и трубки для пропуска строп Общий вид железобетонной тротуарной консоли на прямых участках пути Железобетонная консоль тротуаров. Опалубочный чертеж Железобетонная консоль тротуаров. Арматурный чертеж Металлическая тротуарная консоль на прямых участках пути. Клепаная Общий вид сварной металлической тротуарной консоли на прямых участках пути Тротуарные плиты на прямых участках пути Тротуарные плиты на прямых участках пути (продолжение) Арматурный чертеж тротуарных плит на прямых участках пути Конструкция убежищ на железобетонных консолях Железобетонная консоль убежищ Железобетонная консоль убежищ (продолжение) Конструкция убежищ на металлических консолях Сварная металлическая консоль убежищ. Средняя Сварная металлическая консоль убежищ. Крайняя Клепаная металлическая консоль убежищ. Средняя Клепаная металлическая консоль убежищ. Крайняя Конструкция сварной металлической консоли убежищ для внутренней стороны кривой Сварная металлическая консоль убежищ для внутренней стороны кривой. Средняя Сварная металлическая консоль убежищ для внутренней стороны кривой. Крайняя Настил для прокладки кабеля Детали перил и прикрепления тротуарных консолей Листы перекрытия швов Балластное корыто на прямых участках пути Балластное корыто на кривых участках пути Схемы расположения пролетных строений на кривых участках пути Дополнительное армирование пролетных строений для мостов на кривых участках пути Дополнительное армирование пролетных строений для мостов на кривых участках пути (продолжение) Опалубочный чертеж тротуарной консоли на кривых участках пути Арматурный чертеж тротуарной консоли на кривых участках пути Конструкция тротуарных плит на кривых участках пути Плиты перекрытия зазора Опалубочный чертеж тротуарных плит для убежищ (ПУ-1; ПУ-2) Арматурный чертеж тротуарных плит для убежищ (ПУ-1; ПУ-2) Опалубочный чертеж тротуарных плит для убежищ (ПУ-3; ПУ-4) Арматурный чертеж тротуарных плит для убежищ (ПУ-3; ПУ-4) Детали арматурных пучков и анкеров Смотровые приспособления Смотровые приспособления (продолжение) Привязка опорных частей Привязка опорных частей (продолжение) Схема строповки блоков пролетного строения ln=16,5 м консольным краном ГЭК-80 Схема строповки блоков пролетного строения ln=18,7 м консольным краном ГЭК-80 Схема строповки блоков пролетного строения ln=23,6 м консольным краном ГЭК-80 Схема строповки блоков пролетного строения ln=16,5 м консольным краном ГЭК-130 Схема строповки блоков пролетного строения ln=18,7 м консольным краном ГЭК-130 Схема строповки блоков пролетного строения ln=23,6 м консольным краном ГЭК-130 Схема строповки блоков пролетного строения ln=27,6 м консольным краном ГЭК-130 Строповочные петли для снятия балки со стенда Расчет пролетных строений на пропуск кранов в монтажный период |
| Разработан: | Ленгипротрансмост |
| Утверждён: | 20.01.1975 МПС (Ministry of Railroads А-1586) |






























































