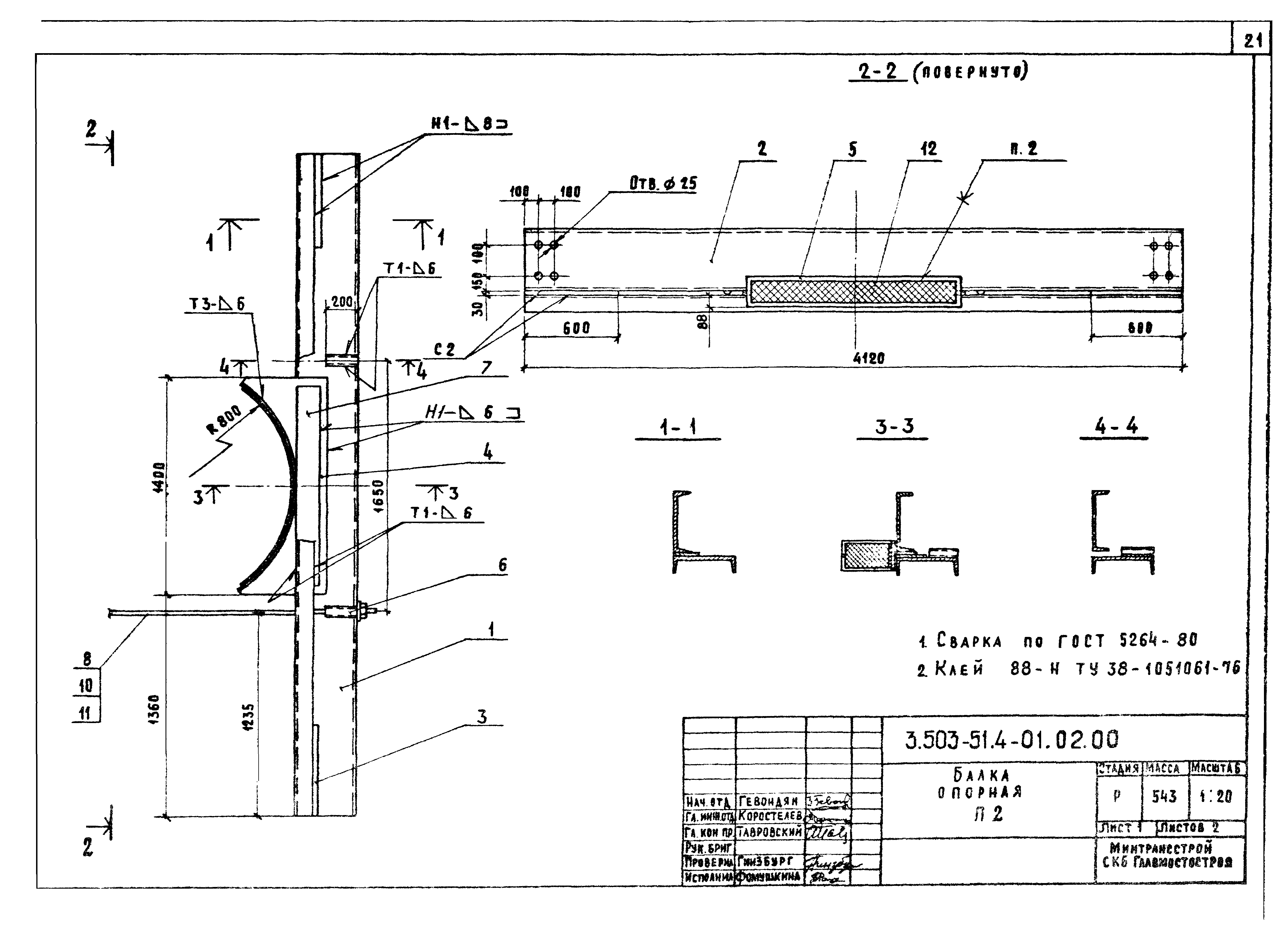
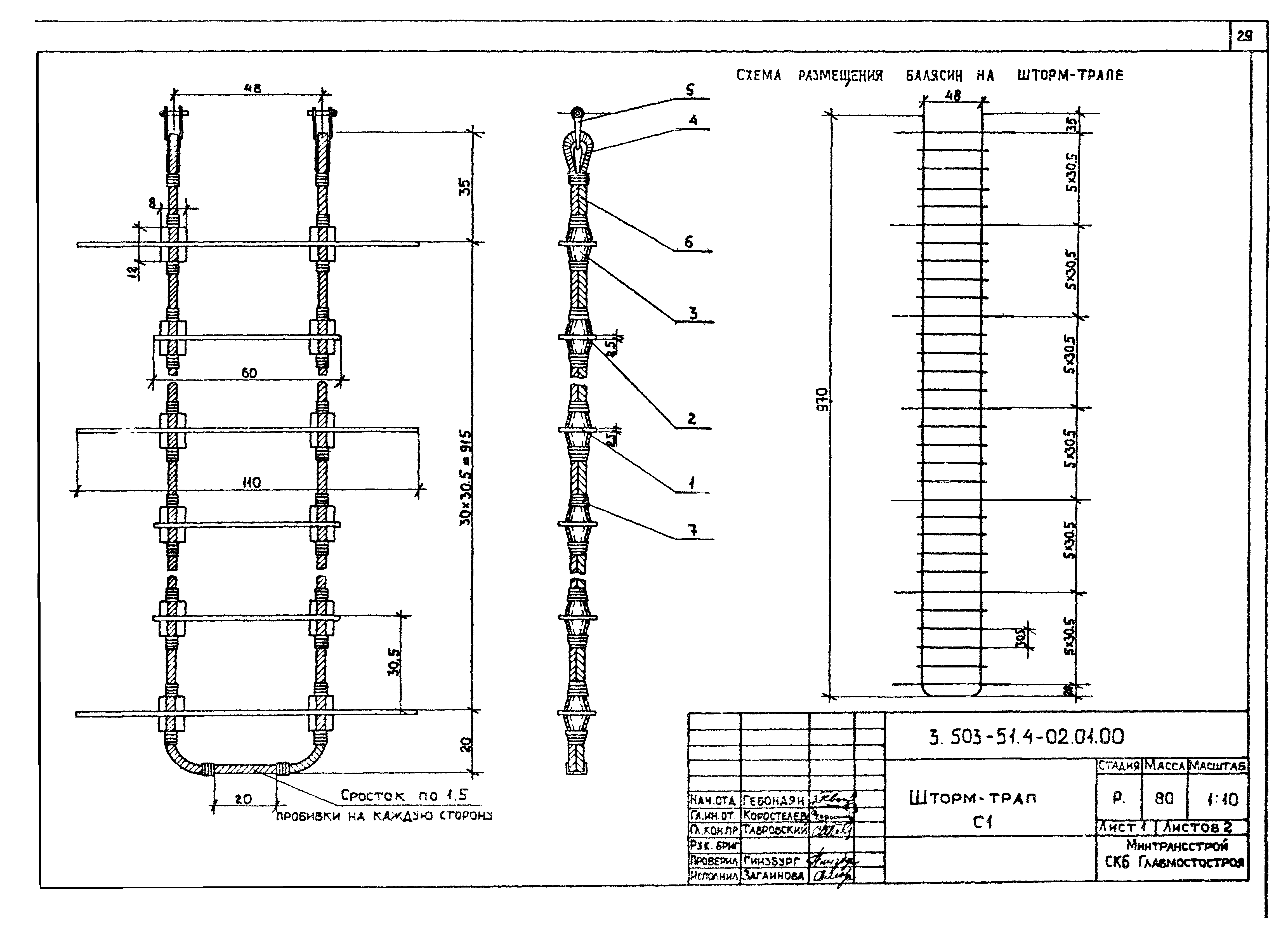
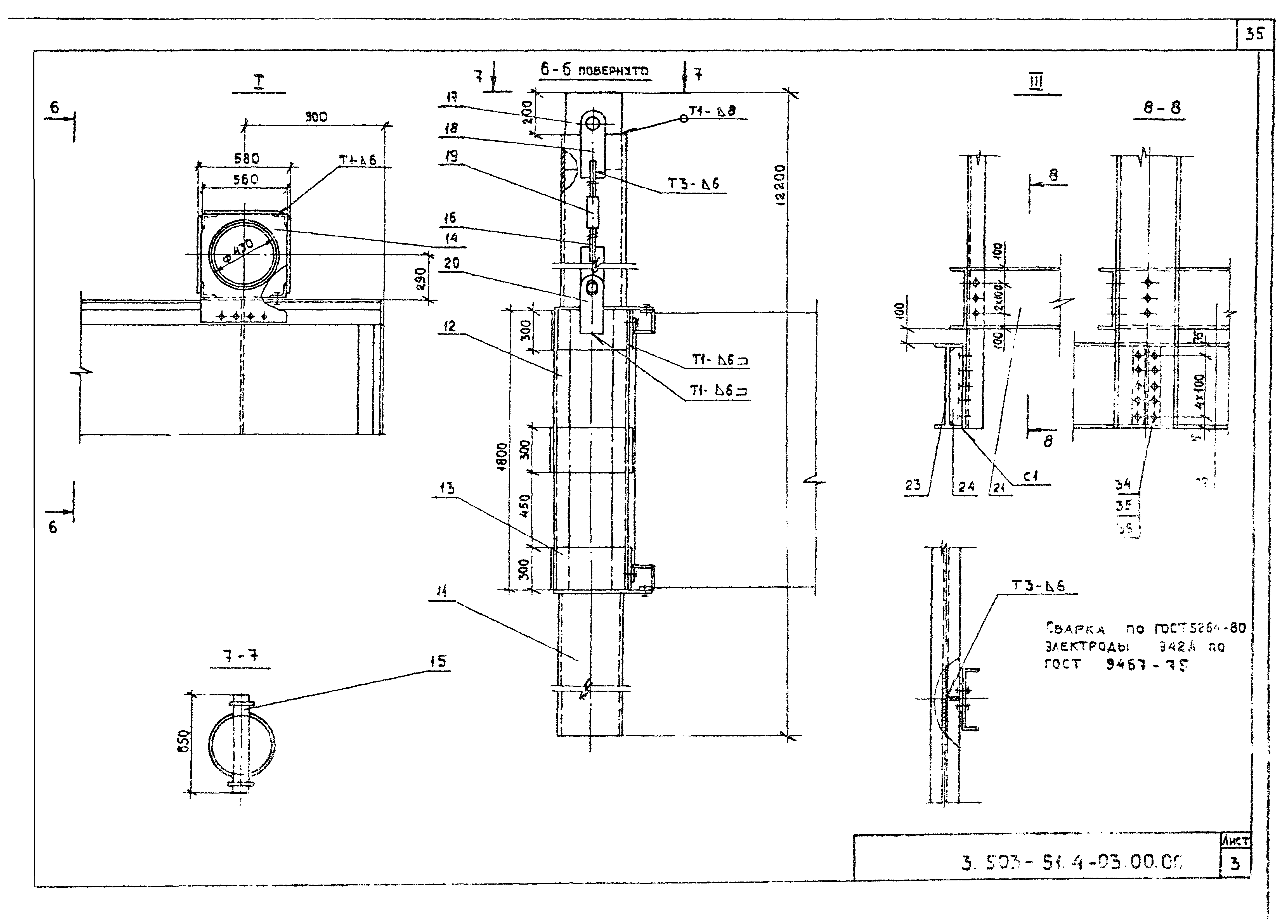
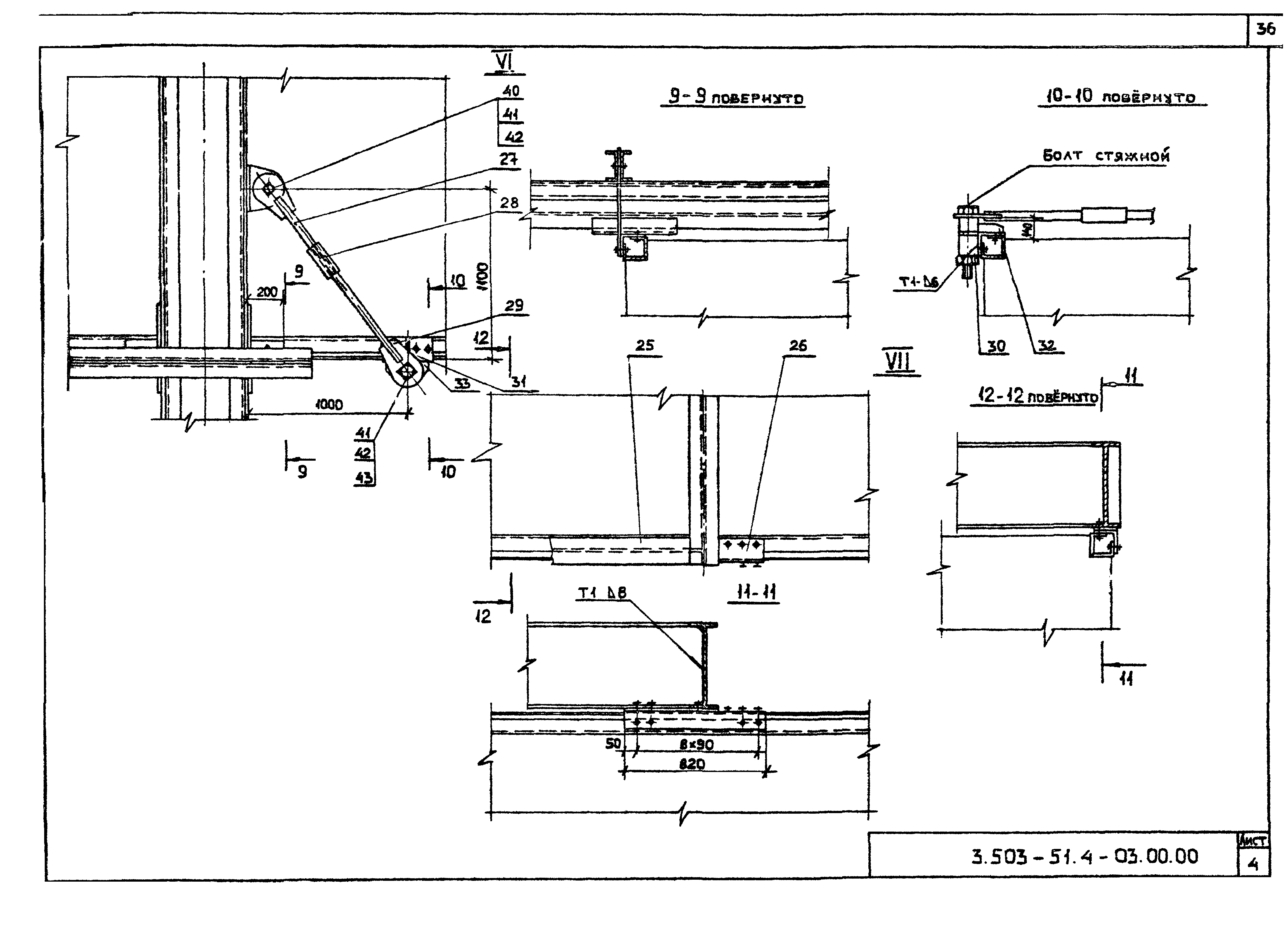
Скачать Серия 3.503-51 Выпуск 4. Специальные вспомогательные сооружения и устройства. Рабочие чертежиДата актуализации: 01.01.2021
|
| Обозначение: | Серия 3.503-51 |
| Обозначение англ: | Series 3.503-51 |
| Статус: | не определен законодательством |
| Название рус.: | Выпуск 4. Специальные вспомогательные сооружения и устройства. Рабочие чертежи |
| Дата добавления в базу: | 01.09.2013 |
| Дата актуализации: | 01.01.2021 |
| Дата введения: | 31.01.1985 |
| Дата окончания срока действия: | 30.06.2003 |
| Разработан: | СКБ Главмостостроя |
| Утверждён: | 01.08.1984 Минавтодор РСФСР (Russian Federation Minavtodor ) |
| Издан: | ЦИТП Госстроя СССР (CITP, Gosstroy (USSR) 1985 г. ) |












































































