Скачать Серия 3.501-90 Унифицированные литые опорные части пролетных строений длиной свыше 100 м для железнодорожных, автодорожных и городских мостов. Рабочие чертежиДата актуализации: 01.01.2021
|
| Обозначение: | Серия 3.501-90 |
| Обозначение англ: | Series 3.501-90 |
| Статус: | не определен законодательством |
| Название рус.: | Унифицированные литые опорные части пролетных строений длиной свыше 100 м для железнодорожных, автодорожных и городских мостов. Рабочие чертежи |
| Дата добавления в базу: | 01.09.2013 |
| Дата актуализации: | 01.01.2021 |
| Дата введения: | 01.07.1975 |
| Дата окончания срока действия: | 30.06.2003 |
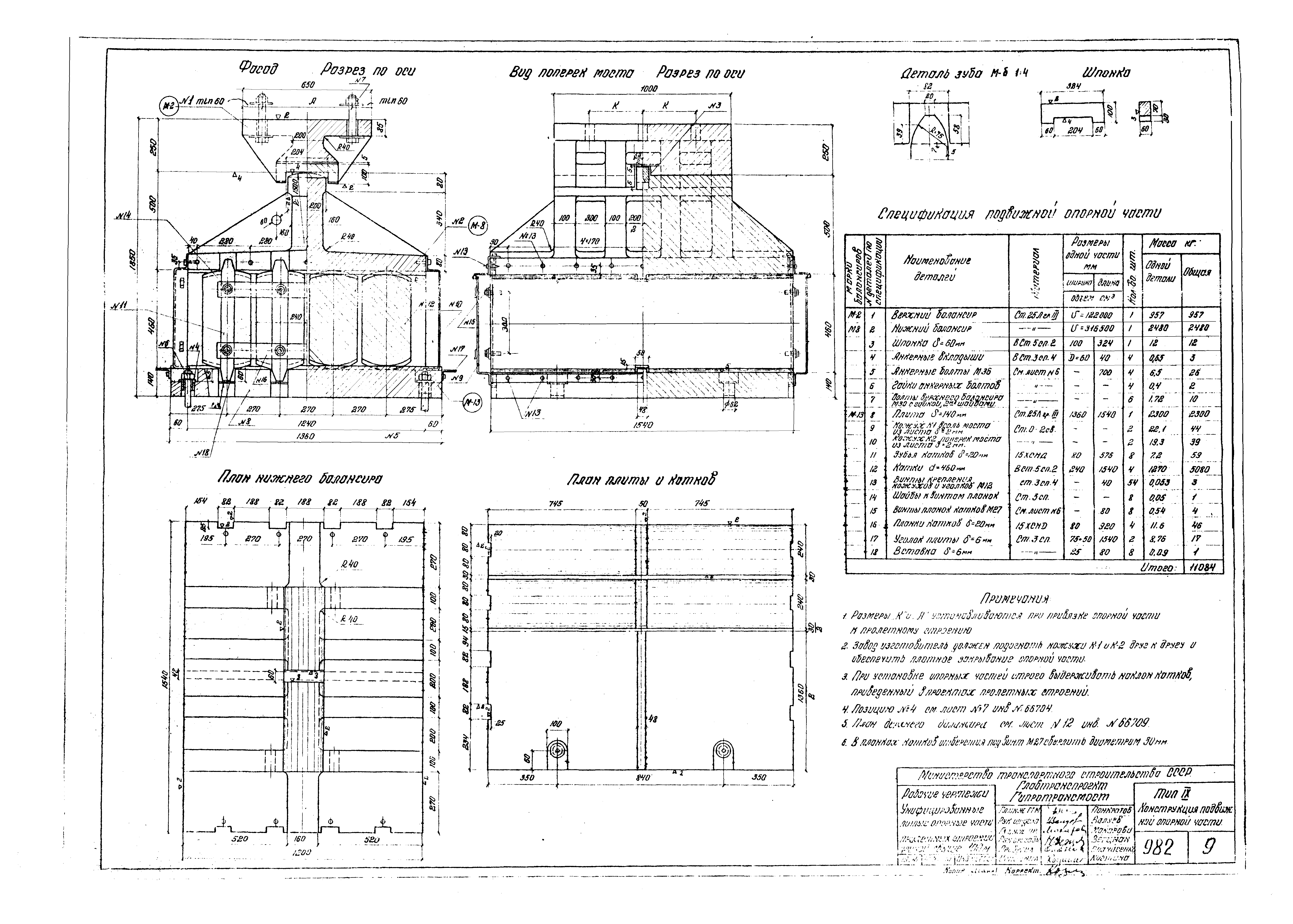
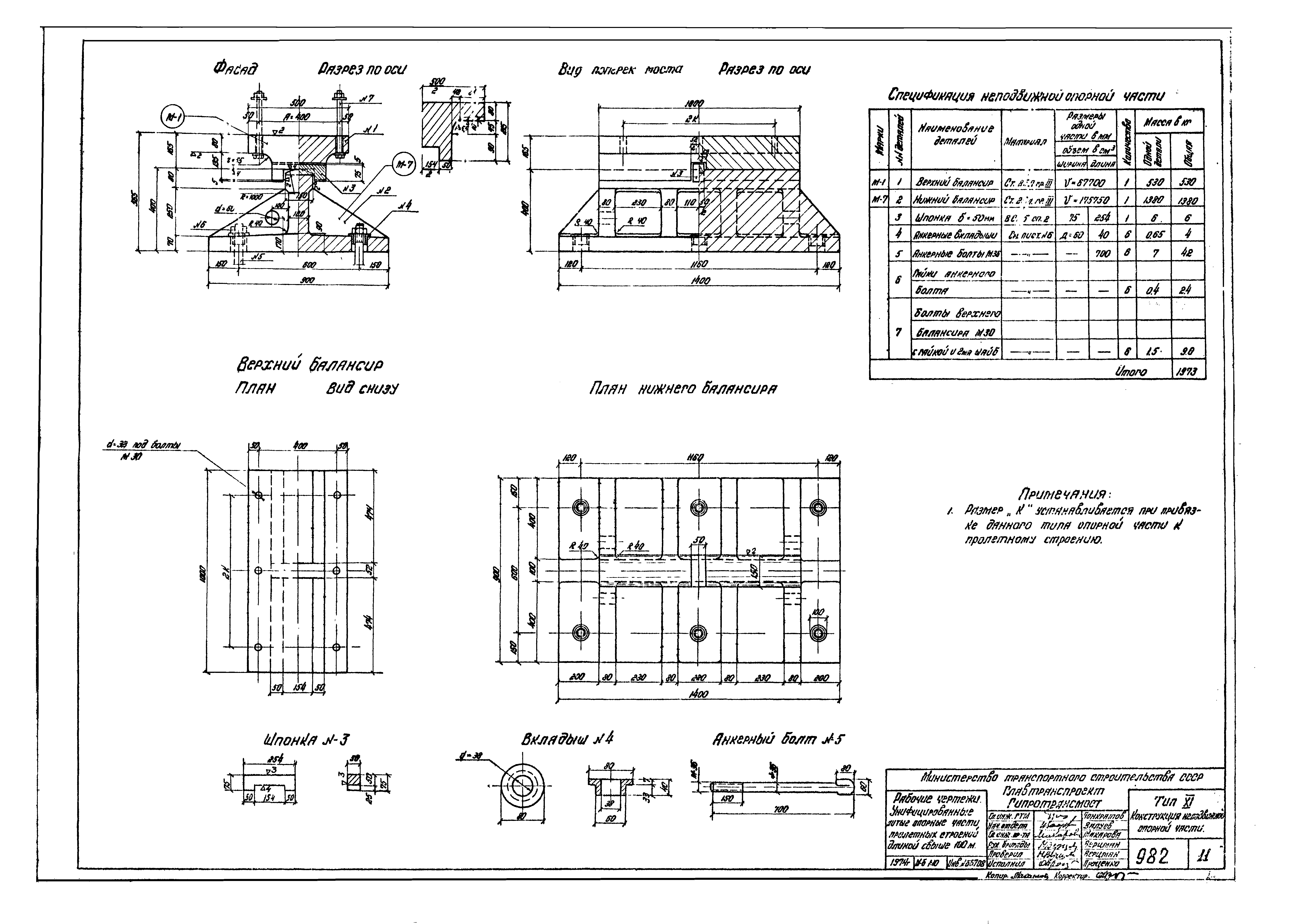
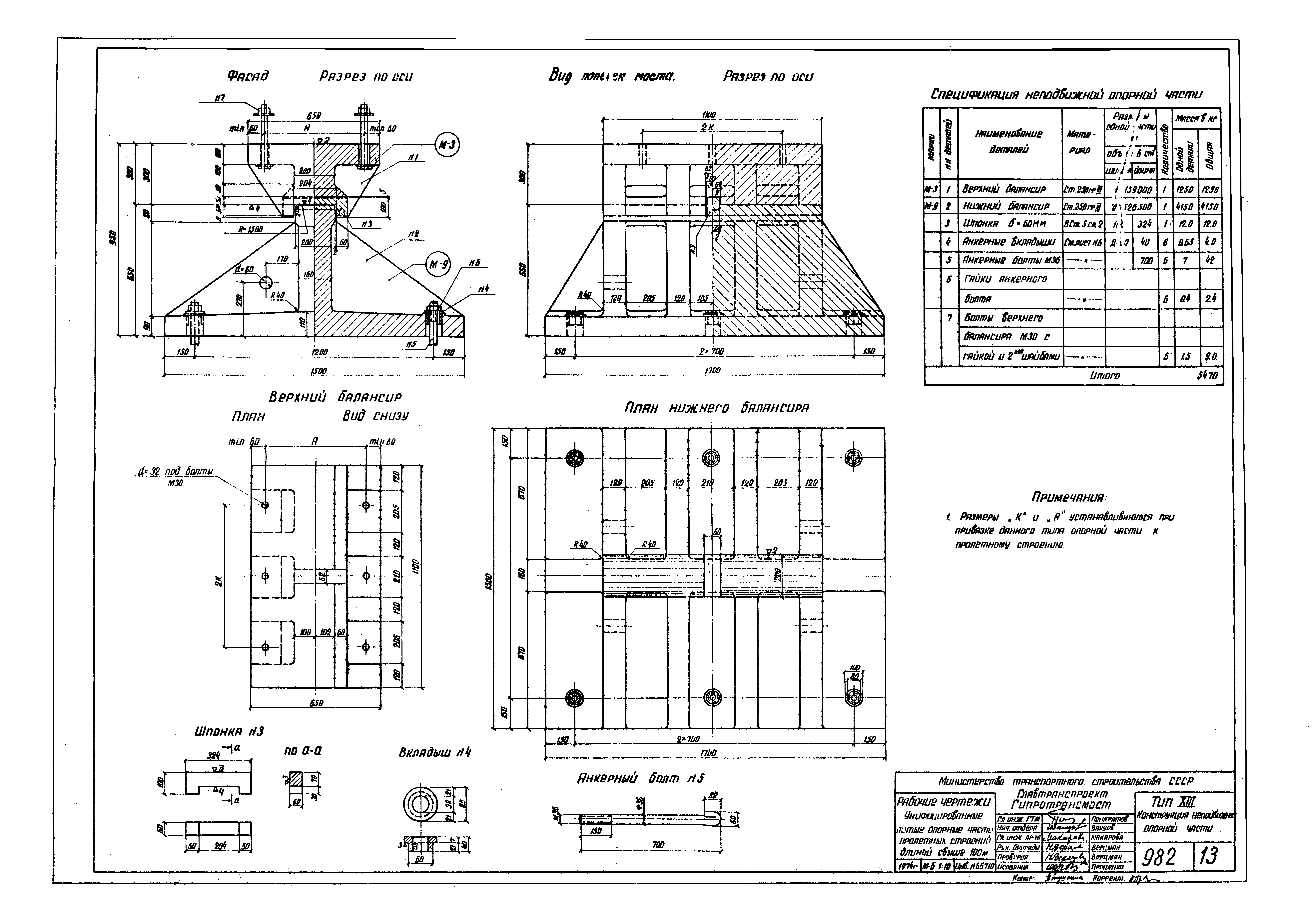
| Оглавление: | Пояснительная записка Основные расчетные данные. Область применения Основные геометрические данные. Материал и масса Тип VII Конструкция подвижной опорной части Тип VIII Конструкция подвижной опорной части Тип IX Конструкция подвижной опорной части Тип X Конструкция подвижной опорной части Тип XI Конструкция неподвижной опорной части Тип XII Конструкция неподвижной опорной части Тип XIII Конструкция неподвижной опорной части Тип XIV Конструкция неподвижной опорной части Конструкция кожухов подвижных опорных частей Тип VII Расчет подвижной опорной части Тип VIII Расчет подвижной опорной части Тип IX Расчет подвижной опорной части Тип X Расчет подвижной опорной части Тип XI Расчет неподвижной опорной части Тип XII Расчет неподвижной опорной части Тип XIII Расчет неподвижной опорной части Тип XIV Расчет неподвижной опорной части |
| Разработан: | Гипротрансмост |
| Утверждён: | 01.07.1975 МПС (Ministry of Railroads П-9207) |






















