Скачать Серия 3.501-49 Выпуск 1. Металлические железнодорожные пролетные строения с ездой поверху на балласте пролетом 18,2 м в северном исполнении. Пояснительная записка и чертежиДата актуализации: 01.01.2021
|
| Обозначение: | Серия 3.501-49 |
| Обозначение англ: | Series 3.501-49 |
| Статус: | не определен законодательством |
| Название рус.: | Выпуск 1. Металлические железнодорожные пролетные строения с ездой поверху на балласте пролетом 18,2 м в северном исполнении. Пояснительная записка и чертежи |
| Дата добавления в базу: | 01.09.2013 |
| Дата актуализации: | 01.01.2021 |
| Дата введения: | 01.09.1971 |
| Дата окончания срока действия: | 30.06.2003 |
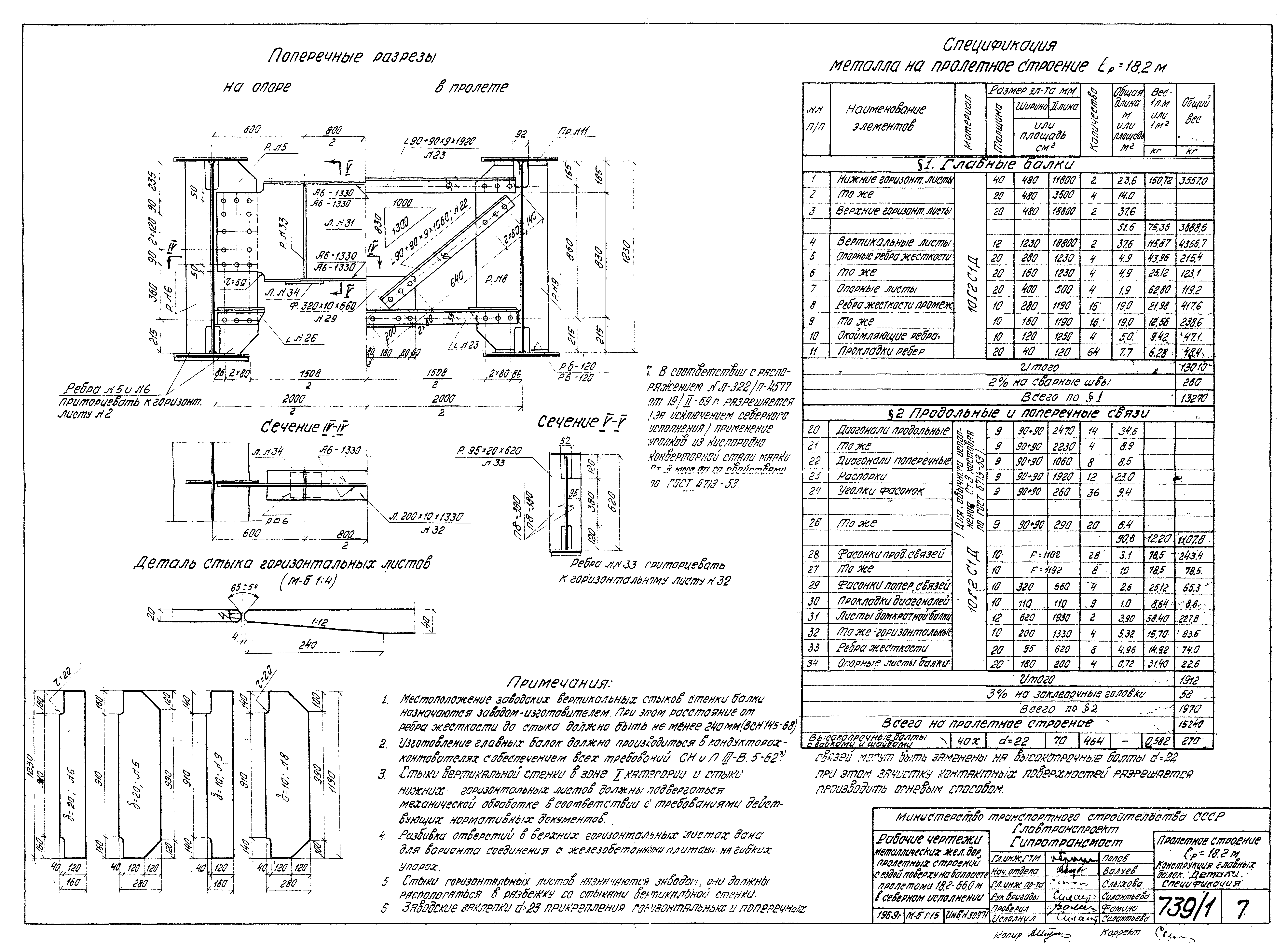
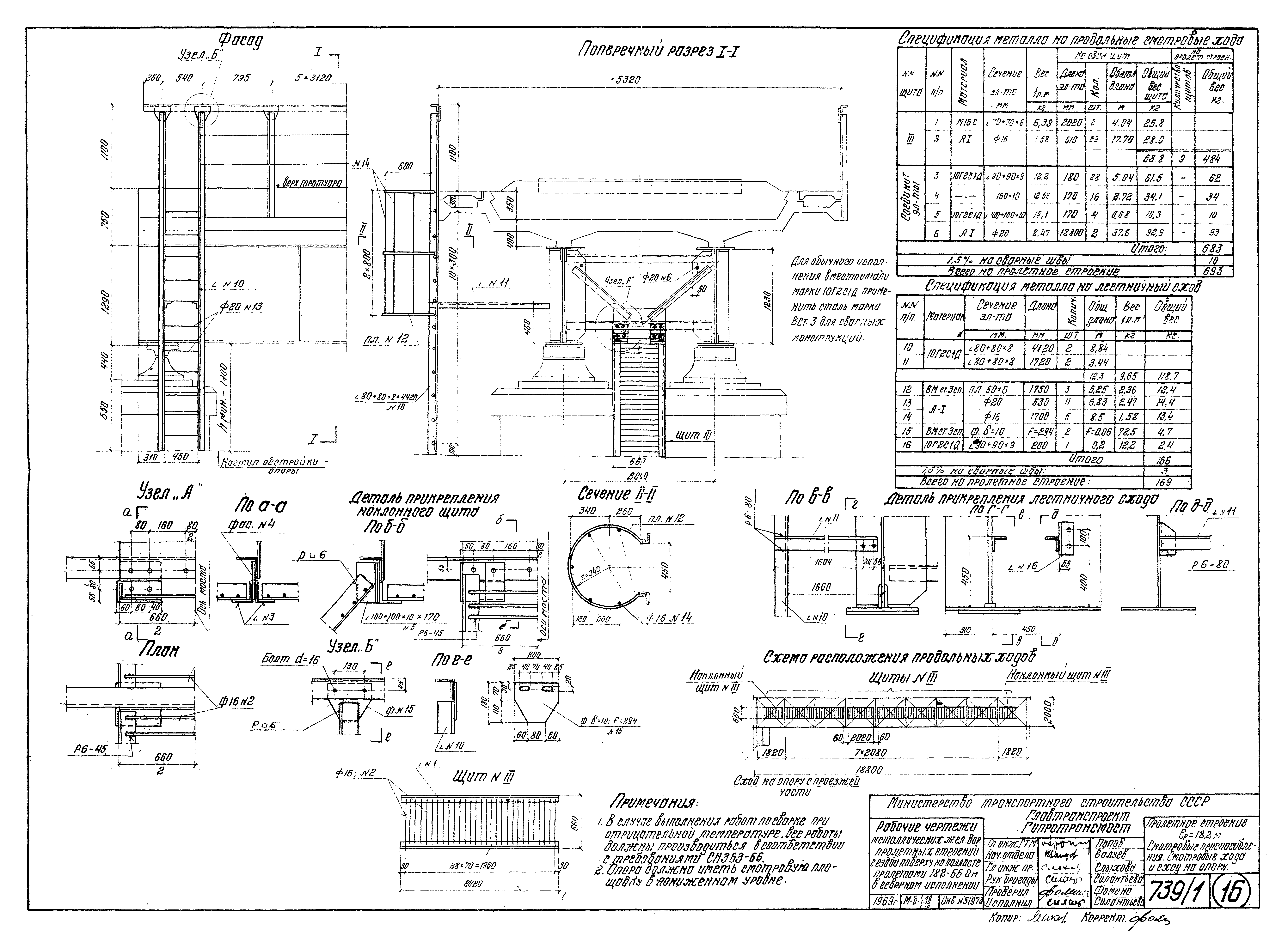
| Оглавление: | Состав проекта и условные обозначения Пояснительная записка Пояснительная записка (продолжение) Паспорт пролетного строения lp = 18.2 м Пролетное строение lp = 18.2 м. Конструкция главных балок Пролетное строение lp = 18.2 м. Конструкция главных балок (продолжение). Спецификация Пролетное строение lp = 18.2 м. Железобетонная плита с гибкими упорами. Сборочный чертеж Пролетное строение lp = 18.2 м. Железобетонная плита с жесткими упорами. Сборочный чертеж Пролетное строение lp = 18.2 м. Установка главных балок в пролет краном ГЭК - 80 Пролетное строение lp = 18.2 . Нагрузки и усилия в главных балках Пролетное строение lp = 18.2 м. Расчет главных балок на прочность Пролетное строение lp = 18.2 м. Расчет главных балок на выносливость Пролетное строение lp = 18.2 м. Расчет на местную устойчивость Пролетное строение lp = 18.2 м. Расчет приведенных напряжений. Расчет на дополнительные нагрузки Пролетное строение lp = 18.2 м. Смотровые приспособления. Смотровые хода и сход на опору |
| Разработан: | Гипротрансмост |
| Утверждён: | 05.06.1970 МПС (Ministry of Railroads П-15741) |















