Скачать Серия 3.501-49 Выпуск 13с. Антисейсмические устройства для мостов, расположенных в районах с расчетной сейсмичностью 7, 8, 9 баллов. Рабочие чертежиДата актуализации: 01.01.2021
|
| Обозначение: | Серия 3.501-49 |
| Обозначение англ: | Series 3.501-49 |
| Статус: | не определен законодательством |
| Название рус.: | Выпуск 13с. Антисейсмические устройства для мостов, расположенных в районах с расчетной сейсмичностью 7, 8, 9 баллов. Рабочие чертежи |
| Дата добавления в базу: | 01.09.2013 |
| Дата актуализации: | 01.01.2021 |
| Дата введения: | 01.01.1979 |
| Дата окончания срока действия: | 30.06.2003 |
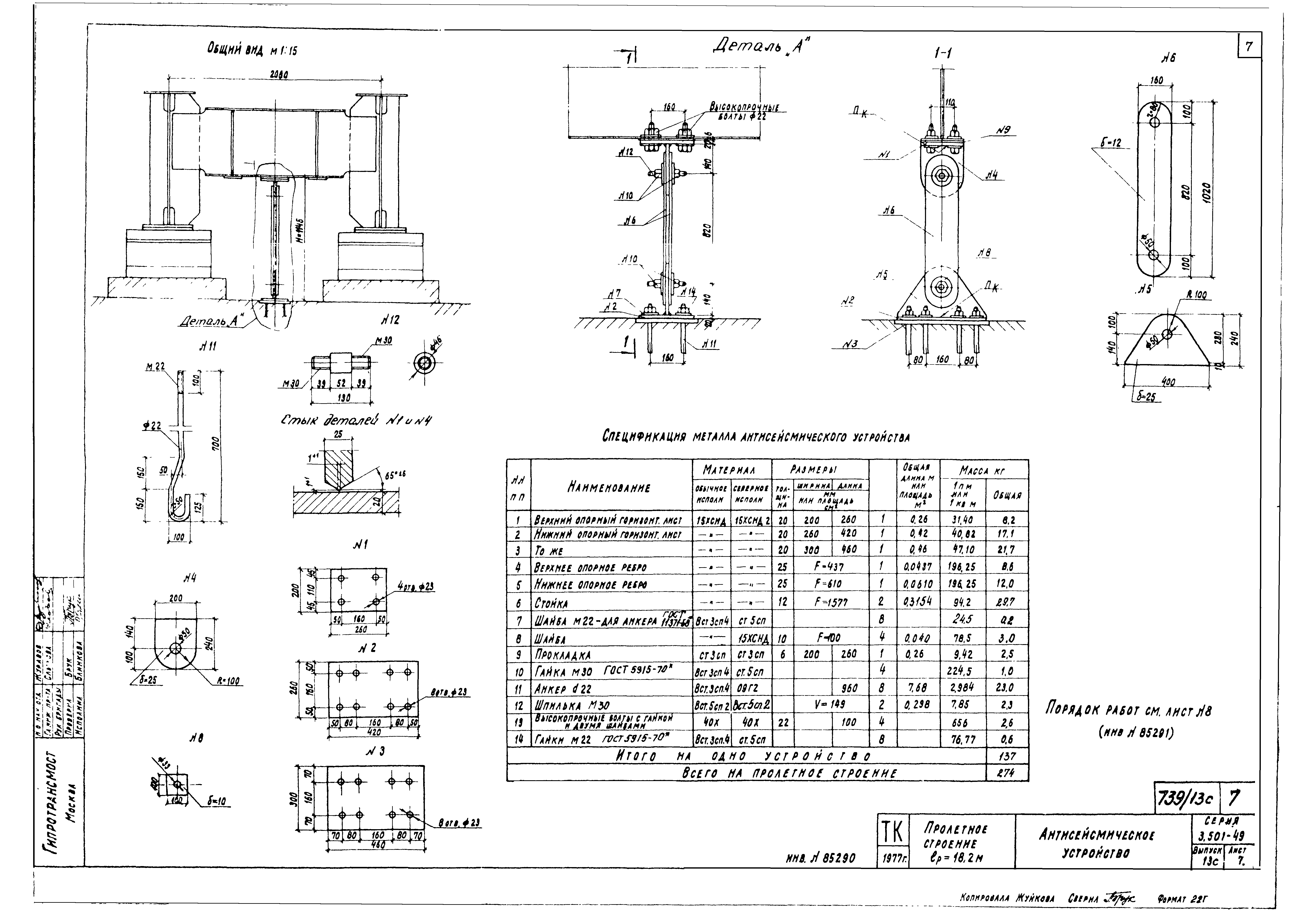
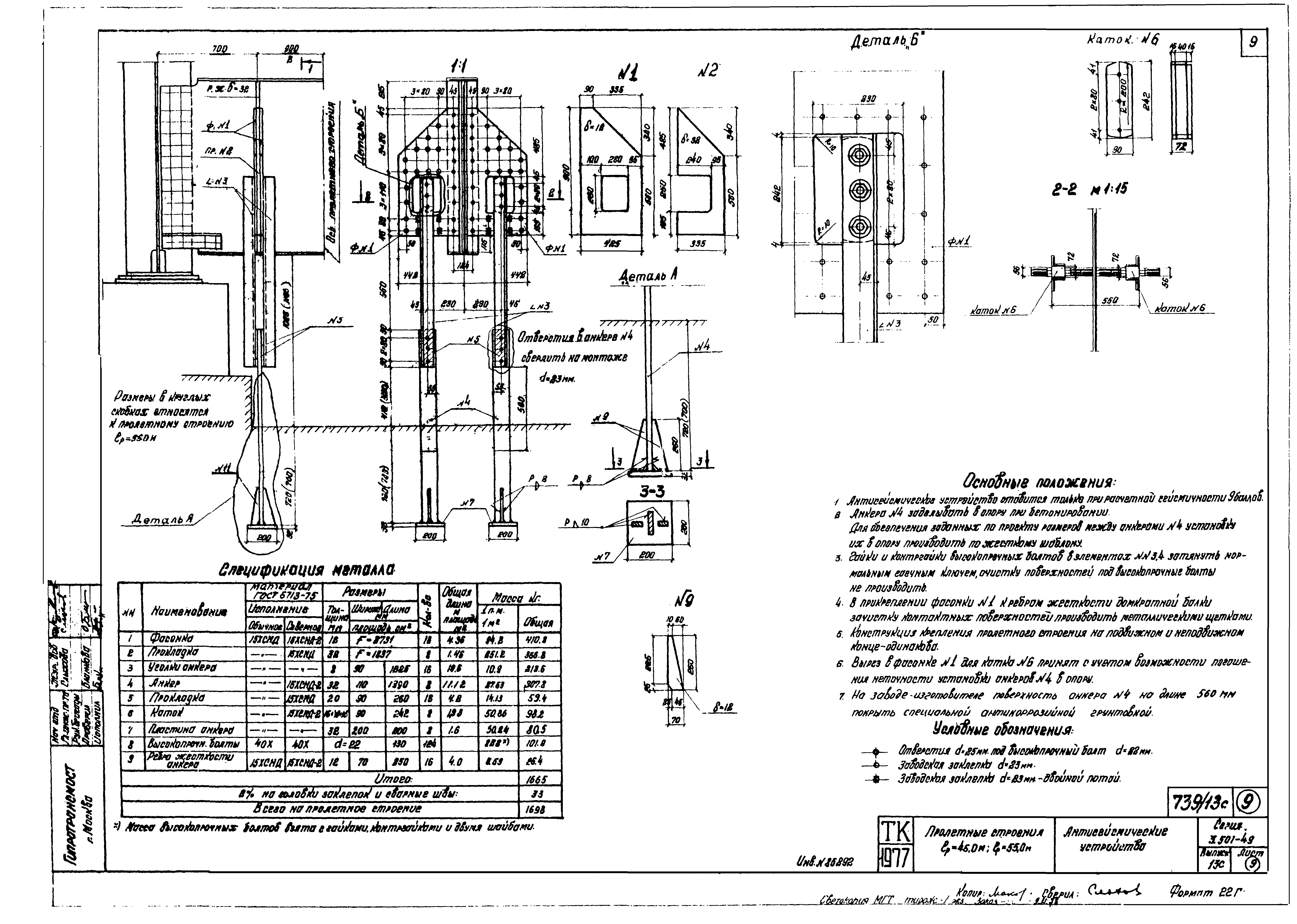
| Оглавление: | Состав проекта Пояснительная записка Опорные части. Расчет на сейсмику. Конструкция Прикрепление опорных частей подферменникам. Закладные детали Антисейсмические устройства. Расчет Пролетное строение lp = 18,2 м. Антисейсмическое устройство Пролетные строения lp = 23,0 - 33,6 м. Антисейсмические устройства Пролетные строения lp = 45,0 - 55,0 м. Антисейсмические устройства |
| Разработан: | Гипротрансмост |
| Утверждён: | 15.08.1978 МПС (Ministry of Railroads А-26601) |








