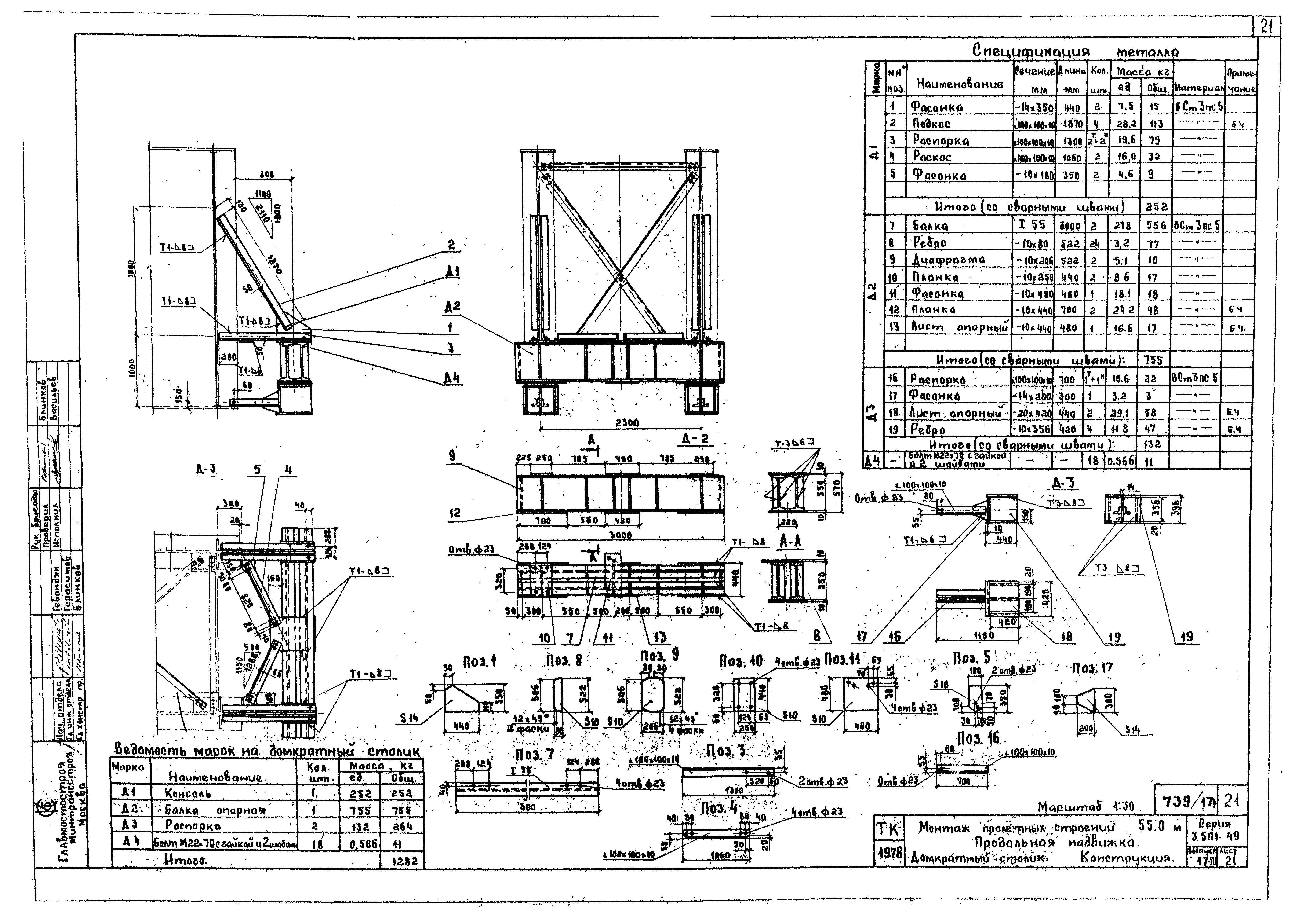
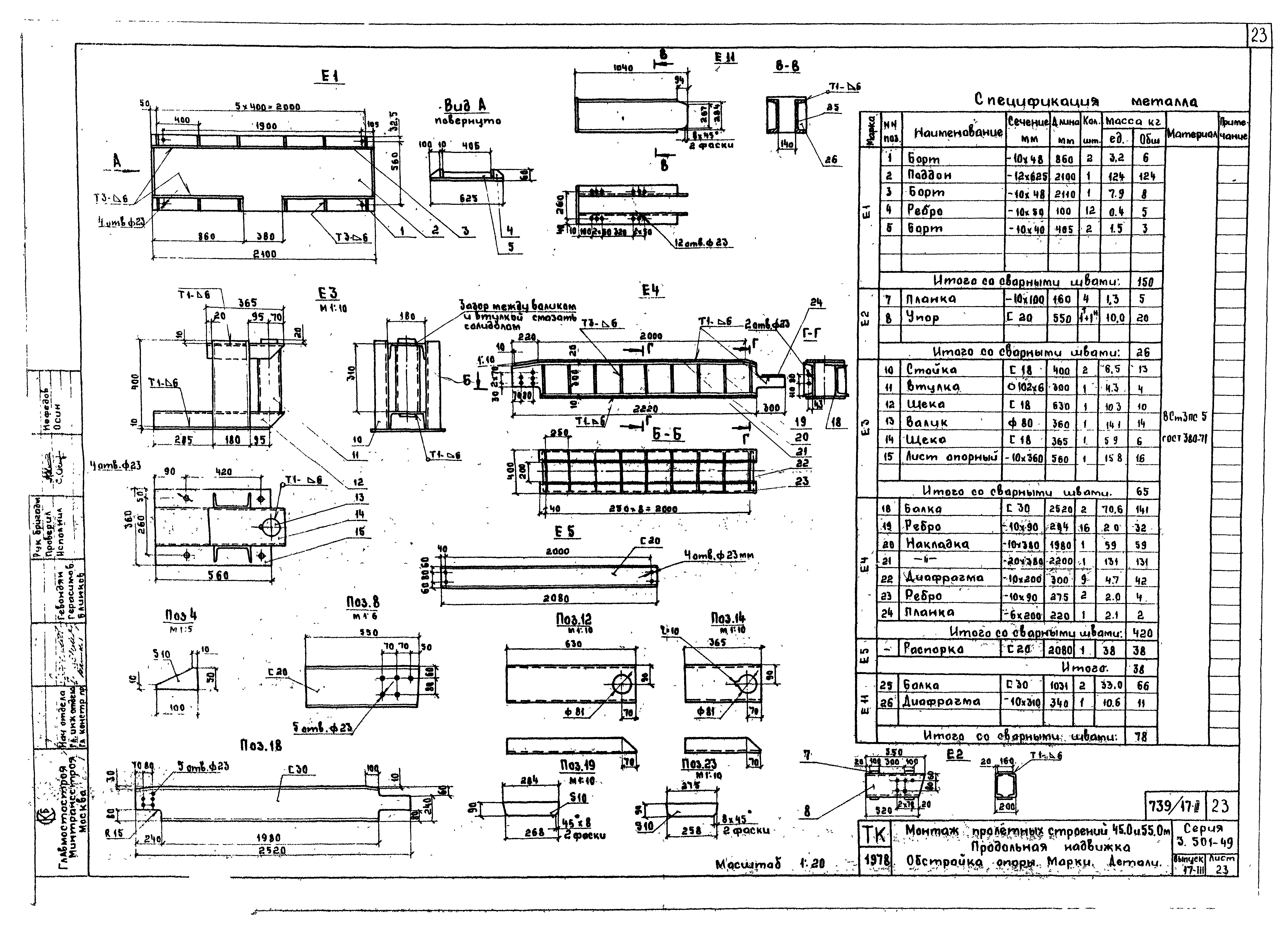
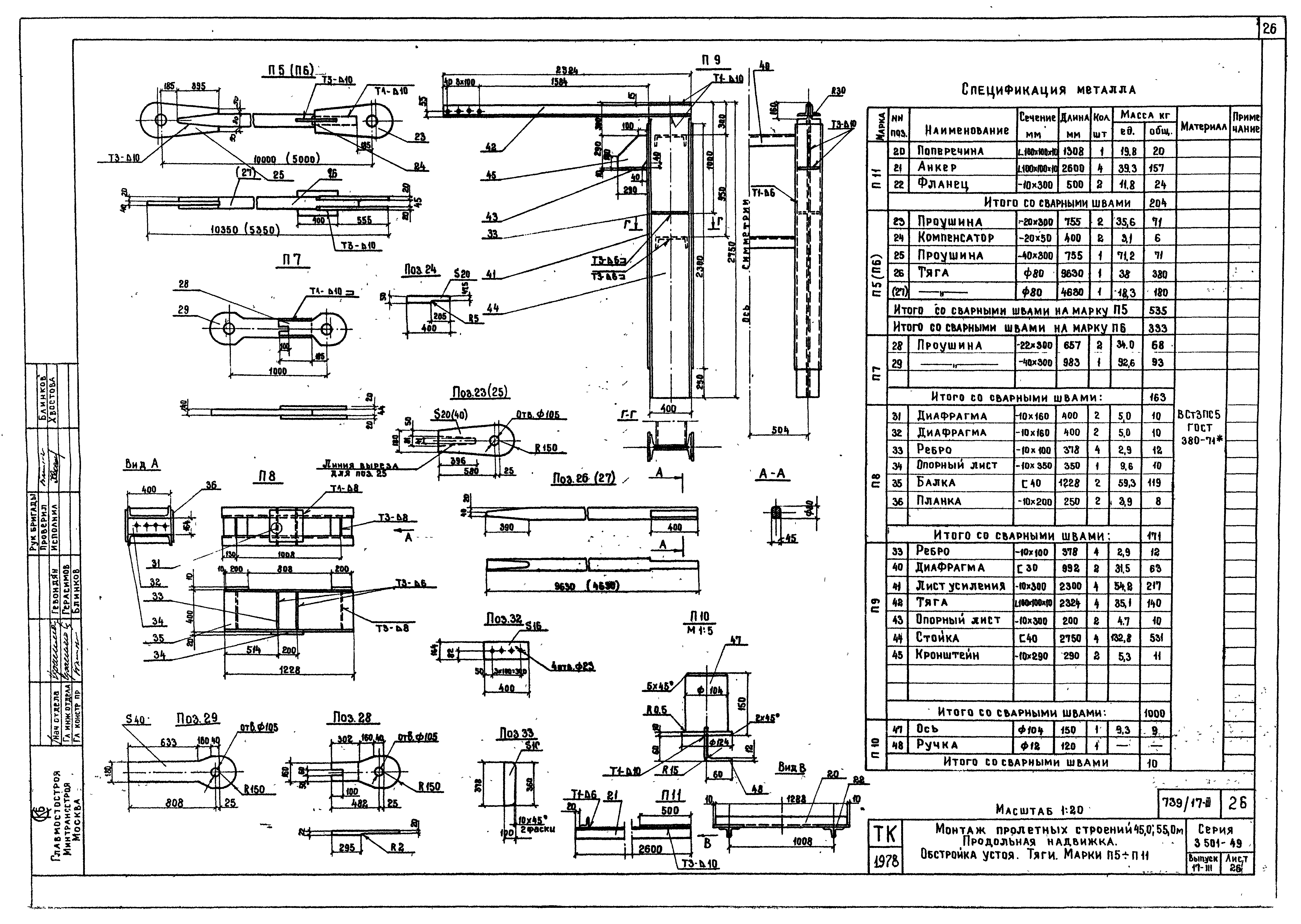
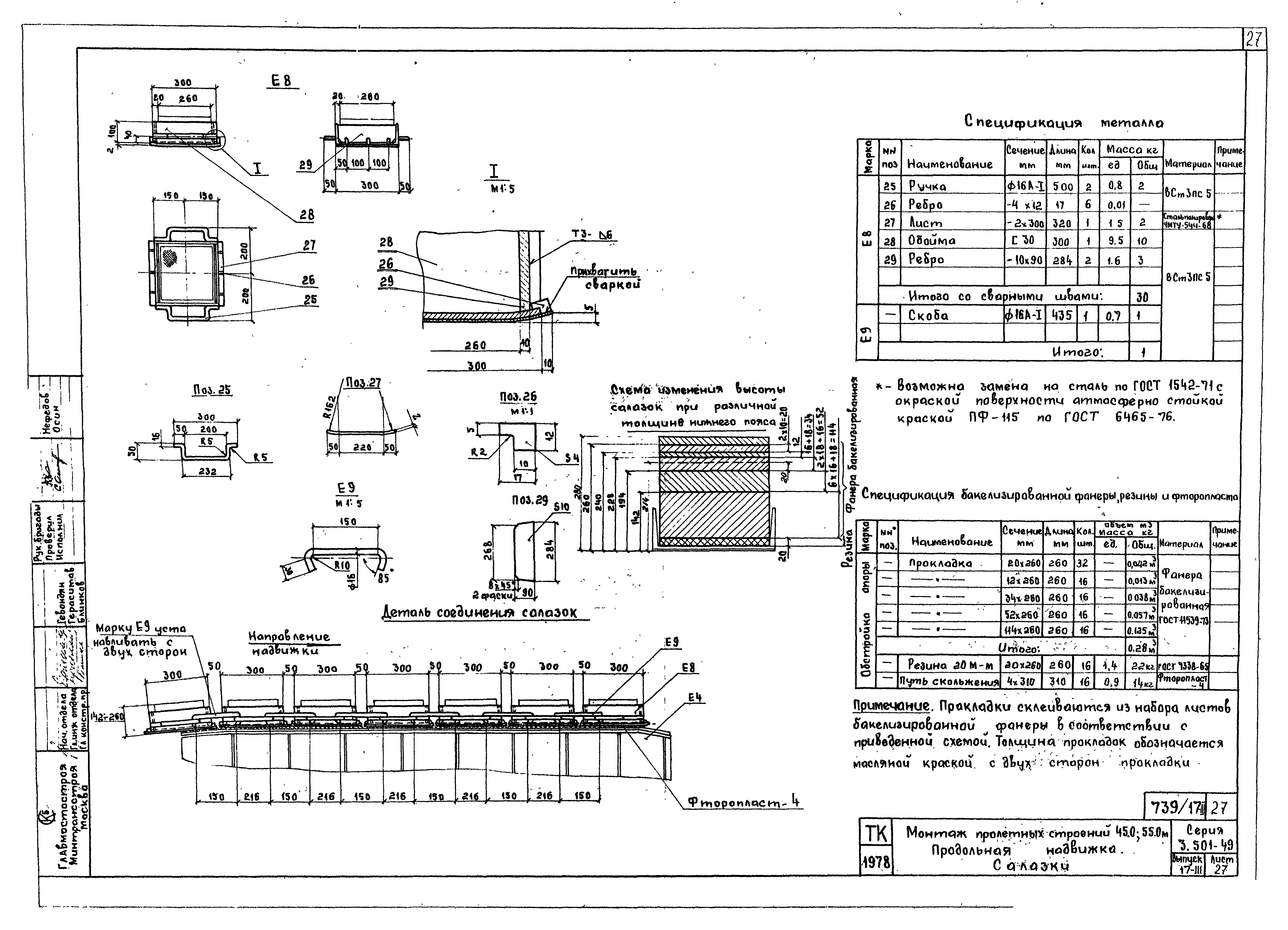
Скачать Серия 3.501-49 Выпуск 17. Альбом III. Монтаж пролетных строений. Пролетные строения 45,0 и 55,0 м. Монтаж способом продольной задвижки и стреловыми кранами с земли. Техно-рабочие чертежиДата актуализации: 01.01.2021 Серия 3.501-49
Выпуск 17. Альбом III. Монтаж пролетных строений. Пролетные строения 45,0 и 55,0 м. Монтаж способом продольной задвижки и стреловыми кранами с земли. Техно-рабочие чертежи| Обозначение: | Серия 3.501-49 | | Обозначение англ: | Series 3.501-49 | | Статус: | не определен законодательством | | Название рус.: | Выпуск 17. Альбом III. Монтаж пролетных строений. Пролетные строения 45,0 и 55,0 м. Монтаж способом продольной задвижки и стреловыми кранами с земли. Техно-рабочие чертежи | | Дата добавления в базу: | 01.09.2013 | | Дата актуализации: | 01.01.2021 | | Дата введения: | 01.01.1980 | | Дата окончания срока действия: | 30.06.2003 | | Разработан: | СКБ Главмостостроя
| | Утверждён: | 24.10.1979 Минтрансстрой (Mintransstroy Л-1798)
|
                                                                     
|