Скачать Серия 3.501-84 Металлические неразрезные железнодорожные болтосварные пролетные строения с ездой понизу пролетом 2х110 м из стали класса С-35. Рабочие чертежиДата актуализации: 01.01.2021
|
| Обозначение: | Серия 3.501-84 |
| Обозначение англ: | Series 3.501-84 |
| Статус: | не определен законодательством |
| Название рус.: | Металлические неразрезные железнодорожные болтосварные пролетные строения с ездой понизу пролетом 2х110 м из стали класса С-35. Рабочие чертежи |
| Дата добавления в базу: | 01.09.2013 |
| Дата актуализации: | 01.01.2021 |
| Дата введения: | 06.03.1984 |
| Дата окончания срока действия: | 30.06.2003 |
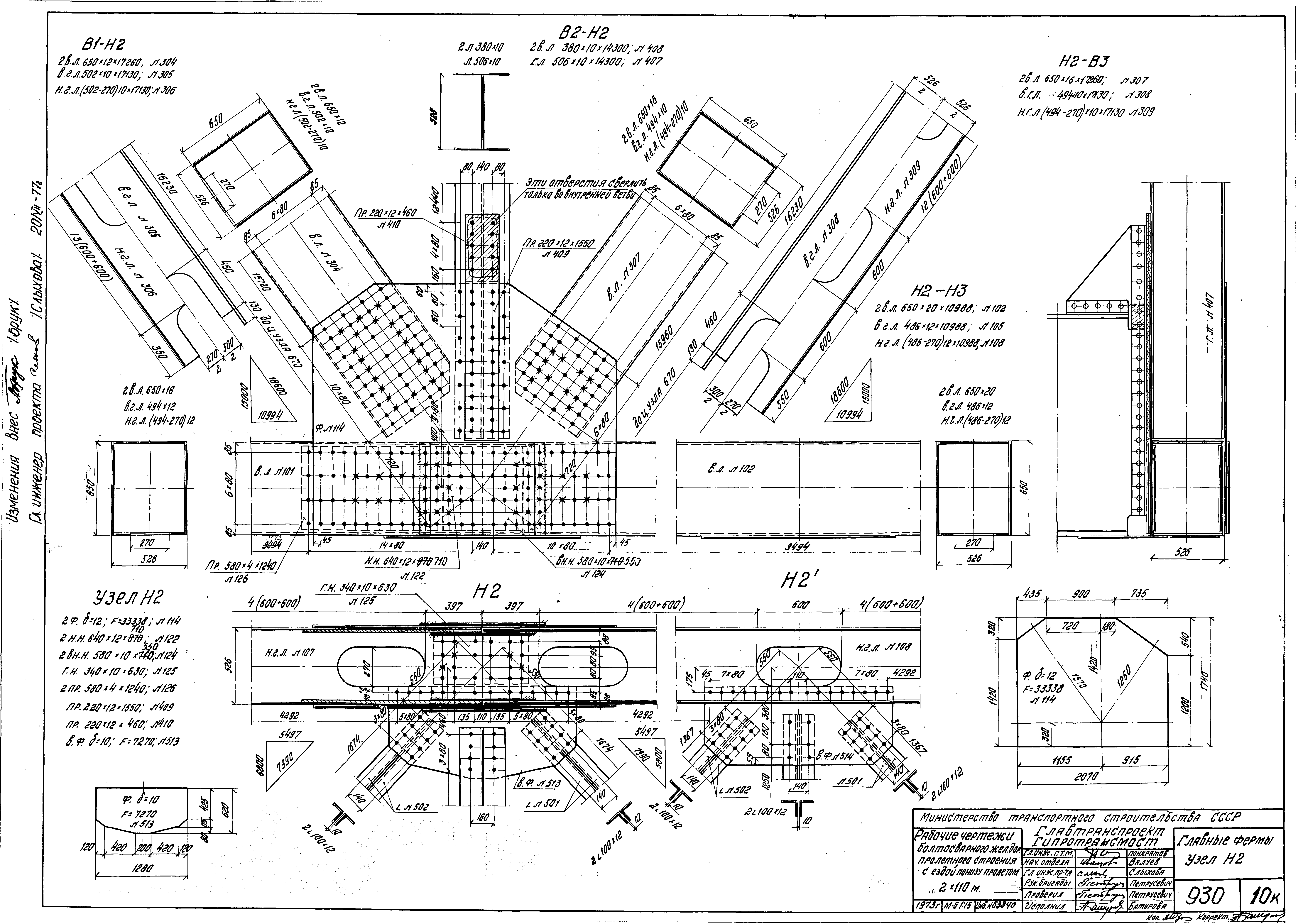
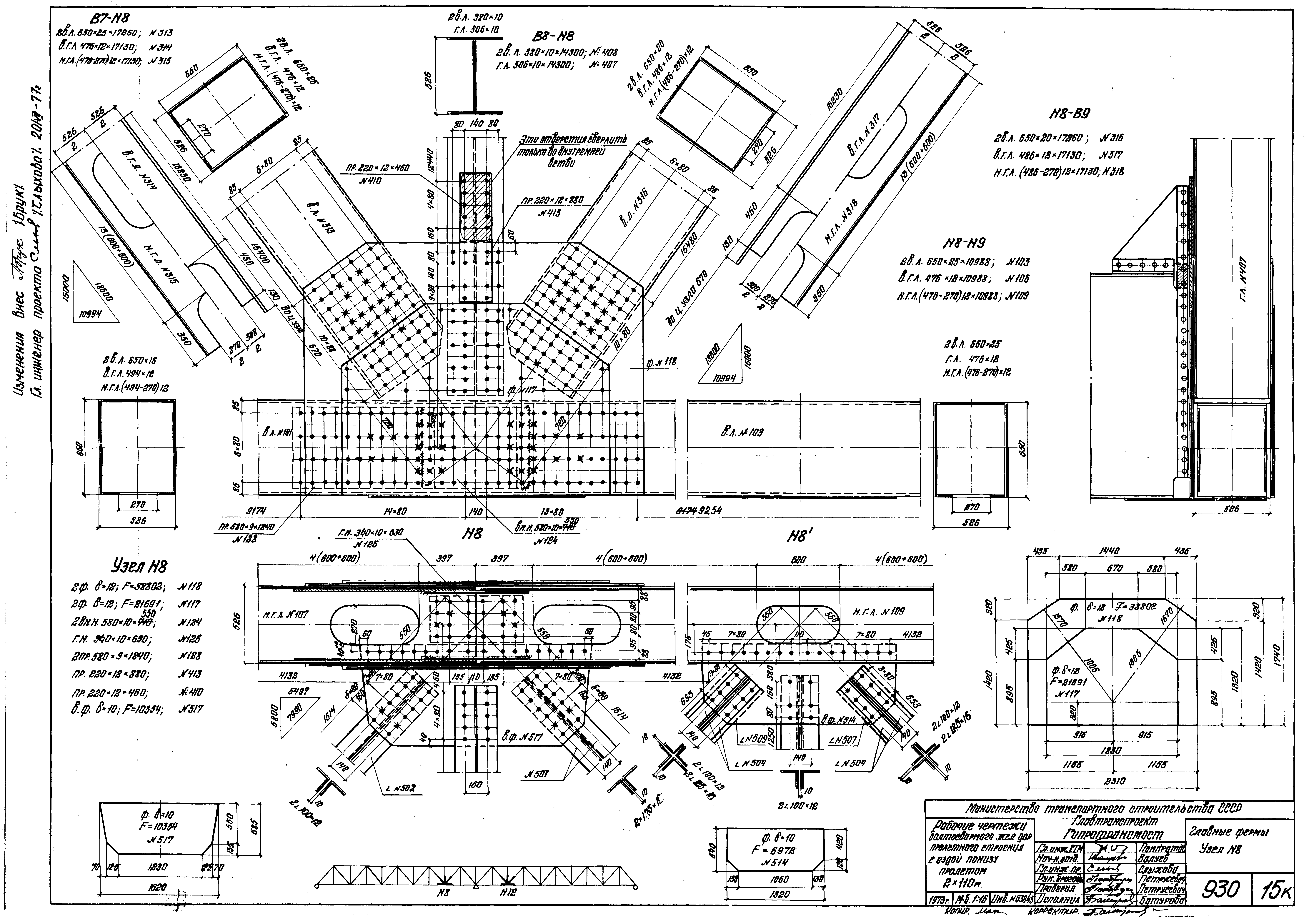
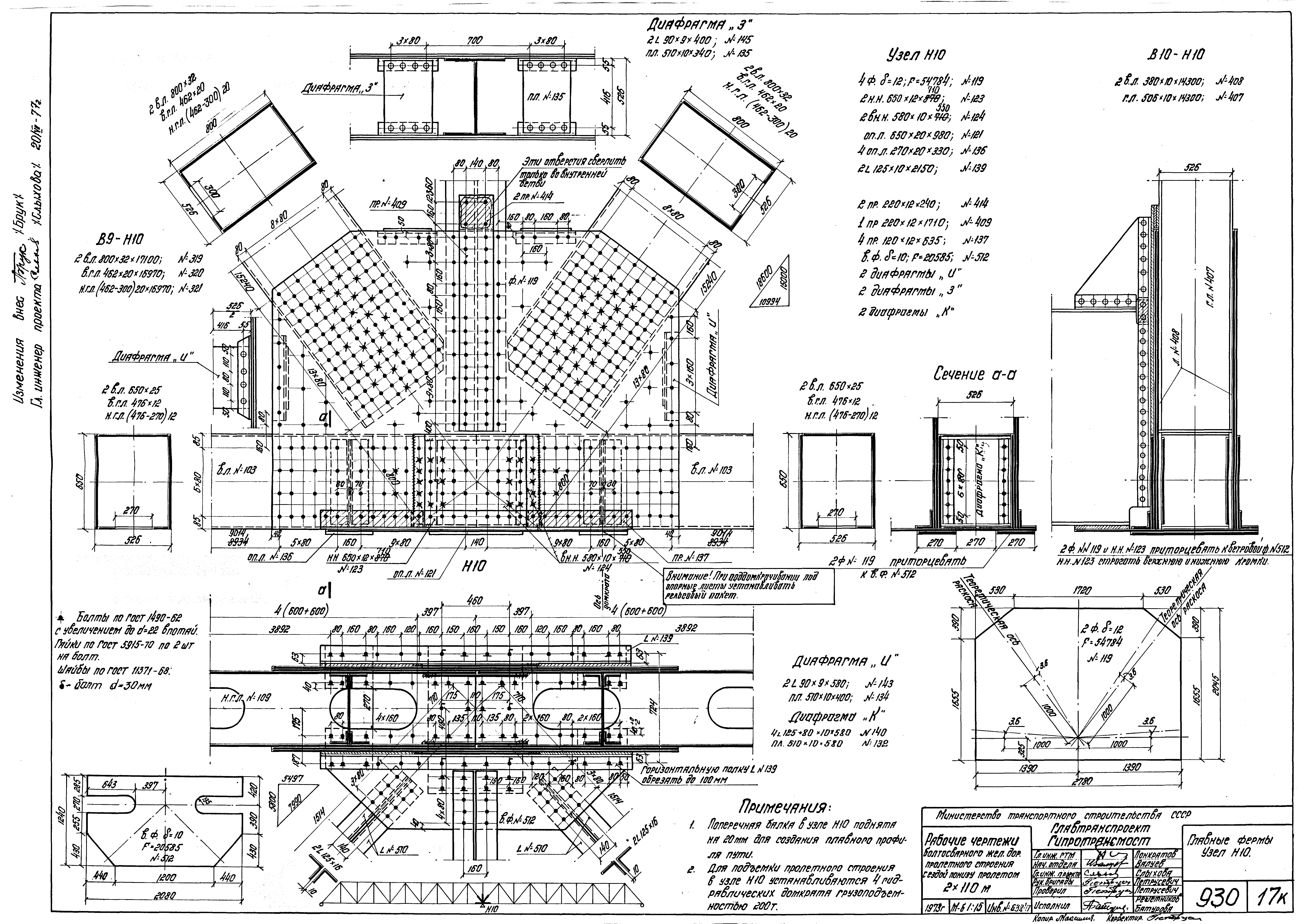
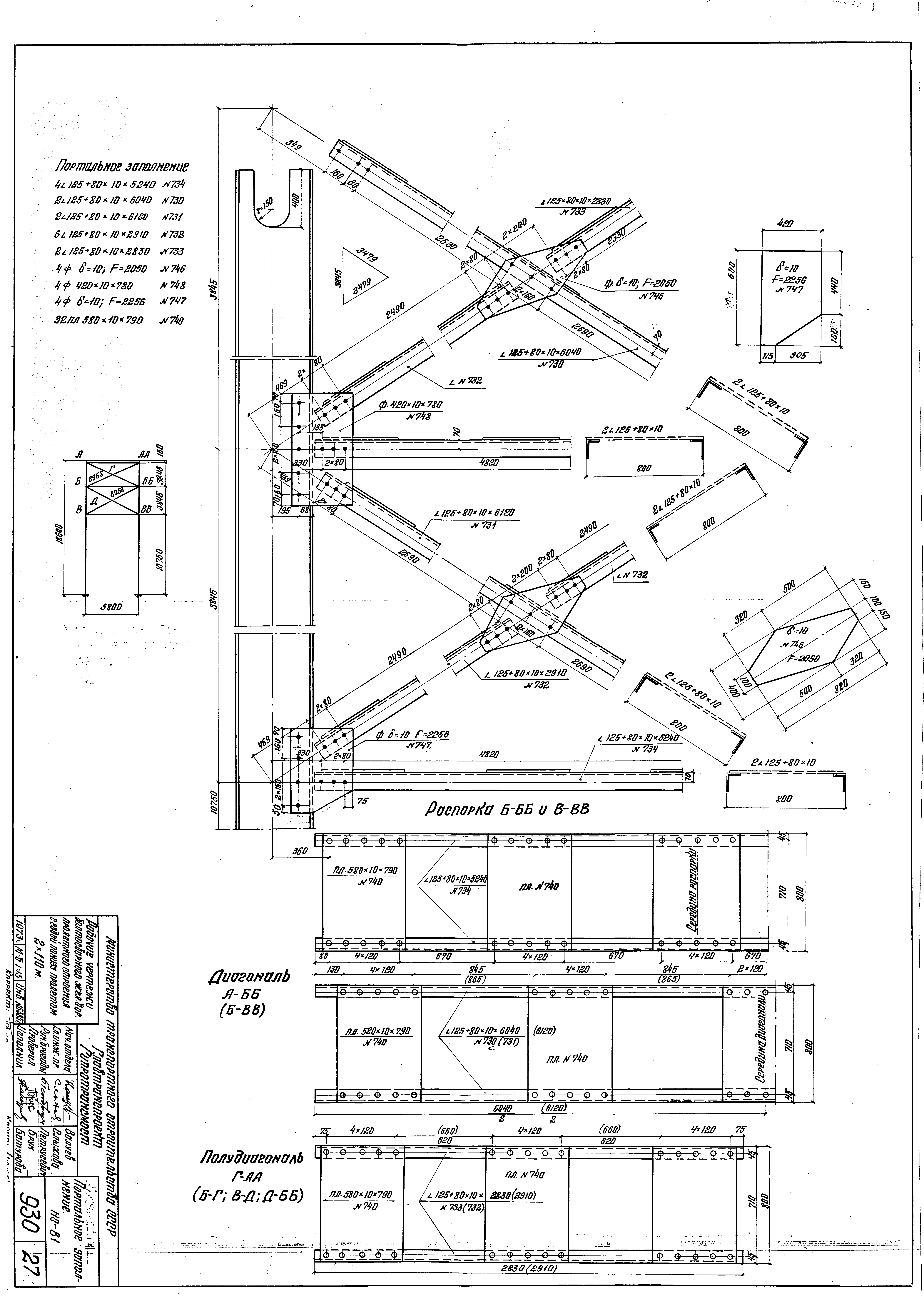
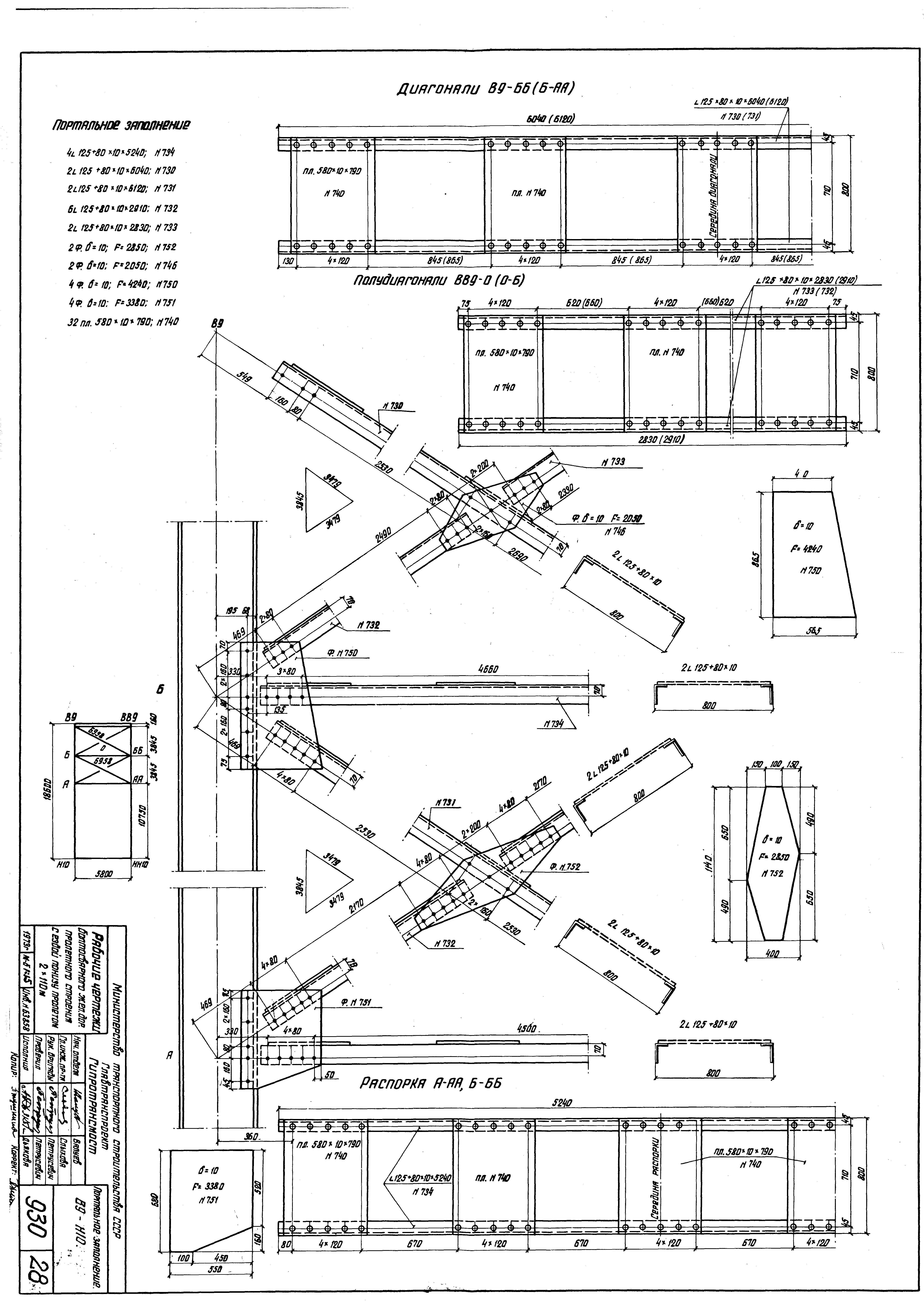
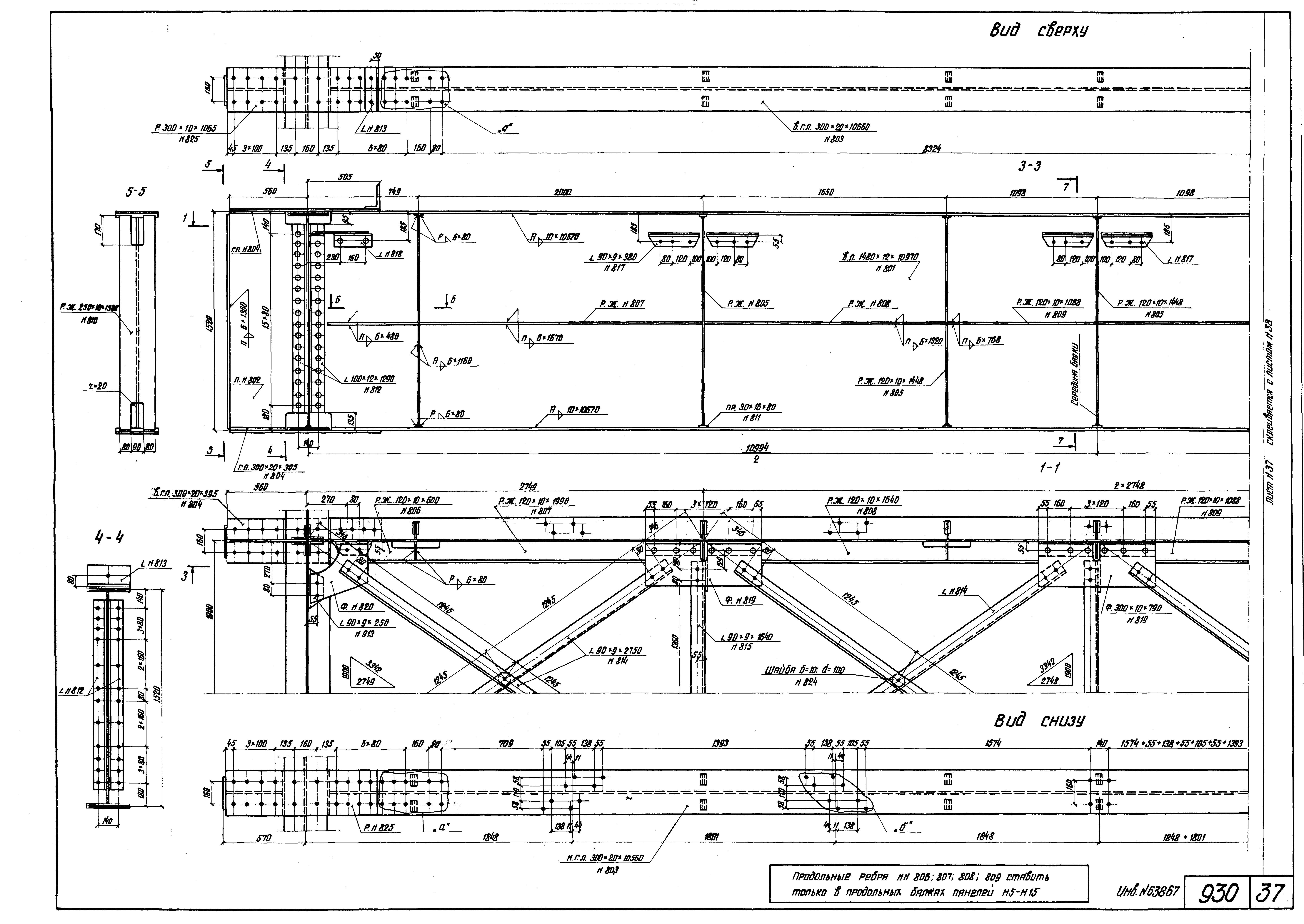
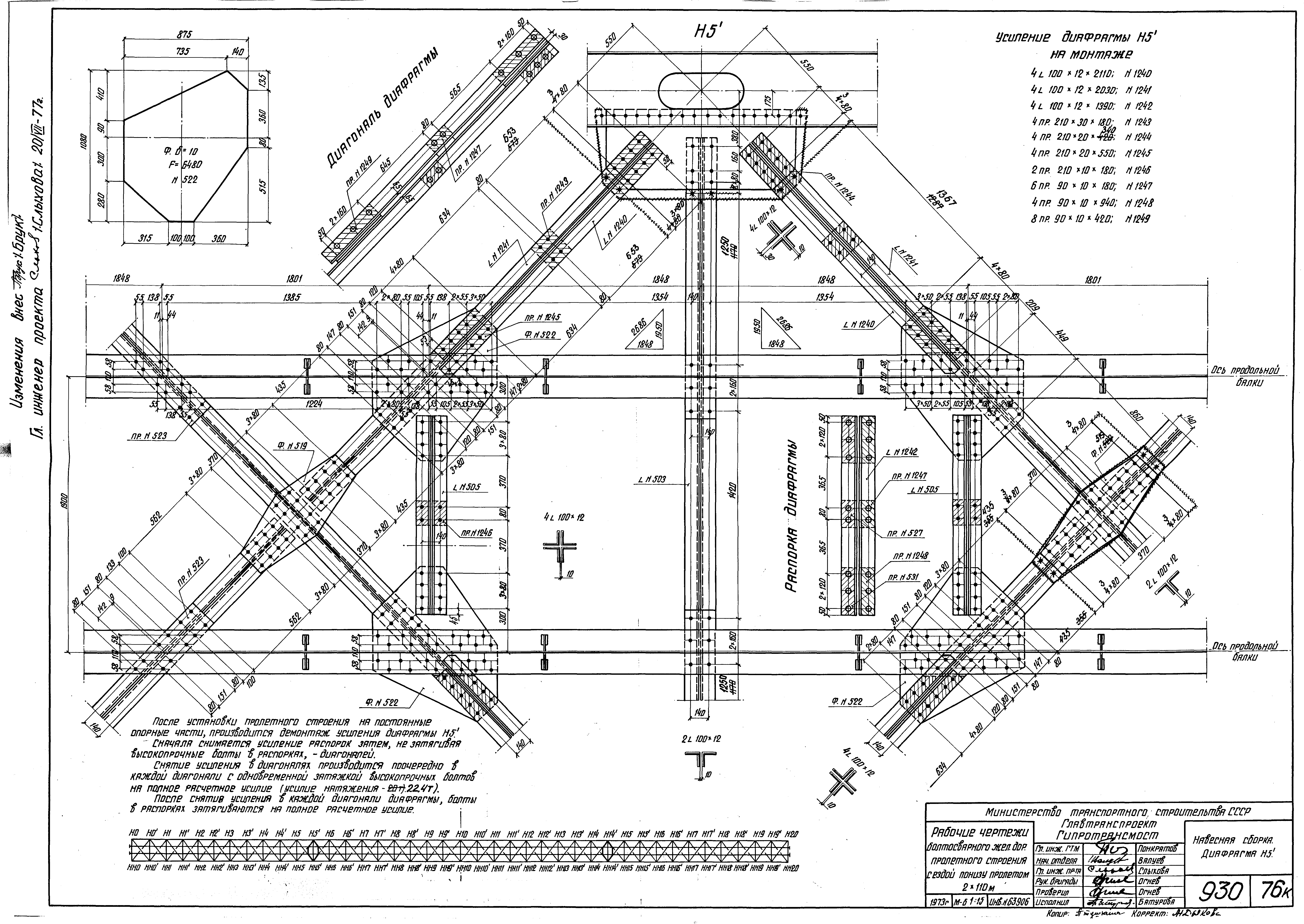
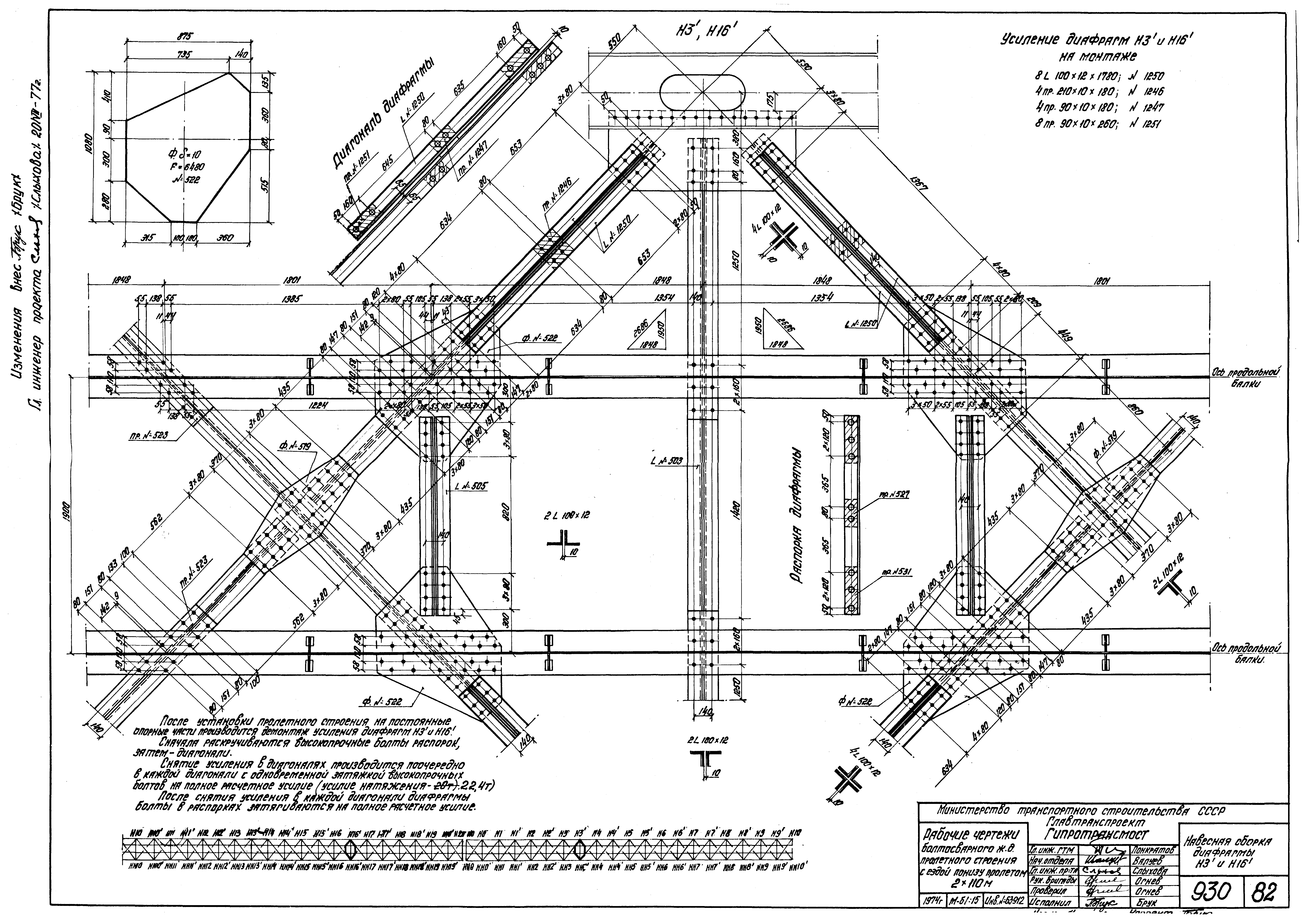
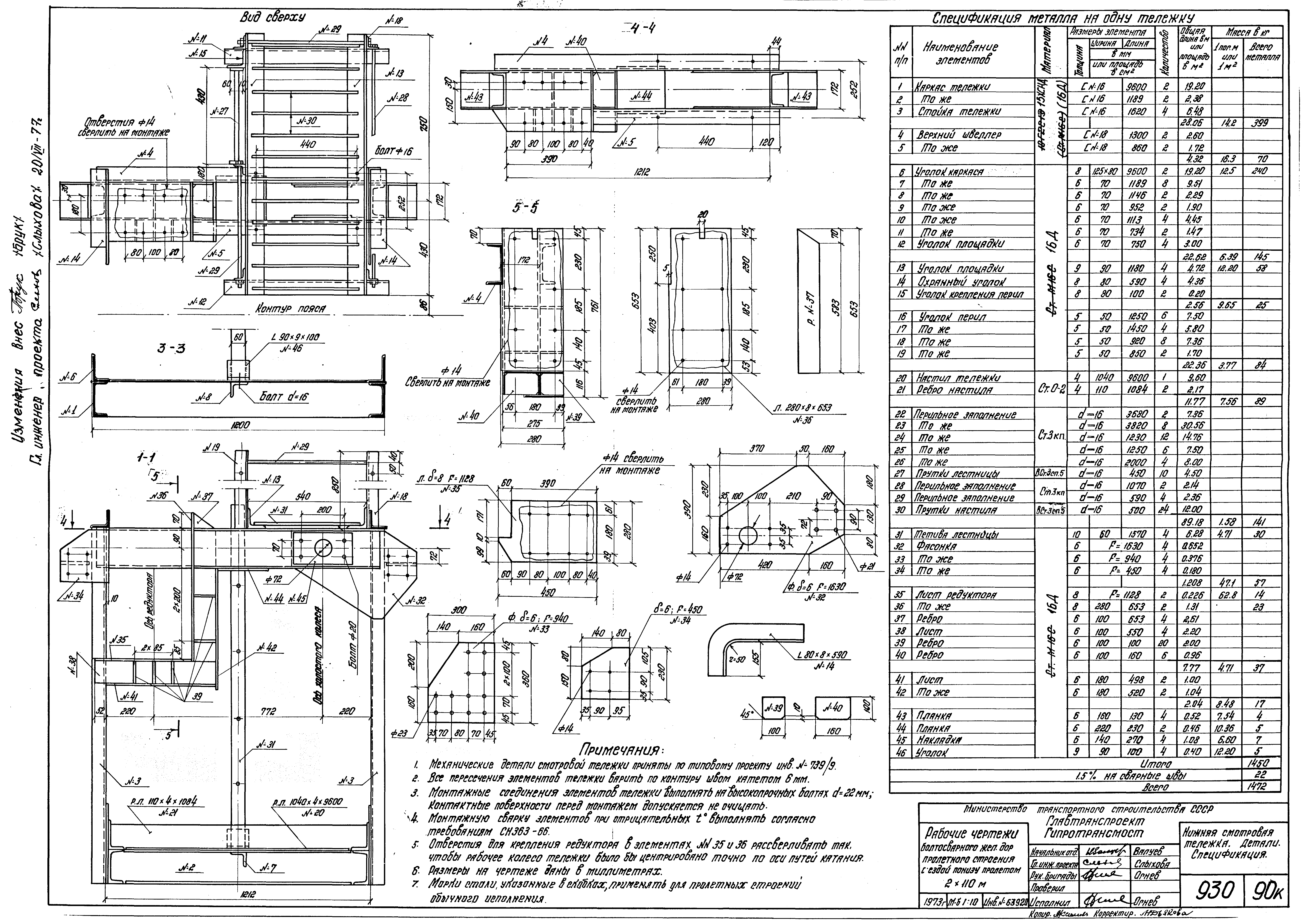
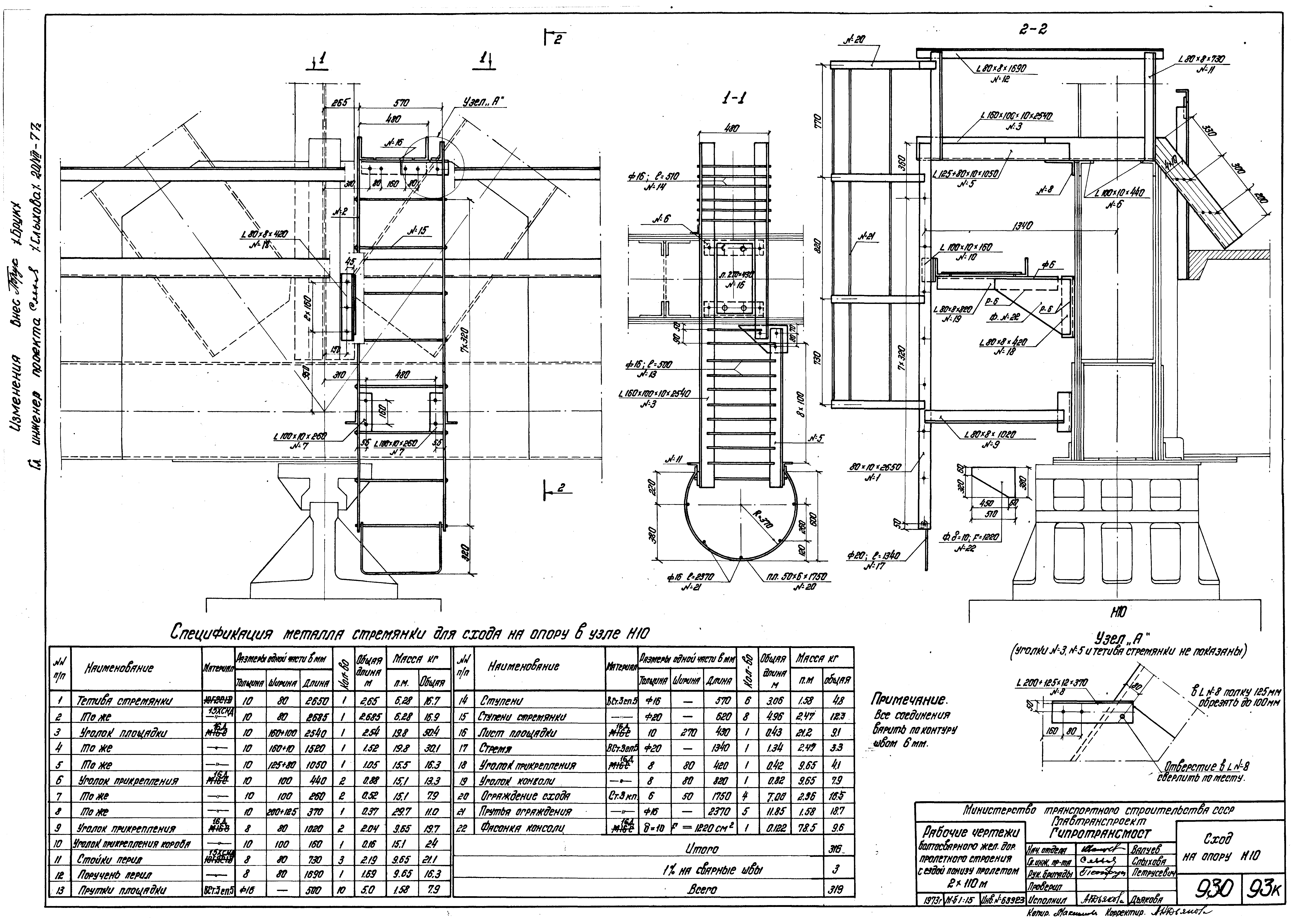
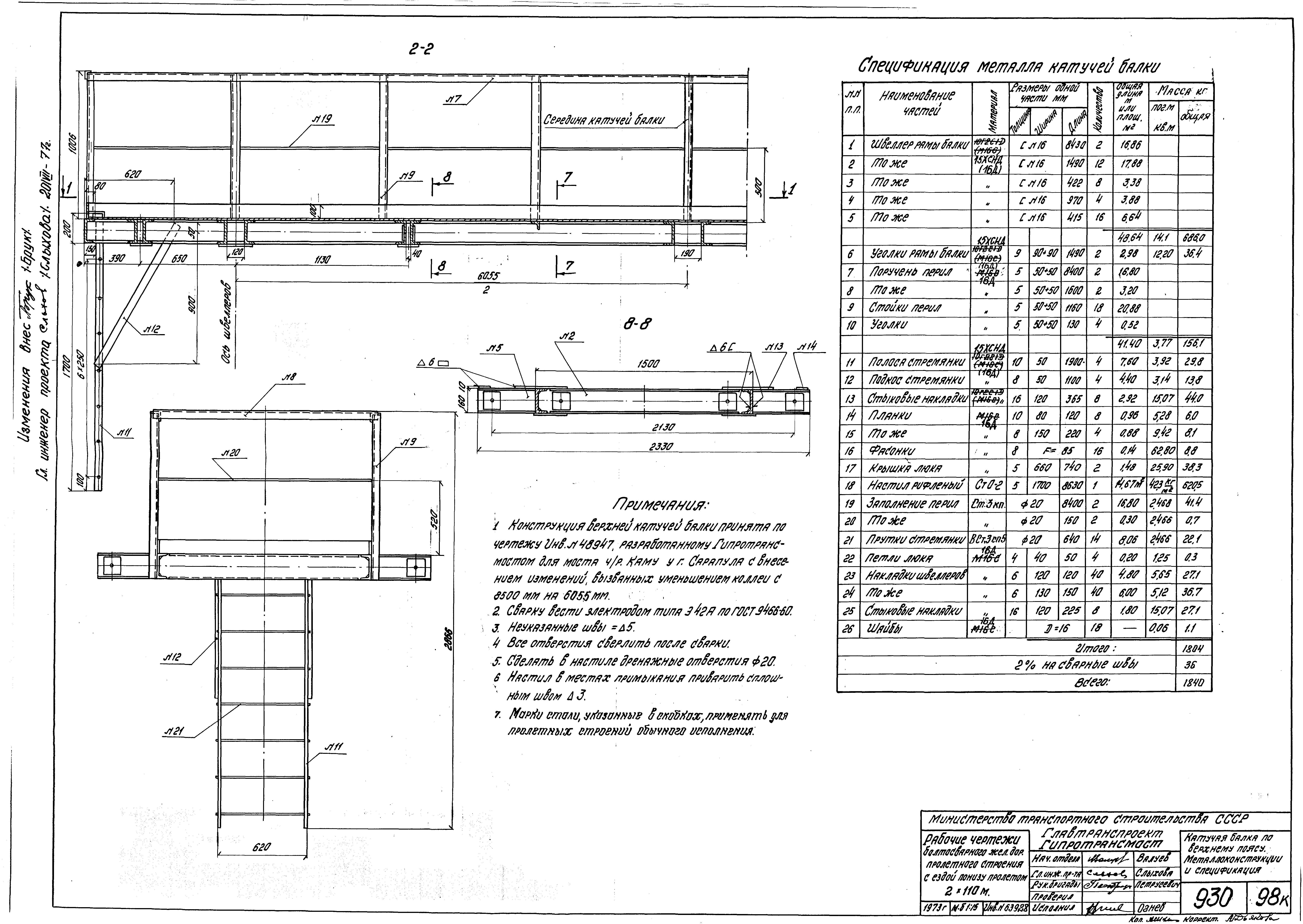
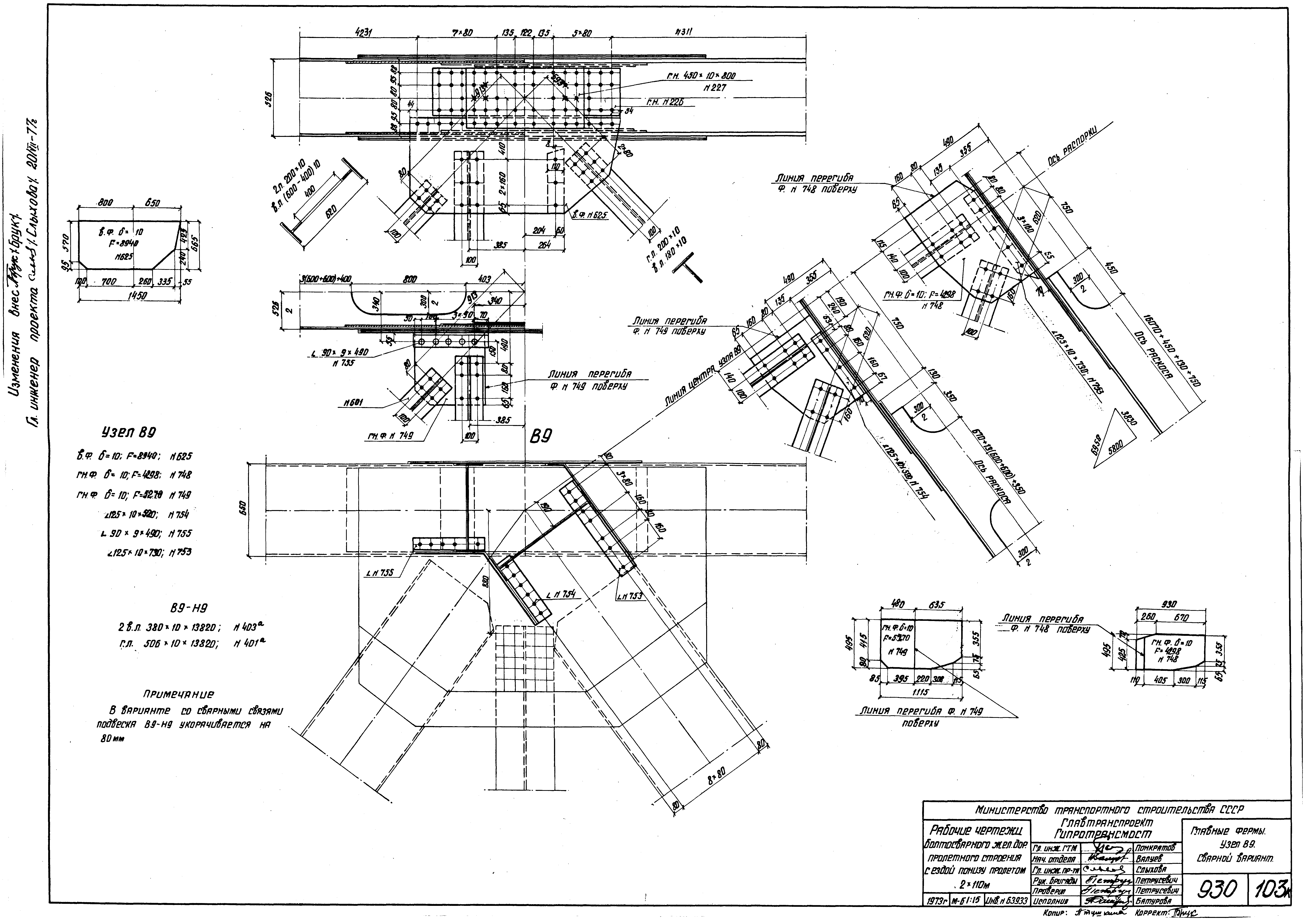
| Оглавление: | Состав проекта. Условные обозначения Пояснительная записка Паспорт пролетного строения Главные фермы. Узел Н0 Главные фермы. Узел Н1 Главные фермы. Узел Н2 Главные фермы. Узлы Н3, Н5 Главные фермы. Узел Н4 Главные фермы. Узел Н6 Главные фермы. Узел Н7 Главные фермы. Узел Н8 Главные фермы. Узел Н9 Главные фермы. Узел Н10 Главные фермы. Узел В1 Главные фермы. Узлы В2, В8, В4 Главные фермы. Узел В3 Главные фермы. Узел В5 Главные фермы. Узлы В6, В10 Главные фермы. Узел В7 Главные фермы. Узел В9 Верхние продольные связи Портальное заполнение Н0 - В1 Портальное заполнение В9 - Н10 Трубчатая распорка Поперечные связи по раскосам Нижние продольные связи Диафрагмы Н0', Н6', Н7' Диафрагмы Н8' Диафрагмы Н1', Н2', Н3', Н5' Продольные балки Поперечные балки Мостовое полотно Мостовое полотно. Детали Плиты тротуаров Плиты убежищ Мостовое полотно на безбалластной ж. б. плите. Сборочный чертеж. Спецификация Мостовое полотно на безбалластной ж. б. плите. Опалубочный чертеж БП4-2и Мостовое полотно на безбалластной ж. б. плите. Опалубочный чертеж БП2-2 Мостовое полотно на безбалластной ж. б. плите. Арматурный чертеж БП4-2и Мостовое полотно на безбалластной ж. б. плите. Арматурный чертеж БП2-2 Мостовое полотно на безбалластной ж. б. плите. Указания по производству работ Спецификация металла. Пояса Спецификация металла. Раскосы, подвески, стойки Спецификация металла. Связи главных ферм Спецификация металла. Балки проезжей части Спецификация металла. Мостовое полотно Спецификация металла. Мостовое полотно для пролетного строения обычного исполнения Расчетные усилия элементов главных ферм Сечения элементов главных ферм. Пояса Сечения элементов главных ферм. Раскосы Стыки нижних поясов главных ферм Стыкиверхних поясов главных ферм Прикрепление элементов главных ферм Расчет узлов главных ферм Расчет связей главных ферм Строительный подъем и заводские длины Пространственный расчет. Усилия в диагоналях нижних связей Пространственный расчет. Усилия в диагоналях диафрагм Пространственный расчет. Усилия в распорках нижних связей Пространственный расчет. Усилия в проезжей части Расчет проезжей части Проверки устойчивости проезжей части Навесная сборка. Расчетные усилия Навесная сборка. Диафрагма Н5' Навесная сборка 2х пролетных строений. Расчетные усилия Навесная сборка 2х пролетных строений. Сечения и прикрепления Навесная сборка 2х пролетных строений. Верхние соединительные элементы Навесная сборка 2х пролетных строений. Конструкция узла В1 Навесная сборка 2х пролетных строений. Нижние соединительные элементы Навесная сборка 2х пролетных строений. Диафрагмы Н16', Н3' Навесная сборка 2х пролетных строений. Соединение продольных балок Навесная сборка 2х пролетных строений. Спецификация металла Указания по монтажу пролетных строений Общий вид смотровых приспособлений Пути катания нижней смотровой тележки Нижняя смотровая тележка. Общий вид Нижняя смотровая тележка. Металлоконструкции Нижняя смотровая тележка. Детали. Спецификация Лестница по опорному раскосу. Узел В1 Лестница по опорному раскосу. Сход на опору Н0 Сход на опору Н10 Пути катания по верхнему поясу Катучая балка по верхнему поясу. Общий вид Катучая балка по верхнему поясу. Разрезы Катучая балка по верхнему поясу. Металлоконструкции Катучая балка по верхнему поясу. Металлоконструкции и спецификация Самоподъемная люлька. Общий вид Самоподъемная люлька. Монтажные элементы Спецификация металла смотровых приспособлений пролетных строений обычного исполнения Главные фермы. Узел В1. Сварной вариант Главные фермы. Узел В9. Сварной вариант Главные фермы. Узлы В1' -В8', В9', В10. Сварной вариант Верхние продольные связи. Сварной вариант Нижние продольные связи. Сварной вариант Портальное заполнение Н0 - В1. Сварной вариант Портальное заполнение В9 - Н10. Сварной вариант Трубчатая распорка в узлах В1, В9. Сварной вариант Поперечные связи по раскосам. Сварной вариант Спецификация металла. Связи главных ферм. Сварной вариант Расчет связей главных ферм. Сварной вариант Марки сталей элементов пролетных строений |
| Разработан: | Гипротрансмост |
| Утверждён: | 06.03.1984 МПС (Ministry of Railroads П-6415) |



















































































































