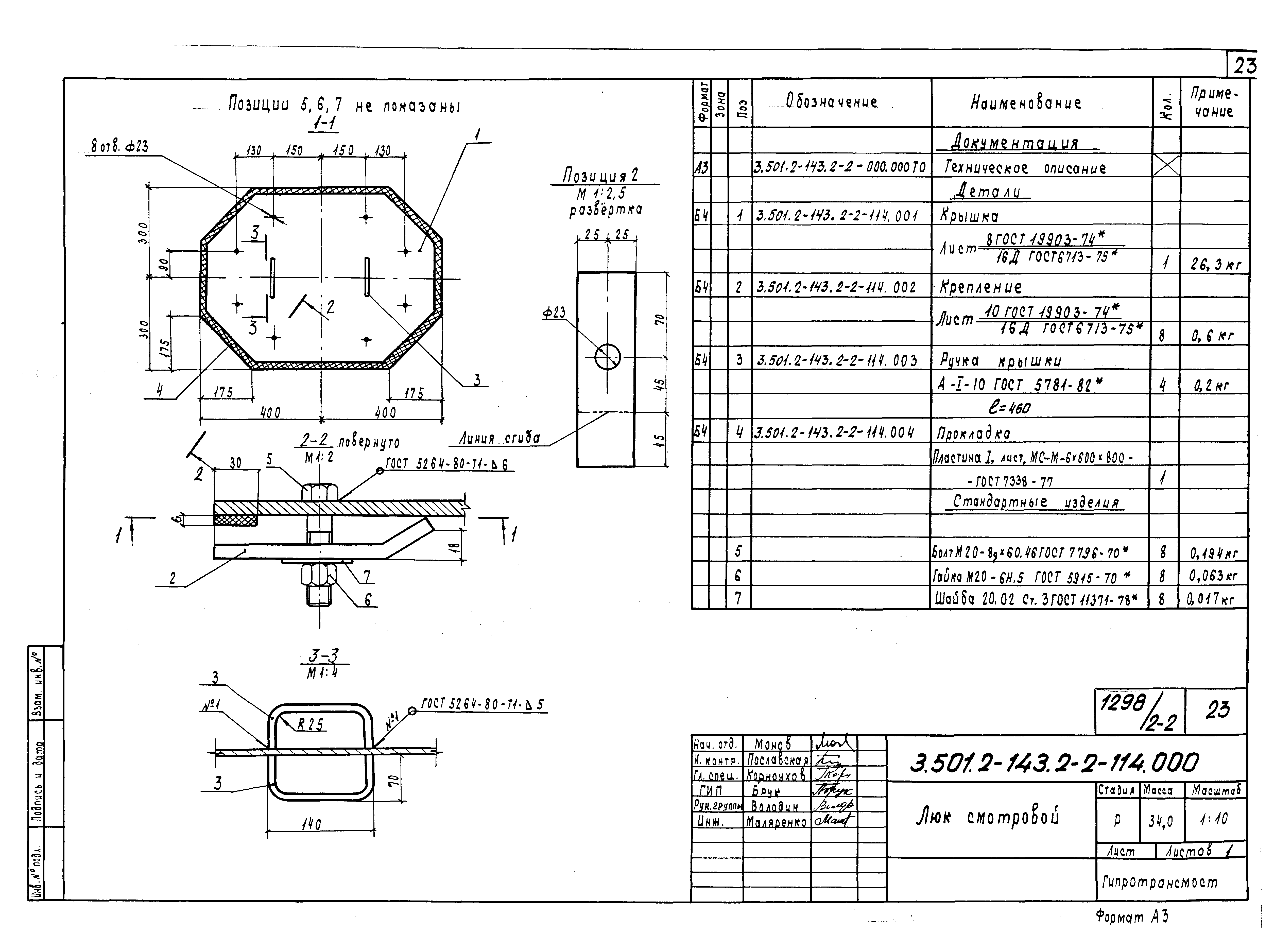
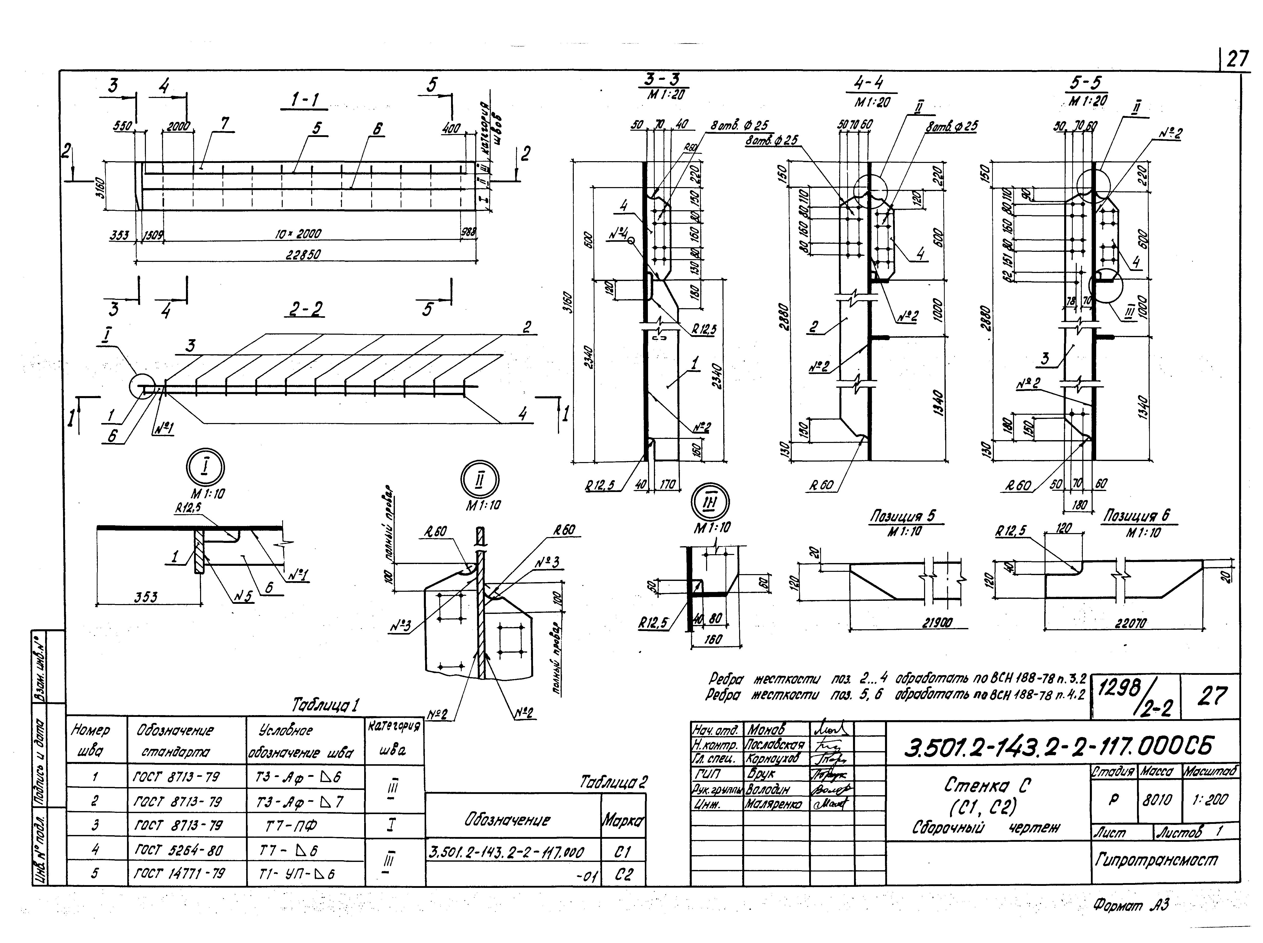
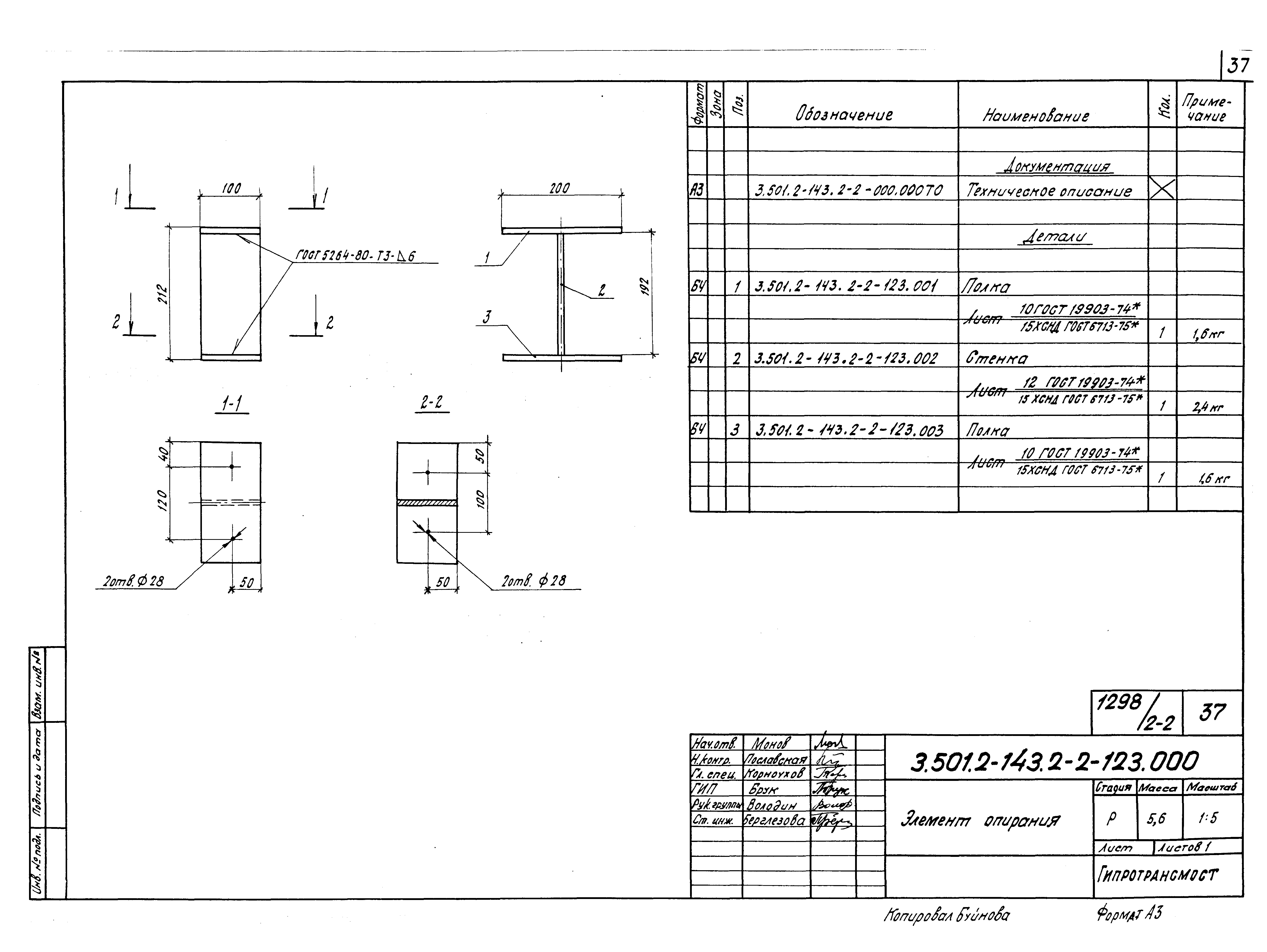
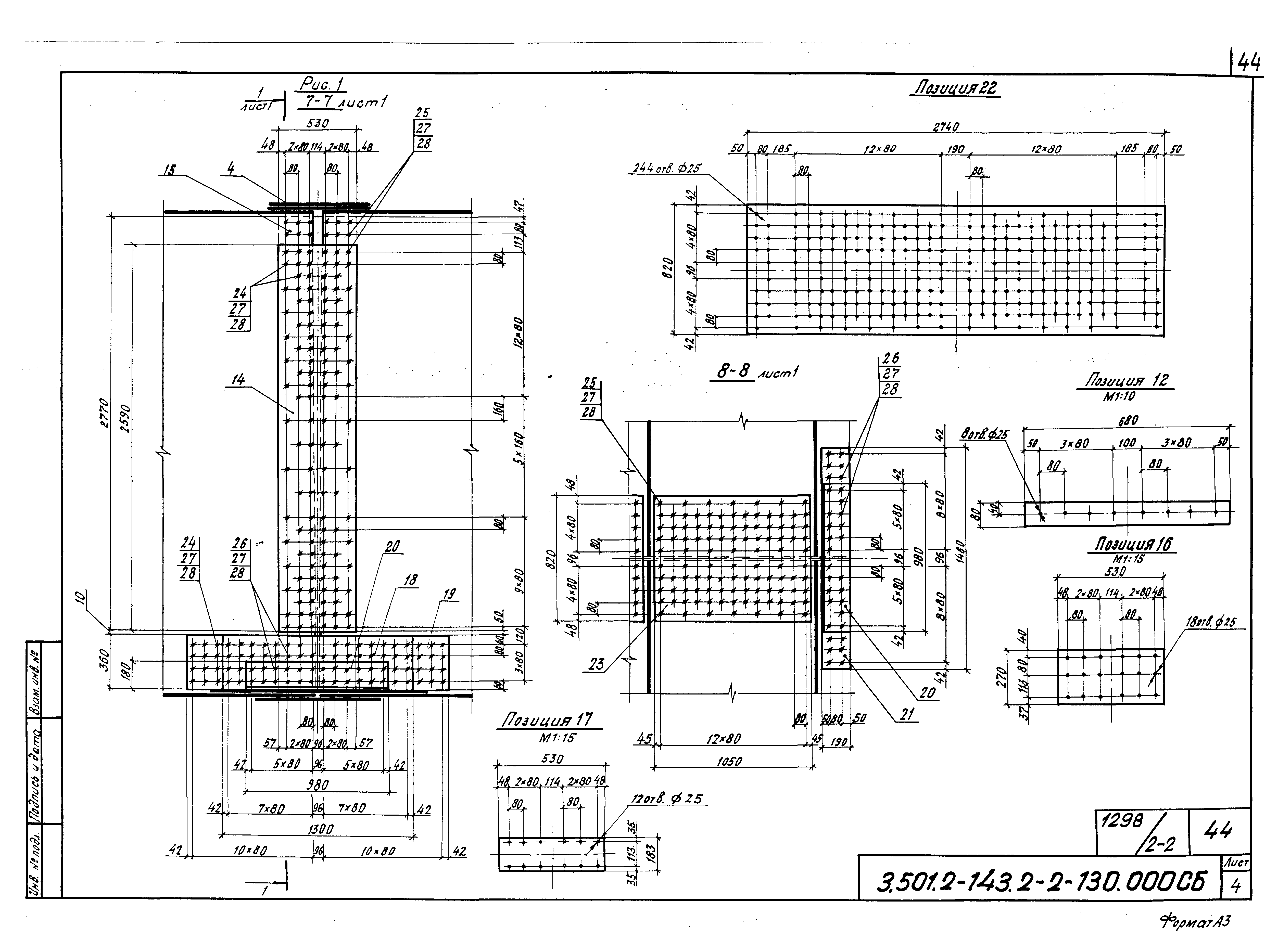
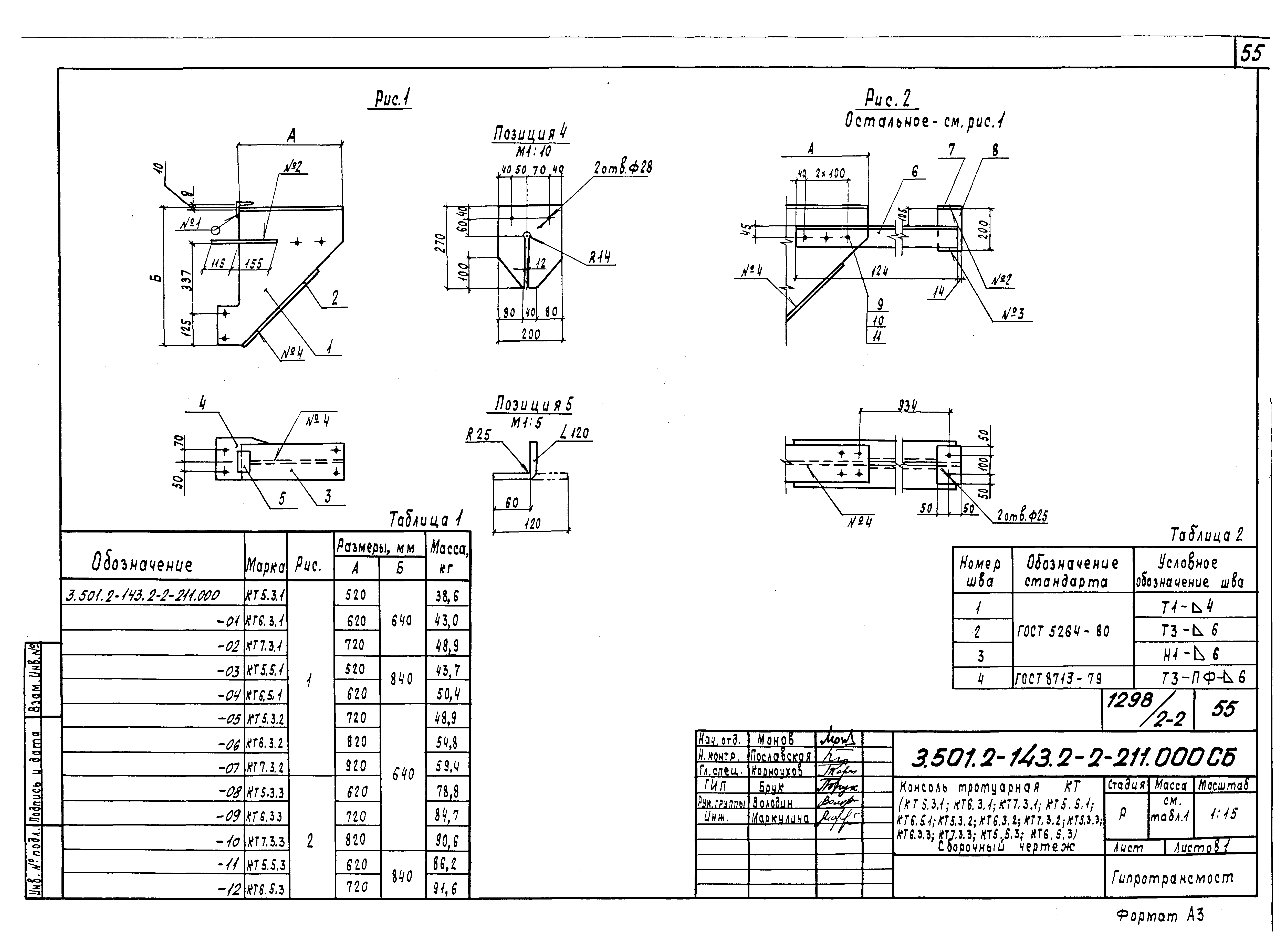
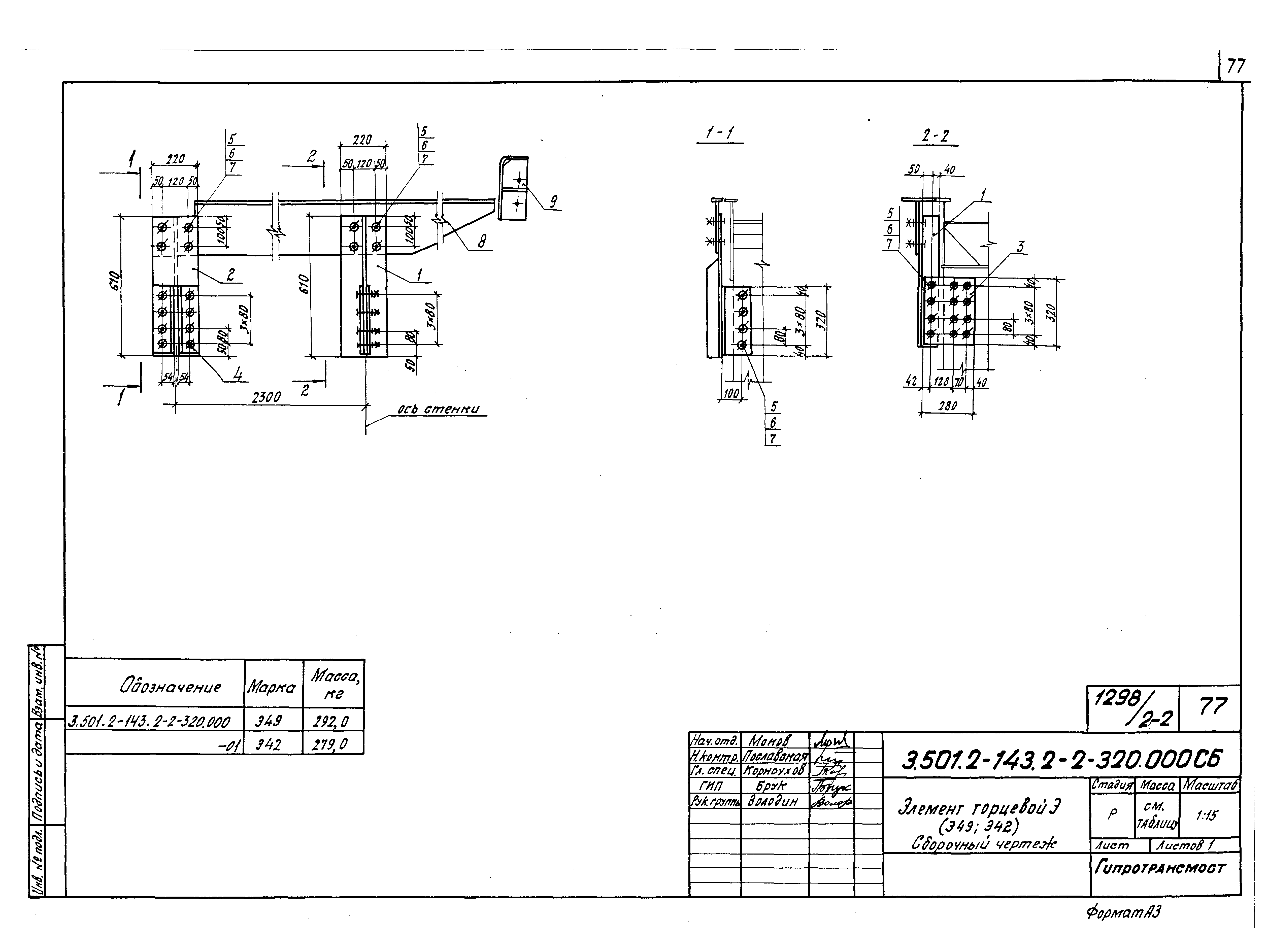
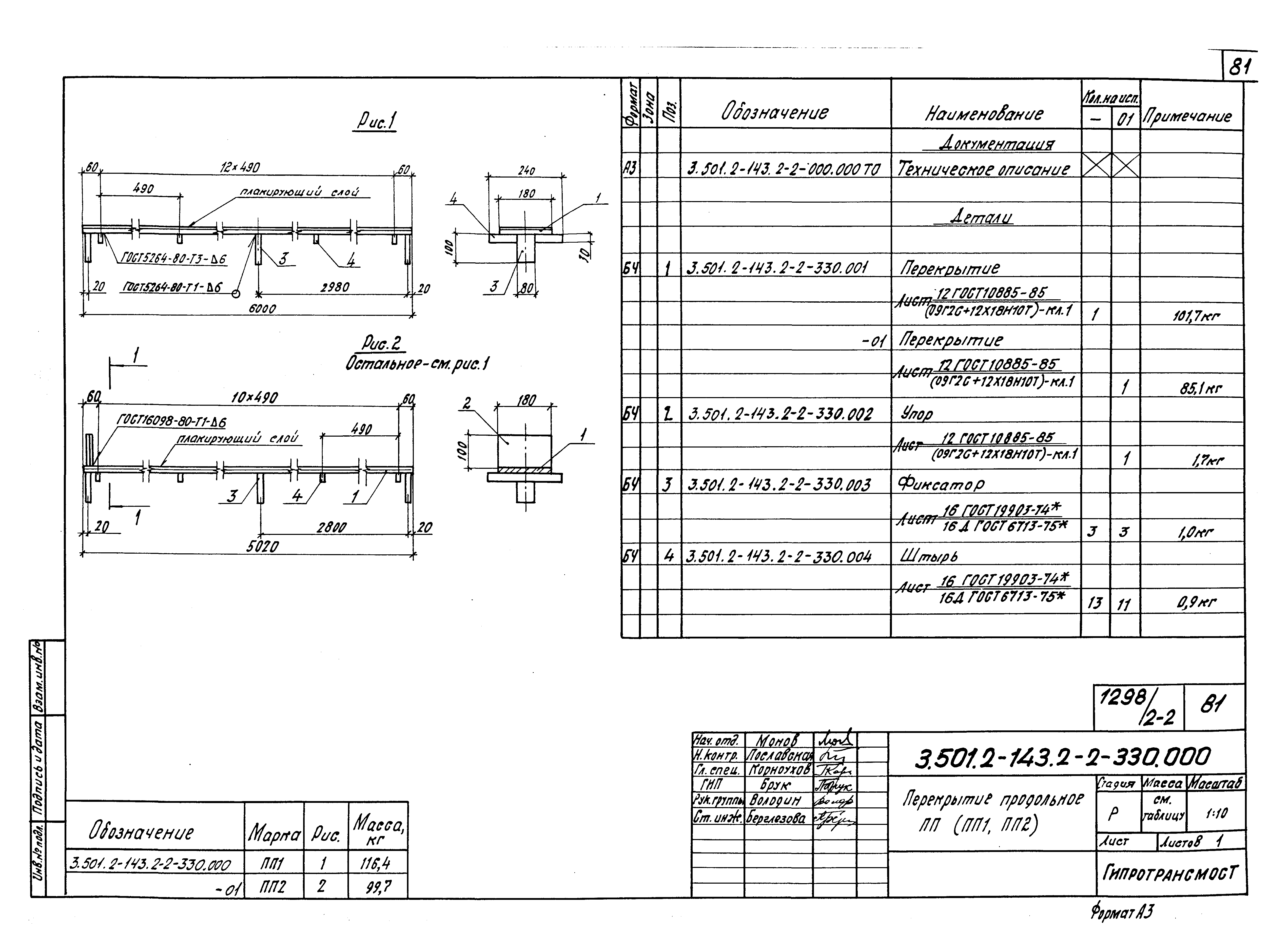
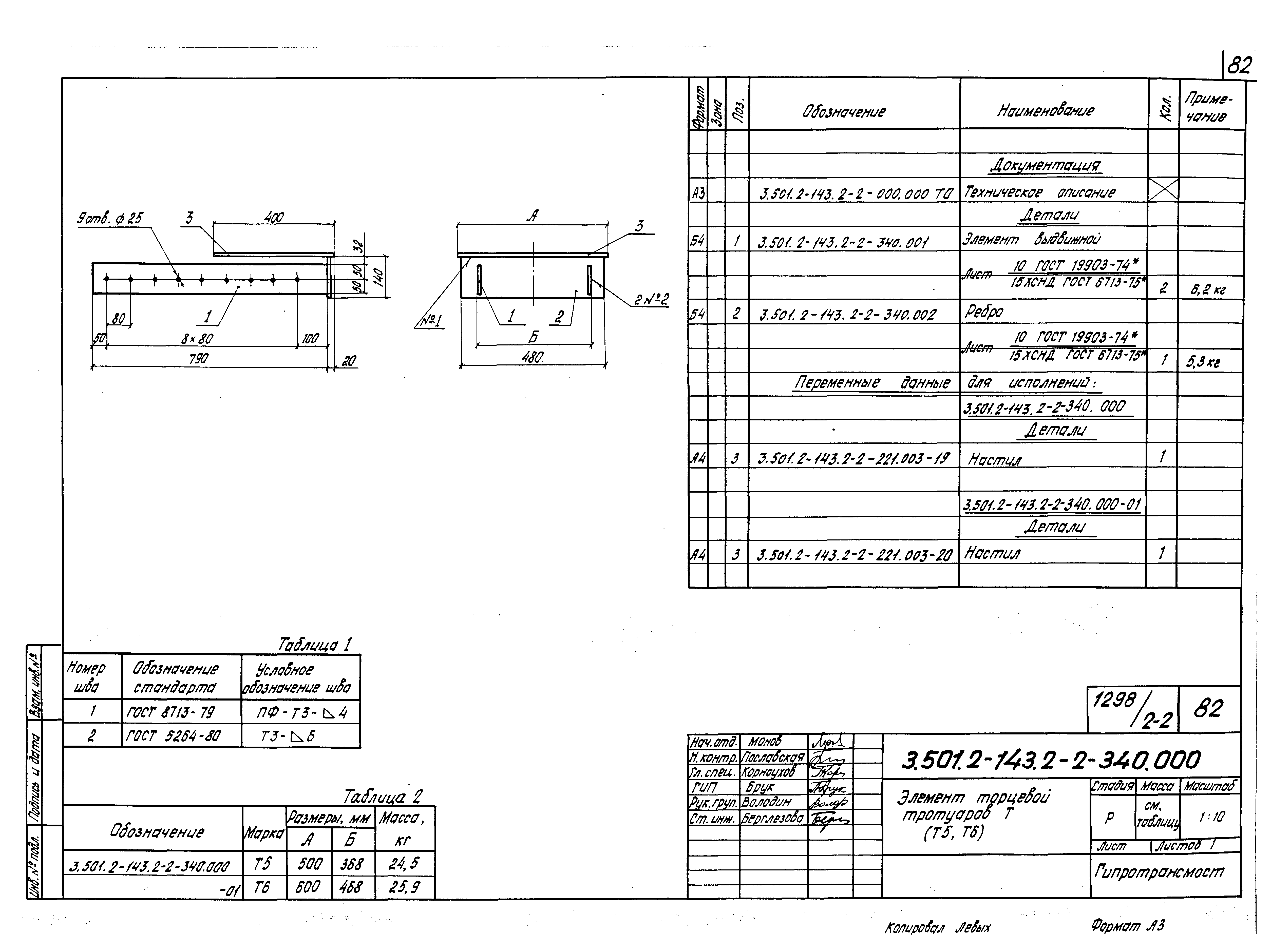
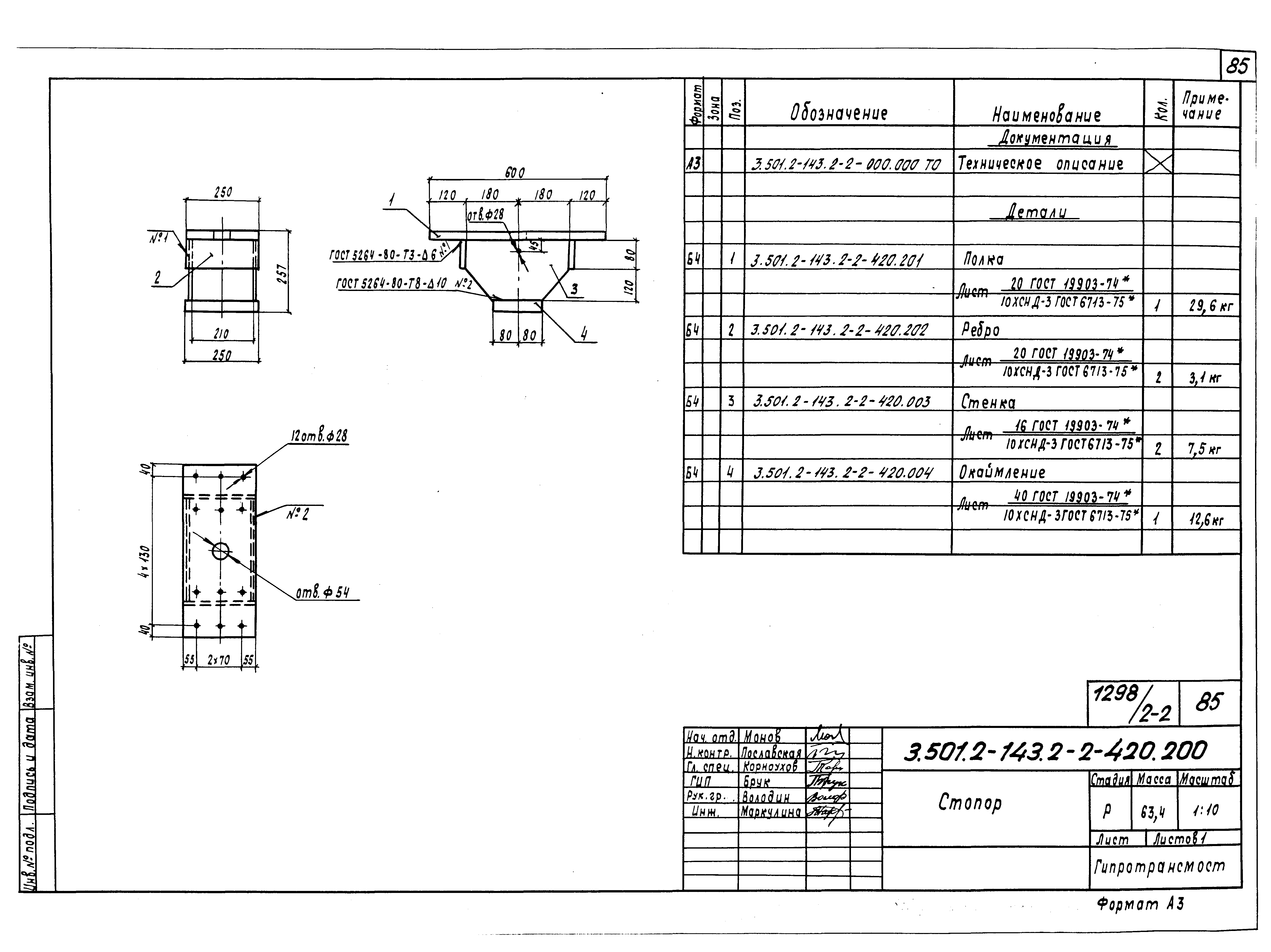
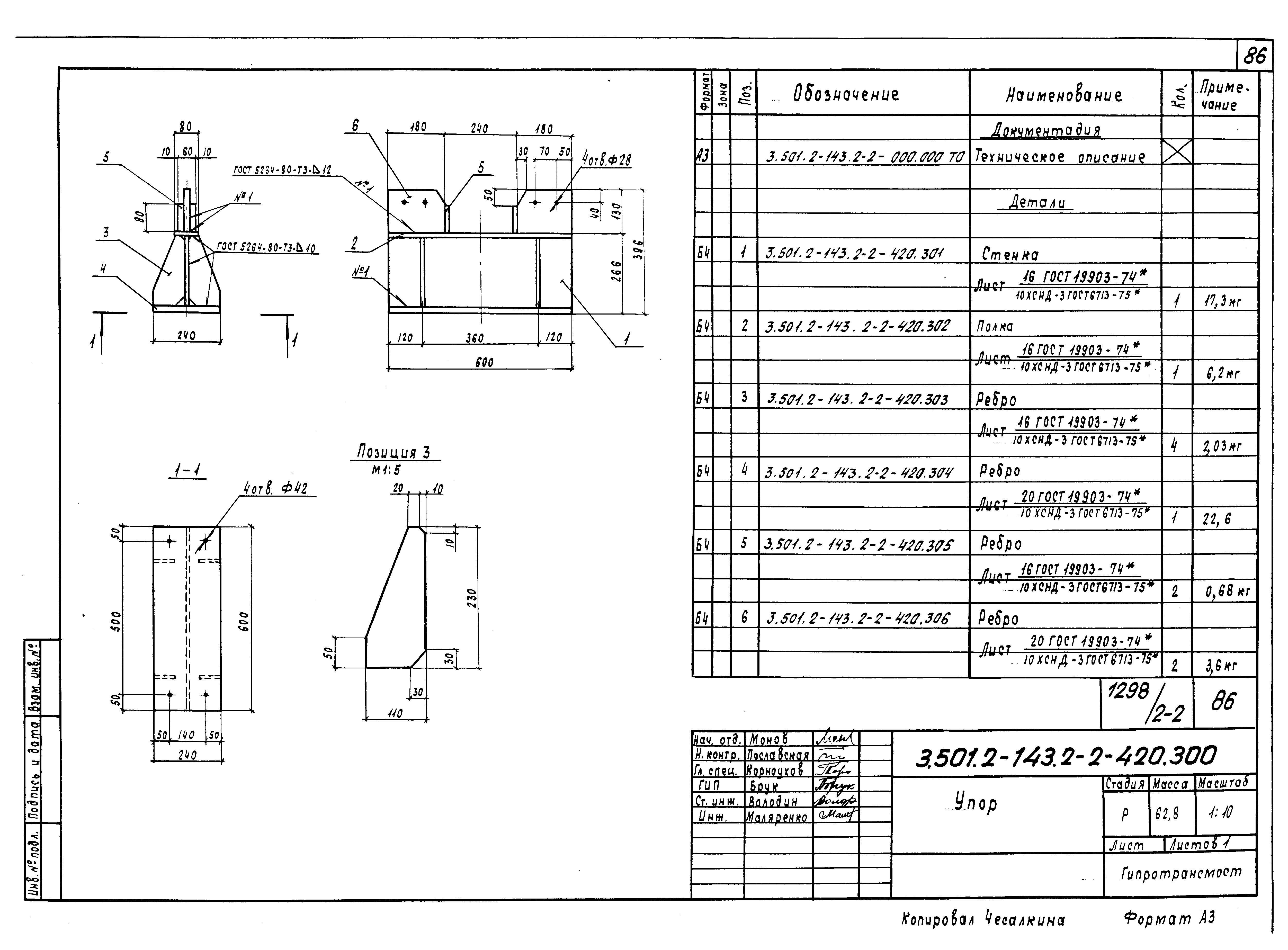
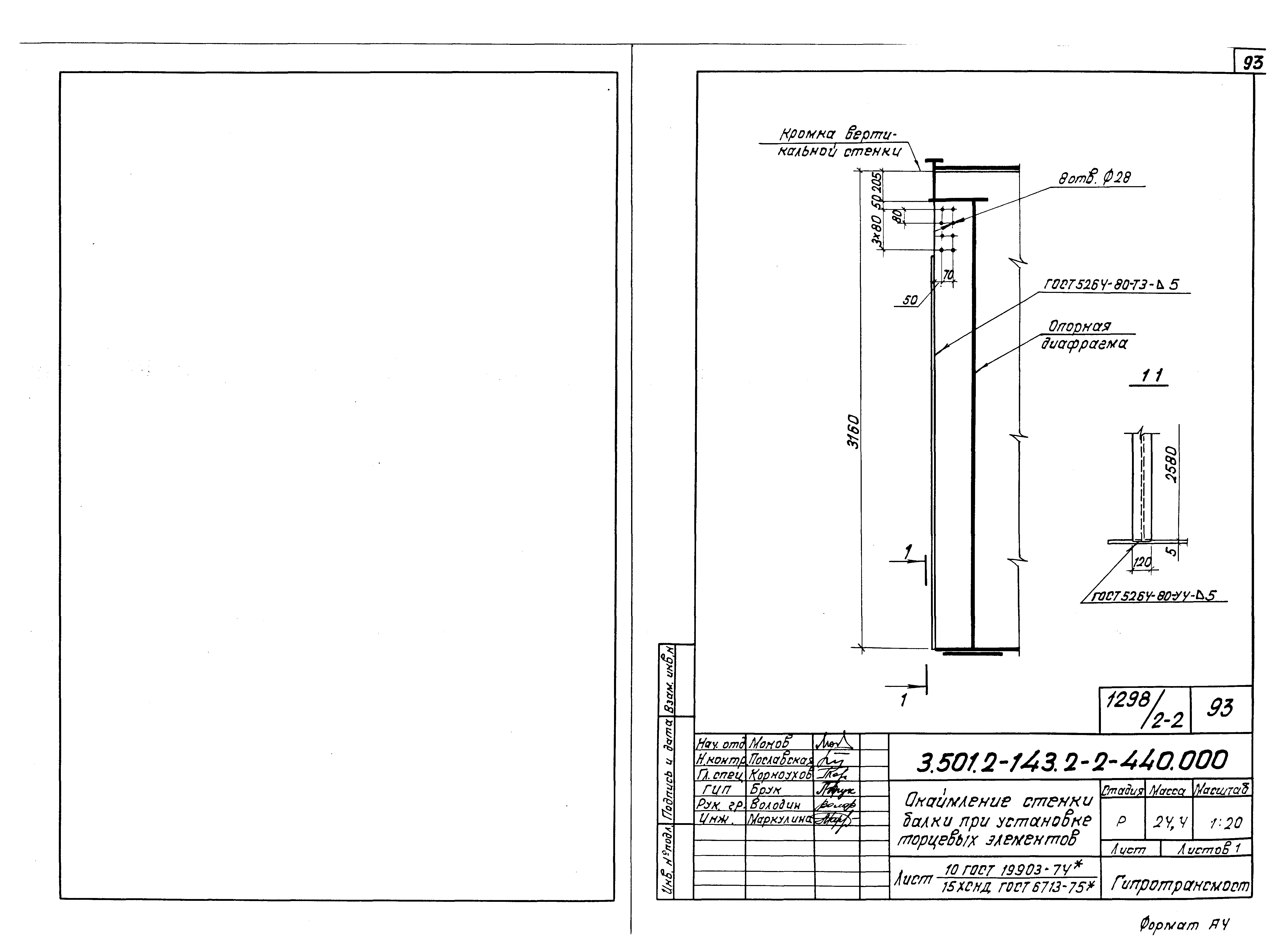
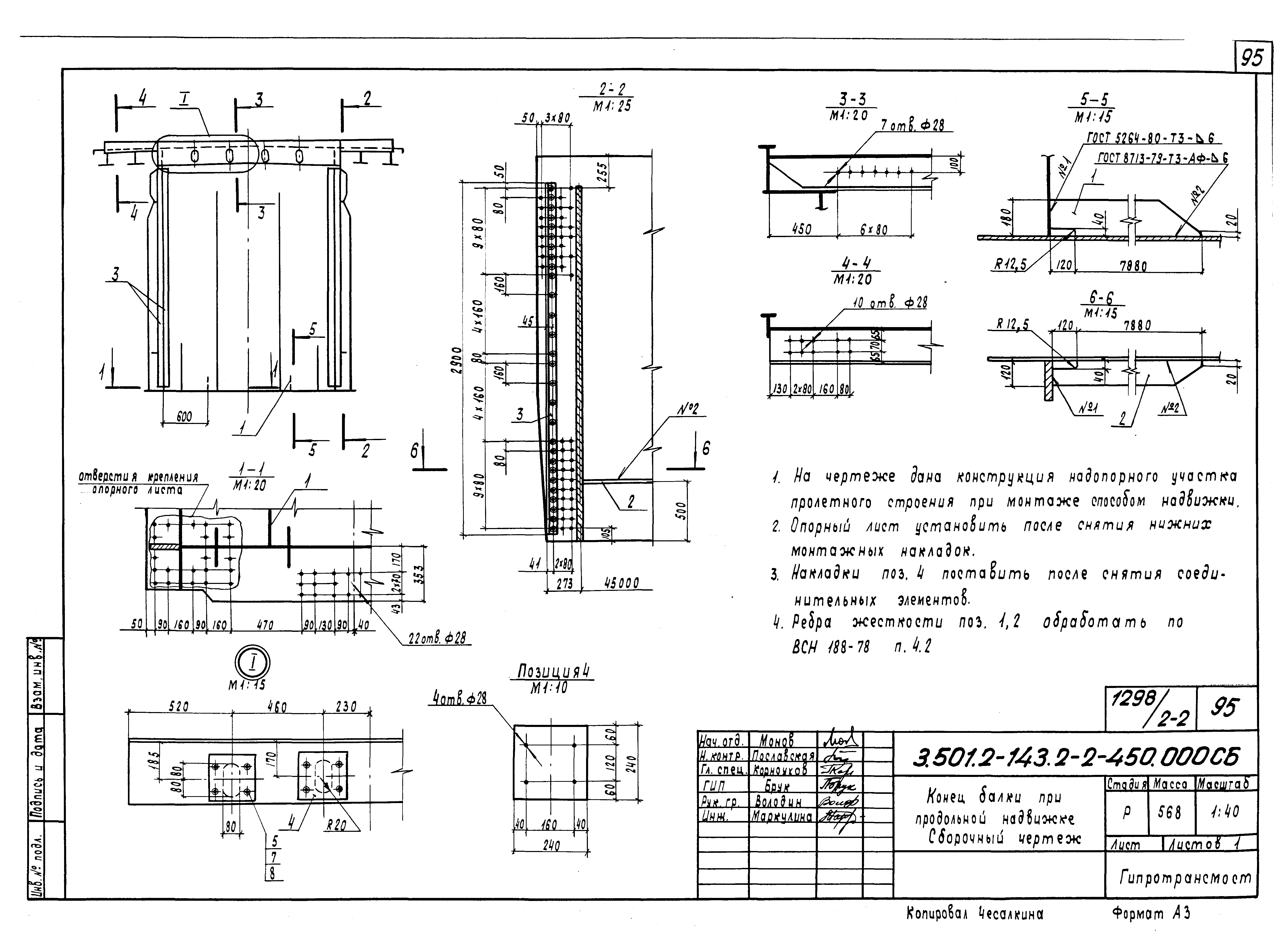
Скачать Серия 3.501.2-143 Выпуск 2-2. Пролетное строение Lp=45,0 м. Элементы конструкций. Чертежи КМДата актуализации: 01.01.2021 Серия 3.501.2-143
Выпуск 2-2. Пролетное строение Lp=45,0 м. Элементы конструкций. Чертежи КМ| Обозначение: | Серия 3.501.2-143 | | Обозначение англ: | Series 3.501.2-143 | | Статус: | не определен законодательством | | Название рус.: | Выпуск 2-2. Пролетное строение Lp=45,0 м. Элементы конструкций. Чертежи КМ | | Дата добавления в базу: | 01.09.2013 | | Дата актуализации: | 01.01.2021 | | Дата введения: | 01.01.1988 | | Дата окончания срока действия: | 30.06.2003 | | Разработан: | Гипротрансмост
| | Утверждён: | 12.11.1987 МПС СССР (USSR Ministry of Railroads А5713у)
|
                                                                                                  
|