Скачать Серия 3.501.9-151 Выпуск 2. Указания по монтажу пролетных строенийДата актуализации: 01.01.2021
|
| Обозначение: | Серия 3.501.9-151 |
| Обозначение англ: | Series 3.501.9-151 |
| Статус: | не определен законодательством |
| Название рус.: | Выпуск 2. Указания по монтажу пролетных строений |
| Дата добавления в базу: | 01.09.2013 |
| Дата актуализации: | 01.01.2021 |
| Дата введения: | 01.01.1990 |
| Дата окончания срока действия: | 30.06.2003 |
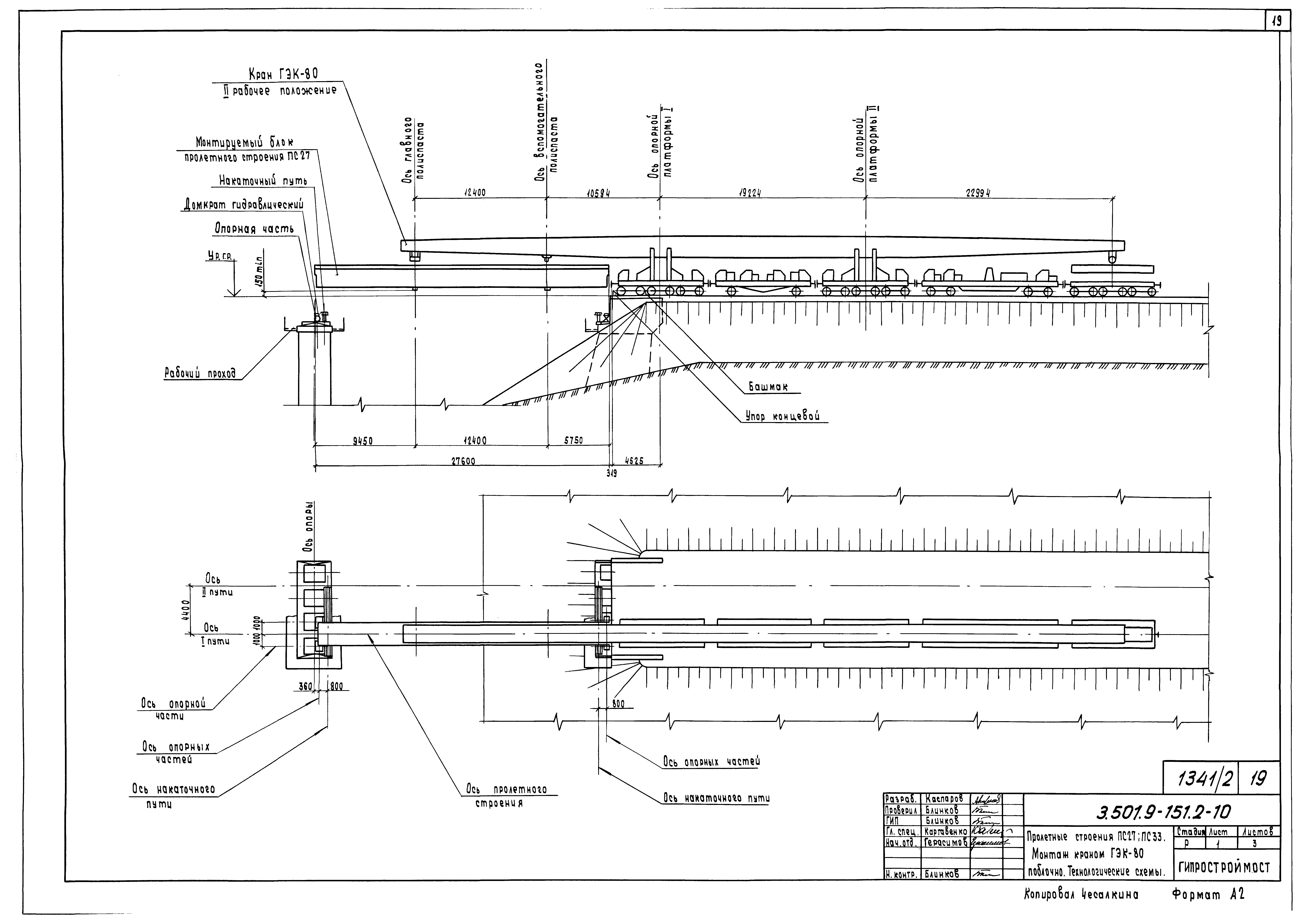
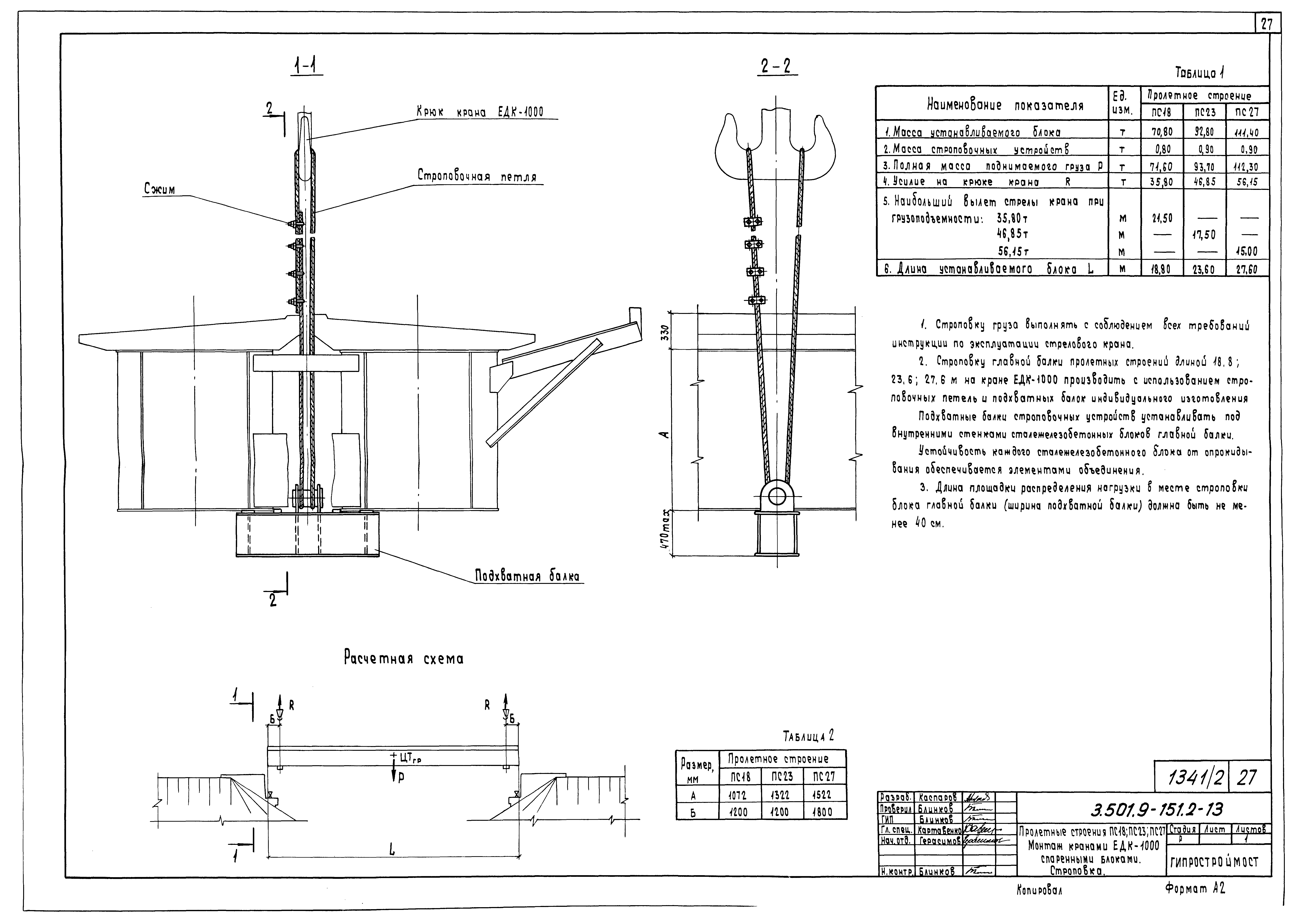
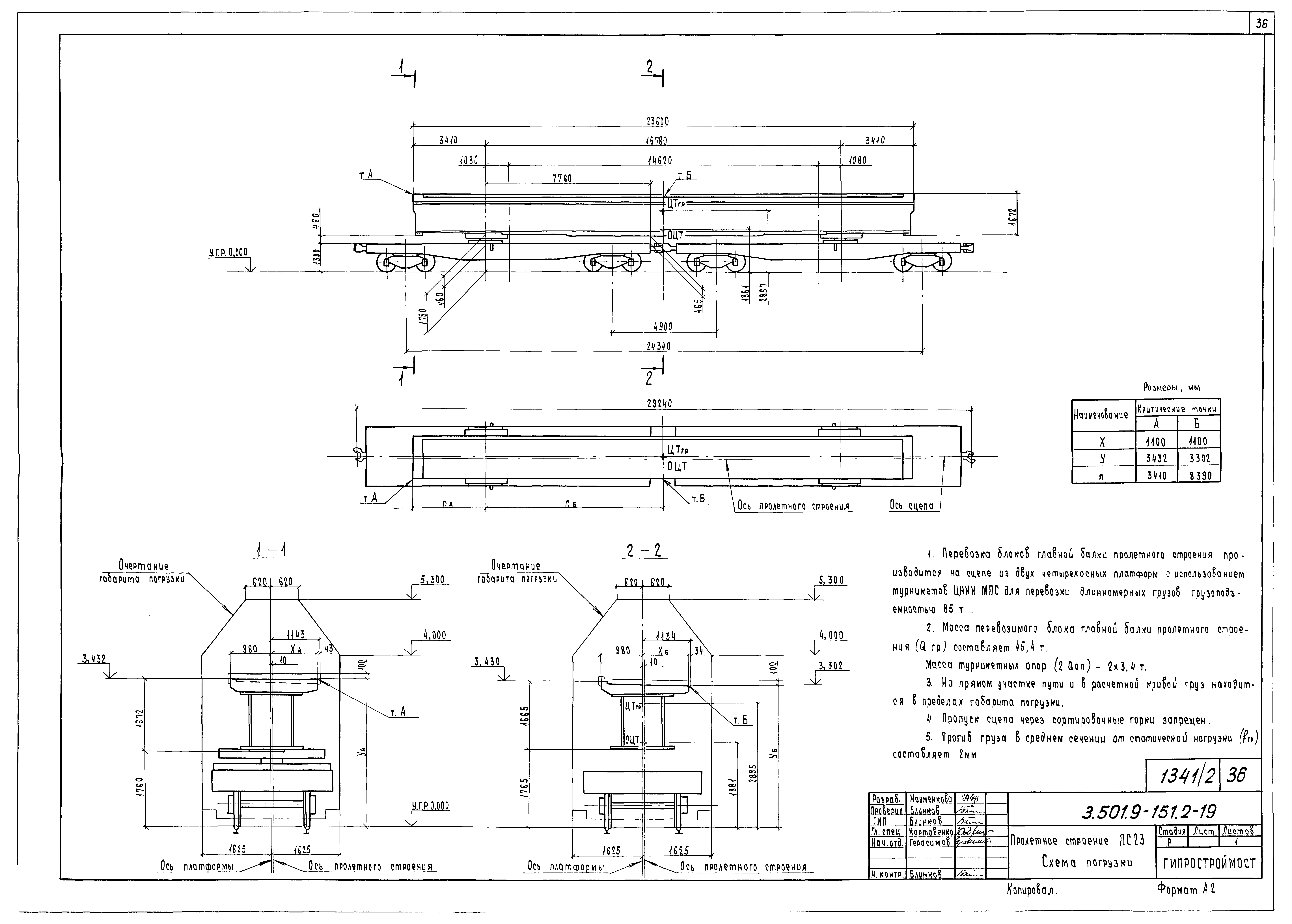
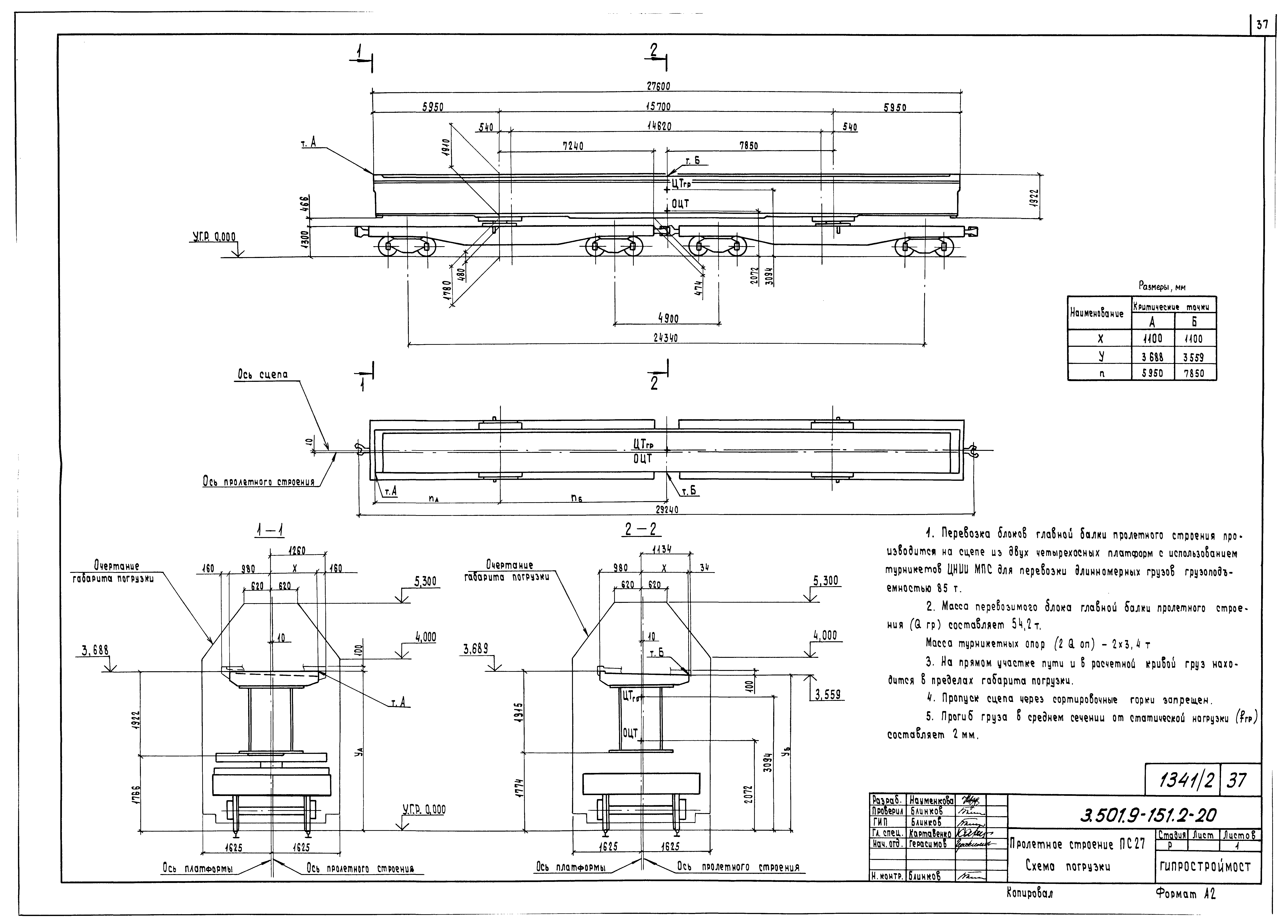
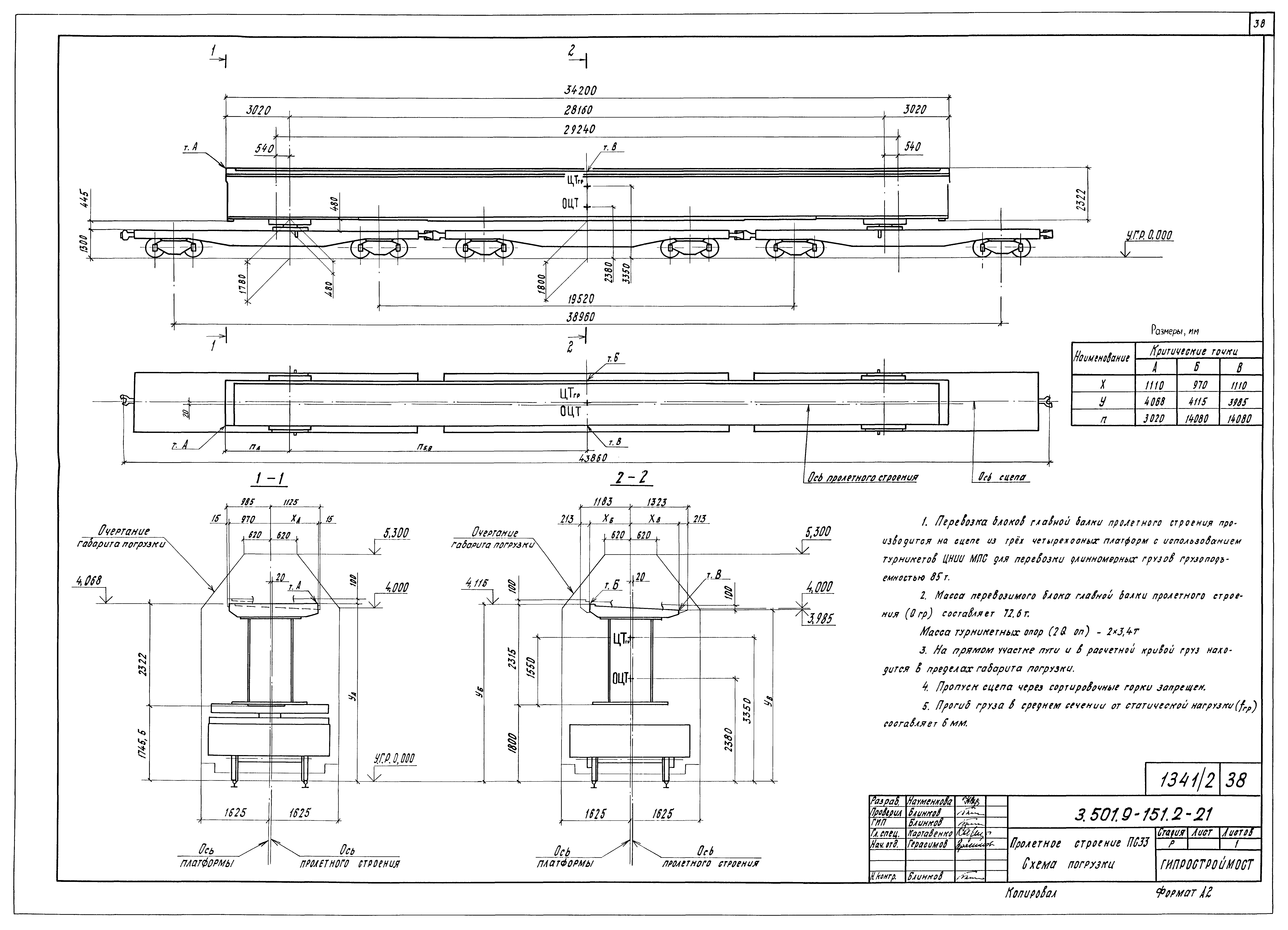
| Оглавление: | 3.501.9-151.2-01 ПЗ Пояснительная записка 3.501.9-151.2-02 Пролетные строения ПС18, ПС23, ПС27. Монтаж краном ГЗПК-130У спаренными блоками. Технологические системы 3.501.9-151.2-03 Пролетные строения ПС18, ПС23, ПС27. Монтаж краном ГЗПК-130У спаренный блоками. Строповка 3.501.9-151.2-04 Пролетное строение ПС33. Монтаж краном ГЭПК-130У поблочно. Технологические схемы 3.501.9-151.2-05 Пролетное строение ПС33. Монтаж краном ГЭПК-130У поблочно. Строповка 3.501.9-151.2-06 Пролетное строение ПС45. Монтаж краном ГЭПК-130У поблочно. Технологические схемы 3.501.9-151.2-07 Пролетное строение ПС45. Монтаж краном ГЭПК-130У поблочно. Строповка 3.501.9-151.2-08 Пролетные строения ПС18, ПС23. Монтаж краном ГЭК-80 спаренными блоками. Технологические схемы 3.501.9-151.2-09 Пролетные строения ПС18, ПС23. Монтаж краном ГЭК-80 спаренными блоками. Строповка 3.501.9-151.2-10 Пролетные строения ПС27, ПС33. Монтаж краном ГЭК-80 поблочно. Технологические схемы 3.501.9-151.2-11 Пролетные строения ПС27, ПС33. Монтаж краном ГЭК-80 поблочно. Строповка 3.501.9-151.2-12 Пролетные строения ПС18, ПС23, ПС27. Монтаж кранами ЕДК-1000 спаренными блоками. Технологические схемы 3.501.9-151.2-13 Пролетные строения ПС18, ПС23, ПС27. Монтаж кранами ЕДК-1000 спаренными блоками. Строповка 3.501.9-151.2-14 Пролетные строения ПС33, ПС45. Монтаж кранами ЕДК-1000 поблочно. Технологические схемы 3.501.9-151.2-15 Пролетные строения ПС33, ПС45. Монтаж кранами ЕДК-1000 поблочно. Строповка 3.501.9-151.2-16 Операционный контроль качества 3.501.9-151.2-17 Графики производства работ 3.501.9-151.2-18 Пролетное строение ПС18. Схема погрузки 3.501.9-151.2-19 Пролетное строение ПС23. Схема погрузки 3.501.9-151.2-20 Пролетное строение ПС27. Схема погрузки 3.501.9-151.2-21 Пролетное строение ПС33. Схема погрузки 3.501.9-151.2-22 Пролетное строение ПС45. Схема погрузки 3.501.9-151.2-23 Требования при работе крана на кривых, при продольном уклоне пути. Требования при устройстве тупиков 3.501.1-165.0-1-ПЗ Пояснительная записка 3.501.1-165.0-1-РР Комплекс расчетных параметров 3.501.1-165.0-1-НИ Номенклатура изделий 3.501.1-165.0-1-ТБ Сводная таблица расхода материалов на пролетные строения 3.501.1-165.0-1-01 Пролетное строение |
| Разработан: | Гипростроймост |
| Утверждён: | 24.04.1989 МПС СССР (USSR Ministry of Railroads А-1106у) |







































