Скачать Серия 3.501.2-141 Выпуск 1. Рабочие чертежиДата актуализации: 01.01.2021
|
| Обозначение: | Серия 3.501.2-141 |
| Обозначение англ: | Series 3.501.2-141 |
| Статус: | не определен законодательством |
| Название рус.: | Выпуск 1. Рабочие чертежи |
| Дата добавления в базу: | 01.09.2013 |
| Дата актуализации: | 01.01.2021 |
| Дата введения: | 01.08.1985 |
| Дата окончания срока действия: | 30.06.2003 |
| Область применения: | В проекте разработаны рабочие чертежи металлоконструкций пролетных строений с ездой поверху и верхнего строения мостового полотна из дерева для условий эксплуатации в климатических зонах с расчетной температурой выше минус 40 градусов Цельсия |
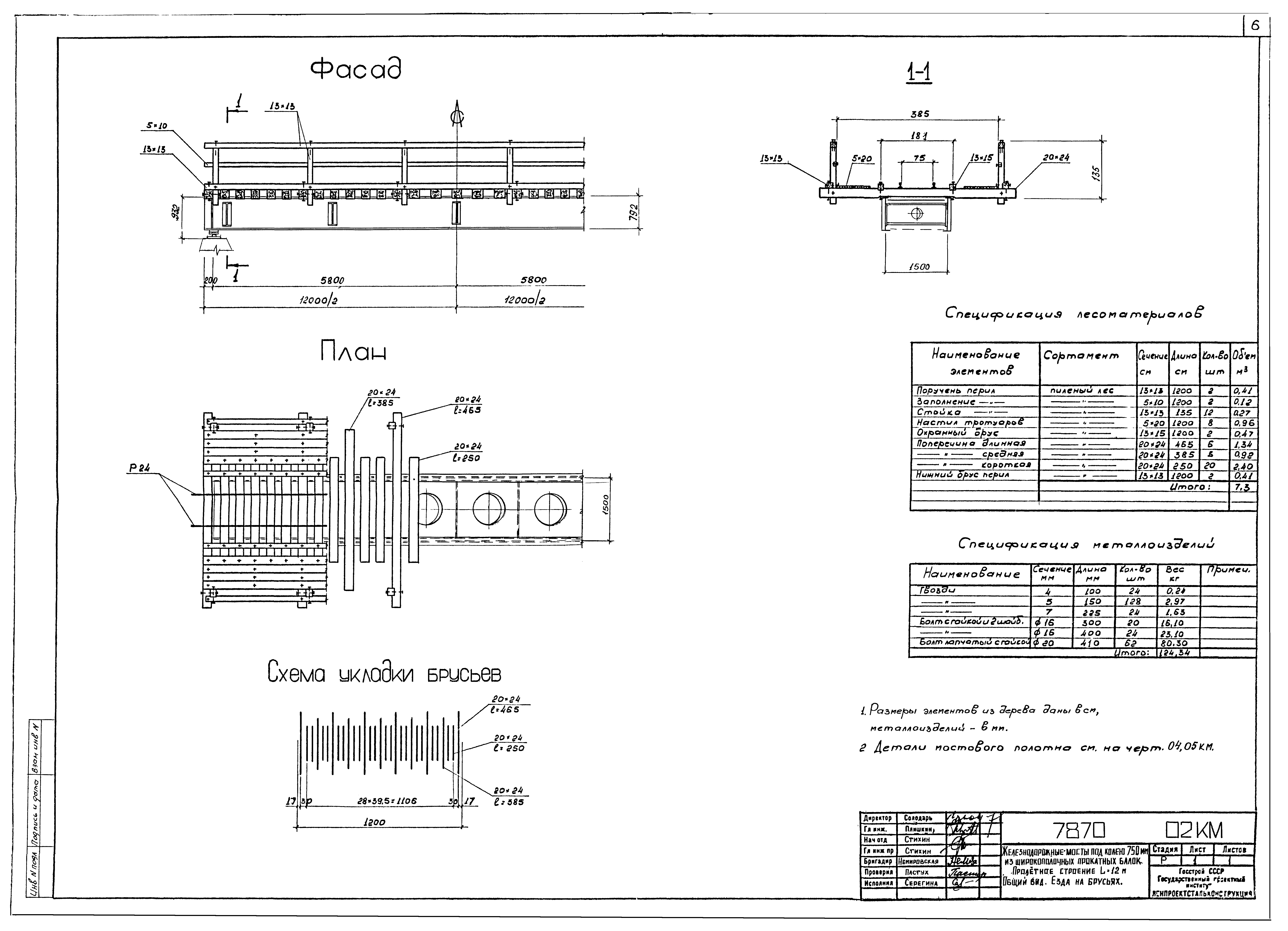
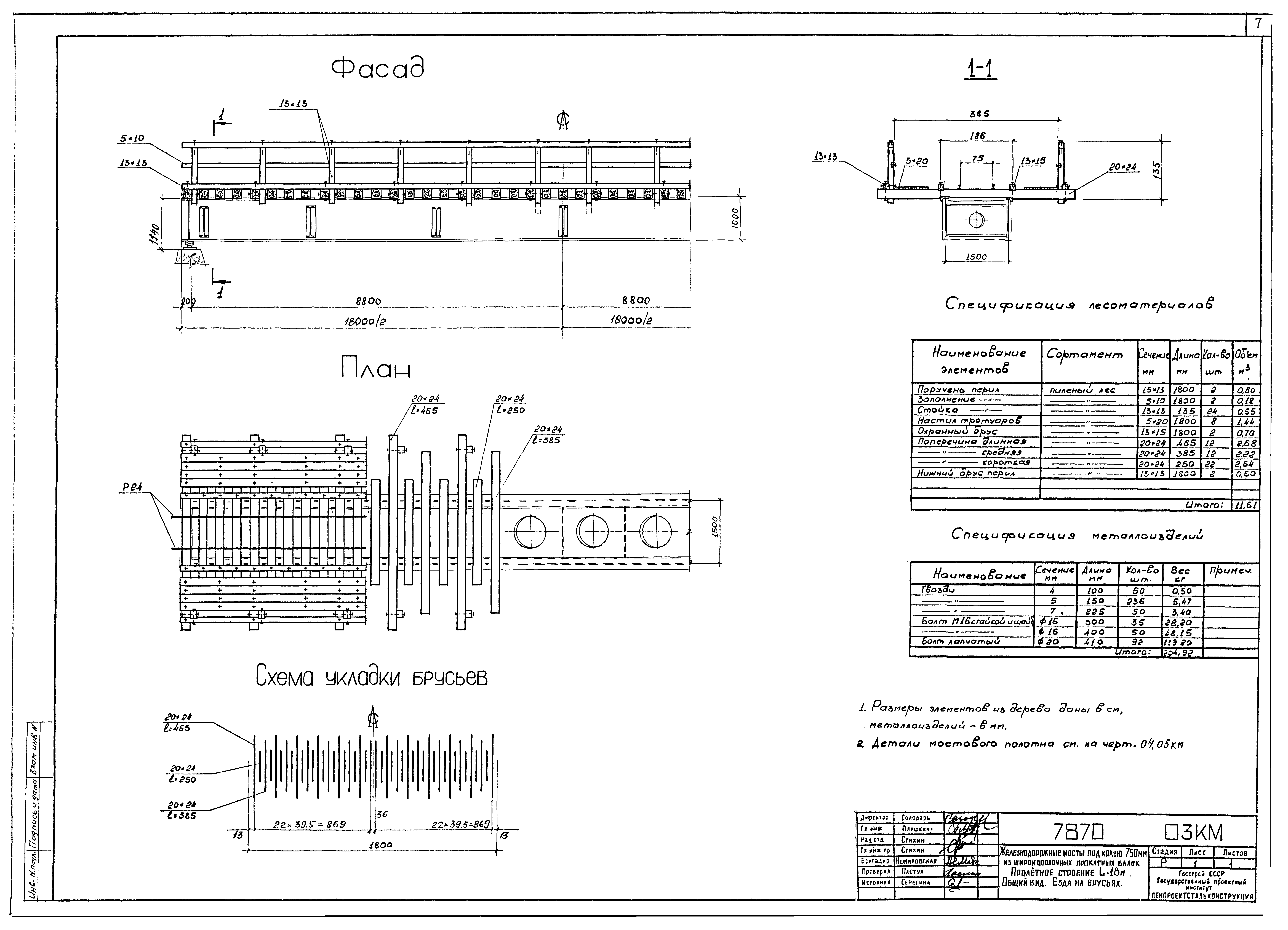
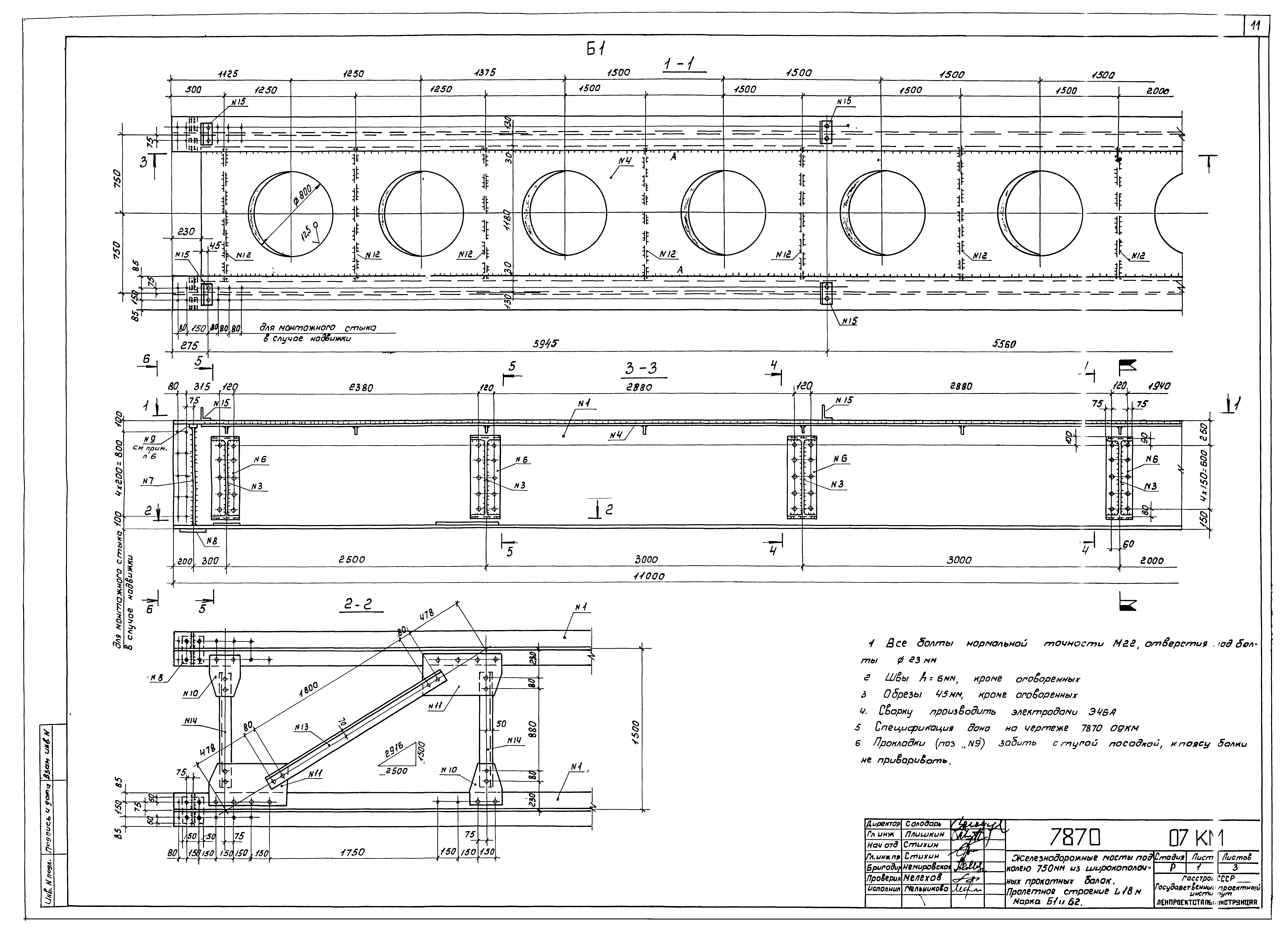
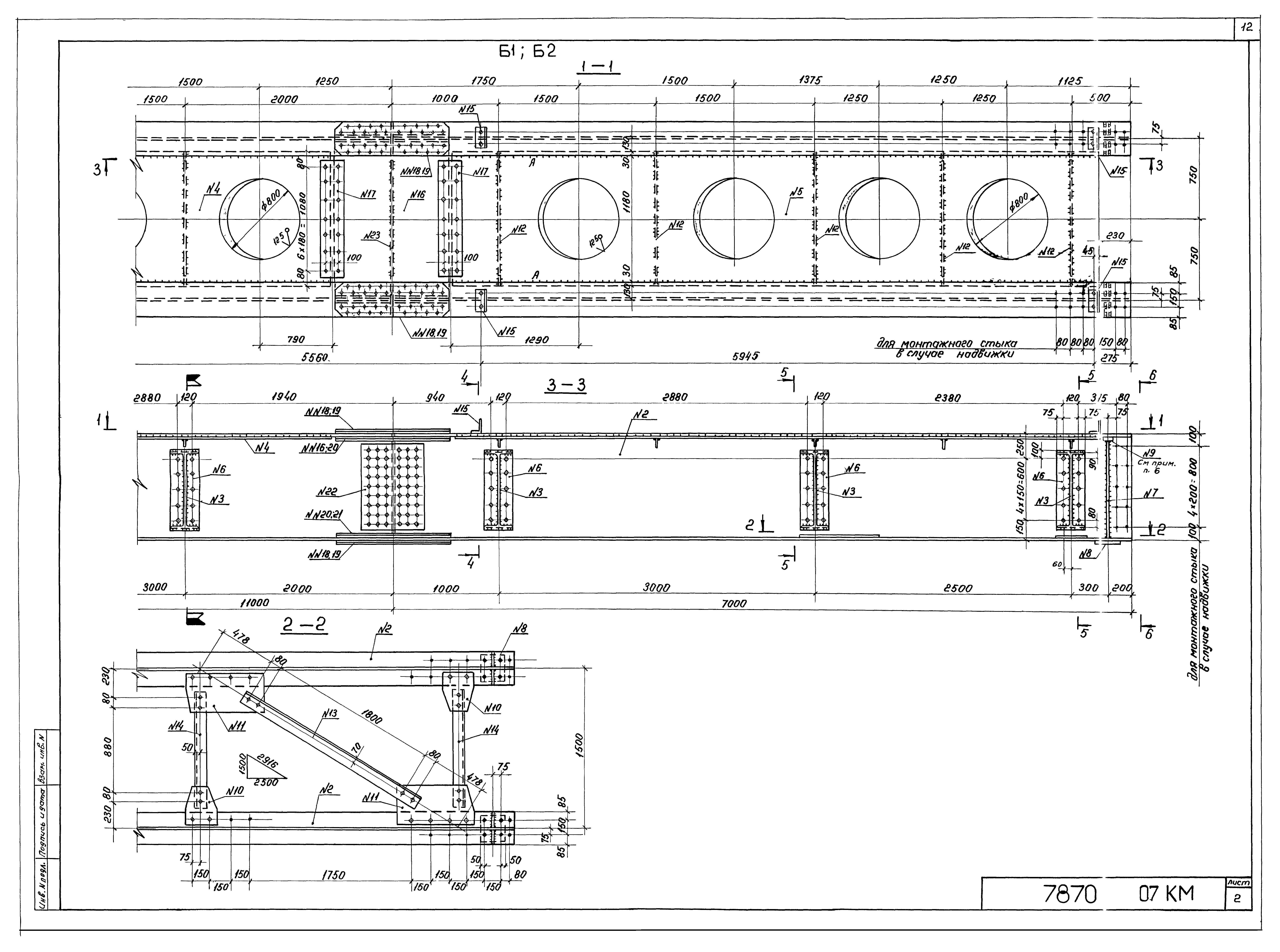
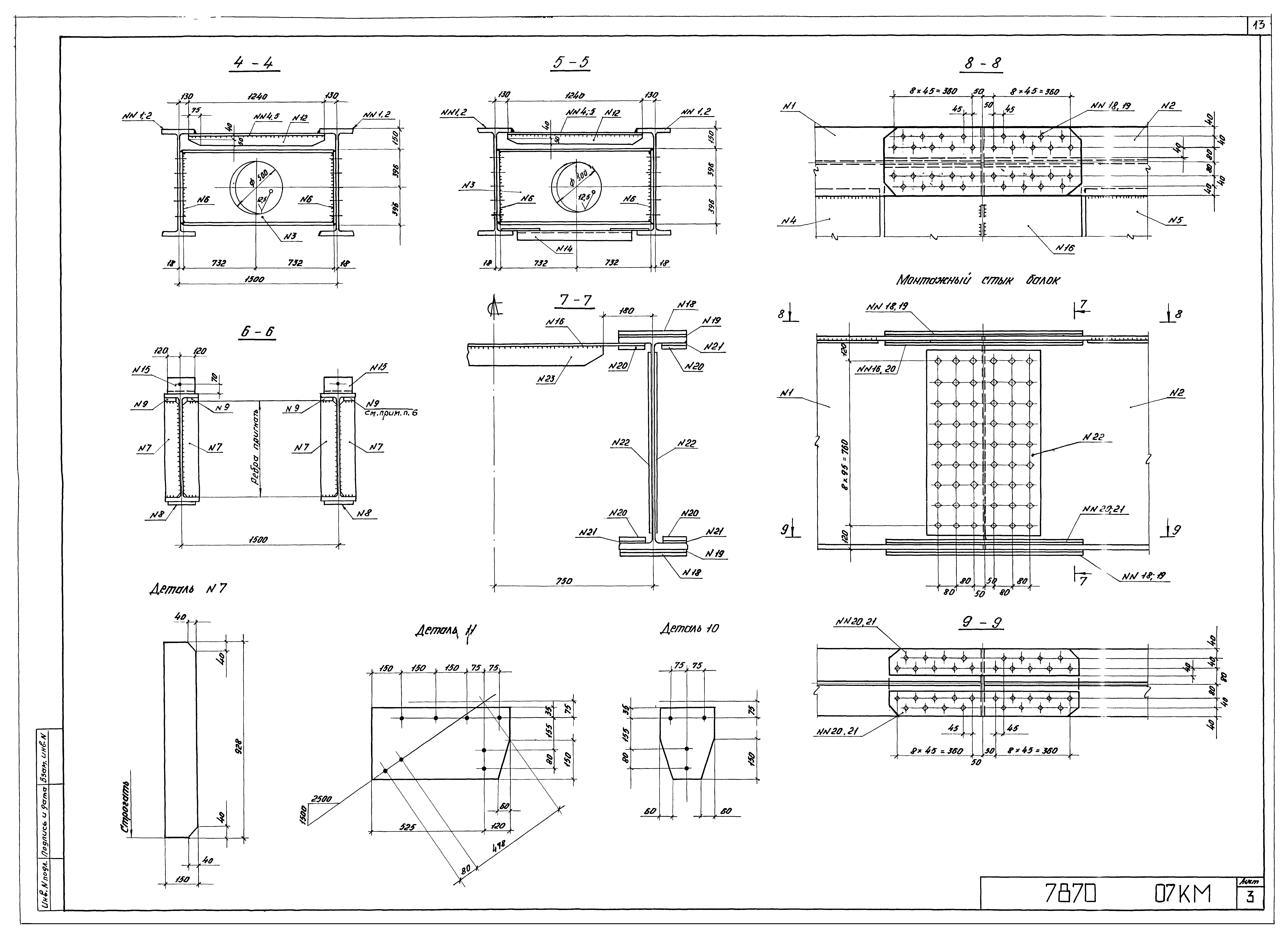
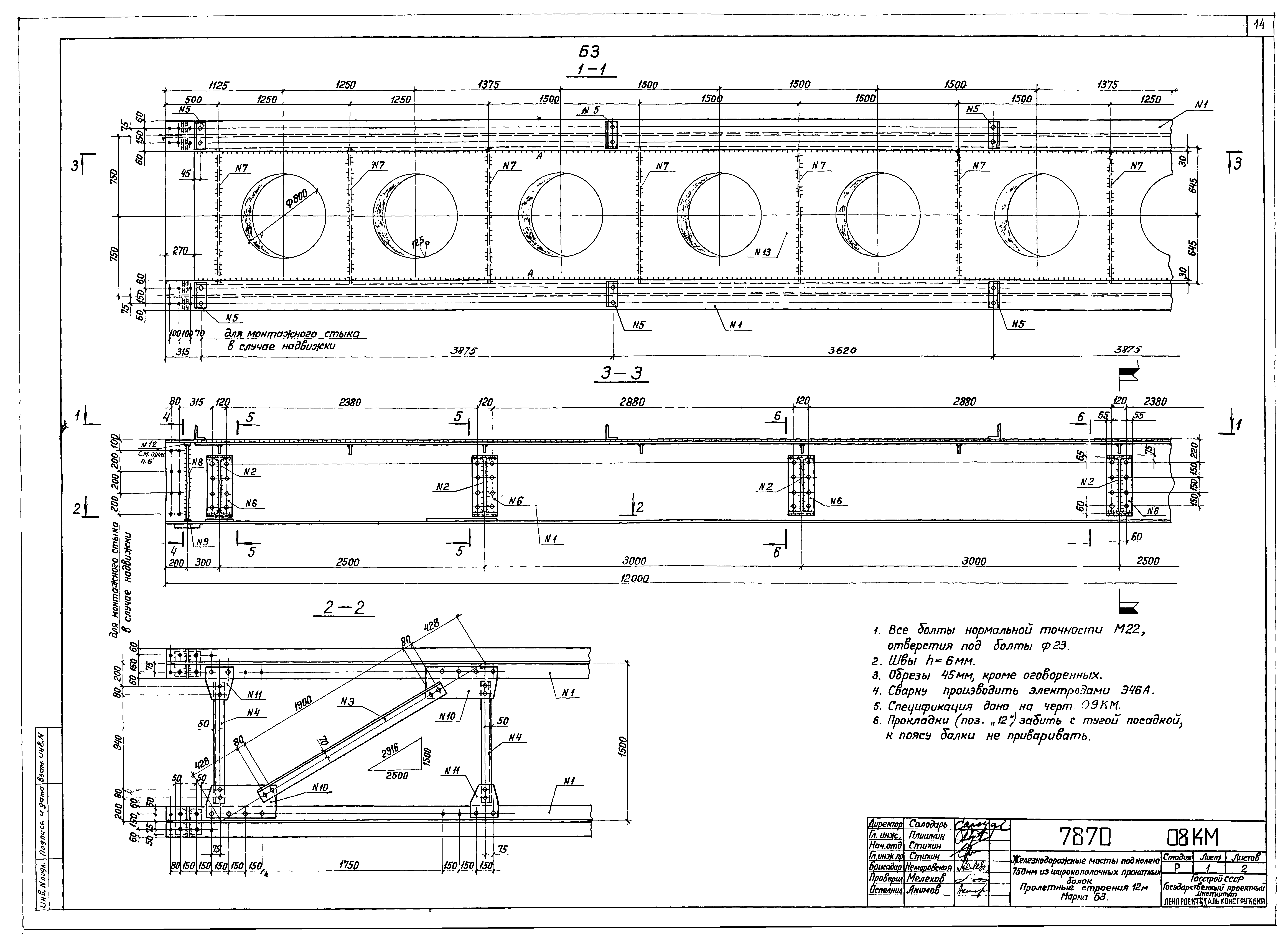
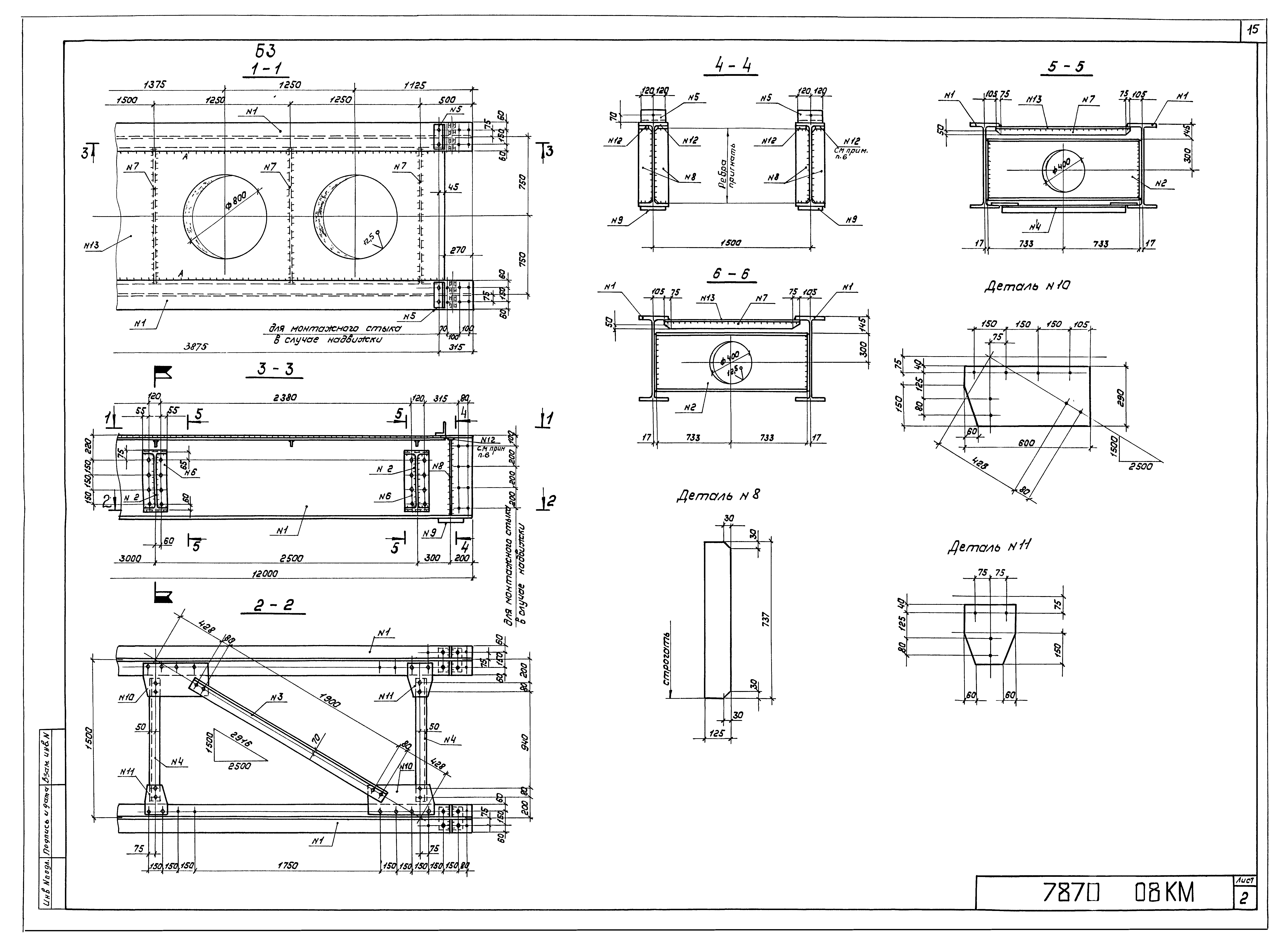
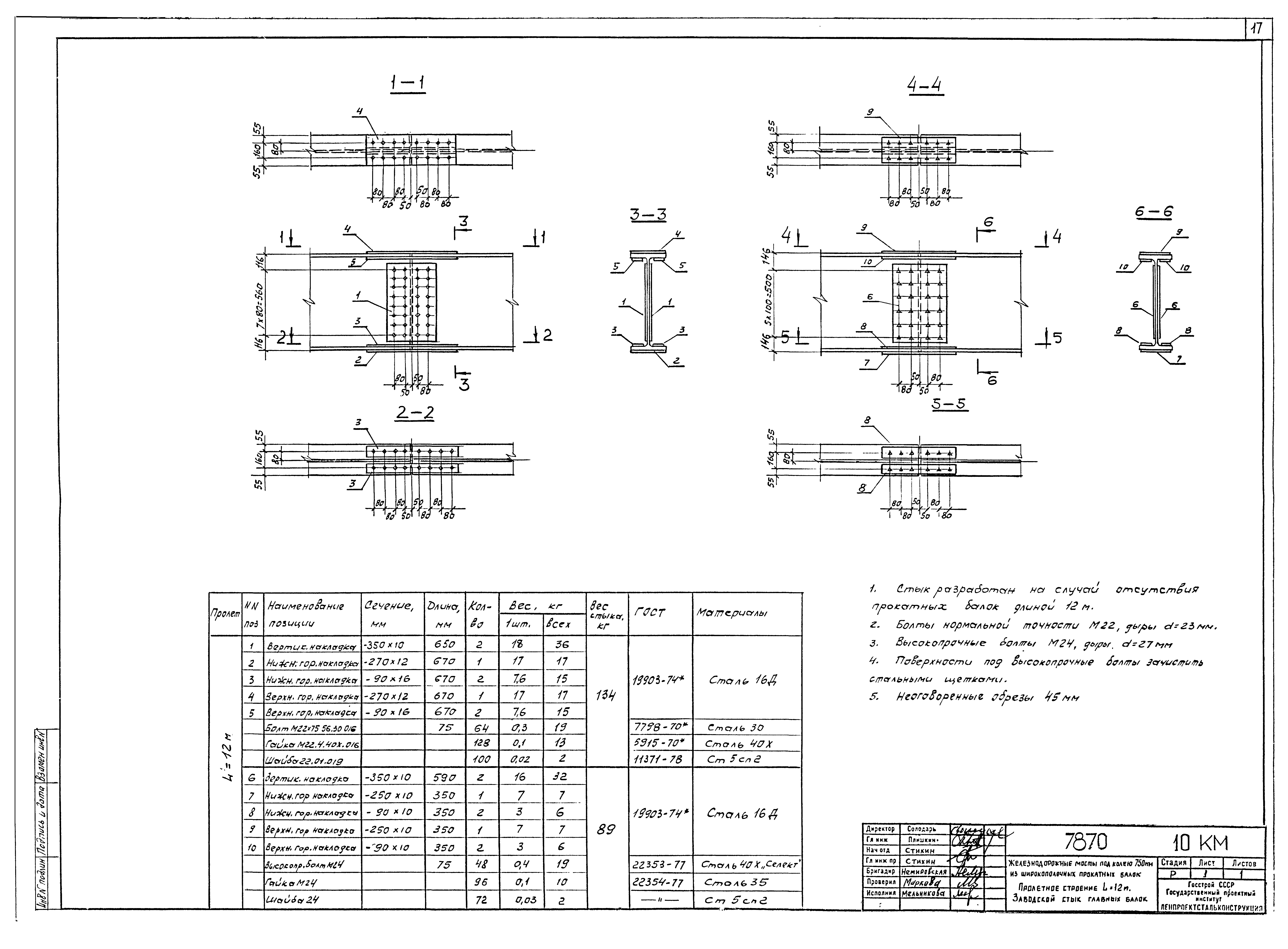
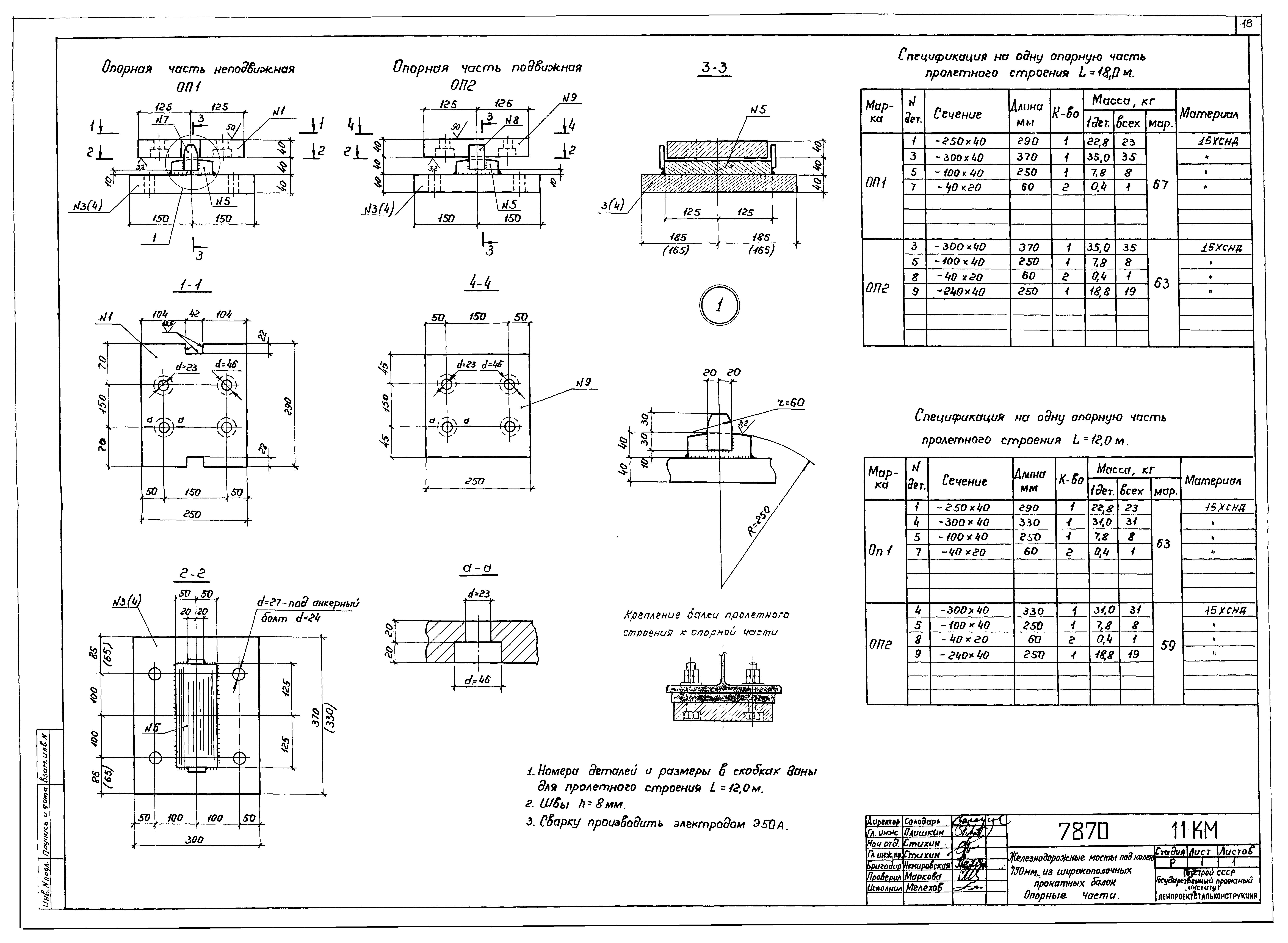
| Оглавление: | 7870 черт.00КМ, л. 1; 2 Пояснительная записка 7870 черт.01КМ Расчетный лист 7870 черт.02КМ Пролетное строение L=12м. Общий вид. Езда на брусьях 7870 черт.03КМ Пролетное строение L=18м. Общий вид. Езда на брусьях 7870 черт.04КМ Мостовое полотно. Детали 7870 черт.05КМ Мостовое полотно. Площадка-убежище и настил при деревянных опорах 7870 черт.06КМ Пролетные строения L=12 м и L=18 м. Схемы металлоконструкции 7870 черт.07КМ, л. 1 - 3 Пролетное строение L=18 м. Марки Б1 и Б2 7870 черт.08КМ, л. 1; 2 Пролетное строение L=12 м. Марка Б3 7870 черт.09КМ Пролетные строения L=12 м и L=18 м. Спецификация металла 7870 черт.10КМ Заводской стык главных балок 7870 черт.11КМ Опорные части 7870 черт.12КМ Схемы погрузки блоков пролетных строений на автомобильный и железнодорожный транспорт 7870 черт.13КМ Монтаж пролетных строений надвижкой 7870 черт.14КМ Монтажный стык при надвижке пролетных строений 7870 черт.15КМ Монтаж пролетных строений с помощью крана на судоходе |
| Разработан: | Ленпроектстальконструкция |
| Утверждён: | 14.12.1983 Министерство лесной, целлюлозно-бумажной и деревообрабатывающей промышленности СССР (USSR Ministry of the Wood, Wood Processing, Pulp and Paper Industries 130) |






















