Скачать Серия 3.501.1-146 Выпуск 3. Стальные изделия. Рабочие чертежиДата актуализации: 01.01.2021
|
| Обозначение: | Серия 3.501.1-146 |
| Обозначение англ: | Series 3.501.1-146 |
| Статус: | не определен законодательством |
| Название рус.: | Выпуск 3. Стальные изделия. Рабочие чертежи |
| Дата добавления в базу: | 01.09.2013 |
| Дата актуализации: | 01.01.2021 |
| Дата введения: | 01.01.1990 |
| Дата окончания срока действия: | 30.06.2003 |
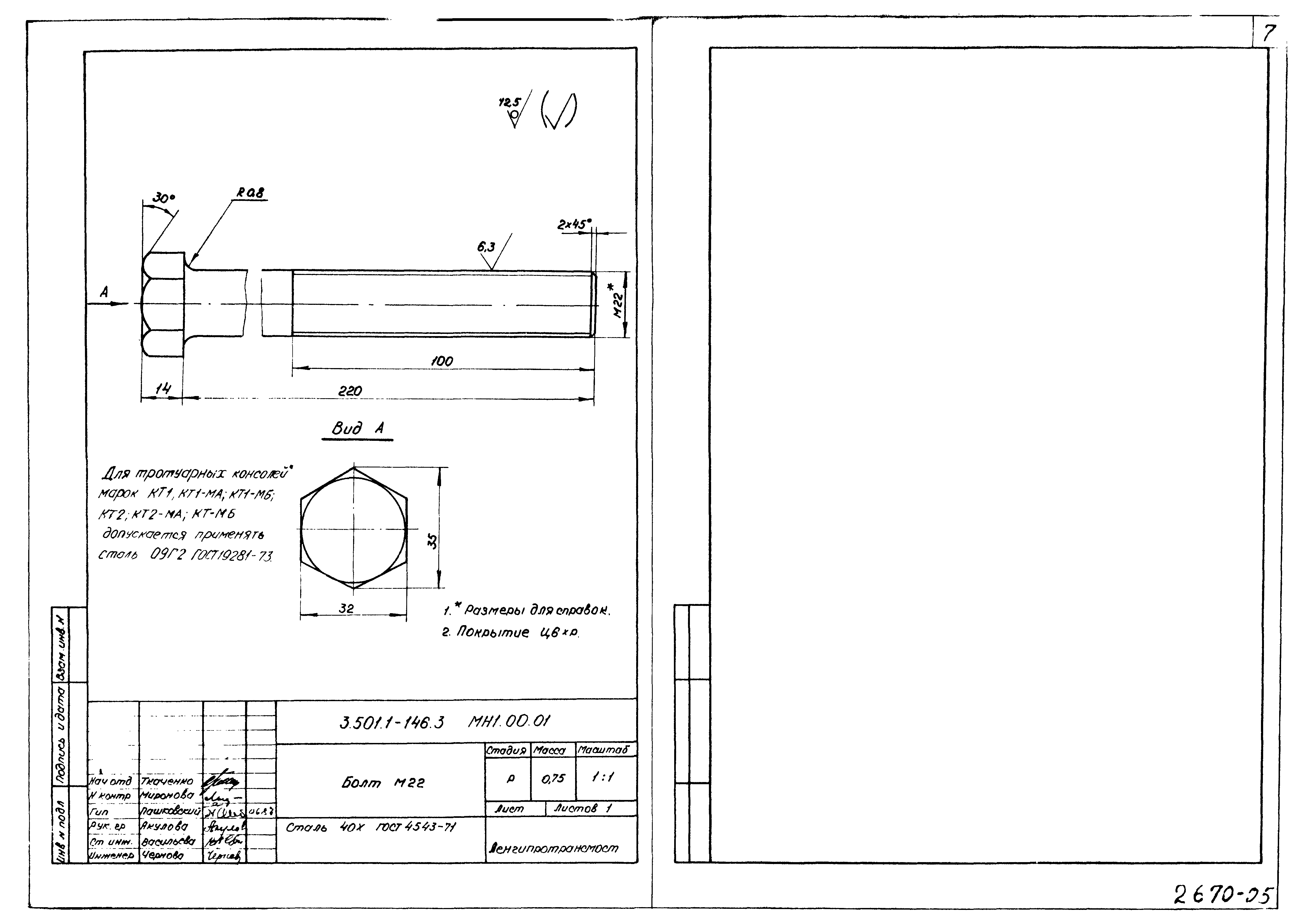
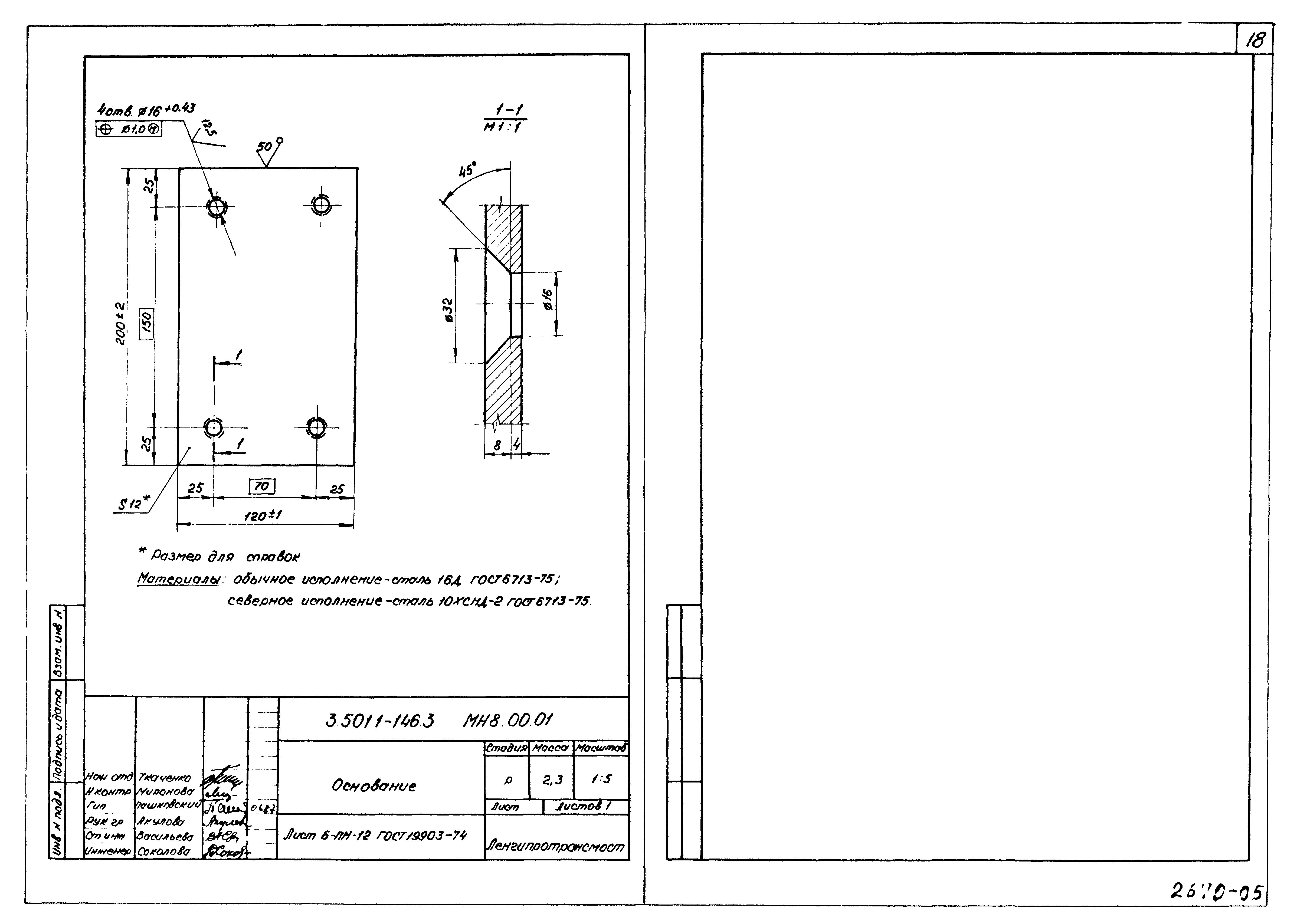
| Оглавление: | 3.501.1-146.3 МН1.00.00 Изделие закладное МН-1, МН1-М 3.501.1-146.3 МН1.00.00 СБ Изделие закладное МН-1, МН1-М. Сборочный чертеж 3.501.1-146.3 МН1.01.00 Коробка 3.501.1-146.3 МН1.01.00 СБ Коробка. Сборочный чертеж 3.501.1-146.3 МН1.01.01 Основание 3.501.1-146.3 МН1.01.02 Стенка 3.501.1-146.3 МН1.00.01 Болт М22 3.501.1-146.3 МН2.00.00 СБ Коробка окаймляющая МН2; МН2-М; МН2н; МН2н-М. Сборочный чертеж 3.501.1-146.3 МН2.00.00 Коробка окаймляющая МН2; МН2-М; МН2н; МН2н-М 3.501.1-146.3 МН2.00.01 Стенка 3.501.1-146.3 МН2.00.02 Основание 3.501.1-146.3 МН3 … МН4.00.00 Коробка окаймляющая МН3; МН4; МН3н; МН4н; МН3-М; МН4-М; МН3н-М; МН4н-М 3.501.1-146.3 МН3 … МН4.00.00 СБ Коробка окаймляющая МН3; МН4; МН3н; МН4н; МН3-М; МН4-М; МН3н-М; МН4н-М. Сборочный чертеж 3.501.1-146.3 МН3 … МН4.00.01 Основание 3.501.1-146.3 МН3 … МН4.00.02 Стенка 3.501.1-146.3 МН5 … МН6.00.00 Коробка окаймляющая МН5; МН5-М; МН6; МН6-М 3.501.1-146.3 МН5 … МН6.00.00 СБ Коробка окаймляющая МН5; МН5-М; МН6; МН6-М. Сборочный чертеж 3.501.1-146.3 МН5 … МН6.00.01 Основание 3.501.1-146.3 МН5 … МН6.00.02 Стенка 3.501.1-146.3 МН7.00.00 Изделие закладное МН7 3.501.1-146.3 МН7.00.00 СБ Изделие закладное МН7. Сборочный чертеж 3.501.1-146.3 МН7.01.00 Трубка 3.501.1-146.3 МН7.01.01 Трубка 3.501.1-146.3 МН7.00.03 Серьга 3.501.1-146.3 МН7.00.02 Шпилька 3.501.1-146.3 МН8.00.00 Изделие закладное МН8, МН8-М 3.501.1-146.3 МН8.00.00 СБ Изделие закладное МН8, МН8-М. Сборочный чертеж 3.501.1-146.3 МН8.00.01 Основание 3.501.1-146.3 МН9.00.00 Изделие закладное МН9, МН9-М 3.501.1-146.3 МН9.00.00 СБ Изделие закладное МН9, МН9-М. Сборочный чертеж 3.501.1-146.3 МН9.00.01 Лист торцевой 3.501.1-146.3 МН10.00.00 Изделие закладное МН10, МН10-М 3.501.1-146.3 МН10.00.00 СБ Изделие закладное МН10, МН10-М. Сборочный чертеж 3.501.1-146.3 МН10.00.01 Лист торцевой 3.501.1-146.3 МН11.00.00 Изделие закладное МН11, МН11-М 3.501.1-146.3 МН11.00.00 СБ Изделие закладное МН11, МН11-М. Сборочный чертеж 3.501.1-146.3 МН11.00.01 Лист торцевой 3.501.1-146.3 МН12.00.00 Изделие закладное МН12, МН12-М 3.501.1-146.3 МН12.00.00 СБ Изделие закладное МН12, МН12-М. Сборочный чертеж 3.501.1-146.3 МН12.00.01 Лист торцевой 3.501.1-146.3 КТ1 … КТ2.00.00 Консоль тротуарная КТ1; КТ1-МА; КТ1-МБ; КТ2; КТ2-МА; КТ2-МБ 3.501.1-146.3 КТ1 … КТ2.00.02 Ребро 3.501.1-146.3 КТ1 … КТ2.00.00 СБ Консоль тротуарная КТ1; КТ1-МА; КТ1-МБ; КТ2; КТ2-МА; КТ2-МБ. Сборочный чертеж 3.501.1-146.3 КТ1 … КТ2.00.01 Стенка 3.501.1-146.3 КТ1 … КТ2.00.02 Стенка 3.501.1-146.3 КТ3 … КТ4.00.00 Консоль желоба КТ3; КТ3-МА; КТ3-МБ; КТ4; КТ4-МА; КТ4-МБ 3.501.1-146.3 КТ3 … КТ4.00.00 СБ Консоль желоба КТ3; КТ3-МА; КТ3-МБ; КТ4; КТ4-МА; КТ4-МБ. Сборочный чертеж 3.501.1-146.3 КТ3 … КТ4.00.01 Ограничитель 3.501.1-146.3 КТ3 … КТ4.00.02 Горизонтальная фасонка 3.501.1-146.3 КТ3 … КТ4.00.03 Вертикальная фасонка 3.501.1-146.3 КТ3 … КТ4.00.04 Прокладка 3.501.1-146.3 ЛП.00.00 Лист перекрытия поперечного шва ЛП1; ЛП2 3.501.1-146.3 ЛП.00.00 СБ Лист перекрытия поперечного шва ЛП1; ЛП2. Сборочный чертеж 3.501.1-146.3 ЛП.00.01 Лист 3.501.1-146.3 С.00.00 Стойка перильная С1, С2, С3, С4 3.501.1-146.3 ЛП3.00.00 Лист перекрытия продольного шва двухпутного участка пути ЛП3 3.501.1-146.3 ЛП3.00.00 СБ Лист перекрытия продольного шва двухпутного участка пути ЛП3. Сборочный чертеж |
| Разработан: | Ленгипротрансмост |
| Утверждён: | 26.07.1989 МПС (Ministry of Railroads Г-1976у) |



































