Скачать Серия 3.503.9-62 Выпуск 2. Пролетное строение Lp=3х42 м. Рабочие чертежиДата актуализации: 01.01.2021
|
| Обозначение: | Серия 3.503.9-62 |
| Обозначение англ: | Series 3.503.9-62 |
| Статус: | заменен |
| Название рус.: | Выпуск 2. Пролетное строение Lp=3х42 м. Рабочие чертежи |
| Дата добавления в базу: | 01.09.2013 |
| Дата актуализации: | 01.01.2021 |
| Дата введения: | 01.01.1985 |
| Дата окончания срока действия: | 01.09.1998 |
| Область применения: | Пролетное строение Lp=3х43 м предназначено для установки на автомобильных мостах, расположенных в плане на прямых участках дорог IV и V технических категорий и может устанавливаться в профиле на площадках, уклонах и выпуклых кривых радиусом 5000 и 10000 м при расчетной сейсмичности не выше 6 баллов |
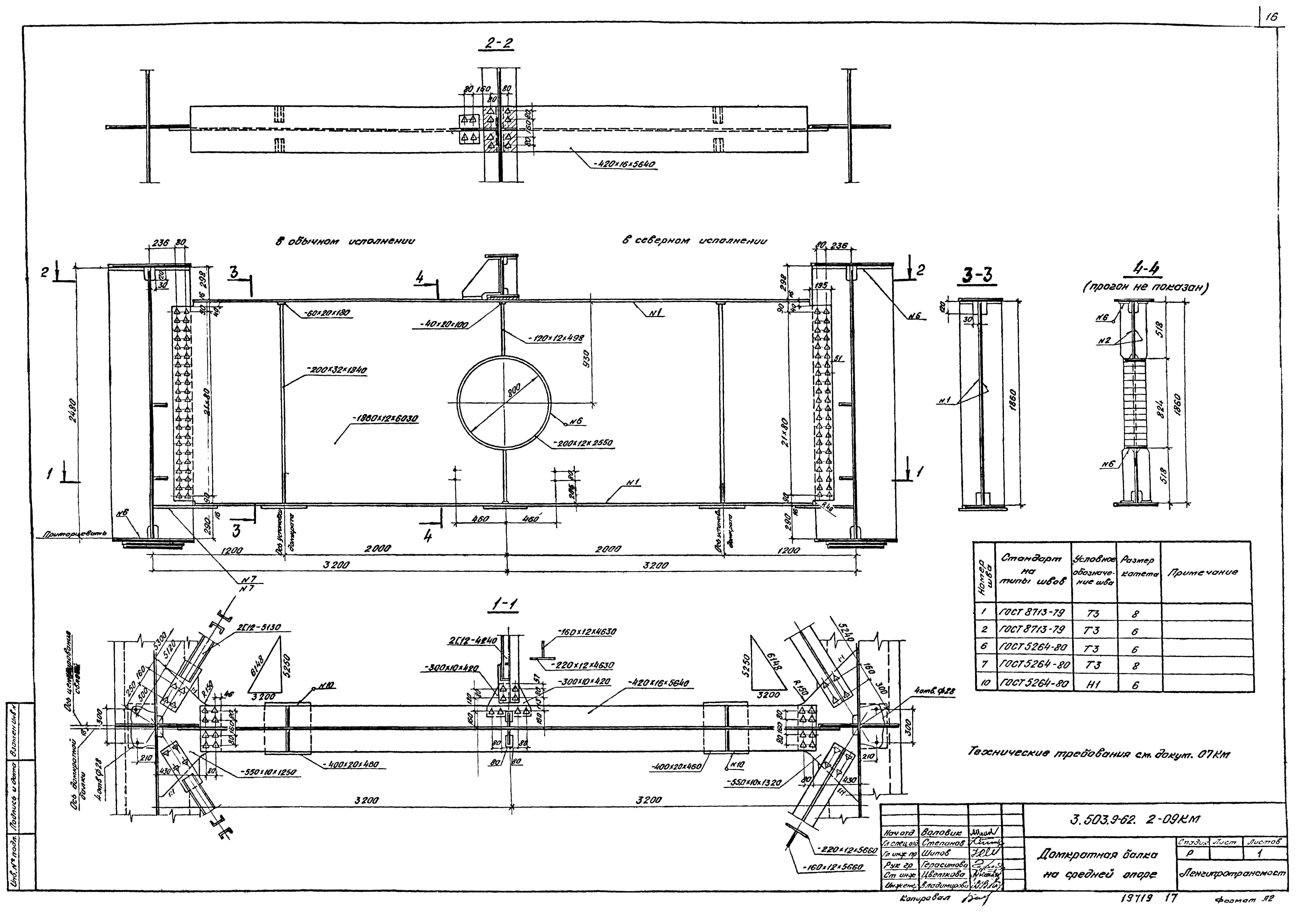
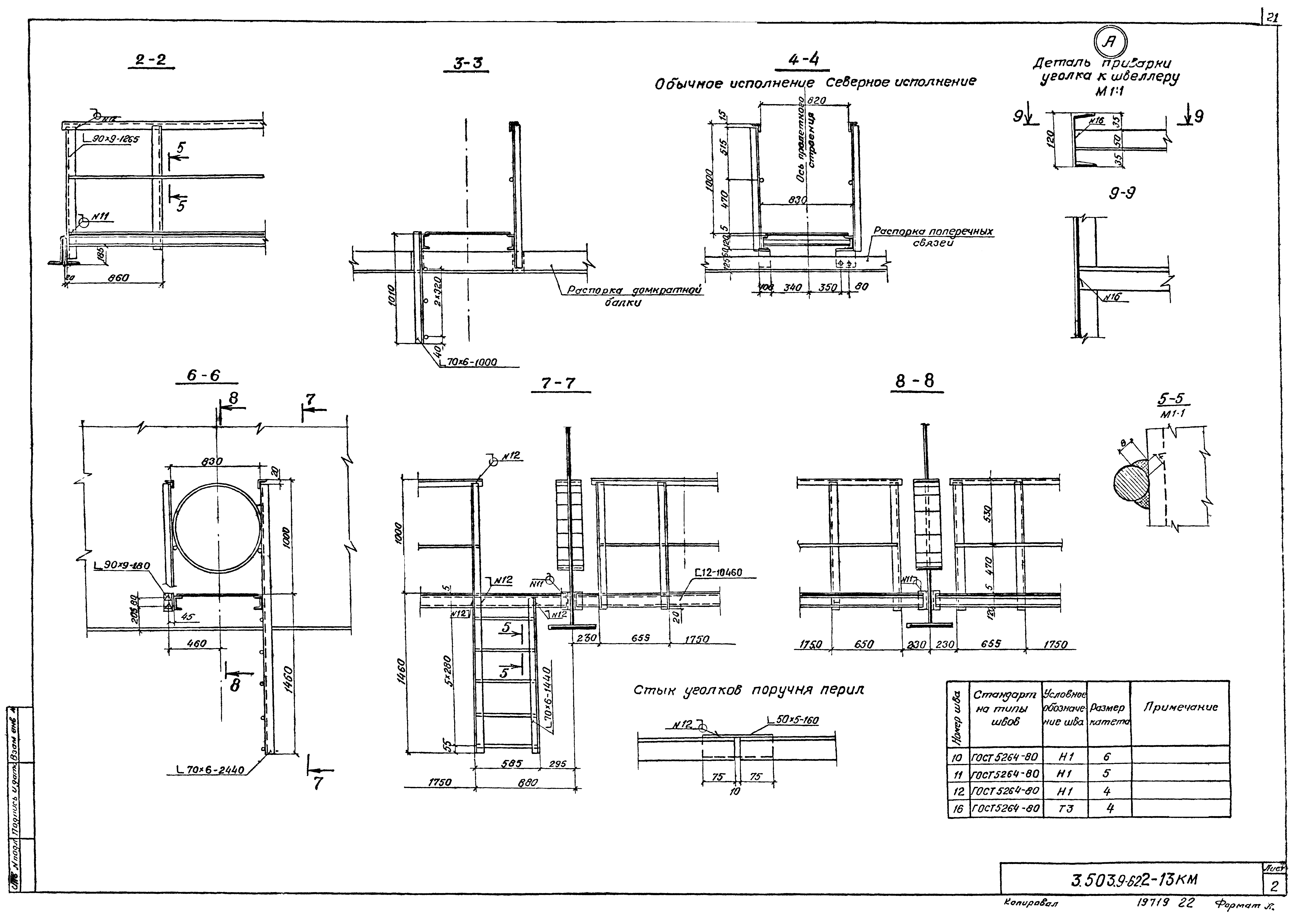
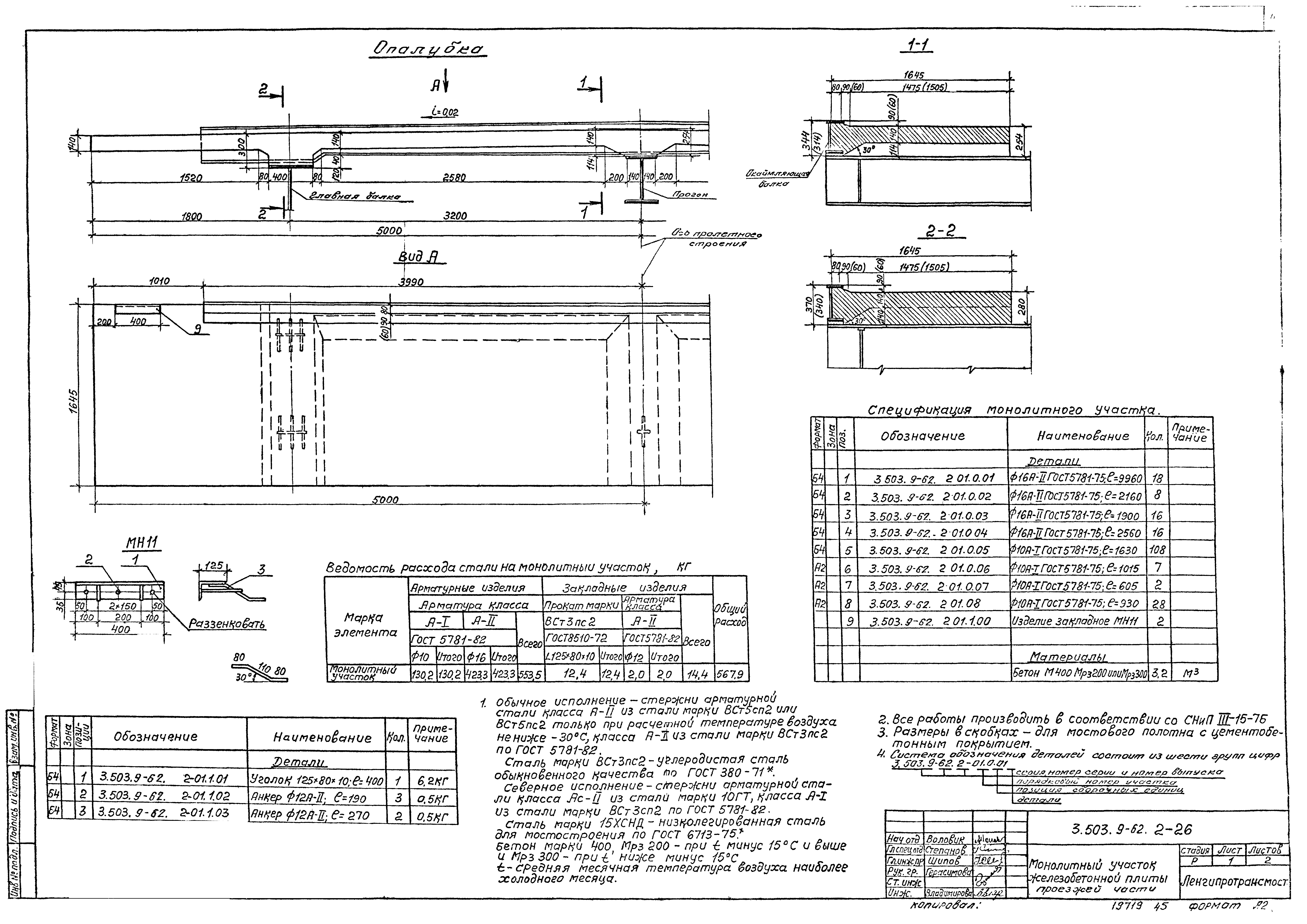
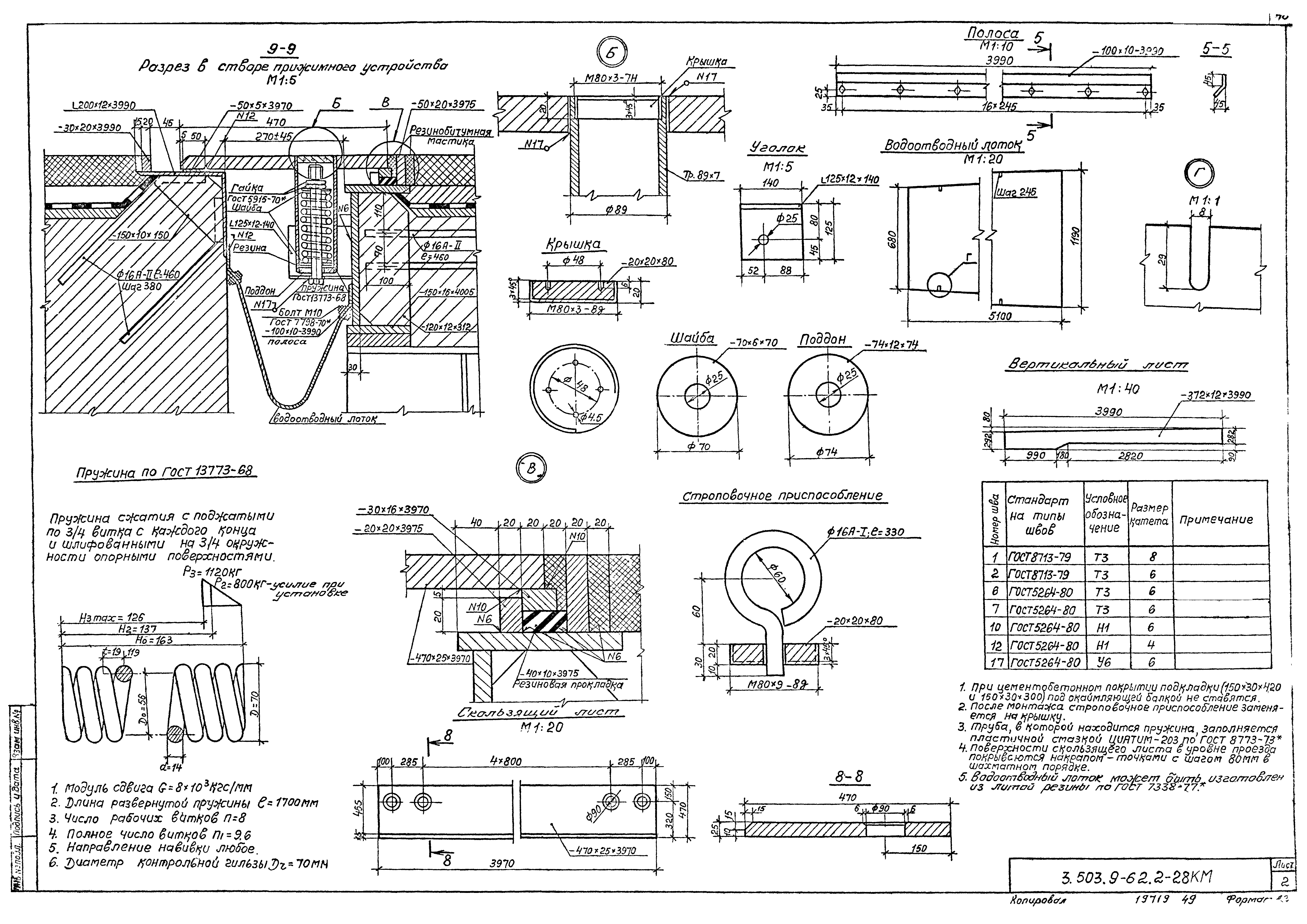
| Оглавление: | 3.503.9-62.2-00 Условные обозначения 3.503.9-62.2-00 ПЗ Пояснительная записка 3.503.9-62.2-01 Общий вид пролетного строения. Основные данные 3.503.9-62.2-02КМ Общий вид металлоконструкций 3.503.9-62.2-03КМ Монтажные стыки главных балок 3.503.9-62.2-04КМ Монтажные стыки перегона. Узлы 3.503.9-62.2-05КМ Упоры главных балок и прогона (обычное исполнение) 3.503.9-62.2-06КМ Упоры главных балок и прогона (северное исполнение) 3.503.9-62.2-07КМ Домкратная балка на крайней опоре (обычное исполнение) 3.503.9-62.2-08КМ Домкратная балка на крайней опоре (северное исполнение) 3.503.9-62.2-09КМ Домкратная балка на средней опоре 3.503.9-62.2-10КМ Поперечные связи (обычное исполнение) 3.503.9-62.2-11КМ Поперечные связи (северное исполнение) 3.503.9-62.2-12КМ Узлы и элементы продольных связей 3.503.9-62.2-13КМ Смотровой ход 3.503.9-62.2-14КМ Перила 3.503.9-62.2-15КМ Ограждение ездового полотна 3.503.9-62.2-16 Строительный подъем 3.503.9-62.2-17КМ Техническая спецификация металла (обычное исполнение) 3.503.9-62.2-18КМ Техническая спецификация металла (северное исполнение) 3.503.9-62.2-19 Схемы продольной надвижки 3.503.9-62.2-20 Монтаж плит проезжей части 3.503.9-62.2-21 Последовательность загружения пролетного строения и регулирование усилий 3.503.9-62.2-22 Расчеты 3.503.9-62.2-23 Монтажная схема блоков плиты проезжей части и тротуаров 3.503.9-62.2-24 Поперечный разрез плиты проезжей части и прикрепление тротуарных блоков 3.503.9-62.2-25 Мостовое полотно 3.503.9-62.2-26 Монолитный участок железобетонной плиты проезжей части 3.503.9-62.2-27 Водоотводное устройство 3.503.9-62.2-28КМ Деформационный шов перекрываемого типа ПС-80 3.503.9-62.2-29КМ Деформационный шов перекрываемого типа ПС-210 3.503.9-62.2-30ВМ Ведомость потребности в материалах |
| Разработан: | Ленгипротрансмост |
| Утверждён: | 10.07.1984 Минтрансстрой (Mintransstroy ВС-727) |
| Заменяет собой: | |
| Чем заменён: |




















































