Скачать Серия 3.503.9-62 Выпуск 10. Пролетные строения Lp=63+2х84+63 и 63+3х84+63 м. Рабочие чертежиДата актуализации: 01.01.2021
|
| Обозначение: | Серия 3.503.9-62 |
| Обозначение англ: | Series 3.503.9-62 |
| Статус: | действует |
| Название рус.: | Выпуск 10. Пролетные строения Lp=63+2х84+63 и 63+3х84+63 м. Рабочие чертежи |
| Дата добавления в базу: | 01.09.2013 |
| Дата актуализации: | 01.01.2021 |
| Дата введения: | 01.09.1985 |
| Область применения: | Пролетные строения Lp=63+2х84+63 и 63+3х84+63 м предназначены для установки на автомобильных мостах, расположенных на прямых участках дорог IV и V технических категорий и могут устанавливаться в профиле на площадках, уклонах и выпуклых кривых радиусов 5000 и 10000 м при расчетной сейсмичности и не выше 6 баллов |
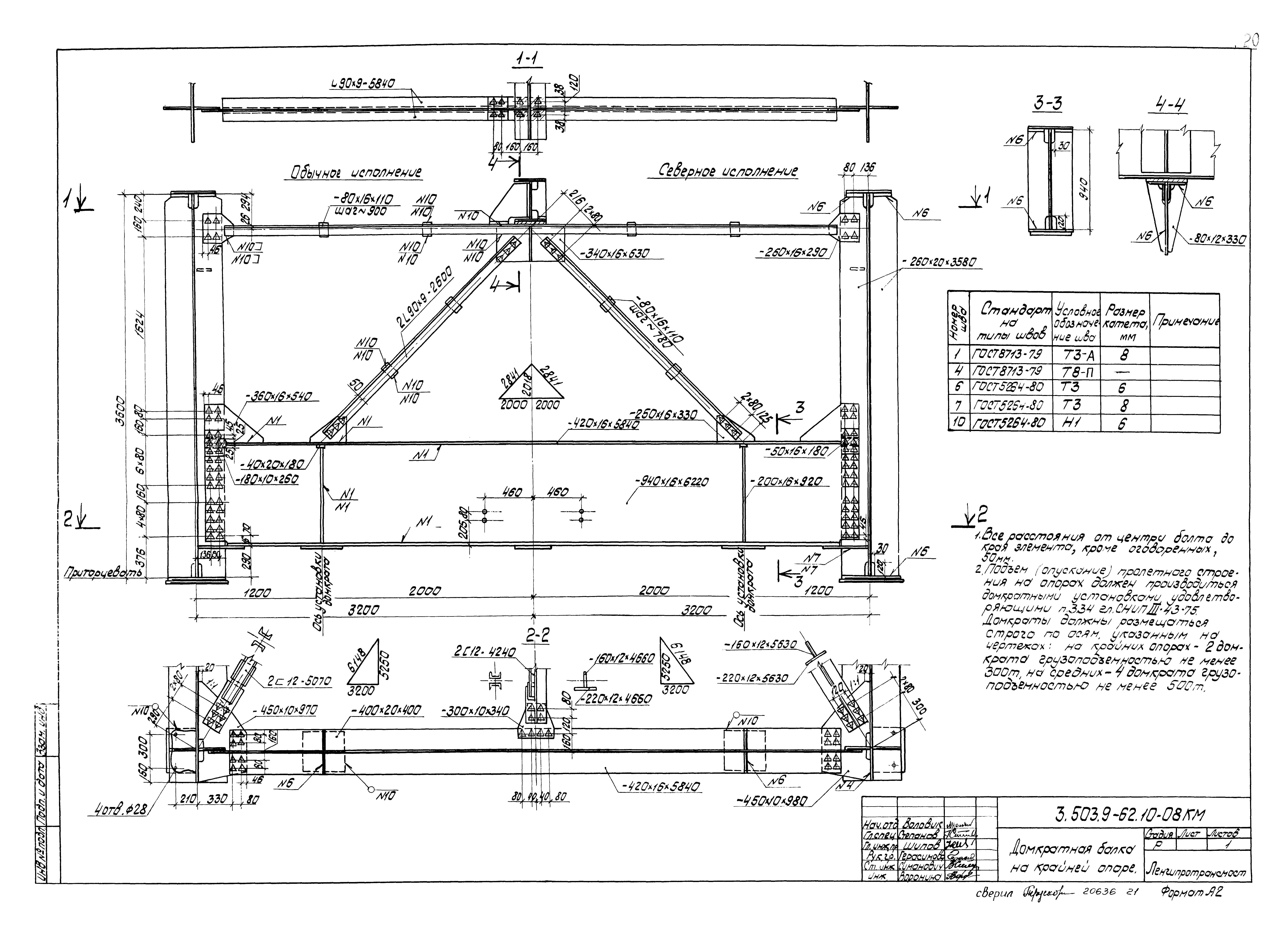
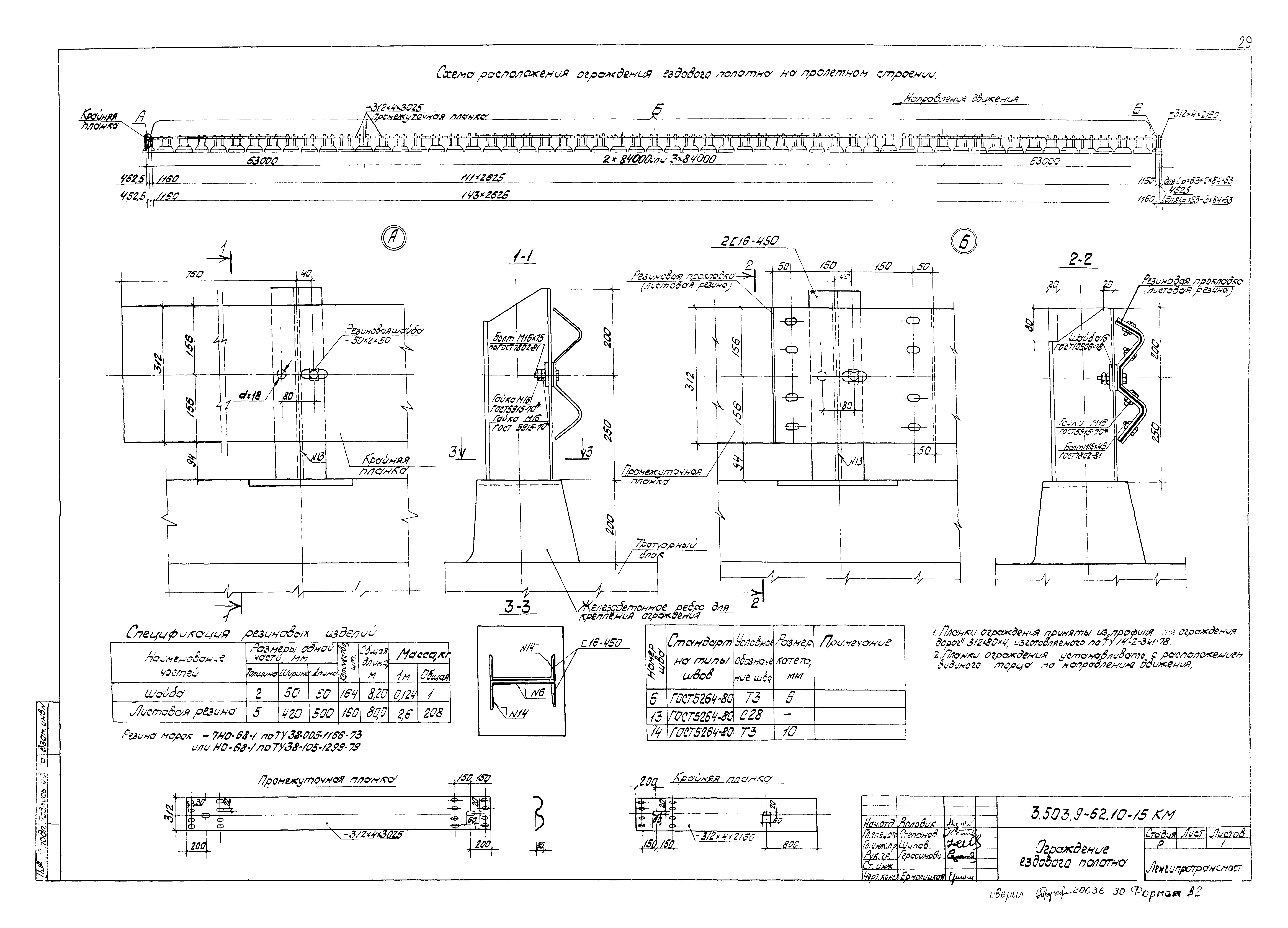
| Оглавление: | 3.503.9-62.10-00 Условные обозначения 3.503.9-62.10-00ПЗ Пояснительная записка 3.503.9-62.10-01 Общий вид пролетного строения. Основные данные 3.503.9-62.10-02КМ Общий вид металлоконструкций 3.503.9-62.10-03КМ Монтажные стыки главных балок 3.503.9-62.10-04КМ Монтажные стыки прогона. Узлы 3.503.9-62.10-05КМ Монтажные стыки прогона. Узлы (сварной вариант) 3.503.9-62.10-06КМ Упоры главных балок и прогона /обычное исполнение/ 3.503.9-62.10-07КМ Упоры главных балок и прогона /северное исполнение/ 3.503.9-62.10-08КМ Домкратная балка на крайней опоре 3.503.9-62.10-09КМ Домкратная балка на средней опоре 3.503.9-62.10-10КМ Поперечные связи /обычное исполнение/ 3.503.9-62.10-11КМ Поперечные связи /обычное исполнение/ 3.503.9-62.10-12КМ Узлы и элементы продольных связей 3.503.9-62.10-13КМ Смотровой ход 3.503.9-62.10-14КМ Перила 3.503.9-62.10-15КМ Ограждение ездового полотна 3.503.9-62.10-16КМ Строительный подъем 3.503.9-62.10-17 Техническая спецификация металла. Ведомости металлоконструкций по маркам металла и видам профилей. Сводные ведомости монтажных болтов (Обычное исполнение) 3.503.9-62.10-18 Техническая спецификация металла. Ведомости металлоконструкций по маркам металла и видам профилей. Сводные ведомости монтажных болтов (Обычное исполнение) 3.503.9-62.10-19 Схемы продольной надвижки 3.503.9-62.10-20 Монтаж плит проезжей части 3.503.9-62.10-21 Расчеты пролетного строения 3.503.9-62.10-22 Монтажная схема блоков плиты проезжей части и тротуаров 3.503.9-62.10-23 Поперечный разрез плиты проезжей части и прикрепление тротуарных блоков 3.503.9-62.10-24 Мостовое полотно 3.503.9-62.10-25 Монолитный участок железобетонной плиты проезжей части 3.503.9-62.10-26 Водоотводное устройство 3.503.9-62.10-27 Деформационный шов перекрываемого типа ПС-210 3.503.9-62.10-28ВМ Ведомость потребности в материалах (обычное исполнение) 3.503.9-62.10-29ВМ Ведомость потребности в материалах (северное исполнение) |
| Разработан: | Ленгипротрансмост |
| Утверждён: | Минтрансстрой (Mintransstroy ) |


































































