Скачать Серия 3.503-50 Выпуск 1. Пролетное строение Lp=42 м. Габариты Г-10 и Г-11,5. Рабочие чертежиДата актуализации: 01.01.2021 Серия 3.503-50
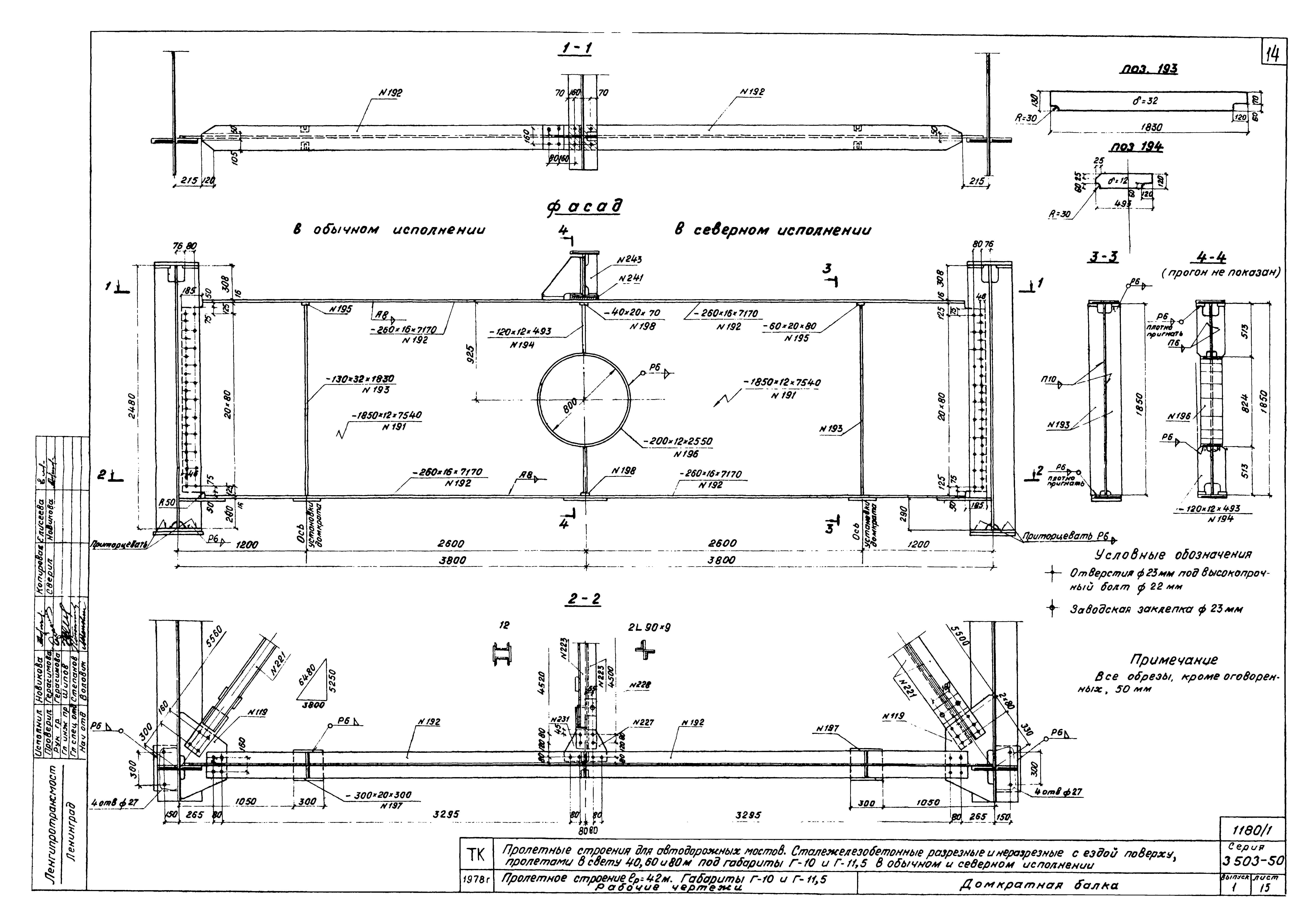
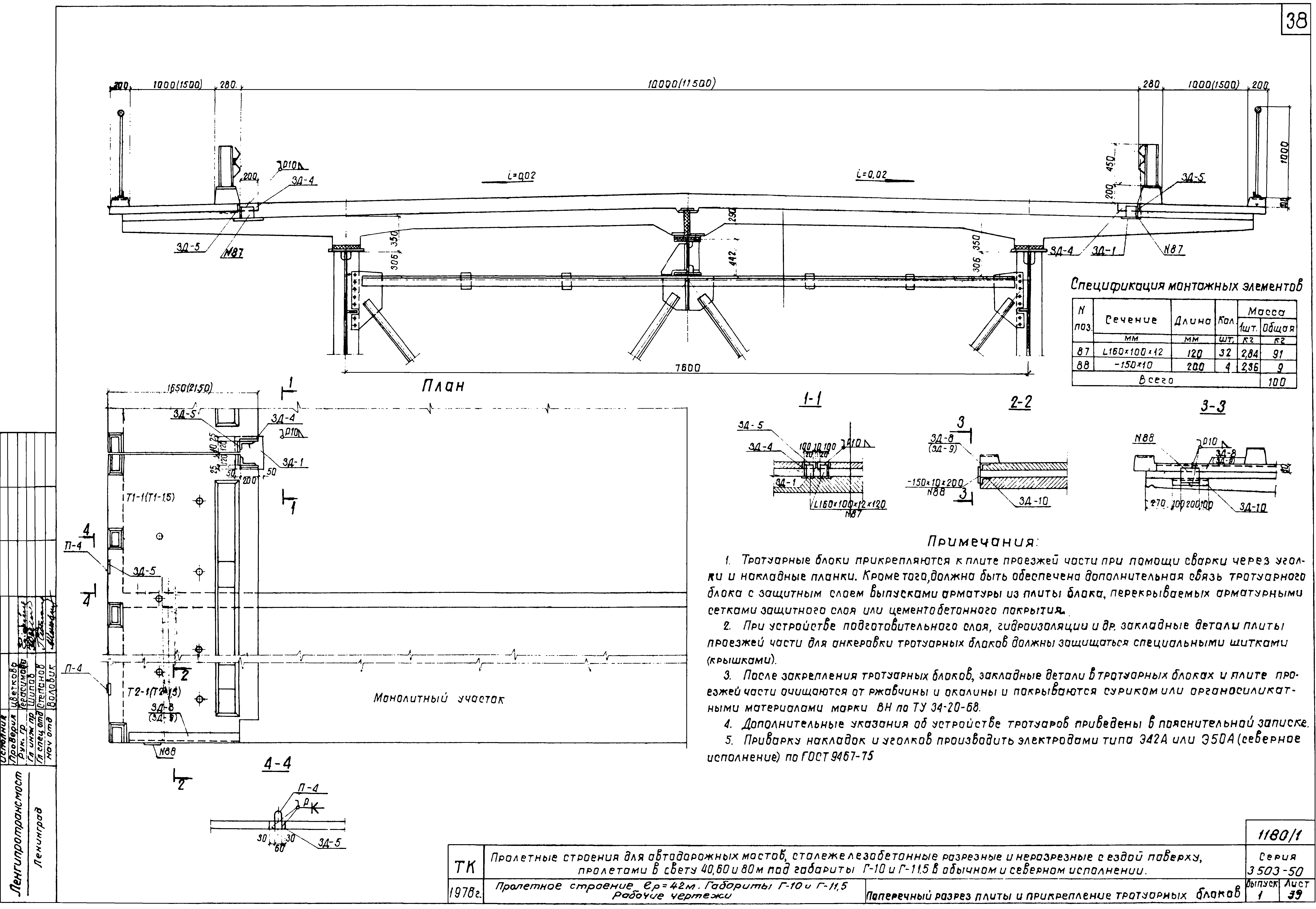
Выпуск 1. Пролетное строение Lp=42 м. Габариты Г-10 и Г-11,5. Рабочие чертежи| Обозначение: | Серия 3.503-50 | | Обозначение англ: | Series 3.503-50 | | Статус: | не действует | | Название рус.: | Выпуск 1. Пролетное строение Lp=42 м. Габариты Г-10 и Г-11,5. Рабочие чертежи | | Дата добавления в базу: | 01.09.2013 | | Дата актуализации: | 01.01.2021 | | Дата введения: | 01.11.1979 | | Дата окончания срока действия: | 01.09.1998 | | Область применения: | Пролетное строение Lp=42 м предназначено для установки на автодорожных мостах, расположенных на прямых (в плане) участках дорог III и II технических категорий, эксплуатируемых в районах с расчетной температурой воздуха до минус 40 градусов Цельсия (обычное исполнение) и ниже минус 40 градусов Цельсия (северные строительно-климатические зоны А и Б) при сейсмичности районов не выше 6 баллов | | Разработан: | Ленгипротрансмост
| | Утверждён: | 13.12.1978 Минтрансстрой СССР (USSR Mintransstroy Л-1549)
| | Чем заменён: | |
                                                 
|