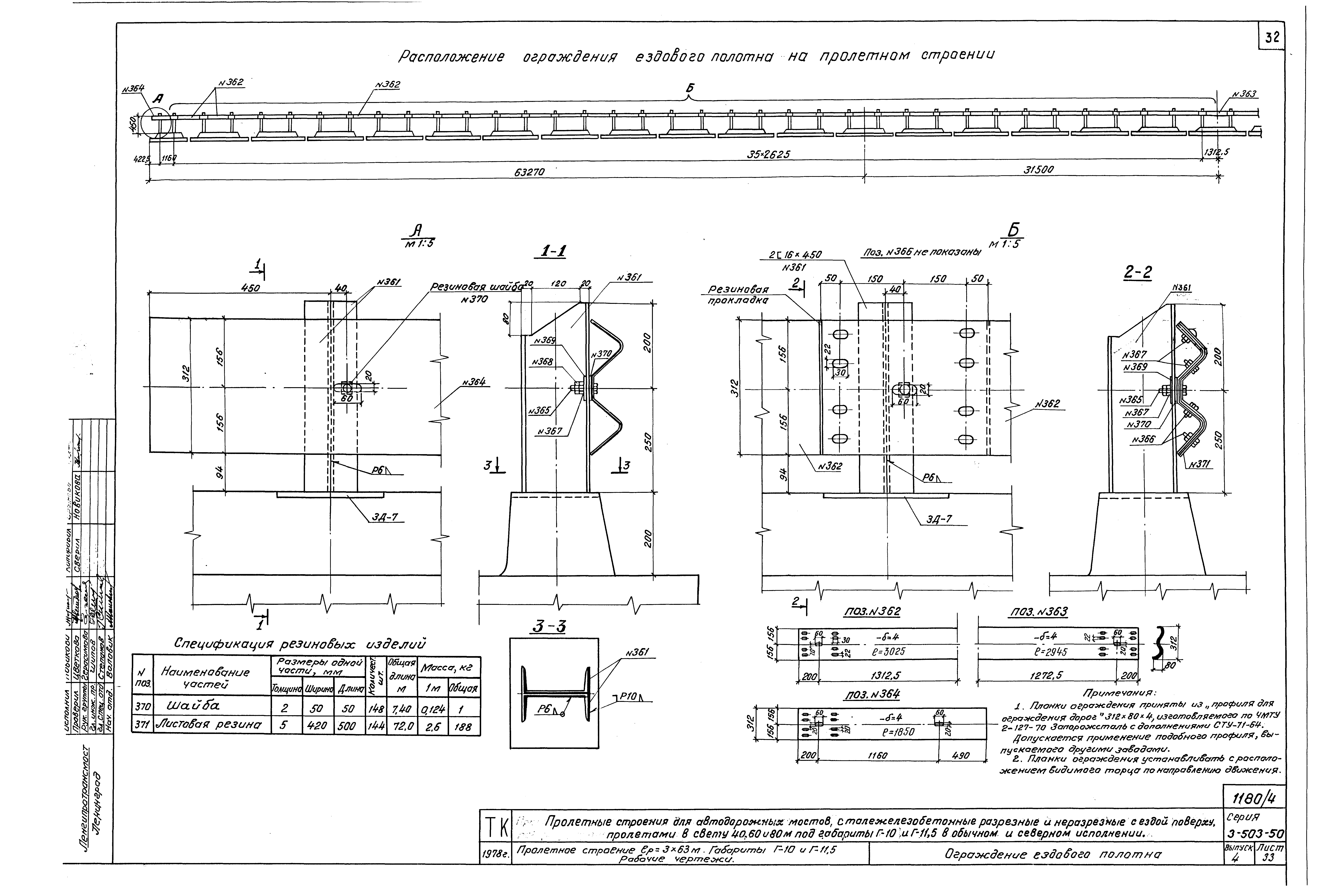
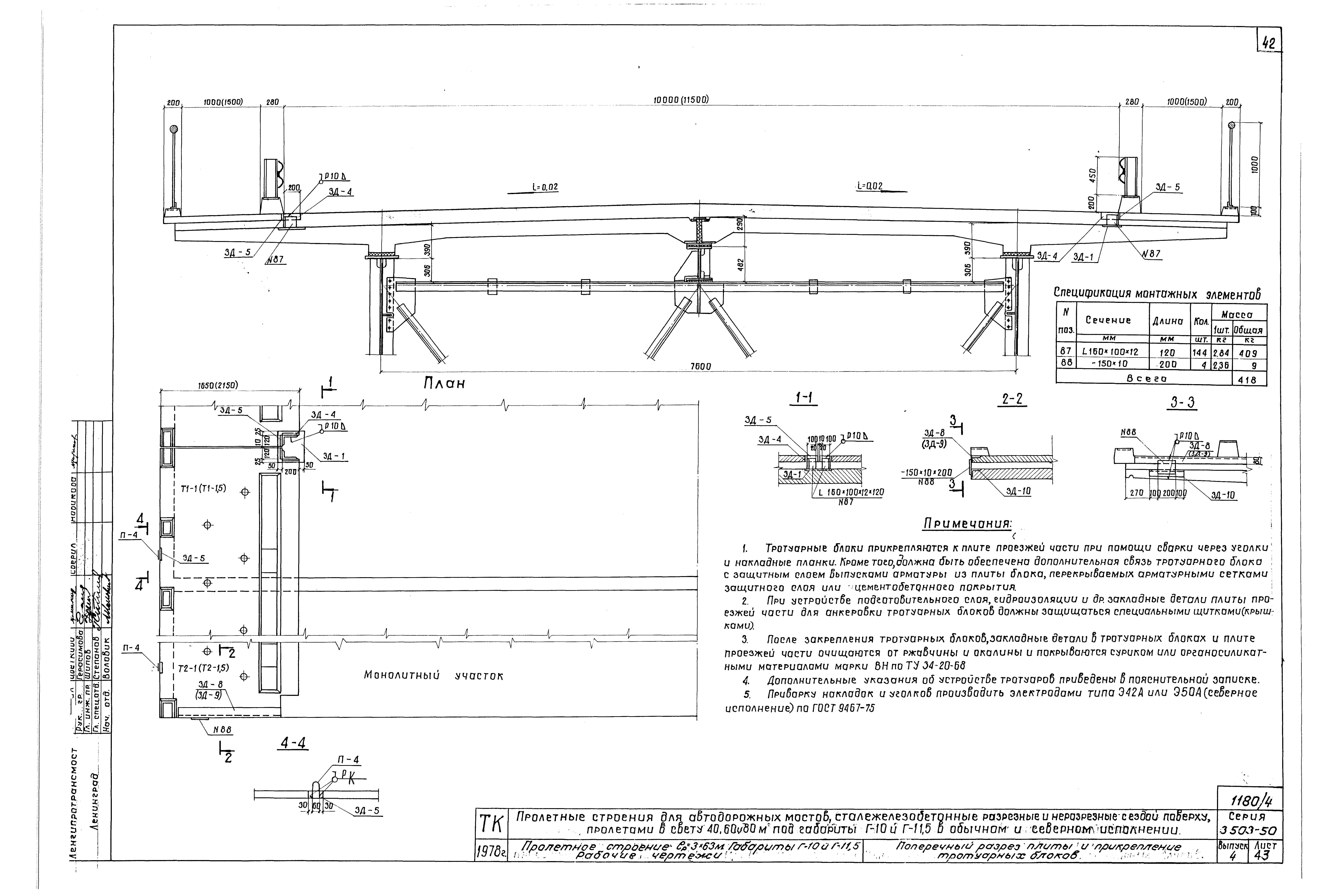
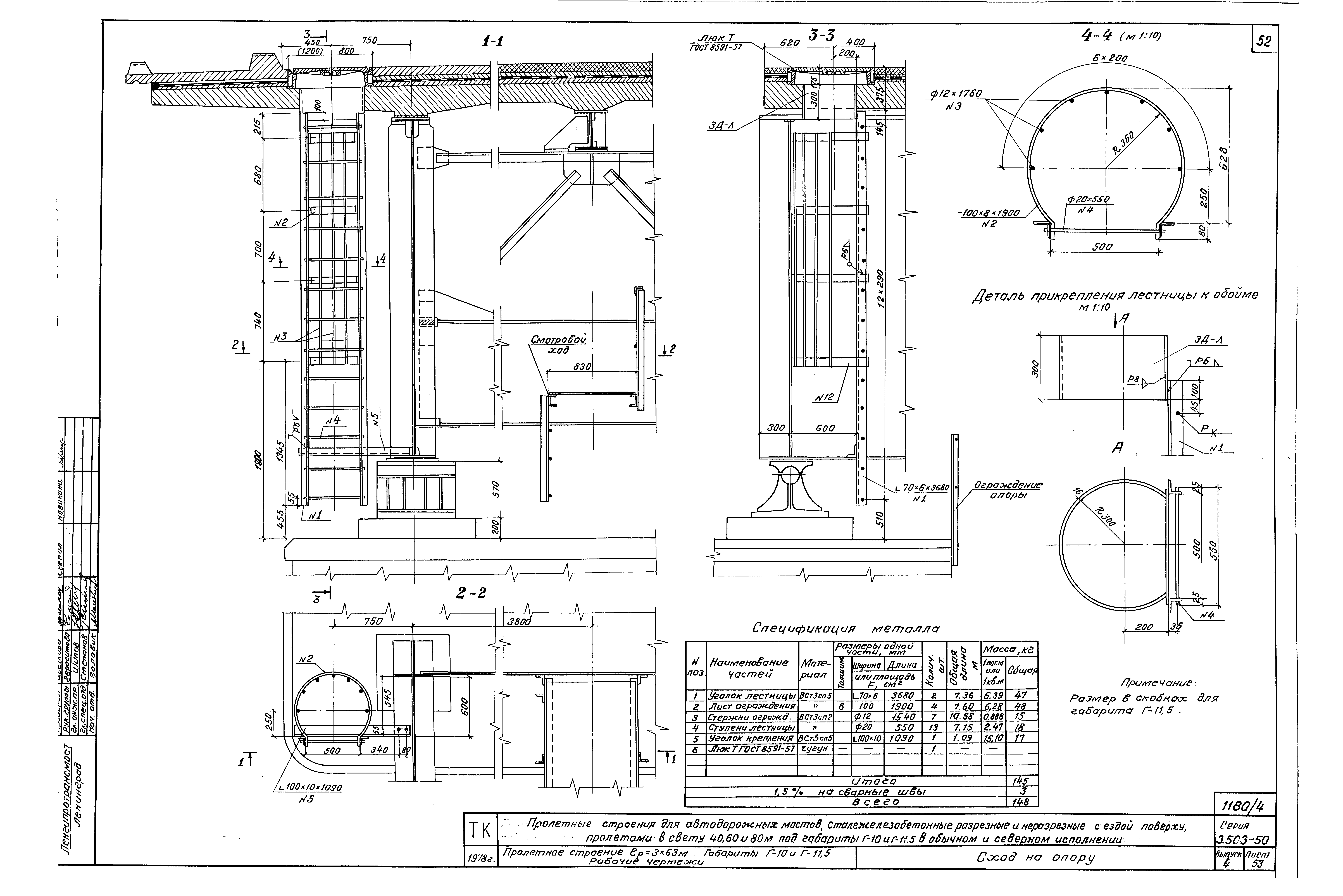
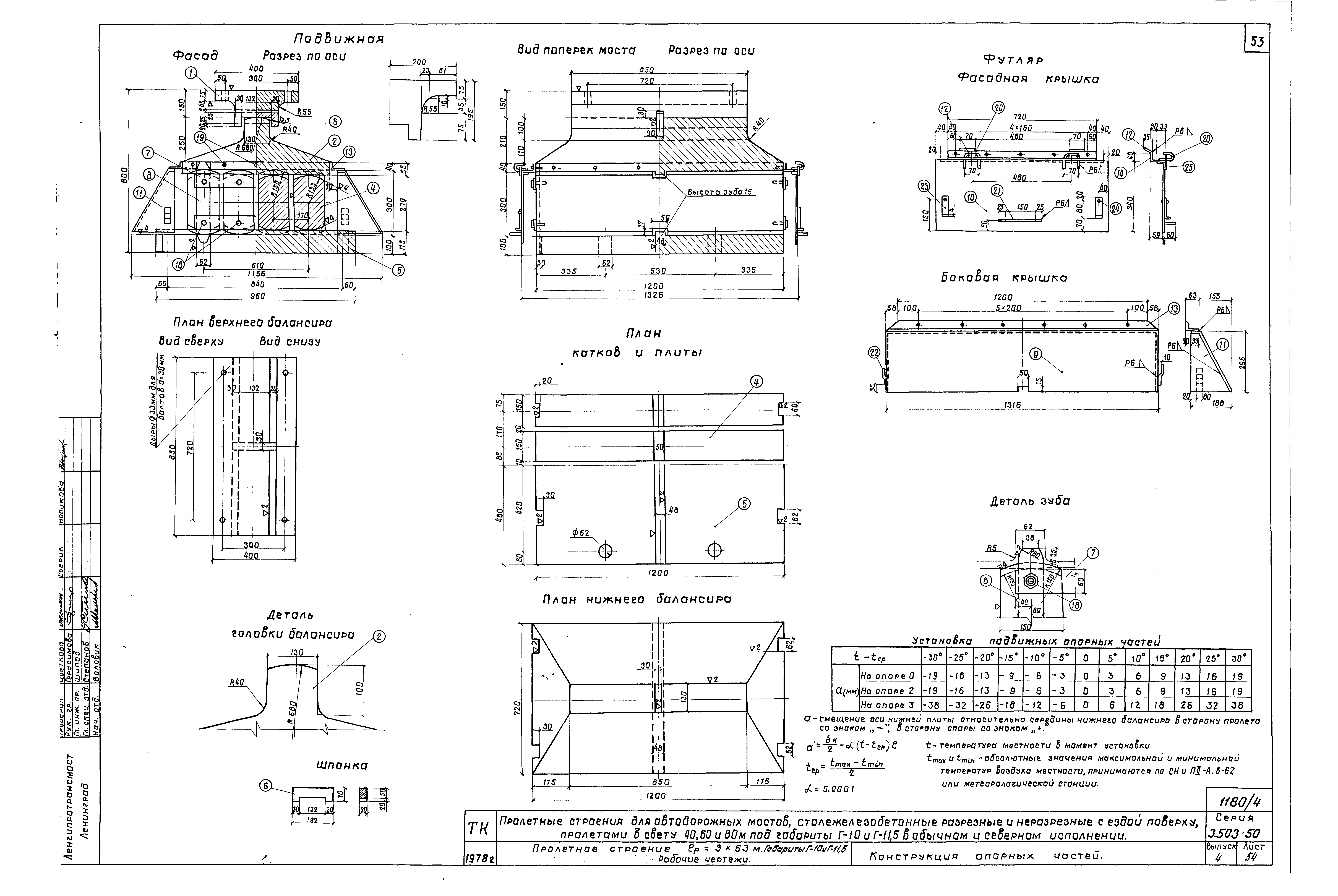
Скачать Серия 3.503-50 Выпуск 4. Пролетное строение Lp=3х63 м. Габариты Г-10 и Г-11,5. Рабочие чертежиДата актуализации: 01.01.2021 Серия 3.503-50
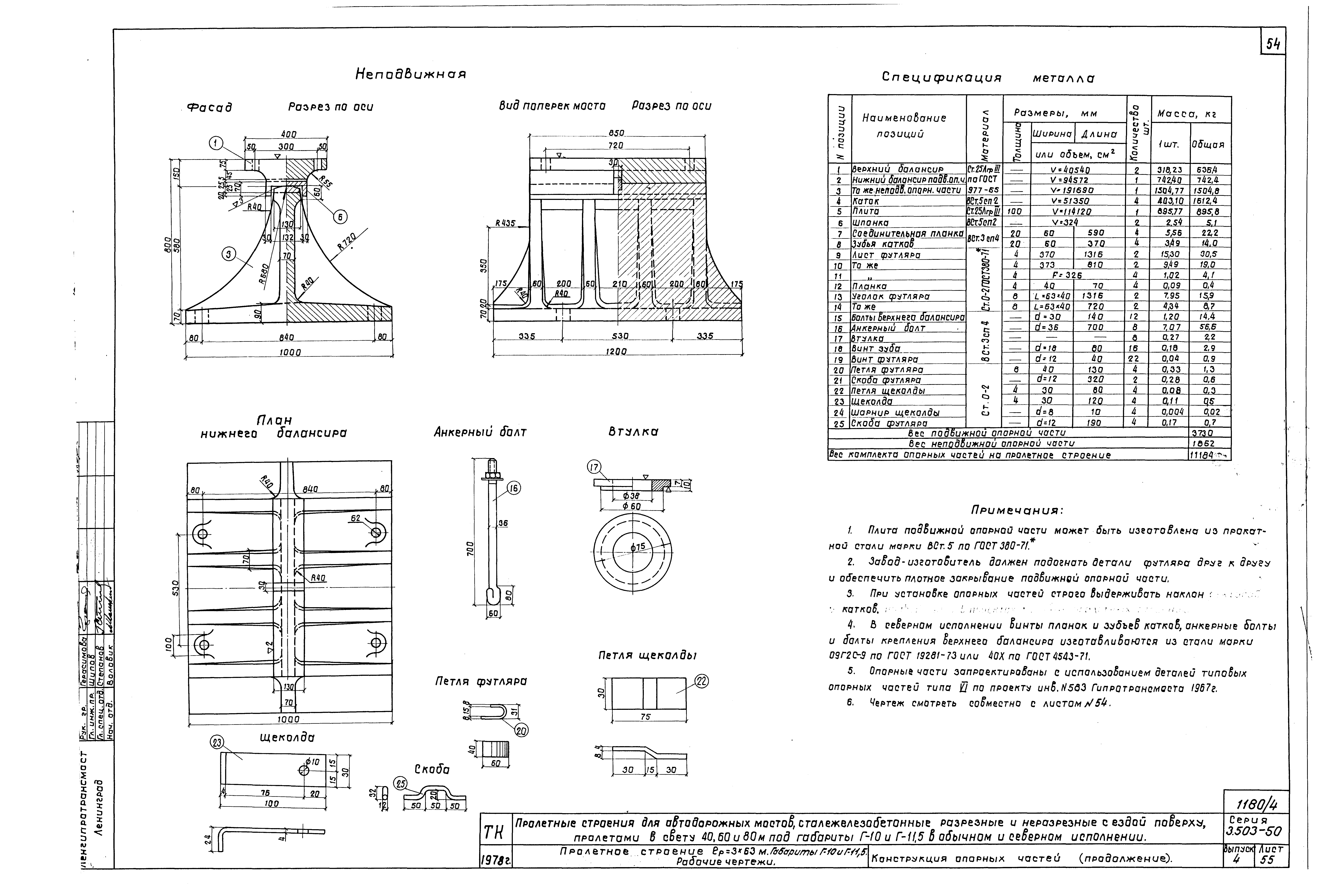
Выпуск 4. Пролетное строение Lp=3х63 м. Габариты Г-10 и Г-11,5. Рабочие чертежи| Обозначение: | Серия 3.503-50 | | Обозначение англ: | Series 3.503-50 | | Статус: | действует | | Название рус.: | Выпуск 4. Пролетное строение Lp=3х63 м. Габариты Г-10 и Г-11,5. Рабочие чертежи | | Дата добавления в базу: | 01.09.2013 | | Дата актуализации: | 01.01.2021 | | Дата введения: | 11.06.1979 | | Область применения: | Пролетное строение Lp=3х63 м предназначено для установки на автодорожных мостах, расположенных на прямых (в плане) участках дорог III и II технических категорий, эксплуатируемых в районах с расчетной температурой воздуха до минус 40 градусов Цельсия (обычное исполнение) и ниже минус 40 градусов Цельсия (северные строительно-климатические зоны А и Б) и при сейсмичности районов не выше 6 баллов | | Разработан: | Ленгипротрансмост
| | Утверждён: | 27.04.1979 Минтрансстрой СССР (USSR Mintransstroy Л-439)
|
                                                       
|