Скачать Серия 3.503-50 Выпуск 2. Пролетное строение Lp=3х42 м. Габариты Г-10 и Г-11,5. Рабочие чертежиДата актуализации: 01.01.2021
|
| Обозначение: | Серия 3.503-50 |
| Обозначение англ: | Series 3.503-50 |
| Статус: | не действует |
| Название рус.: | Выпуск 2. Пролетное строение Lp=3х42 м. Габариты Г-10 и Г-11,5. Рабочие чертежи |
| Дата добавления в базу: | 01.09.2013 |
| Дата актуализации: | 01.01.2021 |
| Дата введения: | 01.07.1980 |
| Дата окончания срока действия: | 01.09.1998 |
| Область применения: | Пролетное строение Lp=3х42 м предназначено для установки на автодорожных мостах, расположенных на прямых (в плане) участках дорог III и II технических категорий, эксплуатируемых в районах с расчетной температурой воздуха до минус 40 градусов Цельсия (обычное исполнение) и ниже минус 40 градусов Цельсия (северное исполнение "А" и "Б") и при сейсмичности районов не выше 6 баллов |
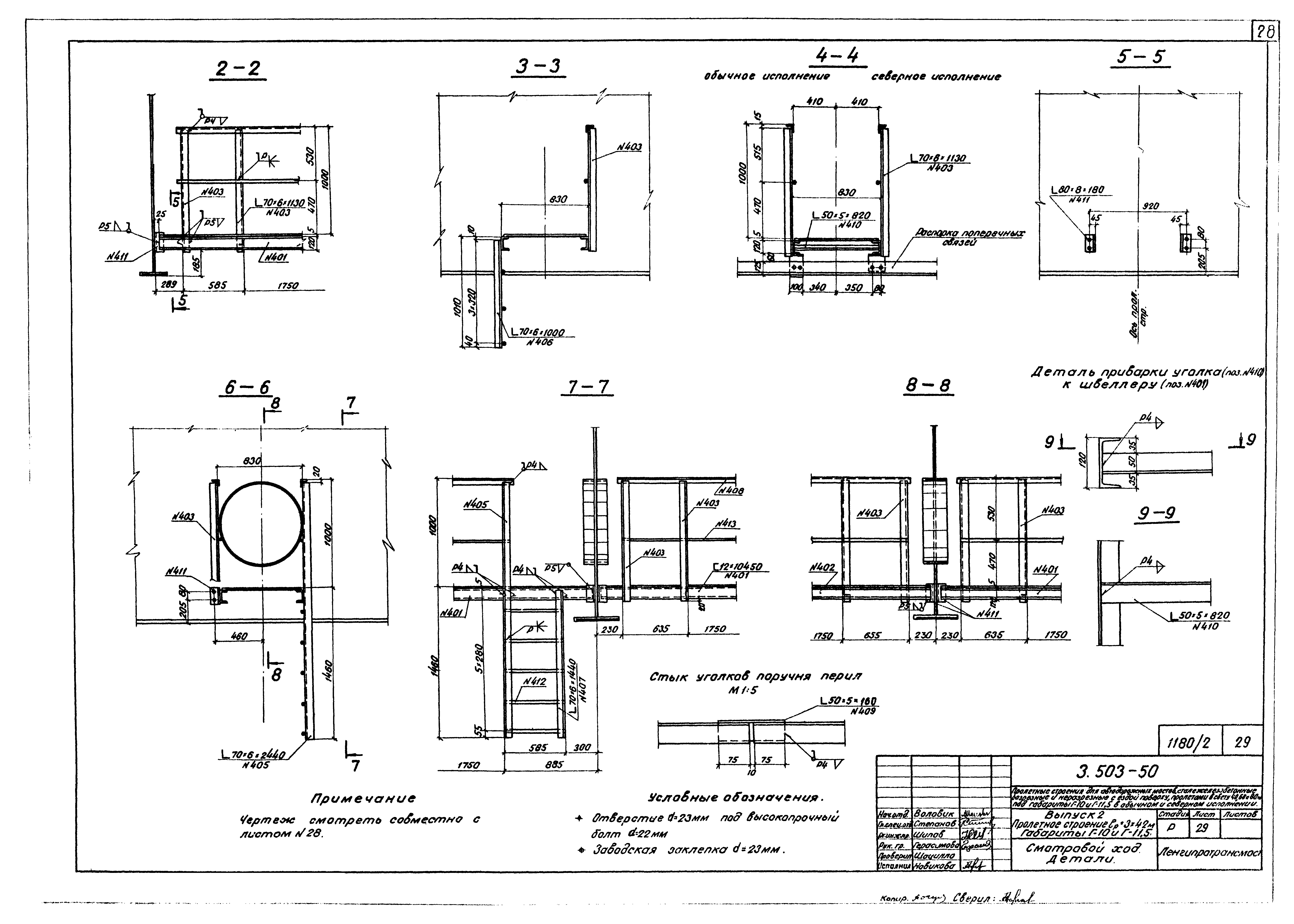
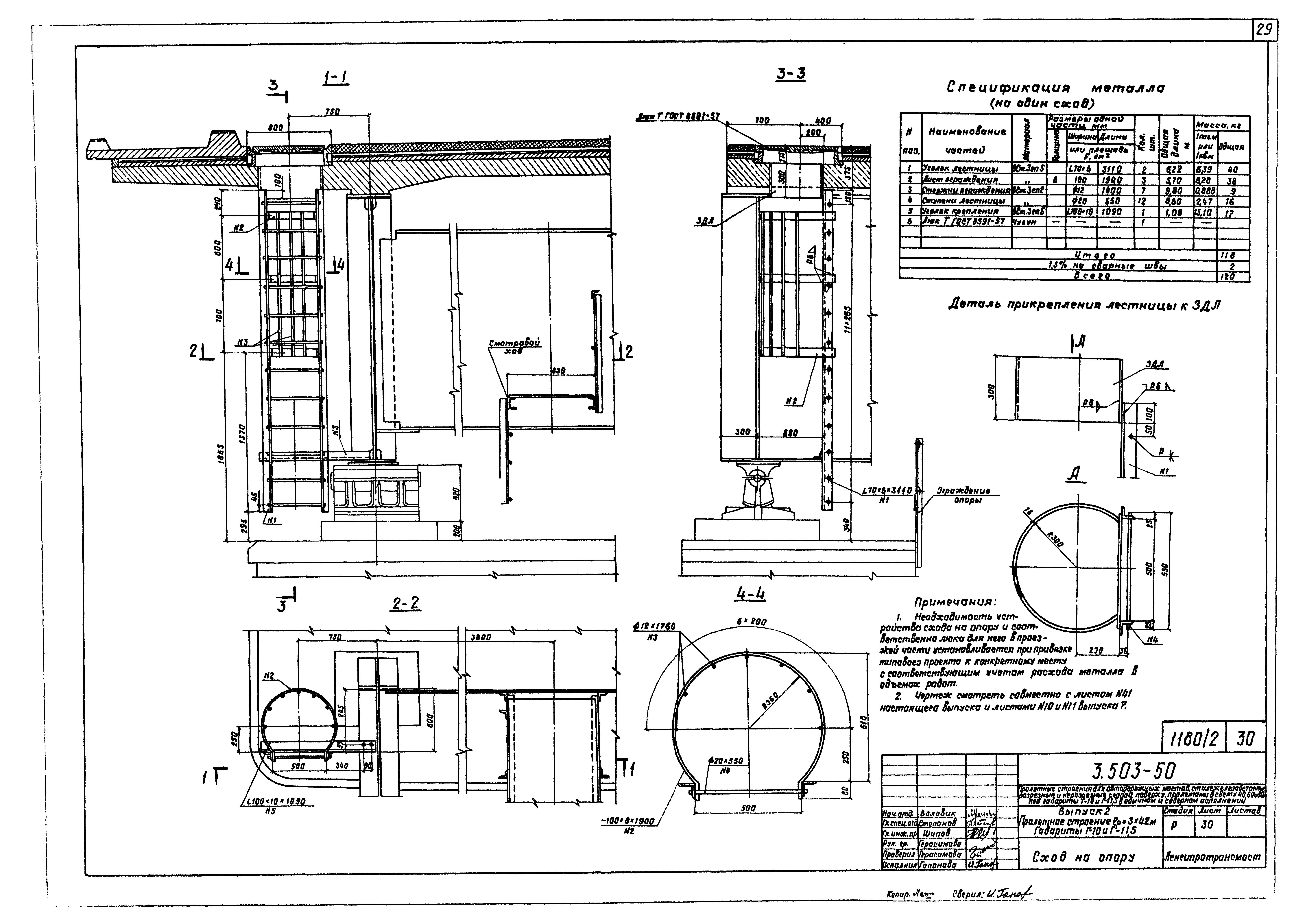
| Оглавление: | Пояснительная записка Пояснительная записка (продолжение) Паспорт пролетного строения. Блоки длиной 10,5 и 21,0 м (обычное исполнение) Паспорт пролетного строения. Блоки длиной 10,5 м (северное исполнение) Главные балки. Блоки длиной 10,5 м Главные балки. Блоки длиной 10,5 м (продолжение) Главные балки. Блоки длиной 10,5 м (окончание) Главные балки. Блоки длиной 21,0 м (обычное исполнение) Главные балки. Блоки длиной 21,0 м (обычное исполнение) (продолжение) Стыки главных балок Прогон Прогон (продолжение) Упоры главных балок и прогона (обычное исполнение) Упоры главных балок и прогона (северное исполнение) Домкратная балка на крайней опоре Домкратная балка на средней опоре Поперечные связи (обычное исполнение) Поперечные связи (северное исполнение) Продольные связи (обычное исполнение) Продольные связи (обычное исполнение) (продолжение) Продольные связи (северное исполнение) Продольные связи (северное исполнение) (продолжение) Продольные связи. Сварной вариант (северное исполнение) Указания по изготовлению конструкций и обработке сварных швов Смотровой ход Смотровой ход. Детали Сход на опору Перила Ограждение ездового полотна Строительный подъем Спецификация металла. Блоки длиной 10,5 м (обычное исполнение) Спецификация металла. Блоки длиной 21,0 м (обычное исполнение) Спецификация металла. Блоки длиной 10,5 и 21,0 м (обычное исполнение) (продолжение) Спецификация металла (северное исполнение) Спецификация металла (северное исполнение) (продолжение) Монтажная схема блоков плиты проезда и тротуаров. Стыки блоков Монтажная схема блоков плиты проезда и тротуаров. Стыки блоков (продолжение) Мостовое полотно Поперечный разрез плиты и прикрепление тротуарных блоков Основные положения расчета Г-10 Основные положения расчета Г-15 Геометрические характеристики сечений и напряжения Расчет стыков главных балок Расчет упоров (обычное исполнение) Расчет упоров (северное исполнение) Расчет связей и домкратных балок Схемы продольной надвижки Последовательность загружения пролетного строения и регулирование усилий Схема монтажа плит проезжей части |
| Разработан: | Ленгипротрансмост |
| Утверждён: | 13.03.1980 Минтрансстрой СССР (USSR Mintransstroy Б-354) |
| Чем заменён: |


















































