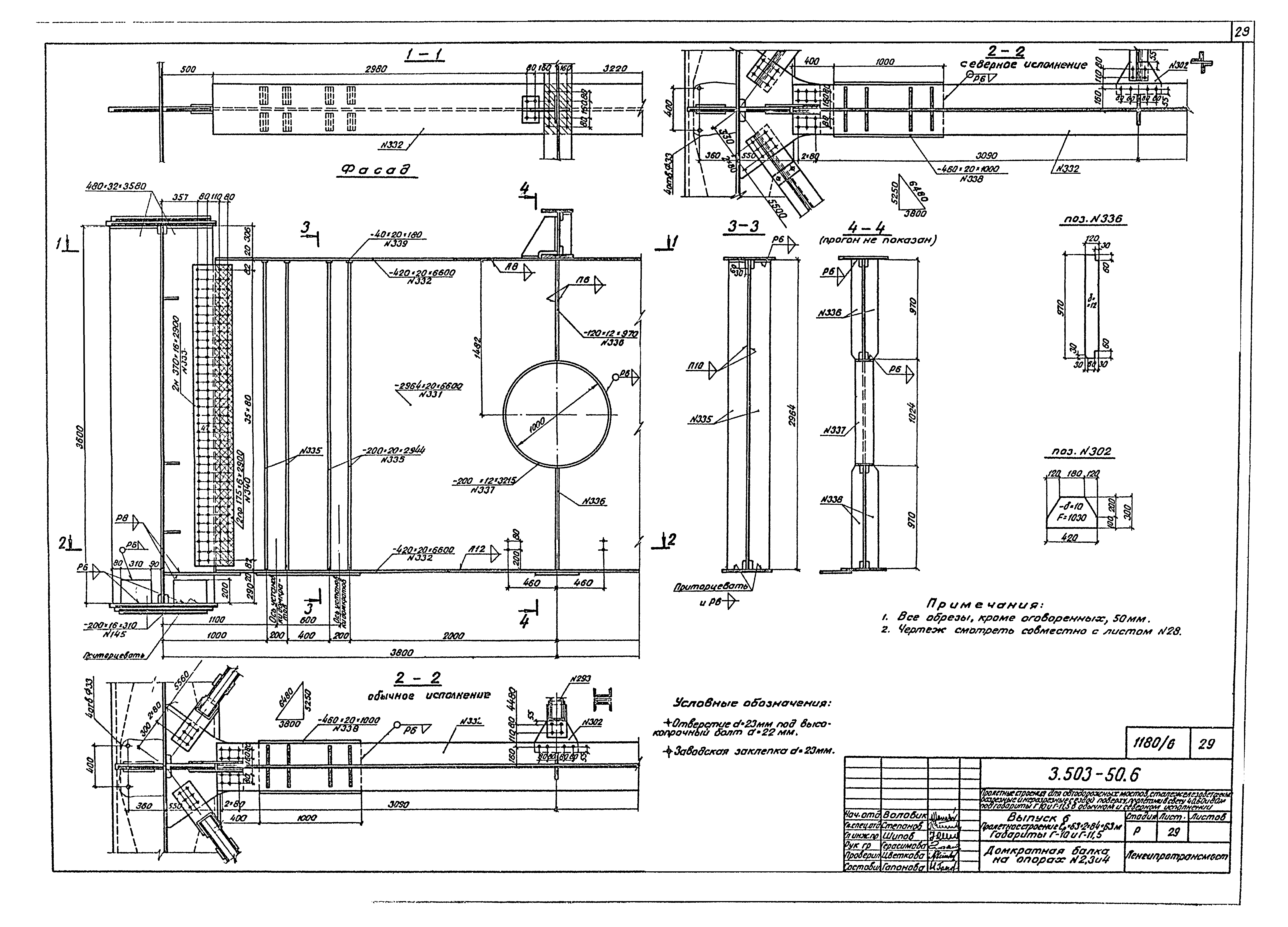
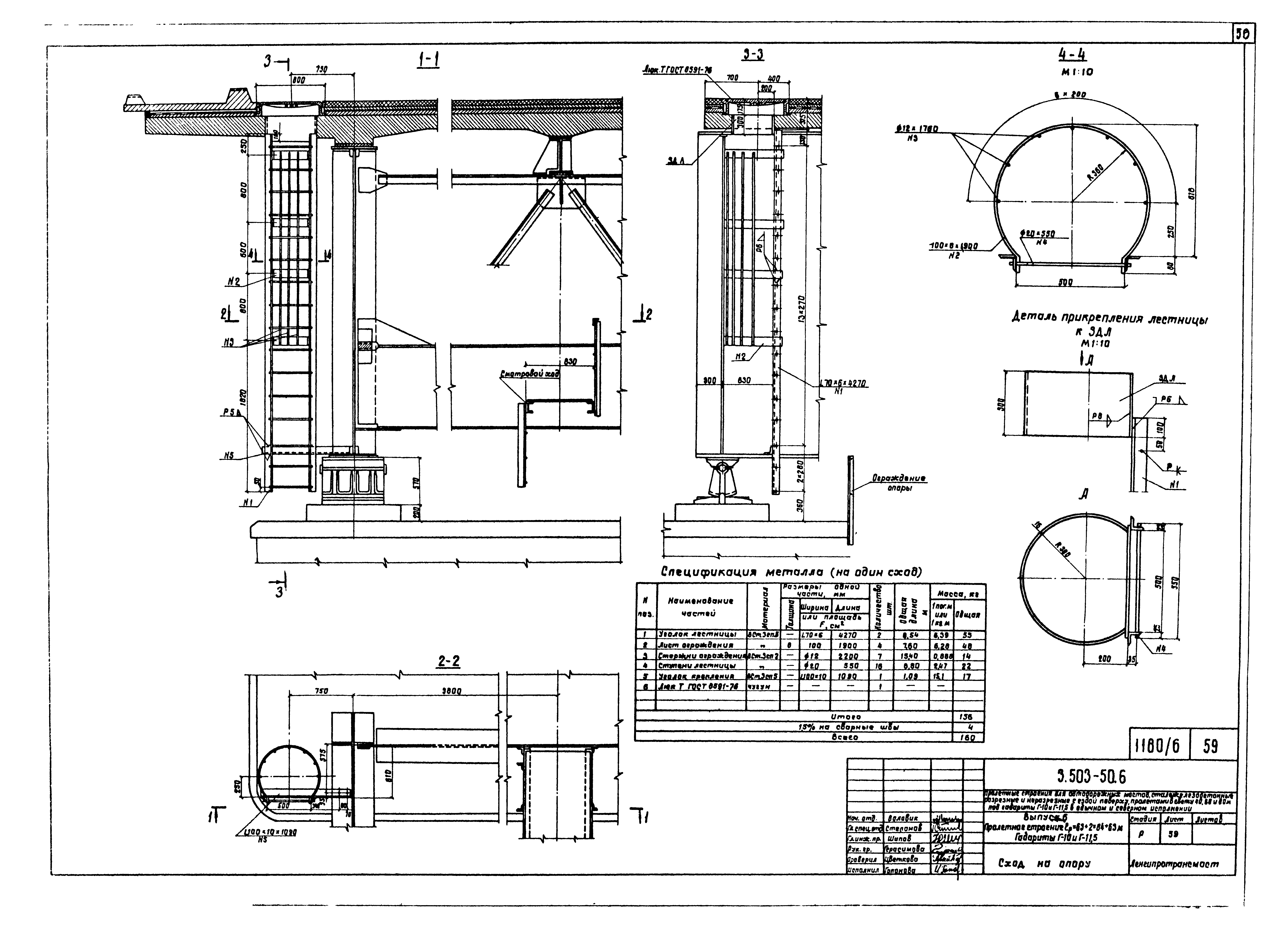
Скачать Серия 3.503-50 Выпуск 6. Пролетное строение Lp=63+2х84+63 м. Габариты Г-10 и Г-11,5. Рабочие чертежиДата актуализации: 01.01.2021 Серия 3.503-50
Выпуск 6. Пролетное строение Lp=63+2х84+63 м. Габариты Г-10 и Г-11,5. Рабочие чертежи| Обозначение: | Серия 3.503-50 | | Обозначение англ: | Series 3.503-50 | | Статус: | действует | | Название рус.: | Выпуск 6. Пролетное строение Lp=63+2х84+63 м. Габариты Г-10 и Г-11,5. Рабочие чертежи | | Дата добавления в базу: | 01.09.2013 | | Дата актуализации: | 01.01.2021 | | Дата введения: | 01.07.1981 | | Область применения: | Пролетное строение Lp=63+2х84+63 м предназначено для установки на автодорожных мостах, расположенных на прямых (в плане) участках дорог III (Г-10) и II (Г-11,5) технических категорий во всех дорожных и строительно-климатических районах при сейсмичности районов не выше 6 баллов | | Разработан: | Ленгипротрансмост
| | Утверждён: | 31.12.1980 Минтрансстрой СССР (USSR Mintransstroy А-1843)
|
                                                           
|