Скачать Серия 3.503-50 Выпуск 9. Монтаж пролетных строений Lp=42 м и Lp=nх42 м. Габариты Г-10 и Г-11,5. Рабочие чертежиДата актуализации: 01.01.2021 Серия 3.503-50
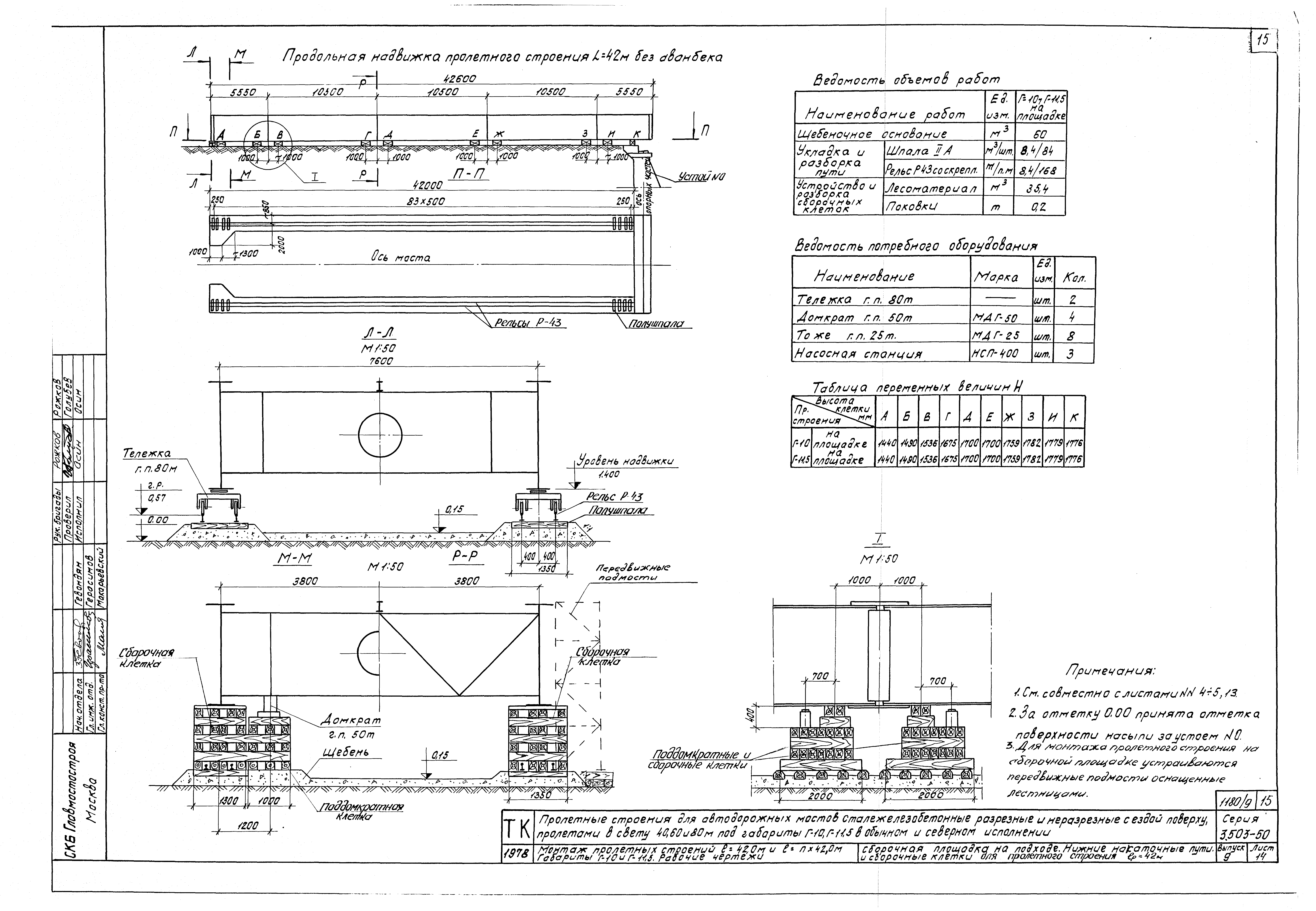
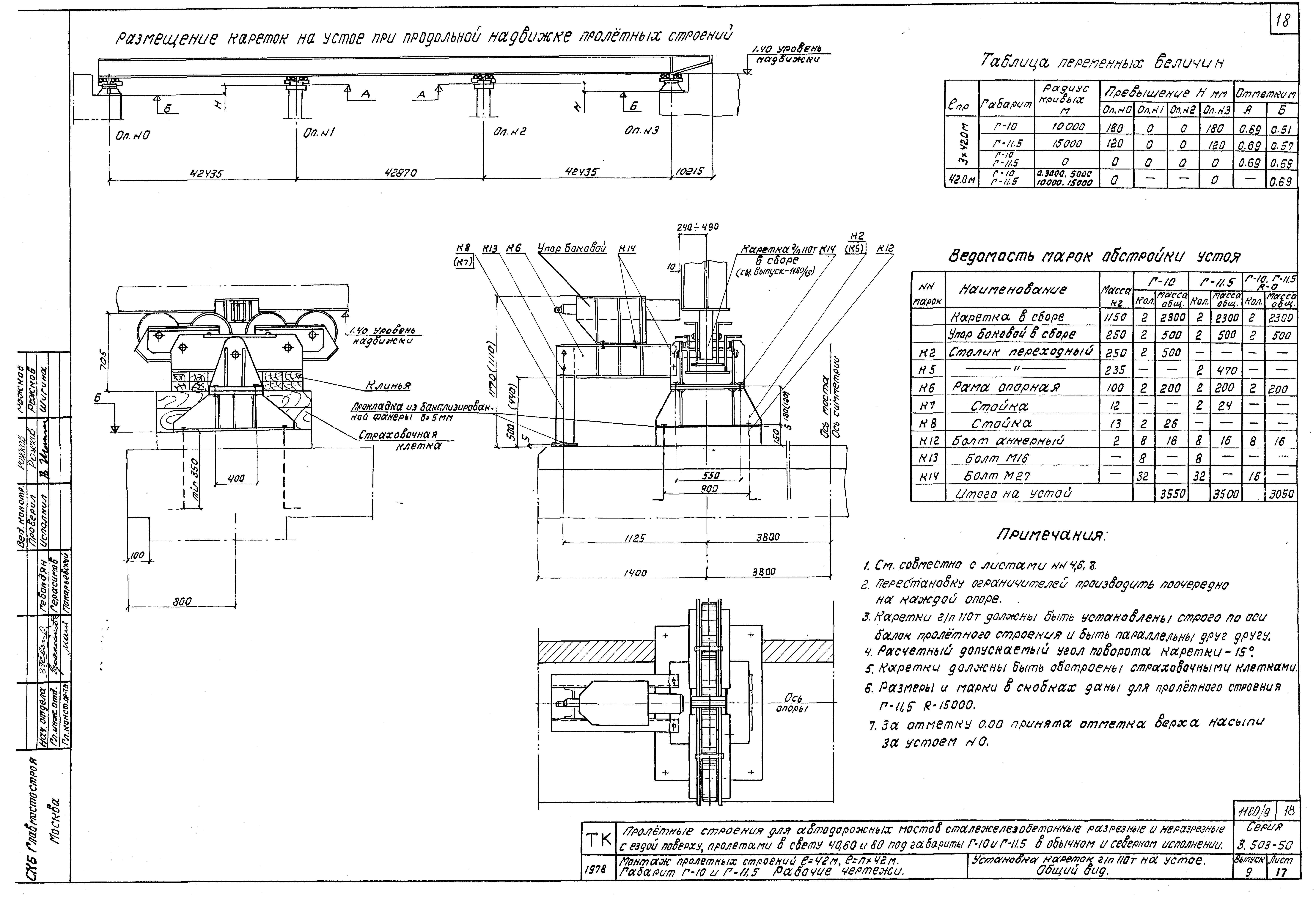
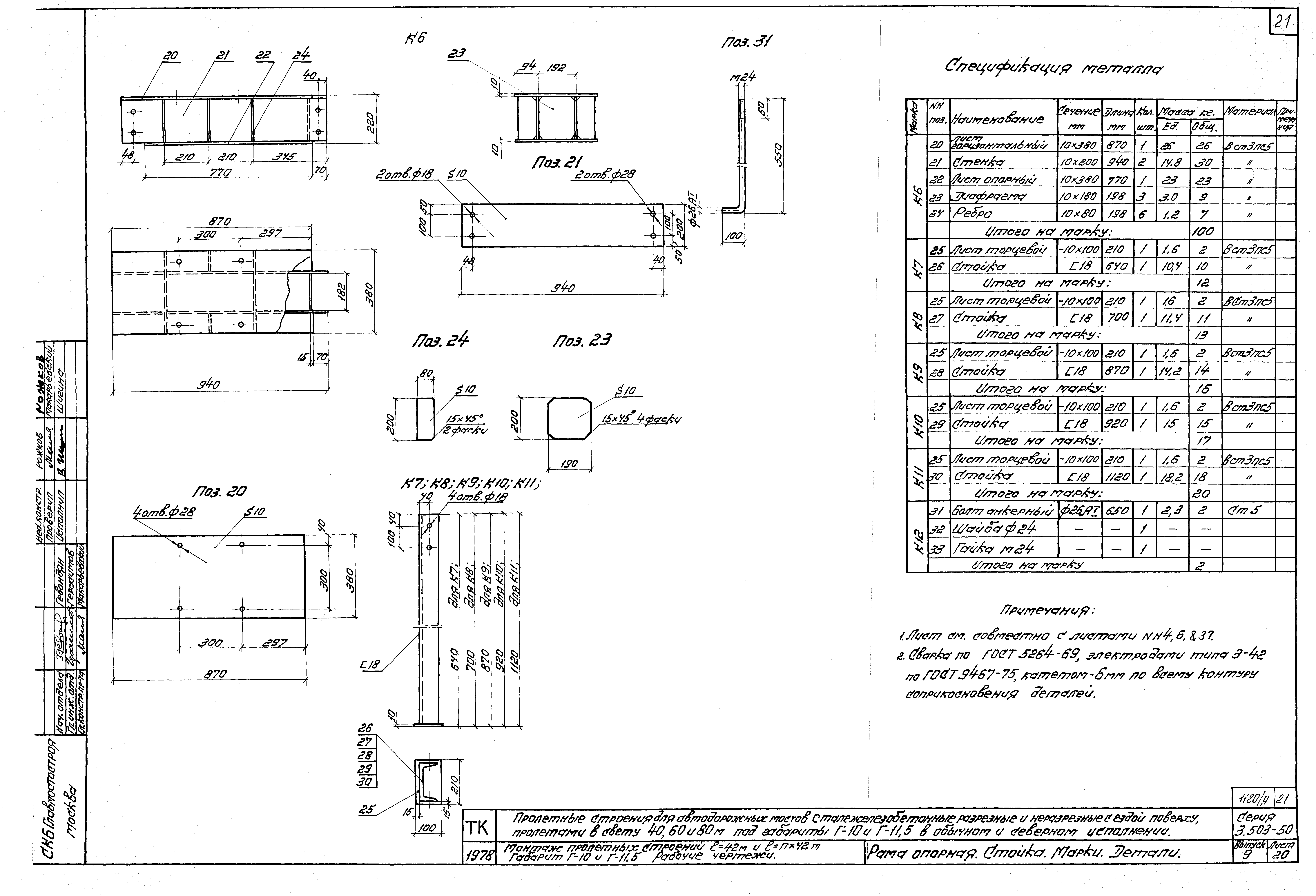
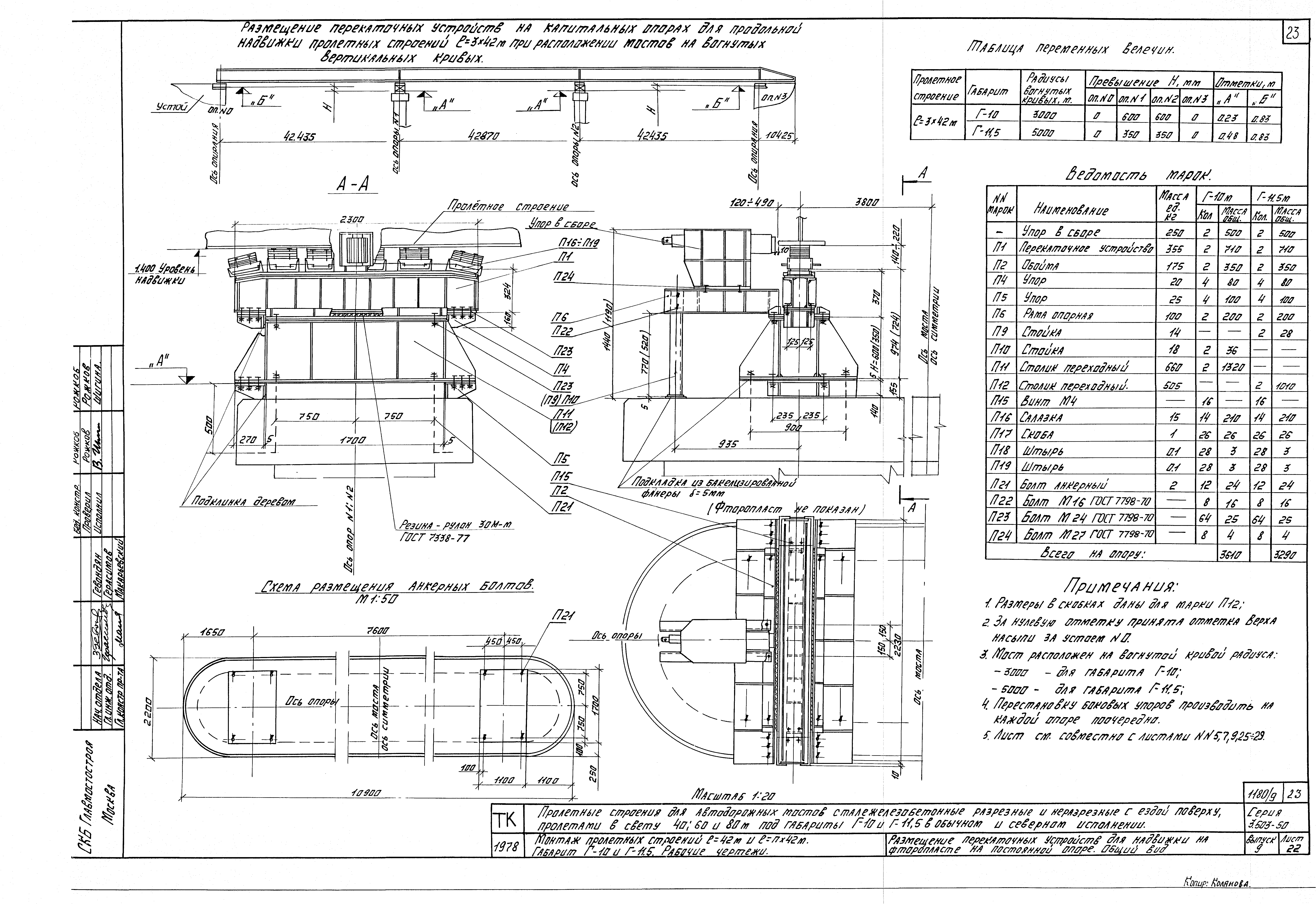
Выпуск 9. Монтаж пролетных строений Lp=42 м и Lp=nх42 м. Габариты Г-10 и Г-11,5. Рабочие чертежи| Обозначение: | Серия 3.503-50 | | Обозначение англ: | Series 3.503-50 | | Статус: | действует | | Название рус.: | Выпуск 9. Монтаж пролетных строений Lp=42 м и Lp=nх42 м. Габариты Г-10 и Г-11,5. Рабочие чертежи | | Дата добавления в базу: | 01.09.2013 | | Дата актуализации: | 01.01.2021 | | Дата введения: | 01.11.1979 | | Область применения: | Пролетные строения под габариты Г-10 и Г-11,5 предназначены для установки на автодорожных мостах, расположенных на прямых участках дорог III и II технической категории в плане и профиле, а также на кривых наименьших радиусов: выпуклых 10000 м и 15000 м; выгнутых 3000 м и 5000 м соответственно, эксплуатируемых в районах с расчетной температурой воздуха до миинус 40 градусов Цельсия (обычное исполнение) и ниже минус 40 градусов Цельсия (северные климатические зоны IА и IБ - северное исполнение) | | Разработан: | СКБ Главмостостроя
| | Утверждён: | 13.12.1978 Минтрансстрой (Mintransstroy Л-1549)
|
                                                 
|