Скачать Серия 3.503-50 Выпуск 11. Монтаж пролетных строений Lp=42+63+42 м. Габариты Г-10 и Г-11.5. Рабочие чертежиДата актуализации: 01.01.2021
|
| Обозначение: | Серия 3.503-50 |
| Обозначение англ: | Series 3.503-50 |
| Статус: | действует |
| Название рус.: | Выпуск 11. Монтаж пролетных строений Lp=42+63+42 м. Габариты Г-10 и Г-11.5. Рабочие чертежи |
| Дата добавления в базу: | 01.09.2013 |
| Дата актуализации: | 01.01.2021 |
| Дата введения: | 01.11.1979 |
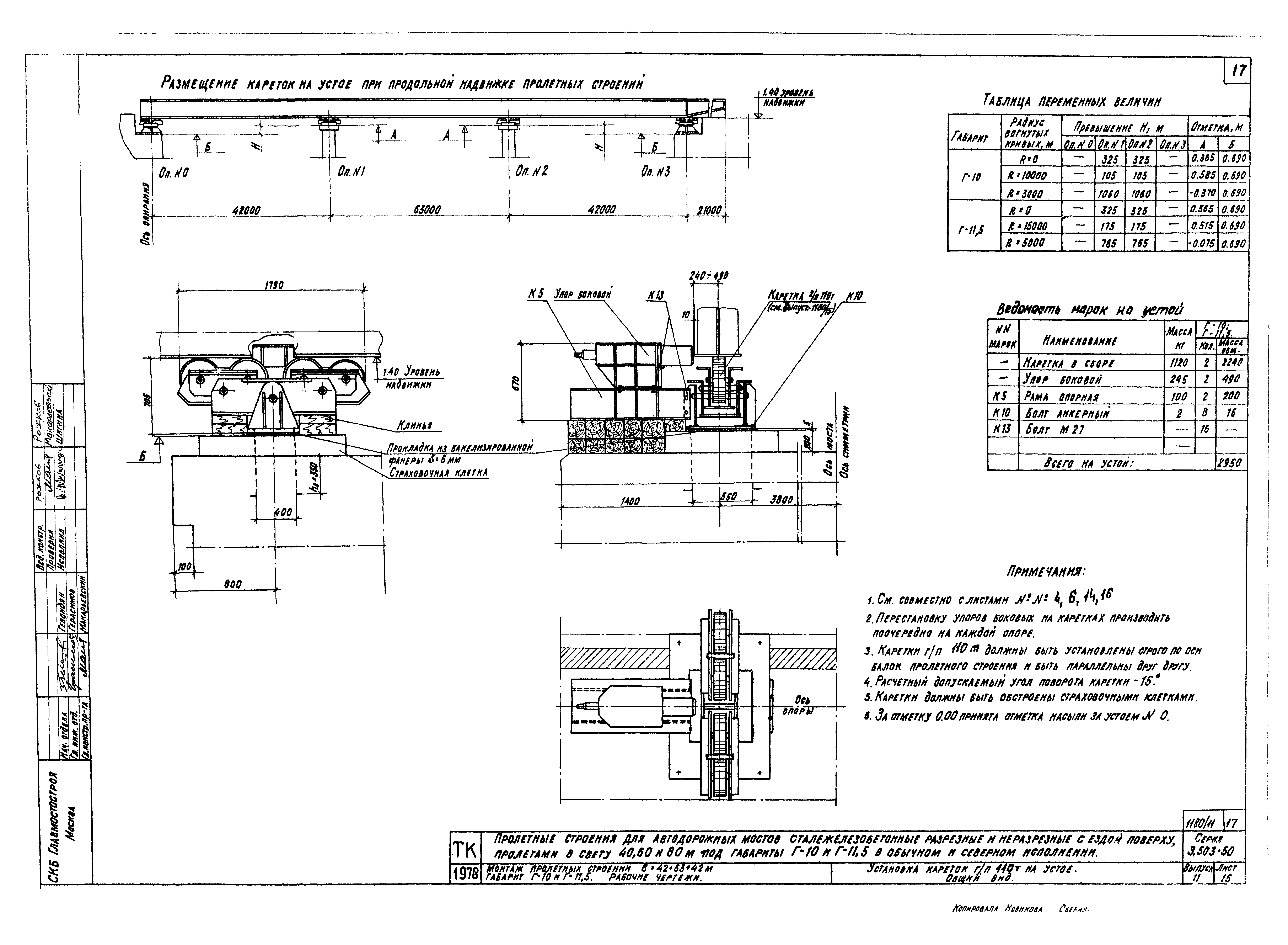
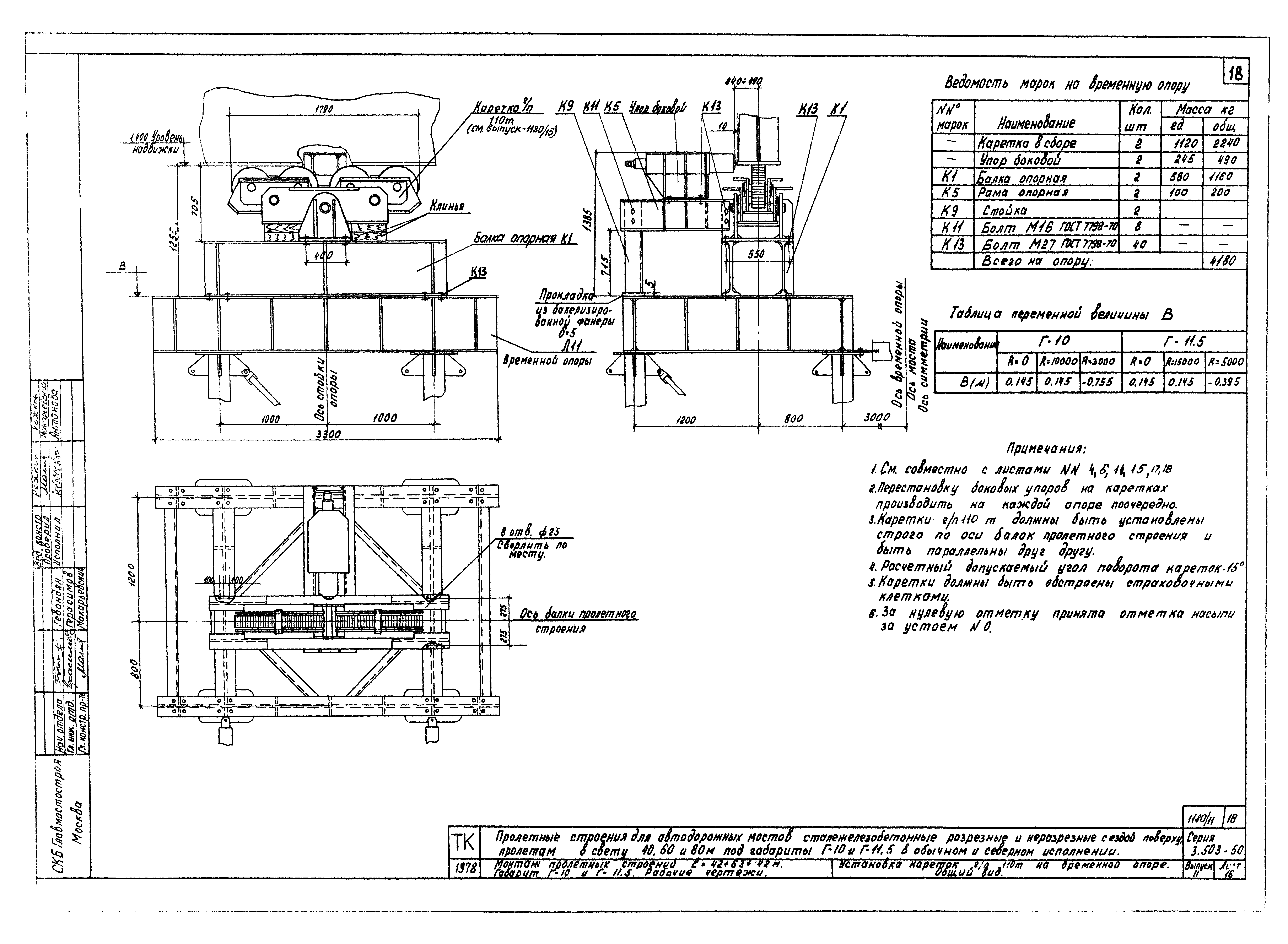
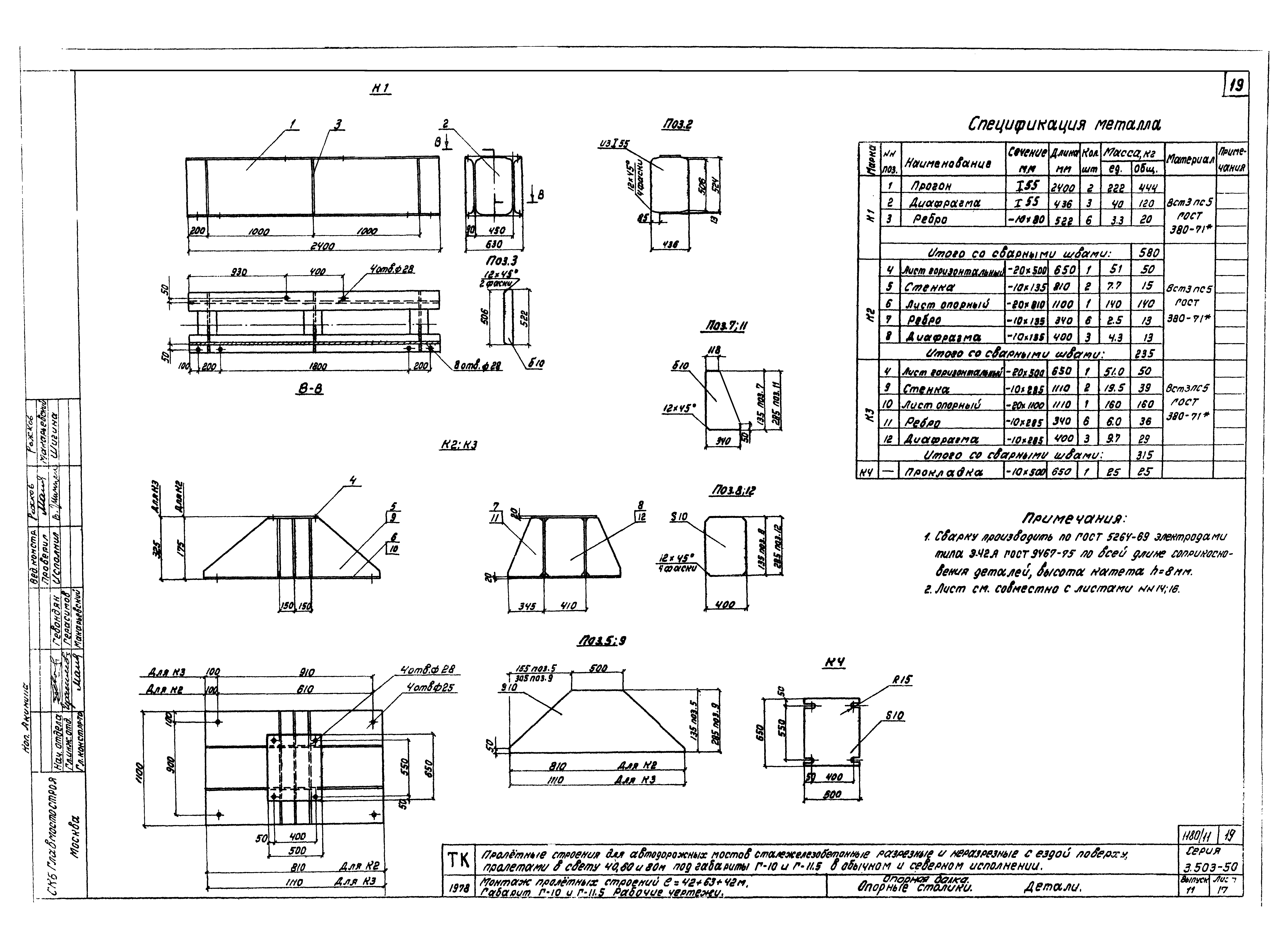
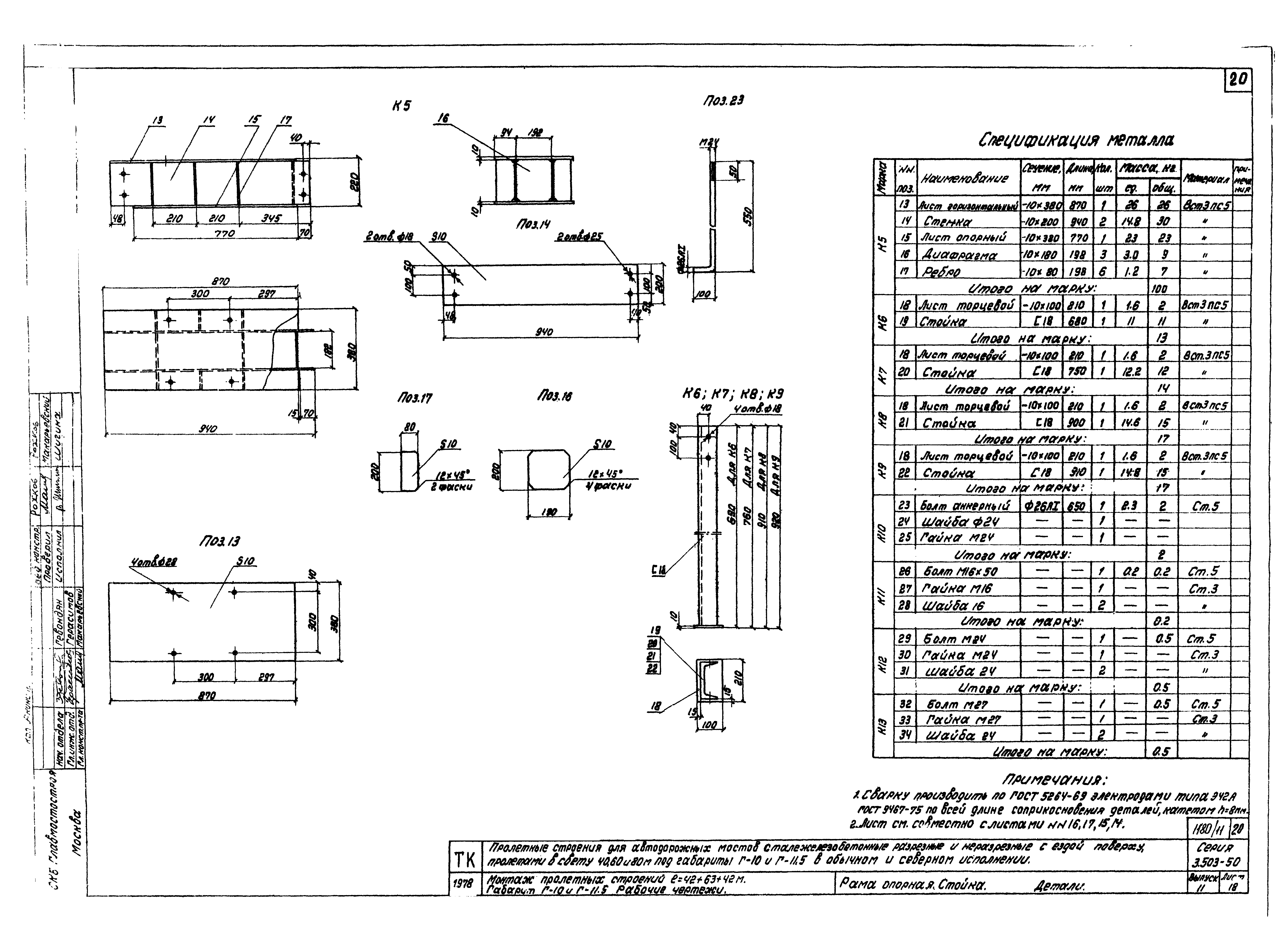
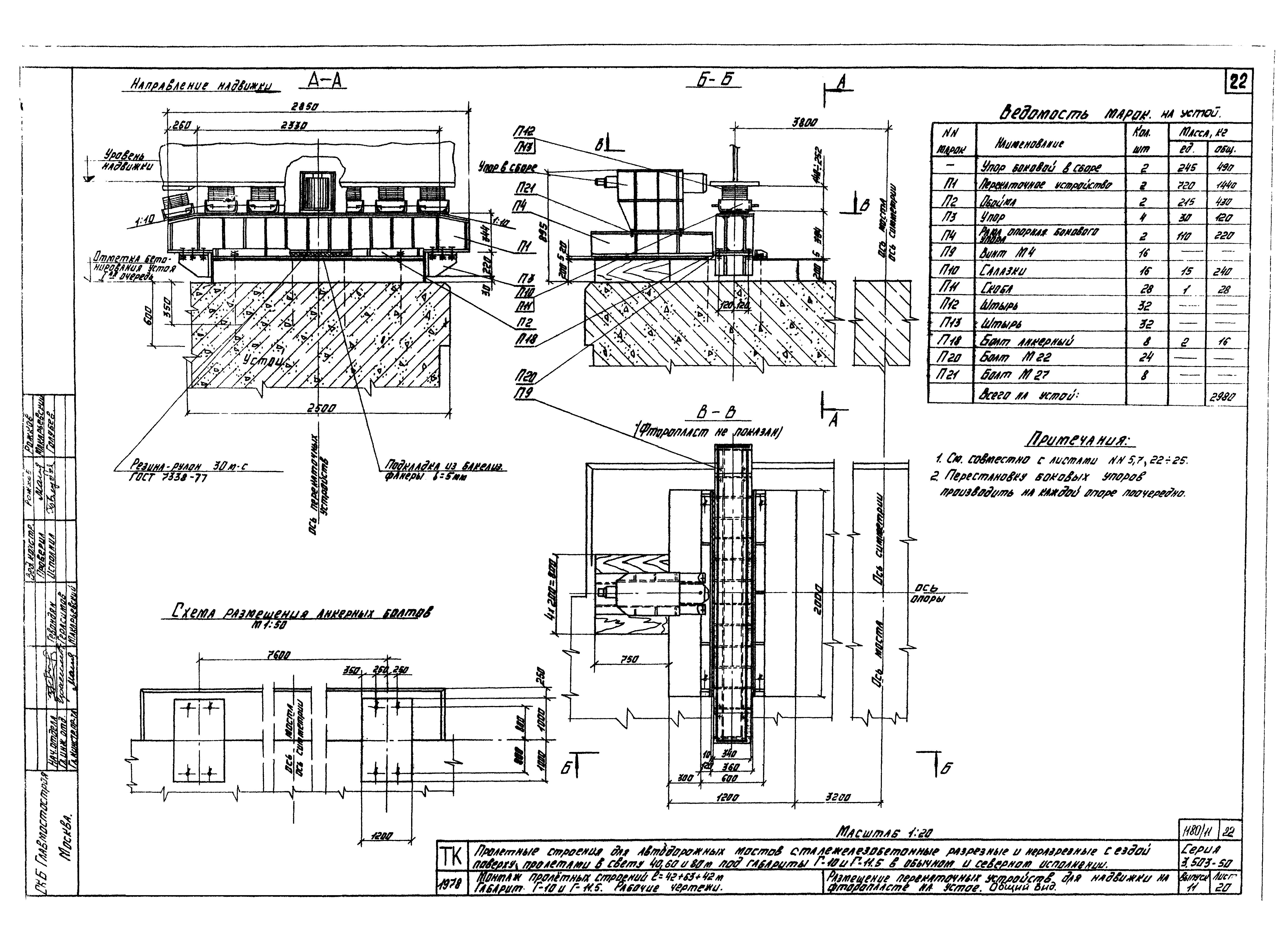
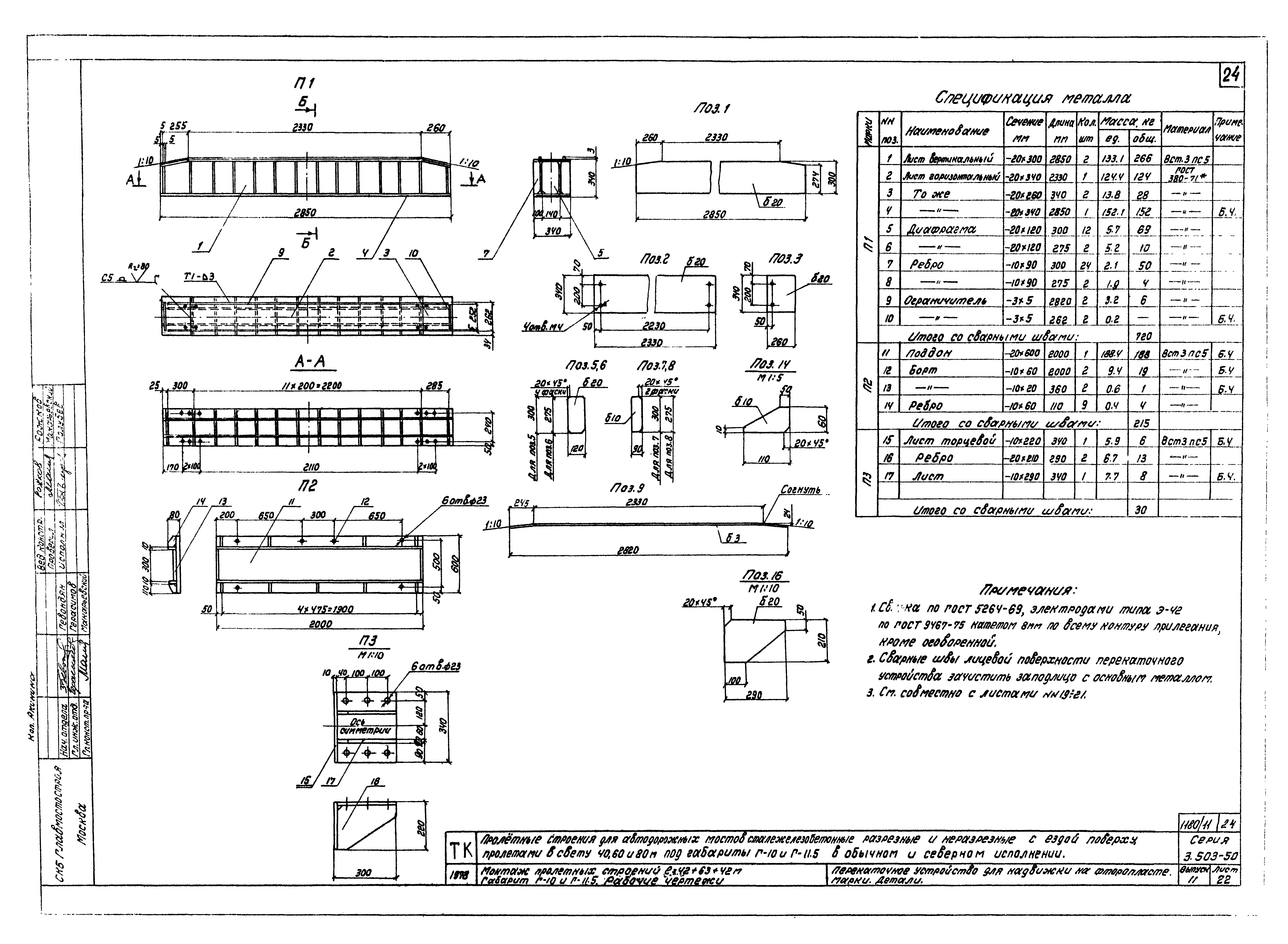
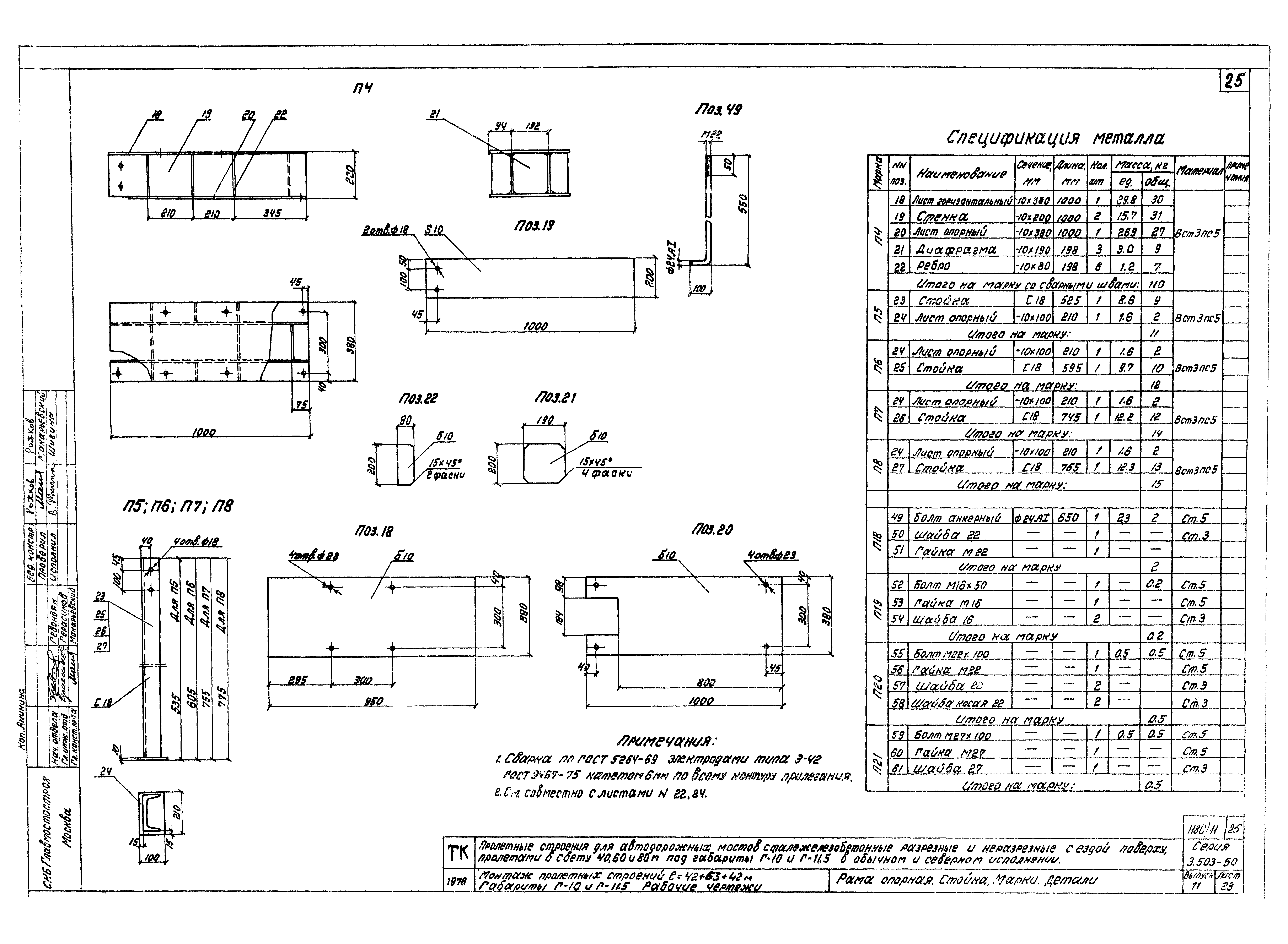
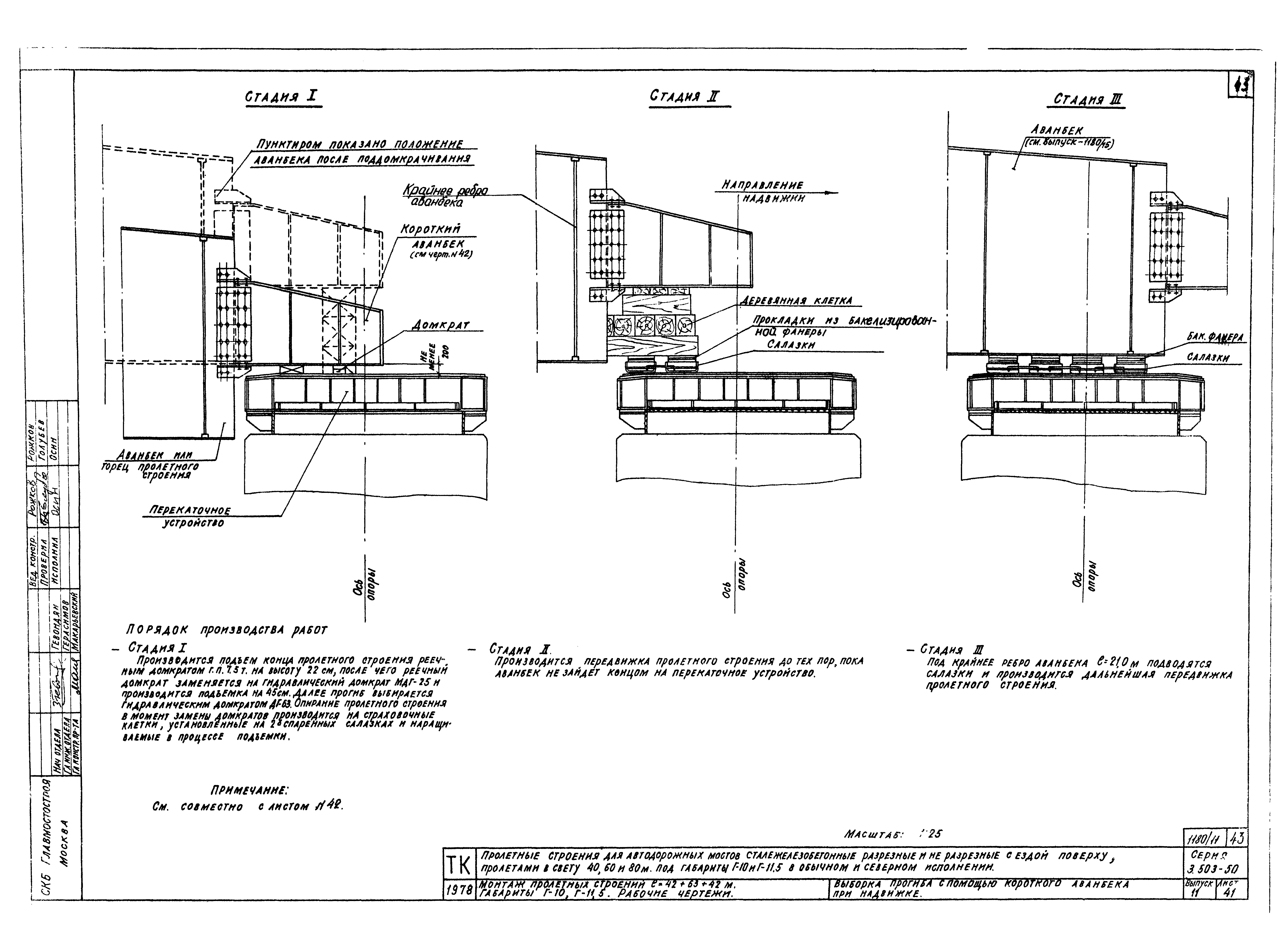
| Область применения: | Пролетные строения под габариты Г-10 и Г-11,5 предназначены для установки на автодорожных мостах, расположенных на прямых участках дорог III и II технической категории в плане и профиле, а также на кривых наименьших радиусов: выпуклых - 10000 м, 15000 м; вогнутых - 3000 м и 5000 м соответственно, эксплуатируемых в районах с расчетной температурой воздуха до минус 40 градусов Цельсия (обычное исполнение) и ниже минус 40 градусов Цельсия (северные климатические зоны А и Б - северное исполнение) |
| Разработан: | СКБ Главмостостроя |
| Утверждён: | 29.12.1978 Минтрансстрой (Mintransstroy Л-1628) |




















































